Skip to main content

Portfolio | Jacob White | Kansas State University Architecture | 2024

Page 1


Portfolio

Jacob White

I have been a student of architecture long before attending Kansas State University in 2021. I have always been drawn to design because of the ways that they can help us better solve problems. I have a passion for photography, entrepreneurship, and outdoor activities such as hiking!

Hello, Iโ€™m Jacob White

Year : Third Year Student

School : Kansas State University

Graduating : May of 2026

Hometown : Wamego, Kansas

Contact : jacob11white@outlook.com

Skills

Design

Rendering

Rhino

Revit

Grasshopper

Vray

Lumion

Procreate

Adobe Photoshop

Adobe Illustrator

Editing

Additional

Adobe In Design

Microsoft Office

Hand Sketching

Physical Modeling

Hand Drafting

Photography

Awards

January of 2024

Bowman Design Competition

Finalist

Jury and peer presentation

Kaw River Cultural Center (Pg.24)

Experience

Jan. 2023Present

May. 2021Dec. 2022

Master Landscape Inc.

Landscape Designer

Consultation and communication with client

Hand-drafted and rendered Landscape documents

Project cost estimation

Briggs Brothers Construction LLC

Construction Laborer

Site Grading/ Prep

Ground Utility Repair/Installation

www.jacobwhitestudio.com

1

Chelsea Dance Theater

Dual theater spaces create a flexible linkage of the New York City Highline through the design to maximize building-context relationships.

Project duration : 8 weeks

Pg. 6

2

New York City Vertical Farm

Challenged by a small footprint, this urban greenhouse leverages materiality and structure to create the most efficient growing zone possible.

Project duration : 4 weeks

Pg. 16

3

Kaw River Cultural Center

This re-imagined riverfront design acts as a modern cultural crossroads for six native tribes, while also connecting the city of Topeka back to the waterfront.

Project duration : 8 weeks

Pg. 24

4

Low-rise Rural Housing

This small development rethinks the ideas of modern day circulation, program, and neighbor relations within low-rise residential complexes.

Project duration : 4 weeks

Pg. 32

1 Chelsea Dance Theater

spring 2024 duration : 8 weeks

The site of the Chelsea Dance Theater sits nicely in NYC between the Chelsea Public Park and the revitalized Highline walkway that allows pedestrians an elevated and vegetated experience of the neighboring blocks. The goal of the theater spaces was primarily to create flexible performance and rehearsal stages that had the ability to fully engage with this amazing context. To realize this dream, the more informal and public program acts as a visual connection from the elevated Highline down to the street, creating a dynamic transition of energy as the occupant moves from the lobby, lounge, and cafe.

The interior of the design is warm and inviting thanks to the use of the natural glulam wood construction, allowing natural light to drape down the interior walls, spilling onto the white oak flooring. The exterior facade mimics the natural wood patterning with board formed concrete panels. This transition from cool to warm materiality annunciates the vibrance of the interior.

One theater embracing the involvement of natural light, one creating an intimate, personal space with the absence of light

By separating the performance zones, a buffer zone is created to reset the energy of the occupant

Across the street looking at the north facade of the theater and its materiality

Black Box
White Box
Elevate & Embed Juxtapose Theaters

Terracing Spaces

Terraced program such as the lobby and cafe allow for this relationship down through the design with the context to emerge

Inset Structure

In order to achieve a clean and minimal glass facade, the vertical structure is inset from the facade

A Highline view down through the design, pulling your attention to the street

The service bar along the south party wall houses vertical circulation, bathrooms, storage, and mechanical which also acting as a structural bearing feature. The light and airy glass facade wrapping around the program is supported by vertical glass fins while the majority of the cantilevered load is carried inward to the 4 columns

The entry is immediately welcomed by the stair that is expressed to the north streetside. This attracts street attention in to the lounge which can be arranged as an informal performance space, as well as the cafe that extends its program outside near the Highline

Floor Level 1
Within the black box waiting lounge, street level light pierces down into the space
White box theater view taking use of the operable natural light conditions

2

New York Vertical Farm

spring 2024 duration : 4 weeks

In an urban environment as dense as New York City, the square footage necessary to create a quality farm or greenhouse space is a challenge. This design take advantage of vertical growing techniques through strategies focusing on materiality, structure, and efficiency of floor plan area. Specifically, investigating the relationship between facade design and growing condition, as the goal of this farm is to provide adequate growing conditions year round.

The growing floors are designed in a double height, staggered arrangement that promotes vertical allowances for any plant. A double skin facade system was integrated in order to achieve a high insulation value as well as create an operable venting system that could compartmentalize grow spaces accordingly to the required conditions. ETFE was a major factor in the design of the facade through itโ€™s use variable inflation feature that allows the building owner to control the material R-value. The close proximity to the Westbeth Artist housing to the North, also was inspiration for the sculptural appearance of the facade.

Exterior Engagement Service Spine

The street corner and elevated old highline offer opportunities to pull in or extend outward attention

The load bearing core also houses vertical circulation and flexible spaces for the grow zones such as storage

South Elevation East Elevation

This section cut scale model highlights the ETFE double skin facade system along with proportional relationship with the double height growing spaces

The structure of the design can also be seen with the inclined column and double skin truss piercing through the floor systems and supporting the beam/girder system that allows for such dramatic cantilevers

3

Kaw River Cultural Center

fall 2023

duration : 8 weeks

With a riverfront site sitting just blocks from the Topeka, Kansas capitol building, the focus of the cultural center was to reconnect the urban context back to the environment, while recognizing six local tribes of the area : Osage, Kansa Shawnee, Delaware, Pottawatomie, and Wyandot. Dedicated gallery spaces, speaking amphitheaters, and council chambers are all components that the design ties back to the riverfront.

Engagement between the people of Topeka and the Kaw River was the key, so by redesigning the master plan near the river bank, we set the form-work for our cultural center. The circulation and carving of views both were tools that drive the interior attention outward the environment.

It is this stitching between the indoor and outdoor experience that creates thresholds and moments of relief between program. The continuous flow of water through and under the design, guiding the occupant the boardwalk is an example of how we can rethink the relationship of enclosure.

A new master plan for the river creates a more interactive trail and boardwalk system that connects program such as a park and dock. It also aimed to revitalize the tree line that was lost to better mirror the adjacent shore

In order to provide maximum engagement with the river, the mass mimics the flow of the water and boardwalk

This draws views and attention inward, as well as better indicates the entry plaza

Creasing the Form
Stretch Parallel Mass

Weaving Circulation

The mass crosses down and back over itself, guiding an experience down to the boardwalk

Interlocking Thresholds

Carving through the interior space using environmental factors or framed views allows the program to be broken

4

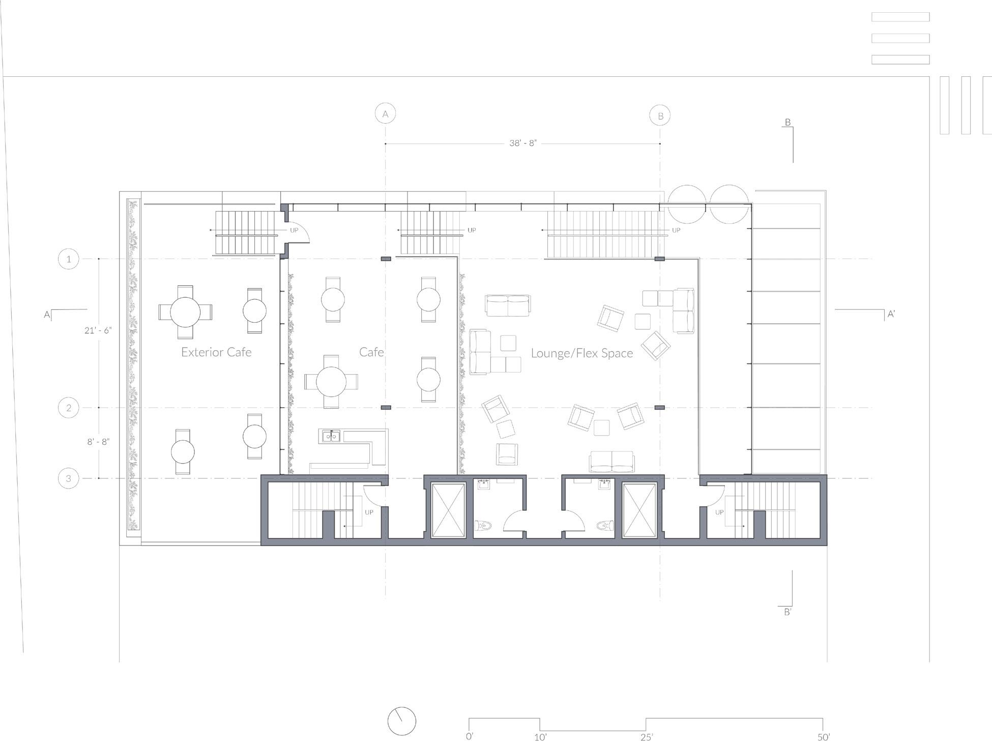
Low-rise Rural Housing

fall 2023

duration : 4 weeks

Located in the small and active town of Iola, Kansas, this design targets the adventurous bikers and hikers that are drawn to the near by new state park just to the south. With only a small site to work with, and a goal of ten housing units, the design utilizes strategies of interlocking masses to form innovative new spaces. The vehicular parking, use of public vs private exterior space and interior qualities of each housing unit were all driving influences of the complex.

The near shotgun style forms allow a flexible space on the interior as well as welcome operable cross ventilation through the home. The outdoor decks offer an elevates sense of privacy from below and can be connected easily to a neighboring unit for an outdoor gathering. The recessed parking and entries into the units allows for both a private view from the street, but also a protected shelter from the spontaneous hail and rainstorms Kansas weather is familiar with. By breaking the pattern of the units with the public greenspace and cafe, this small complex aims to encourage cohabitation and interaction.

Exterior Spaces

The elevated exterior patios provide privacy while not limiting the experience

The elongated shape of the units allow for operable passive cooling through

Cross Ventilation

The covered parking and entry areas allow for discrete but quick access to the public exterior space

The public cafe welcomes the opportunity for natural light to drape down the walls of the space

www.jacobwhitestudio.com

Turn static files into dynamic content formats.

Createย aย flipbook
Portfolio | Jacob White | Kansas State University Architecture | 2024 by Jacob White - Issuu