




![]()





Our business was founded in 1947, initially in the supply of timber fencing to serve the farming community and public. From the mid 1980s, steel demarcation, security fencing and gates were manufactured and supplied for a diverse range of applications, from residential and commercial, to government departments and industry.
The world may have changed significantly since our inception, but we have remained faithful to our founding principles; to design, manufacture and install the best possible products, backed by the best possible service and to put our customers first in everything we do.
With the exception of standard, in-stock products, all other customer requirements are channelled to our experienced design team, to design your fence or gate down to the last detail taking topography of the site, ground conditions and any special design features you require into consideration - from additional security enhancements to one-off finishes, finials or corporate identity.
Only when our technical drawings have been approved will manufacturing begin, to ensure the finished product is delivered right first time.
Our manufacturing facility employs both traditional production methods and the latest CNC technology to deliver the highest quality products.
All of our vertical railing steel fencing and gate designs are supplied hot dip galvanised to BS EN 1461 for total protection inside and out to deliver a minimum service life of 25 years.
Products destined for powder coating are hot dip galvanised then hand ‘fettled’ for a quality finish and undergo a pre-treatment process, before being coated to BS EN 13438 in a vast range of RAL and BS colours in our state of the art powder coating plant.
You can design the best perimeter security solution, but ultimately, it will only be as strong as its weakest component. For this reason, we operate a nationwide installation service ensuring that the integrity of our product is maintained through to the completion of a project. All of our fence and gate installation teams employ DBS checked professionals with years of experience in following our quality procedures and industry best practice. This allows us to offer competitive pricing, an installation that is of the highest quality and importantly, the ability to get it right first time.
Our installation service extends to include a dedicated team of experts in automation and access control who install and maintain automated and powered equipment which forms part of a secure perimeter boundary; from gates and barriers, crash rated rising road blockers, pedestrian access and control, to the sophisticated Jaktronic® Perimeter Intrusion Detection System.
We are so confident in the quality of our products that we are able to offer class leading guarantees to underwrite our assertion.

On all of our timber fencing, fence posts, gates, and landscaping products. Our Jakcure® pressure treatment process represents the ultimate in modern softwood preservation. The process conforms to BS 8417 and gives lasting protection - above and below ground - against all wood-boring pests and all forms of wet and dry rot.

On all our steel fencing and gates covering all inherent defects such as design, manufacturing, finish and fitness for purpose. If any problems occur during the lifetime of the guarantee, which are not the result of acts of vandalism, accidental damage, operator misuse or unsuitable operating environments, we will replace the item free of charge (excludes locks, bearings, rollers and other parts subject to wear and tear).






All automation products supplied and installed by Jacksons are covered by a 25 month parts and labour guarantee, subject to a service contract being taken out in the second year. If any problems occur during the lifetime of the guarantee, that are not the result of acts of vandalism, accidental damage, misuse or unsuitable operating environments, we will replace it free of charge including the cost of installation.








We manufacture vertical bar fencing and access control solutions which deliver effective security from the ‘outside in’. Our goal is to help our customers create a safe, secure and sustainable environment, whether that’s for domestic homes, schools or government-approved sites.
Our vertical bar range has been designed to work in tandem with surveillance technology to manage the threat of a breach in security.
We know that appearance matters, that’s why our products are manufactured to look good and be secure, helping you to create the right impression.

Barbican® features our welded pale-through-rail construction which means there are no bolts to be forced or pales to be removed. The horizontal rails are sleeved on to the upright posts to provide a seamless design that is both stylish and incredibly strong.
• Posts can be customised for Barbed wire / Razor wire / Rota Spike® / Alarm-aFence®
• Vertical pale spacing conforms to building regulations for anti-trap
• Unique vandal-proof panel to post connectors
• Panels can be manufactured to accommodate sloping ground
• Suitable for almost any application from decorative and secure to highly secure
• Anti-climb design
• 25 year service life guarantee
APPLICATIONS
4Perimeters
4Schools
4Commercial premises
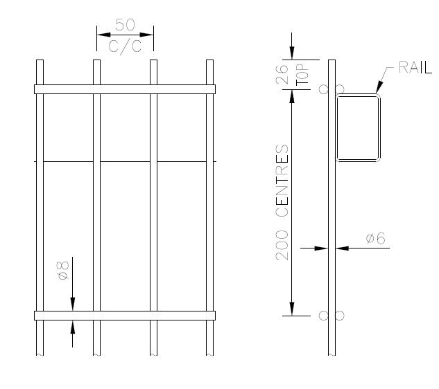
Barbican® panels are up to 3000mm high and have two horizontal hollow section rails 60 x 40mm (3 rails if 3000mm high). Vertical rectangular hollow section 25 x 25mm pales are passed through the rails with standard spacing at 129mm centres (96mm gap between pales). The tops of pales are cut at 45 degrees and left open as standard to form a point.
Matching single leaf and double leaf gates available


Scan to view on our website

• Over length set in concrete as standard
• Base plated to bolt down onto concrete
• Cranked to suit wall mounting
• Hot dip galvanised to BS EN 1461 as standard
• Hot dip galvanised and powder coated to BS EN 13438 in any standard colour
• Other colours on request
• Marine coat for installations within 500m of salt water or an estuary
• Green RAL 6005, Black RAL 9005, Blue RAL 5010, Red RAL 3020, Yellow RAL 1018, White RAL 9010, Grey RAL 7012, Brown RAL 8017, Blue BS 20-C-40
• Architectural grade powder coating
• Other colours on request

Barbican Defender® Xtreme projects a powerful visual representation of superior perimeter protection. The cranked pales are designed to prevent intruders from climbing or scaling the fence. Barbican Defender® Xtreme features curved pale lengths of 320mm and is ideal for higher security applications.
• Vertical pale spacing conforms to building regulations for anti-trap
• Unique vandal-proof panel to post connectors
• Panels can be manufactured to accommodate sloping ground
• Anti-climb design
• 25 year service life guarantee
APPLICATIONS
4High risk
4Perimeters
4Company premises
4Utilities PANELS
Constructed as per Barbican® panels but pales are extended and cranked 320mm from the top rail, with each one cut at 45 degrees to form a point.
Matching single leaf and double leaf gates available


Scan to view on our website

• Overlength set in concrete as standard
• Base plated to bolt down onto concrete
• Cranked to suit wall mounting
• Hot dip galvanised to BS EN 1461 as standard
• Hot dip galvanised and powder coated to BS EN 13438 in any standard colour
• Other colours on request
• Marine coat for installations within 500m of salt water or an estuary
• Green RAL 6005, Black RAL 9005, Blue RAL 5010, Red RAL 3020, Yellow RAL 1018, White RAL 9010, Grey RAL 7012, Brown RAL 8017, Blue BS 20-C-40
• Architectural grade powder coating
• Other colours on request

Barbican Imperial® with its 25mm or 32mm diameter round pales (dependent on height) delivers all the advantages of the Barbican® range with no reduction in strength or security. Barbican Imperial® is available with a choice of decorative finials and post tops to offer the right solution for even the most prestigious applications.
• Posts can be customised for Barbed wire / Razor wire / Rota Spike® / Alarm-aFence®
• Vertical pale spacing conforms to building regulations for anti-trap
• Unique vandal-proof panel to post connectors
• Panels can be manufactured to accommodate sloping ground
• Anti-climb design
• 25 year service life guarantee
APPLICATIONS
4Perimeters
4Medium risk
4Schools
Barbican Imperial® comprises of vertical round hollow section 25mm diameter pales up to 2000mm high at 124mm centres and 32mm for 2100mm+ with 129mm centres.
Panels under 1200mm come with flat top pales as standard, with an option of a pointed top. Panels 1500mm and above come with pales cut at 45˚.
Matching single leaf and double leaf gates available




• Option of plastic dome caps
*Finial ‘G’ only available for panels from 2.1m high
POST OPTIONS
• Overlength set in concrete as standard
• Base plated to bolt down onto concrete
• Cranked to suit wall mounting
• Hot dip galvanised to BS EN 1461 as standard
• Hot dip galvanised and powder coated to BS EN 13438 in any standard colour
• Other colours on request
• Marine coat for installations within 500m of salt water or an estuary
• Green RAL 6005, Black RAL 9005, Blue RAL 5010, Red RAL 3020, Yellow RAL 1018, White RAL 9010, Grey RAL 7012, Brown RAL 8017, Blue BS 20-C-40
• Architectural grade powder coating
• Other colours on request

Barbican® Extra security panels are identical to standard Barbican® panels, but with an important difference: the additional pales through the top rail that ensure even the smallest hand or foot cannot gain purchase, making it virtually impossible to climb or scale.
• Posts can be customised for Barbed wire / Razor wire / Rota Spike®
• Vertical pale spacing conforms to building regulations for anti-trap
• Unique vandal-proof panel to post connectors
• Panels can be manufactured to accommodate sloping ground
• Anti-climb design
• 25 year service life guarantee
APPLICATIONS
4Perimeters
4Company premises
4Commercial premises PANELS
Barbican® Extra panels are up to 3000mm high and have two horizontal hollow sections rails 60 x 40mm (3 rails if 3000mm high). Vertical rectangular hollow section 25 x 25mm pales are passed through the rails with standard spacing at 129mm centres (96mm gap between pales), with additional pales through top rail and between each full pale (60mm gap between top pales).
Matching single leaf and double leaf gates available

Scan to view on our website

• Overlength set in concrete as standard
• Base plated to bolt down onto concrete
• Cranked to suit wall mounting
• Hot dip galvanised to BS EN 1461 as standard
• Hot dip galvanised and powder coated to BS EN 13438 in any standard colour
• Other colours on request
• Marine coat for installations within 500m of salt water or an estuary
• Green RAL 6005, Black RAL 9005, Blue RAL 5010, Red RAL 3020, Yellow RAL 1018, White RAL 9010, Grey RAL 7012, Brown RAL 8017, Blue BS 20-C-40
• Architectural grade powder coating
• Other colours on request

Barbican® Barbed Top panels are up to 3000mm high and have two horizontal hollow section rails 60 x 40mm (3 rails on 3000mm high). A 10mm round point bar is added to each pale downward pointing.
• Posts can be customised for Barbed wire / Razor wire / Rota Spike ®
• Vertical pale spacing conforms to building regulations for anti-trap
• Unique vandal-proof panel to post connectors
• Panels can be manufactured to accommodate sloping ground
• Anti-climb design
• 25 year service life guarantee
4Perimeters
4Commercial premises
4Medium risk - high risk
Barbican® Barbed Top panels are up to 3000mm high and have two horizontal hollow sections rails 60 x 40mm (3 rails if 3000mm high). Vertical rectangular hollow section 25 x 25mm pales are passed through the rails with standard spacing at 129mm centres (96mm gap between pales), which has a 10mm round pointed bar added to each pale.
Matching single leaf and double leaf gates available

Scan to view on our website

• Overlength set in concrete as standard
• Base plated to bolt down onto concrete
• Cranked to suit wall mounting
• Hot dip galvanised to BS EN 1461 as standard
• Hot dip galvanised and powder coated to BS EN 13438 in any standard colour
• Other colours on request
• Marine coat for installations within 500m of salt water or an estuary
• Green RAL 6005, Black RAL 9005, Blue RAL 5010, Red RAL 3020, Yellow RAL 1018, White RAL 9010, Grey RAL 7012, Brown RAL 8017, Blue BS 20-C-40
• Architectural grade powder coating
• Other colours on request

Sentry® fencing and gates feature a welded semi pale-through-rail construction to combine style with performance and is equally appropriate for contemporary or more traditional settings. Like our Barbican® systems, all Sentry® fencing and gate panels incorporate concealed fixings for strength and security.
• Posts can be customised for Barbed wire / Razor wire / Rota Spike® / Alarm-aFence®
• Vertical pale spacing conforms to building regulations for anti-trap
• Unique vandal-proof panel to post connectors
• Panels can be manufactured to accommodate sloping ground
• Panels can be topped with Viper Spike® / Cobra Spike®
• Anti-climb design
• 25 year service life guarantee
4Perimeters
4Medium - High risk
4Commercial premises
Sentry® panels are up to 3000mm high and have two horizontal rectangular hollow section rails 60 x 40mm (3 rails if 3000mm high); Vertical round hollow section 32mm pales are passed through the rails with standard spacing at 129mm centres. Panels from 1800mm high have a security comb (double row of sharp steel points 23 x 2mm thick).
Matching single leaf and double leaf gates available


Scan to view on our website

• Overlength set in concrete as standard
• Base plated to bolt down onto concrete
• Cranked to suit wall mounting
• Hot dip galvanised to BS EN 1461 as standard
• Hot dip galvanised and powder coated to BS EN 13438 in any standard colour
• Other colours on request
• Marine coat for installations within 500m of salt water or an estuary
• Green RAL 6005, Black RAL 9005, Blue RAL 5010, Red RAL 3020, Yellow RAL 1018, White RAL 9010, Grey RAL 7012, Brown RAL 8017, Blue BS 20-C-40
• Architectural grade powder coating
• Other colours on request

Tri-Guard® is an innovative style of fencing and gates featuring pales with curved tops, set in clusters of three, joined by feature steel discs to create a decorative appearance, with anti-climb and anti-scale performance.
• Posts can be customised for Barbed wire / Razor wire / Rota Spike®
• Pales cut at 45º and curved outwards for anti-climb
• Vertical pale spacing conforms to building regulations for anti-trap
• Unique vandal-proof panel to post connectors
• Panels can be manufactured to accommodate sloping ground
• Anti-climb design
• 25 year service life guarantee
4Public buildings
4Medium - High risk
4Schools
Tri-Guard® panels have three horizontal rectangular hollow section rails 50 x 25mm.
The vertical round hollow section 19mm pales are grouped in threes with the top curved over. Metal discs are welded between the pales, one row for 2200mm high and two rows for 2500mm high and have a maximum of 100mm spacing (complies with British standard).
Matching single leaf and double leaf gates available


• Overlength set in concrete as standard
• Base plated to bolt down onto concrete
• Cranked to suit wall mounting
• Hot dip galvanised to BS EN 1461 as standard
• Hot dip galvanised and powder coated to BS EN 13438 in any standard colour
• Other colours on request
• Marine coat for installations within 500m of salt water or an estuary
• Green RAL 6005, Black RAL 9005, Blue RAL 5010, Red RAL 3020, Yellow RAL 1018, White RAL 9010, Grey RAL 7012, Brown RAL 8017, Blue BS 20-C-40
• Architectural grade powder coating
• Other colours on request

We offer Barbican Imperial® and Sentry® as GRP fencing with non-conductive properties, making it a highly effective alternative to traditional steel fencing when used around railways and electrical enclosures or locations that need to be transparent to radio wave frequencies.
Glass Reinforced Plastic is a non-conductive property made from a polyester resin, it is a very popular composite material due to its strength.
• Barbican Imperial® or Sentry® style available
• Manufactured from non-conductive materials
• Radio Frequency (FR) and Electromagnetic transparency
• UV resistant
• 31mm diameter x 4mm GRP pales
4Grey RAL 7001 as standard
4Other colours on request
• Perimeter fencing
• Track side fencing
• Heights available: 1000 / 1200 / 1500 / 1800 / 2000 / 2400 / 3000mm
• Matching gates available - priced upon request
• Palisade style available upon request
• Electrical / Chemical enclosures
• Gas enclosures
• Hazardous environments


We offer GRP mesh fencing with non-conductive properties, making it a highly effective alternative to traditional steel fencing when used around areas such as railways and electrical enclosures or locations that need to be transparent to radio wave frequencies.
GRP mesh fencing has small apertures making it ideal for securing enclosures that may be at high risk to vandalism. It provides a strong visual statement as well as fulfilling many practical functions including ventilation or as a protective barrier. Glass Reinforced Plastic is a non-conductive property made from a polyester resin, it is a very popular composite material due to its strength.
• Radio Frequencies (FR) and Electromagnetic transparency
• UV resistant
• Anti climb design
• 20mm x 20mm / 40 x 40mm / 50 x 50mm square mesh
• Manufactured from non-conductive materials
4Grey RAL 7001 as standard
4Other colours on request
• Perimeter fencing
• Track side fencing
• Heights available: 1000 / 1200 / 1500 / 1800 / 2000 / 2400 / 3000mm
• Matching gates available - priced on request
• Electrical / Chemical enclosures
• Gas enclosures
• Hazardous environments

Our product portfolio has a variety of mesh systems constructed using zinc alloy coated steel wire for exceptional corrosion resistance and lifetime value. Suitable for a wide variety of applications, welded mesh panels are a popular way to keep intruders out of a property or boundary, and their flexible design allows them to be deployed almost anywhere.
While some security fencing designs can be overcome with intruders who could climb over them, welded mesh panels are extremely difficult to get a purchase on due to the narrow, close-knit wires, while the design is strong enough to withstand forceful attacks on the fence itself.
Across all our panels, wire gauge is measured prior to coating, to provide an accurate depiction of the strength and quality of the materials used. A smaller diameter wire with a heavier layer of coating will not provide the same structural strength and resistance to cutting as a product made from heavier diameter wire, even though both will be show as being the same diameter.

EuroGuard® Regular, our brand of V mesh fencing, is ideal for residential areas, commercial properties, schools or car parks. The “V” shaped profile reinforcing folds increase the panels rigidity and strength. Panels can be stacked above one another to deliver a higher fence.
• Posts can be customised for Barbed wire / Razor wire / Rota Spike® / Alarm-aFence®
• Mesh 200 x 50mm centres with 45mm gap, 5mm wire (wire measured prior to coating)
• Unique vandal-proof panel to post connectors with fixings on secure side of fence
• Anti-climb design
• 3 - 4 reinforcement folds according to height
• Can be stepped to accommodate sloping ground
• 25 year service life guarantee
APPLICATIONS
4Perimeters
4Schools
4Retail - Commercial premises
Panels are 3000m wide with 200 x 45mm mesh, 5mm wires with 3 - 4 reinforcing folds according to height, Vertical wires are at 50mm centres therefore panel has 61 vertical wires.
EuroGuard® Flatform Heavy single leaf and double leaf gates available


Scan to view on our website

• Overlength set in concrete as standard
• Base plated to bolt down onto concrete
• Cranked to suit wall mounting
• Panels are Galfan® zinc alloy coated to BS EN 10244-2:2009 class A
• Galvanised and powder coated to BS EN 13438
• Marine coat for installations within 500m of salt water or an estuary
• Green RAL 6005, Black RAL 9005, Blue RAL 5010, Red RAL 3020, Yellow RAL 1018, White RAL 9010, Grey RAL 7012, Brown RAL 8017, Blue BS 20-C-40
• Architectural grade powder coating
• Other colours on request

EuroGuard® Combi brings our experience and reputation in steel and timber fencing and gates together in a design that combines the beauty of natural wood with the strength of steel. The robust fence panels and matching gates provide the additional advantages of a flat facing surface with no hand or foot holds as well as closely spaced slats for added privacy.
• Welded mesh panels with timber slats
• Mesh 200 x 50mm centres with 45mm gap, 5mm wire (wire measured prior to coating)
• Unique vandal-proof panel to post connectors with fixings on secure side of fence
• Can be stepped to accommodate sloping ground
• Posts can be customised for Barbed wire / Razor wire / Rota Spike® / Alarm-aFence®
• Panels can be topped with Viper Spike® / Cobra Spike®
• 25 year service life and Jakcure® guarantee
APPLICATIONS
4Schools
4Medium - High risk
4Storage
Mesh with ‘V’ profile with 3 - 4 reinforcing folds (subject to height). Made using 5mm horizontal and vertical wires with 200 x 50mm mesh centres, welded at intersections.
Timber slats are treated using our Jakcure® treatment, guaranteeing the timber for 25 years against rot or insect attack.
Matching single leaf and double leaf gates available


Scan to view on our website

• Overlength set in concrete as standard
• Base plated to bolt down onto concrete
• Cranked to suit wall mounting
• Spur post as standard
• Panels are Galfan® zinc alloy coated to BS EN 10244-2:2009 class A
• Galvanised and powder coated to BS EN 13438
• Timber slats are planed, Jakcure vacuum pressure treated as standard
• Marine coat for installations within 500m of salt water or an estuary
• Green RAL 6005, Black RAL 9005, Blue RAL 5010, Red RAL 3020, Yellow RAL 1018, White RAL 9010, Grey RAL 7012, Brown RAL 8017, Blue BS 20-C-40
• Architectural grade powder coating
• Other colours on request

EuroGuard® Flatform has a flat profile with double horizontal wires. It is ideal for commercial sites (schools or play areas) or similar installations; anywhere durability and security is important. The panels can be stacked above one another to give a 6000mm high fence.
• Available in medium 200 x 50mm wire centres with 45mm gap - double 6mm horizontal wire, 5mm vertical wire
• Available in heavy 200 x 50mm wire centres with 45mm gap - double 8mm horizontal wire, 6mm vertical wire
• Unique vandal-proof panel to post connectors with fixings on secure side of fence
• Can be stepped to accommodate sloping ground
• Posts can be customised for Barbed wire / Razor wire / Rota Spike® / Alarm-aFence®
• 25 year service life guarantee APPLICATIONS
4Sports
4Industrial sites
4Schools
Mesh panels have a flat profile with double horizontal wires, welded at intersections
EuroGuard® Flatform Heavy single leaf and double leaf gates available



• Overlength set in concrete as standard
• Base plated to bolt down onto concrete
• Cranked to suit wall mounting
• Panels are Galfan® zinc alloy coated to BS EN 10244-2:2009 class A
• Galvanised and powder coated to BS EN 13438
• Marine coat for installations within 500m of salt water or an estuary
• Green RAL 6005, Black RAL 9005, Blue RAL 5010, Red RAL 3020, Yellow RAL 1018, White RAL 9010, Grey RAL 7012, Brown RAL 8017, Blue BS 20-C-40
• Architectural grade powder coating
• Other colours on request

EuroGuard® Extra panels are unique to Jacksons and feature vertical and horizontal wires and smaller mesh apertures which are perfect for higher risk applications where security is a priority. EuroGuard® Extra has “V” profile reinforcing folds which increase the panels rigidity and strength.
• 200 x 30mm wire centres, 25mm gap with a 5mm wire
• Unique vandal-proof panel to post connectors with fixings on secure side of fence
• Can be stepped to accommodate sloping ground
• Posts can be customised for Barbed wire / Razor wire / Rota Spike® / Alarm-aFence®
• 25 year service life guarantee
APPLICATIONS
4Industrial sites
4Medium - High risk
4Commercial premises
Mesh panels with ‘V’ profile with 4 reinforcing folds are made using 5mm horizontal and vertical wires with 200 x 30mm wire centres, welded at intersections.
Matching single leaf and double leaf gates available

Fixing bracket detail
Scan to view on our website

• Overlength set in concrete as standard
• Base plated to bolt down onto concrete
• Cranked to suit wall mounting
• Panels are Galfan® zinc alloy coated to BS EN 10244-2:2009 class A
• Galvanised and powder coated to BS EN 13438
• Marine coat for installations within 500m of salt water or an estuary
• Green RAL 6005, Black RAL 9005, Blue RAL 5010, Red RAL 3020, Yellow RAL 1018, White RAL 9010, Grey RAL 7012, Brown RAL 8017, Blue BS 20-C-40
• Architectural grade powder coating
• Other colours on request

Securi-Mesh® fencing, also known as 358 or prison mesh, provides an ideal solution for a wide variety of high security perimeter and access control applications. Both the mesh and posts are designed to meet Home Office specifications for use in utilities sites, high risk locations and secure compounds.
• Posts can be customised for Barbed wire / Razor wire / Rota Spike® / Alarm-aFence®
• Overlapped by a minimum of 75mm at posts to maintain integrity of protection
• Clamp bar fixings
• Mesh spacing conforms to building regulations for anti-trap
• Anti-climb design
• Can be stepped to accommodate sloping ground
• Custom designs available
• 25 year service life guarantee
APPLICATIONS
4Utilities
4High risk
4Secure compounds
Securi-Mesh® panels are constructed from 76.2 x 12.7mm mesh (3” x 1/2”) with 4mm wire. Panel widths are 2515mm as standard, with heights up to 5200mm.
Matching single leaf and double leaf gates available


Scan to view on our website

• Overlength set in concrete as standard
• Base plated to bolt down onto concrete
• Cranked to suit wall mounting
• Panels are Galfan® zinc alloy coated to BS EN 10244-2:2009 class A
• Galvanised and powder coated to BS EN 13438
• Marine coat for installations within 500m of salt water or an estuary
• Green RAL 6005, Black RAL 9005, Blue RAL 5010, Red RAL 3020, Yellow RAL 1018, White RAL 9010, Grey RAL 7012, Brown RAL 8017, Blue BS 20-C-40
• Architectural grade powder coating
• Other colours on request

Securi-Mesh® Plus features anti climb double layer mesh panels with small apertures to eliminate foot and finger holds; preventing objects being passed through. The system is particularly effective against the use of conventional hand and portable power cutting tools.
• Posts can be customised for Barbed wire / Razor wire / Rota Spike® / Alarm-aFence®
• Staggered double skin mesh panels with wire welded at every intersection
• Overlapped by a minimum of 75mm at posts to maintain integrity of protection
• Anti-climb design
• Can be stepped to accommodate sloping ground
• 25 year service life guarantee
APPLICATIONS
4Utilities
4High risk
4Secure compounds PANELS
Staggered double skin of 76.2mm x 12.7mm resistance mesh up to 2400mm only. Second panel is an internal skin only, single skin then from 2400mm upwards.
Matching single leaf and double leaf gates available

Scan to view on our website

• Overlength set in concrete as standard
• Base plated to bolt down onto concrete
• Cranked to suit wall mounting
• Panels are Galfan® zinc alloy coated to BS EN 10244-2:2009 class A
• Galvanised and powder coated to BS EN 13438
• Marine coat for installations within 500m of salt water or an estuary
• Green RAL 6005, Black RAL 9005, Blue RAL 5010, Red RAL 3020, Yellow RAL 1018, White RAL 9010, Grey RAL 7012, Brown RAL 8017, Blue BS 20-C-40
• Architectural grade powder coating
• Other colours on request

We have developed a range of security compounds designed for use in internal or external environments to provide both protection and managed access control. A number of security compound sizes and specifications are available and we are able to also design and manufacture bespoke solutions made to order.
• Gates include slide latch as standard
• Gate options include key lock, digi-pad, magnetic lock or push pad
• 25 year service life guarantee
4High risk
4Data centres
4Gas bottle storage
4Bike storage
• Overlength set in concrete as standard
• Base plated to bolt down onto concrete


features
EuroGuard® Regular
EuroGuard® Flatform (medium)
EuroGuard® Flatform (heavy)
EuroGuard® Extra
EuroGuard® Combi
2 - 4 reinforcing folds according to height
Double 6mm horizontal, 5mm vertical
Double 8mm horizontal, 6mm vertical
2 - 4 pressed beams according to height
Timber slats inserted between the wires Anti-climb design
Scan to view on our website

• Panels are Galfan® zinc alloy coated to BS EN 10244-2:2009 class A
• Galvanised and powder coated to BS EN 13438
• Marine coat for installations within 500m of salt water or an estuary
• Green RAL 6005, Black RAL 9005, Blue RAL 5010, Red RAL 3020, Yellow RAL 1018, White RAL 9010, Grey RAL 7012, Brown RAL 8017, Blue BS 20-C-40
• Architectural grade powder coating
• Other colours on request
LPCB LPS 1175 covers physical security products and services, and comprises of a number of security ratings from A1 to H20, formerly known as SR1 - SR8.
The ratings are measured in terms of attack tool and time available to the attacker, and enable specifiers to select products according to the risks that the site might face. The LPS 1175 standard can be used in a range of applications from residential through to critical infrastructure projects.
A1 (SR1) & B3 (SR2)
Products provide the minimum levels of recognised resistance to opportunist attempts at forced entry using a range of techniques including those that create noise.
C5 (SR3)
Products provide moderate resistance to determined attempts of forced entry using a range of techniques, including those that involve creation of noise.
D10 (SR4) & E10 (SR5)
Products resist experienced attempts at forced entry using a wide range of tools including battery powered tools lasting up to 10 minutes depending on the security rating sought.

Our Barbican® A1 (SR1) LPS 1175 systems feature a welded pale-through-rail construction for strength and security integrity. Barbican® SR1 is an ideal option for commercial properties, city schools, or great for architects who want a minimalist contemporary fence which meets LPS 1175 standard set by the Loss Prevention Certification Board (LPCB).
• Fully welded pale-through-rail construction
• Seamless, concealed vandal proof rail to post fixing
• Anti-climb and anti-scale design
• 25 year service life guarantee
APPLICATIONS
4Schools
4Perimeter security
4Commercial premises
PANELS
Barbican® SR1 panels are up to 3000mm high and have two horizontal hollow section rails 60 x 40mm (3 rails if 3000mm high). Vertical rectangular hollow section 25 x 25mm pales are passed through the rails with standard spacing at 129mm centres. The tops of pales are cut at 45 degrees and left open as standard to form a point.
A1 (SR1) gates available APPROVALS
LPS 1175 A1 (SR1)





Scan to view on our website

• Hot dip galvanised to BS EN 1461 as standard
• Hot dip galvanised and powder coated to BS EN 13438 in any standard colour
• Other colours on request
• Marine coat for installations within 500m of salt water or estuary
• Overlength set in concrete as standard
• Baseplated to bolt down onto concrete
• Green RAL 6005, Black RAL 9005, Blue RAL 5010, Red RAL 3020, Yellow RAL 1018, White RAL 9010, Grey RAL 7012, Brown RAL 8017, Blue BS 20-C-40
• Architectural grade powder coating
• Other colours on request

Barbican Imperial® LPS 1175 A1 (SR1) system of fencing and gates features a welded pale-through-rail construction for strength and security integrity. The horizontal railed are sleeved on to the upright posts with concealed fixings to provide timeless design suited to commercial properties, schools or applications where a contemporary fence meeting with a recognised security rating is specified.
• Fully welded pale-through-rail construction
• Seamless, concealed vandal proof rail to post fixing
• Anti-climb and anti-scale
• 25 year service life guarantee
4Medium risk
4Schools
4Retail
4Public spaces
Barbican Imperial® SR1 has vertical round hollow section ø 32mm diameter pales up to 2000mm high at 129mm centres and 32mm for 2100mm+ with 129mm centres.
A1 (SR1) gates available APPROVALS
LPS 1175 A1 (SR1)





• Hot dip galvanised to BS EN 1461 as standard
• Hot dip galvanised and powder coated to BS EN 13438 in any standard colour
• Other colours on request
• Marine coat for installations within 500m of salt water or estuary
• Overlength set in concrete as standard
• Baseplated to bolt down onto concrete
• Green RAL 6005, Black RAL 9005, Blue RAL 5010, Red RAL 3020, Yellow RAL 1018, White RAL 9010, Grey RAL 7012, Brown RAL 8017, Blue BS 20-C-40
• Architectural grade powder coating
• Other colours on request

Barbican® Extra 1175 A1 (SR1) features a welded pale-through-rail construction for strength and security integrity and additional pales through the top rail, making it difficult to scale over. It is ideally suited to commercial properties, schools or applications where a fence meeting with a recognised security rating with enhanced protection against climbing or scaling is specified.
• Fully welded pale-through-rail construction with additional pales through the top rail
• Seamless, concealed vandal proof rail to post fixing
• Anti-climb design and anti-scale design
• 25 year service life guarantee
APPLICATIONS
4Medium risk
4Transport
4Public spaces
Barbican® Extra A1 panels are up to 3000mm high and have two horizontal hollow section rails 60 x 40mm (3 rails if 3000mm high). Vertical rectangular hollow section 25 x 25mm pales are passed through the rails with standard spacing at 129mm centres, with additional pales through top rail and between each full pale.
A1 gates available.
LPS 1175 A1 (SR1)




Scan to view on our website

• Hot dip galvanised to BS EN 1461 as standard
• Hot dip galvanised and powder coated to BS EN 13438 in any standard colour
• Other colours on request
• Marine coat for installations within 500m of salt water or estuary
• Overlength set in concrete as standard
• Baseplated to bolt down onto concrete
• Green RAL 6005, Black RAL 9005, Blue RAL 5010, Red RAL 3020, Yellow RAL 1018, White RAL 9010, Grey RAL 7012, Brown RAL 8017, Blue BS 20-C-40
• Architectural grade powder coating
• Other colours on request

Barbican® with Finials A1 (SR1) mimics traditional steel railing designs and features a welded-pale-through-rail design which means there are no rivets to be forced or pales that can be easily removed. The horizontal rails are sleeved on to the upright post with concealed fixings to provide a seamless design that is both stylish and strong.
• Fully welded pale-through-rail construction with additional pales through the top rail
• Seamless, concealed vandal proof rail to post fixing
• Anti-climb design and anti-scale design
• 25 year service life guarantee
• Overlength set in concrete as standard
• Baseplated to bolt down onto concrete
Barbican® with Finials A1 panels are up to 3000mm high and have two horizontal hollow sections rails 60 x 40mm (3 rails if 3000mm high). Vertical rectangular hollow section 25 x 25mm pales are passed through the rails with standard spacing at 129mm centres. The tops of pales are have welded Saxon finials for additional security.
A1 (SR1) gates available


Scan to view on our website

• Hot dip galvanised to BS EN 1461 as standard
• Hot dip galvanised and powder coated to BS EN 13438 in any standard colour
• Other colours on request
• Marine coat for installations within 500m of salt water or estuary
• Green RAL 6005, Black RAL 9005, Blue RAL 5010, Red RAL 3020, Yellow RAL 1018, White RAL 9010, Grey RAL 7012, Brown RAL 8017, Blue BS 20-C-40
• Architectural grade powder coating
• Other colours on request
LPS 1175 A1 (SR1)


LPS 1175: Issue 8 Cert/LPCB ref. 913h

Barbican® Barbed Top SR1 fencing features a welded pale-through-rail construction with barbs/spikes welded to the top of each pale to underline its presence and act as a deterrent to climbing and scaling over.
• Fully welded pale-through-rail construction with additional pales through the top rail
• Seamless, concealed vandal proof rail to post fixing
• Anti-climb design and anti-scale design
• 25 year service life guarantee
APPLICATIONS
4Medium risk
4Utilities
4Construction sites
PANELS
Barbican® Barbed Top A1 panels are up to 3000mm high and have two horizontal hollow section rails 60 x 40mm (3 rails if 3000mm high). Vertical rectangular hollow section 25 x 25mm pales are passed through the rails with standard spacing at 129mm centres, which has a 10mm round pointed bar added to each pale.
A1 (SR1) gates available APPROVALS
LPS 1175 A1 (SR1)




Scan to view on our website

• Hot dip galvanised to BS EN 1461 as standard
• Hot dip galvanised and powder coated to BS EN 13438 in any standard colour
• Other colours on request
• Marine coat for installations within 500m of salt water or estuary
• Overlength set in concrete as standard
• Baseplated to bolt down onto concrete
• Green RAL 6005, Black RAL 9005, Blue RAL 5010, Red RAL 3020, Yellow RAL 1018, White RAL 9010, Grey RAL 7012, Brown RAL 8017, Blue BS 20-C-40
• Architectural grade powder coating
• Other colours on request

Barbican Defender® Xtreme SR1 projects a powerful visual statement in perimeter protection with a clear anti climb design. The security fence has curved square bar pales which are designed to prevent intruders from climbing or scaling the fence, whichever side it is approached.
• Fully welded pale-through-rail construction with additional pales through the top rail
• Seamless, concealed vandal proof rail to post fixing
• Anti-climb design and anti-scale design
• 25 year service life guarantee
4High risk
4Commercial premises
4Utilities sites
Constructed as per Barbican® panels but pales are extended and cranked 320mm from the top rail, with each one cut at 45 degrees to form a point.
A1 (SR1) gates available
APPROVALS
LPS 1175 A1 (SR1)




Scan to view on our website

• Hot dip galvanised to BS EN 1461 as standard
• Hot dip galvanised and powder coated to BS EN 13438 in any standard colour
• Other colours on request
• Marine coat for installations within 500m of salt water or estuary
• Overlength set in concrete as standard
• Baseplated to bolt down onto concrete
• Green RAL 6005, Black RAL 9005, Blue RAL 5010, Red RAL 3020, Yellow RAL 1018, White RAL 9010, Grey RAL 7012, Brown RAL 8017, Blue BS 20-C-40
• Architectural grade powder coating
• Other colours on request

Sentry® A1 (SR1) is a security rated vertical bar stopped pale-through-rail solution with a flat top rail, with an option for an integrated 25mm high security comb. Its simple design is equally suited for contemporary and traditional settings.
• Fully welded pale-through-rail construction
• Seamless, concealed vandal proof rail to post fixing
• Anti-climb design and anti-scale design
• Optional double row of 25mm high sharp-pointed steel double comb for additional security
• 25 year service life guarantee
APPLICATIONS
4Medium risk
4Perimeters
4Commercial premises
Sentry® A1 panels up to 3000mm high have two horizontal rectangular hollow section rails 60 x 40mm (3 rails if 3000mm high); vertical round hollow section 32mm pales are passed through the rails with standard spacing at 129mm centres. Panels from 1800mm high have a security comb (double row of sharp steel points 23mm x 2mm thick).
A1 (SR1) gates available
LPS 1175 A1 (SR1)




Scan to view on our website

• Hot dip galvanised to BS EN 1461 as standard
• Hot dip galvanised and powder coated to BS EN 13438 in any standard colour
• Other colours on request
• Marine coat for installations within 500m of salt water or estuary
• Overlength set in concrete as standard
• Baseplated to bolt down onto concrete
• Green RAL 6005, Black RAL 9005, Blue RAL 5010, Red RAL 3020, Yellow RAL 1018, White RAL 9010, Grey RAL 7012, Brown RAL 8017, Blue BS 20-C-40
• Architectural grade powder coating
• Other colours on request

EuroGuard® Flatform Heavy A1 (SR1) system provides a welded mesh alternative to vertical railings and features a flat profile with heavy gauge twin horizontal wires for added rigidity and resistance to cutting.
• Wire centres 200 x 50mm
• Anti-climb design
• Unique vandal-proof panel to post connectors with fixings on secure side of fence
• 25 year service life guarantee
APPLICATIONS
4Commercial premises
4Schools
4Low - medium risk sites
EuroGuard® Flatform SR1 consists of 200mm x 50mm mesh, double 8mm horizontal wire, 6mm vertical wire.
A1 (SR1) gates available
APPROVALS
LPS 1175 A1 (SR1)





• Panels are Galfan® zinc alloy coated to BS EN 10244-2:2009 class A
• Galvanised and powder coated to BS EN 13438
• Other colours on request
• Marine coat for installations within 500m of salt water or estuary
• Overlength set in concrete as standard
• Baseplated to bolt down onto concrete
• Green RAL 6005, Black RAL 9005, Blue RAL 5010, Red RAL 3020, Yellow RAL 1018, White RAL 9010, Grey RAL 7012, Brown RAL 8017, Blue BS 20-C-40
• Architectural grade powder coating
• Other colours on request

EuroGuard® Combi A1 (SR1) fencing brings our unique experience and reputation in steel and timber fencing and gates together in a design that combines natural wooden slats with the strength of steel mesh. The combination of welded mesh panels and closely spaced, substantial timber slats provide a flat facing surface ensuring no foot or hand holds.
• A novel combination of unlike materials that is resistant to cutting
• Flat surface free from hand or foot holds
• Unique vandal-proof panel to post connectors with fixings on secure side of fence
• Jakcure® treated timber slats guaranteed for 25 years
• 25 year service guarantee
APPLICATIONS
4Commercial premises
4Medium risk sites
4Schools
EuroGuard® Combi A1 panels 3m wide with 200mm x 45mm mesh, 5mm wires with 4 - 6 reinforcing folds depending on height.
A1 (SR1) gates available
APPROVALS
LPS 1175 A1 (SR1)




Scan to view on our website

• Timber slats are planed, Jakcure® vacuum pressure treated as standard
• Panels are Galfan® zinc alloy coated to BS EN 10244-2:2009 class A
• Galvanised and powder coated to BS EN 13438
• Marine coat for installations within 500m of salt water or estuary
• Overlength set in concrete as standard
• Baseplated to bolt down onto concrete
• Timber clad to front face to match fence
• Spur post as standard
• Green RAL 6005, Black RAL 9005, Blue RAL 5010, Red RAL 3020, Yellow RAL 1018, White RAL 9010, Grey RAL 7012, Brown RAL 8017, Blue BS 20-C-40
• Architectural grade powder coating
• Other colours on request

Where the application specifically requires a cost effective, heavy duty security mesh design to meet specifications including the use of CCTV, or where a visual deterrent is a primary consideration, our ‘358’ Securi-Mesh® A1 (SR1) system provides an ideal solution.
Securi-Mesh® SR1 has been tested to A1 in LPCB’s LPS1175: Issue 8, delivering a delay to attack using category A tools such as cable cutters, engineers hooks, glass cutters and pliers.
The ‘358’ mesh design features small apertures, eliminating foot and finger holds and preventing objects from being passed through. Panels are fixed to posts using clamp bar fixings and are overlapped by a minimum of 37.5mm at posts to maintain integrity of protection.

APPLICATIONS
4Commercial Premises
4Schools
4Industrial Properties
4Low - Medium Risk Sites
• Green RAL 6005, Black RAL 9005, Blue RAL 5010, Red RAL 3020, Yellow RAL 1018, White RAL 9010, Grey RAL 7012, Brown RAL 8017, Blue BS 20-C-40
• Architectural grade powder coating
• Other colours on request
LPS 1175 A1 (SR1)


LPS 1175: Issue 8
Cert/LPCB ref. 913t

• Overlapped by a minimum of 37.5mm at posts to maintain integrity of protection
• Anti-climb design
• 25 year service life guarantee
• Tested to LPS 1175: Issue 8 A1
• Clamp bar fixings
• Can be stepped to accommodate sloping ground
• Secured by Design Police Approved Specification
Scan to view on our website

Securi-Mesh® A1 (SR1) panels are constructed from 76.2 x 12.7mm mesh (3” x 1/2”) with 4mm nominal wire. Panel widths are 2519mm as standard, with heights between 1800mm6000mm.
• Panels are Galfan® zinc alloy coated to BS EN 10244-2:2009 class A
• Galvanised and powder coated to BS EN 13438
• Other colours on request
• Marine coat for installations within 500m of salt water or estuary
• Overlength set in concrete as standard
• Baseplated to bolt down onto concrete
• Spur post as standard

Securi-Mesh® Plus SR2 (B3) provides an ideal solution for higher security perimeter applications with its double layer of “358” mesh and small apertures which eliminate foot and finger holds and prevent objects from being passed through. The vertical steel clamp bars employed in the panel to post fixing and to bond the mesh layers together provide increased rigidity to the design and make the system particularly resistant to cutting through using conventional hand and portable power tools.
• Flat surface free from hand or foot holds
• Mesh to be clamped to concrete seal or buried
• 25 year service life guarantee
4High risk sites
4Data centres
4Perimeters
4Utilities sites
B3 (SR2) gates available
LPS 1175 B3 (SR2)


LPS 1175: Issue 8
Cert/LPCB ref. 913m

Securi-Mesh® Plus B3 Panel Specifications

Securi-Mesh® Plus B3 features a double skin of staggered 76.2 x 12.7mm resistance mesh welded at each intersection and bolted together up to 2400mm high and a single layer of mesh above from 2400mm upwards.
Scan to view on our website

• Panels are Galfan® zinc alloy coated to BS EN 10244-2:2009 class A
• Galvanised and powder coated to BS EN 13438
• Other colours on request
• Marine coat for installations within 500m of salt water or estuary
• Post dimensions to suit fence height, site and ground conditions
• Overlength set in concrete as standard
• Base plated to bolt down onto concrete
• Green RAL 6005, Black RAL 9005, Blue RAL 5010, Red RAL 3020, Yellow RAL 1018, White RAL 9010, Grey RAL 7012, Brown RAL 8017, Blue BS 20-C-40
• Architectural grade powder coating
• Other colours on request

Jakoustic® Class 3 is the only reflective acoustic barrier fence system certified to LPS 1175 SR3 and provides resistance to determined entry using a range of tools including battery power tools. The double layer of timber boards results in a totally flat face making climbing the fence extremely difficult and is ideally suited to applications requiring a natural timber façade, where privacy is important, or for the containment of noise into or out from a site.
• Double layer of 34mm thick timber boards provide a high level of resistance to cutting
• Anti-climb design with completely flat face allowing no foot or hand holds
• Also available as LPS 1175 F1 or G1 rated system
• Reflective acoustic barrier with up to 28dB* reduction in noise
• Jakcure® treated timber slats guaranteed for 25 years
*Jakoustic® Class 3 certified acoustic laboratory results:
Rating according to BS EN 1793:1998
Category: B3
Laboratory sound reduction: 28db
Superficial mass: 25 kg/m2
Matching non-certified single or double leaf gates available
Rota® Spike topping seen pictured is optional and does not come as standard. Other toppings available
1175 C5 (SR3)


LPS 1175: Issue 8 Cert/LPCB ref. 913e

Jakoustic® Class 3 (C5) Specification
Jakoustic® Class 3 (C5) timber acoustic security barrier system is constructed with a double layer of 34mm thick, Jakcure® treated, interlocking ‘V’ timber boards fixed to galvanised steel posts.
Scan to view on our website

• Planed interlocking timber boards are Jakcure vacuum pressure treated as standard
• Posts are hot dip galvanised to BS EN 1461 as standard
• Posts can be powder coated to BS EN 13438 in one of our standard colours
• Other colours on request
• Marine coat for installations within 500m of salt water or estuary
• Post dimensions to suit fence height, site and ground conditions
• Overlength set in concrete as standard
• Base plated to bolt down onto concrete

UHS Heavy Mesh SR3 has been designed and tested to withstand forced entry using tools which include battery power tools. The SR3 mesh system is constructed using double skinned mesh with clamp bars added at 250mm centres and anti tamper fixings.
• Double skinned to provide a high level of security
• Stainless steel fixings
• Anti-climb design double skin 50 x 28mm mesh
• Clamp bars fixed at 250mm centres
• Heavy gauge wire-welded mesh security fencing system
• Matching gates available
Scan to view on our website

• Post dimensions to suit fence height, site and ground conditions
• Overlength set in concrete as standard
• Base plated to bolt down onto concrete
• All steel work galvanised to BS EN 1461:2009
• Posts are hot dip galvanised to BS EN 1461 as standard
• Can be powder coated to BS EN 13438
• Marine coat for installations within 500m of salt water or estuary
LPS 1175 SR3



UHS Extreme Mesh SR3 has been designed and tested to withstand forced entry using tools which include battery power tools. The SR3 mesh system is constructed from double skinned mesh providing a high level of security. The fencing and gate system has been developed to meet with demands to give a robust level of security around high security applications.
• Double 50 x 30mm mesh skin provides a high level of security
• Stainless steel fixings
• Anti-climb design
• Heavy gauge wire-welded mesh security fencing system
• Matching gates available
Scan to view on our website

• Post dimensions to suit fence height, site and ground conditions
• Overlength set in concrete as standard
• Base plated to bolt down onto concrete
• All steel work galvanised to BS EN 1461:2009
• Posts are hot dip galvanised to BS EN 1461 as standard
• Can be powder coated to BS EN 13438
• Marine coat for installations within 500m of salt water or estuary
LPS 1175 SR3


1175: Issue 7
913c

Vertical bar and welded mesh panel security fencing systems.
Fence panels comprise of reinforced 32mm tubular vertical bars welded within 60mm x 40mm horizontal rails. The panels incorporate ‘358’ mesh and are welded on both faces, with an optional 800mm concertina barbed tape topping.
• Closely spaced pales composed of substantial wall thickness
• Incorporating cut-delay technology
• Anti-climb design with anti-scaling over deterrent
• 25 year service life guarantee
• Post dimensions to suit fence height, site and ground conditions
• Overlength set in concrete as standard
• Mesh panels are Galfan® zinc alloy coated to BS EN 10244-2:2009
• Posts and vertical bars are hot dip galvanised to BS EN 1461
• Galvanised and powder coated to BS EN 13438
• Marine coat for installations within 500m of salt water or estuary

Trident® 4
• LPS 1175 D10 (SR4) Approved • Securi-Mesh® fencing clad on both sides
Trident
® 5
• LPS 1175 E10 (SR5) Approved • Securi-Mesh® fencing clad on both sides
• Green RAL 6005, Black RAL 9005, Blue RAL 5010, Red RAL 3020, Yellow RAL 1018, White RAL 9010, Grey RAL 7012, Brown RAL 8017, Blue BS 20-C-40
• Architectural grade powder coating
• Other colours on request
LPS 1175 D10 (SR4)
LPS 1175 E10 (SR5)


LPS 1175: Issue 8
Cert/LPCB ref. 913f

LPS 1175: Issue 8 Cert/LPCB ref. 913g
Scan




Our vertical bar A1 rated single and double leaf swing gates are available to match our Barbican®, Barbican Imperial®, Barbican Defender® Xtreme, Barbican® Extra, Barbican® Barbed Top, Barbican with Finials®, and Sentry® A1 rated fencing. A range of options are available to customise your gate and make it work perfectly for your site specific aesthetic and security requirements.
Single leaf gates:
• Available in widths from 500mm to 6000mm and heights from 1800mm to 3000mm.
• Available as opening out with padlockable slide latch, key lock, or emergency exit push pad.
• Available as opening in with padlockable slide latch or key lock.
Double leaf gates:
• Available in widths from 1500mm to 10000mm and heights from 1800mm to 3000mm.
• Available as opening in or opening out, with padlockable slide latch.
• Optional extras include manual drop bolts or padlockable drop bolts, centre stop for ‘opening in’ gates.
• Posts can be dug in or baseplated
• Added security spikes and toppings
• Hinge from the front, corner, or rear up to 180° opening
• Slam angle for opening in gates, dropbolt, stop post, hold open post
• Flat bottom and top rail or pales out of the bottom or top by up to 200mm
• Varied pale pitch as long as gap is no more than 100mm
• High security concealed open out hinge for single gates up to 2m wide and double gates up to 4m (90° opening only)
• Welded or bolt on lintel bars
• Hot dip galvanised to BS EN 1461
• Powder coated to BS EN 13438 in one of our standard colours (see page 1) at extra cost
• Other colours available on request
• Marine coat for installations within 500m of salt water or estuary









EuroGuard® Flatform A1 rated single and double leaf swing gates are designed to provide access control to integrate with our EuroGuard® Flatform fencing. Gates carry the same simple, twin wire design for durability and rigidity. A range of options and sizes are available to customise your gate to fit site requirements. Ideal for schools, sports areas and commercial properties.
Single leaf gates:
• Available in widths from 848mm to 6000mm and heights from 1800mm to 3000mm.
• Available as opening out with padlockable slide latch, key lock, or emergency exit push pad.
• Available as opening in with padlockable slide latch or key lock.
Double leaf gates:
• Available in widths from 1500mm to 10000mm and heights from 1800mm to 3000mm.
• Available as opening in or opening out, with padlockable slide latch.
• Optional extras include manual drop bolts or padlockable drop bolts, centre stop for ‘opening in’ gates.

OPTIONS
• Posts can be dug in or baseplated
• Added security spikes and toppings
• High security concealed open out hinge for single gates up to 2m wide and double gates up to 4m (90° opening only)
• Welded or bolt on lintel bars
• Slam angle for opening in gates, dropbolt, stop post
• Hinge from the front, corner, or rear up to 180° opening
• Hot dip galvanised to BS EN 1461 as standard
• Powder coated to BS EN 13438 in any of our standard colours (see page 1) at extra cost
• Other colours available on request
• Marine coat for installations within 500m of salt water or estuary


EuroGuard® Combi A1 rated single and double leaf swing gates match our EuroGuard® Combi A1 fencing. Made with a rigid V mesh panel woven with pressure treated timber slats, it provides a solution which provides security, increases concealment, prevents items being passed through, and provides an attractive appearance which blends into most environments. Ideal for schools and storage compounds.
Single leaf gates:
• Available in widths from 848mm to 6000mm and heights from 1800mm to 3200mm.
• Available as opening out with padlockable slide latch, key lock, or emergency exit push pad.
• Available as opening in with padlockable slide latch or key lock.
Double leaf gates:
• Available in widths from 1500mm to 10000mm and heights from 1800mm to 3200mm.
• Available as opening in or opening out, with padlockable slide latch.
• Optional extras include manual drop bolts or padlockable drop bolts, centre stop for ‘opening in’ gates.
• Posts can be dug in or baseplated
• Added security spikes and toppings
• Hinge from the front, corner, or rear up to 180° opening
• Slam angle for opening in gates, dropbolt, stop post
• High security concealed open out hinge for single gates up to 2m wide and double gates up to 4m (90° opening only)
• Welded or bolt on lintel bars
• Hot dip galvanised to BS EN 1461 as standard
• Powder coated to BS EN 13438 in any of our standard colours (see page 1) at extra cost
• Other colours available on request
• Marine coat for installations within 500m of salt water or estuary
• Timber pales are Jakcure® treated

Securi-Mesh® single and double leaf A1 rated swing gates are available to match our Securi-Mesh® A1 rated fencing with its close-knit mesh construction. A1 rated gates are suitable for standard risk properties; providing protection against forced entry with category A tools. Ideal for utilities and storage compounds.
Single leaf gates:
• Available in widths from 500mm to 6000mm and heights from 1800mm to 4000mm.
• Available as opening out with padlockable slide latch, key lock, or emergency exit push pad.
• Available as opening in with padlockable slide latch or key lock.
Double leaf gates:
• Available in widths from 1500mm to 10000mm and heights from 1800mm to 4000mm.
• Available as opening in or opening out, with padlockable slide latch.
• Optional extras include manual drop bolts or padlockable drop bolts, centre stop for ‘opening in’ gates.

• Posts can be dug in or baseplated
• Added security spikes and toppings
• Hinge from the front, corner, or rear up to 180° opening
• Slam angle for opening in gates, dropbolt, stop post
• High security concealed open out hinge for single gates up to 2m wide and double gates up to 4m (90° opening only)
• Welded or bolt on lintel bars
• Hot dip galvanised to BS EN 1461 as standard
• Powder coated to BS EN 13438 in any of our standard colours (see page 1) at extra cost
• Other colours available on request
• Marine coat for installations within 500m of salt water or estuary


Securi-Mesh® Plus single swing gates are available in A1, B1, and B3 ratings to match the look and design principles of Securi-Mesh® Plus fencing with its double layers which are staggered and welded at each intersection. Double leaf swing gates are available in A1 and B1 ratings. A1 rated gates are suitable for standard risk properties; providing protection against forced entry with category A tools. B1 and B3 gates are suitable for standard-medium risk properties; providing protection against forced entry with category B tools. Ideal for data centres or any site that needs secure access control.
Single leaf gates:
• Available in widths from 500mm to 6000mm and heights from 1800mm to 4000mm.
• Available as opening in or opening out with padlockable slide latch for A1 or B1 gates, or key lock for A1 gates.
• Also available as a single gate with B3 rating at 2442mm high with clamp bars and slide latch.
Double leaf gates:
• Available in widths from 1500mm to 10000mm and heights from 1800mm to 4000mm.
• Available as opening in or opening out, with padlockable slide latch.
• Optional extras include manual drop bolts or padlockable drop bolts, centre stop for ‘opening in’ gates.
• Available in A1 and B1 ratings.
OPTIONS
• Posts can be dug in or baseplated
• Added security spikes and toppings
• Hinge from the front, corner, or rear up to 180° opening
• Slam angle for opening in gates, dropbolt, stop post
• Emergency exit push pad (A1 single opening out gates)
• High security concealed open out hinge for single gates up to 2m wide and double gates up to 4m (90° opening only)
• Welded or bolt on lintel bars

• Hot dip galvanised to BS EN 1461
• Powder coated to BS EN 13438 in any of our standard colours (see page 1) at extra cost
• Other colours available on request
• Marine coat for installations within 500m of salt water or estuary


UHS Heavy single swing gates are available in A1, B1, and C5 ratings, and double swing gates are available in A1 and B1 ratings. These gates match the look and design principles of UHS Heavy fencing with its double layers of mesh which are mounted at 90° to eachother and secured with clamp bars, providing excellent protection against cutting and items being passed through. A1 rated gates are suitable for standard risk properties; providing protection against forced entry with category A tools. B1 gates are suitable for standard-medium risk properties; providing protection against forced entry with category B tools. C5 gates are suitable for medium-high risk properties.
Single leaf gates:
• Available in widths from 500mm to 6000mm and heights from 1800mm to 4000mm.
• Available as opening in or opening out with padlockable slide latch for A1 or B1 gates, or key lock for A1 gates.
• Available as C5 gates with key lock and slide latch.
Double leaf gates:
• Available in widths from 1500mm to 10000mm and heights from 1800mm to 4000mm.
• Available as opening in or opening out, with padlockable slide latch.
• Optional extras include manual drop bolts or padlockable drop bolts, centre stop for ‘opening in’ gates.
• Available in A1 and B1 ratings.
• Posts can be dug in or baseplated
• Added security spikes and toppings
• Hinge from the front, corner, or rear up to 180° opening
• Emergency exit push pad (A1 single opening out gates)
• High security concealed open out hinge for single gates up to 2m wide and double gates up to 4m (90° opening only)
• Welded or bolt on lintel bars
• Slam angle for opening in gates, dropbolt, stop post

• Hot dip galvanised to BS EN 1461
• Powder coated to BS EN 13438 in one of our standard colours (see page 1) at extra cost
• Other colours available on request
• Marine coat for installations within 500m of salt water or estuary


UHS Extreme single swing gates are available in A1, B1, and C5 ratings, and double swing gates are available in A1 and B1 ratings. These gates match the look and design principles of UHS Extreme fencing with its double layers of close-knit mesh which are mounted at 90° to eachother and secured with tamper proof bolts, providing excellent protection against cutting and items being passed through. A1 rated gates are suitable for standard risk properties; providing protection against forced entry with category A tools. B1 gates are suitable for standardmedium risk properties; providing protection against forced entry with category B tools. C5 gates are suitable for medium-high risk properties.
Single leaf gates:
• Available in widths from 500mm to 6000mm and heights from 1800mm to 4000mm.
• Available as opening in or opening out with padlockable slide latch for A1 or B1 gates, or key lock for A1 gates.
• Available as C5 gates with key lock and slide latch.
Double leaf gates:
• Available in widths from 1500mm to 10000mm and heights from 1800mm to 4000mm.
• Available as opening in or opening out, with padlockable slide latch.
• Optional extras include manual drop bolts or padlockable drop bolts, centre stop for ‘opening in’ gates.
• Available in A1 and B1 ratings.
• Posts can be dug in or baseplated
• Added security spikes and toppings
• Hinge from the front, corner, or rear up to 180° opening
• Emergency exit push pad (A1 single opening out gates)
• High security concealed open out hinge for single gates up to 2m wide and double gates up to 4m (90° opening only)
• Welded or bolt on lintel bars
• Slam angle for opening in gates, dropbolt, stop post

• Hot dip galvanised to BS EN 1461
• Powder coated to BS EN 13438 in one of our standard colours (see page 1) at extra cost
• Other colours available on request
• Marine coat for installations within 500m of salt water or estuary
Our Trident ® range of fencing was historically our CPNI/NPSA tested and approved fencing range. Since 1st January 2026, all fencing and gates including these products are no longer listed in the Catalogue of Security Equipment. We still manufacture these products but where a rated fencing option is required, we recommend our LPS 1175 certified range.
Our Trident range features unique high security products with specific attributes, allowing you to choose the right style and height security fencing system for you.
Over the years, we have invested heavily in the development of high security fencing systems designed to be employed in the highest security situations, against a range of threats from determined intrusion to the mitigation of collateral damage. This investment was born from a realisation that you cannot simply go on stretching the performance limits of existing products against increasingly sophisticated, determined and audacious attacks and expect them to cope.
Trident® Securi-Mesh® Fencing system provides an ideal solution for a wide variety of high security perimeter and access control applications including prisons and mental health units.
• Mesh overlapped at posts to maintain integrity of protection
• Clamp bar fixings
• Can be stepped to accommodate sloping ground
• May be set into ground/concrete plinth to provide antiburrowing properties
• Anti-climb design
• Jaktronic® PIDS compatible
• 25 year service life guarantee
Scan to view on our website


Other heights/specifications are available for this product on request
Trident® Securi-Mesh® panels are constructed from 76.2 x 12.7mm mesh (3” x 1/2”) with 4mm wire. Panel widths are 2515mm as standard, with heights up to 5200mm.
Matching single leaf and double leaf gates available
• Overlength set in concrete as standard
• Base plated to bolt down onto concrete
• Panels are Galfan® zinc alloy coated to BS EN 10244-2:2009 class A
• Galvanised and powder coated to BS EN 13438
• Marine coat for installations within 500m of salt water or an estuary
• Green RAL 6005, Black RAL 9005, Blue RAL 5010, Red RAL 3020, Yellow RAL 1018, White RAL 9010, Grey RAL 7012, Brown RAL 8017, Blue BS 20-C-40
• Architectural grade powder coating
• Other colours on request
The climb resistant double layer mesh with its small apertures and welds at each intersection eliminate foot and finger holds, prevent objects being passed through and is particularly effective against the use of conventional hand and portable power cutting tools.
• Staggered double skin mesh panels with wire welded at every intersection
• Overlapped by a minimum of 75mm at posts to maintain integrity of protection
• Can be stepped to accommodate sloping ground
• Posts can be customised for Barbed wire / Razor wire / Alarm-aFence®
• Anti-climb design
• 25 year service life guarantee


Other heights/specifications are available for this product on request
Trident® Securi-Mesh® panels are constructed from 76.2 x 12.7mm mesh (3” x 1/2”) with 4mm wire. Panel widths are 2515mm as standard, with heights up to 5200mm.
Matching single leaf and double leaf gates available
• Overlength set in concrete as standard
• Base plated to bolt down onto concrete
• Panels are Galfan® zinc alloy coated to BS EN 10244-2:2009 class A
• Galvanised and powder coated to BS EN 13438
• Marine coat for installations within 500m of salt water or an estuary
• Green RAL 6005, Black RAL 9005, Blue RAL 5010, Red RAL 3020, Yellow RAL 1018, White RAL 9010, Grey RAL 7012, Brown RAL 8017, Blue BS 20-C-40
• Architectural grade powder coating
• Other colours on request
The Trident® Combi 2 system combines our experience and expertise in both timber and steel fencing to deliver higher levels of inherent security than generic mesh systems within an attractive timber facade.
Trident® Combi 2 meets the recent guidance within ‘Physical Mitigation’ measures issued by the National Counter Terrorism Security Office (NaCTSO) to cover assets from view, making observation into a site more difficult.
Its combination of unlike materials provides the additional advantages of resistance to cutting, a flat facing surface free from hand and foot holds, while the closely faced timber slats ensure privacy without giving the appearance of a solid barrier.
• Welded mesh panel
• 3 rows of barbed wire standard topping
• Security comb on top rail
• Unique vandal proof panel to post fixing
• Can be stepped to accommodate sloping ground
• May be set into ground/concrete plinth to provide antiburrowing properties
• 25 year service life guarantee


Constructed from 5mm horizontal wire and 40mm x 17mm treated timber slats, with a 3 rows of barbed wire topping or coil of razor wire as standard.
Matching single leaf and double leaf gates available
• Over length set in concrete as standard
• Base plated to bolt down onto concrete
• Cranked to suit wall mounting
• Timber clad to front face to match fence
• Timber slats are planed, Jakcure® vacuum pressure treated as standard
• Mesh panels are zinc alloy coated as standard
• Posts are hot dip galvanised to BS EN 1461 as standard
• Green RAL 6005, Black RAL 9005, Blue RAL 5010, Red RAL 3020, Yellow RAL 1018, White RAL 9010, Grey RAL 7012, Brown RAL 8017, Blue BS 20-C-40
• Architectural grade powder coating
• Other colours on request
The Trident® Mesh 2 system has been designed to provide the performance of a conventional Class 2, 75mm x 25mm galvanised, welded mesh fence but with two important additional benefits: significantly reduced installation times, significantly reduced costs.
This rapidly deployed fence system employs our unique installation process for all intermediate posts which mechanically drives the posts in place on a cushion of air in a single operation. Only the end and corner posts are set in concrete foundations.
The mesh is fixed to end/corner posts with stretcher bars with tamper proof fittings and tensioned with line wires to ensure the mesh stays taut across its face.
• Rapid deployment security fence
• Stretcher bar fixings at end and corner posts for strength and tamper resistance
• Complete with 3 row barbed wire topping
• Jaktronic® PIDS compatible
• 25 year service life guarantee


75mm x 25mm galvanised welded mesh fence with 3 rows of barbed wire topping or coil of razor wire.
Matching single leaf and double leaf gates available
• Overlength set in concrete as standard
• Base plated to bolt down onto concrete
• Cranked to suit wall mounting
• Over length set in concrete as standard
• Cranked to suit wall mounting
Trident® Jakoustic® 2 system is a combination of a single facing of interlocking ‘V’ timber boards, backed with a layer of steel mesh to 1.70m above ground. The interlocking ‘V’ coupled to a tongue and groove locates the boards in such a way that eliminates gaps even when boards shrink and expand with changes in the weather. The totally flat attack face, steel mesh lining and combination of dissimilar construction materials makes the fence difficult to scale or penetrate.
• Zero visibility or footholds
• Up to 28dB* noise reduction
• Combination of timber boards and steel mesh
• Post extensions as standard to carry 3 rows of barbed wire topping or may be specified to carry razor wire
• Razor wire security toppings
• Follows ground profiles
• 25 year Jakcure® guarantee
*Jakoustic® barrier certified laboratory results:
Rating according to BS EN 1793 - 2:1998, Category = B3, Laboratory sound reduction 28 dB, Superficial mass 25kg/m² (single layer)

Scan to view on our website

Single facing of interlocking ‘V’ Jakoustic® timber boards, backed with a layer of steel mesh to 1.70m above ground.
Matching single leaf and double leaf gates available
• Steel posts
• Post dimensions to suit fence height, site and ground conditions
• Over length set in concrete as standard
• Planed interlocking timber boards are Jakcure® vacuum pressure treated as standard
• Posts are hot dip galvanised to BS EN 1461 as standard
• Posts can be hot dip galvanised and powder coated to BS EN 13438 in any standard colour
• Marine coat for installations within 500m of salt water or estuary
Trident® Jakoustic® 3 system is of sandwich construction comprising two layers of interlocking ‘V’ timber boards, interlined with a layer of high security steel mesh 2.28m above ground. The interlocking ‘V’ coupled to a tongue and groove locates the boards in such a way that eliminates gaps even when boards shrink and expand with changes in the weather. The totally flat attack face, high security steel mesh interlining and combination of unlike construction materials makes the fence extremely difficult to scale or penetrate.
• Zero visibility or footholds
• Double layer of timber boards reinforced by a layer of high security mesh
• Post extensions as standard to carry 3 rows of barbed wire topping or may be specified to carry razor wire
• Reflective acoustic barrier with 28dB* reduction in noise
• High security with an attractive “natural” presentation
• 25 year Jakcure® guarantee
*Jakoustic® barrier certified laboratory results:
Rating according to BS EN 1793 - 2:1998, Category = B3, Laboratory sound reduction 28 dB, Superficial mass 25kg/m² (single layer)


The acoustic barrier comprises of 4.8m acoustic boards, laid brick fashion with joins staggered in each row fixed to galvanised steel ‘I-Beam’ post; creating a chain-effect along the attack face with great structural integrity.
Matching single leaf and double leaf gates available
• Steel posts
• Post dimensions to suit fence height, site and ground conditions
• Over length set in concrete as standard
• Planed interlocking timber boards are Jakcure® vacuum pressure treated as standard
• Posts are hot dip galvanised to BS EN 1461 as standard
• Posts can be hot dip galvanised and powder coated to BS EN 13438 in any standard colour
• Marine coat for installations within 500m of salt water or estuary
Trident® Xtreme 3 combines a welded pale-through-rail construction with horizontal rails sleeved on upright posts with concealed fixings, it incorporates cut delay technology within its structure and 358 Securi-Mesh® on the attack face. Trident® Xtreme 3 system provides enhanced levels of protection against attempts to penetrate through the fence.
• Fully welded tubular semi pale-through-rail construction
• Closely spaced pales of substantial wall thickness
• 358 Securi-Mesh® to the attack face
• Incorporating cut-delay technology
• Anti-climb design
• Jaktronic® PIDS compatible
• Resistant to aggressive and sustained attack
• Panels may be manufactured at reduced widths to suit individual sites
• 25 year service life guarantee


Vertical round hollow section pales welded into top and bottom rail with “358” Securi-Mesh® installed on one side.
Matching single leaf and double leaf gates available
• Overlength set in concrete as standard
• Base plated to bolt down onto concrete
• Cranked to suit wall mounting
• Hot dip galvanised to BS EN ISO 1461 as standard
• Hot dip galvanised and powder coated to BS EN 13438
• Marine coat for installations within 500m of salt water or an estuary
• Green RAL 6005, Black RAL 9005, Blue RAL 5010, Red RAL 3020, Yellow RAL 1018, White RAL 9010, Grey RAL 7012, Brown RAL 8017, Blue BS 20-C-40
• Architectural grade powder coating
• Other colours on request
Trident® Xtreme 3XM is a high security vertical bar system featuring a welded semi pale-through-rail construction with horizontal rails sleeved on to the upright posts with concealed fixings, the Trident® Xtreme 3XM system provides an immensely strong and rigid structure. With its closely spaced pales of substantial wall thickness and novel cut-delay technology to frustrate attempts to penetrate through the fence.
• Fully welded tubular semi pale-through-rail construction
• Provides good visibility
• Incorporating cut-delay technology
• Anti-climb design
• Panels may be manufactured at reduced widths to suit individual sites
• May be stepped to maintain height over uneven ground and slopes
• Jaktronic® PIDS compatible
• 25 year service life guarantee


Closely spaced square hollow section rails with concealed fixings and concertina razor wire topping.
Matching single leaf and double leaf gates available
POST OPTIONS
• Overlength set in concrete as standard
• Base plated to bolt down onto concrete
• Cranked to suit wall mounting
• Hot dip galvanised to BS EN ISO 1461 as standard
• Hot dip galvanised and powder coated to BS EN 13438
• Marine coat for installations within 500m of salt water or an estuary
STANDARD COLOURS
• Green RAL 6005, Black RAL 9005, Blue RAL 5010, Red RAL 3020, Yellow RAL 1018, White RAL 9010, Grey RAL 7012, Brown RAL 8017, Blue BS 20-C-40
• Architectural grade powder coating
• Other colours on request
Trident® Xtreme 4 features a welded pale-through-rail design with horizontal rails sleeved into upright posts with concealed fixings and 358 Securi-Mesh® on the attack face.
The structure is immensely strong and rigid with closely spaced pales of substantial wall thickness and novel cut-delay and self-healing technology to frustrate attempts to penetrate through the fence employing hand and portable power tools and non-contact cutting tools.
• Fully welded tubular semi pale-through-rail construction
• Closely spaced pales of substantial wall thickness
• 358 Securi-Mesh® to the attack face
• Incorporating self-healing and cut-delay technology
• Anti-climb design
• Jaktronic® PIDS compatible
• Resistant to aggressive and sustained attack employing hand and portable power tools and non-contact cutting tools
• Panels may be manufactured at reduced widths to suit individual sites
• 25 year service life guarantee


Fence panels comprises of reinforced 32mm tubular vertical bars welded within 60mm by 40mm horizontal rails. The panels in corporate “358” mesh panels welded on attack face, with a 900mm coil of razor wire topping.
Matching single leaf and double leaf gates available
• Overlength set in concrete as standard
• Base plated to bolt down onto concrete
• Cranked to suit wall mounting
• Hot dip galvanised to BS EN ISO 1461 as standard
• Hot dip galvanised and powder coated to BS EN 13438
• Marine coat for installations within 500m of salt water or an estuary
• Green RAL 6005, Black RAL 9005, Blue RAL 5010, Red RAL 3020, Yellow RAL 1018, White RAL 9010, Grey RAL 7012, Brown RAL 8017, Blue BS 20-C-40
• Architectural grade powder coating
• Other colours on request
Inherently strong and offering a robust line of defence, metal railings combine aesthetic charm with the ability to deliver an imposing perimeter security solution.
Jacksons metal railings portfolio offers an extensive choice of products, spanning attractive elegantly ornate railings ideal for residential applications, through to railings which meet the discerning standards required to minimise the risk of unauthorised entry on high security sites.
All of our standard railings come complete with tamper proof fittings and a range of matching swing or sliding gates, supplied in either a manual or automated format.

Perfect for a wide variety of applications, Bow Top fencing and gates provide a versatile and durable demarcation and access solution. The pale-through-rail construction with no visible joins is immensely strong and because of its tubular design it is lighter than traditional solid steel and requires fewer support posts making installation faster and less costly.
• Unique vandal-proof panel to post connectors
• Domed post caps
• Option to include finials
• Panels can be manufactured to accommodate sloping ground
• 25 year service life guarantee
4Parks
4Public areas
4Schools PANELS
Bow Top panels have two horizontal rails 50 x 25mm, the vertical round hollow section 19mm pales are passed through the top and bottom rails at 119mm centres and welded into position.
Matching single leaf and double leaf gates available
Decorative options available, contact our sales team for more information.


Scan to view on our website

• Overlength set in concrete as standard
• Base plated to bolt down onto concrete
• Cranked to suit wall mounting
• Hot dip galvanised to BS EN ISO 1461 as standard
• Hot dip galvanised and powder coated to BS EN 13438
• Marine coat for installations within 500m of salt water or an estuary
• Green RAL 6005, Black RAL 9005, Blue RAL 5010, Red RAL 3020, Yellow RAL 1018, White RAL 9010, Grey RAL 7012, Brown RAL 8017, Blue BS 20-C-40
• Architectural grade powder coating
• Other colours on request

Our Ornamental fencing is designed to provide the aesthetic grace and form of traditional wrought iron railings with the strength and durability of galvanised or galvanised and powder coated steel. Whether in a parkland, corporate HQ or gated community, our Ornamental fencing adds high levels of security to a classical design.
• Three distinct styles available: Standard, Style A, Style B, as welll as custom designs
• Pale spacing conforms to Building Regulations for anti-trap
• Various mounting options including on wall, inset or free standing
• Posts can be customised for Barbed wire / Razor wire / Rota Spike® / Alarm-aFence®
• 25 year service life guarantee
APPLICATIONS
4 Perimeters
4Medium - High risk
4Residential
Matching single leaf and double leaf gates available FINIAL
175mm

Scan to view on our website

• Overlength set in concrete as standard
• Base plated to bolt down onto concrete
• Cranked to suit wall mounting
• Post options include flat capped and ball top
• Hot dip galvanised to BS EN ISO 1461 as standard
• Hot dip galvanised and powder coated to BS EN 13438
• Marine coat for installations within 500m of salt water or an estuary
• Green RAL 6005, Black RAL 9005, Blue RAL 5010, Red RAL 3020, Yellow RAL 1018, White RAL 9010, Grey RAL 7012, Brown RAL 8017, Blue BS 20-C-40
• Architectural grade powder coating
• Other colours on request
These striking steel vertical railings deliver an imposing first impression for any garden or housing project. The panel is constructed so the pale goes through the rail, ensuring there are no visible joins and anti-vandal fixings are used to attach the panel to its post, enhancing the fencing’s security credentials.
• Standard heights 1000mm and 1250mm
• Rails: 50 x 25mm Rectangular Hollow Section
• 19mm diameter pales
• 119mm pale pitch
• Flat top pales as standard
• Panels can be manufactured to accommodate sloping ground
• 25 year service life guarantee
Scan to view on our website


APPLICATIONS
4Parks
4Public areas
4Schools
Matching single leaf and double leaf gates available
POST OPTIONS
• Overlength set in concrete as standard
• Base plated to bolt down onto concrete
• Cranked to suit wall mounting
• Hot dip galvanised to BS EN ISO 1461 as standard
• Hot dip galvanised and powder coated to BS EN 13438
• Marine coat for installations within 500m of salt water or an estuary
STANDARD COLOURS
• Green RAL 6005, Black RAL 9005, Blue RAL 5010, Red RAL 3020, Yellow RAL 1018, White RAL 9010, Grey RAL 7012, Brown RAL 8017, Blue BS 20-C-40
• Architectural grade powder coating
• Other colours on request
Sentry® Residential is perfect for use in residential applications, with their round 19mm pale giving the railing a contemporary look, an attractive and lighter alternative to our standard Sentry® fencing. The panels are fully welded tubular semi pale-through-rail construction, with concealed, vandal proof rail to post fixings.
• Standard heights 1000mm and 1250mm
• Rails: 50 x 25mm Rectangular Hollow Section
• 19mm diameter pales
• 119mm pale pitch
• Panels can be manufactured to accommodate sloping ground
• 25 year service life guarantee
APPLICATIONS
4Parks
4Public areas
4Schools


Matching single leaf and double leaf gates available
• Green RAL 6005, Black RAL 9005, Blue RAL 5010, Red RAL 3020, Yellow RAL 1018, White RAL 9010, Grey RAL 7012, Brown RAL 8017, Blue BS 20-C-40
• Architectural grade powder coating
• Other colours on request
• Overlength set in concrete as standard
• Base plated to bolt down onto concrete
• Cranked to suit wall mounting
• Hot dip galvanised to BS EN ISO 1461 as standard
• Hot dip galvanised and powder coated to BS EN 13438
• Marine coat for installations within 500m of salt water or an estuary

Jacksons Estate Railings are a strong, adaptable, and cost effective replacement for traditional flat bar railings. Made from tubular steel which is galvanised inside and out, they offer a lightweight, easy to install demarcation option for large residential properties, country estates, parks, and heritage properties.
• Tubular and Rectangular Hollow Section construction
• Pre-fabricated panels
• No welding required during installation
• All fittings galvanised or stainless steel
• Fencing is galvanised, with optional polyester powder coating
• Post infills are black as standard, with all colours including galvanised
• 25 year service life guarantee
4Parkland
4Residential developments PANELS
Estate railings are constructed from 50 x 25 x 2 Rectangular Hollow Section posts with Ø19mm circular hollow section rails, with overall panel width at 1980mm.
Matching single leaf and double leaf gates available

Fencing
Single Leaf Gates (double leaf also available)
• Constructed from 50 x 30mm • Hanging stile is curved at
Scan to view on our website

• Overlength set in concrete as standard
• Base plated to bolt down onto concrete
• Cranked to suit wall mounting
• Heavy duty black plastic post infills
• Hot dip galvanised to BS EN ISO 1461 as standard
• Hot dip galvanised and powder coated to BS EN 13438
• Marine coat for installations within 500m of salt water or an estuary
• Green RAL 6005, Black RAL 9005, Blue RAL 5010, Red RAL 3020, Yellow RAL 1018, White RAL 9010, Grey RAL 7012, Brown RAL 8017, Blue BS 20-C-40
• Architectural grade powder coating
• Other colours on request

Specifically designed for class 1 highway applications, Jacksons Pedestrian Guardrail provides an effective roadside barrier for pedestrians while maintaining good visibility for motorists. The welded hollow tubular rail and solid pale construction is extremely strong and features a bolt-together design for ease of installation or replacement.
1. Standard - with inline pales from top to bottom
2. See-through - with inline pales and clear visibility slot below top rail
3. Staggered - infill bars are staggered
• Can be manufactured to suit gradients and radius
• Custom designs available
• 25 year service life guarantee
APPLICATIONS
4 Pedestrian fencing
4 Schools
4Road infrastructure PANELS
Pedestrian Guardrail is constructed from 50x30mm vertical and horizontal rails with 12mm solid pales at 112mm centres. Panels are 2000mm or 1830mm wide.
Matching single leaf and double leaf gates available

Scan to view on our website

• Overlength set in concrete as standard
• Base plated to bolt down onto concrete
• Hot dip galvanised to BS EN ISO 1461 as standard
• Hot dip galvanised and powder coated to BS EN 13438
• Marine coat for installations within 500m of salt water or an estuary
• Green RAL 6005, Black RAL 9005, Blue RAL 5010, Red RAL 3020, Yellow RAL 1018, White RAL 9010, Grey RAL 7012, Brown RAL 8017, Blue BS 20-C-40
• Architectural grade powder coating
• Other colours on request
Whether in a domestic, school, community or sports facility setting, the priorities for any play-related fencing product are safety and the ability to successfully contain the activity to a designated area. This does not necessarily relate merely to the safe containment of children / people but can also include the prevention of balls breaching the boundary perimeter.
There are a number of important factors to consider when specifying and selecting the right fencing and gate solution for sports enclosures. These include participant and spectators safety, the safety of surrounding properties, the security of the enclosure when not in use and of course the playability of the enclosure.
We design and install a variety of sports fencing systems to suit the requirements of individual sports. Whether in leisure or practice facilities or at elite level, you can be assured that the Jacksons range of sports fencing and enclosures will be fit for purpose, as well as being durable, safe, secure and attractive; they are also backed by our industry leading 25 year guarantees for peace of mind and sustainability.

Unlike generic systems, Jacksons Tubular Systems for Chain Link and Welded Mesh fencing can feature a top rail for added security and strength. They are made using cast alloy material and steel, galvanised as standard or galvanised and powder coated to BS EN 13438 in one of our standard colours.
• Hollow tubular construction
• Top rail as standard on system 3, 4, 5 & 6 to prevent sagging
• Tubular construction for rigidity and ease of installation
• Suitable for cladding in a variety of Chain Link or Welded Mesh types to suit application
• Ideal for numerous applications from ball courts and perimeter demarcation to contemporary residential settings
• Anti-climb design
APPLICATIONS
4 Sports
4Low - Medium risk
4Schools
Scan to view on our website

Our Tubular System is suitable for both Welded Mesh and Chain Link. For extra security extensions can be fitted on to the posts with the top rail going through them to anchor in place.
The standard chain link gates are made for 980mm opening and are 50mm shorter than the fence height. They are right or left handed and clad with either galvanised or galvanised and green coated chain link. The frame is made from 42mm diameter galvanised tube.









Gates are available as either single or double leaf gates with the option of manual or automated, swing or sliding.
• Galvanised Chain Link
• PVC Chain Link
• Welded Mesh
• PVC Welded Mesh
• Green RAL 6005, Black RAL 9005, Blue RAL 5010, Red RAL 3020, Yellow RAL 1018, White RAL 9010, Grey RAL 7012, Brown RAL 8017, Blue BS 20-C-40
• Architectural grade powder coating
• Other colours on request

Jacksons Fencing was the first to develop the double lattice post design for our Ball Stop Fencing in 1994, which provided a structure strong enough to allow sports webbing / mesh to remain in place safely throughout the year. While many have imitated the design, none have bettered it. That’s because we prioritise use of the best materials in our proven design, including our top rail for extra rigidity to ensure durability and safety for both users and the public.
• Extra strength lattice posts
• Top rail as standard
• Hollow tubular construction
• Strong, stable and safe structure even in higher wind loading situations
• Wide range of webbing and mesh types available to suit different applications
• Universal frame for various applications from a rugby pitch to golf driving range
• 25 year service life guarantee
4

• Base plated to bolt down onto concrete
• Hot dip galvanised to BS EN ISO 1461 as standard
• Hot dip galvanised and powder coated to BS EN 13438
• Marine coat for installations within 500m of salt water or an estuary

*Posts are base plated 150mm below ground level
• Green RAL 6005, Black RAL 9005, Blue RAL 5010, Red RAL 3020, Yellow RAL 1018, White RAL 9010, Grey RAL 7012, Brown RAL 8017, Blue BS 20-C-40
• Architectural grade powder coating
• Other colours on request
• Polyethylene netting
• Chain link - Galvanised / Black or Green PVC coated
• Welded mesh - Galvanised / Black or Green PVC coated

Our tennis court system is made from Tubular System 3. Single courts are 18m x 36m with one gate, and double courts are 34m x 36m with two gates. Posts can be supplied in either a galvanised or powder coated finish in our standard colours.
Our tennis court fencing 2.75m high with the option to either have Chain Link (standard) or Welded Mesh as the infill.
• 2.75m high
• Can be clad with either Chain Link or Welded Mesh
• Single court 18m x 36m
• Double court 34m x 36m
Tennis court fence is constructed from tubular posts 60.3mm diameter, with top rail and 41.5mm struts on corner posts complete with tubular framed gate 2000mm high 1000mm wide with a key lock as standard.
Chain Link gates are made for 980mm opening and are 2m nominally. They are right hand clad with either a galvanised finish or a galvanised and PVC green coated finish chain link. The framing is made from 42mm diameter galvanised tube, in a 60mm diameter surround frame.
• Overlength set in concrete as standard
• Base plated to bolt down onto concrete

• Posts hot dip galvanised to BS EN ISO 1461 as standard
• Posts hot dip galvanised and powder coated to BS EN 13438
• Marine coat for installations within 500m of salt water or an estuary
• Green RAL 6005, Black RAL 9005, Blue RAL 5010, Red RAL 3020, Yellow RAL 1018, White RAL 9010, Grey RAL 7012, Brown RAL 8017, Blue BS 20-C-40
• Architectural grade powder coating
• Other colours on request
Scan to view on our website


Jacksons EuroGuard® Rebound Fencing is an alternative to Chain Link Fencing, for high usage courts. The double wire gives Rebound more rigidity and reduces the vibration along the fence line and also capable of withstanding high impact sports i.e hockey or football. The mesh’s aperture is small enough to prevent sports balls from escaping, but still allows the spectator to have an unobstructed view.
• 50 x 66.6mm mesh at the base to 1200mm then reverts to 200 x 50mm above up to 2030mm
• Posts 80 x 60mm subject to height of fence
• Can be stepped to accommodate sloping ground
• Post can be adapted to mount CCTV cameras or lighting
• 25 year service life guarantee
4Sports
4Schools
4Recreational areas
EuroGuard® Rebound is constructed from double 8mm horizontal wire, 6mm vertical wire. Mesh 50 x 66.6mm at the base to a height of 1230mm which then reverts to 200 x 50mm
Matching single leaf and double leaf gates available


*Mesh panels can be stacked up to 6m with posts designed to suit application
Scan to view on our website

• Overlength set in concrete as standard
• Base plated to bolt down onto concrete
• Cranked to suit wall mounting
• Panels are Galfan® zinc alloy coated to BS EN 10244-2:2009 class A
• Galvanised and powder coated to BS EN 13438
• Marine coat for installations within 500m of salt water or an estuary
• Green RAL 6005, Black RAL 9005, Blue RAL 5010, Red RAL 3020, Yellow RAL 1018, White RAL 9010, Grey RAL 7012, Brown RAL 8017, Blue BS 20-C-40
• Architectural grade powder coating
• Other colours on request
The proven and flexible Jakoustic ® timber acoustic barrier system is available in any height up to three metres, and in a number of versions that can reduce noise levels by up to 32 decibels, to provide effective solutions to environmental noise pollution, with low lifetime costs.
The basis of the Jakoustic ® system features our unique timber ‘tuning fork’ design posts and boards featuring an interlocking tongue and groove design. The special profile has been carefully developed to locate the boards in such a way that eliminates gaps that sound could travel through, even when boards shrink and expand with changes in the weather. The fence is finished with a capping and counter rail.
Our Commercial & Highways system utilises the same basic structure, incorporating galvanised steel I-beams as opposed to timber tuning fork posts, and is available in heights above three metres. Both reflective and absorptive versions can also be UKCA/CE marked as a whole system for road infrastructure.

12k Envirofence® is ideal for projects where there is a need for a barrier that meets with minimum superficial mass requirements. While it has not been subject to laboratory testing, 12k Envirofence® offers a cost-effective solution for situations where lower level of noise reduction is acceptable in applications subject to low to moderate wind loads. Its timber construction provides an attractive natural appearance that is appropriate for housing developments, retail and leisure facilities, schools, parks, and construction sites.
• Overlength timber tuning fork posts for setting in concrete as standard
• 25 year guarantee using Jakcure® vacuum pressure treated timber
• Achieves the planning / architects’ minimum acoustic specification of 10 - 12kg per sqm.
• Complete with capping and counter rail
• 20mm x 139mm x 4.8m (planed) board with small chamfers which form a V-join between boards
• Capping rail 34mm x 145mm x 4.8m (planed)
• Counter rail size 34mm x 70mm x 2.4m (planed)
APPLICATIONS
4 Schools
4Parks
4Low - Medium risk
4Housing developments
4Demarcation
Matching single leaf and double leaf gates available


• Barrier heights from 1.8m – 2.0m supplied with timber tuning fork posts (for general applications with low to moderate wind loads)
• Barrier heights of 2.1m - 3.0m include galvanised steel spur posts, powder coated black
Scan to view on our website

• Timber tuning fork posts for heights up to 3m
• Jakcure® treated timber as standard
• Spur posts hot dipped galvanised to BS EN ISO 1461 and/or powder coated
• Planed timber finish

The Jakoustic® Reflective barrier is particularly effective in reflecting noise away from its face by employing heavy section planed timber boards with deep interlocking ‘v’ tongue and groove joints, coupled to tuning fork posts that clamp the boards together to eliminate gaps that sound can easily travel through.
Offering up to 28dB* reduction in noise, it has been designed for construction on site and can accommodate changes in site levels or profile.
• Unique tuning fork design posts
• Approximate superficial mass 25kg/m2
• Attractive timber structure with a planed finish throughout
• Anti climb design and scale design
• Special fixings clamp the acoustic boards between posts
• Can accommodate changes in level or profile
• Complete with capping and counter rail
• Capping rail 34mm x 145mm x 4.8m (planed)
• Counter rail size 34mm x 70mm x 2.4m (planed)
• Up to 28dB reduction in noise*
• Rating according to BS EN 1793- 2:1998; Category = B3
• 34mm x 143mm x 4.8m (planed) board with unique deep interlocking ‘v’ tongue and groove joint
• 25 year guarantee using Jakcure® vacuum pressure treated timber
*Jakoustic® barrier certified laboratory results: Rating according to BS EN 1793- 2:1998; category = B3; laboratory sound reduction 28dB.


• Overlength timber tuning fork posts for setting in concrete as standard
• Heights of 2.1m - 3.0m include timber tuning fork posts and galvanised steel spur posts to tuning fork posts, powder coated black as standard
• Timber tuning fork posts for heights up to 3m
Matching single leaf and double leaf gates available

• Jakcure® treated timber as standard
• Spur posts hot dipped galvanised to BS EN ISO 1461 and/or powder coated
• Planed timber finish

The Jakoustic® Absorptive barrier is designed specifically to keep noise within a contained space and is typically used around continuous power supply generators, air conditioner compressors, waste compactors and goods loading areas.
Jakoustic® Absorptive takes the proven Jakoustic® Reflective design of heavy section planed timber boards with deep interlocking ‘v’ tongue and groove joint, coupled to tuning fork posts and adds an absorptive layer of a mineral Rockwool fibre and protective membrane to one side of the barrier.
Offering up to 32dB* reduction in noise, it has been designed for faster installation times on site and can accommodate changes in site levels or profile.
• Timber construction with planed boards visible on one face
• Approximate Superficial Mass 28kg/m²
• Up to 32dB reduction in noise*
• Unique tuning fork design posts
• Special fixings clamp the acoustic boards between posts
• Can accommodate changes in level or profile
• Complete with capping and counter rail
• Capping rail 34mm x 145mm x 4.8m (planed)
• Counter rail dimensions: 34mm x 70mm x 2.4m (planed) one side \ 70mm x 54mm x 2.4m (planed) one side
• Absorptive layer of a mineral Rockwool fibre and protective membrane to one side
• High privacy, anti climb and scale design
• 25 year guarantee using Jakcure® vacuum pressure treated timber
*Jakoustic® barrier certified laboratory results: Rating according to BS EN 1793- 2:1998; Category = B3. Rating according to BS EN 1793-1:1998; Category=A3. Laboratory sound reduction 32dB.

• Overlength timber tuning fork posts for setting in concrete as standard
• Heights of 2.1m - 3.0m include timber tuning fork posts and galvanised steel spur posts to tuning fork posts, powder coated black as standard
• Timber tuning fork posts for heights up to 3m
Matching gates available with an absorptive
• Absorptive face clad in black membrane with vertical timber battens as standard
• Planed timber finish Scan

• Spur posts hot dipped galvanised to BS EN ISO 1461 and/or powder coated


Jakoustic® Commercial & Highway barrier system has been designed for commercial and highway applications, providing the same level of noise protection as the original Jakoustic® barriers, available in both reflective and absorptive variants.
Jakoustic® interlocking ‘V’ boards are affixed to galvanised steel I-beam posts for additional strength and rigidity, meeting not only stringent standards BS EN1794-1 and 2, but also ideally suited for application in exposed locations subject to high wind loading. The system is available with matching capping and counter rails to further enhance its appearance. The complete acoustic barrier system can be UKCA/CE marked as compliant with the requirements of BS EN 14388:2005 relating to road traffic noise reducing devices. Our in-house design team provides wind loading calculations for posts, free of charge on supply and install jobs.
The timber used in its construction can be treated in compliance with the National Highway Sector Scheme 4 standard.
• Available as Jakoustic® Reflective or Jakoustic® Absorptive
• Can be UKCA/CE marked as compliant with the requirements of harmonised standard EN 14388:2005 relating to traffic noise reducing devices
• Timber can be treated to National Highway Sector Scheme 4 and the system can be installed in compliance with National Highway Sector Scheme 2C
• Approximate Superficial Mass 25kg/m2 or 28kg/m2
• Up to 28dB** or 32dB** noise reduction
• Overlength galvanised steel I-beam posts for setting in concrete as standard
• 34mm x 143mm x 4.8m (planed) boards with unique deep interlocking “V” tongue and groove joint
• Can accommodate changes in level or profile
• Capping rail 34mm x 145mm x 4.8m (planed)
• Counter rail size 34mm x 70mm x 2.4m (planed)
• High privacy, anti climb and scale design
• 25 year guarantee using Jakcure® vacuum pressure treated timber

**Jakoustic® Commercial and Highway Reflective barrier certified laboratory results:
Reflective:
Rating According to BS EN 1793-2:1998 (Category = B3)
Jakoustic ® Highways Reflective Laboratory Sound Reduction 28dB
Superficial Mass 25 Kg/m2
BS EN 1794-1:2003, Annex A,B,C & E
Designed in Accordance with BS EN 1794-2:2003 (Detailed compliance statements available)
Absorptive:
Rating According to BS EN 1793-1:1998 (Category = A3)
Jakoustic ® Highways Absorptive Laboratory Sound Absorption 9dB
Rating According to BS EN 1793-2:1998 (Category = B3)
Jakoustic ® Highways Absorptive Laboratory Sound Reduction 32dB
Superficial Mass 28 Kg/m2
BS EN 1794-1:2003, Annex A,B,C & E
Designed in Accordance with BS EN 1794-2:2003 (Detailed compliance statements available)
• Base plated galvanised steel I-beam posts to bolt down to concrete base foundations
• Overlength steel I-beam posts
Matching gates available

• One face showing Jakcure® treated timber as standard
• Steel I-beam posts hot dipped galvanised to BS EN ISO 1461
• Planed timber finish

For a totally integrated, acoustic barrier solution we offer matching Jakoustic® timber or galvanised steel framed gates for pedestrian and vehicular access.
Configured as singles or pairs to match the Jakoustic® Reflective or Absorptive barrier systems, gates are available in swing and tracked sliding designs for manual or automated operation.
Swing Gates
Available in a range of sizes*.
Swing gates can be hung on timber or galvanised or galvanised and powder coated steel posts, dependent on size, with the addition of optional lintels if required.



Tracked Sliding Gates
Available in a range of sizes, please ask for more details.
The largest Jakoustic® tracked sliding gate that we have manufactured and installed to date is 3.5m high x 21m wide single leaf - but we can do larger.
*note: we recommend automation on swing gates that exceed 4sqm per leaf
4 Commercial properties
4 Industrial
4Sports venues
4 Railways
4 Residential
• Swing
• Sliding
• Automated
• Manual

• Jakcure® treated timber as standard
• Posts are hot dip galvanised to BS EN ISO1461 as standard
We offer a variety of solutions in timber and steel for school, playground and play area applications where security, safety, durability, and sustainability are key considerations. Installing the correct line of physical defence in play areas specifically developed for younger children requires an acute focus on providing a safe fencing or gate solution. This will minimise the risk of puncture wounds or entrapment of limbs to reduce the possibility of public liability claims - an all-important consideration in today’s increasingly litigious society.

The Playtime® range is one of our solutions to providing a safe enclosure around play areas, and protection against vandalism, dog-fouling, and unwanted intrusion. Designed to BS EN 1176, both timber and metal options conform to anti-trap regulations for playground fencing. Our timber Playtime® fencing is made from pressure treated, planed timber, reducing the risk of splinters, rot, and insect attack. Panels are constructed using galvanised tamper proof fixings to prevent panels from being vandalised, and hazardous nails being left strewn across the play area. Our metal Playtime® fencing has a welded stopped palethrough-rail construction, providing a strong fence with no visible bolts or fixings to be removed. Panels come galvanised as standard, but can be polyester powder coated at additional cost.
• Timber or steel fencing available
• RoSPA Approved
• Conforms to BS EN 1176 for play fences
• 25 year service life guarantee
• 25 year Jakcure® timber guarantee
4 Schools
4Parks
4Play areas
Timber Playtime®: The fencing panels are made up of 95 x 35 x 900mm high pales with 75mm pales spacing sandwiched between two rails at the top and two rails at the bottom.
Metal Playtime: 1000mm high (nominal height) panels have two horizontal rectangular hollow section rails
60 x 40mm; walls 2mm thick, with 25 x 25mm pales.
Matching single leaf and double leaf gates available


Timber Playtime® Fencing
Metal Playtime® Fencing
*Multicoloured versions seen pictured available at additional cost
• Overlength set in concrete as standard
• Base plated to bolt down onto concrete (not available on timber)



• Natural Jakcure® finish as standard
• Multi coloured pales (yellow, red and blue)
• Hot dipped galvanised as standard
• Hot dip galvanised and powder coated to BS EN 13438

Designed to complement our Timber Playtime® and Metal Playtime® fencing, Playtime® gates conform to all current play area safety guidelines. Gates come complete with hinges that allow the gate to swing through an angle of 180˚ and 90˚ if a self closer is added. The hinges are fully adjustable with tamper-proof screws and bolts.
• Inherently safe
• Quiet operation
• RoSPA Approved
• Playtime® timber gates feature a steel frame for added strength
• 25 year service life guarantee
• 25 year Jakcure® life guarantee
4Schools
4Parks
4Play areas
GATE OPTIONS
• Self closing operation
• Single or double leaf available
• Slide latch
• Lockable magnetic lock

PLAYTIME ® TIMBER FINISHES
• Natural Jakcure® finish as standard
• Multi coloured (yellow, red, and blue) with green posts, rails and gravel boards feature as standard


Timber Playtime® Gates
Metal Playtime® Gates
PLAYTIME ® METAL FINISHES
• Galvanised as standard
• Hot dip galvanised and powder coated to BS EN 13438
GATE POST DIMENSIONS
• Timber 100 x 100mm
• Metal 80 x 80mm

Anti-Trap Bow Top is designed to provide permanent protection for a variety of applications including schools, parks or play areas. It features our welded tubular pale-through-rail design to provide a strong structure without visible joints and vandal proof connectors. A key feature of the design is the wider gap between each hoop above the top rail, which prevents children from getting their heads, necks or limbs stuck between the pales. The design fully conforms to play fence standards in BS EN 1176.
• 19mm pales with domed top caps
• RoSPA approved
• 2737mm wide panels
• Posts 60.3mm
• Panels can be manufactured to accommodate sloping ground
• 25 year service life guarantee
4Schools
4Parks
4Play areas
Post to panel fixings
Post-to-panel fixings
Two horizontal rails 50 x 25mm with vertical round hollow section 19mm pales are passed through the top and bottom rail welded into position.
Every other bow with a pale is replaced with a domed plastic insert, creating a larger gap above the top of the rail, whilst keeping the gap between the paling inside the top and bottom rail under 100m.
• Overlength set in concrete as standard
• Base plated to bolt down onto concrete
• Cranked to suit wall mounting

Anti-Trap Bow Top Fencing
Anti-Trap Bow Top Gates
Gates are available as single or double leaf, in heights to suit fencing. They are also RoSPA approved, and feature 19mm diameter pales, 50 x 25 x 2mm horizontal rails, and 60 x 40 x 2mm wall thickness hanging and shutting stiles.
• Self closing operation for gates
• Slide latch
• Single or double leaf
• Hot dip galvanised to BS EN ISO 1461 as standard
• Hot dip galvanised and powder coated to BS EN 13438
• Marine coat for installations within 500m of salt water or an estuary
Scan to view on our website

• Green RAL 6005, Black RAL 9005, Blue RAL 5010, Red RAL 3020, Yellow RAL 1018, White RAL 9010, Grey RAL 7012, Brown RAL 8017, Blue BS 20-C-40
• Architectural grade powder coating
• Other colours on request
Fence spikes can be used on our fencing and gates in and around the perimeter to increase levels of security against intrusion, damage, acts of vandalism, or terrorism. In some cases, the installation of security extras may require planning permission or building regulations approval, if in doubt, please consult your relevant Local Authority department.
The ultimate fence and gate topping deterrent Rota Spike® can also be utilised on buildings, to protect vulnerable points, for example windows and roof parapets.
• Supplied 6m lengths or to suit
• Inner tube 41.5mm Ø
• 70 Rota Spike® per tube per 6m
• Fixed at 3m centres (top of wall)
• Fixed at 2m centres (face of wall)
• Spikes to rotate making it virtually impossible to climb over
Viper Spike® represents a new dimension in security - more imposing than barbed wire, it offers a formidable deterrent to the would-be climber. Designed to form a three dimensional barrier, its strong 170mm long 10mm diameter spikes are complete with extremely sharp points.
• 1.1m long
• 40 x 6mm flat bar
• 9 pairs of spikes 10mm diameter
• Width (including spikes) 230mm
• Height 170mm
Scan to view all on our website

Viper Spike® 3 is designed to prevent intruders from climbing drainpipes or other vertical structures. Available at 200m wide x 150mm stand-off as standard or made to measure to suit applications.
• 150mm deep x 200mm wide
• 8 pairs of spikes
• 40 x 60mm flat bar
Cobra Spike® security topping is designed for use on the tops of fences, gates or walls.
• 1.5m long with 110mm spikes
• Pitch of spikes 80mm and depth of spikes 95mm
• Width of base approximately 50mm




Cobra Spike® Rotary is made up of two lengths of modified Cobra Spike® affixed to a 3.0m x 41mm galvanised tube.
• 3.0m long x 180mm wide x 270mm high
• Easy to install
• Virtually impossible to climb over
We recommend that spikes should be attached to wall and fences at a minimum height of 2.5m, with warning signs every 10m or change in direction.
Sentry Comb is made up of a double row of 25mm high sharp-pointed steel double comb for additional security.
• 25mm high
• Double row
• Easy to install
A range of galvanised barbed tape and wire is available to further enhance the perimeter security in different applications whether as a fence and gate topping or in drop zones.




Jacksons designs and manufactures a wide range of gates in steel, timber or a combination of both to safeguard the continued security of any installation. Regardless of the type of gate, the material used, or whether or not the gate represents a customised response to a problem, all Jacksons gates are galvanised to BS EN 1461 as standard or pressure treated, and covered by our 25 year guarantee.
As well as designing and manufacturing gates - both manual and automated - we are able to provide access to our team of expert installers to ensure a professional and legally compliant installation.
The Jacksons access control systems work in conjunction with the operation of our automated products and allow enhanced control over the flow of traffic - either on foot or vehicular - at elected points within the site.

Supplied as either manual or automated and in a range of sizes with various control options. Our swing gates are available in a choice of different infills in either single or double leaf. Range comprises standard widths up to 10m and heights to 3m for pedestrian and vehicular access (standard ram operators up to 14m double leaf) third rail added if automated.
Jacksons automated gates and barriers meet with the essential health and safety requirements and are properly UKCA/CE marked as required by law. Additionally, the products are designed and engineered to exceed the standards set out in BS EN 12978 and BS EN 12453 in relation to gate safety.
• Single leaf
• Double leaf
• Pedestrian or vehicle access
• Manual
• Self closing (soft shut)
• Automated
4Underground operator
4Ram operator
• Choice of infill



Single Leaf Gate
Double Leaf Gate
• Hot dip galvanised to BS EN ISO 1461 as standard
• Hot dip galvanised and powder coated to BS EN 13438
• Marine coat for installations within 500m of salt water or an estuary
• Green RAL 6005, Black RAL 9005, Blue RAL 5010, Red RAL 3020, Yellow RAL 1018, White RAL 9010, Grey RAL 7012, Brown RAL 8017, Blue BS 20-C-40
• Architectural grade powder coating
• Other colours on request
Scan to view on our website


Sliding gates are ideal for applications where there is insufficient room for swing gates to open into and where higher security is required. Even where the ground is not level, the cantilever sliding gates run smoothly on nylon wheels, making them surprisingly quiet.
An alternative to cantilever sliding gates is tracked sliding gates, the advantage is that they can span larger opening widths and have a lower profile from the ground, with the gate running along a track set in level ground.
Jacksons automated gates and barriers meet with the essential health and safety requirements and are UKCA/CE marked as required by law. Additionally the products are designed and engineered to exceed the standards set out in BS EN 12978 and BS EN 12453 in relation to gate safety.
• Manual
• Automated
• Tracked
• Cantilever
• Telescopic
• Choice of infill
• Base plated to bolt down onto concrete - as standard
• Overlength set in concrete - optional

Single Leaf Gate (cantilever)
Double Leaf Gate (cantilever)
• Hot dip galvanised to BS EN ISO 1461 as standard
• Hot dip galvanised and powder coated to BS EN 13438
• Marine coat for installations within 500m of salt water or an estuary
• Green RAL 6005, Black RAL 9005, Blue RAL 5010, Red RAL 3020, Yellow RAL 1018, White RAL 9010, Grey RAL 7012, Brown RAL 8017, Blue BS 20-C-40
• Architectural grade powder coating
• Other colours on request


The trackless bi-folding speed gate comprises a unique drive mechanism to control the opening and closing of a bi-folding set of gates. The mechanism controls both leaves, producing a smooth and fast action. The design is ideal solution where the speed of opening and closing is essential for the security of the premises or where space may be a premium.
This unique design allows the gate to operate without the use of a bottom or top track thus eliminating any height restrictions and large tracks on the road.
• Very secure with opening and closing in approximately 1m per second
• Hydraulic design, low maintenance with minimal moving parts
• Trackless design, no height restrictions and lower maintenance
• Heavy duty hydraulic ram with PLC controlled slowdown in both opening and closing movement
• Smooth and quiet operation
• Galvanised or galvanised and powder coated
• Automated
• Vertical bar
• Securi-Mesh®
• Sheeted (one side only)

Jacksons automated gates and barriers meet with the essential health and safety requirements and are properly UKCA/CE marked as required by law. Additionally the products are designed and engineered to exceed the standards set out in BS EN 12978 and BS EN 12453 in relation to gate safety.
1 Standard slide latch
• Slide latch within construction of gate frame
• Slide latch 340mm long x 50 x 10mm
• Light weight option with encapsulated slide latch to prevent finger trapping for light weight or residential application
• Galvanised as standard, can be polyester powder coated to match gate colour
2 . Option: Key lock
• Key operated
• Easy left or right changing of the self-latching bolt
• Throw of 25mm in one turn of the key
• Deadbolt facility
3. Option: Mechanical coded lock for steel gates
• 100% mechanical: No battery or electricity required
• Operational code panel on both sides / 1 sided available
• Possible to work with different entrance and exit codes
• Equipped with aluminium dust and rain covers
• Automatic code reset after opening by means of the handle
• Anti-code detection with integrated security press plate
4 . Option: Push pad latch
• For areas not accessed by the public where panic is not foreseen
• Suitable for push face outward opening doors
• Non-handed for maximum flexibility
5. Option: Electric strike lock
• Extremely strong and user friendly design
• Voltage: 12v AC/DC
• Consumption 1.5A
• Water resistant, weatherproof
6 Magnetic Latch
• Uses magnetic technology
• Vertical pull option available
• Extended vertical pull option available
• Side pull option available






Our access control systems provide the means to control the operation of our automated products, for example to send a signal to open an automated gate to raise or lower a traffic barrier. In addition we also offer a range of additional safety devices that will allow you to augment standard features or tailor your automation and access control to suit a specific application.
Magnetic locks are available to ensure your gate is safe from unwanted entry.
Intercoms
Various designs available - allowing you to hear or see your visitors before they enter. Hardwired or GSM available.
Keypads and timer controls
Authorised visitors can have access to and from your property by a dedicated code. Alternatively, a timer can be added to allow your gate or barrier to be left open at certain times of the day.
Other options
• ANPR Cameras available
• Card reading systems (Stand alone or on-line)
Safety features on our automated gates can include:
• Safety photocells
• Safety edges
• Manual release
• Flashing warning light
• Finger guards
• IP rated lockable cabinet - powder coated finish as an option
• Magnetic locking
• Safety sensor
• Ground loops
Provides the perfect solution for prevention of unwanted vehicle access in both manned and unmanned vehicle parking areas. The blocker also provides an excellent deterrent against the most determined intruder.
The Road Blocker is manufactured from welded rectangular hollow section frame and durbar top plate. It also features an advanced hydraulic power pack to raise and lower the unit smoothly.
Height: 340mm / 500mm / 800mm / 1000mm
Length: Available in half-width sizes from 2-5 metres
Power requirement: Single phase 230v
Weight capacity: Maximum 12 tonnes on standard Road Blockers Operation time: 4.0 - 6.0 secs
Finish: Galvanised and painted in yellow and black (high visibility)
Options for access control:
• Keypad
• Proximity cards
• Photo cells
• Voice / Video intercom access
• Token acceptors
• Remote control fobs
• Key switch
• Loop detectors
Scan to view on our website


• Ideal for securing parking/garage forecourts and protecting green spaces
• 60.3 diameter tube
• 2000mm x 850mm above ground (plus 400mm below ground)
• Galvanised as standard
• Optional Polyester Powder Coating
Scan to view on our website


• Designed as a parking and traffic control barrier
• Posts can be staggered at intervals to allow pedestrians free access without compromising security
• Internal lockable barrier design to provide security and convenience
• Galvanised as standard
• Optional Polyester Powder Coating

• 100 x 100mm rectangular hollow section posts with 1500mm centres
• 1500mm post length (700mm above ground 800mm below ground)
• Galvanised as standard

• Swing arm height restriction barrier constructed with 150 x 150mm baseplated hanging and slam post
• Can be padlocked when the barrier is either open or closed
• Available in either single or double configuration
• Single up to 7000mm / double up to 10000mm
• Galvanised as standard
• Optional Polyester Powder Coating





• Manual operation
• Galvanised to BS EN 1461
• Counterbalanced for ease of operation
• Option of stripes on the barrier arm
• Padlockable
Counterbalanced Rising Arm Barrier 6.1m - 7m wide constructed from 60.3mm diameter, 80 x 60mm baseplated slam post and 200 x 200mm baseplated hanging post (100 x 100mm RHS welded together).
• Hot dip galvanised to BS EN 1461 as standard
• Hot dip galvanised and powder coated to BS EN 13438
• Marine coat for installations within 500m of salt water or estuary
• Green RAL 6005, Black RAL 9005, Blue RAL 5010, Red RAL 3020, Yellow RAL 1018, White RAL 9010, Grey RAL 7012, Brown RAL 8017, Blue BS 20-C-40
• Architectural grade powder coating
• Other colours on request
Scan to view on our website



Our Warden Swing Barriers are constructed using 60 x 60mm square hollow section (SHS) with anti-tamper hinges and are padlockable in the open or closed position. Heavy duty option available on request.
• Able to lock by padlock (open and closed position)
• Hold open posts are recommended so you can securely lock the barrier in its open position
• Option of stop or no entry signs available
Scan to view on our website

• Overlength set in concrete as standard
• Base plated to bolt down onto concrete
• Hot dip galvanised to BS EN 1461 as standard
• Hot dip galvanised and powder coated to BS EN 13438
• Marine coat for installations within 500m of salt water or estuary
• Green RAL 6005, Black RAL 9005, Blue RAL 5010, Red RAL 3020, Yellow RAL 1018, White RAL 9010, Grey RAL 7012, Brown RAL 8017, Blue BS 20-C-40
• Architectural grade powder coating
• Other colours on request

• Arm lengths up to 5 metres
• 1-phase 230 Vac ± 10%, 50-60 Hz, 1-phase 115 Vac ± 10%, 50-60 Hz versions available
• Manual override in case of power failure
• Aluminium housing
OPTIONS
• Bottom skirt (up to 4m)
• Boom lights (LED: red, green)
• Boom locking
• Hold close magnetic locking
• Articulated arm
• Bottom hanging skirts up to 4m
• 100% duty cycle
• LED Lighting
• PLC controlled

Keypad
Proximity cards
Photo cells
Voice / video intercom access
Token acceptors
Remote control fobs

• Arm lengths up to 5 metres
• 1-phase 230 Vac ± 10%, 50-60 Hz, 1-phase 115 Vac ± 10%, 50-60 Hz versions available
• Manual override in case of power failure
• Aluminium housing
OPTIONS
• Bottom skirt
• Top and bottom skirts
• Boom lights (LED: red/green)
• Boom locking
• Hold closed magnetic locks
• Articulated arm
Concrete, 600 x 500 x 400mm (h)
• Bottom hanging skirts up to 8m, top and bottom skirts up to 6m
• 100% duty cycle
• LED Lighting
• PLC controlled
Self-cooled oil-bath gear reduction, rod/crank
From 4.5 to 6 seconds (adjustable) 44W (50 Hz)
Keypad
Proximity cards
Photo cells
Voice / video intercom access
Token acceptors
Remote control fobs Key
Scan


Our range of pedestrian turnstiles are designed for external use and can be used singularly or in pairs for separate entry and exit function.
Full height turnstile is a sleek, contemporary design, as well as a robust, high specification turnstile engineered to exacting standards. Manufactured to the highest quality our heavy duty turnstile is complete in all respects. Designed to give years of continuous use under tough conditions.
• Can be used for bi-directional pedestrian access
• Modular system
• Designed to be installed directly on concrete
• LED overhead down lights
• Canopy covers
• Swipe and proximity card readers
• Keypads
• Intercoms
• LED directional flow indicator lights
• Enclosure to incorporate access control devices

The turnstile can be customised with a wide range of access control devices to suit your environment. The unit has been designed so fencing can be installed at any corner of the turnstile.
• Outside frame constructed from steel hollow tube with section
• Frame has been designed to hide cabling - eliminating trunking
• 316-Grade stainless steel turnstile rotor option
• Easily integrates with any access control
• Bi-directional 120 degree stainless steel rotors
• Fail secure operation as standard
• Frame designed to accommodate access control interface
• UKCA/CE marked unit

• Access control interface units - audio messaging system / card reader / push button
• Traffic lights
• Roof lights
• LED directional flow indicator lights
• Fail secure
We now have a growing portfolio which works in conjunction with our fencing and access control products to deliver high level perimeter protection, designed to minimise and track breaches in site security. All supplied systems are tailored to meet individual site specific requirements.
Jaktronic® Fence Sensor Systems (Active Fence Sensor) are multifunctional electronic perimeter security systems. Employing state of the art vibration sensors and magnetic detectors installed on the fence perimeter, the system monitors and displays intrusion attempts with high degrees of accuracy and low false alarm rates. The systems vibration sensors are based on the Time Domain Reflectometer principle (TDR), which displays attempts at penetrating the fence perimeter with an accuracy of ±10 metres.
The system can be installed on welded mesh or chain link fences, razor-wire coils, vehicle gates, personnel gates, and water conduits, providing full protection for the site.
Various models are available to cater for different types of applications and risk.
For further details please email: security@jacksons-fencing.co.uk or call: 01233 750 393
4Critical infrastructure
4Water reservoirs
4Power stations
4Remote communication sites


Available exclusively through Jacksons, Alarm-aFence® is a cost effective combined alarm and electric fence deterrent designed to provide a physical barrier deters, detects, denies and defends against would be intruders with a short, sharp painful but regulated safe electric shock.
• Can be attached to the top of most existing perimeter fences or walls
• Also for use as a standalone fence within an existing perimeter
• Alarm signal linked via the controller can be configured to activate sirens, lights, phone diallers etc.
• Delivers non-lethal electric shock
• Optional zoning of fence to isolate point of attempted breach
• Complies with all current standards
• Low maintenance and operating costs
• Installation and annual maintenance contracts available
• All systems are checked by our in-house technicians to make sure they comply with Jacksons Code of Practice. Subject to a satisfactory check a certificate of compliance is issued.
• Can be installed in almost any situation
Note:
We recommend ‘Danger Signs’ are used every 8-10m and change in direction along a fence line incorporating security extras capable of causing injury even through misuse.
4Logistics and distribution companies
4Power and water companies
4Oil refineries
4High risk applications


At Jacksons we have a range of crash rated fencing and crash barriers for when a crash rated perimeter is required. They have been designed and engineered to meet the expressed needs of security specialists.
Our crash barriers are specifically designed to protect and prevent intrusion from moving vehicles. We have a range of crash barriers that can be used along road sides, car parks, warehouses and factories.
All available crash barriers have undergone rigorous testing, to the highest crash rate possible and are tailored to suit your individual needs.

The Crash Rated Shallow Mount Road Blocker offers total protection against hostile vehicle intrusion and is particularly suited to sites where a higher level of security are required. Its shallow foundations allow the blocker to be installed in sites with utility congested substructures and underground services.
Tested with a 7.2 T (N2A) vehicle at 50mph (80kph) as a shallow mount blocker.
• Tested at 3m wide
• Gaps 10mm max
• Manufactured from heavy duty steel sections fully welded
• Shallow mounting substantially reduces installation time
• Designed for axle weights in excess of 12 tonne
• 3m foundation 4m x 3.2m x 0.47m
• Raise speed: approx. 6-8 seconds, 1-2 seconds with optional EFO
• Supply: TP&N 415v 16amp
• Performance Classification: IWA14-1:2013 V/7200{N2A}/80/90:0.6
IWA14-1:2013 - 50mph/80kph

• Galvanised bottom frame
• Top section powder coated
• Anti-skid paint finish is applied to the top plate


The Linebacker® PAS 68 Shallow Foundation is a cable type crash fence that has been successfully impact tested in accordance with BSI PAS 68:2010 to stop a 7.5 tonne vehicle travelling at 50 mph (80km/h). Its shallow foundations allow the fence system to be deployed in sites with utility congested substructures and underground services.
It is available in two versions either in all steel or concealed within a novel traditional timber post and rail fence design for covert applications. Linebacker® may be used as a stand-alone system or retrofitted to reinforce an existing security fence.
• PAS 68 Crash Fence certified to stop a vehicle of 7.5 tonne mass travelling at 50mph (80km/h)
• All steel construction as standard, timber post and rail dressed Linebacker® PNR option available
• Cables do not require re-tensioning on-site after initial installation
• Stand-alone system for outer boundary protection or target hardening within a perimeter
• Maybe retrofitted to reinforce any existing security fence
• Shallow foundations
Approvals
• NPSA (previously CPNI) Approved for UK Government Use
• Secured by Design Preferred Specification

LINEBACKER SPECIFICATIONS
• Shallow foundations – 500mm foundations for intermediate posts and 750mm foundations for end strainers
• Linebacker PAS 68 uses a single
unbroken length cable of galvanised cable
• Posts are hot dip galvanised to BS EN ISO14061
• Linebacker® PNR timber components are Jakcure® treated

BSI PAS 68 CLASSIFICATIONS
• BSI PAS 68:2010 V/500(N3)/80/90.7.3/21.4

Our BSI PAS 68 compliant Bi-folding Speed Gate is designed to blend seamlessly with a building or existing site perimeter protection to provide discrete vehicular access control and effective hostile vehicle mitigation.
The gates feature an integrated vehicle arrestor system and are engineered for continuous operation, requiring a minimal foundation depth of 410mm nominal, making them ideally suited to shallow and or/utility congested substructures, and offer an opening/closing cycle of approximately 8 seconds.
Optional enhancements over and above the standard gate specifications are available to continue an existing security fencing specification or to incorporate security toppings.
Crash test results:
PAS 68:2010 (40 mph) V/ 7500[N2] /64/90:0.8/0.0
PAS 68:2010 (50 mph) V/ 7500[N3] /80/90:0.7/0.0
• Clear opening of up to 4.2m maximum

• CAT 3 safety edges and light curtain as standard
• Additional safety options by laser safety devices to protect risk zones
• Galvanised to BS EN 1461 as standard
• Galvanised and Powder coated to BS EN 13438
• Marine coat for installations within 500m of salt water or estuary
The manually operated lifting barrier is a Hostile Vehicle Mitigation (HVM) solution, ideal for low volumes of traffic flow or where the access point is used infrequently.
The 6m gate has been physically impact tested to IWA 14-1 criteria a number of times with a 7500kg N2 vehicle travelling at 48kph (30mph) by independent testing agency, Horiba MIRA Ltd.
The barrier has also successfully undergone IWA 14-1 testing using an 1500kg (M1) saloon car travelling at 48kph (30mph) and passed the NPSA’s (previously known as CPNI) Vehicle Access Delay Standard (VADS) testing which provides assurances that it is capable of withstanding repetitive nudging and ramming to gain access.
Impact tests have included 3 metre, 4.5 metre and 6 metre clear width opening models of the barrier, providing physical protection to sites from extreme Vehicle Borne Improvised Explosive Device (VBIED) attack.
• Physically crash tested to IWA 14-1 criteria
• Physically crash tested to PAS 68 criteria
• Manufactured from heavy gauge materials
• Manually operated
• Simple to install
• Strength and durability
• No power supply required
• Locking in raised and lowered position
Barrier Hang Post 600mm W x 890mm D x 1230mm H
Barrier Arm 6m max
Slam Post Foundations 1500mm W x 3600mm D x 470mm H
Construction:
Classification:
IWA 14-1:2013 Gate V/7200(N2A)/48/90:1.2-6m
IWA 14-1:2013 Gate V/1500[M1]/48/90:2.0-6m
PAS 68:
V/7500(N2)/48/90:0.3/0.0 - 6m model
V/7500(N2)/48/90:0/0 - 4.5m model
to view on our website

The universal boom catcher frames are fabricated from heavy steel sections, which are anchored into the foundations: they are designed to support the boom in the lowered position and to take a full impact load.
Available with a range of clear width openings. The arm sits 900mm above the roadway and is supported by 2 side universal support frames. It is counterweighted for ease of operation and comes with a manual locking mechanism to secure the barrier in the lowered/closed position.

Jacksons provides a host of bollards to suit all of your needs. Each type of bollard has its own unique advantages, from our static security bollards, to automatic security bollards, providing security and peace of mind. If you require high security bollards for your premises then we can also be of assistance.
The Beaufort standard automatic bollard represents a new generation access control solution. Many design innovations make it easy to handle and install but best of all its performance is market leading and low lifetime costs are exceptionally competitive. Activated by any access control system or signalling device, it is an alternative solution to fixed posts and barriers, allowing regulation of traffic into certain zones with high vehicle flow, (e.g. restricted areas, pedestrian areas, parking and industrial sites and many more). Available with a diameter of 275mm, and a height of 600mm or 800mm.
The Beaufort automatic concealed traffic bollard has fully integrated hydraulic technology for heavy duty usage. With a standard descent time of 2.8 seconds, there is an extra setting that activates the emergency release valve and allows a decent time of just 1 second.
4Commercial premises
4Education
4Pedestrian areas
4City centres



Ideally suited for demarcation and commercial use to prevent vehicle entry and segregation of pedestrians and vehicles the galvanised bollards can be supplied heavily galvanised to BS EN 1461 or have an additional paint finish either polyester powder coating for normal environments or marine coat for coastal or hazardous situations.
• Galvanised as standard
• Polyester powder coated
• Marine coat for installations within 500m of salt water or estuary

The Harrier PAS 68 Static Bollard range is designed to protect localised areas within a perimeter with an unobtrusive barrier capable of arresting or completely halting the progress of a hostile vehicle. Used in series, the bollards are equally effective in the protection of buildings and for use in support of traffic calming measures where a reduction in vehicle approach speeds and/or direction is required.
The bollards are manufactured in our workshops using heavy gauge steel which is fully hot-dip galvanised to provide lasting protection and may be additionally colour coated or cloaked with a decorative stainless steel cover.
• Stand-alone system for outer boundary protection or target hardening within a perimeter
Scan to view on our website

1


7500( n 2)/48/90:0/0
7500( n 2)/64/90:3.3/0
7500( n 3)/64/90:4.0/16.7
7500( n 3)/80/90:10.6/11.1
• Galvanised to BS EN 1461 as standard
• Polyester powder coated
• Marine coat for installations within 500m of salt water or estuary
• Green RAL 6005, Black RAL 9005, Blue RAL 5010, Red RAL 3020, Yellow RAL 1018, White RAL 9010, Grey RAL 7012, Brown RAL 8017, Blue BS 20-C-40
• Architectural grade powder coating
• Other colours on request

The Lancaster Automatic Crash Rated Bollards are designed to protect localised areas within a perimeter with an unobtrusive barrier capable of arresting the progress of a hostile vehicle. The high security retractable bollards have been successfully tested to the highest standards for arresting vehicle attacks.
• Reliable and proven hydraulic operation
• Stand-alone system for outer boundary protection or target hardening within a perimeter
• Maybe retrofitted to reinforce any existing security fence
• Easily interfaced with a variety of dedicated access control systems
• Option to operate each bollard separately
•
•
•

At Jacksons our entire resource is geared around meeting your needs, from sales to design, site visits, manufacturing and transport, so please feel free to contact us to discuss your requirements at the earliest stage of the project.
We have teams located at each of our three fencing centres and fencing managers located throughout the UK ready to respond to your enquiry.
Jacksons Fencing, Stowting Common, Ashford Kent TN25 6BN
T: +44 (0) 1233 750 393
E: security@jacksons-fencing.co.uk
E: tenders@jacksons-fencing.co.uk
E: export@jacksons-fencing.co.uk
Jacksons Fencing
New Rock Chilcompton, Bath Somerset, BA3 4GJ
T: +44 (0) 1761 232 666
E: sales-bath@jacksons-fencing.co.uk
Jacksons Fencing Dragon Hall Whitchurch Rd
Chowley Tattenhall (A41) Chester, CH3 9DU
T: +44 (0) 1829 770 776
E: sales-chester@jacksons-fencing.co.uk
R H Gaudion & Sons Ltd
Camp du Roi Hardware Store
Vale
Guernsey
GY6 8DD
T: +44 (0) 1481 257361
E: garden@gaudioncampduroi.com
JF(T)U Town & Country
La Grande Route de St.Jean Sion
Trinity Jersey
JE3 5FN
T: +44 (0)1534 733277
E: mikejftu@gmail.com
If you would like a copy of our Good Fencing Guide which covers timber fencing, gates, and garden structures, please call us on: +44 (0) 1233 750 393
To find out more about Jacksons and our latest products, please visit: www.jacksons-security.co.uk
We operate a continuous improvement policy throughout the organisation. Products and specifications are subject to change without notification.

Alarm-aFence®
Barbican Defender®
Barbican Imperial®
Barbican®
Cobra®
EnviroFence®
Euro Guard®
EuroGuard®
Jacksons AUTO-GATES®
Jacksons Expert Installer®
Jacksons Fencing Systems®
Jacksons Fine Fencing®
Jacksons®
Jakcure®
Jakoustic®
Jakpost®
Jaksun®
Jaktronic®
Jakwall®
Linebacker®
Mi-T®
Playtime®
Roman®
Rota Spike®
Securi-Mesh®
Sentry®
Shadowline®
The Good Fencing Guide®
Tri-Guard®
Trident®
Urban®
Viper Spike®

