Portfolio
Jack Allison
University of Virginia B.S. ARCH 26
Jack.Allison0722@gmail.com
435-659-0946

![]()
Jack Allison
University of Virginia B.S. ARCH 26
Jack.Allison0722@gmail.com
435-659-0946

A compositional exploration of the macro-circulatory layers in the Foggy Bottom neighborhood of Washington DC that brings together the civic service and student populations.
Year 3, Arch 3010, Fall 2024
Instructor: Peter Waldman

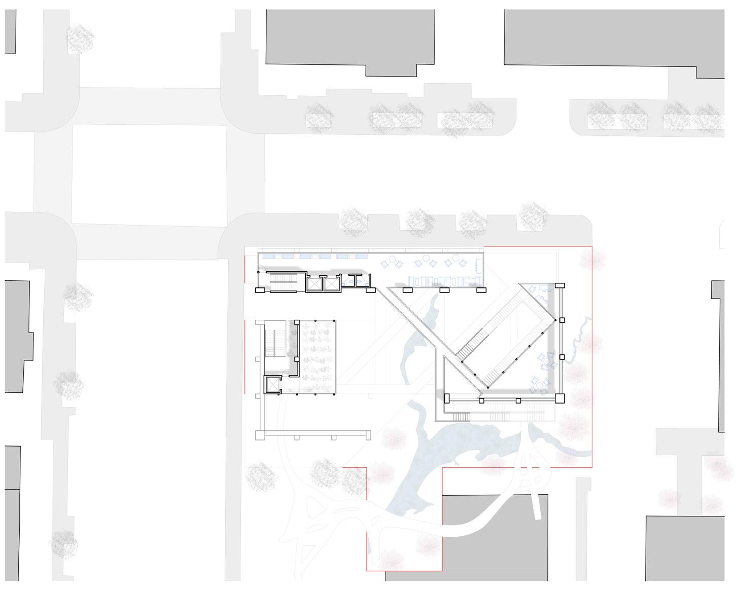
Urban Isometric




Foggy Bottom is an organized sprawl of recycled space, a collage of styles and people from various eras of the city. The cycle of destruction caused by this constant upheaval has resulted in generational displacement and scarring within Foggy Bottom. The site selection takes this into account through the site’s relation to important Civic and Student buildings within Foggy Bottom.
This project is rooted in its process, thus rendering it an investigation of the past, present, and future of the nation’s capitol. The social and physical fragmentation caused by projects like the Potomac Freeway focus this project onto how people move in and out of the city throughout time on the scale of humans, cars, and planes.





The Urban Circulation Collage Model layers different methods of city wide circulation into a 3D abstraction of Foggy Bottom and its surroundings. This model is then explored through fragmented study models, building upon its movement, light, and materiality.















Two completed study models were created to serve as an exploration of the combination of the fragments through interactive combinations. They primarily show the spatial relationships of these parts to create a cohesive, whole structure.
Concept Sketches
A series of sketches explores these model’s ideas in the 2D space, looking at each element individually and collectively. These pieces create the compositional foundation for project.



Programmatic Concept Sketches


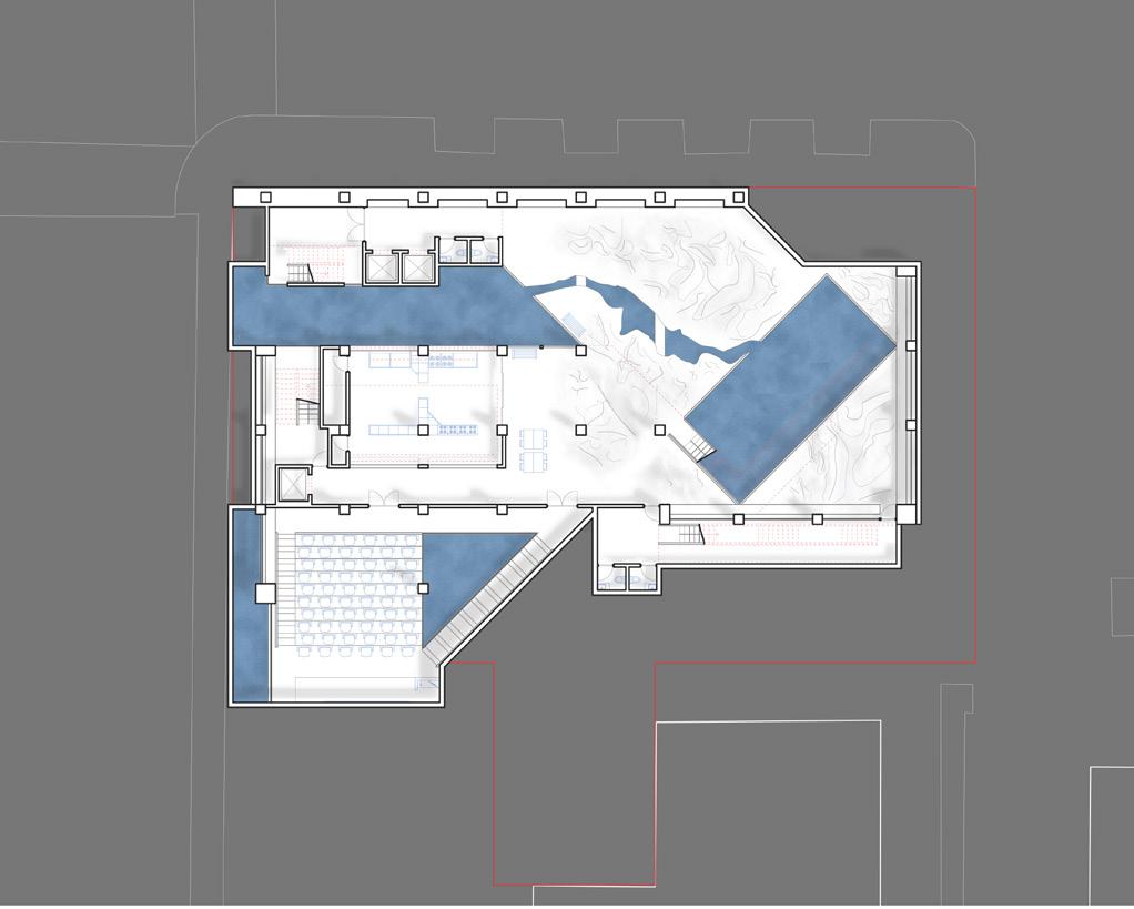
The community center program is overlaid onto the Urban Circulation Collage Model to assign 2 spaces that are separate and overlap for the civic and student programs. Creating 3 primary masses within 1 semi-enclosed structure.







Interior Perspective

Abstracted from the Jazz 12-Bar Blues, the Blues House utilizes a loop found in music to create a linear journey through the form that is interrupted by a wandering metal curtain that weaves through the project.
Year 2, Arch 2020, Spring 2024
Instructor: Stacy Scott

Cross Section Perspective



A musician lives to perform, to showcase their work, but they also need a place to refine their craft. That means creating an impermanent, yet strong, barrier between this public performance and private practice. This comes in the form of sliding doors and the chain curtain, changing elevations, and multi-purpose spaces that connect throughout the house.
To explore these ideas, there was a large emphasis upon designing through sketch models iterations that explore different aspects or movements through the house.
Process Models
The chain curtain serves as a means of changing transparency, light, and connection to the outside world while also allowing for the ability to close off this connection to create a more intimate space.










Improvising over jazz music is equally about strategic preparation as it is about creating a sense of wandering. Moving through the often rigid and repetitive progression of a song ultimately means creating a contrast between what was being played while sometimes calling back to what was played before, either in the melody or a previous solo. ‘Wandering’ elements break up this rigid form that organizes the project to allow for moments outside of the form that then resolve back into the structure.
Exploded Axonometric








Interior Perspective









Exterior Perspective
Section Perspective
An artist residency that draws from the surrounding rowhouses and art scene of the Museum District in Richmond to allow for collective housing that emphasizes privacy within community.
2nd Year, Arch 2020, Spring 2024
Instructor: Stacy Scott

Urban Isometric
Spatial Reaction Diagram
Family Conjoined Unit
Double Individual Unit
Family Single Unit
Circulation
Studio Gallery
Surrounding Site Open Space
Site Reactionary Open Space




Maintaining the existing visual sightlines between existing houses and creating new ones with the project is critical to creating a place that embeds into the context. The shifting of the units along the x-axis allows for a dynamic push and pull between the existing open space and the new structure created by the building.
The site is low rising, allowing for a low-level intimacy with the ground and surrounding buildings. Varying the elevation at which people view the structure, site, and surrounding buildings establishes a hierarchy between those on the ground level and those in their homes. This is achieved through outward facing balconies and transparency within the studio gallery space to create an inviting environment.
Unit Form Diagram



Creating privacy within community is at the core of this project. Units of individuals and young families of artists determine two distinct spaces to be joined in public outdoor, market, and gallery spaces. A mix of unit types allows for these groups to mix in the living and work space. Within the units, the elevation change establishes a separation that emphasizes the private elements of living in the interior and exterior. Open balconies at each end of the units offer unique spatial experiences for each unit while creating a connection between the two edges of the site along the y axis.






The first floor of the Studio Gallery space initially seeks to disrupt the movement of the viewer from the outside with the extended wall, but opens up into the highly transparent glass wall of the gallery space. The entrance similarly seeks to build curiosity by changing the density of the entrance which splits into the main gallery, the classroom space, and the large art gallery.
Lobby
Gallery
Classroom
4. Supplies Storage
5. Pin Up/Gallery
6. Large Item Gallery
7. Restrooms


The second floor seeks to disconnect from the transparency and public space that occupies the ground floor. A connection to the primary circulation in the center of the wall leads to an open hall with a window overlooking the large art gallery. This hall splits to a balcony, library, and the studio space. Privacy is metered through horizontal and closed off windows to the public eye while the roof acts as an implicit guide for circulation and offering clerestory natural light into the studio and library.

















Exterior Perspective




A re-imagining of the lighthouse in Martin Scorsese’s ‘Shutter Island’ that utilizes the verticality of the lighthouse typology to create a residential therapeutic space for Shutter Island’s most dangerous patient: Teddy Daniels.
2nd Year, Arch 2020, Spring 2024
Instructor: Stacy Scott




Proposed Section






The lighthouse’s most notable qualities in the movie are its emptiness and sense of mystery. These qualities are created in a way that are thought to be helping Teddy but fail to make him truly find peace. Instead, the lighthouse should act as a means of support for Teddy and pursue freedom in a habitable space.
Teddy’s Space
Mixed Space
Doctor Space
Teddy’s Original Path New Circulation and Floor Program Form Diagram
The isolation of the island is broken up by allowing his primary doctor and nurses to live at the base of the lighthouse in apartments while he occupies the watch and light rooms at the top. To break up the rigid, foreboding form of the lighthouse, the facade is pushed, pulled, and shifted to create open green balconies and expand the tight interior. This allows for Teddy additional freedom of movement within and without the lighthouse which is critical for his healing process.




















A community oriented forager’s villa to explore, identify, and appreciate the wilderness of the Rivanna Trail while providing a connection to the water below.
2nd Year, Arch 2010, Fall 2023
Instructor: Karen Van Lengen




Tangential Grids
Tangential Derivation From Existing Element
Resultant Structure

The project begins by orienting itself to the site through a series of grids based upon pieces of the environment. The first grid is aligned tangentially with the Rivanna Trail path, the second is parallel with the riverbank, creating the conditions for the 3 pavilions, and the final grid is a series of lines tangent to the rocks found at the river.

The pavilions act as a way of connecting the Rivanna Trail to the water, allowing for systems of play and interaction with the water to emerge. Two paths, one for people and one for water, wind down the slope to create this reconnection. The pavilions are oriented towards the south to utilize natural heating and cooling with unique facades on the south, east, and west, to specific frame views of the water for each location.

Axonometric







Longitudinal Section
































































































Exploring the Veneto Region and studying the work of Andrea Palladio through observational sketching. This journey allowed for sketching to become an integral and necessary part of my design process.
Arch 5800, Summer 2024
Instructors: Luis Pancorbo and Ines Martin Robles










