Geometría solar

Page 1

UNIVERSIDAD CENTRAL DEL ECUADOR

J O S E P H F E R N A N D O I Z A G .
solar
Geometría
INTRODUCCIÓN DIAGRAMA SOLAR UBICACIÓN PLANOS ORIGINALES CORTES REDISEÑO CONCLUSION 01 02 03 04 05 06 07 Índice

Introducción

Identificar el norte de la casa, dibujar a mano 4 cortes, dos que coincidan con el eje este-oeste y dos norte-sur, mostrando la maoria de ventanas, tragaluces o patios y una axonmetria volumetrica sencilla. Usando el diagrama solar obtenemos los angulos en corte y en planta de los meses de junio, marzo y diciembre a las nueve, doce y quince horas. Dibujar el ingreso del sol en todos los cortes, tambien dibujar sobre las plantas el ingreso del sol

Diagrama Solar de Latitud Ecuador Sol de junio Sol de marzo Sol de diciembre 15:00pm 12:00pm 9:00am

Ubicación

Latacunga - Cotopaxi

Planos Originales

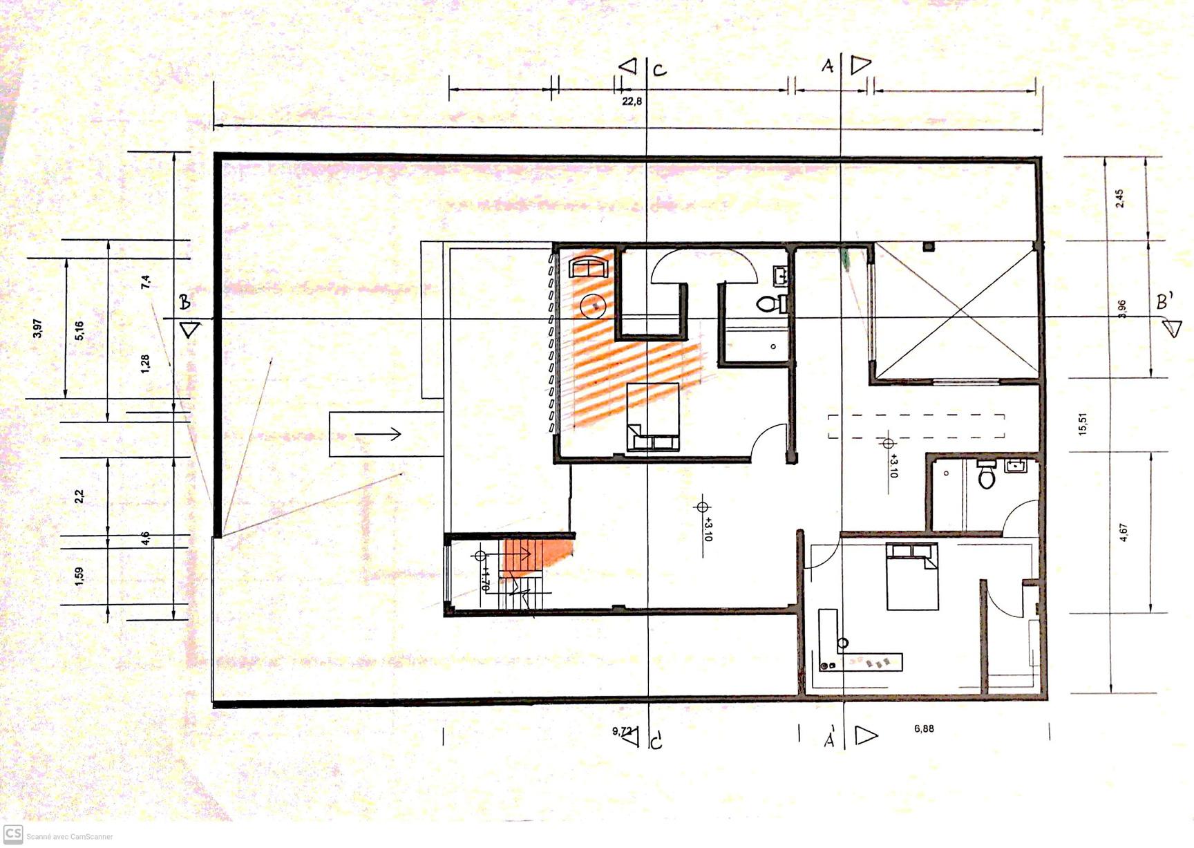
1.100 A
B
Planta
Baja ESC:
A'
B'
C
C'

Planos Originales

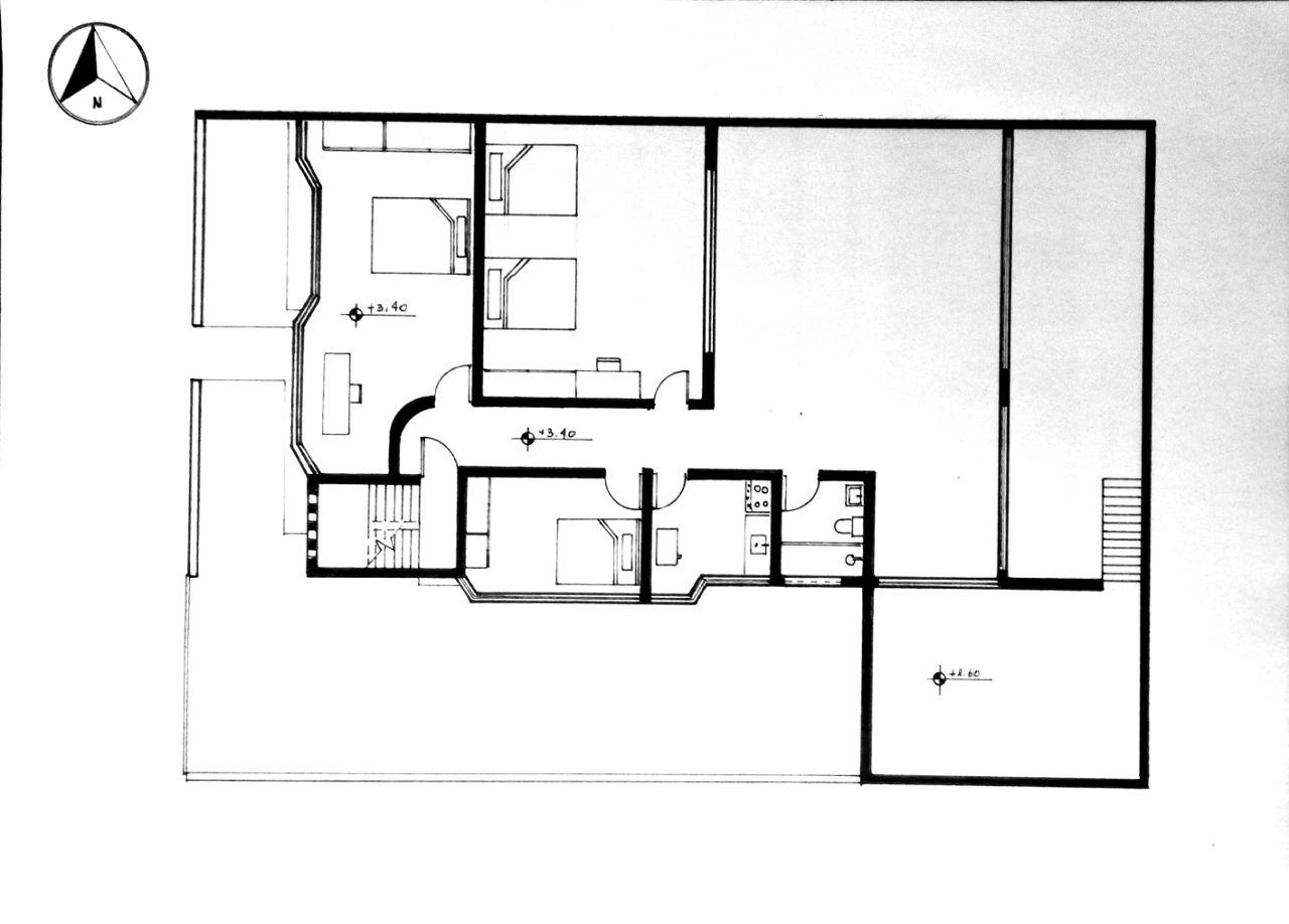
ESC: 1.100 A
B
C
Planta Alta
A'
B' C'

Isometria

Corte B-B'

ESC: 1.100

CORTE N-S

Cortes

Corte A-A'

ESC: 1.100

CORTE N-S

Cortes

Corte C-C'

ESC: 1.100

CORTE E-W

09:00 am 12:00 am 15:00 am

Analisis Junio

La planta baja no recibe la luz necesaria incluyendo el bano, y los tres dormitorios en la planta alta no recibimos sol en el dormitorio de dos camas.

12:00
15:00
Analisis Junio 09:00 am
am
am

09:00 am 12:00 am 15:00 am

La planta baja no recibe la luz necesaria

incluyendo el bano, y los tres dormitorios en la planta alta no recibimos sol en el dormitorio de dos camas y tenemos un sobre asoleamiento en uno de los dormitorios.

Analisis Marzo

Analisis Marzo

09:00 am 12:00 am 15:00 am

Analisis Diciembre

09:00 am 12:00 am 15:00 am

La planta baja no recibe la luz necesaria incluyendo el bano, y los tres dormitorios .

Analisis Diciembre

09:00 am

12:00 am

15:00 am

En la planta alta no recibimos sol en el dormitorio de dos camas y existe un sobre asoleamiento en uno de los dormitorios.

Analisis Diciembre

09:00 am 12:00 am 15:00 am

Maqueta

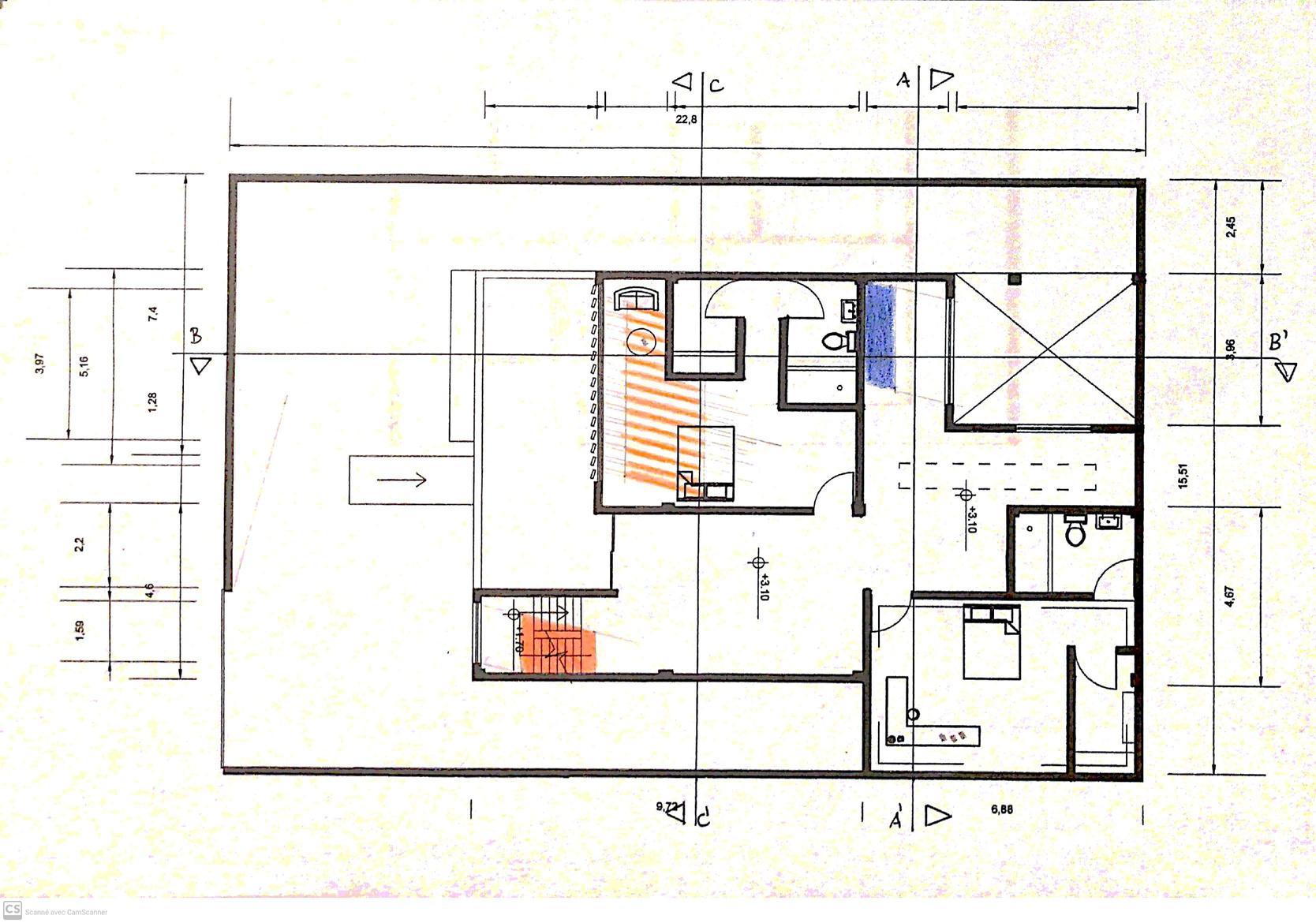
REDISENO

Analisis Junio

Planta Baja

ESC: 1.100

09:00 am 12:00 am 15:00 am

Analisis Junio

09: 12: 15:
1.100
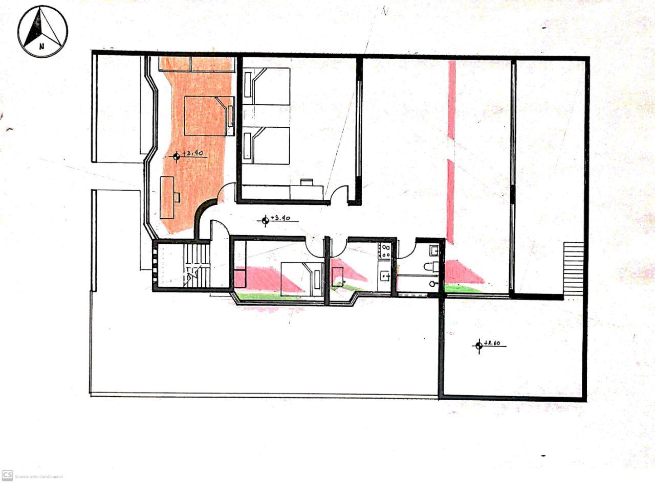
Planta
Alta ESC:

09:00 am 12:00 am 15:00 am

Corte B-B'

ESC: 1.100

CORTE N-S

ESC: 1.100

CORTE N-S

Corte A-A'
Analisis Marzo
09:00 am 12:00 am 15:00 am
Planta Baja ESC: 1.100

09:00 am 12:00 am 15:00 am

Analisis Marzo
Planta Alta ESC: 1.100

09:00 am 12:00 am

15:00 am

A
Corte B-B' ESC: 1.100 CORTE N-S Corte A-A' ESC: 1.100 CORTE N-S

Analisis Diciembre

09:00 am

12:00 am

15:00 am

Planta Baja ESC: 1.100

Analisis Diciembre

09:00 am 12:00 am 15:00 am

Planta Alta ESC: 1.100
An 09:00
12:00
15:00
am
am
am
Corte B-B' ESC: 1.100 CORTE N-S Corte A-A' ESC: 1.100 CORTE N-S

Maqueta

GRACIAS

Turn static files into dynamic content formats.

Create a flipbook
Issuu converts static files into: digital portfolios, online yearbooks, online catalogs, digital photo albums and more. Sign up and create your flipbook.
Geometría solar by Joseph Iza - Issuu