Yue Xi 2025 portfolio - Interior & Architectural Design

Page 1


YUE XI

Architectural & Interior Design Portfolio

Skills Rhino Revit

Auto CAD

Sketchup

Enscape

V-Ray

Illustrator

Photopshop

InDesign

Microsoft Suite

Hand Drafting

Model Making

Laser Cutting

3D Printing

CNC Machine

Midjourney

Blender

Unreal Engine

Premiere Pro

Electives

Color Theory

Textile Specifications

Digital Fabrication

Calculus I - III

Involvement

IIDA NEOCONSIN Volunteer Fall 2022

IIDA Bag Bash Volunteer Spring 2022

Language English

Chinese (Native)

Architectural & Interior Designer

contact info

yxi124@g.ucla.edu

608-960-1679

www.linkedin.com/in/yue-xi-ivy

Education Background

University of California - Los Angeles Los Angeles, CA

• Master of Architecture (NAAB Accredited) Expected Graduation: Jun 2026

• Overall GPA: 3.7/4.0

University of Wisconsin - Madison Madison, WI

• Bachelor of Science in Interior Architecture (CIDA Accredited) Sep 2018 -Dec 2022

• Overall GPA: 3.7/4.0 (Honor: Dean’s List for 5 semesters)

Design & Work Experience

IA Interior Architects Chicago, IL

Interior Design Intern Jun 2023 – Sep 2024

• Modeled custom decorative components in Revit, generating preliminary renderings with Enscape by testing and applying materials and fabrics for workplace design projects

• Revised and refined floor plans, elevations, and signage/tagging plans in Revit based on client feedback and sketches, and collaborating with the graphic design team to deliver comprehensive solutionAssisted in generating comprehensive floor plans in AutoCAD and corresponding diagrams with color labels and circulation and transportation in Photoshop

• Maintained material libraries, communicated with reps and vendors, procured material samples, and crafted detailed material palettes for BDO, BMO, FINRA, etc, while actively participating in industry events and lunch-and-learns to stay informed on emerging trends

• Performing assistive design works, including attending group meetings, researching about precedents, and managing clients’ meeting records

• Assisted with a sustainable report for United Airlines in Chicago by calculating embodied carbon reductions through reused partitions and furniture and integrating data into highlighted floor plans

Beijing Institute of Architectural Design

Beiing, China

Interior Design Intern Jun 2023 – Jul 2023

• Conducted preliminary site, building, and culture analysis for large civic projects, such as convention centers, science forums, and libraries, and created attractive story-telling presentations

• Produced precise floor plans in AutoCAD and vibrant, detail-oriented diagrams in Photoshop, integrating labeled circulation and transportation routes to enhance project functionality• Designed carpets for a convention center project using organic patterns and textures in relating culture themes, and collaborated with the manufacturer to produce sample carpets

• Created intricate, culturally inspired carpet designs with organic patterns and textures for a convention center, and collaborated with manufacturers to deliver high-quality samples

Center for Design and Material Culture

Madison, WI

Gallery Assistant Sep 2019 - Nov 2019 & Sep 2021- May 2022

• Efficiently organized visitor records and promptly responded to emails and phone inquiries, ensuring seamless operations and maintaining a professional and welcoming environment

• Proactively guided visitors through exhibitions, facilitated communication with curators, while handson assisting with gallery installations, preparing and documenting school events through photography

SELECTED WORKS

INTERIOR DESIGN

o1 The NEXT Cosmetics

Modern Office Design · Manhattan, NY

Undergraduate | Fall 2021 | UW-Madison

o2 The Moon House

Student Wellness Center · Madison, WI

Undergraduate | Spring 2022 | UW-Madison

o3 The Malaya Lolas Museum

Memorial Museum · Kuala Lumpur

Undergraduate | Fall 2022 | UW-Madison

ARCHITECTURE

o4 The Zen | Proto-Architecture

Childcare & Spiritual Center · Los Angeles, CA

Graduate | Fall 2023 | UCLA AUD

o5 The Split House

Affordable Housing · Los Angeles, CA

Graduate | Spring 2024 | UCLA AUD

o6 LA River Reservoir

Infrastructure & Landscape · Los Angeles, CA

Graduate | Fall 2024 | UCLA AUD

The Next Cosmetics

office design

Course: Interior Design Studio III | UW-Madison

Type: Individual Work

Instructor: Jennifer Meyers & Brooke Godfrey

Software: Revit, Enscape, PS, AI

Time: Fall 2021, 18 weeks

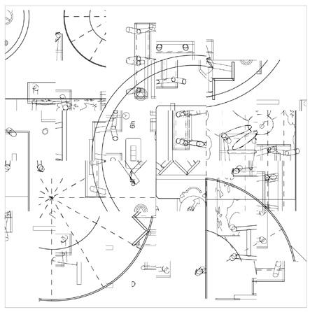
The NEXT project is a office space design for a start-up clean beauty company that is based in Manhattan, New York. Flexibility, inclusitivity, sustainability, and privacy are achieved through a calming color palette, biophillic design, and dynamic circulation with in the workspace. The design of the space will create an unique identity rooted in Korean culture featuring a beauty spa and a meditation yoga studio.

To create a fully immersive and inspiring environment, multiple senses like olfactory, tactile, and visual stimulations are spread through the space. Considering the post-pandemic influences, personal spaces, community spaces, and vitural working spaces are carefully arranged with the aid of technology.

Bubble Adjacency Diagram
Block & Circulation Diagram
Elevation

retaining design

The Moon House

Student Center

Course: Interior Design Studio IV | UW-Madison

Type: Individual Work

Instructor: Lesley Sager

Software: Revit, Enscape, PS, AI

Time: Spring 2022, 18 weeks

The Moon House is a unique and inclusive student wellness center located on the University of Wisconsin - Madison. It is a renovation project using the old Horse Barn located in the west lake district on campus. The Moon House will be a place of rejuvenation where students can enrich their connections to themselves, their surrounding environment and community, as well as feel a sense of place & belonging.

The Moon House boosts a wellness cafe, evening bar, and a special performance area for student activities such as music and comedy. The pet therapy rooms, the wellness cafe, stduent work retail space, and the historical gallery are located on the first two floors, create a intimate, calming and healing atmosphere. As students move up to the third floor, the space becomes more dynamic, engaging, and mysterious. The Moon House bar and the Moon House show encourage students to develop creativity, socialization and contribution to a larger community.

structural columns old window
chimney
truss system Tudor revival style gable porch
3D Printing Model of the old building
Bubble Adjacency diagram
The Wellness Cafe
The Music Bar

ROUND LIGHT STRIP

SEMI-TRANSPARENT GLASS

INCREASING 4" IN LENGTH Lobby Light Feature

WHITE GYPSUM COLUMN
STEEL LOGO
STEEL BOTTOM
SPHERICAL LIGHT SHADE
1" x 1" WOOD STRIP SPACED 7"
BLACK LAMINATE FRAME
CURVE SHAPE STEEL PANEL
IVORY LAMINATE PANEL
SISAL PET SCRATCHER
GREY LAMINATE SEAT
BLACK LAMINATE PET PLAYING CABINET
Pet Therapy Customized wall
original timber truss system repainted with black paint

Course: Interior Design Studio III | UW-Madison

Type: Individual Work

Instructor: Jennifer Meyers & Brooke Godfrey

Software: Revit, Enscape, PS, AI

Time: Fall 2021, 18 weeks

This is the final thesis design studio for undergraduate, derived from an exsiting building and re-configured the interior. The Malaya Lolas museum is a museum and memorial designed as rememberance for comfort women who suffered from forced sex slavery during the WWII. It intends to reveal the stories of comfort women, provide social supports for victims, as well as appeal to compassion from the public.

The visiting experience transits from the main exhibition presenting dark and painful history, objects and paintings, to a brighter women’s art exhibition, and finally a contemporary exhibition space. The interactive memorial wall and courtyard is located at the center, providing a space for visitors to rest and contemplate. By accomplishing the tour, the visitors experience pain, sorrow, forgiveness, reconcilation, hope, and finally being cured.

Bubble Adjacency Diagram

• A fixed path presenting historical images and stories.

• Incorporation of sound-absorptive and endurable materials.

Main Exhibition - Art work

• A free exploring section with art work, sculptures, and installations.

• Specially curated with art works for comfort women.

• A narrow hallway created by the space between two curved walls.

• A change in ceiling height and materials to show a transition to the next phase.

• A women's art exhibiton specially curated with supportive female art wrok.

• A large skylight that allows light to come through.

Transition Hallway / Video Room dark - sorrow bright - hope
Women Art Exhibition

The Zen Proto - Architecture

Childcare & Spiritual Center

Course: Introductory Design Studio | UCLA AUD

Type: Individual Work

Instructor: Benjamin Freyinger

Software: Rhino, V-ray, PS, AI, Midjourney

Time: Fall 2023, 10 weeks

First studio in a core sequence within the MArch I program at UCLA. This 3-parts studio explores issues that are central to the discipline – space, form, and representation.

The final design is a proto-architecture for a childcare and spiritual center located in Los Angeles. Gaining inspiration from abstract art, the creation of proto-architectural conditions examines ways of inhabiting and experiencing space, as well as considering environmental context and rain water collection.

Part A starts with orthographic studies of the toy of choice, then the drawing is constructed into a physical 2.5D paper relief model which translates the implied spatial and formal configurations from the drawing into 3-dimensional space. Lastly, the 2.5D model is re-interpreted in AI software - Midjourney, to explore more variations and alternative images.

Part B - Proto plan

Re-composition Process

Exquisite Corpse Drawing

Continuely, Part B further develops arrangement of figures, shapes, edges and spaces that are suggestive of relationships. Along with the analysis with O.M. Ungers’ plan typology diagrams, the artifact is redrawn as a prototypical plan, based on analysis, indicating walls, columns, poche, space and organizational logic.

Part A - 2.5D Relief Drawing & Model
Choice of Toy Orthographic Drawing Drawing From Another Student* Yanqi Li
Articraft Analysis
2.5D Paper Relief Model
Midjourney Variations

As an extension of the plans from Part A & B, the final building is a programmatic and spatial hybrid for two different user groups - a childcare and spiritual center. The building is located at an imaginary urban site in urban Los Angleles, which is a flat ground with small hills strategically placed. The proto-building is designed within the 100ft by 100ft site boundary and 30 ft in height.

Yoga · Meditation · Water Tank
3D-printed Model

The Split House

Course: Tech Core Studio | UCLA AUD

Type: Individual Work

Instructor: Max Kuo

Software: Rhino, Enscape, PS

Time: Spring 2024, 10 weeks

This studio explores innovative housing solutions in Los Angeles, by examining the balance between private and public space to create affordable, community-focused designs that enhance social interaction and economic feasibility.

The design idea is to create a “split” effect, while the top level is extremely geometric, the bottom level is more organic. The sectional facade is cohesive from the outside, while the inside is porous and permeable.

Inital Townhouse Hybrid Diagram
South Elevation
Axomometrics

LA River Reservoir

Infrastructure & Landscape

Course: Building Design with Landscape | UCLA AUD

Type: Individual Work

Instructor: Jason Payne

Software: Rhino, Enscape, PS, AI

Time: Fall 2024, 10 weeks

This studio explores the intersection of architecture, landscape, and urbanism through a two-part process: first, by generating ordering systems from satellite imagery to create new spatial relationships, and second, by integrating these abstractions with site-specific and programmatic considerations in Los Angeles.

With the concept of water shortage, the architecture and plantation is arranged based on the landscape, indicating the water level change during the change of seasons.

Axonometric with Density
Original Site
Proposed New Ground Initial Plan & Analysis
Circulation & Zoning
Transverse Section
Longitudinal Section
Chunk Model

Turn static files into dynamic content formats.

Create a flipbook
Issuu converts static files into: digital portfolios, online yearbooks, online catalogs, digital photo albums and more. Sign up and create your flipbook.