
Portfolio
Ivan Price Selected Works 2025
![]()

Ivan Price Selected Works 2025
Oakville, ON | Ottawa, ON
IvanPrice@cmail.carleton.ca linkedin.com/in/price-ivan behance.net/ivanprice1
September 2022 - Present
2024
2023 - 2024
2023
2023
2022 - 2023
CAD / BIM
Visualization
Site Recording
Soft Skills
I am a third year Bachelor of Architecture student, focused on conservation, sustainability, and community-driven design. My academic experience includes applying sustainable design principles to projects, design work, and the adaptive reuse of heritage buildings. With strengths in collaboration, communication, and time management, I am passionate about integrating sustainability and cultural context into innovative designs that positively impact communities and the built environment.
Carleton University
Bachelor of Architecture, Conservation & Sustainability
Third year standing, 10.76/12 (A-) CGPA
Published in Building 22 Magazine, Edition 24
Deans’ Honour List
Nominated twice : Building 22 Magazine, Edition 23
Published in Building 22 Magazine, Edition 23
Deans’ Honour List
AutoCAD, Revit, Rhino, SketchUp
Adobe Suite, Cycles, D5, Office Suite, V-Ray
iTwin Capture, Photogrammetry, Total Station
Communication, Critical thinking, Organization, Problem solving, Teamwork, Time management
Page 04 Page 12 Page 20 Page 26
Vietnamese Community Center and Museum
Conservation Studio 2 | 2024
The intervention reimagines the River House as an all-season public community and learning center, preserving its historic character while supporting ongoing aquatic activities. The adaptive reuse honours the Ottawa New Edinburgh Canoe Club’s history, fosters education on the natural environment, and engages visitors in various workshops and activities.
The structure’s steel pile system has been carefully revealed and highlighted, while adaptive spaces support diverse community programs. Water access remains central through the addition of floating boardwalks and the implementation of a public wharf.
The project aims to create a dynamic, inclusive space where history, nature, and community converge to learn from and experience one another.


Many aspects of the intervention incorporate local wood, emphasizing the contrast between old and new, and the building’s connection to boating.










































1. Mezzanine cafe
2. Open to below


















1. Workshop room
2. Exhibition space
3. Storage room
4. Water closet
1. Climate change gallery
2. ONECC canoe club
3. Classroom
4. Changeroom
5. Loan pool
6. Staff room
7. Mechanical room



The central staircase is modeled after the harvesting of tree bark in traditional canoe making. It acts as a skin around the central elevator core and steps.
Acting as the central point of circulation, It helps in making an inviting public space, encouraging exploration and learning of the site.



Conservation Studio 1 | 2024
The goal of the project is to create a memorial space commemorating the Vietnamese Boat People that had fallen during the journey of finding freedom, as well as establishing a communal gathering space that will help foster a healthy and warm community.
Working as a team with CSV Architects, and Can Le with the Vietnamese Canadian Center, a culturally appropriate and respectful design follows the constraints of the project’s site and programming. Marking the beginning of Ottawa’s Chinatown on Somerset and Preston, the community center provides ample space for activities, including a library, theatre, and conference rooms. To provide extra income for the project, a coffee shop and bicycle rentals are added on the first floor. The upper floors hold apartments and a public rooftop.


Site restrictions and setbacks due to zoning ByLaws

Lower three levels reserved for the cultural center, with the upper three catering to residential use

Sloped curtain wall to represent the bow of boats used to cross the sea in the journey for freedom

Chamfered corner to match the Saigon Square Memorial across the street

Angular facade to “bow down” to the Saigon Square Memorial

Fragmented facade represents the separation of families and communities in the journey



Apartments above public space is a key character-defining element of Ottawa’s Chinatown that we include. The materiality echoes the brick buildings with wood storefronts throughout Ottawa’s Chinatown, another character-defining element of the community.
The names of refugees that did not make the journey across the sea are etched into the glass facade, with their names also reflected as shadows across the floor, representing the unaccounted-for deaths at sea.

1. Museum storage
2. Museum and exhibition space
1. Boardroom 2. Library 3. Conference room 4. Mixed use seating




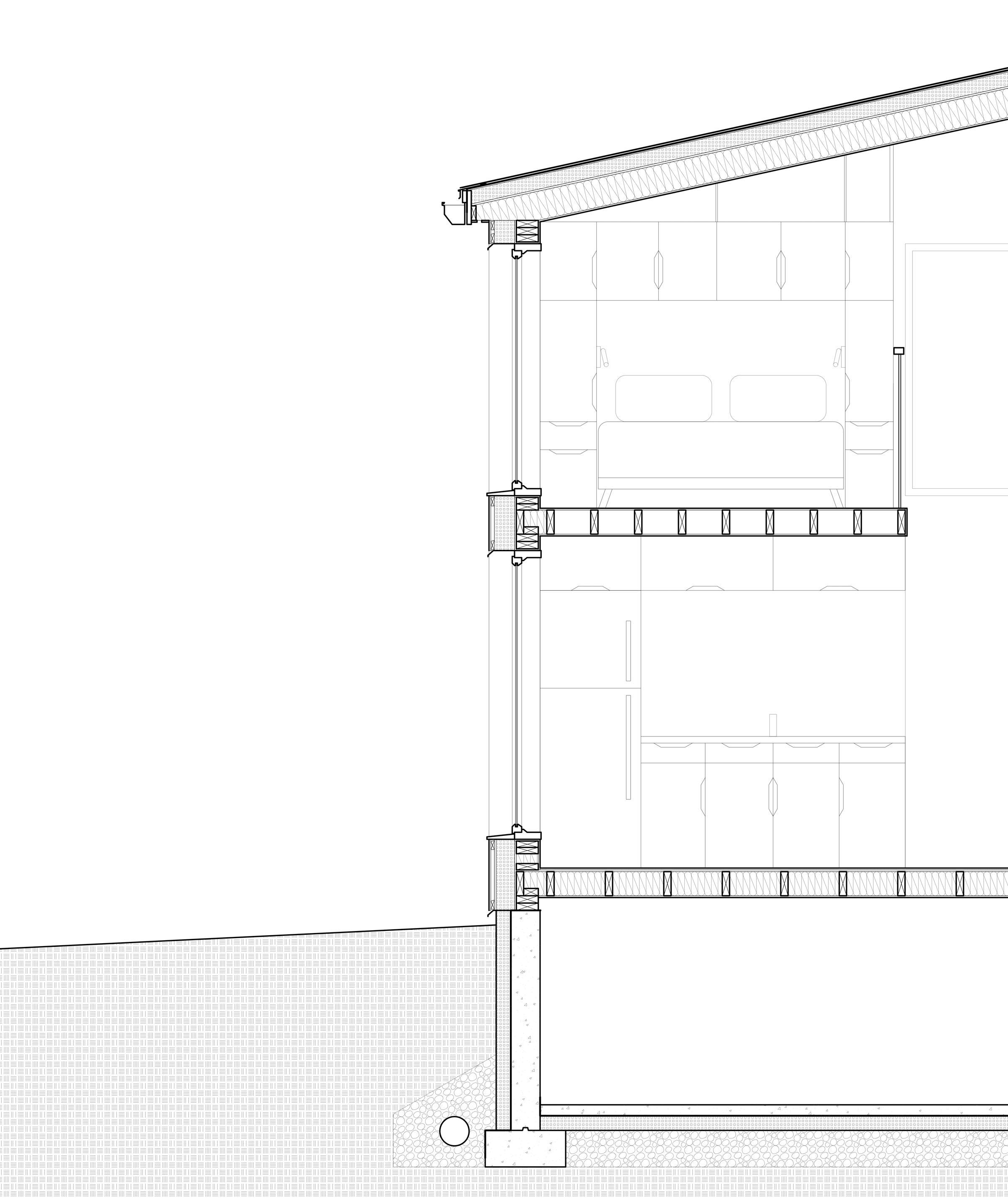
Architectural Technology | 2023
Working in teams of architecture and engineering students, we are tasked in creating a sustainable and affordable tiny house under 500 square feet, suitable for Ottawa’s harsh climate.
A modified saltbox roof is chosen, angled south to maximize energy captured by photovoltaic panels. The added interior volume opens the opportunity for a lofted space, minimizing the building’s footprint while opening the interior space. The open plan maximizes functionality, incorporating multi-use furniture and innovative storage solutions. The building uses locally sourced materials when possible, such as cedar siding and pine framing.
The project is adaptive depending on the budget, including the opportunity to use structurally insulated timber panels in the case of a larger development.






































Depending on budget, a horizontal ground loop for geothermal heating and cooling can be used. Otherwise, an electric heater can be installed instead.






































On-roof PV panels on south side of the roof. The building is still connected to the grid to avoid using a battery.













































Rainwater collection for garden irrigation.





Tile flooring to capture and distribute solar heat gain during winter.




















































1. R-60 roof
2. R-50 exterior walls
3. Triple-pane aluminum frame windows
4. Standing seam metal roof
5. On-roof photovoltaic panels
6. Aluminum rain gutter and rainwater collection system
7. Cedar rainscreen on furring strips
8. 8” rigid eps foam insulation
9. 2x6 pine wall studs with rockwool batt insulation 10. Concrate masonry wall
Concrete footing


Design Studio 1 | 2023
Tasked to create a space for a researcher to live in and educate the public about Dow’s Lake’s wildlife, the two spaces are separated using pathways integrating within the existing network. Local wood surrounds living spaces such as the researcher’s residence and frames the netted aviary itself, while concrete is used around public spaces to provide a solid space for learning.
The researcher’s study and classroom are connected, allowing knowledge to be shared easily. The netted aviary provides opportunities for handson education while supporting the rehabilitation of birds for release back to the wild. The researcher’s residence is a separate space which offers views of the lake and surrounding scenery. The Crossing Aviary’s layout and strategic placement allow for both public engagement and private living, creating a harmonious balance between the two.



Centering the building along the axis of Dow’s Lake Peninsula, using the path to divide public and private space

Shifting the axis of the residence to further differentiate and create privacy.

1. Researcher’s office and classroom
2. Bird aviary
3. Researcher’s living space and kitchen
4. Researcher’s bedroom

