Skip to main content

大三作品集

Page 1

PORTFOLIO

ITZU CHEN陳苡慈 2023-2024

ITZU CHEN

國立高雄大學建築學系115級在校生

目 錄

01 集/市場設計

02 憶 驛/遊客中心設計

03 巷陌書軒/CO-WORKING SPACE

04 癒鬱漫徑/實驗性社會住宅

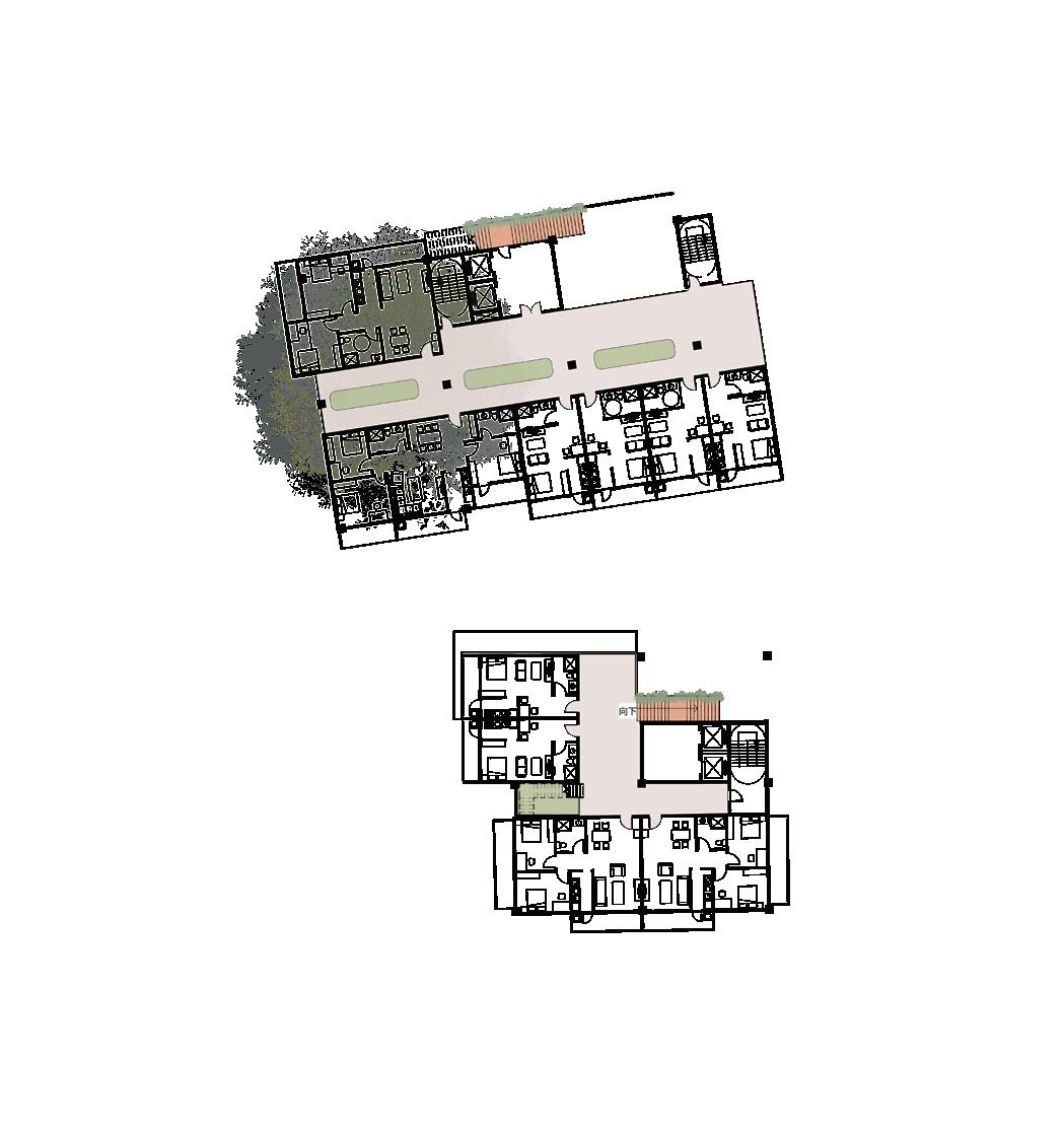
01 集 市場設計

基地位置:高雄市左營區左營大路、埤仔頭路之街廓

基地位於北高雄人通勤路線的左營大路上,有著舊左營濃厚的歷史背景的埤仔頭市場逐漸被拆除、遺忘,現存

的攤販搬遷至埤仔頭路上卻繁榮不再。而在舊左營散步地圖上雖居於左營舊聚落及左營眷村的交界帶,卻因落 沒而不再具有吸引散步遊客走入的力量。通勤的車輛因快速地通過而不會注意到埤仔頭路上的攤販們,早市營 業時間及下班時間也因交錯使其無法使用到這個市場。透過空間的設計,將在地居民、散步遊客、左營大路的 人潮匯聚,思考在不同時段相遇的可能。

SITE

設計概念

為了讓不同客群有機會重新走入埤仔頭市場,想像他們在不同時段相遇的可能,並透過三個廣場的設計, 分析人流來的方向,將他們聚集在喧囂的入口街角、熱鬧的中央廣場、愜意的居民後院,使其有更多交流 的可能。而各樓層之間也置入不同客群使用的機能,在兩個量體間置入水平的半開放的公共空間,並透過 挑空的設計,使不同樓層間也產生互動。

SITE PLAN

1F PLAN 1.舊城歷史藝廊 2.特色商店 3.戶外廣場 4.花圃 5.文創廊道 6.市場蔬果區 7.市場倉庫 8.市場生鮮魚肉區 9.居民交流廣場 10.廁所 11.梯廳 1 3 2 4 5 6 7 8 9 11 10

1.市場文創/雜物區 2.文創市集平台/用餐區 3.工作坊

4.市場美食街 5.廁所 6.梯廳

2F

PLAN 3F PLAN 4F PLAN
3.廁所 4.梯廳
1 3 2 4 5 6 1 3 2 4 5 6 7 8 9 10 1 3 2 4 5 6 7 8 9 11 10
1.社區工作坊 2.半戶外走廊 3.兒童圖書區 4.戶外陽台 5.鄰里活動中心 6.圖書館書架區 7.廁所 8.梯廳 9.社區儲藏室 10.圖書館儲藏室 1.演講廳準備室 2.演講廳
5.8人用辦公室 6.15人會議室 7.30人會議室 8.圖書館閱覽室 9.屋頂花園 10.圖書館書架區

WEST ELEVATION

SECTION SECTION

NORTH ELEVATION

CITY SECTION CITY SECTION
02 憶 驛 遊客中心設計

基地位置:台南市安平區林默娘公園南側

基地位於安平王城與億載金城之間的中央地帶以及安 平漁港往台南運河至府城的交界帶,而三個歷史文之 間的串聯略顯不足。而運河是通往府城文化的水路如 經成為觀光船的路線,結合基地位於的綠帶自行車路 線,置入水陸驛站與歷史文化展覽的機能,希望基地 能作為三個文化的一個節點。 自行車動線

SITE
交通 綠帶
周遭使用

設計概念

單車

兼具未來性及時代性的載具,於這個承接400年歷史的古都台南扮演著揭開下一篇章的引路人。

串聯大地,轉動日常。

順應地方紋理,從周邊系統出發,親近水岸,串聯台灣第一市鎮的兩大臨海碉堡。

以拉高自行車系統的方式凸顯自行車之於此地的重要性,並退讓出連續且有效的廣場空間,使活動猶然而生。

SITE PLAN

1. 遊客服務區 2. 美食攤販區 3. 半戶外廣場 4. 咖啡廳 5. 紀念品商店 6. 乘船服務區 7. 自行車停放租借處 8. 圖書館資料室

1F PLAN
1 2 3 4 5 6 8 7

1. 草皮斜坡

2. 上至二樓自行車坡道

3. 過渡空間(自行車臨時停放)

4. 展廳

5. 自行車道

6. 人行專用道

7. 小型展廳

8. 自行車服務處

9. 斜坡階梯候船區

10. 上至三樓自行車道

11. 教室/工坊

12. 半戶外閱讀區

13.下至一樓自行車道

3F PLAN 4F PLAN
2F PLAN
1. 視聽空間 2. 自行車停放休憩區 3. 觀景平台 4. 半戶外展覽空間 5. 大型展廳 6. 行政辦公室 7. 會議室 8. 陽台 1. 戶外觀景區 2. 餐廳室內用餐區 3. 餐廳倉庫 4. 戶外用餐區 1 3 2 4 5 6 7 8 9 12 11 13 10 1 2 3 5 4 6 7 8 1 2 3 4

WEST ELEVATION

SECTION SECTION

NORTH ELEVATION CITY

SECTION
03 巷陌書軒 複合式工作場域

基地位置 : 高雄市五福三路、五福三路124巷、市中一路之街廓

---巷弄間的小書鋪,簡單療癒的小故事

書店不僅僅是一個閱讀場所,更是一個文化交流的中

心,人們可以在這裡閱讀的同時交流想法、分享故 事,可以成為社區中的重要一部分,學生和幼兒可以

於課間走出校園,為周遭的人們帶來了更多文化享受 和交流的機會。

SITE
校園 巷弄 人流
人行空間

設計概念

在平面的配置上以雄女校園與河口/教堂、幼稚與住宅區做為連線軸線,形成主要 的街道,並以二期與雄女的軸線作為小巷尺度。並在高樓層的平面上,以彎折繚

繞的路徑穿梭在方盒之間,並透過挑空、階梯來串聯上下之間的方盒。

而在立面的設計則採用在基地周遭觀察到的元素,以巷道間的凹凸窗台為發想, 設計出高低不同的方盒有著對望和周遭道路互動的關係。

幼稚園 雄女 教堂 雄女 居民 二期 軸線 量體 剖面 平面

SITE PLAN

1F PLAN
4F PLAN 5F PLAN 7F PLAN

ELEVATION

SECTION

ELEVATION

CITY SECTION
04 癒鬱漫徑 實驗性社會住宅

SITE

CONCEPT

綠植/療癒空間

校園/商業 步行空間 人流 道路
基地位置 : 高雄市五福三路、五福三路124巷、市中一路之街廓 住宅單元

「在高樓裡,漫漫的穿梭在綠意之間,聊聊天、看看書、發個呆。」

在現代的高壓環境中,家成為了我們的壓力避風港。而在高樓層住宅中,我們往往侷限在屬於自己的小空 間裡。

在這次設計裡,我將綠意的療癒空間置入各層空間中,思考如何使回家的路徑、高樓層空間使人被療癒, 不再拖著沉重的步伐往返疲憊與休息之間。

實驗---以步行方式回到位於高樓層的家

在高樓層的生活模式中,人們往往是透過搭電梯的方式往返家中,在此次設計裡我透過將上書的療癒空間 與回家路徑的結合,使回家的路徑上增加了新的節點,使人在高樓層之間能產生不同的活動。

單元平面

SITE PLAN

2F PLAN
標準層平面圖
SECTION

Turn static files into dynamic content formats.

Create a flipbook
大三作品集 by 陳苡慈 - Issuu