
2022 Design Portfolio
![]()

2022 Design Portfolio

WATERLOO, ONTARIO University of Waterloo Projects
TORONTO, ONTARIO City of Toronto Projects
MARKHAM, ONTARIO City of Markham Projects
BOSTON, MASSACHUSETTS
Harvard University GSD Projects
CITY OF MARKHAM
CITY OF TORONTO
page 11-14
HESPELER page 15-18
COMMONS page 19-21 (selected work) (selected work)
page 1-10 SEOUL MUSEUM page 22-24 page 25-28
Professional • Group Project • 01 2020 to Present
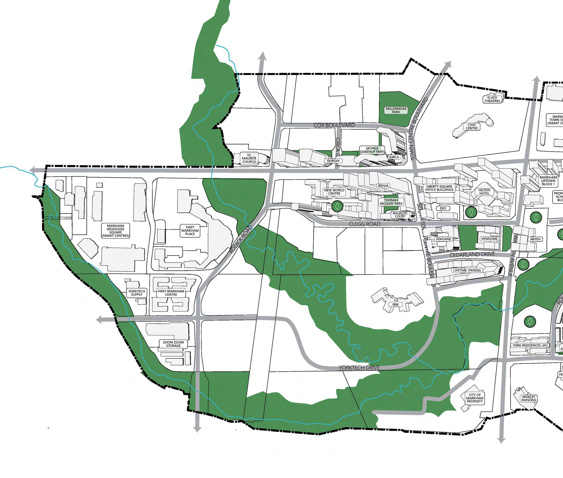
My role as a Planner I involves creating detailed illustrations to analyze current constraints and future developments in Markham’s downtown area, also known as Markham Centre or the Markham Centre Secondary Plan update.
Role: Planner I, Urban Design at the City of Markham, Urban Design Group *shown are selected work I completed on my own as part of a larger team.


residential
2,018,273 m2
6,449 existing units
28,189 proposed units


open space
200 acres of open space
83 acres of parkland

amenities
1,145,804 m2 retail space
2,957,142 m2 office space
1,234,770 m2 civic space


LAND USE STUDY




MASSING STUDY

DEVELOPMENT BLOCKS STUDY




I have completed several parkland reconciliation exercises to better understand the current status of how much parkland is conveyed to the city, which has been extracted from development agreements. As shown, the top diagram is part of the Times Group lands, whereas the bottom diagram is part of the Remington lands.







The Cathedral Town Parkland was a similar exercise to the Remington & Times, to better understand how much parkland was conveyed to the city, versus how much was required.




The Angus Glen parkland reconciliation was another exercise I have done in the past for my team to better understand how much parkland was required as per the development agreement verses how much was provided.

I was also responsible in making graphics for the City’s Urban Design Guidelines. Below are examples of a few that I have done using Google 3D Sketch-up and Adobe Illustrator.






Various massing models of proposed developments within the Markham Centre & Mount Joy Secondary Plan, to be populated into the City’s 3D model database.





















Role: Technical Trainee at the City of Toronto, Infrastructure Planning Department
*although this was a group project, shown are selected work I completed on my own as part of a larger team.
Professional • Group Project • Semester-Long (05-08.2018)
Broadview Underpass is an active transportation-related infrastructure project taken by the City of Toronto. The project potentially widens the current road to reduce traffic congestion in the area, which makes room for the future LRT trackbed.
My role was to create several cross-sections to illustrate this expansion used for both internal and external use.
The purpose of this project is to prioritize road network identified in the Port Lands Transportation and Servicing Master Plan (TSMP) Environmental Assessment (EA) and undertake a Phase Three and Phase Four Schedule “C” Municipal Class.
My role was to prepare and design maps (shown below) to illustrate this configuration, and see whether the TSMP fulfills Phases 1 and 2 of the Municipal Class EA process in the RFP for client and staff use.



I have designed and manipulated maps requested by Infrastructure Planning (IP) project managers for various active infrastructure projects in the Toronto region. Listed below are a few examples of my work.
PORT UNION SITE PLAN




Academic • Group Project • Semester-Long (01-04.2018)
Hespeler is a proposed redevelopment project to revitalize and intensify the existing neighboring area of the Cambridge Centre Station. The project promotes greater job opportunities, economic growth, and employment for people.
Role: Urban Design Student at the University of Waterloo in Waterloo, Ontario *although this was a group project, shown are selected work I completed on my own as part of a 5-person team.


PROGRAMMATIC DISTRIBUTION: Hespeler will cater to the implementation of different activity hubs for young adults looking to live, play, and work in the same area. Other factors that were considered include affordable housing geared towards a lower-income population, schools that will invite more families to the area, and newly built seniors’ recreational facilities.
total commercial area: 790,326 m2
#ofjobscreated:12,374

residential
554,143 m2
9638 total # units amenities
567,381 m2 retail space
128,913 m2 office space
94,032 m2 education space
employment
80 m2/1 retail job, 7,092 jobs
30 m2/1 office job, 4,297 jobs
65 m2/1 edu. job, 985 jobs



Scale: 1:2000

Role: Urban Design Student at the University of Waterloo in Waterloo, Ontario *although this was a group project, shown are selected work I completed on my own as part of a 5-person team.
Riverside Common seeks to complement the character of Elora’s existing community through the preservation of its architectural, cultural, and significant heritage features. The intent of the project has three primary objectives: (1) To improve the connectivity of the community across multiple modes by establishing active street and trail linkage; (2) To make the community more accessible and pedestrianfriendly by encouraging built form and streetscaping that is oriented towards the pedestrian realm; and, (3) To increase its economic vitality with intensified mixed-use and commercial space.






The Elora Market will be a new addition to the community, providing fresh and healthy produce for users living in Elora.





The purpose of this museum is to incorporate a “continuous” circulation flow from the main lobby to the patio, and down to the basement with three available entrances. This will optimize user experience from café / shop crawls to temporary and permanent art and understanding the history and origin of the museum on the education floor.

the detailed section cut

PROGRAMMATIC DISTRIBUTIONS


3F FLOOR LEVEL (PATIO) is an outdoor patio that contains a coffee shop, museum shop and a public garden for users to enjoy.

2F FLOOR LEVEL contains the director’s office, curators’ office, and both permanent and temporary exhibition space.

1F FLOOR LEVEL contains the main lobby, small storage space, restrooms, a coffee shop, museum shop, and a temporary exhibition space.

B1 FLOOR LEVEL contains a library, two seminar rooms, a lecture hall, storage room, mechanical & electrical room, and additional temporary exhibition space. Users can access the parking lot through this floor.

Academic • Individual Project • 2-Week Long (07.2019)



PROGRAMMATIC DISTRIBUTIONS The public food market comprises a large multi-purpose hall with permanent and temporary vendor stalls that are located both indoors and outdoors.
Role: Architecture Student at the Harvard Graduate School of Design in Cambridge, Massachusetts
*as this was an individual project, shown are selected work I completed on my own.
Quoting Farshid Moussavi in TheFunctionofForm, “form and function are co-constituted and deeply co-dependent”. By this, one cannot proceed the other; nor can we conceive of one without the other. In order to depict this mutual dependency of form and function, I aggregated two selfsimilar structural bays elements to construct a single, yet complex public food market, known as the Pavilion.
the “courtyard”


Illustrated is the structural system of the module on site. The plan accommodates factors such as spatial sequence, site strategy, and adjacencies.
June 2019 • Harvard University, USA • Academic Project
“Through an endless rotation, the path breaks into two distinctive dimensions.” The purpose is to incorporate the theme of rotation and contraction versus compression. In Phase 1, the idea of the shapes transforming from an irregular shape to a circle derives from the incorporation of specific elements and forms using spatial techniques. There is a connection of shapes through the usage of wooden sticks and topography. The shapes and wooden sticks play an active role in illustrating distinctive themes set for the next phase.
In order to showcase two different living spaces within one environment, a mix of foam, clear plastic wrap and cotton were used to illustrate the theme of contraction versus compression for the balloon in response to the materials used for the stairs.

Role: Architecture Student at the Harvard Graduate School of Design in Cambridge, Massachusetts
*as this was an individual project, shown are selected work I completed on my own.




In Phase 3, the iteration is to incorporate two living dimensions in one environment. The rotational stairs and balloon element is inspired by the wooden sticks used in the previous stage, which integrates the act of compression versus contraction. Users can optimize their experience in two types of living spaces within the same environment.






Role: Urban Design Student at the University of Waterloo in Waterloo, Ontario
*although this was a group project, shown are selected work I completed on my own as part of a 6-person team.
Urban Cubed is a proposed redevelopment project for the old Blackberry Campus located in Waterloo, Ontario. The purpose of the design is to connect office workers to a digital space. Urban Cubed is a technology hub that engages social development, provides seasonal entertainment, and builds an easy connection of bridges to expand the public realm for people to shop, eat, and relax. The project will introduce the use of solar panels to operate smart devices such as luminescent street lights and adult playscapes.

Academic • Individual Project • Semester-Long 09-12.2015
Role: Urban Design Student at the University of Waterloo in Waterloo, Ontario
*as this was an individual project, shown are selected work I completed on my own.

Eastmount Passeggiata is a three-story mixed-use commercial building that revitalizes a small commercialized area in Waterloo, Ontario. The design was influenced by architectural structures from Venice, Italy, with a blend of modernity. The building consists of a ground-level with 17 condominium units (size of 93m2); along with a second and third floor level of 6 condominium units (size of 112 m2 each). In total, 47 parking spots surround the entire southeast of the site.



Academic • Individual Project • 1-Week Long (06.2019)
Role: Architecture Student at the Harvard Graduate School of Design in Cambridge, Massachusetts
*as this was an individual project, shown are selected work I completed on my own.
The purpose of this project was to illustrate a site plan, section and elevation cut for an object, which in this case a “lipstick” at three different scales of 10”x10”, 5”x5” and 1”x1”. I incorporated the theme of “balance” to showcase how the lipstick could sit on an angle of a stacked cardboard box cover.
Through this project, I have incorporated different line weights to differentiate the cardboard boxes being stacked on top of another. I have also played with cutting specific sections to showcase that the lipstick is balancing at an angle, which will be shown in the 5”x5” elevation cut and the 1”x1” section cut diagram on the next page

The last part of the project was to overlay three diagrams from the previous phase to create something new. In particular, I have incorporated the 10”x10” site plan, 5”x5” section plan, and the 1”x1” site plan into this phase because of the available geometry that I could play with.
The first abstract drawing illustrates an interior plan of a museum with different sections and dividers, whereas, the other two demonstrates a layout of buildings in an exterior setting.




ABSTRACT 3




March 2012
• Mediums Used: Watercolours & Rock Salt
Role: Freelance, personal work completed in 2013
*as this was a personal project, shown are selected work I completed during my free time. I have played with different shading and contouring techniques with the use of varied mediums and have taken inspiration from others to craft a model of my own.


February 2012 • Mediums Used: HB & 4B Pencil
