Skip to main content

Moos overzicht

Page 1


Onze missie: Op een verantwoorde manier het woningtekort oplossen, een fijn thuis voor iedereen!

Wij zijn Moos. We werken aan een wereld waarin iedereen een fijn thuis heeft. Als het aan Moos ligt, lossen we in één klap het woningtekort én de klimaatuitdaging op. De oplossing is er al. Met onze systemische manier van bouwen en focus op waarde creëren we duurzame woningen waarmee we de status quo uitdagen. Onze woningen zijn voor iedereen anders. Maar altijd een veilige plek waarin je je thuis voelt. Of we nu voor families, stellen of individuen bouwen. Onze duurzame ambities zijn torenhoog. Dus is ons bouwsysteem volledig demontabel – of je huis er nu voor 50 of 5 jaar staat. Als je basis goed is, sta je steviger in het leven, vindt Moos. Zo geven we iedereen niet alleen een dak boven het hoofd, maar een thuis midden in de gemeenschap. Een radicaal ander woonsysteem creëer je trouwens niet alleen. Moos bestaat uit een onafhankelijk partnerteam van innovatieve experts. Samen vertegenwoordigen we verschillende disciplines en één doel: op een verantwoorde manier het woningtekort oplossen. Een fijn thuis voor iedereen. En het rotsvaste geloof dat het kán.

Groet,

Projecten hebben een doorlooptijd van minder dan een jaar

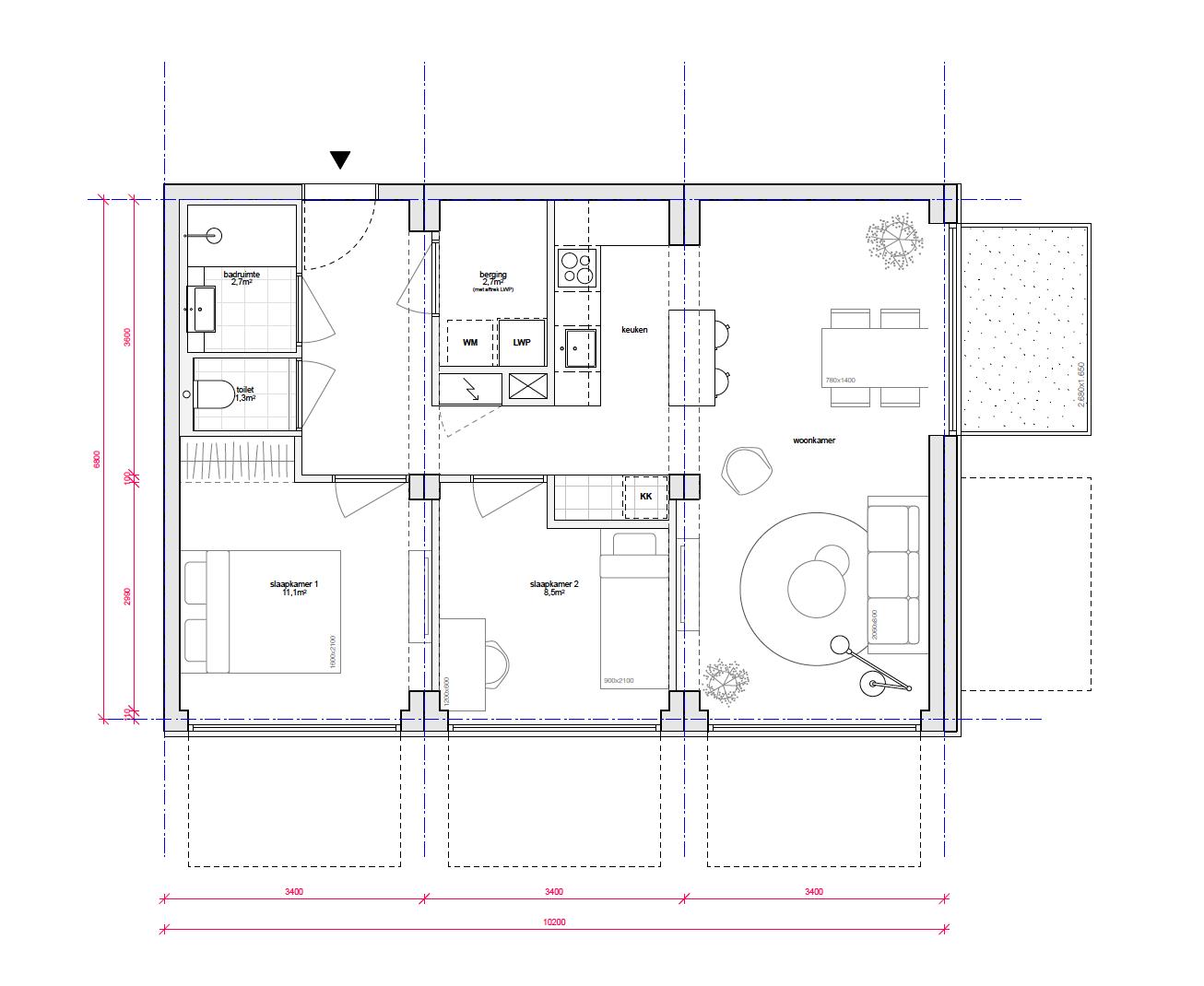
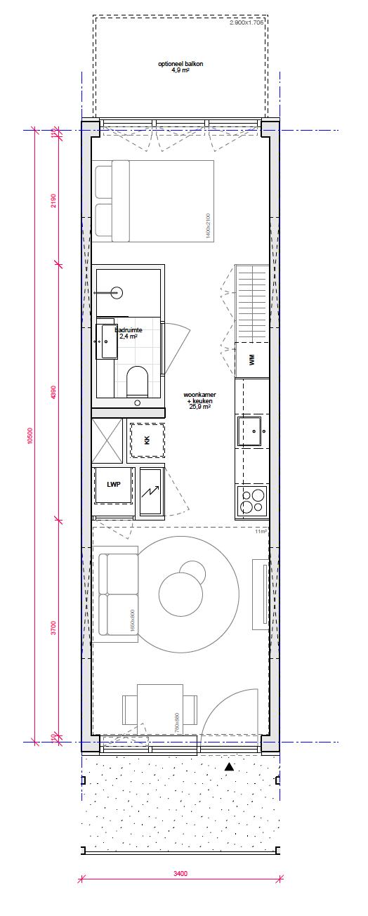
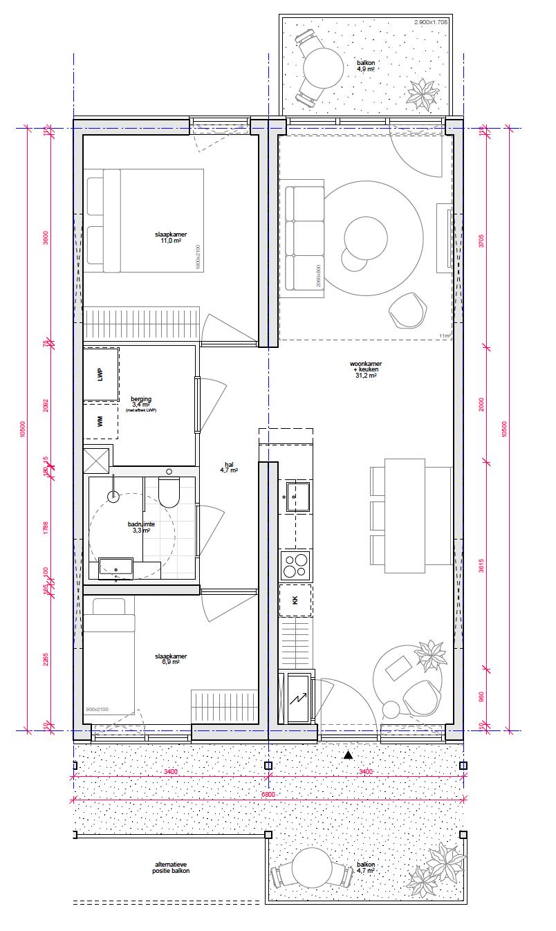
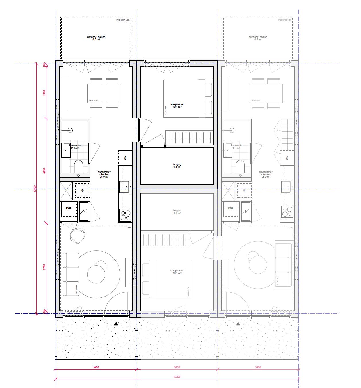
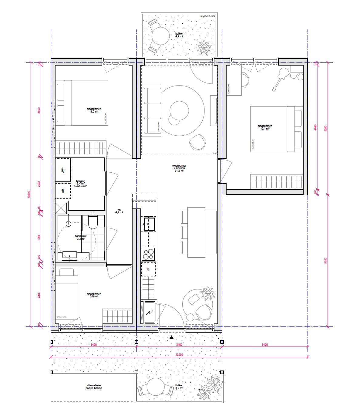
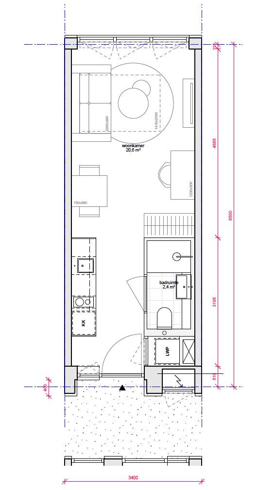
Eén modulair systeem met een oneindige variatie aan indelingen en afmetingen. Ons bouwsysteem is volledig demontabel - of je huis er nu voor 50 of 5 jaar staat. De modules zijn opgebouwd uit circulair betonne vloeren en CLT wanden. Met seriematige elementen realiseren we verschillende plattegronden varierend van 24 tot 100 m2 Het bouwsysteem beschouwen we als een ‘tijdelijke opslaglocatie’ voor terugwinbare, waardevaste modules en materialen. Moos ziet de wereld in een steeds sneller tempo veranderen en gelooft dat gebouwen daarin mee moeten kunnen veranderen. De Moos-woningen voldoen ruimschoots aan de kwaliteitsnormen van permanente bouwbesluit. En mocht het nodig zijn, vanwege onze ambities voor duurzaamheid leent het systeem zich uitstekend om de woningen in dezelfde of juist een andere configuratie te verplaatsen en eventueel van een andere uitstraling te voorzien.

Our house

Ons bouwsysteem is volledig demontabel - of je huis er nu voor 50 of 5 jaar staat. De oplossing van Moos: een bouwsysteem voor mensen met focus op waarde. TO-juli

(Leef) galerijen en balkons 8 met een gevel naar keuze die passend is binnen de stedenbouwkundige kaders.

Proof Terugnamegarantie Moos voldoet aan het Convenant Houtbouw

Stijgpunten zijn verwerkt in modules 5 Van grondgebonden

Eén modulair systeem met een oneindige variatie aan indelingen en afmetingen.

1. De veranda woning (tot en met 8 verdiepingen)

XXS

BVO: 29,8 m2

GO: 25,1 m2

PMC: 6 & 11

BVO: 74,5 m2

GO: 63,3 m2

2.

XS

BVO: 37,2 m2

GO: 31,3 m2

PMC: 6 & 12

PMC: 7 & 14 L

BVO: 93,1 m2

GO: 78,4 m2

S

BVO: 55,9 m2

GO: 46,4 m2

PMC: 6, 12 & 13

PMC: 8 XL

BVO: 111,7 m2

GO: 95,6 m2

PMC: 9

De toren en de corridor (tot en met 18 verdiepingen)

S (recht)

BVO: 47,8 m2

GO: 44,0 m2

PMC: 6 & 12

M (recht)

BVO: 71,7 m2

GO: 65,2 m2

PMC: 7 & 14

M (versprongen)

BVO: 73,4 m2

GO: 65,9 m2

PMC: 7 & 14

Our Crowd

Een fijn thuis voor iedereen!

Mensen hebben verschillende manieren om van hun huis een fijn thuis te maken. De plattegronden van Moos bieden letterlijk ruimte voor persoonlijke invulling.

We maken meer dan huizen. We leggen de basis voor een gemeenschap. Met variabele, comfortabele huurwoningen voor jong en oud. Waar mensen wonen op hun eigen manier. En waar ruimte is voor samenkomen, samenwerken of een buurtfeest op het binnenplein.

Na de oplevering stopt het voor ons niet. We vinden het belangrijk dat een buurt vanaf de start kan groeien, samen met de mensen die er wonen. Daarom organiseren we na de oplevering een buurtfeestje. Een ontspannen moment waar bewoners elkaar leren kennen, kinderen samen spelen en de eerste herinneringen in de nieuwe straat worden gemaakt. Zo begint het wonen niet alleen in een nieuw huis, maar meteen in een warme, betrokken buurt.

Bewoner Semih Appelweg
Bewoner Patricia & kids Euterpe
Bewoner Emma Appelweg
Bewoner Olga Euterpe
Bewoner Fareed Appelweg
Bewoner Margo (Maggie) Euterpe
Bewoner Kendra Appelweg
Bewoner Kalkbranderij

Our Street

Our Family

Een radicaal ander woonsysteem creëer je niet alleen. We hebben een onafhankelijk partnerteam van innovatieve experts. Niks top-down structuur, maar allemaal even verantwoordelijk voor het eindresultaat. Samen vertegenwoordigen we verschillende disciplines en één doel: op een verantwoorde manier het woningtekort oplossen.

Essentieel in onze samenwerking is het streven naar ontwerpen op waardecreatie in plaats van sturen op kostenreductie. Innovatie, kwaliteit en circulariteit zijn hiermee de weg naar kostenbesparingen en schaalbaarheid.

Wij geloven niet in centrale fabrieken. Onze partners produceren de halffabricaten in hun eigen gevestigde fabrieken, waarna Moos samen met hen in één dag een complete woning assembleert in de Moos-assemblagelijn. De partners dragen verantwoordelijkheid voor de tijdige en zorgvuldige montage en oplevering van hun element. Gemakkelijk opschaalbaar én maximale benutting van bestaande productiecapaciteit.

En bijna belangrijker: Our family blijft betrokken bij de gebruiksfase en de hergebruiksfase. Dit doen we door de inzet van materialen met concrete hergebruik-opties en het toezeggen van terugnamegaranties.

Samen sterker: Our family heeft samen >500 jaar bouwervaring

Turn static files into dynamic content formats.

Create a flipbook