ITISHA NAYAK PORTFOLIO

Page 1

I T I S H A N A Y A K

ARCHITECTURAL

TECHNOLOGIES

PORFOLIO

ITISHA NAYAK

ARCHITECTURAL TECHNOLOGIST

ABOUT

Hello, i am Itisha Nayak, Recent Architectural Technologist graduated from Southern Alberta Institute of Technology. Passionateabouttheintersectionofdesign and technology, I'm eagerly stepping into therealmofarchitecturaltechnologyasan aspiringarchitecturaltechnologist.

Throughoutmyacademicjourney,I'vediscoveredaprofoundenjoymentintheintricacies of architectural design and its technical implementation. I find joy in continually expandingmyknowledgeandskillset,embodyingarelentlesspursuitoflearning.

Known for my punctuality, collaborative spirit, and keen attention to detail, I thrive in environments where teamwork and precision are paramount. With a penchant for swift adaptation and a hunger for innovation, I am poised to contribute effectively to the dynamicworldofarchitecturaltechnology.

EDUCATION

Southern

Alberta Institute Of Technologies (September 2022-April2024)

ArchitecturalTechnologies(Diploma)

strongskillsinnavigatingbuildingcodes,bylaws,andregulations effectively.

advancedskillsinbuildingscienceandsystems strongtechnicalskills

Iexcelatcreatingpreciseanddetailedtechnicalarchitecturaldrawings throughproficientdraftingskills.

advancedskillsinRevit,AutoCAD,Photoshop,andseveralotherrendering toolsforarchitecturaldesign.

Knowledgeofsustainabledesignprinciples.

Familiaritywithprojectmanagementconceptsincludingschedulingand budgeting.

Communicationandteamworkskillsforcollaboratingwitharchitects, engineers,andconstructionprofessionals.

Problem-solvingskillsforaddressingdesignchallengesandmeeting projectrequirements.

Skillsintechnicalcommunication,mathematics,andstatistics,essential foreffectivelycommunicatingdesignconcepts,analyzingbuilding performance,andmakinginformeddesigndecisions.

TheShoppersDrugMart,Calgary(August2023–Present)

·Provide exceptional customer service by serving as a cashier and offering personalized consultationsonbeautyproducts,skincareroutines,andmakeupapplicationtechniques.

·Utilize in-depth knowledge of skincare and beauty products to recommend suitable productsbasedoncustomerpreferences,allergies,anddietaryconsiderations.

·Maintain a high level of professionalism, product presentation, and adherence to company policies and standards, contributing to a positive shopping experience for customers. TeamMember

TimHortons,CenterStreet,Calgary(November2022–August2023)

·Collaboratedwithteammemberstoachievedailygoals,maintaincleanliness anduphold TimHortons'reputationforexcellenceinserviceandquality.

·Demonstratedstrongleadershipandresponsibilitybysuccessfullymanagingopeningand closingdutiesfortherestaurantandkitchen,ensuringsmoothoperationsduringallshifts

587-893-8664 itishanayak15042@gmail com

com/in/itisha-nayak-398123251

CONTACT
linkedin
Phone Message linkedIn SOFTWARE SKILL REVIT AUTOCAD SKETCHUP LUMION
CANADIANWORKEXPERIENCE
BeautySpecialist
ADOBE PHOTOSHOP SKETBOOK
01 CAPSTON PROJECT 02 OFFICE BUILDING PROJECT 03 MIXED USE PROJECT INDEX

01 Multi-Use Residential Building in Marda Loop Community

Description:

This capstone project introduces a multi-use residential building strategically positioned at the heart of the Marda Loop community. Zoned under MU-2 F3.0H23 Mixed Use, the building seamlessly integrates commercial and residential spaces to cater to diverse lifestyle needs.

The ground floor features commercial units, providing a vibrant hub for businesses while enhancing the neighborhood's retail environment.

Above, levels 2 to 4 comprise modern studio apartments, offering residents urban convenience and comfort in a prime location.

Key design elements include a green roof system for sustainability, a mezzanine commercial unit for added functionality, and an outdoor amenity terrace space to encourage community interaction and relaxation. The project embodies a vision for contemporary urban living, blending functionality, sustainability, and community-centric design principles within the dynamic fabric of Marda Loop.

Terrace

2101 33 Ave SW Calgary, AB T2T 1Z7 Parking
Mazzanine
ZONING:MU-2F3.0H23MixedUse
UP DN DN UP UP DN UP P1 P3 P4 P7 P8 P9 PC PD PE PF PG PH PI PK PB PJ P5 P2 P6 4% RETAIL SPACE RETAIL SPACE RETAIL SPACE RETAIL SPACE RETAIL SPACE RETAIL SPACE RETAIL SPACE VESTIBULE LOBBY ELEVATOR ENMAX VAULT COMMERCIAL SHAFT RESIDENTIAL GARBAGE STAIRS RAMP DOWN TO THE PARKADE MEZZANINE ABOVE 1 8 % 7675 2624 P1 W2 W1 W1 W1 P1 P1 P1 P1 P7 W2 W1 P1 P7 P6 W2 P7 P1 P1 P1 W2 W1 P1 P7 P1 W10 W2 3809250 1299 5873398392161448126271891184628489722 W2 1016 476 500 67587994 21089 D1 D1 D1 D1 D1 D1 D2 D2 D2 D2 D2 D2 D1 D1 D1 D3 D3 W1 W2 W3 W5 W6 W7 W8 W9 W10 W11 W12 W13 W14 EXIT DOOR EXIT DOOR EXIT DOOR 607112859 383612803 26955100886929054112656794754573 2694731901821315355 488467517149725172516549870065037352 10844487120056872897 860910161822101512391899375010166563323812971016898 41016505258310166081016 4508300011966 292312611192334831004392120031921980504712007563450 1000506112003861100040941200716912254800 169751591200200012353741512007423 1 : 100 COMMERCIAL FLOOR 1
REF. DWREF. DWREF. DW REF. DW REF. DW REF. REF.DW DW REF. DN DN DN A3.02 C-A C-1 C-3 C-6 C-7 C-8 C-C C-B C-F C-H C-I C-K C-L C-M C-2 C-4 C-G C-10 C-5 C-D C-E 1 A3.01 A0.03 1 A3.03 C-944.94 m² LIVING ROOM 6.60 m² BALCONY 13.99 m² MS BEDROOM 13.34 m² MS BEDROOM 4.04 m² MS WASH RM 2.20 m² PWDR RM 20.92 m² LIVING ROOM 11.00 m² KITCHEN 3.04 m² wlc 31.35 m² LIVING ROOM 3.30 m² WASH ROOM 10.30 m² BEDROOM 0.76 m² CLOSET 7.12 m² BALCONY 19.12 m² KITCHEN 45.71 m² LIVING ROOM 17.84 m² MS BEDROOM 1.00 m² CLOSET 4.74 m² MS WASH RM 2.48 m² PWDR RM 13.49 m² KITCHEN 42.34 m² LIVING ROOM 2.77 m² PWDR RM 4.53 m² MS WASH RM 2.57 m² PWDR RM 15.75 m² KITCHEN 4.93 m² MS WASH RM 0.90 m² CLOSET 14.68 m² MS BEDROOM 1.20 m² CLOSET 3.56 m² MS WASH RM 2.52 m² PWDR RM 0.41 m² WD 0.84 m² CLOSET 13.44 m² KITCHEN 0.80 m² CLOSET 0.39 m² WD 2.63 m² PWDR RM 4.49 m² MS WASH RM 12.66 m² KITCHEN 33.09 m² LIVING ROOM 2.21 m² PWDR RM 4.86 m² MS WASH RM 0.66 m² CLOSET DINING 3.63 m² MECH. SHAFT 1.37 m² CLOSET 0.50 m² WD 0.92 m² CLOSET 0.45 m² WD 39.93 m² LIVING ROOM 12.33 m² KITCHEN 4.15 m² MS WASH RM 19.19 m² MS BEDROOM 17.56 m² MS BEDROOM 0.55 m² CLOSET 0.64 m² CLOSET 4.38 m² MS WASH RM 3.16 m² PWDR RM 9.79 m² KITCHEN 26.26 m² LIVING ROOM 1.29 m² CLOSET 0.55 m² WD 12.21 m² BEDROOM 1.23 m² CLOSET 1.72 m² PWDR RM 12.30 m² BEDROOM 9.37 m² MS BEDROOM 0.62 m² CLOSET 4.29 m² MS WASH RM 2.67 m² PWDR RM 0.95 m² CLOSET 8.50 m² MS BEDROOM 2.27 m² CLOSET 3.50 m² Room 5.68 m² BEDROOM 14.50 m² KITCHEN 25.87 m² LIVING ROOM 0.61 m² WD 1.76 m² CLOSET 1.64 m² PWDR RM 2.82 m² MS WASH RM 1.51 m² WLC 7.32 m² MS BEDROOM 6.95 m² BEDROOM 2.61 m² wlc 45796829593068706987432866297114494068564541 346627007 18030 15.27 m² KITCHEN 7.25 m² BALCONY 33.47 m² LIVING ROOM 5.10 m² MS WASH RM 20.87 m² MS BEDROOM 2.34 m² GARBAGE ROOM 4.93 m² KITCHEN 0.42 m² WD 1.01 m² CLOSET 11.56 m² KITCHEN 6.23 m² BALCONY 11.75 m² BALCONY 17.70 m² MS BEDROOM 0.62 m² WD 4.59 m² MS WASH RM 15.47 m² BEDROOM 6.64 m² KITCHEN 32.75 m² LIVING ROOM 6.83 m² BALCONY 17.69 m² MS BEDROOM 0.90 m² CLOSET 4.97 m² BALCONY 13.64 m² MS BEDROOM 1.00 m² CLOSET 1.12 m² CLOSET 6.30 m² BALCONY 6.51 m² BALCONY 16.42 m² MS BEDROOM 7.51 m² BALCONY 0.41 m² WD 0.48 m² WD 1.38 m² CLOSET 1.61 m² CLOSET 14.46 m² MS BEDROOM 1.03 m² CLOSET 6.59 m² BALCONY 0.51 m² WD 0.88 m² CLOSET 10.04 m² KITCHEN 0.46 m² WD 6.24 m² MS WASH RM 9.56 m² KITCHEN 1.60 m² CLOSET 1.51 m² PWDR RM 2.98 m² MS WASH RM 0.75 m² CLOSET 13.00 m² MS BEDROOM 5.87 m² BALCONY 6.57 m² KITCHEN 0.74 m² CLOSET 0.63 m² WD 6.48 m² BALCONY 11.33 m² BEDROOM 2.40 m² PWDR RM 4.01 m² MS WASH RM 19.95 m² MS BEDROOM 20.27 m² MS BEDROOM 3.97 m² MS WASH RM 11.98 m² BALCONY 2.68 m² PWDR RM 11.93 m² KITCHEN 51.61 m² LIVING ROOM 0.60 m² WD 8.96 m² KITCHEN 47.61 m² LIVING ROOM 1.09 m² CLOSET 0.71 m² WD 27.98 m² LIVING ROOM 23.79 m² LIVING ROOM 28.84 m² LIVING ROOM 1.67 m² CLOSET 57781798182834881750180665136932162348766454 2435215140581784260626048332372 83728423382013155079 3019 148212651661166456093700 1268820066524 697841862292 74143900122173923 North 48964261611227627257626473974363 P2 P2 P2 P2 P4 P3 P3 P3 P4 W5 W6 W5 W4 W4 P3 P2 P3 P7 P3 P4 W4 W6 W6 W4 W6 P3 P3 P3 P3 P4 P3 P3 P3 W6 W5 W6 W4 W6 W5 W6 W5 W6 W5 W7 W5 P7 P6 P7 P2 P3 W6 W6 W4 W6 W5 W4 W6 W4 W4 P3 P3 P3 P3 P4 P3 P3 P2 P4 W4 W4 P4 P3 W4 W4 W6 W6 W5 W4 W4 P3 P4 P3 P2 W6 W4 W6 W4 W4 W6 W4 W4 W6 W5 W6 W4 P4 P3 P3 P2 P4 P2 P2 P4 P3 W4 W4 P3 P3 P4 P3 P3 P3 W4 W6 W4 W4 W4 W4 W5 W6 W5 W6 P4 P3 P3 P3 P3 P7 P6 P7 W5 W5 W7 W6 W6 P3 P7 P2 P3 P4 P3 W7 W4 W4 W5 W6 W6 W5 W4 W4 W4 W6 W4 W6 W5 P3 P3 P3 P3 P3 P2 P4 P3 101 101 101 101 102 101 101 101 D15 101 24 W7 101 101 101 101 101 101 101 101 101 101 101 101 101 W6 W6 W5 W4 P4 P3 P4 P3 P4 D15 D12 D9 D9 D7 D14 D10 D7 D10 D10 D15 D9 D9 D9 1 : 100 RESIDENTIAL FLOOR 1
Level 1 1105.56 LEVEL 2 1111.56 LEVEL 3 1114.56 LEVEL 4 1117.56 Level 5 1120.56 U/S GREEN ROOF 1123.56 T.O. PARAPET 1124.96 C-A C-C C-B C-F C-H C-I C-K C-L C-M C-G C-D C-E Level 1 1105.56 LEVEL 2 1111.56 LEVEL 3 1114.56 LEVEL 4 1117.56 Level 5 1120.56 U/S GREEN ROOF 1123.56 T.O. PARAPET 1124.96 C-A C-C C-B C-F C-H C-I C-K C-L C-M C-G C-D C-E Level 1 1105.56 LEVEL 2 1111.56 LEVEL 3 1114.56 LEVEL 4 1117.56 Level 5 1120.56 U/S GREEN ROOF 1123.56 T.O. PARAPET 1124.96 C-1 C-3 C-6 C-7 C-8 C-2 C-4 C-10 C-5 C-9 Level 1 1105.56 LEVEL 2 1111.56 LEVEL 3 1114.56 LEVEL 4 1117.56 Level 5 1120.56 U/S GREEN ROOF 1123.56 T.O. PARAPET 1124.96 C-1 C-3 C-6 C-7 C-8 C-2 C-4 C-10 C-5 C-9 Level 1 1105.56 LEVEL 2 1111.56 LEVEL 3 1114.56 LEVEL 4 1117.56 Level 5 1120.56 U/S GREEN ROOF 1123.56 P1 1102.56 P2 1099.96 T.O. PARAPET 1124.96 C-A C-C C-B C-F C-H C-I C-K C-L C-M C-G C-D C-E A3.03 LEVEL 7 1126.85 Level 1 1105.56 LEVEL 3 1114.56 U/S GREEN ROOF 1123.56 T.O. PARAPET 1124.96 C-1 3 Z4 1 Z4 GR R1 W8Level 1 1105.56 LEVEL 2 1111.56 LEVEL 3 1114.56 U/S GREEN ROOF 1123.56 T.O. PARAPET 1124.96 C-1 2 Z4 W8 W4 GR R1 W3 1 200 EAST ELEVATION 1 1 200 WEST ELEVATION 2 1 : 200 NORTH ELEVATION 3 1 : 200 SOUTH ELEVATION 4 1 : 200 SECTION 5 1 : 100 BALCONY WALL SECTION 6 1 : 100 STONE CLADDING WALL 7
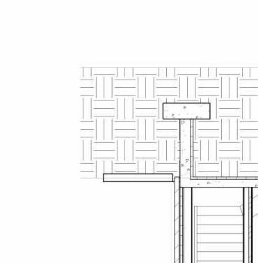
DW REF. DW REF. C-A C-6 C-B C-4 C-5 0.74 m² CLOSET 0.63 m² WD 6.57 m² KITCHEN 27.98 m² LIVING ROOM 6.48 m² BALCONY 19.95 m² MS BEDROOM 4.01 m² MS WASH RM 2.40 m² PWDR RM 11.33 m² BEDROOM 5117171413491627 188724352151 17784952106411141319 43704187970681 17031359306716512026 1541121516114242 P4 P3 101 101 P4 P7 P3 P3 P3 W4 W5 W3 W4 D9 D9 D9 D9 D7 D10 D15 D10 C-A C-1 C-C C-B C-2 2828111315641703 263483221796293351 158744513023574947699 1088237214103151 1250 1250 855265 1690444830261344346530 6637591806 6293363 33.90 m² LIVING ROOM 10.04 m² KITCHEN 6.60 m² BALCONY 13.99 m² MS BEDROOM 6.24 m² MS WASH RM 0.76 m² CLOSET 3.30 m² WASH ROOM 0.88 m² CLOSET 10.30 m² BEDROOM 101 101 101 W6 W4 P3 P3 P4 P3 D9 D9 D9 D9 D15 D7 D12 D10 D12 C-6 C-K C-L C-M C-4 C-5 187019102056 497853119259275456502118 20649674776 21409734 396615441023139198316421225 28.84 m² LIVING ROOM 11.56 m² KITCHEN 1.67 m² CLOSET 0.62 m² WD 4.15 m² MS WASH RM 0.55 m² CLOSET 17.56 m² MS BEDROOM 15.24 m² BALCONY P4 101 P4 P3 P2 P7 D7 D13 D15 D9 D12 D9 D9 D10 C-1 C-3 C-2 C-E P4 W4 101 W5 W4 P4 P3 P3 14.46 m² MS BEDROOM 1.03 m² CLOSET 6.59 m² BALCONY 42.34 m² LIVING ROOM 4.53 m² MS WASH RM 2.57 m² PWDR RM 0.48 m² WD 1.61 m² CLOSET 13.49 m² KITCHEN P2 2478816165428361060106014982204 5385915893 114032310 1165619716 890 D9 D9 D7 D9 D15 D14 D10 D13 C-I W5 W4 BALCONY BALCONY RAILING PLYWOOD C-G BALCONY W4 W4 W6 BACKER ROD AND SEALANT BALCONY GLASS RAILING BACK PAN BACKER ROD & SEALANT BACK PAN D3 UNIT BALCONY W5 BALCONY RAILING PLYWOOD 1 75 UNIT 1 1 1 75 UNIT 3 2 1 75 UNIT 15 3
1 : 75 UNIT 5 4 PLAN DETAILS 1 : 10 STUCCO BALCONY DETAIL 5 1 : 10 WRAPPED CLADDING DETAIL 6 1 : 10 CORNER BALCONY DETAIL 7
UNIT PLANS
02 COMMERCIAL-OFFICE BUILDING

Located at 1409 Edmonton Trail NE in Calgary, this project site falls within the C-COR1f0.83h10 Commercial - Corridor 1 development zone. The building design features commercial space on the ground floor with office spaces occupying the top two levels. Constructed with Steel, complements the structural integrity of the building, offering both durability and flexibility in design. This project showcases innovative construction techniques and modern architectural solutions tailored to meet the demands of a dynamic commercial environment.

UP 1 6 7 2 3 4 5 8 9 4835 7665 5400 5000 7500 7500 7518 4835 7665 5400 18346 6 m² ES 19 m² STAIRWELL 32 m² ELEVATOR LOBBY 373 m² CRU 4 m² MC 17 m² STAIRWELL 2513 2540 2200 17970 2254 3 Z00 4 Z00 W1 W1 W1 C1 P1 P1 P1 W2 W2 2 2 1 1 1 1 1 1 C3 C2 2992 9843 5511 4779 1000 10608 1000 5113 2243 1064 1818 22500 5125 10525 6353 1553 3686 915 2085 915 8532 915 6377 915 1285 915 1757 28296 4 Z2 1 6 7 2 3 4 5 8 9 4835 7665 5400 4835 7665 5400 1531 18639 2254 2573 64 m² LOBBY 20 m² STAIRWELL 4835 7665 5830 1588 3 Z00 4 Z00 P1 P1 P1 P1 1 1 2 1 1 1 1 1 1 W1 4 2 4 3 C3 C4 C5 7 m² ELEVATOR SHAFT 33 m² ELEVATOR LOBBY 20 m² STAIRWELL 63 m² LEASABLE AREA 14 m² FEMALE WASHROOM 14 m² MALE WASHROOM 3 m² JENITOR ROOM 5000 7500 7500 7518 5144 23159 10665 6353 28299 214 m² LEASABLE AREA 3230 860 7629 2523 1646 3253 4263 1320 3575 5000 7500 7500 7518 13062 5426 MAIN FLOOR 1078.61 SECOND FLOOR 1084.01 THIRD FLOOR 1088.41 U/S STEEK DECK 1092.71 1 2 3 4 5 4 Z00 1 Z1 TOP OF PARAPET 1094.31 R1 F2 F2 F1A4.02 W1 W1 1 1 SECOND FLOOR 1084.01 THIRD FLOOR 1088.41 U/S STEEK DECK 1092.71 6 7 8 9 3 Z00 2 Z1 3 Z1 TOP OF PARAPET 1094.31 7 A4.02 1 : 100 Z00 MAIN FLOOR 1 1 : 100 Z00 SECOND FLOOR 2 1 : 100 Z00 BUILDING SECTION 1 3 1 : 100 Z00 BUILDNG SECTION 2 4

WATERPROOFINGLIQUIDAPPLICATIONLAYER

INSULATION

6. AIR/VAPOR/MOISTUREBARRIER

7. ASHPHALTIMPREGNANTEDBOARD 8. GRAVELS 9. ANGLEDSTEELPLATE

DRAINAGELAYER(DIMPLEDMEMBRANE)

BRICKTIE

FLASHING

MORTARNET

SUBFLOOR

BRICK

GRADEBEAM

FLOOR

CONCRETEOBSTAND

MINERALWOOLINSULATION

28.2MMAIRSPACE

SIDEWALK

GYPSUMWALLBOARD

STEELSTUDWALL

CONCREATFACE

HSS

PLYWOOD

FINISHWOOD

STEELSTUDBREACKS

WATERPROFINGROOFMEMBRANE

CONNECTIONCLIPS

GLASSROCSHEATHING

grade 1078.51 MAIN FLOOR 1078.61 SECOND FLOOR 1084.01 THIRD FLOOR 1088.41 U/S STEEK DECK 1092.71 TOP OF PARAPET 1094.31 5 Z1 7 Z1 1 A4.02 grade 1078.51 MAIN FLOOR 1078.61 SECOND FLOOR 1084.01 THIRD FLOOR 1088.41 U/S STEEK DECK 1092.71 TOP OF PARAPET 1094.31 8 Z1 4 Z1 grade 1078.51 MAIN FLOOR 1078.61 SECOND FLOOR 1084.01 THIRD FLOOR 1088.41 U/S STEEK DECK 1092.71 TOP OF PARAPET 1094.31 6 Z1 U/S STEEK DECK 1092.71 6 TOP OF PARAPET 1094.31 above joist 11 1092.95 SPENDREL PANAL 29 28 5 18 11 11 25 ACOUSTIC INSULATION 27 ROOF DACK 9 grade 1078.51 MAIN FLOOR 1078.61 5 1 2 3 4 5 6 6 5 5 7 8 9 10 11 12 13 15 16 17 18 19 20 22 23 21 30 U/S STEEK DECK 1092.71 9 TOP OF PARAPET 1094.31 above joist 11 1092.95 DRIP EDGE CAP FLASHING WEEPING HOLES 11 6 27 5 28 6 18 10 11 9 25 11 10 28 5 18 30 grade 1078.51 MAIN FLOOR 1078.61 6 21 1 2 3 4 5 6 7 8 9 11 15 16 17 20 23 1. VOIDFOAM 2.
3.
4.
5.
STEELPLAT
10.
11.
12.
13.
14.
15.
16.
17.
18.
19.
20.
21.
22.
23.
24.
25.
26.
27.
28.
29.
30.
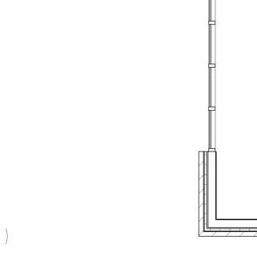
1 : 50 Z1 TYPICAL BRICK CLADDING WALL 1 1 : 50 Z1 CURTAIN WALL 2 1 : 50 Z1 SHAFT WALL 3 1 10 Z1 SECTION DETAIL PERAPET 2 4 1 10 Z1 SECTION DETAIL-FOUNDATION 5 1 10 Z1 SECTION DETAIL-PARAPET 1 6 1 10 Z1 SECTION DETAIL-WINDOW 7 1 10 Z1 SECTION DETAIL-STORFRONT SILL 8
DETAILS WALL
SECTION
SECTIONS

BUILDING ELEVATIONS PLAN DETAILS

7 2 118 118 6 5 BRICK AIR SPACE MINERAL WOOL INSULATION FLASHING GLASROCK SHEATHING GYPSUM WALL BORD PLYWOOD PLATE STEEL STUD MORTAR NET 1 gypsum wall board concrete shaft wall mineral wool insulation MORTAR NET BRICK BRICK TIE MAIN FLOOR 1078.61 SECOND FLOOR 1084.01 THIRD FLOOR 1088.41 U/S STEEK DECK 1092.71 5 1 2 4 3 MAIN FLOOR 1078.61 SECOND FLOOR 1084.01 THIRD FLOOR 1088.41 U/S STEEK DECK 1092.71 ? TOP OF PARAPET 1094.31 3 1 2 5 4 grade 1078.51 MAIN FLOOR 1078.61 SECOND FLOOR 1084.01 THIRD FLOOR 1088.41 U/S STEEK DECK 1092.71 TOP OF PARAPET 1094.31 3 1 5 4 MAIN FLOOR 1078.61 SECOND FLOOR 1084.01 THIRD FLOOR 1088.41 U/S STEEK DECK 1092.71 TOP OF PARAPET 1094.31 1 3 4 5 1 : 10 Z2 COLUMN WITH EXTERIOR CLADDING 1 1 10 Z2 CURTAIN WALL AND BRICK WALL CONNECTION 2 1 : 10 Z2 SHAFT WALL AND CLADDING 4 1 150 Z2 East 3 1 : 150 Z2 North 5 1 : 150 Z2 South 6 1 : 150 Z2 West 7
Z2 3d WINDOW DETAIL 8 3D DETAIL

03 MIXED USE COMMERCIAL-RESIDENTIAL

221 19ST NW

• Municipal Address: 221 19ST NW

• Legal Lot Name: 00157862132554AC;20;1,2

• Development Zone: CN1

• Community Name : WEST HILLHURST

• PROPOSED USES: 1 COMMERCIAL ( 1ST FLOOR)

3 RESIDENTIAL ( 2ND FLOOR)

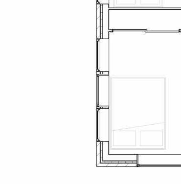
1 Z01 MECH ST WR COMMERCIAL USE 4 Z01 W5 W4 W3 W3 W2 W2 W1 D8 D10 D1 D2 D6 D11 D36 D7 D5 D9 D3 D4 8'15/32"20'0 27/32"14'3/8" 8' 10 13/32"9' 0 5/8"27' 6 3/8"16' 11 25/32"3' 8 15/16" W4 42'7 11/16" 3'0 3/8"4'15/16"7'7 5/16"6'10 15/32"79/16"12'10 9/32"4'5 17/32" 41'11 15/16" 12' 5 1/32"17' 11 25/32"3' 4 3/32"16' 0 13/ 16" 1 Z01 RES. UNI.1 RES.UNI.2 RES.UNI.3 MECH. ROOM LIVING AREA KITCHEN DINING WR LIVING AREA DINING KITCHEN BEDROOM WR CLOSET MSBED ROOM WR KITCHEN DINING LIVING AREA BED ROOM WR MSBED ROOM CORRIDOR CLOSET WD CLOSET CLOSET WD 2 BALCONY BED ROOM M.S.BED ROOM W6 W4 W1 W2 W7 W7 W3 D14 D29 D33 D25 D17 D20 D18 D23 D16 D13 D15 D21 D19 D12 D27 D28 D31 D30 D26 D24 D32 CLOSET D22 D34 D35 18 18 18 18 18 18 18 18 18 18 18 18 18 18 18 18 18 8' 4 23/32"24' 6 7/16"8' 9 1/4"17'7 15/32" 69' 9 3/4" 3'15/32"4'15/16"4'13/16"5'3/16"3'0"3'0"12'0"3'0"3'11/32" 16'3 5/16"9'11 3/16"7'0"9'1/4" 42'5 3/4"3'11 23/32" 6' 0 11/16"7' 0 7/16"8'10 19/32"9' 1 3/16" 1'9 5/32"4' 8"4' 8"5' 0"3' 2"3' 2"6' 2"3'2 3/4"3'1 1/2"3' 9 9/16" 13' 1 1/8"3'11 27/32"11'7 29/32"16'3 3/1 6"10' 6"14' 3 27/32" 9'23/32"3'10 23/32"3'1/2"5'0"3'9/32"3'1/4"8'11/16"6'7 7/8" 10'5 3/32"8'11 5/8"10'15/32"12'13/16" 42'6" 14'11 29/32"7'11 3/16"6'3/4"2'7"2'1 1/16"5'10 5/16" 3'23/32"12'7 21/32"5'4"6'1/16"5'6"7'1 1/32" 6'5/16"2'5 3/16"4'23/32"5'7/8"4' - 9 1/8"1' - 11 5/8"15' - 3 21/32" 4'1 25/32"11'9 1/16"12'10 23/32"1'3/4"2'13/32"7'9/32" 7' 2 23/32"3' 6 1/4"9' 3 13/16"11'9 5/8"5' 9 7/8"2' 11 3/8" 4'7" 2' 0 1/8"5' 8 7/8" 3/16" = 1'-0" 1 MAIN FLOOR PLAN 3/16" = 1'-0" 2 SECOND FLOOR PLAN
MAIN FLOOR PLAN 0' - 0" SECOND FLOOR PLAN 11' - 0" footing -4' - 0" to. o. footing -0' - 6 27/32" Level 9 9' - 11 15/16" BO. O. SEC. FLOOR TOP OF ROOF 20' - 0" TOP OFPERA 23' - 0" F2 F2 F1 R1 W1 W4 D14 D9 W2 W7 D16 W7 W6 W4 W7 W2 W2 MAIN FLOOR PLAN 0' - 0" SECOND FLOOR PLAN 11' - 0" footing -4' - 0" to. o. footing -0' - 6 27/32" Level 9 9' - 11 15/16" BO. O. SEC. FLOOR TOP OF ROOF 20' - 0" TOP OFPERA 23' - 0" F1 F2 R1 HED ROOM 7'3 7/32" MAIN FLOOR PLAN 0' - 0" SECOND FLOOR PLAN 11' - 0" footing -4' - 0" A06-01 1 A06-01 2 A06-01 3 to. o. footing -0' - 6 27/32" TOP OF ROOF 20' - 0" MAIN FLOOR PLAN 0' - 0" SECOND FLOOR PLAN 11' - 0" footing -4' - 0" to. o. footing -0' - 6 27/32" TOP OF ROOF 20' - 0"A06-01 8 3/16" = 1'-0" 1 CROSS SECTION 3/16" = 1'-0" 2 LOMGITUDINAL SECTION 3/8" = 1'-0" 3 STAIR SECTION 1 3/8" = 1'-0" 4 STAIR SECTION 2 3/8" = 1'-0" 5 MESONERY WALL SECTION 3/8" = 1'-0" 6 EXT WALL ON SIDE PROPERTY
MAIN FLOOR PLAN 0' - 0" SECOND FLOOR PLAN 11' - 0" Level 9 9' - 11 15/16" BO. O. SEC. FLOOR TOP OF ROOF 20' - 0" Level 12 23' - 0" TOP OFPERA W4 18 18 18 18 18 18 <varies> D4 D3 W5 1 2 MAIN FLOOR PLAN 0' - 0" SECOND FLOOR PLAN 11' - 0" TOP OF PARAPET 23' - 0" Level 9 9' - 11 15/16" BO. O. SEC. FLOOR TOP OF ROOF 20' - 0" W4 18 18 18 18 18 18 D5 D2 D1 18 18 1 2 MAIN FLOOR PLAN 0' - 0" SECOND FLOOR PLAN 11' - 0" TOP OF PARAPET 23' - 0" Level 9 9' - 11 15/16" BO. O. SEC. FLOOR TOP OF ROOF 20' - 0" W1 18 18 1 MAIN FLOOR PLAN 0' - 0" SECOND FLOOR PLAN 11'Level0" 9 9' - 11 15/16" BO. O. SEC. FLOOR TOP OF ROOF 20' - 0" Level 12 23' - 0" TOP OFPERA D1 D32 W4 D9 18 18 18 18 18 1 2 3/16" = 1'-0" 1 EAST ELEVATION 3/16" = 1'-0" 2 NORTH ELEVATION 3/16" = 1'-0" 3 SOUTH ELEVATION 3/16" = 1'-0" 4 WEST ELEVATION

Turn static files into dynamic content formats.

Create a flipbook
Issuu converts static files into: digital portfolios, online yearbooks, online catalogs, digital photo albums and more. Sign up and create your flipbook.