Architecture Portfolio 2025

Page 1


Portfolio

Israa Nour

Cairo, Egypt

israanour125@gmail com

+201095793121

ARCHITECT

MY Vision in Architecture

Architecture is a harmonious blend of creativ ty funct ona ity and prec sion Through my work str ve to shape spaces that not on y serve their purpose but a so evoke emot ons and connect with their surround ngs My approach s driven by a deep passion for humancentered design where architecture becomes a d a ogue between form nature and experience I bel eve that great design s not ust about numbers and calcu at ons it s about v sion sens t vity and the abi ity to transform ideas nto mean ngfu spaces

DesignProjects

Ths section showcases my ab ty to deveop proects from concept to competon ntegratng both creatve and technica aspects t ncudes concept deveopment master pannng schematic design 2D drawngs and 3D mode ng ensurng a cohesve and wellexecuted outcome Each project refects a strong emphasis on functonality aesthetics and sustanab ty a gnng with modern archtectura trendsanduserneeds

Contents

InteriorDesign

Here high ght my expertise in vsua storyte ng through design baancng orm materals and ghting to create mmersive environments My process ncludes deta ed 3D vsua zations mood boards and materal selectons ensurng that every space acheves the desred ambance From uxury residences to contemporary commercia spaces craft nterors that seamessy bend aesthetics andpractcaity

ShopDrawing

A cruca phase n the executon process my shop drawng package ncudes deta ed technca drawngs section cuts eevatons and materal specifcations ensurng precsion n constructon I work on furnture ayouts fooring details ase ce ng plans and MEP coordnaton provdng a comprehensive guide for contractors and craftsmen Each drawing s meticuousy deveoped to transate the designvsionintorea tywthaccuracy

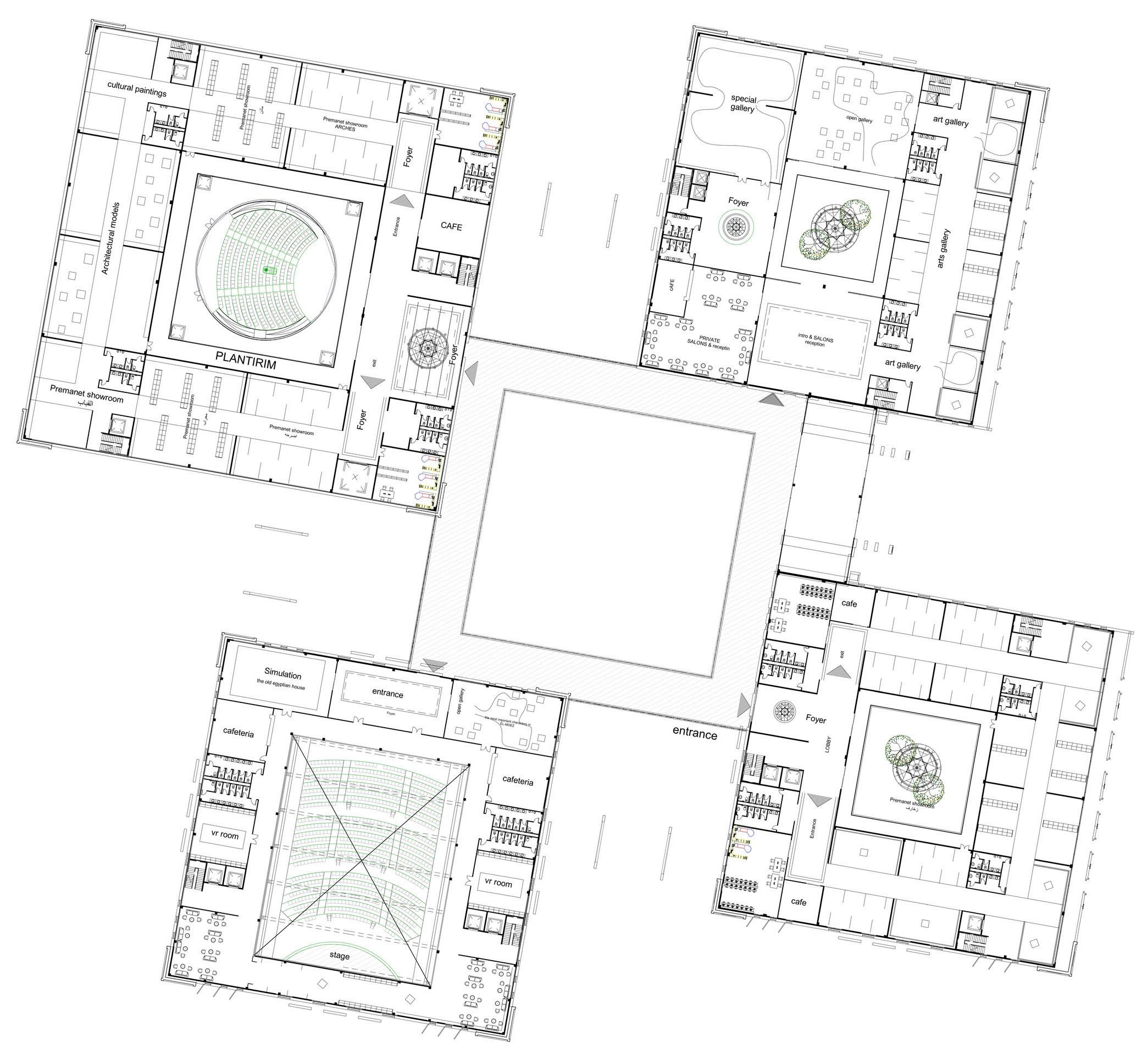
a masterpiece that seamessly blends tradition with modernity offerng an immersve educatonal and cultural experience Located n Egypt the project serves as both a historica archive and an academic hub catering to architecture students researchers, andtourstseagertoexploretherichnessofIslamcdesign

Architectural Legacy Through Islamic Eras

Themuseum sdesgnedtorefecttherichdiverstyof samcarchtectura styes

Umayyad Architecture (661–750 AD) – Characterzed by the introducton of hypostye mosques horseshoe arches and eary mhrabs ths era lad the foundatonfor samcarchtectura identtyinEgypt

Fatimd Archtecture (909–1 7 AD) – Known for its ntrcate stucco carvngs decorative Kufc ca graphy and grand entrances the Fatimd perod broughtaneegantfusionofartandfuncton asseen nCaros concmosquesandmadrasas

Ayyubd Architecture (1171–1250 AD) – Defensve architecture fourished durng this tme with massve ctades fortfied wals and robust stone structures bestexemp fiedbytheCairoCtade builtunderSaahal-Din(Saladin)

MamukArchtecture(1250–15 7AD)–Oftenconsderedthegodenageof slamcarchtectureinEgypt theMamukperiod ntroducedsoarngmnarets eaboratedomes andstrikngmashrabyawndows bendngmonumentalscalewthexqustecraftsmanshp

Ottoman Archtecture ( 517–1867 AD) – Marked by the ntroducton of centra zed domed structures pencil-shaped mnarets and a re ned use o Iznik t es thserasawafusonbetweentradtiona MamukeementsandOttoman nnovations asrefected nthegrandmosquesofCaro

Architectural Concept

The museums design s deepy inspred by cassca samic architecture ncorporatng eementssuchas

Grand Courtyards – Reflectng theessenceoftraditiona samic spatia organizaton the open-ar courtyards create a harmonous baance between bu t and natura envronments

Geometrc Patterns & Arches

– The façade and structural eements showcase ntrcate

geometrc deta s and majestic arches echongtheaestheticsof hstorcmosquesandmadrasas

Centra Dome&Minaret – The iconc dome a definng feature of samic archtecture

symbo zes spirtual en ghtenment wh e the mnaret- ke tower acts as a vsua beacon invting vistors to engagewththespace

Lush Landscapng & Water

Features – nspred by tradtiona slamc gardens the integraton o pam trees

fountans and symmetrcal pathways enhances the sensory experence and promotes tranqui ty

SectionA-A
SectionB-B

ntanasaFoca Pont Theheartoftheexhbtonfeaturesacrcularwaterfountain symbo zngtranquilityandthetmeessconnectonbetween samcarchtectureandnature &GreenPockets – Lush greenery and carefuly seected plantngs create a refreshing contrast aganst the structured ayout provdng shaded rest areas while ren orcng the authentc samic esthetc

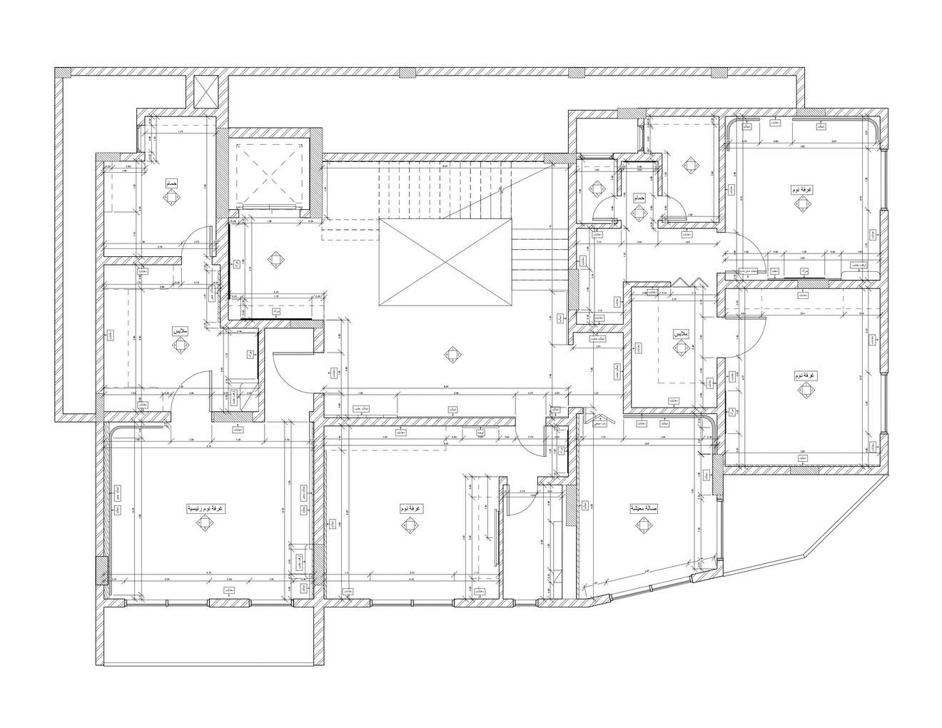
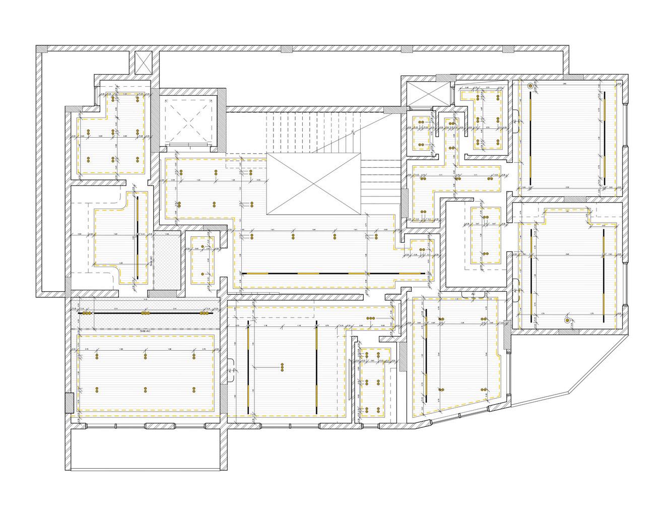
Modern Minimalist Villa

Location: California,UnitedStates

Typology:FamilyResidential

Software: Revit,Lumion PS

Year: 2023

A Masterpiece of Simplicity and Elegance

This architectural design embodies the essence of modern minimalism blending clean lines with a harmonious balance of form and function. The villa’s geometric composition, accentuated by a monochromatic palette, creates a timeless aestheticthatexudessophistication

The seamless connection between indoor and outdoor spaces enhances the fluidity of the design while the use of natural elements such as greenery and water features adds warmth to the structured facade. Thoughtfully placed lighting details intheboundarywallshighlightthevilla’scontemporarycharacter offeringbothprivacyandaninvitingatmosphere. Aperfectexampeofhowsimplicity whenexecutedwithprecision,cantransformintoanarchitecturalstatement.

Typoogy HosptalityArchitecture

Software 3DsMax CoronaRenderer PS

Year 2024

Luxury Indoor Pool – Hotel in Dubai
Location: JumeirahBeachResidence(JBR) Dubai

Luxury Indoor Pool – Hotel in Dubai

DesignSuitability&GuestExperience

This refined materia palette aligns with the luxury hospitality experience expected in a five-star Dubai hotel, offering visual elegance comfort, and practicality. The combination of wood marbe, glass and water reflections creates a space thatisbothcalmingandvisualystunning makingitanidealretreatforguestsseekingrelaxationandexcusivity

LuxuryIndoorPool–DubaiHotel

Thisindoorpoolisdesignedtoprovideatranquilandluxuriousretreat,seamlesslybendingmodernaestheticswithhighfunctionality LocatedinaprestigiousDubaihote thespaceembodiessophistication,comfort andelegance.

CeilingDesign:Thewoodenslatceilingenhancesbothacousticsandambiance,creatingawarmandinvitingatmosphere.Therecessed lightingiscarefullyintegratedtoprovideasoft diffusedglow makingthespacefeelbothintimateandexpansive Walls&Glazing Acombinationofful-heightglasspanelsandmarble-cladwalsenhancesthesenseofopennesswhileensuringa premium,timeessappeal.Theglassalowsforabundantnaturallight,offeringviewsofthesurroundinglandscapeandenhancingthe overallexperience

Flooring&PoolDeck:Thenon-slipstonetilesensuresafetywithoutcompromisingaesthetics,whiewooddeckingaroundthepool addswarmthandtexture seamlesslyconnectingwetanddryareas

Pilgrims’ Hotel Room

Location: Makkah SaudiArabia

TypoogyReligiousHospitalitySpace

Software 3DsMax CoronaRenderer,PS

Year: 2025

Pilgrims’ Hotel Room

This interior des gn project presents a modern yet warm and inviting hotel room specifica ly designed for pilgrims in Saudi Arabia The design skillfu ly blends natural wood accents with neutral tones, creating a calm and serene atmosphere suitable for rest and spiritua reflection. The wooden paneling on the walls adds depth and warmth while the integrated lighting enhances the overall ambiance, providing a soft glow that contributes to relaxation The choice of minima ist furniture and soft-textured carpets ensures both comfort and functionality. The carefully selected artwork and subt e decor details further elevate the space reinforcing a sense of tranquility

Efficiency & Cost-Effectiveness

The design is not only aesthetical y p easing but also efficient and budgetfriendly. By using oca ly avai able materials ike wood veneers and durable textiles costs are minimized while maintaining a high-quality finish The modular design approach al ows for quick execution and instal ation making it an ideal solution for large-scale hospitality projects catering to high volumes of visitors during pilgrimage seasons.

Modern Workspace Design for a Corporate Office

Typoogy:Commercia

Software:

Luxury Spa & Massage Room

Location NewCaro Egypt

TypoogyWelness&HospitalityDesign

Software 3DsMax

Modern Villa Bathroom

Location: NewCairo Egypt

Typology:Residential–Villa

Software: 3DsMax CoronaRenderer,PS

Year 2025

Th s vi la bathroom design is a harmonious b end of uxury bohemian and Scandinavian aesthet cs creat ng a space that fee s both ref ned and inviting The use of natura mater als such as textured stone and warm wood tones enhances the organic and earthy ambiance whi e m nimal st Scand nav an e ements ensure a clean and uncluttered ook Soft ambient ight ng including concealed LED strips and e egant pendant f xtures adds depth and warmth making the space fee serene and relaxing. The boho nfluence is evident in the decorative accents soft curves and warm co or pa ette creating a cozy yet sophisticated atmosphere. The high-qual ty visua izat on and rendering bring out every detail capturing the richness of textures and materia s This bathroom is a perfect ba ance of style and comfort embodying a t me ess aesthetic that is both funct onal and visual y stunning

Pilgrims’ Hotel Room

Location: Jeddah,Saud Arabia

TypoogyResidential–Villa

Software 3DsMax CoronaRenderer PS

Year: 2025

Ceiling

Living room design

Reception area

Reception area

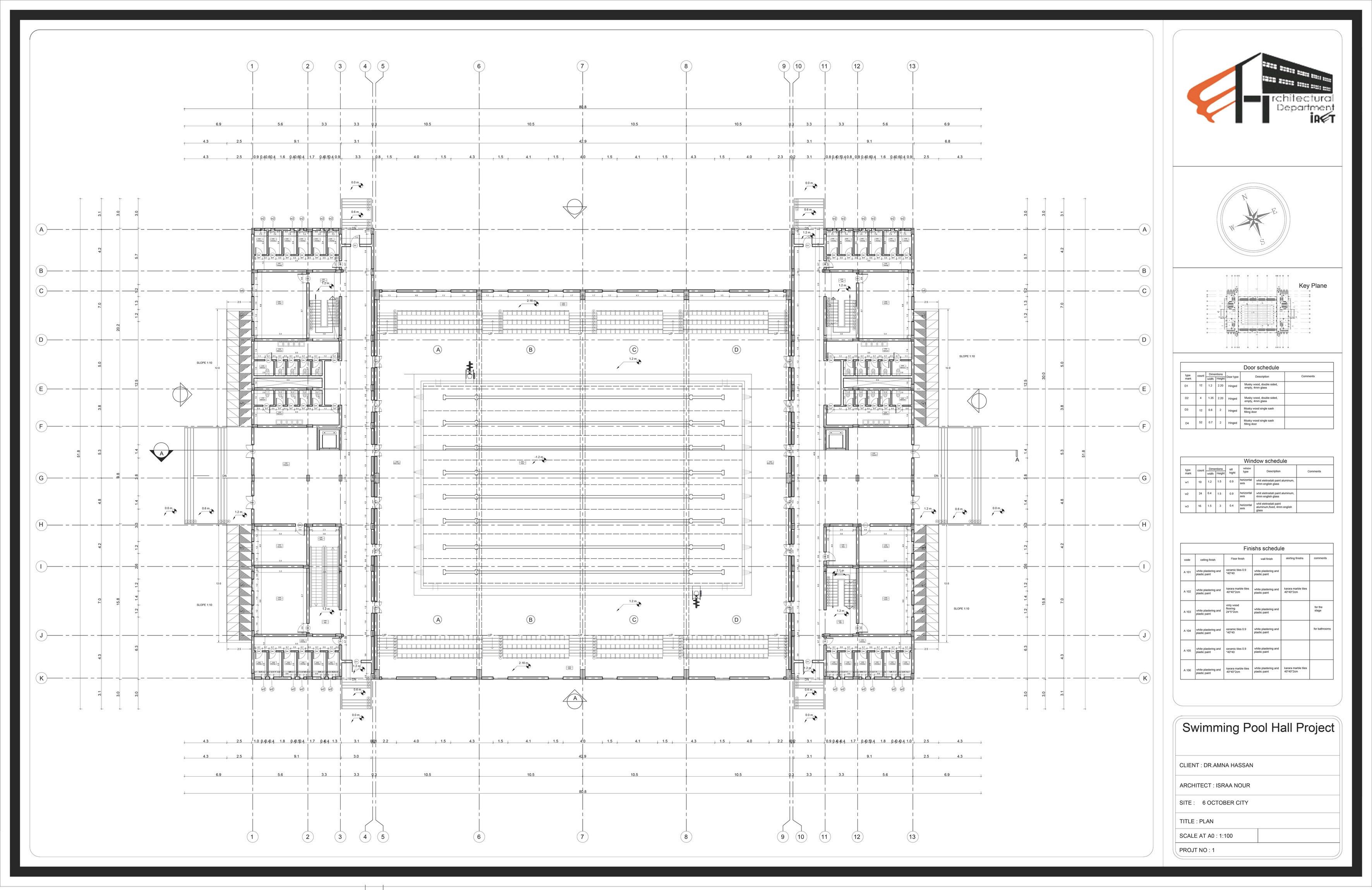
Olympic pool

Location: Madinaty Egypt

Typoogy Sports&Recreaton

Software Revit Autocad PS Year: 2025

olympic pool

Sections

The sectiona draw ngs l ustrate the depth variat ons poo structure and surround ng deck eve s Spec al attent on was g ven to dra nage solut ons waterproo ing ayers and mater a spec f cat ons to ensure durab ity and water resistance The mechan cal and fi tration systems were ntegrated seam ess y to mainta n opt mal water qua ty

Elevations

The e evations emphasize the architectural expression of the poo faci ty showcasing façade treatments mater a se ections and structura components The design ba ances aesthetics with funct ona ty ncorporat ng natural ight ng vent ation and access b ity cons derat ons

Ground floor plan

Fire Fighting Plan

Flooring Plan

olympic pool

Pool Detai s

Detai ed drawings cover essentia components such as edge prof es overflow channe s underwater ight ng p acements ane mark ngs and starting b ocks Spec a construct on techniques were employed to ensure non-s ip surfaces proper water circu ation and thermal nsu at on The poo tank structure was reinforced w th h gh-strength concrete to withstand constant water pressure and externa oads.

Addit onal Technica Details

F ltrat on & Drainage System Imp emented advanced water f ltrat on systems to ensure c ar ty and hyg ene whi e des gning a comprehens ve dra nage network to prevent water accumu at on Structura Re n orcement Used reinforced concrete and waterproof ng membranes to ensure ong-term durab ty Safety Cons derat ons ncorporated ant -s p f nishes depth markers and emergency ex t po nts for enhanced safety

olympic pool

Floor ng Deta ls The f oor ng design ncorporates var ous materia s based on unct ona ty and aesthet cs The swimm ng poo f oor ng features mosa c anti-s ip ceramic ti es ensur ng safety and water res stance The nterior floor ng consists of po ished concrete w th epoxy mortar prov d ng a durab e and seam ess f n sh For dry areas wooden am nate f ooring s used to create a warm and inv ting amb ance Each f oor ng type was carefu y se ected based on ts mo sture res stance durab l ty and ease o ma ntenance.

olympic pool

Spider G ass Façade System

The sp der glazing system s des gned for maximum transparency and structura stab ity The deta led draw ngs l ustrate stain ess stee connectors tempered glass panels and rubber gaskets that prov de flex bi ty and resistance to w nd oads The tens on rods and spider f tt ngs ensure seam ess integrat on whi e ma nta n ng a ightwe ght appearance The des gn enhances natural ght ng reduc ng the need for art fic a ght ng during the day

olympic pool

Wa l Sections

The wal sections high ght the structura compos t on and materia ayer ng used n the pro ect The des gn ncorporates a doub e-sk n façade system to enhance thermal nsulat on and energy eff ciency Key elements inc ude re nforced concrete wa ls opt m zed support structures and waterproof ng ayers to ensure durab ity The ntegrat on of a uminum c adding pane s and g azing systems prov des a modern and s eek aesthetic wh le mainta n ng structura ntegr ty.

olympic pool

Facade Cladding System

The açade c add ng system s designed to enhance both aesthet c appeal and therma eff c ency The design ut izes a um num pane c adding arranged n a dynam c overlapp ng pattern creating a modern and visua y str k ng

exterior The panels are nsta led on a secondary stee structure ensur ng stabi ty and durabi ty

Mater al Se ection & Performance

A um num Cladd ng Pane s Chosen or their ghtwe ght properties corros on resistance and ow ma ntenance requ rements

Vent ated Façade System A ows for improved a r c rcu at on reduc ng heat bu ldup and enhancing the bu ldings energy eff ciency

Insu ation & Waterproofing Layers o therma insu ation and waterproof membranes ensure nter or com ort and protection aga nst weather cond t ons

Thank you

Turn static files into dynamic content formats.

Create a flipbook
Issuu converts static files into: digital portfolios, online yearbooks, online catalogs, digital photo albums and more. Sign up and create your flipbook.
Architecture Portfolio 2025 by israa nour - Issuu