Isha portfolio 2021-2022

Page 1

ISHAKARODI

A highly dedicated and versatile personality.Pursuing Architecture 2019-24. With the goal to continually progress in design ideation and technical skills.

INTERESTS

CONTACT

DETAILS

Khandwa M.P. 9926530042

EDUCATION

BACHELOROFARCHITECTURE

CODE, VivekanandaGlobalUniversity, Jaipur

HIGHSCHOOL

Isha Karodi ishakarodi0810@gmail.com

@ _blessing_art__

St.Piushighersecondary school,KhandwaM.P.

WORK EXPERIENCE

INTERNSHIP

INTERSHIP

-1weekinternshipatDesignCoreconsultant(p)ltd.UnderAR.JayeshBansal.

-Workedasa3dvisualizerfortheFIGSIJaipurprojectunderVivekananda GlobalUniversity.

-WorkedforgraphicdesignundersummerinternshipforVGUInstagram -Workingasa3dvisualizerfortheDiggiPalaceCaféInterior.

TOGETHERBOOKPROJECT

CoverartistoftheshortSTORY‘FAITHTHROUGHTHEARTS’.ByUsha Raghavanininternationaltogetherbookavailableonamazon.

SOLARDECATHLON

FinalistofSolarDecathlonChallenge2021-22withthemostpromisingentry insemi-final.Team-Amigos,Category-SingleFamilyHousing.

HaddesignaspaceforcafewithateaminDiggipalaceJaipuronthe occasionofJaipurliteraturefestival.

JKKREADINGROOM

HaddonerenovationofJawaharKalaKendraJaipur’sReadingRoomwitha team.

SOFTWARE
LANGUAGE
HINDI ENGLISH

Appartment

CC’

BB’ AA’
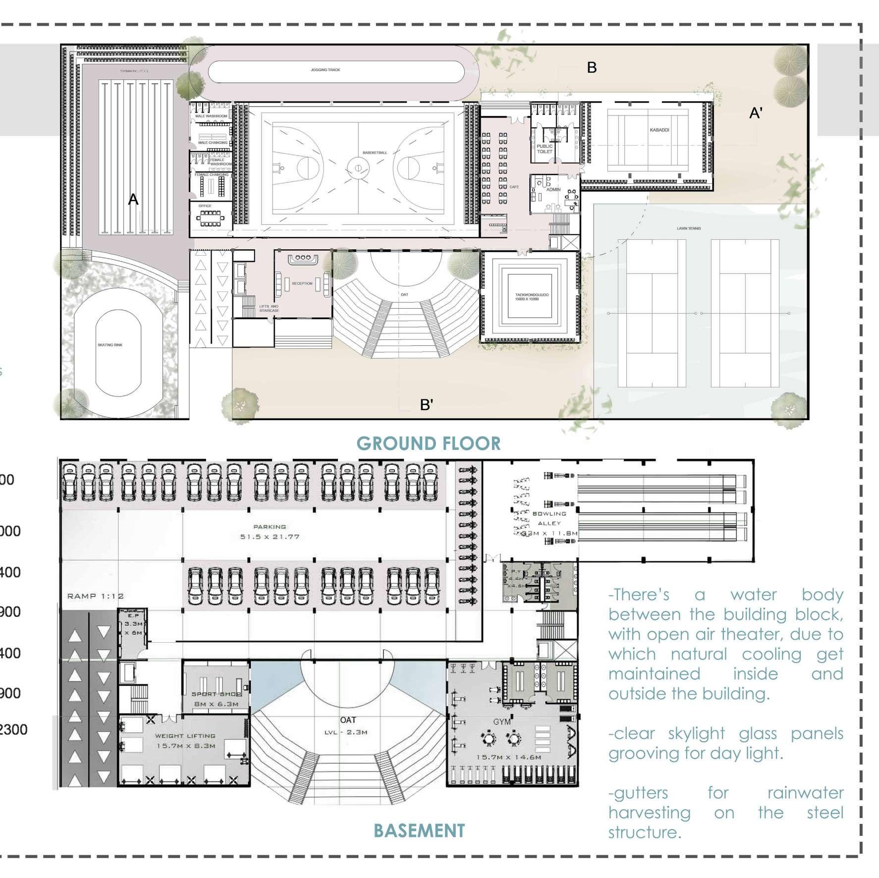
GROUND FLOOR

Turn static files into dynamic content formats.

Create a flipbook
Issuu converts static files into: digital portfolios, online yearbooks, online catalogs, digital photo albums and more. Sign up and create your flipbook.
Isha portfolio 2021-2022 by Isha Karodi - Issuu