Skip to main content

Dennis tito launardy portofolio

Page 1

architecture portofolio 2023 dennis tito launardy

Hello, I’m Dennis Tito Launardy

i’m very ambitious man, I always do my best where I am organized, I always active in the organization and always do my assignments on time, and I am very responsible for the tasks that have been assigned to me. Although my organizational experience is lacking but as an architecture student and member of my committee I always give my best.

about me

DENNIS TITO LAUNARDY

06.05.2002

Jakarta, Indonesia

CONTACT

+6285880889012 (WA)

Dennistito341@gmail.com

D.I Yogyakarta

EDUCATION

SMA Santo yoseph

Grade 10 - grade 12

Ujung menteng, cakung, Jakarta timur

2018 - 2020

Universitas Kristen Duta Wacana

Majoring in Architecture

Yogyakarta, Indonesia

2018 - 2020

LANGUAGES

• Indonesia (fluently)

• inggris (flenty)

SKILLS

Software Skills

• Autocad

• sketchup

• Adobe Photoshop

• Adobe Indesign

• Corel Draw

• Enscape

ORGANIZATIONAL EXPERIENCES

KMKU (Keluarga mahasiwa katolik

UKDW)

Humas, Desain dan dokumentasi, 2021-2022

• Comunicator between KMKU and the comunity

• Manage KMKU social media

• Design event certivicate

OKA (Orientasi Kehidupan Akademik)

Decoration, 2022

• Design stage decoration

OKA (Orientasi Kehidupan Akademik)

Decoration, 2023

• Design stage decoration

IMKA (Ikatan Mahasiswa Kalimantan)

co-ordinator Desain dan dokumentasi, 2023

- now

• Manage IMKA social media

Professional skills

• Sketching

• Graphic design

• Graffity

Curiculum vitae
CONTENTS 01 02 03 KANTOR KEPALA DESA Semester 5 I 2022 TAMAN BACA ANAK KOMPLEKS PEMUSATAN PELATIHAN DAERAH ATLETIK Semester 5 I 2022 Semester 6 I 2023
CONTENTS 04 05 06 TINY HOUSE TAMAN BHINNEKA INDIVIDUAL PROJECTS Competition I 2023 Competition I 2023 Selected works I 2023

RENOVASI KANTOR

Individual project

Project ini adalah ba tengah, renovasi melakukan FGD satu desa di sumba

01

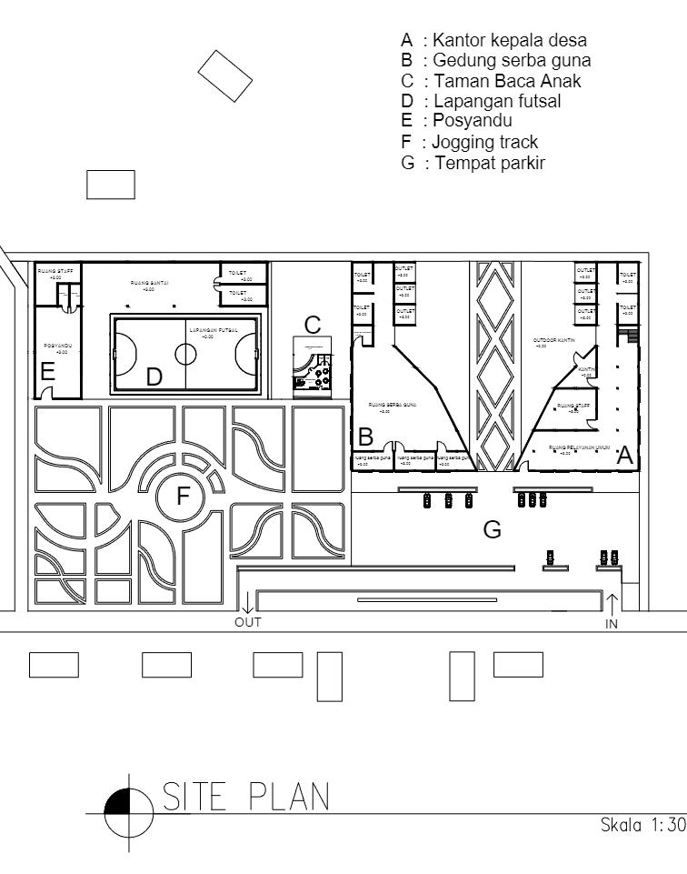
KANTOR KEPALA DESA project I Semester 5 I 2022

adalah project individu saat saya sedang KKNT di Sumrenovasi kantor kepala desa ini dipilih setelah saya FGD dan juga turun langsung ke lapangan di salah sumba yaitu desa Anajiaka.

ANALYSIS KONTEKS SITE

ANALYSIS VIEW

PENDEKATAN DESAIN YANG DIPAKAI

Individual project

Project ini adalah di Sumba tengah, melakukan FGD satu desa di sumba

02
TAMAN BACA ANAK

ANAK

project I Semester 5 I 2022

adalah project individu kedua saya saat sedang KKNT tengah, Taman baca anak ini dipilih setelah saya FGD dan juga turun langsung ke lapangan di salah sumba yaitu desa Anajiaka.

KOMPLEKS PEMUSATAN

Individual project I Semester

Project ini adalah project pemusatan pelatihan kulon progo.

03

PEMUSATAN PELATIHAN DAERAH ATLETIK

Semester 6 I 2023

project semester 6 yaitu merancang kompleks pelatihan daerah atletik. yang lokasinya berada di

ANALYSIS VIEW

ANALYSIS SUARA

DATA EKSISTING

Stadion Cangkring yang terletak di wilayah Kulon Progo ini merupakan proyek dari pemerintah daerah Kulon Progo. Perancangan Cangkring Sadium terutama difungsikan sebagai laboratorium olahraga, dengan fokus pada olahraga air seperti renang. Pada saat itu, stadion tersebut akan dioperasikan sebagai salah satu stadion terbesar di Provinsi Yogyakarta. Sebagai bagian dari stadion, fasilitas perawatan diperlukan agar stadion dapat digunakan secara layak dan untuk meningkatkan umur ekonomisnya.

LOKASI

ANALYSIS SIRKULASI KENDARAAN

ANALYSIS SIRKULASI PEJALAN KAKI

KONDISI EKSISTING SITE

PERSPEKTIF

TINY HOUSE

Team project I tiny house adalah di yogyakarta house yang dimana sempit di site

04

I competition I 2023

adalah project kompetisi/ sayembara yang diadakan pada bulan juni kompetisi ini bertemakan tiny dimana pendesain harus memaksimalkan lahan yang ditentukan

05
TAMAN BHINNEKA Team project I competition Taman bhinneka palembang project dikarenakan kondisi

BHINNEKA competition I 2023

bhinneka adalah kompetisi pembuatan ruang publik di project kami menamai project ini taman bhinneka kondisi site yang memiliki banyak unsur budaya.

PENDEKATAN DESAIN

Kontekstualisme merupakan kemungkinan perluasan bangunan dan keinginan mengkaitkan bangunan baru dengan lingkungan sekitarnya. Dari definisi dari tersebut dapat disimpulkan bahwa Arsitektur Kontekstual adalah suatu perancangan yang dimana dalam perancangan tersebut memperhatikan lingkungan sekitar bangunan yang dirancang.

jenis arsitektur kontekstualisme yang dipakai adalah :

Harmony (Selaras / harmoni) Dalam perancangan arsitektur kontekstual, harmoni sendiri merupakan peracangan yang merancang model bangunan serasi dengan bangunan sekitar. Dari keserasian itu bangunan yang dirancang tidak terlihat dominan dan mungkin akan lebih meningkatkan kualitas dari Kawasan tersebut.

PROFIL KAWASAN

ANALYSIS MATAHARI

AKSONOMETRI KAWASAN
06
pada lembar ini yang dimana tidak
DESAIN INTERIOR Individual project

INTERIOR KOST EKSLUSIF

project I selected works I 2023

merupakan project saya sendiri diluar kampus tidak jauh-jauh dari aspek arsitektur

THANK YOU Dennis tito launardy +6285880889012 (WA) I dennistito341@gmail.com

Turn static files into dynamic content formats.

Create a flipbook