Isabelle Terzi- Interior Architecture and Design Portfolio 2023

Page 1

isabelle terzi 2023
interior architecture / design portfolio

Isabelle Terzi

Winstanley Rd, Griffon Studios, London SW11 2DL

isabelletarazi96@gmail.com

+44 7 943 581 823

https://www.linkedin.com/in/isabelle-terzi-751651141/

UNIVERSITY OF THE ARTS LONDON (C amberwell )

MA in Interior and Spatial Design with Distinction: A+.

September 2021 - December 2022

PENNINGHEN (Paris)

Bachelor’s Degree in Interior Architecture/ Design

2019

One year of foundation course in interior architecture, Fine Arts and Graphic Design

2016

FLORENCE DESIGN ACADEMY (Italy)

Four months studies in Art and Interior Design.

2015

BACCALAUREATE (Lebanon)

French Baccalaureate in Literature with Honours.

2014

E X P E R I E N C E

BEIT COLLECTIVE

Designer.

October 2020 --> Present

Beit is an Online/E-commerce business selling furniture, accessories and other homeware designed by emerging designers and artists in limited editions.

Created two collections of lamps : the “Serena” and the “Va-et-Vient”. https://beit-collective.com/beit-designers/isabelle-tarazi/ Lights selected at the Maison&Objet salon, with Goodmoods and François Bernard.

ADJAYE ASSOCIATES (London)

Internship in Interior Design, acting as Interior Design Assistant.

January --> October 2020

Whitechapel Estate, London, UK :

Photoshop Plans, with materiality and room finishes

Worked in the Revit model : modeling Families ; Ceiling, Walls and Floor finishes

3D views in Revit / Photoshop

AFH (Abrahamic Family House), Abu Dhabi, UAE : Sanitary Ware / Appliances Research

Furniture research

Modeling the Sanitary Ware and Appliance families in Revit + adding them to the model Making the Room finishes schedule.

SZGM (Sheikh Zayed Grand Mosque), Abu Dhabi, UAE : Research work for a competition regarding the Urban design of the Grand Mosque : InDesign presentation with graphs about the culture, the religion and the history of Abu Dhabi, as well as the surroundings (parks, hotels, historical sites etc.).

KSP (King Salaman Park and Exhibition Center), Saudi Arabia : Sanitary Ware / Appliances Research

Furniture research

Modeling the Sanitary Ware, Appliance, and Furniture families in Revit + adding them to the model Making the Room finishes schedule

Photoshop Plans, with materiality and room finishes

FFE/ FFX schedule

Modeling the Joinery Contacting the suppliers

YTAA ARCHITECTS (Lebanon)

Internship in Architecture.

July --> August 2018

Urban planning project (Brazza, Bordeaux): did the whole 3D on SketchUp. Went on the construction site of the BLF Disaster Center (Ghazir, Lebanon).

Worked on the scale model of the BLF Bank Headquarters.

JULIANA TARAZI’S OFFICE (Lebanon)

Internship in interior design.

June --> August 2016

Worked on the design of a project in Jounieh, Lebanon.

DADA & ASSOCIATES (Lebanon)

Internship in Architecture.

December 2014 --> January 2015

S K I L L S

SOFTWARE : AutoCad

Photoshop

InDesign Expert

Revit

Sketchup

Rhino

Advanced

LANGUAGES :

French English

Arabic

Fluent

Greek Basic level

E D U C A T I O N
Advanced Drawing Model making Photography Sculpture
P R O J E C T S 1 A R T W O R K 2
B A C D E F
G H
1 P R O

J E C T S

beit tarazi

BEIT TARAZI WAS DESIGNED SO THAT THE LEBANESE PEOPLE WOULD HAVE THE CHANCE TO LIVE IN AN AFFORDABLE HOUSE IN THE CENTER OF LEBANON, IN THE HISTORICAL SITE OF SAIFI, BEIRUT. IT IS DESIGNED FOR STUDENTS, YOUNG PROFESSIONALS AND YOUNG FAMILIES, WHO WOULD WANT TO LIVE IN A HOUSE THAT COMBINES TRADITIONAL AND MODERN, AS WELL AS COMMERCIAL AND RESIDENTIAL. BEIT TARAZI IS A PLACE OF SOCIALIZATION AND CULTURAL EXCHANGE, AND PLUNGES THE HABITANTS INTO THE COMFORT AND CHARM OF THE TRADITIONAL LEBANESE HOUSE, FILLED WITH GREEN SPACES, OPEN COURTYARDS, AS WELL AS A CAFÉ AND BAR, AN EXHIBITION AND CULTURAL SPACE, STUDIOS AND APARTMENTS. OUT THE RUSTIC EFFECT OF THE BUILDING, AND TO GIVE A COMFORT EFFECT.

GROUND FLOOR PLAN FIRST FLOOR PLAN
TO FORTH FLOOR PLAN FIRST FLOOR PLAN- MEZZANINE SECOND TO FORTH FLOOR PLAN- MEZZANINE FIFTH FLOOR PLAN ROOF FLOOR PLAN SITE PLAN N
SECOND
CONCEPTIAL SKETCH GROUND FLOOR CAFE/ BAR VIEW
GROUND FLOOR EXHIBITION SPACE VIEW GROUND FLOOR CAFE/ BAR OUTSIDE VIEW- NIGHT
BLOCK B LIVING ROOM APARTMENT VIEW

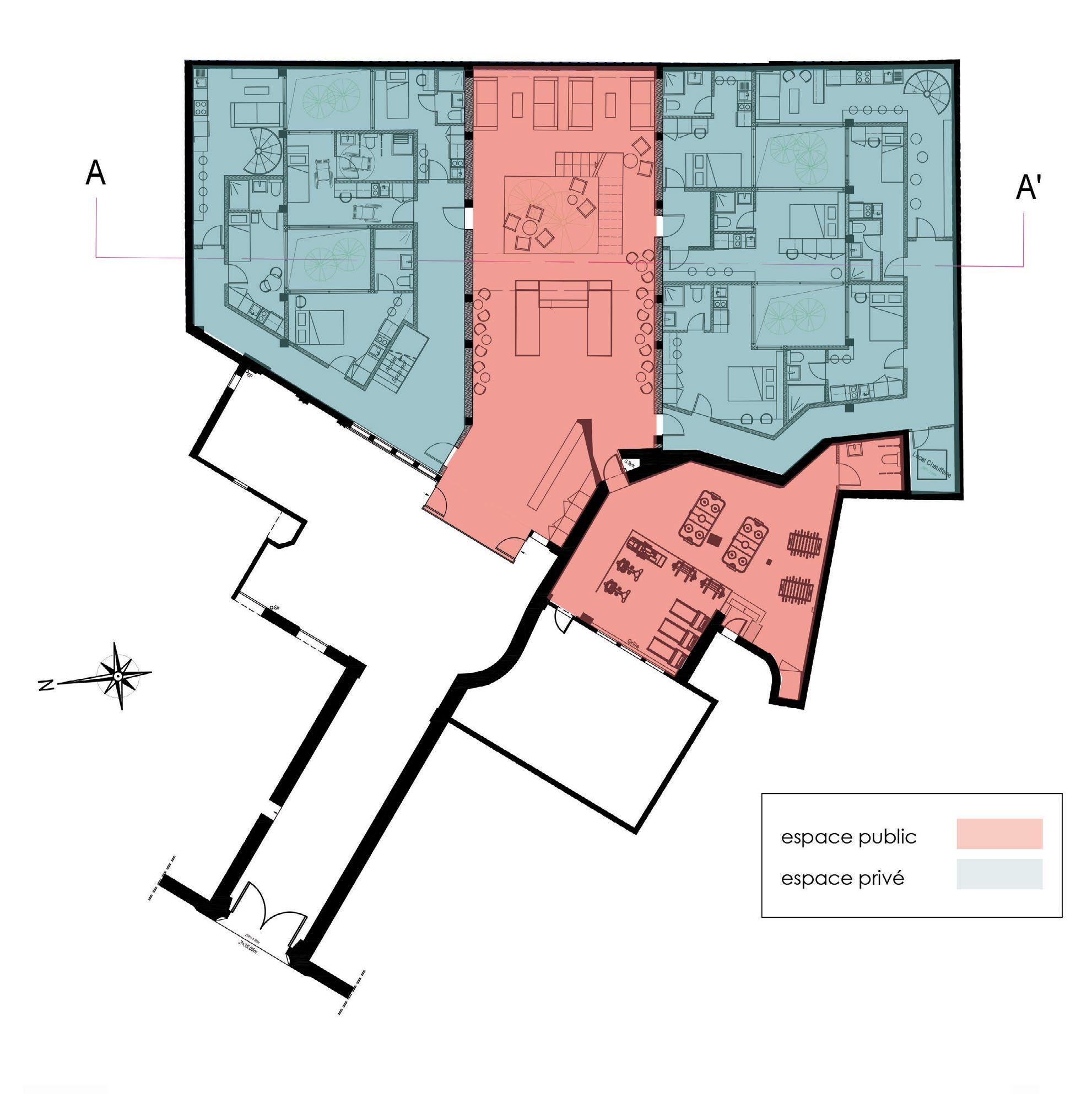
BEIT TARAZI IS COMPOSED OF VARIOUS PURPOSEFUL SPACES. ON THE GROUND FLOOR, YOU CAN FIND A CAFÉ/ BAR AND AN EXHIBITION SPACE/ MEETING SPACE ON EACH SIDE, AN ACCESS TO THE RESIDENTIAL AREA IN THE MIDDLE, AND AN ACCESS TO THE UNDERGROUND PARKING ON THE LEFT. WHEN ACCESSING THE RESIDENTIAL AREA, A LAUNDRY ROOM IS PLACED ON THE LEFT, AND A SMALL REFUSE ROOM UNDER THE STAIRS. TWO ELEVATORS ARE PLACED STRATEGICALLY IN THE MIDDLE OF THE PROJECT. THE FIRST FLOOR MAKES PLACE TO A BIG GARDEN IN THE FRONT, FOLLOWED BY A SPACIOUS OPEN COURTYARD WITH A STUDY SPACE, A GAME SPACE AND AN EXERCISE SPACE. A BACK GARDEN IS BEHIND BLOCK A (OR ART DECO BUILDING), A 4-STOREY PASTEL GREEN BUILDING COMPOSED OF 4 STUDIO MEZZANINES ON EACH FLOOR, AND A HANDICAPABLE STUDIO ON THE FIRST FLOOR. EACH STUDIO IS COMPOSED OF A LIVING ROOM WITH AN OPEN-PLAN KITCHEN AND BAR, A BIG DESK WITH SHELVINGS, WARDROBES, A BALCONY, A STORAGE SPACE FOR LUGGAGES UNDER THE STAIRS, AND A BEDROOM AND BATHROOM ON THE MEZZANINE. MOVING ON THE SECOND FLOOR THROUGH THE STAIRS BEHIND BLOCK A OR THE ELEVATORS IN THE MIDDLE, YOU CAN DISCOVER BLOCK B (OR TRADITIONAL BUILDING) ON THE RIGHT. THIS PASTEL PINK 4-STOREY BUILDING CONTAINS ONE MEZZANINE APARTMENT ON EACH FLOOR. EACH APARTMENT IS COMPOSED OF A LIVING ROOM (OR DAR), A DINING ROOM, A KITCHEN, A TV ROOM, A BEDROOM WITH BATHROOM, AND TWO EN-SUITE MASTER BEDROOMS ON THE MEZZANINE. THE ROOFS ARE COVERED WITH SOLAR PANELS AND RENEWABLE ENERGY SYSTEMS, AND A CHARMING RED-TILED SLOPED ROOF, ONCE VITAL IN BEIRUT’S URBAN LANDSCAPE, COMPLETES THE DESIGN.

FIRST FLOOR BACK GARDEN VIEW
FIRST FLOOR OPEN COURTYARD VIEW
BLOCK A STAIRCASE VIEW
A STUDIO MEZZANINE VIEW
BLOCK A BEDROOM VIEW BLOCK
BLOCK B DINING ROOM VIEW
BLOCK B BEDROOM VIEW
BLOCK A BALCONY VIEW
BLOCK B BALCONY VIEW

The Sobhiye Table

SOBHIYE DOESN’T HAVE A LITERAL TRANSLATION IN ENGLISH, BECAUSE IT IS A CONCEPT BORN IN THE MIDDLE-EAST. A SOBHIYE IS SHARING A MORNING COFFEE AND CIGARETTES WITH A GROUP OF WOMEN OR MEN AND FRIENDS AND NEIGHBORS. BUT IT IS NOT JUST RESTRICTED TO THAT, IT’S ALSO A GOSSIPING SESSION OVER A FRESHLY BREWED POT OF COFFEE. IT IS IMPORTANT TO KNOW THAT LEBANESE HAVE COFFEE MULTIPLE TIMES A DAY, BUT ONLY THE MORNING COFFEE IS CALLED A SOBHIYE, BECAUSE IT COMES FROM THE WORD SABAH WHICH MEANS MORNING. THE SOBHIYE TABLE IS THE DESIGN PART OF MY PROJECT. IT IS COMPOSED OF DIFFERENT SIDE TABLES THAT CAN BE USED SEPARATELY OR EMBEDDED TOGETHER. I CHOSE THE COLORS TO DEPICT THE SUNRISE IN LEBANON: YELLOW, ORANGE, AND A TOUCH OF GREEN FOR THE CENTENARY CEDAR TREES. THEY ARE MADE ENTIRELY OF CERAMICS, A MATERIAL OFTEN USED IN THE DESIGN OF THE TRADITIONAL LEBANESE HOUSES. WHEN SLEEPING AT MY GRANDMA’S, MY FAVOURITE MEMORIES WERE WHEN WE WERE HAVING OUR SOBHIYE TOGETHER ON THE BALCONY. THIS TRADITION INSPIRED ME TO CREATE THE SOBHIYE TABLE, SO THAT OTHERS CAN CHERISH NEW MEMORIES WITH THEIR LOVED ONES. COMPOSED OF 9 ELEMENTS, A BUILT-IN ASHTRAY IS AT THE CENTER OF THE DESIGN. FOUR SIDE TABLES WITH BUILT-IN COASTERS SURROUND THE ASHTRAY, AND MAKE SPACE FOR LITTLE PLATES TO COMPLETE YOUR EARLY MORNING COFFEE WITH A SMALL BREAKFAST. FINALLY, FOUR LITTLE TABLES PERFECT THE DESIGN, TO PLACE SMALL ITEMS SUCH AS YOUR MOBILE PHONE, OR YOUR CIGARETTE PACK. THE TOP ELEMENTS ARE MODULAR, SO THAT THEY CAN BE CLEANED SEPARATELY, AND REVEAL A STORAGE SPACE INSIDE. THE SOBHIYE TABLE IS ESPECIALLY CREATED TO BE USED ON YOUR BALCONY DURING THIS LEBANESE CUSTOM, BUT IT CAN ALSO BE USED INSIDE OF YOUR HOUSE, AND HOWEVER YOU SEE FIT.

AXONOMETRIC VIEW- ASSEMBLED AXONOMETRIC VIEW- DISPERSED

50 cm 60 cm 20 cm 25 cm 1 cm 25 cm 4 cm 3 cm 24 cm 1 cm 27 cm 1 cm 6 cm 1 cm 6 cm PLAN ELEVATION

REALISTIC AXONOMETRIC VIEW

MODELING PARTS OF THE SOBHIYE TABLE IN THE STUDIO

FOR MY BACHELOR’S DEGREE PROJECT, I WANTED TO CREATE HOUSING FOR STUDENTS, UNITING THE COMFORT OF AN APARTMENT INTO SMALL STUDIOS. EACH STUDIO (OR FLAT) HAS ITS OWN KITCHENETTE, BED, DESK, WARDROBE AND BATHROOM / WC. I TOOK ADVANTAGE OF THE INDUSTRIAL ARCHITECTURE WITH THE GLASS ROOFS AND THE HIGH CEILINGS TO SEPARATE THE COMMON AREAS AND PRIVATE SPACES (STUDIOS), WHICH EXTEND OVER TWO FLOORS. WE ACCESS THE BUILDING THROUGH TWO MAIN GLASS DOORS , AND FIND THE RECEPTION ON THE RIGHT. ENTERING THE COMMON AREA, WE FIND A SNACKING AREA IN THE CENTER WITH COFEE TABLES ON EACH SIDE. A GREEN CORNER IS THE CENTER OF THE SPACE, SURROUNDED BY STAIRS THAT TAKE US TO THE 1ST FLOOR. AT THE BOTTOM IS A LOUNGE AREA WITH SOFAS TO REST. THE COMMON SPACE FORMS AN OPEN SPACE, WITHOUT PARTITIONS, WITH A CEILING HEIGHT OF MORE THAN 6M, ALLOWING NATURAL LIGHT TO PASS THROUGH THE CEILING CANOPIES. ON BOTH SIDES OF THE COMMON SPACE ARE THE PRIVATE AREAS, ACCESSIBLE BY 2 DOORS ON EACH SIDE. THEY ARE SEPARATED BY A CORRIDOR FOR ACOUSTIC AND INTIMATE REASONS. I CREATED GREEN OPEN SPACES INSIDE THE COMMON SPACES TO BRING NATURAL LIGHT TO THE GROUND FLOOR. FINALLY, A GYM IS AVAILABLE TO STUDENTS, AS WELL AS A GAME ROOM. A LAUNDRY ROOM IS ALSO ACCESSIBLE IN THE BASEMENT. I USED WOOD AS THE ONLY MATERIAL, TO BRING OUT THE RUSTIC EFFECT OF THE BUILDING, AND TO GIVE A COMFORT EFFECT.

s.g.flats
1st floor ground floor section
section
AA’
BB’
reception snack bar shared lounge studios inner courtyards apartments game room gym common space private space

For my design object, I was inspired by the room decoration of the Hobo Hotel in Stockholm. I took the concept of a modular wall, but I created larger holes to put shelves. In my opinion, a modular wall is a very practical and useful architectural object, especially for young costumers ; it fits perfectly in my project. It is a fundamental object, which has a great importance in the architecture of s.g. flats.

Hobo Hotel
150 cm 120 cm 50 cm 30 cm 3 cm 4 cm 20 cm 2 cm 5 cm 16 cm 8 cm 10 cm 11 cm 10 cm 30 cm 14 cm 10 cm 10 cm 30 cm 14 cm 10 cm

FOR MY HOTEL ROOM PROJECT, I WANTED TO CREATE A UNIQUE EXPERIENCE : THE CLIENT MUST FEEL AMAZED BY THE ARCHITECTURE OF THE ROOM. TO DO SO, I WANTED TO CREATE CIRCULAR PARTITIONS WITH WINDOWS THAT GIVE WAY TO THE MAGNIFICENT VIEW OF THE VALS MOUNTAINS. I PLACED A MIRROR ON THE CEILING, TO HAVE A SENSE OF GRANDEUR, AND TO BRING MORE NATURAL LIGHT TO THE INTERIOR OF THE ROOM.

windows

0.68 0.80 0.80 0.68 1.60 0.72 0.77 0.72 0.78 A A' D' B B'

cubes

FOR MY PROJECT OF INDUSTRIAL RECONVERSION INTO APARTMENTS, I WANTED TO CREATE A SEPARATION BETWEEN PUBLIC SPACES (LIVING ROOM, DINING ROOM, KITCHEN), AND PRIVATE SPACES (BEDROOMS, BATHROOM, TOILET). I WANTED TO CREATE SMALL PRIVATIZED APARTMENTS IN THE TWO BIG ONES. THE FIRST (AND THE LARGEST) CONTAINS THREE SMALL “PRIVATE APARTMENTS”, EACH WITH A BEDROOM, A WARDROBE, AND A BATHROOM / WC. THE SECOND HOUSES A BEDROOM WITH ITS BATHROOM / WC ON THE GROUND FLOOR, AND ABOVE, A SECOND “PRIVATE APARTMENT” WITH ITS BEDROOM, WARDROBE, AND BATHROOM / WC. I USED JUST ONE MAIN MATERIAL : NATURAL WOOD, TO KEEP THIS RUSTIC LOFT EFFECT.

ground floor
1st floor

The Va-et-Vient lamp

A STATEMENT PIECE, A GEOMETRIC DESIGN THAT EXPLORES REPETITION, RATIO AND ENCLOSURE, THE VA-ET-VIENT IS COMPOSED OF AN EXTERNAL RECTANGLE STRUCTURE THAT ENCLOSES A BOLD CUBE OF LIGHT. CRAFTED FROM SCRAP METAL OR WOOD, THE ‘VA-ET-VIENT’ REVELS IN THE RAW MATERIALITY OF ITS CONSTRUCTION. ‘VA-ET-VIENT’ ALSO FEATURES A PLAYFUL MODULAR DESIGN: TO OPERATE THE LIGHT, THE USER MUST MOVE THE OUTER BOX. IT INVITES USERS TO INTERACT WITH THE DESIGN AND THROUGH THIS, THE IDEA OF LIGHT, TO CONSIDER ITS INFLUENCE ON THEIR OWN SPACES.

AVAILABLE ON BEIT COLLECTIVE’S WEBSITE.

‘SERENA’ TOOK INSPIRATION FROM ARCHES IN RICARDO BOFILL’S PROJECT THE FACTORY, AN ARCHITECTURAL ECHO THAT ALSO FINDS RESONANCE IN TRADITIONAL LEBANESE DESIGN. THE LIGHT-FITTING MAKES USE OF REPEATED PANELS - SOME INVERTED, OTHERS AT DIFFERENT HEIGHTS - THAT CREATE A BALANCE AND HARMONY THROUGH THE INTERPLAY OF FORM. MADE FROM HAMMERED ALUMINIUM SHEETS WITH A COPPER FINISH, ‘SERENA’ IMBUES ITS SURROUNDINGS IN A WARM GLOW AND COMMUNICATES A SENSE OF SERENITY.

AVAILABLE ON BEIT COLLECTIVE’S WEBSITE.

The Serena lamp

The Serena lamp & The Va-et-Vient Lamp at

SERENA LAMP IN METAL AT GOODMOODS MARCH 22, PARIS
VA-ET-VIENT AND BESPOKE SMALL SERENA AT FRANCOIS BERNARD MARCH 22, PARIS BESPOKE SERENA AT FRANCOIS BERNARD MARCH 22, PARIS

LOCATED IN THE 17TH ARRONDISSEMENT OF PARIS, MY DESIGN PROJECT FOCUSES ON THE DISPLAY OF COLORS, MATERIALS AND ART, CREATING A COZY AND RELAXING HOME. WHEN ENTERING THE APARTMENT, WE ARE WELCOMED BY A WARM YELLOW “SUNFLOWER” COLOR ON THE WALLS, AND A MYSTICAL WHITE CEILING LAMP. THE KITCHEN FLOOR AND BACKSLASH ARE COVERED WITH TERRAZZO STYLE PVC, AND TWO MAIN CEILING LAMPS ARE HIGHLIGHTING THE BAR, PAINTED IN GREEN, CREATING A LINK BETWEEN THE KITCHEN AND THE LIVING ROOM, WITH THE TV STAND’S GREEN DOORS. THE LIVING ROOM IS COVERED WITH A SOOTHING PINK COLOR, REFLECTING THE CLIENT’S FEMININE PERSONALITY. THE DESIGN LAYOUT FEATURES A MAIN WALL WHERE THE TV STAND AND THE BOOKSHELVES ARE PLACED. THE CLIENT WANTED TO KEEP THE EXISTING SOFA, WHICH IS FACED TOWARDS IT, DIVIDING THE ROOM INTO A LIVING ROOM AREA AND A KITCHEN/DINING AREA. WANTING A LOT OF STORAGE FOR HER CLOTHES, A WARDROBE IS COVERING THE WALL FACING THE WINDOW, BETWEEN THE ENTRANCE AND THE SMALL HALLWAY ACCESSING THE BEDROOM. THIS HALLWAY IS PAINTED THE SAME COLOR AS THE ENTRANCE, LINKING THEM AS “TRANSIT AREAS”. WHEN ENTERING THE BEDROOM, A DRESSING AREA IS PLACED ON THE LEFT, SPLITTING THE ROOM INTO A “CLOTHING AREA” AND A “RESTING AREA”. THE MAIN WALL IS COVERED WITH A BESPOKE WALLPAPER, CONVERTING IT INTO AN ART PIECE.

A A’ B B’ C’ C D’ D PLAN

LIVING ROOM/ KITCHEN ELEVATIONS

SECTION AA’ SECTION BB’
SECTION CC’
SECTION DD’

BEDROOM ELEVATIONS

NORTH ELEVATION

SOUTH ELEVATION

WEST ELEVATION

EAST ELEVATION

SUBJECT : YOU HAVE 3 PARALLELEPIPED OF 3Mx4Mx7M.IMBRICATE THESE PARALLELEPIPED IN ORDER TO CREATE A COMMON SPACE.

I WANTED TO CREATE A BUILDING IN HEIGHT (IMPRESSION OF ELEVATION). FOR THAT, I HAVE RAISED THE GROUND FLOOR OF SOME CM, AND PLACED THE BUILDING VERTICALLY. I CREATED A GROUND FLOOR CONTAINING THE LIVING ROOM AND THE KITCHEN, A 1ST FLOOR WITH A SMALL LIVING ROOM AND BATHROOM / WC, A 2ND FLOOR WITH THE PARENTAL ROOM, AND THE 3RD FLOOR WITH THE 2ND CHAMBER. THE FRONT FACADE IS FULLY GLAZED, TO HAVE AN ENTIRE VIEW ON THE OUTSIDE AND LET THE SUNLIGHT IN. THE STAIRCASE CAGE IS FULLY GLAZED AS WELL, IN ORDER TO LET THE SUNLIGHT ENTER FROM ABOVE. ALL WALLS ARE IN CONCRETE, TO KEEP THE APPEARANCE OF PURITY AND SIMPLICITY.

Single family dwelling

Ground Floor Plan 1st Floor Plan 2nd Floor Plan 3rd Floor Plan
Front view, South orientation Left view, West orientation Back view, North orientation Right view, East orientation
2
A R T

W O R K

“I’M FINE” SCULPTURE, RAKU CLAY, LONDON, 2022.
A STATUETTE
DRAWING OF
“LA MADELEINE”, CHARCOAL, PARIS, 2016.
DRAWING OF A STATUETTE, “L’HOMME AU CHAPEAU”, CHARCOAL, PARIS, 2016.
ST SUPPLICE CHURCH, PENCIL, 3 HOURS DRAWING, PARIS, 2016.
FIGURE DRAWING OF CLASSMATES, PENCIL, 20MIN EACH, PARIS, 2016.
FIGURE DRAWING,
PEN, 5 AND 10MIN, PARIS, 2016.
FIGURE DRAWING, ACRYLIC, 10MIN EACH, PARIS, 2016. FIGURE DRAWING, PEN, 7 AND 6MIN, PARIS, 2016. WATERCOLOUR, VENICE, ITALY, 2017. PAINTING OF THE VIEW WATERCOLOUR, VENICE, ITALY, 2018.
ON THE SPOT QUICK DRAWINGS, PEN, VENICE, 2018.
ON THE SPOT QUICK DRAWINGS, PEN AND FELT PEN VENICE, 2018.
ON THE SPOT QUICK DRAWINGS, PEN AND FELT PEN VENICE, 2018.
ON THE SPOT QUICK DRAWINGS, FELT PEN KNOLL, PARIS, 2018.
ON THE SPOT QUICK DRAWINGS, FELT PEN KNOLL, PARIS, 2018.

Turn static files into dynamic content formats.

Create a flipbook
Issuu converts static files into: digital portfolios, online yearbooks, online catalogs, digital photo albums and more. Sign up and create your flipbook.