Masters Portfolio Application Edinburgh University

Page 1

Curriculum Vitae

Personal Statement

The Planting Sanctuary

BSc Year 3 Final Project, Jan - May 2022

Belfast Telegraph Adaptive Reuse

BSc Year 3 Semester 1 Project, Oct - Dec 2021

Tree Biodiversity Research Centre

BSc Year 2 Final Project, Jan - May 2021

Work From Practice

Jul - Dec 2022

Year 1 Architecture BSc

pieces from 2019/20

ISABELLA INNOCENZI PORTFOLIO UUN: S 2559751
Selected
i 2 ii 3 iii 4-19 iv 20-27 v 28-32 vi 33-35 vii 36-37
2
3
INTERIOR VIEWS REVIT/ENSCAPE THE PLANTING SANCTUARY iii 4

THE PLANTING SANCTUARY CONCEPTUAL SKETCHES AND MODEL PEN/CARD/BALSA/ONION BAG/PHOTOSHOP

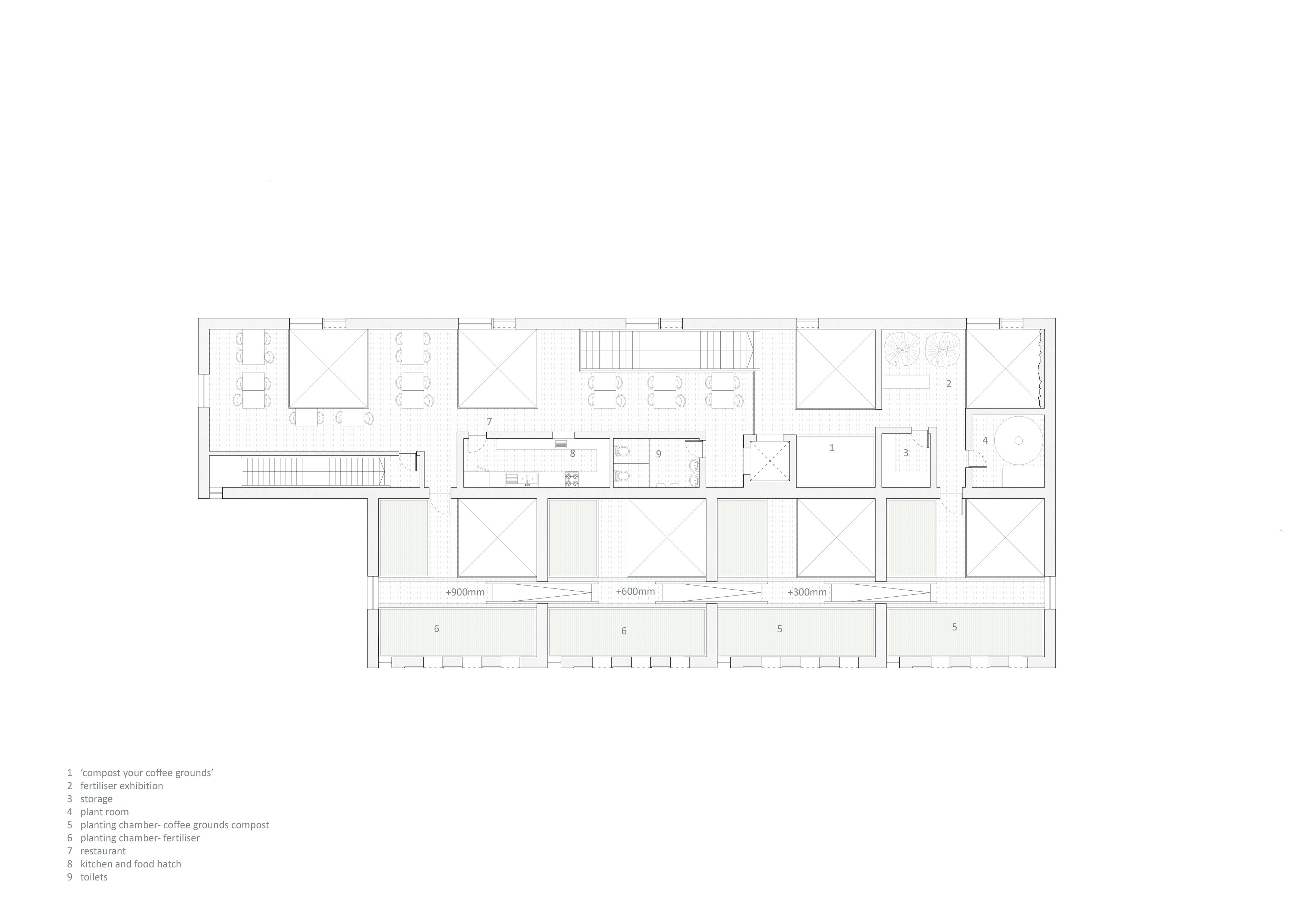
‘The Planting Sanctuary’ is a museum intervention within the heart of Bristol by the wharf. The museum channels sustainable design notably through its solid cork construction. Spatial decisions and gradual level changes draw visitors into and upwards through the museum so that the entirety of the exhibitions are experienced in a flowing, effortless way.

5
6
THE PLANTING SANCTUARY CONCEPTUAL SKETCHES PEN
THE PLANTING SANCTUARY SITE PLAN AUTOCAD/PHOTOSHOP 7
8
THE PLANTING SANCTUARY GROUND FLOOR PLAN AUTOCAD/PHOTOSHOP
9
10
11
THE PLANTING SANCTUARY 1:50 WORKING MODEL CARD/BALSA
12
THE PLANTING SANCTUARY 1:10 DETAIL MODEL CARD/BALSA/ACETATE

THE PLANTING SANCTUARY SECTION A-A AUTOCAD/PHOTOSHOP

13
14
THE PLANTING SANCTUARY 1:200 DEVELOPMENT MODELS CARD/BALSA

SOUTH ELEVATION

THE PLANTING SANCTUARY NORTH ELEVATION REVIT/PHOTOSHOP
15
16
THE PLANTING SANCTUARY NORTH SECTIONAL PERSPECTIVE REVIT
17
THE PLANTING SANCTUARY TECHNICAL DETAILS AUTOCAD/REVIT
18
THE PLANTING SANCTUARY NOW VS FUTURE REVIT/PHOTOSHOP
19
THE PLANTING SANCTUARY TECHNICAL DETAILS AUTOCAD
SECTIONAL PERSPECTIVE REVIT 1:50 MODEL CARD/BALSA BELFAST TELEGRAPH BUILDING ADAPTIVE REUSE iv 20

BELFAST TELEGRAPH BUILDING ADAPTIVE REUSE INITIAL SKETCH PLANS AND CONCEPT SKETCH PROCREATE/PEN

This project involved the adaptation of the Belfast Telegraph Building into a students’ union with market halls, art gallery and library. The existing primary structure and facade are maintained to lower environmental impact and preserve the historical integrity of the building. The creation of offset voids within each floor plate allows light to trickle through the spaces.

21
22
BELFAST TELEGRAPH BUILDING ADAPTIVE REUSE SKETCH RENDER REVIT/PROCREATE
TELEGRAPH BUILDING
23
BELFAST
ADAPTIVE REUSE CONCEPTUAL SKETCHES AUTOCAD/PHOTOSHOP
24
BELFAST TELEGRAPH BUILDING ADAPTIVE REUSE SECTION A-A AUTOCAD/PHOTOSHOP
25
BELFAST TELEGRAPH BUILDING ADAPTIVE REUSE INTERIOR VIEW REVIT
26
BELFAST TELEGRAPH BUILDING ADAPTIVE REUSE 1:100 STRUCTURAL MODEL CARD/BALSA
27
BELFAST TELEGRAPH BUILDING ADAPTIVE REUSE INTERIOR VIEW REVIT
TREE BIODIVERSITY RESEARCH CENTRE SITE PLAN AUTOCAD/PROCREATE
v 28
TREE BIODIVERSITY RESEARCH CENTRE

TREE BIODIVERSITY RESEARCH CENTRE CONCEPTUAL SKETCHES PROCREATE

A research space situated by the Lagan river, immersed in orchards and focusing on sustainability through reclaimed materials and low carbon energy systems. The intervention took the form of a pin-wheel to respect an existing oak tree. Picture windows capture views of the river to create enjoyable spaces to inspire the researchers.

29
30
TREE BIODIVERSITY RESEARCH CENTRE SECTIONAL PERSPECTIVE REVIT
31
TREE BIODIVERSITY RESEARCH CENTRE SECTIONS AUTOCAD/PROCREATE
32
TREE BIODIVERSITY RESEARCH CENTRE 1:200 MODEL CARD/PHOTOSHOP

My work for Delve focused on house extensions in London, creating elevations showcasing materiality and form as well as internal and garden views. Additionally, I explored interior design options.

WORK IN PRACTICE vi
PERSPECTIVE
VECTORWORKS/PHOTOSHOP 33
DELVE
ELEVATIONS
DELVE
VECTORWORKS/PHOTOSHOP 34
PERSPECTIVE VIEWS
Architectural Layouts 1 & 2 Physical Build Parameters Parts with Sandpit Project for using kit of parts Specification Dimensions manufacturer / productions Interoperability toolkit 6 7 8 9 1 2 3 1 1 1 3 10 9 4 9 5 11 1 Single Sided Partition System 2 Medical Equipment 3 Internal Partition System 4 Reflected Ceilings 5 Internal Door 6 Continuous PPC Coping 7 Parapet Structure 8 Roof Cassette 9 External Wall (Trapezoidal Sheet on SFS) 10 External Wall With Rockpanel Rainscreen Cladding 11 Painted Hardwood External Door Architectural Report on CIH Health Sandpit 16 The Manufacturing Technology Centre HLM EXPLODED AXONOMETRIC REVIT The axonometric completed for HLM was for a
hospital project. The drawing highlights the pieces of the ‘kit of parts’ necessary to construct the modular room. 35
MMC

Hand-drawn pieces from my first year of studies. These include a working and living space for a carpenter, situated on a narrow site in central Belfast. The suspended living spaces form a ‘floating’ spatial layout above the work space. The proceeding piece is an interpretation of the Queen’s University maths and physics building inspired by Escher’s ‘Relativity’.

NEW WORK Axonometric of Final Design Scale- 1:50 YEAR 1 ARCH BSC vii
36

1 ARCH BSC QUEEN’S UNIVERSITY MATHS AND PHYSICS BUILDING PENCIL

37
YEAR

Turn static files into dynamic content formats.

Create a flipbook
Issuu converts static files into: digital portfolios, online yearbooks, online catalogs, digital photo albums and more. Sign up and create your flipbook.
Masters Portfolio Application Edinburgh University by Isabella Innocenzi - Issuu