

isabellamart1608@gmail.com
633033629
Madrid, España
HABILIDADES
DISEÑO GRÁFICO
AutoCAD
Rhinoceros 3D
Adobe Photoshop
Adobe InDesing
Microsoft Office
IDIOMAS
Inglés FCE B2
Francés DELF B1
![]()


isabellamart1608@gmail.com
633033629
Madrid, España
HABILIDADES
DISEÑO GRÁFICO
AutoCAD
Rhinoceros 3D
Adobe Photoshop
Adobe InDesing
Microsoft Office
IDIOMAS
Inglés FCE B2
Francés DELF B1
PERFIL PROFESIONAL
Estudiante de Arquitectura en la Universidad Politécnica de Madrid cursando el cuarto año, con un fuerte interés en el diseño de proyectos arquitectónicos y la construcción. Me considero una persona creativa, flexible y con capacidad de organización, cualidades que me han permitido obtener buenos resultados académicos Tengo experiencia en el trabajo en equipo, destacándome por mi compromiso, responsabilidad y eficiencia, así como por mi habilidad para adaptarme a entornos multidisciplinares y multiculturales, comunicándome con fluidez en varios idiomas. Mi objetivo es aplicar lo aprendido en la carrera y ganar experiencia profesional.
OTRAS HABILIDADES
Trabajo en equipo
Creatividad e ingenio
Organización y orden
Capacidad de aprendizaje rápido
Programas de diseño y arquitectura
Programas generador de imagen AI
DATOS ACADÉMICOS
2025
2024-2025
Intercambio académico en College of Architecture and Architectural Engineering (Seúl)
Seoul National Univerity
Intercambio académico en College of Architecture & Urban Planning (Shanghai)
Tongji University
2021-
Grado en Fundamentos de la Arquitectura
Universidad Politécnica de Madrid
MÉRITOS ACADÉMICOS
2021-2023
2022
Matrícula de Honor en Proyectos 0, 1, 2, 4 en la universidad
Notas destacables (9.0) en Dibujo, Análisis e Ideación 2 y en Geometría y Dibujo
Arquitectónico 1
EXPERIENCIAS
2022-2024
Proyectos destacados publicados en la web del Archivo de Diseños Arquitectónicos de la ETSAM (“Mantai”, “Etheral” y “Translucent”)
Proyectos expuestos en Puertas Abiertas de la ETSAM en el centro de diseño de Matadero Madrid (GDA 1, DAI 2, Análisis, P1)
Obras destacadas recogidas en el libro “Ejes vertebradores de la ciudad” de mis profesores universitarios (Mariasun Salgado de la Rosa y Javier Francisco Raposo Grau).
ISBN: 978-84-124115-7-7
Bocetos arquitectónicos para proyectos familiares
Profesora particular de Física, Química y Matemáticas
índice
PROYECTOS 4: MANTAI
Propuesta a Matrícula de Honor (10)
Unidad Soto
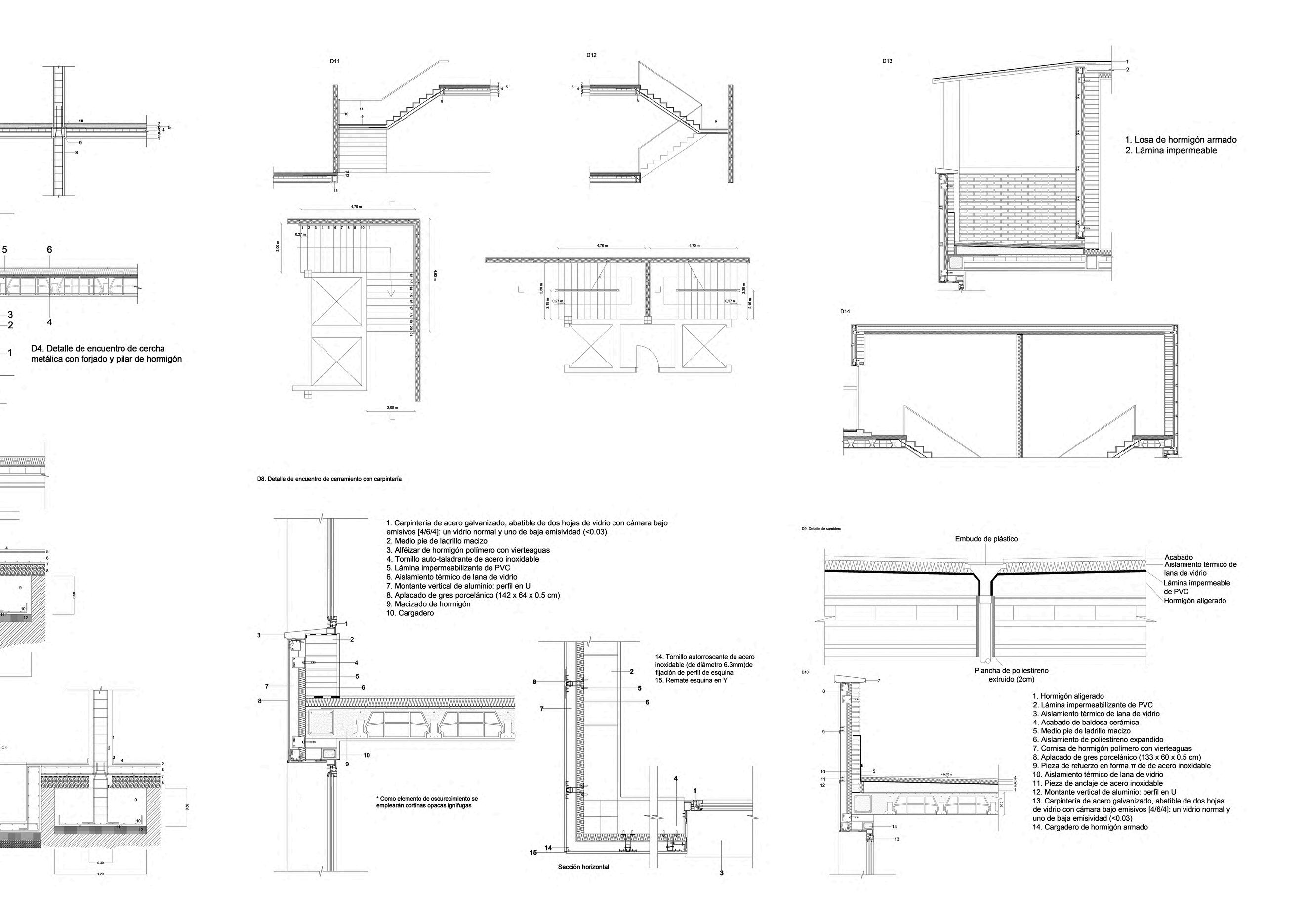
CONSTRUCCIÓN 2: PROYECTO CONSTRUCTIVO
Nota 8.0
Profesor: Felipe Somarriba
ANÁLISIS DE LA ARQUITECTURA: Análisis Masivo
Nota 8,5
Profesores: Daniel Diez & Ana Esteban
PROYECTOS 2: ETHEREAL
Propuesta a Matrícula (10)
Unidad Aranguren - Gallegos
PROYECTOS 1: TRANSLUCENT
Matrícula de Honor (10)
Unidad Aranguren - Gallegos
DIBUJO, ANÁLISIS E IDEACIÓN 2: Fragmentos de proyectos
Nota 9 0
Profesores: Mariasun Salgado & Javier Raposo
El proyecto busca redefinir la arquitectura como una herramienta de convivencia que reconcilie lo urbano con la naturaleza, fomentando un entorno híbrido donde humanos y no humanos compartan el espacio. La intención es superar la visión de la ciudad como un ecosistema exclusivamente humano, promoviendo la biodiversidad y las relaciones sinantrópicas entre especies.
MANTAI, inspirado en la palabra japonesa MANKAI ("florecer"), representa la integración de flora y fauna en la Torre de Madrid mediante un manto sinantrópico de materiales biodegradables Este elemento conecta el edificio con su entorno, creando un refugio para la biodiversidad dentro del paisaje urbano
El proyecto transforma el edificio en un refugio dividido en cuatro biosistemas adaptados a las necesidades de diversas especies. Esto incluye modificaciones en fachadas, plataformas biodegradables y áreas diseñadas para optimizar la convivencia entre humanos, animales y plantas. El manto no solo es funcional, sino también un símbolo visual y ecológico de esta nueva relación entre ciudad y naturaleza.
MANTAI replantea la arquitectura como un medio para recuperar espacios compartidos entre humanos y naturaleza, generando un equilibrio sostenible y un modelo innovador de coexistencia urbana.
















































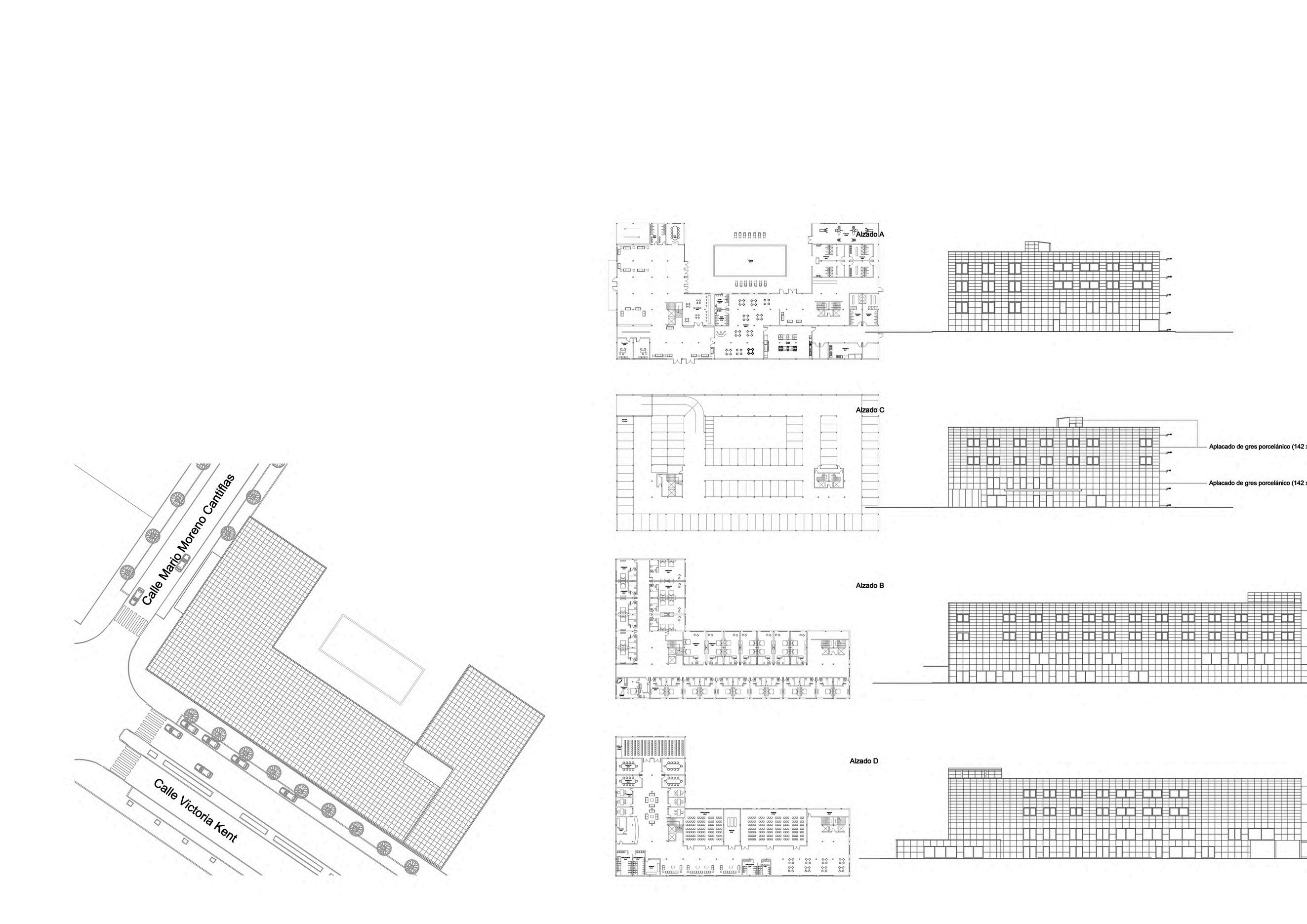
proyecto constructivo

Proyecto de hotel de 4 plantas y sótano-garaje, organizado por la macla de dos volúmenes de distintas alturas.
Terreno:
Presión admisible 3,5 kg/cm² (Buena)
Nivel freático: -2,00m



En la asignatura de Análisis de la Arquitectura, se realizó un estudio del Finlandia Hall de Alvar Aalto, centrado en su análisis masivo, descomponiendo su lenguaje formal y su configuración volumétrica. El análisis se basó en la identificación y diferenciación de tres operaciones fundamentales en el diseño del edificio:
Adición: Suma de distintas partes de la composición volumétrica.
Sustracción: Vacíos y perforaciones que crean contrastes y relaciones entre interior y exterior.
Macla: Integración de volúmenes superpuestos que generan continuidad y fluidez.
El proyecto no solo permitió profundizar en la obra de Alvar Aalto, sino que también fomentó el desarrollo de habilidades analíticas aplicadas al estudio de la arquitectura, contribuyendo a la comprensión de cómo las decisiones formales afectan la experiencia del espacio construido


El objetivo de este cuatrimestre fue el desarrollo de dos propuestas ubicadas en el Yacimiento Arqueológico de Tiermes.
Game of Tensions: El primer ejercicio consistió en el diseño de un espacio de trabajo que, a su vez, generara una zona de sombra y descanso. La propuesta se basó en la organización de múltiples capas de redes flexibles ancladas al suelo e interconectadas en distintos puntos, formando espacios diferenciados según su uso, dando lugar a un espacio social.
Circle Maze: El segundo ejercicio consistió en la proyección de un pabellón de arte.
La idea surgió a partir de un objeto encontrado: una abrazadera. Aunque sus dimensiones no permitían generar un volumen por sí misma, sus propiedades de anclaje y su forma permitieron utilizarla como elemento constructivo y estructural
Decidí crear el espacio mediante una secuencia de planos construidos a partir de la repetición de módulos Estos planos conforman los muros, que actúan como expositores La idea final fue la creación de un espacio laberíntico que pudiera recorrerse libremente según la preferencia del visitante










Durante este curso, se desarrollaron dos proyectos encuadrados en la ciudad de Nueva York
Crystal: El primer proyecto fue la realización de una estructura vertical estable, es decir, una torre, la cual debía estar hecha a partir de materiales encontrados. Por este motivo, este primer proyecto tuvo un carácter más experimental y ‘libre’ El objetivo consistió en alcanzar un metro y medio de altura mediante la unión de módulos
Sequence of planes: El segundo ejercicio consistió en proyectar una estructura horizontal, un puente, que además de ser una pasarela peatonal, pudiese ser un espacio arquitectónico en sí mismo y en relación con un entorno específico
Para este ejercicio, el espacio arquitectónico creado fue un puente galería a modo de espacio de exposición laberíntico inspirado en el pabellón de Aldo van Eyck, donde la relación de la estructura con el exterior fuera difusa, generando una situación intermedia entre el puente y el contexto, mediante la utilización de una secuencia de planos, los cuales se curvan puntualmente.























fragmentos de proyecto
Grupo M - Primavera 2022

























