









![]()










Syracuse University SOA
ARC 307 | Fall ‘22 | Prof. Marcos Parga
With Julia Bolukh

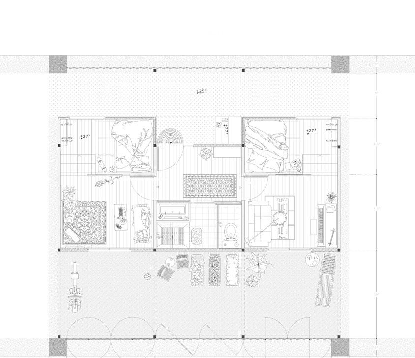
Just as vernacular Puerto Rican Casitas spring up throughout the gardens of Melrose, Barrio creates flexible spaces for this particular type of gathering and cultural expression. In these shared spaces, neighborhood residents are seen sharing food, dancing, and any other facets of what may preserve the idea of home from hundreds of miles away. It’s an act of taking back parts of the city and revitalizing them to reinforce the community the residents hold dear.








Barrio aims to give the city access to this space typology without the risk of being displaced. A system of “casita” spaces is established throughout a primary 30ft grid. Standardized units on a secondary 10ft grid become the building blocks for endless permutations of space distribution with the agency of those inhabiting. The middle floor of each vertical 10ft grid is reserved for negotiation between the inhabitants of the top and bottom floor.
TopLeft Risograph-printed interior perspective
BottomLeft Risograph-printed elevational perspective
TopRight Living unit plan
BottomRight Shared ‘Casita’ space plan

The permanence of the primary 30ft grid is expressed with a dominant concrete materiality and the fluid moving parts allow for informal adjustment of space with lighter cross laminated timber panels. The framework not only evokes a need to fill, but also creates a lighter spatial language sensitive to the surrounding context.


Syracuse University SOA



This Syracuse University library extension intends to function as a series of thresholds to demarcate an essential entrance into the University for commuting students and visitors. It connects the ever isolated architecture school with the rest of the campus.
The design, being a offsetting, or an extrusion, of the South facade of Slocum is a physical extraction the foundations of the profession (library archives) and placing it where it cannot be ignored. The proposed translucent wall series displays the core aspect of the project (books) and responds to the site by appreciating the advantages of a South facade and creating a permeable footprint to encourage interaction while minimizing obstruction within its surrounding context. The synchronization of the different elements including structure and environmental systems dictates the overall design of the different vertical and liminal operations.




The driving factors of the design are honesty of structure and material. Trabeated systems mimic the proportions of the existing school of architecture. The cantilevered South facade offers an element of lightness largely in contrast to the monolithic North facade.
FarLeft Structure systems diagram
LeftAboveCurtainwall South facade detail section
LeftBelow Door detail render, V-ray, Photoshop
AboveLayers diagram (by Issey Ren)
Right Facade assembly exploded axonometric
BelowLeft Facade zoom-in render, V-ray, Photoshop
BelowRight Ground entrance zoom-in render, V-ray, Photoshop






TopLeft 1/16 physical model
BottomLeft Exterior perspective render Aboveinteriorlibraryperspectiverender
The designing of a process that shapes a space
Syracuse Florence SOA
ARC 408 | Fall ‘23 | Prof. Olivia Gori
With Matthew Williams and Shannon Grech

An already established use of the prompted site and within the town but a disconnect between all of these moments idiosyncratic to Rio Marina results in a series of diffused interventions on several notable sites which were:
1. The Mine
2. The Path
3. The Platform
4. The Town
The intervention intends to blend each site’s differences while also responding to what had already been happening on each site.
The ecological and economic history deeply rooted in mining lead to a revival of abandoned infrastructure to create a new material which will be found as several objects dispersed throughout these four sites.





Through these four sites we create a process which has a beginning and an end. In each of these sites the permanence of our hand varies. In some, we acknowledge our intervention by sealing it. Some age and wither away. In others, it is placed and apparent, but eventually packs up and goes away.












“Feelings are transitionary spaces” Summer ‘23 | Independent Project

This project explores the possibility that emotions are spatial. After closely documenting thoughts and feelings throughout the year, the project gathers and analyses them.
It reflects on what happens next, what to do with all of these lessons.

“At the end of this, she will gather those twelve months, create a space within herself, and inhabit it. She will have more questions than she started with but she will be at home. I will fill her with permanence. A space to hold her during her growing pains. I will gladly make my bed. I will take my time. I will cry as I lie in it.
I have missed it very much after all.”



This is the spatial manifestation of this year’s reflections and feelings. They are simple emotions and therefore simple spaces.
It was to be something monolithic, solid, warm, natural, close to the heart and to the earth. Able to be manipulated by hand. Clay.
Right Clay physical model
Top Floor plan
AboveElevation
Below Siteless diagram




GRT Architects
Summer ‘24 | Project Manager Tim Chen




Aluminum extrusion customizable design for small gallery interior. Each proposed arrangement has an intended use such as book shop, graphic display, and merchandise sale.
This design is one part of a larger renovation plan for the gallery space. Because of the immersive nature of many of the installations existing in the space, the design is flexible according to the needs of each designer.
The design aims to use as much pre-existing material on site from past exhibitions as possible, including plywood and canvas.


b.
c.
e.





Working at GRT architects for two consecutive summers as an intern was a one of a kind opportunity that allowed me to work with and continuously learn from a wonderfully prestigious and diverse group.
In my time here, I contributed by rendering, digital modeling, and drafting elevations, plans, and millwork detail sets. To know me is to know how grateful I am for this experience.
a. Back of house storage system
b. Book shop scheme
c. Gallery display scheme
d. Info panel scheme
e. Merchandise shop scheme
f. Custom system kit of parts
g. Aluminum extrustion connection piece axon
h. Connection piece detail render




GRT Architects
Summer ‘23 + ‘24 | Project Manager Rylie Davis






Design Competition: Won
Program study, drafting, modeling, rendering Rhino, V-ray, Photoshop
Top Left Version 1 proposal exterior perspective
BottomLeft Version 2 proposal exterior perspective
TopRight Object display pedestal
BottomRight Interior office space perspective
GRT Architects
Summer ‘23 | Project Manager Cecilia Gonzalez Rubio




Drafting, modeling, rendering, schedules Rhino, V-ray, Photoshop
Top Left Exterior perspective
BottomLeft Exterior perspective
TopCenter Garage interior perspective
Bottom Center exterior perspective
TopRight Interior living room perspective
BottomRight Interior kitchen perspective




