Interior Design Portfolio | Irene Lomonte

Page 1


IRENE LOMONTE

interior architecture

As an architect and designer, my vision centers on engaging with the multiple scales inherent to the design process, creating integrated solutions that connect the macro context with the smallest design details.

At the micro scale -the content- interior design becomes a vital layer that defines the character and experience of the container. Through details, materials, textures, lighting, and comfort, it enhances spatial qualities and generates a strong sense of place, focusing on the human scale and the way people perceive, experience, and interact with their surroundings.

+39 351 3737956 ilomonte@gmail.com

http://www.linkedin.com/in/irene-lomonte

https://issuu.com/irene.lomonte/docs/portfolio_irene_lomonte_s_

| Clothing Boutique

Sales Office & Showroom

Private beach villa
DP10 Bahias
Y&C
Mamma Mia Restaurant
Latitude 10 Hotel Boutique
Pharma wholesaler
Flor Blanca Hotel Boutique

interior | residential

Architecture by Richard Müller

Conceptualization | Moodboards | Schematic Design | 3D modeling | 3D Rendering

PRIVATE RESIDENCE | CASA VINNY

2021 - PROFESSIONAL WORK - SENS INTERIOR DESIGN

SANTA TERESA, PUNTARENAS, COSTA RICA

COLLABORATION WITH DESIGNER ARIANA ROJAS, DESIGN DIRECTOR RAQUEL FISCHEL

CONCEPT

The design concept draws inspiration from the natural treasures found on the beaches of Santa Teresa—driftwood, rock pools, shells, landforms, and fishermen’s buoys. The forms, textures, and colors of these elements inform the architecture and interiors, creating a rich sensory experience. As guests walk through the entrance tunnel, they are transported into a magical realm, offering a feeling of crossing a threshold into a serene yet mysterious space. The design invites an emotional connection, encouraging exploration of the home’s spaces and materiality, fostering an intimate relationship with its surroundings.

SOLUTION

The design solution for this private beach village, features a sun-bleached color palette punctuated by muted accents. Shades of driftwood, misty gray rocks, watery greens, and the pinkish hues of burnt orange pochote flowers over the sand bring the beauty of the beach to life. The interiors are clean, raw, and textural, blending multi-layered materials, vintage pieces, and unique finds to create a peaceful yet exotic retreat. The overall effect is a fresh, tranquil space that harmonizes with nature while offering unexpected features.

interior | high-end residential 02

Ecodesarrollo Papagayo S.R.L.

Conceptualization | Moodboards | FF&E proposal | 3D modeling interiors

BAHIAS | DP10

2020 - PROFESSIONAL WORK - SENS INTERIOR DESIGN PAPAGAYO, GUANACASTE, COSTA RICA

COLLABORATION WITH DESIGNER ARIANA ROJAS, DESIGN DIRECTOR RAQUEL FISCHEL

CONCEPT

Drawing inspiration from the architectural vision of the architect Antoine Predock, we conceive interiors as an extension of the natural surroundings—a unique and tranquil refuge that harmonizes with the elements: air, earth, fire, and water. The spaces blur the boundaries between indoors and outdoors, creating an ambiguous line where the two seamlessly coexist.

SOLUTION

The proposed design features a Décor that balances rich textures with minimalism. High-end designer lighting fixtures elevate the sense of luxury and comfort. The furniture is designed to be timeless, fostering a feeling of continuity throughout the spaces. It prioritizes comfort and functionality while also evoking intimacy. Carefully curated design accents and statement pieces contribute to a unique contemporary art collection, tailored for each home in a personalized layout.

SCENARIOS

INTERIOR DESIGN LAYOUT FF&E proposal

interior | retail 03

Conceptualization

Y&C | BOUTIQUE

2016 - PROFESSIONAL WORK

CITY MALL, ALAJUELA, COSTA RICA

COLLABORATION WITH ARCH. SANTIADO DE LA CUESTA

The project brief required a simple, feminine, and modern retail space that aligns with the clothing brand’s new identity. Despite the constraints of a tight budget and strict construction timeline, elegance and functionality were the priority. The result was a harmonious blend of aesthetics and practicality, inviting customers to explore the brand’s offerings in a fresh and inviting environment

SOLUTION

The commercial space aims to create a welcoming atmosphere using a neutral and warm color palette. The focus is on showcasing merchandise, with subtle accents that play with matte and bright textures, mixing organic and simple shapes. The layout allows for a quick overview of the entire store, including the facade, while providing various storage and display options.

SCENARIOS

Section A
Section B

interior | commercial 04

Conceptualization | Moodboards | Schematic Design | Design Development | FF&E proposal | 3D modeling | Spec Books

ITALIAN RESTAURANT | PRINCESS RESORT

2019 - PROFESSIONAL WORK - SENS INTERIOR DESIGN

PAPAGAYO, GUANACASTE, COSTA RICA

COLLABORATION WITH DESIGN DIRECTOR RAQUEL FISCHEL

CONCEPT

Mamma Mia is located in an all incluse beach resort as an a la carte restaurant. The design draws inspirations from the rustic charm of Italian coastal villages, creating a mix between warmth, authenticity, and a harmonious blend of earthy elements. Terracotta tiles meet weathered wood, and a warm palette with natural textures like stone, linen, rattan and distressed leather evoke a feeling of grounded elegance with accents in coral and azure blue to add vibrancy.

Architecture by Garnier Arquitectos

SOLUTION

Large windows frame views of swaying palm trees and the azure ocean beyond. Terracotta planters house lush greenery, connecting the interior to the natural beauty outside. Two main seating areas divide the space in two atmospheres with different levels of privacy. An open kitchen & bar concept is introduced were guests can watch the magic happen and interact with the chefs. For extra private events, a lounge area is added to enjoy the art

Private Lounge
Open Kitchen & Bar
BOH
Indoor dinning
Outdoor dinning

Conceptualization | Moodboards | Schematic Design | Design Development | FF&E proposal | 3D modeling | Spec Books

VIP AREA | PRINCESS RESORT

2019 - PROFESSIONAL WORK - SENS INTERIOR DESIGN PAPAGAYO, GUANACASTE, COSTA RICA

COLLABORATION WITH DESIGN DIRECTOR RAQUEL FISCHEL

CONCEPT

Papagayo is known for its rich and beautiful white sand beaches, while also mantaining a high offer of entertainment and resorts in the area. The Princess hotels & resorts will open its new location with an all inclusive high-end architecture and experiences for all guests. The project designed by Garnier Architects and Piasa Consultants encompases 52.000m2 with all types of amenities, restaurants, spa, pools and VIP rooms.

SOLUTION

The proposal aims to create a differentiating concept for each of the spaces to provide the user with an unique experience through all activities. It seeks to create different spatial qualities and connect or extend the spaces into the lanscape and maximize views. Most areas are designed to work as open spaces, were the air flows naturally, the use of raw and natural materials are a must, as well as incorporating lots of greenery.

interior | hospitality

Conceptualization | Moodboards | Schematic Design | 3D modeling

LATITUDE 10 | BOUTIQUE HOTEL

2021 - PROFESSIONAL WORK - SENS INTERIOR DESIGN

SANTA TERESA, PUNTARENAS, COSTA RICA

COLLABORATION WITH DESIGNER ARIANA ROJAS, DESIGN DIRECTOR RAQUEL FISCHEL

CONCEPT

Latitude 10 is a beachfront boutique hotel inmerse in rich and dense nature creating an area with many different layers as the visitor experiences the space. It's a place to recharge but at the same time a place to connect with family and friends among the wild nature, a space to share the gift of simple living, a place to slow the rhythm and regenerate to the sound and feel of everything around you.

Working with raw elements to create a mood of simplicity, to feel the asperity of stone, the warmth of wood, the softness of the sand, the unevenness of the local pottery, the nature of the materials in their more primitive form.

Rustic materials, craftsmanship and ethereal light fixtures work as a common canvas that brings to life different aesthetic concepts for a personalized experience.

BURNISHED
RAW WHITE

Conceptualization

FLOR BLANCA | BOUTIQUE HOTEL

2020 - PROFESSIONAL WORK - SENS INTERIOR DESIGN

NOSARA, GUANACASTE, COSTA RICA

COLLABORATION WITH DESIGNER ARIANA ROJAS, DESIGN DIRECTOR RAQUEL FISCHEL

CONCEPT

The concept behind Boutique Hotel Flor Blanca embraces mindful design, aligning seamlessly with the hotel’s focus on wellness. Each room is envisioned as a personal wellness oasis, a sanctuary where guests can escape the hectic pace of everyday life. This transformation creates a peaceful cocoon, offering a space to unwind, disconnect, and rediscover a sense of happiness, freedom, and inner peace. Through this approach, the design fosters an atmosphere of tranquility and rejuvenation, allowing guests to fully immerse themselves in their wellness journey.

SOLUTION

The coconut is envisioned as a symbol of wellness and a sense of timelessness, embodying the ageless feeling that comes from being at one with nature. Wellness begins with nurturing ourselves and others, and is rooted in the sensation of living a simpler, more connected life. Wellness is expressed through the balance of body, mind, & soul, with each aspect contributing to an overall sense of well-being. The design follows a minimal layout that is not about having less, but about embracing more—more light, more space, more freedom, creating an environment that enhances tranquility and mindfulness.

MATERIAL PALETTE

The interior is white and pure | The exterior fibrous and tan

Section
Section

interior | corporate 08

Architecture by Richard Müller

Conceptualization | Moodboards | Schematic Design | FF&E proposal | 3D modeling | 3D Rendering

SALES OFFICE | HILLTOP TAMARINDO

2021 - PROFESSIONAL WORK - SENS INTERIOR DESIGN

PAPAGAYO, GUANACASTE, COSTA RICA

COLLABORATION WITH DESIGN DIRECTOR RAQUEL FISCHEL

CONCEPT

Hilltop Tamarindo is situated in a vibrant beachside community. As part of this residential development, the project brief called for the establishment of a sales office that would also serve as administrative headquarters and a client information hub. We designed the space within a temporary structure composed of two refurbished shipping containers, featuring an interior covered courtyard and terraced areas. The design concept seamlessly aligns with the overall aesthetic of the development, incorporating the same design language as the interior design packages offered.

SOLUTION

The central interior courtyard was divided into various atmospheres for informal client meetings. These spaces emphasize transparency and natural elements, seamlessly connecting the interior with the surrounding natural beauty. Two terrace areas provide options for more private conversations while also functioning as shared spaces for employees. The two main container structures house a showroom, showcasing available finishes for upcoming projects, alongside two private administrative offices, a

Section A
MaIn facade
Section

Conceptualization | Workplace

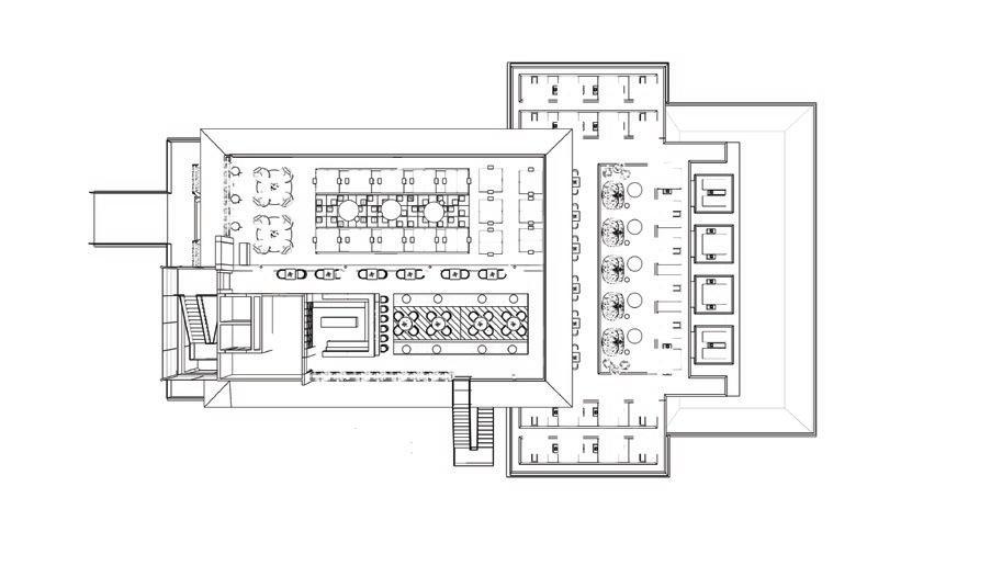
PHARMA WHOLESALER| WORKSPACE

2024 - PROFESSIONAL WORK - WORKITECT

CHIASSO, SWITZERLAND

COLLABORATION WITH ARCH. HESHAM ABOUELELLA

An industrial warehouse was transformed into a vibrant office for 15+ employees, reflecting the company’s identity and color palette. The client, a wholesale pharmaceutical manufacturer, required a functional yet inspiring workspace that reused most of the existing furniture The office was designed to work alongside the main deposit/storage area and included a dedicated break area for employees. Through careful re-styling and a thoughtful layout, the space balances efficiency with a fresh, engaging atmosphere.

SOLUTION

The layout organizes functional zones to enhance workflow and interaction. An open workspace encourages collaboration, private offices provide focused areas, and a central meeting space serves as the heart of the workspace for a main communication hub. Two flexible zones, enclosed with curtains as movable partitions, adapt seamlessly to different activities, ensuring both versatility and a sense of openness throughout the space.

SCENARIOS

LAYOUT

Spatial section & programme configuration

Closed Offices

Logistics & Sales

Area Break Game room

Open Space

Assignated Desk

Hub Area Pod & Phone Booth

Closed Office Management

Closed Offices

Finance & Marketing

Flexible Space A

Informal Meeting

Flexible Space B

Touchdown | Brainstorming

Board Meeting

Multimedia room

Vestibule

Client meeting

Conceptualization | Workplace strategy | Design Development | 3d Rendering

STRATEGIC CONSULTING FIRM | WORKPLACE

2025 - PROFESSIONAL WORK - WORKITECT

MILAN, ITALY

COLLABORATION WITH ENG. JACOPO RICCI

CONCEPT

The interior design concept for the new Strategic consultant client offices centers on flexibility, interaction, and identity. Conceived as a dynamic open space for 60+ employees, the layout transforms according to the company’s evolving needs—functioning seamlessly as a workplace, a meeting hub, an event arena, and a training space for the student program. The design emphasizes transparency and connectivity, encouraging collaboration while maintaining moments of privacy and focus.

SOLUTION

The design solution translates flexibility into a tangible spatial experience, guided by the principles of Activity-Based Working and the 4C model. Each area supports a specific work mode, allowing employees to choose where and how to work most effectively. The office operates under a smart working policy, enabling staff to alternate between remote work and on-site collaboration, which emphasizes the need for an adaptable, multi-use environment. Through flexible furniture systems, strategic lighting, and clearly defined spatial zones, the design embodies the firm’s strategic consulting ethos in a hybrid workspace.

MATERIAL PALETTE

Turn static files into dynamic content formats.

Create a flipbook
Issuu converts static files into: digital portfolios, online yearbooks, online catalogs, digital photo albums and more. Sign up and create your flipbook.