The Iola Register, Sept. 23, 2023

Page 1

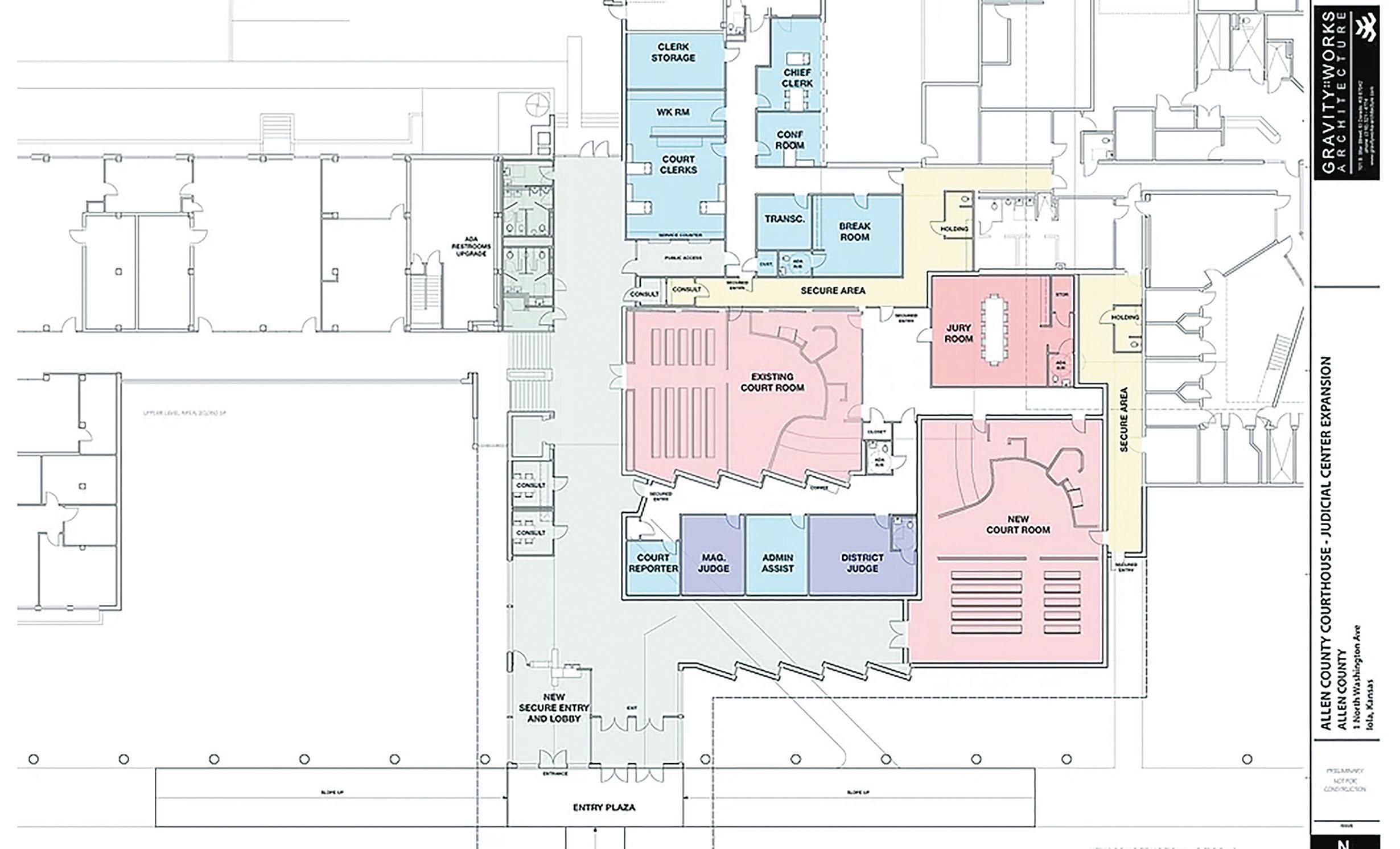
Judge, sheriff detail courthouse plans

The video tells a frightening story:

In 2008, seconds after being convicted of murder in Allen County District Court, Rory Foster slid under a desk, leaped over a partition and dashed through a door behind the judge’s bench.

He was captured almost immediately while trying to pry open a window that had been painted shut in Chief District Judge Daniel Creitz’s office.

Now, as law enforcement and court officials lobby taxpayers to approve plans for a $9.95 million courthouse renovation, the incident serves as a reminder of the unpredictable dangers that come with enforcing the law.

Creitz has called the renovation project “a need, not a want” and talks about the need to be “proactive, not reactive.” He fears what might happen if another desperate suspect makes an attempt to flee, or if a bereaved family member tries to take justice into their own hands.

He’s concerned that if something like that does happen, the county will be forced to take action — and the cost will be much higher.

CREITZ isn’t the only one who worries about safety inside the courthouse.

“Every time we have a

COURTHOUSE | Page A3

Breaking down renovation proposal costs

If Allen County taxpayers approve the $9.95 million courthouse remodel project, they can expect to see tax rates increase by about 3.9 mills for the next 20 years.

For the owner of a $100,000 home, that would translate to an annual cost of

Speaker sings the praises of maker spaces

Jim Correll, retired director of the Fab Lab at Independence Community College, addressed a small but captive audience Thursday evening at Iola Public Library.

Located at the Center for Innovation and Entrepreneurship on the college’s main campus, the Fab Lab (the fab stands for fabrication) is a creative space where community members can make just about any-

| Page A4

$44.85, or $3.74 per month or 12 cents per day. Voters will decide on Nov. 7 whether to approve the bond project.

The Register is sponsoring a community forum to discuss the bond project. It is planned for 6:30 p.m. Tuesday, Oct. 10, at the Allen County Courthouse courtroom.

The proposal would build onto and renovate the Allen County Courthouse, adding a second courtroom nearly identical to the existing one and featuring numerous security improvements. It would add new offices for court staff and judges, along with a new secure en-

The Iola Register will host a community forum to discuss a proposed $9.95 million Allen County Courthouse expansion at 6:30 p.m.

LaHarpe Cleanup Day in the works

LAHARPE — Organizers of a citywide cleanup need two ingredients to ensure this year’s effort is as productive as in years past: 1. Yards to clean; and 2. People to help clean them.

The LaHarpe PRIDE Committee has sounded the call for both yards and volunteers to help with the Sept. 30 endeavor.

The work is tailored to help those who need to get items out of their yards but

Iola High School’s junior class parade float reflected this year’s theme “Boot Scootin’ Boogie” Friday afternoon. Results from Friday evening’s coronation and IHS football game against Anderson County will be available at www.iolaregister.com and in Tuesday’s Register. REGISTER/VICKIE MOSS

Vol. 125, No. 249 Iola, KS $1.00 Locally owned since 1867 Saturday, September 22, 2023 iolaregister.com Happy first day of fall!
Daniel Creitz, chief judge for the 31st Judicial District, shows architectural drawing proposals for an expansion of the Allen County Courthouse. REGISTER/VICKIE MOSS
Tuesday, Oct. 10, in the district courtroom. Want to learn more?
See COSTS | Page A2
See
An audience listens to speaker Jim Correll’s presentation on maker spaces Thursday at the Iola Public Library. REGISTER/TIM STAUFFER
Volunteers help with a LaHarpe Cleanup Day effort in 2021. REGISTER FILE PHOTO See LAHARPE | Page A7
Boot scootin’ fun
Iola Register Jim Correll
See SPACES

Costs: Bond breakdown

Continued from A1

try and lobby that would be handicapped accessible.

Existing court areas would be updated, handicapped accessible and more secure.

Those areas include the jury room, conference rooms, offices, and storage and workspace.

The project would not take a significant amount of the courthouse lawn. The new addition would be southeast of the existing courtroom, taking up space between the court and jail.

The new entrance would essentially begin where the current sidewalk meets in a T-formation, next to a small landscaped garden on the south side.

The county hired Crossland Construction to serve as construction manager at risk. That means Crossland will be responsible for hiring contractors and overseeing the project. Crossland also is overseeing the bond election and will only charge a fee if the bond project passes.

A financial analysis by Raymond James Public Finance of Leawood shows the county is well-positioned for the project, with an average mill levy compared to other southeast Kansas counties and increasing assessed property valuations.

The analysis assumes Allen County’s valuation continues to grow at an average of 3%. Last year, the county’s valuation grew by 6.61%; the previous year it was 4.62% but that followed a bleak year when growth was negative 1.32%.

The report also points out that the Prairie Queen Wind Farm’s tax abatement expires in a few years and will join the county’s tax roll in 2030. That is expected to increase the county’s assessed value and could reduce the tax levy needed to repay the courthouse bonds.

The analysis predicts the county can expect an average interest rate of about 4.18%

A comparison of regional tax rates shows Allen County falls in the middle of the pack with its 2022 mill levy of 62.855. Other southeast Kansas counties had 2022 mill levies between 98.876 (Woodson) to a low of 41.880 (Miami).

The analysis also provides projected tax costs for owners of commercial and agriculture property.

The county paid off its jail earlier this year, although financing for the jail did not come

Engaged

Bryce Misenhelter and Clara Wicoff

Iolans Joel and Lisa Wicoff announce the engagement and upcoming marriage of their daughter, Clara Kathleen Wicoff, to Bryce Christopher Misenhelter of Iola.

The bride-to-be is a 2016 graduate of Iola HIgh School. She earned a bachelor of science degree in agriculture from Kansas State University in 2020 and a master of science degree in agricultural economics from the University of Reading in 2021.

She works for K-State Research and Extension’s Southwind District.

The groom-to-be is the son of Randall and Crystal Misenhelter.

He is a 2014 graduate of Iola HIgh School and earned a bachelor of science degree in chemical engineering from Kansas State in 2018.

He works for Tank Connection.

The couple will be married Oct. 7, 2023, in Garnett.

through a bond issue.

In the early 2000s, a public building commission agreed to build a new 40-bed jail next to the courthouse.

The $2.3 million construction costs were paid using tipping fees

at the county landfill and income from housing out-of-county prisoners.

More information about the current bond project proposal is available online at allencountybond.com

A2 Saturday, September 23, 2023 iolaregister.com The Iola Register 29 Covert St., Carlyle Carlyle Presby terian Church Sunday Worship . . . . . .9:30 a.m. Bible Study Tuesday 3 p.m. Steve Traw, Pastor 620-365-9728 Service Time . . . . . . . 10:30 a.m. 620-365-8001 fellowshipregionalchurch@yahoo.com facebook.com/FRCIOLA frciola.com 214 W Madison Ave Iola Jared Ellis Luke Bycroft Service Time...................10:30 a.m. fellowshipregionalchurch@yahoo.com 620-228-8001 www.facebook.com/FRCIOLA/ 214 W. Madison, Iola regional church Fellowship Jared Ellis Luke Bycroft Service Time...................10:30 a.m. fell wshipregional hu h@yahoo.com 620-228-8001 www.facebook.com/FRCIOLA/ regional church Sunday School . . . . . . . . . . . 9:00 a.m. Worship Service . . . . . . . . 10:30 a.m. Kids Connection . . . . . . . . . . . 10:30 a.m. Travis Boyt, Pastor John & Jenna Higginbotham, Youth Leaders 620-365-2779 302 E. Madison, Iola Sun. Worship .9:30 a.m. Join us “li e” online for Sund y Worship at .iolapresbyterian.org Sunday Worship . . . . . .9:30 a.m. Rev Daniel M. Davis 620-365-3481 Join us “live” online for Sunday Worship at iolapresbyterian.org or on our YouTube channel 302 E. Madison Ave., Iola First Presby terian Church Grace Adult Bible Class . . . . . . . . .9 a.m. Worship Service . . . . . . . . . . 10:30 a.m. Rev Bruce Kristalyn 620-365-6468 SUNDAY Adult Bible Fellowships, 9 a.m. 6th-12th grade Bible study, 9 a.m. Worship service 10:30 am WEDNESDAY HarvestKIDS Ministry, 6:15-7:45 p.m. (when school is in session) Student Ministry, 6:30 p.m. (middle school & high school) Adult Midweek Gathering, 6:30 p.m. (Bible study/fellowship/prayer) Tony Godfrey Pastor 620-365-3688 hbciola.com 2001 N. State St., Iola unday School . . . . . . . . . 9:30 a.m. unday Worship . . . . . . . . . 11 a.m. Rev. Blake Stanwood 620-473-3242 NURSERY PROVIDED 301 E. Madison Ave., Iola Wesley Sunday Praise & Worship . . . . 9:15 a.m. Rev. Dr. Dyton L. Owen, Pastor • 620-365-2285 United Methodist Church Community Church of the Nazarene Kelly Klubek, Senior Pastor 620-365-3983 “Dear friends, let us love one another, for love comes from God” -1 John 4:7 Iola First Assembly of God Paul Miller, Pastor 620-365-2492 1020 E. Carpenter St., Iola (at the intersection of North 3rd St. and Carpenter. Parking is around back!) Sunday Worship . . . . 10:30 a.m. iolafirstag.org • pastorpaulmiller@gmail.com “Nothing is Impossible for God” www.nazarene.org 1235 N. Walnut St., Iola Livestream on our services: facebook.com/IolaNaz/ Sunday School 9:45 - 10:30 a.m. Sunday Service 10:45 a.m. - 12:00 p.m. Wednesday Night Bible Study 7:00 p.m. - 8:30 p.m. 801 N. Cottonwood St., Iola 329 S. 1st St., Iola • (620) 371-8695 Sunday Worship . . . . 10:45 a.m. waypointchurch.com • facebook.com/waypointiola David.Sturgeon@waypointchurch.com A gospel-centered church making disciples of Jesus Christ David Sturgeon, Campus Pastor Watch our service live on Facebook every Sunday shortly after 10 a.m. St. John’s & St. Joseph’s Catholic Church Father David Michael Weekend Masses Sat. - 5:30 p.m. - Iola (Confession 4:30 - 5:20 p.m.) Sun. 8:30 a.m. - Yates Center (Confession 8 - 8:25 a.m.) 10:30 a.m. - Iola Weekday Masses Mon., Tues., Fri., Sat. - 8 a.m. - Iola (Confession 7:30 - 7:55 a.m. M, T, F, S) Wed. - 11:30 a.m. - Iola Thurs. - 5:30 p.m. - Yates Center 310 S. Jefferson Ave., Iola 620-365-2277 301 W. Miller Rd., Iola • 620-365-8087 Rivertreeiola.org • Find us on Facebook! Friendly people Relevant and applicable preaching Come as you are Sundays at 10 a.m. WORSHIP WITH US AREA CHURCH DIRECTORY 785-448-1614 Come! Select Your Metal Roofing Color. 20 striking metal roofing & siding colors to choose from - 29 gauge. Formed & Cut Here. Metal Roofing Roll Former on-Site. Ready in 24 Hrs * Delivery Available 20102 NW 1600 Rd. Garnett, KS Take 7th Street West 4.5 miles from Garnett * 24 hour turn-around not guaranteed. McIntosh/Booth Insurance Susan Booth, Agent Logan Booth, Agent Medicare Supplements Medicare Part C & D Vision/Dental Annuities Life 620-365-3523 212 South Street, Iola mcintoshbooth.com
Bryce Misenhelter and Clara Wicoff will be married Oct. 7. The jury room at the Allen County Courthouse has room for 10 chairs at the table, not the required 12, because of space limitations. A proposed bond project would build a new jury room. REGISTER/VICKIE MOSS
IN THE CLASSIFIEDS
Since the COVID-19 pandemic, public access to the Allen County District Court clerk’s office has been limited.
ADVERTISE YOUR

Courthouse: Judge, sheriff spell out plans

Continued from A1

major jury trial, I worry,” Sheriff Bryan Murphy said. “You look at the Rory Foster case. In seven seconds, he goes under the table, over a bench and out the door. We had cops everywhere; we had everything covered except the door behind the judge. I don’t want that to happen again. That’s a huge fear.”

Under the proposed renovation, the courthouse would be updated with numerous security systems including a controlled entrance. A second courtroom, nearly identical to the existing one, would be built with secured access between them. The remodel would also add a secured hallway and holding rooms to transport inmates between the county jail and the courtroom. Currently, inmates are paraded through court offices en route to hearings, and must wait in public hallways while wearing shackles and clothing issued by the jail.

It’s not ideal for anyone, Creitz and Murphy point out.

Victims of crimes and their family members typically don’t want to share that space with a suspect. And in a system based on the presumption of innocence, it’s also not helpful for those accused of a crime to be on public display while in custody.

“I hope the community understands we need to make sure our courts can function seamlessly, both for victims and for those charged with crimes,” Murphy said.

BUT IT’S NOT just the big cases and attempted escapes that worry Dina Morrison, court clerk.

Sometimes she sits in on hearings at the municipal courtroom. A thin wall separates the small courtroom from an office where her staff work.

She’s there to listen — not to the case, necessarily, but to determine what might be overheard on both sides of that thin wall.

“Everything is sensitive,” Morrison said. “Our staff have to be very careful with everything they say and do. That can be difficult when you’re trying to conduct business over the phone, or when there’s a hearing on the other side of the wall.”

The smaller courtroom was never intended for that purpose. Rather, it was built as a law library. Over time,

Obituary

Gary Riley

Gary Dean Riley, 78, of Iola, died Wednesday, Sept. 20, 2023 at his son’s home in Lillington, N.C.

He was born in Mont Ida, on Aug. 4, 1945, to Johnnie and Lillie (Horst) Riley.

He was preceded in death by his parents; wife Gertrude Evelyn “Lynn” Riley; son David Gordon; sisters Lillie Joann Riley, Donna Arbuckle, and Betty Young; and brother Gerald Riley.

Survivors include sister Martha Henry of Ottawa and brother Larry Riley of Gas; son Dennis Jay Riley of Colorado; son Gary Travis Riley of North Carolina; daughter Christina Viola Clem of Ohio; 14 grandchildren, five great-grandchildren.

Inurnment will be at Mont Ida Cemetery in the spring.

bookshelves were removed and benches installed as it was converted into a courtroom for a municipal court judge to preside over preliminary hearings, misdemeanor cases, civil and domestic cases and child-in-need-of-care cases.

The room is not safe, Creitz said. Seating is limited. The judge sits mere feet away from two small tables, one each for the prosecution and defense. Others involved in the case — victims, witnesses, advocates, attorneys — sit directly behind them. A large window provides a full view of the activities.

“You could have a prosecutor there, while someone who hates him sits right behind him,” Creitz said.

FOR DECADES, Creitz resisted when Murphy and former-Sheriff Tom Williams insisted

changes needed to be made to improve courthouse security.

“I thought I was being practical. I worried about the cost to taxpayers,” Creitz said.

“COVID woke me up.”

The COVID-19 pandemic brought the security issues to the forefront. Social distancing requirements forced court staff to provide more space to conduct activities — and that wasn’t always possible.

The small courtroom was practically unusable because of space restrictions. Court staff limited the public to one person at a time inside a vestibule to speak about cases. They tried to limit the number of people waiting in the lobby at any one time, which created a scheduling nightmare. Cases were delayed. Time-sensitive cases took priority, which meant many lower-priority cases were delayed again and

again.

After seeing the problems caused by the pandemic, Creitz’s view changed.

“I realized the sheriffs were right. We should have done this a long time ago. It is a safety issue,” he said.

Most Allen County residents have never been inside the courtroom. Creitz and Murphy agreed that’s one of the biggest challenges in convincing the public about the need.

Creitz said he welcomes questions about the project; he or his staff are willing to discuss the topic or arrange visits of the facility if available.

The Register is sponsoring a community forum planned for 6:30 p.m. Tuesday, Oct. 10, at the courtroom.

A3 iolaregister.com Saturday, September 23, 2023 The Iola Register Schedule Of Events Youth Activities 10 a.m. Three Pastors 10 a.m. 7eventh Time Down 11 a.m. Lloyd Houk 12:30 p.m. National Anthem 1:20 p.m. Parade 1:30 p.m. Voice Of Truth 2:15 p.m. Parade Awards 3:30 p.m. Born to Worship 3:45 p.m. Bean Feed 5 p.m. Biblesta After Dark 7 p.m. Commemorating America’s Heritage in The Bible 65th Annual Biblesta Humboldt, Kansas October 7, 2023 Lloyd Houk Born To Worship Three Pastors Biblesta After Dark 7eventh Time Down Voice Of Truth Visit our WEBSITE for More Details & More Specials! QUALITYSTRUCTURES COM 800-374-6988 *Price Includes: Delivery and install on your level site. Travel charges may apply. Price effective 9/1/23 – 9/30/23. GARAGE/HOBBY
*Price Includes: 4” INTERIOR CONCRETE ACARF is having a fundraiser with headlight restoration on September 27 and 28. Call 620-496-3647 for an appointment. $50 per car. 305 East Highway 54 • LaHarpe, KS Like us on Facebook adoptions@acarf.org
30X40X10 $37,250*
At left is an overhead view of the Allen County Courthouse. At right is how the courthouse would look if voters approve a $9.95 million expansion project in November. Below is the magistrate courtroom. COURTESY PHOTOS AND REGISTER/VICKIE MOSS
IS A LOCATION Pick up and drop off your pre-packaged, pre-labeled shipments. Mon.-Fri. 8 a.m. – 6 p.m. 302 S. Washington Ave., Iola 620-365-2111
The above schematic lays out a proposed redesign of the Allen County Courthouse, including a second courtroom and new offices for court staff. COURTESY PHOTO

Obituary

Betty Parker

Betty L. Parker age 94, passed away on Friday, Sept. 22, 2023, at Moran Manor in Moran.

She was born Nov. 22, 1928, in rural Humboldt, to Cecil and Georgia (Brooks) Kirby.

She married L.R. Parker on June 2, 1978, and they made their home in Gas.

Betty Parker

She was a member of St. Timothy’s Episcopal Church in Iola and the American Legion Auxiliary. She worked for Southwestern Bell Telephone and Iola Osteopathic Clinic working for Dr. Glenn V. Carney. She retired in 1990 after 32 years.

Betty is survived by her brother, Bill (Leanna) Brixey, Iola; step-daughter, Sherry (Kevin) Jones, Wheatland, Mo.; cousins, Patty Spencer and Beverly Walden; grandchildren; nephews and numerous other friends and family.

She is preceded in death by her parents; her husband L.R. Parker; son Stephen Stapleton; sister Judith Powell; brother, Jerry Brixey.

A graveside service will be at 2 p.m., Tuesday, Sept. 26, at Highland Cemetery, Iola.

Memorials are suggested to St. Timothy Episcapal Church, and can be left with Feuerborn Family Funeral Service, 1883 U.S. 54, Iola. Condolences may be left at www.feuerbornfuneral.com.

Bridge burns again

OSWEGO — The Labette County Sheriff’s Department is investigating a fire beneath a bridge spanning the Neosho River.

The fire, discovered Saturday, marked the second time in the past few months logs accumulated beneath the

Fall equinox is here; what does that mean?

bridge have been set on fire, the Parsons Sun reported.

Unlike the first fire in June, which prompted full inspection of the span, the most recent fire didn’t burn as hot, and thus did not require another inspection, the newspaper reported.

Help available for Medicare enrollment

The Medicare annual election period, running from Oct. 15 to December 7, is the time to review and change your Medicare prescription drug plan.

Area Senior Health Insurance Counselors for Kansas (SHICK) will be available to help from 9 a.m. to 2 p.m. on Thursday, Oct. 19,, at 1006 N. State Street, Iola. Call 620-244-3826

Police news

Meter reader attacked

A meter reader for the City of Iola was attacked by a pit bull terrier and was taken to the hospital Wednesday, Iola police officers reported.

The victim, whose name was not released, was in the 300 block of South Kentucky Street when the dog broke out of the residence and attacked, officers said.

The animal was taken into custody. Owner Amber Goodner was

Court news

IOLA MUNICIPAL

COURT

Judge Patti Boyd

Convicted as follows:

Paul F. Barras, Iola, driving while suspended (third or subsequent conviction), $655

Hosea J. Berryhill, Kansas City, Mo., disobeying stop/yield sign, $195

Malissa J. Brooks, Iola, parking violation, $155

Kylie R. Cain, Chanute, theft, $373.77, probation ordered Christopher D. Cooper, Iola, disorderly conduct, $195, probation ordered

Cheryl E. Doughty, Iola, disobeying stop/ yield sign, $195

Isaac J. Hopkins, Iola,

to schedule an appointment. Even if you have been happy with your plan in the past, plans and your medications can change. It is a good idea to compare options to see what meets your current needs. Last year, counselors helped beneficiaries save on average $918 per person by reviewing and changing their plans.

charged with allowing an animal to run at large, not having the dog registered or vaccinated against rabies.

Disturbance reported

Iola police officers were called to the 400 block of North Kentucky Street Wednesday after a male and female reportedly caused a disturbance. The parties separated prior to officers’ arrival. No charges were requested.

speeding (56/45), $161

Kayla M. Perry, Iola, disobeying stop/yield sing, $195

Jaedyn M. Spencer, Colony, theft, $365, probation ordered

Correction

Wrong name

Pam Jordan is an employee at the Bank of Commerce’s Gas branch.

An article in Wednesday’s Register detailing Bank of Commerce’s acquisition of Piqua State Bank and its Gas and Yates Center facilities incorrectly identified Jordan.

We regret the error.

NEW YORK (AP) —

Fall is in the air — officially.

The equinox arrives on Saturday, marking the start of the fall season for the Northern Hemisphere. But what does that actually mean? Here’s what to know about how we split up the year using the Earth’s orbit.

WHAT IS THE EQUINOX?

As the Earth travels around the sun, it does so at an angle.

For most of the year, the Earth’s axis is tilted either toward or away from the sun. That means the sun’s warmth and light fall unequally on the northern and southern halves of the planet.

During the equinox, the Earth’s axis and its orbit line up so that both hemispheres get an equal amount of sunlight.

The word equinox comes from two Latin words meaning equal and night. That’s because on the equinox, day and night last almost the same amount of time — though one may get a few extra minutes, depending on where you are on the planet.

The Northern Hemisphere’s spring — or vernal — equinox can land between March 19 and 21, depending on the year. Its fall – or autumnal — equinox can land between Sept. 21 and 24.

WHAT IS THE SOLSTICE?

The solstices mark the times during the

year when the Earth is seeing its strongest tilt toward or away from the sun. This means the hemispheres are getting very different amounts of sunlight — and days and nights are at their most unequal.

During the Northern Hemisphere’s summer solstice, the upper half of the earth is tilted in toward the sun, creating the longest day and shortest night of the year. This solstice falls between June 20 and 22.

Meanwhile, at the winter solstice, the Northern Hemisphere is leaning away from the sun — leading to the shortest day and longest night of the year. The winter solstice falls between December 20 and 23.

WHAT’S THE

DIFFERENCE BETWEEN METEOROLOGICAL AND ASTRONOMICAL SEASONS?

These are just two different ways to carve up the year.

Meteorological seasons are defined by the weather. They break down the year into three-month seasons based on annual temperature cycles. By that calendar, spring starts on March 1, summer on June 1, fall on Sept. 1 and winter on Dec. 1.

Astronomical seasons depend on how the Earth moves around the sun.

Equinoxes, when the sun lands equally on both hemispheres, mark the start of spring and autumn. Solstices, when the Earth sees its strongest tilt toward or away from the sun, kick off summer and winter.

Ice pops cool monkeys at a Rio zoo

— Upon spotting a zookeeper laden with a bucket full of fruit-flavored ice pops, black spider monkeys in Rio de Janeiro’s BioParque gracefully swung their way towards him on Friday, chattering excitedly.

While it’s technically still winter in Brazil, with spring due to start on Saturday, a heat wave has engulfed the country since the beginning of the week, causing humans and animals alike to eagerly greet any chance of cooling down.

“Normally they get a break from the heat in the winter, but it’s been so hot. They have even shed their winter layer of fur,” said zoo-

keeper Tadeu Cabral, who handed out some treats, while others were scattered around.

The ice pops are part of the monkeys’ well-being program. They provide thermal comfort, and dispersing the popsicles in different locations also stimulates their behavioral need for foraging.

For the monkeys, the ice pops are watermelon, pineapple or grape flavored. But for Simba, the zoo’s lion, the ice treat is made up of blood or minced meat.

Koala the elephant, now more than 60 years old, was rescued from a Sao Paulo circus in the 1990s. She wrapped her trunk around the block of frozen fruit, placed

it under her foot and squashed the treat, before slurping it up.

To cool her down even more, a zookeeper sprayed Koala with a hose.

“Elephants love water. She also throws

mud on her back to protect herself from the heat and parasites, like mosquitoes. When wet, the mud layer gets thicker and helps her even more,” said Daniel Serieiro, a biologist at the zoo.

A4 Saturday, September 23, 2023 iolaregister.com The Iola Register Periodicals postage paid at Iola, Kansas. All prices include 8.75% sales taxes. Postal regulations require subscriptions to be paid in advance. USPS 268-460 | Print ISSN: 2833-9908 | Website ISSN: 2833-9916 Postmaster: Send address changes to The Iola Register, P.O. Box 767 , Iola, KS 66749 Susan Lynn, editor/publisher | Tim Stau er, managing editor Published Tuesday, Wednesday, Thursday, Friday and Saturday, except New Year’s Day, Memorial Day, Independence Day, Labor Day, Thanksgiving and Christmas. Subscription Rates 302 S. Washington Ave. Iola, KS 66749 620-365-2111 | iolaregister.com Out of Allen County Mail out of State Internet Only $162.74 $174.75 $149.15 $92.76 $94.05 $82.87 $53.51 $55.60 $46.93 $21.75 $22.20 $16.86 One Year 6 Months 3 Months 1 Month In Allen County $149.15 $82.87 $46.93 $16.86 Member Associated Press. The Associated Press is entitled exclusively to use for publication all the local news printed in this newspaper as well as all AP news dispatches NEWS & ADVERTISING Bulk Foods Freezer & Cooler Products Deli • Salvage Groceries joinsubtext.com/theregistertexts Saturday Sunday 89 69 Sunrise 7:10 a.m. Sunset 7:18 p.m. 65 81 61 81 Monday Temperature High Thursday 86 Low Thursday night 64 High a year ago 79 Low a year ago 54 Precipitation 24 hrs. ending 8 a.m. Friday .10 This month to date 1.33 Total year to date 21.09 Deficiency since Jan. 1 8.54
Today’s equinox marks the arrival of astronomical autumn in the Northern Hemisphere. PIXABAY.COM

Lahaina residents brace for what they’ll find upon return

HONOLULU (AP) —

Soon after one of Maui’s Japanese Buddhist temples, the Lahaina Hongwanji Mission, burned in the deadliest U.S. wildfire in more than a century, its resident minister was desperate to go back and see what remained.

Six weeks later, he’s more hesitant.

“Now I feel like I have to have mental preparation to go there,” the Rev. Ai Hironaka said. “I’m kind of afraid.”

Hironaka and other Lahaina residents are grappling with a range of emotions as Maui authorities plan next week to begin allowing some on supervised visits back into the areas devastated by the Aug. 8 fire, which killed at least 97 people and demolished thousands of buildings.

Lana Vierra is bracing to see the ruins of the home where she raised five children, a house that started with three bedrooms in 1991 and was expanded to six to accommodate her extended family as the cost of living in Hawaii soared.

She’s been telling her family to be ready when it’s their turn, so that they can all visit together. “We’re preparing our minds for that,” she said. “I don’t know

know if our hearts are prepared for that.”

Authorities have divided the burned area into 17 zones and dozens of sub-zones. Residents or property owners of the first to be cleared for reentry — known as Zone 1C, along Kaniau Road in the north part of Lahaina — will be allowed to return Monday and Tuesday on supervised visits.

Government agencies including the U.S. Environmental Protection Agency, the U.S. Army Corps of Engineers and Maui County’s highways division are involved in clearing the zones for reentry by, among other things, removing any hazardous materials, checking buildings for structural safety and ensuring safe road access.

Those returning will be provided water, shade, washing stations, portable toilets, medical and mental health care, and transportation assistance if needed, said Darryl Oliveira, Maui Emergency Management Agency interim administrator.

Authorities are also offering personal protective equipment, including respirator masks and coveralls.

Officials have warned that ash could contain asbestos, lead, arsenic or other toxins. There are other hazards, too, Oliveira said, such as burned out cars along roads and chunks of metal or concrete in the

Spaces: Ideas

Continued from A1

thing. Correll shared stories of how dozens of members have used the maker space to start their own businesses, dive into a lifelong passion, or just learn and explore.

A maker space is loosely defined as a creative place for people of all ages to make, learn and explore just about anything. Independence’s Fab Lab features laser engraves, 3D printers, a woodshop, sewing equipment, an industrial kitchen and much more. It opened in 2014 and offers paid memberships and youth programming. It’s said to be the largest maker space in the country for a city with fewer than 50,000 residents.

Iola Public Library’s director Sharon Moreland invited Correll to speak as the board and a steering committee tackle what to do with the library’s Flewharty-Powell annex. The home and surrounding property lie adjacent to the library.

In 2009, the family of the late Nancy Flewharty donated the real estate to the City of Iola

ruins.

“We really want to help guide them, provide them the support, but also provide them the privacy, that space and quiet, so they can get the closure they’re looking for,” Oliveira said in a video message Thursday.

Some people might want to sift through the ashes for any belongings or mementos that survived, but officials are urging them not to, for fear of stirring up toxic dust that could endanger them or their neighbors downwind. Other residents said they didn’t immediately have plans to return to the properties because jobs or the hassle of obtaining a pass to reenter the burn zone would keep them away.

Melody Lukela-Singh plans to take a hazardous materials course before visiting the Front Street property where the house she lived in with about a dozen relatives once stood.

“I’m hoping to learn what we’re going to encounter as far as exposure to things we know nothing about,” she said. “The winds pick up and it’s going to be all in the air. It’s going be a while before all of

that is gone.”

Hironaka reflected on how his feelings toward reentry have changed as the weeks have passed — and as the magnitude of losing the temple, along with his home on the temple grounds, has set in.

“After a week, I feel like I still have energy, like a car with full tank of gas,” Hironaka said. “After I use all the gasoline, I don’t know where to fill it up, what to fill it up. No gas. I feel like I’m pushing the empty-gas car only by myself. Pushing from the back.”

He, his wife, their

four children and their French bulldog piled into his Honda Civic to escape the flames. As they drove off, he said, he imagined the temple as protecting their home.

In a phone interview, he said he initially intended not to cry until he could return to thank the temple and apologize to the Buddha statue that had been at its main altar. But he became emotional and sobbed as he spoke, saying, “The temple building, I was supposed to protect as resident minister.”

Public notices

(First published in The Iola Register Sept. 23, 2023)

Affidavit of Publication for the Allen County Historical Society, Inc.

The annual Allen County Historical Society, Inc., business meeting will be held at the Stadler Room at the Allen Community College (1801 N. Cottonwood St. Iola, KS) on Monday, October 16, 2023 at 6:30 p.m. Following the business meeting, John Masterson will be presenting the history of ACC at 7 p.m. The meeting is free and open to the public to attend. For more information contact the historical society at (620)365-3051, email achsdirector@outlook.com (9) 23, 30 (10) 7

with the stipulation that it be used solely for municipal library purposes. As the home is not ADA accessible and has pending maintenance issues, the Iola Public Library has few ways to take advantage of the space.

Correll touted the benefits of maker spaces, which he believes increase people’s self-efficacy as they learn to do things they didn’t think possible. “Projects are as hard as they need to be,” said Correll. “And everyone turns into a child when they figure out how to do something for the first time.”

That said, Correll, who travels frequently to help small towns launch innovation hubs, believes every maker space is different. “There’s no guidebook for doing this,” he said, stressing that each community needs to figure out what works best for their unique needs.

Those interested in learning more or becoming a member of the steering committee can contact Sharon Moreland at smoreland@ sekls.org.

He has found solace, he said, in Buddhism’s teachings of wisdom and compassion, that Buddha has no judgment and allows him to feel whatever he feels in the moment.

Hironaka said he often sees a photo taken by The Maui News and distributed worldwide by The Associated Press that shows the temple burning alongside Waiola Church next door. He considered the temple, built in 1933, to be like a family member, he said. “That’s the end-of-life picture to me,” he said.

(Published in The Iola Register Sept. 16, 2023)

IN THE DISTRICT COURT OF ALLEN COUNTY, KANSAS

Jacquelyn M. Evans vs Damien M. Evans

Case No. AL-2023-DM-000117

Pursuant to Ch. 60 of K.S.A

NOTICE OF SUIT

TO: Respondent- Damien M. Evans You have been sued in the

above Court by the Petitioner and unless you answer this Petition on or before 2nd day of November, 2023, judgment will be rendered against you in an absolute divorce by Petitioner from Respondent.

/s/Dennis D. Depew Dennis D. Depew, #11605 Kansas Legal Services 408 North Walnut Post Office Box 1509 Pittsburg, Kansas, 66762 (620) 232-1330 Attorney for Petitioner (9) 16, 23, 30

SOUTHEAST KANSAS History Online

A5 iolaregister.com Saturday, September 23, 2023 The Iola Register Adventure Awaits! RENAISSANCE FESTIVAL GIVEAWAY! Winners can stop by The Iola Register office from 8 a.m. - 6 p.m. Monday - Friday to pick up their FREE tickets + 1 companion ticket. Please note the Renaissance Festival runs until October 15, so don’t delay! 302 S. Washington, Iola 620-365-2111 • iolaregister.co m Congratulations Winners!
Tregon
Romar Stanford
Guernsey
Esquivel Desiree
Gerald
Kylie Renfro Emily Sigg Gene Myrick Timothy Guernsey
Shaw Jordan Goldberg Miah Shelby Alisha Andersen Robin Culp Jackie Borjas Kylee Maloney Brett Knowles
Klubek
Boyd
Margaret Beach Rita Lehman Dawn Appleton Vanessa Rhodes Regina
Call Kelli Kramer
Palmer Sarah Copeland Patricia Payne Misty D Gorman Tiffany Young
Shawna
Erin
Rachel
Burrow
Shawnna Puckett Connie
Roofer Jeremy Delosreyes, who lost his home in the fire, speaks as workers repair the roof on a home on Ipukulu Way, Wednesday, Aug. 16, 2023, Maui, Hawaii. (ROBERT GAUTHIER/LOS ANGELES TIMES/TNS) Summer Gerling picks up her piggy bank found in the rubble of her home following the wildfire on Aug. 10, 2023, in Lahaina, Hawaii. Lahaina residents are grappling with a range of feelings as Maui authorities plan to begin allowing them back into what has become known as the “burn zone.” (AP PHOTO/RICK BOWMER)

Saturday, September 23, 2023

~ Journalism that makes a difference

Are Americans in a funk?

Trust in institutions is declining, expectations for small business outcomes are diminishing and real household incomes are sinking; it is fair to say that Americans seem to be in a funk.

On new shoes and lightning strikes

It was dark as I drove home after last night’s discussion at Iola Public Library. Hard to believe it’s already fall; the days are shorter, the pulsing scream of cicadas a mere memory.

Just as I was pulling onto Cottonwood, a series of lightning bolts flashed across the sky, lighting up everything around me as bright as high noon. It was an incredible sight, the clouds framed by an intense burst of light.

I got home and waited outside my car for more of the display, but nothing came. It was just that, a flicker of brilliance, and then it was gone.

THE moment has stayed with me. It caught my attention, and it got me thinking about how life is full of just these amazing little moments: a child’s smile, a special friendship, a quiet place to return to. If I’m not careful, they’ll pass me right by. They don’t come back.

I recently finished reading Thornton Wilder’s “Our Town,” a three-act play that portrays life in the fictional town of Grover’s Corners at the beginning of the 20th

century. Much of what I felt Thursday night was matched in the play.

On his wedding day, a young George, on the verge of panic, says, “Ma, I don’t want to grow old. Why’s everybody pushing me so?”

His mom’s answer? “Why George, you wanted it.”

At the end of the play, the ghost of a young woman, Emily, looks beyond the grave as her twelfth birthday unfolds before her. As her mother calls the children to breakfast and the chaos of another morning begins, the ghost can’t watch any more of it.

“I can’t go on,” she says in despair. “It goes so fast. We don’t have time to look at one another.”

As the ghost departs, she laments, “Oh, earth, you’re

too wonderful for anybody to realize you. Do any human beings ever realize life while they live it? — every, every minute?”

The main character responds, “No. Saints and poets maybe…they do some.”

SUCH is life, most of us with our attention consumed by trivial affairs and constant worries. I think of my children. We just bought them new shoes, and as I gripe about the expense, I fail to see this means they’re growing up, growing away from me. Lucas doesn’t hold my hand near as much anymore.

The fun in my job comes from holding the life of a small town still for a while. With photos and articles, we capture something that would fade. We share a moment’s relevance with others.

The challenge is how to do that with our own lives, how to take the time to really look at one another.

This is the life we have, every, every minute of it. Our growing up and marrying and living and dying. That we be so lucky as those saints and poets.

Repairing older homes will save lives

Extreme heat causes thousands of unnecessary deaths each year in the United States. And due to climate change, heat waves are becoming more common. This summer, for example, Phoenix had a record 31 straight days with temperatures hitting 110 degrees or higher.

Having an airtight home with decent insulation and functioning air conditioning protects people from the ravages of heat in these times. Increasingly, however, people lack such protections. The median age of homes is over 41 years, and in some older Rustbelt cities over half the homes are over 80 years old. Older housing is not airtight and often lacks adequate air conditioning, and low-income households typically lack the funds to address these issues.

How did we get here? Although never stated as official policy, the basic approach in the United States for providing affordable housing has been to subsidize the construction of new homes for affluent households. The housing that the well-off leave behind, the policy assumes, will then filter down to lower income households. As older housing deteriorates, it becomes more “affordable.”

But this trickle-down approach to affordable housing is starting to break apart. It’s time to invest in home repair

programs to help low-income households in older homes.

Unfortunately, home repair programs receive relatively little attention from the federal government. One reason is that housing deterioration is largely invisible to the public. You can see a collapsing porch, but you can’t see the elderly couple suffering from heatstroke due to malfunctioning air conditioning.

Short of sending inspectors into every home, which would be prohibitively expensive, there is no way to determine the extent of housing deterioration. But that’s starting to change.

Together with a team of researchers at the University of Missouri-St. Louis, I helped develop a new methodology to estimate the need for home repairs by asking people how they experience their home.

We mailed out questionnaires and received completed surveys from 582 older homeowners in St. Louis.

What we found was eye-opening. The average cost of needed repairs was $13,023, meaning it would require more than $300 million to finance all needed repairs for older homeowners in St. Louis alone.

Besides hot indoor air temperatures, we found other problems with debilitating health effects, such as faulty electrical wiring, which can cause fatal fires, and excessive mold, which has been linked to serious health problems

like asthma.

Funding home repairs makes economic sense. Rebuilding Together, a national nonprofit specializing in home repair, commissioned a study which found that every dollar contributed to their repair programs generated $2.84 in “social value.” Of that value, $1.32 came from saved expenses for Medicare and Medicaid, due to fewer injuries and mental health challenges, and reduced use of assisted living facilities.

The argument for funding home repairs is also a matter of racial justice. Black homeowners reported needed repairs costing more than twice that of white homeowners ($17,904 versus $7,832). Prohibited from purchasing homes in more privileged parts of St. Louis in previous decades, Black residents tend to live in neighborhoods with low housing prices and, therefore, have little equity to tap into to make necessary repairs. The lack of affordable housing is at the top of the policy agenda for many politicians. Home repair preserves affordable housing and needs to be added to that agenda. Local advocates can help. Our questionnaire and toolkit enable any city to estimate the need for, and the cost of, home repairs. Both are available online, helping cities take the first step to understand the problem and to take action to fix it.

The University of Michigan’s September Consumer Sentiment Index is sitting at 71.6 points, which is well above the June 2022 all-time low of 50 but well below the 101 achieved in February 2020. While the index is mired at pre-pandemic levels, the economy has marched ahead. According to a related Economist magazine study, for the first time in more than 40 years, the sentiment index no longer tracks traditional measures of economic activity such as employment, income and GDP growth. Instead, the index seems to be locked in a cellar. The consumer funk is deep and difficult to understand. Could it be worry about inflation? Is it falling personal income? Or lost trust in government and other institutions that help people cope in times of trouble and that are celebrated in better times? Perhaps we need to revisit Jimmy Carter’s 1979 malaise speech. When struggling with an OPEC-driven energy crisis, Carter noted: “There is a growing disrespect for government and for churches and for schools, the news media and other institutions. This is not a message of happiness or reassurance, but it is the truth and it is a warning.”

average of 98.”

There is one last item to drop in the mix when trying to understand the current funk and that’s what is happening to U.S. personal income. The most recent data show that real median household income has fallen for the last three years, year-over-year, after skyrocketing 7.14% in 2019. This kind of sinking volatility inspires caution and a tendency to hunker down while reassessing the situation.

Returning to Jimmy Carter’s 1979 malaise assessment and his comments about declining trust, current polling from Gallup indicates that just 26% of those recently surveyed trust the presidency and public schools. Only 25% trust organized labor, and a measly 14% trust newspapers. At 65%, small business ranks highest among the 14 ranked institutions, and the military ranks second with a confidence reading of 60%.

So where do we stand? Optimism or pessimism?

It’s clear that major features of our lives have not fallen completely apart and taken a new tack, and that fundamental relationships—both economic and social—still matter.

It is also clear that a new equilibrium has not been achieved since COVID disrupted critical features of life. When we add to this witch’s brew a high level of toxic political rhetoric, threats of government shutdowns, the effects of the Russia-Ukraine war, the array of challenges faced by ordinary citizens, owners of small businesses, and corporate CEOs becomes all the more daunting.

If consumers are in a funk, they are not alone. According to a recent National Federation of Independent Business (NFIB) survey, owners and operators of America’s small businesses are worried, too. The organization’s “Small Business Optimism Index decreased 0.6 of a point in August to 91.3, the 20th consecutive month below the 49-year

So, where do we stand? Optimism or pessimism?

When all else fails, I turn to the authors of great books for inspiration. In this case, it’s Watty Piper, author of “The Little Engine That Could.” In the current situation, we have to hunker down and repeat aloud, “I think I can. I think I can.” Do it daily. Then, give it time.

A look back in t me. A look back in t me.

50 Years Ago

September 1973

Mike Russell, president of the Iola Broadcasting Company, Inc., took over ownership of radio station KALN today. Russell told the Register this morning that approval of the purchase by the Federal Communications Commission in Washington cleared the way for him.

*****

The city has replaced 105 mercury vapor lights in the downtown area of Iola with Unaluxes, high pressure sodium lamps developed by Sylvania. The new lights provide 70 percent more light on the streets at a power usage of 10 percent less, officials report. The switch-over was readily apparent Friday night. The Unalux bulbs cast a golden-white light, compared to the white light of the mercury vapor units.

*****

The stockholders of Thompson Poultry, Inc. of Iola, facing a debt of $1

million, sold the business to James B. Blair, attorney for Tyson Foods, Inc. of Springdale, Ark., on Aug. 2. Under the terms of the contract, Blair is to transfer the stock to Tyson Foods upon demand. Tyson will operate the plant under this arrangement as Thompson Poultry, Inc., until such time, if ever, a decision is made to incorporate the Iola plant into the Tyson operation under the Tyson name. Last week Robert Harris, a Tyson employee with broad experience in poultry plant operation, moved to Iola and took over plant management.

*****

Rainfall officially totaling 5.81 inches the past four days has swollen the total for this month to 12.70 inches and pushed the total for the year to 51.36 inches, 20.85 inches more than has normally fallen by this time of year. September 1973 is the fourth-wettest September since 1900.

Opinion The Iola Register
A6
Relics of times and childhoods past. JAKOB OWENS/UNSPLASH

White House prepares for shutdown

WASHINGTON (AP) —

The White House is preparing Friday to direct federal agencies to get ready for a shutdown after House Republicans left town for the weekend with no viable plan to keep the government funded and avert politically and economically costly disruption of federal services.

A federal shutdown after Sept. 30 seems all but certain unless Speaker Kevin McCarthy can convince his rebellious hard-right flank of Republicans to allow Congress to approve a temporary funding measure to prevent closures while they work on the annual federal spending plan. But the House is not expected back until Tuesday, leaving just five days to resolve his standoff.

“We got members working, and hopefully we’ll be able to move forward on Tuesday to pass these bills,” McCarthy, R-Calif., told reporters at the Capitol.

McCarthy signaled his preference for avoiding a closure, but a hard-

right flank of his House majority has effectively seized control. “I still believe if you shut down you’re in a weaker position,” he said. The standoff with House Republicans over government funding puts at risk a range of activities — including pay for the military and law

enforcement personnel, food safety and food aid programs, air travel and passport processing — and could wreck havoc with the U.S. economy.

With the Oct. 1 start of a new fiscal year and no funding in place, the Biden administration’s Office of Management and Budget is preparing

to advise federal agencies to review and update their shutdown plans, according to an OMB official. The start of this process suggests that federal employees could be informed next week if they’re to be furloughed.

President Joe Biden has been quick to blame the likely shutdown on

New Jersey senator indicted on bribe charges

NEW YORK (AP) —

Sen. Bob Menendez was charged Friday with secretly aiding the authoritarian regime of Egypt and trying to thwart the criminal prosecution of a friend in exchange for gold bars and cash as prosecutors unsealed a corruption indictment that accuses him of using his foreign affairs influence for personal gain.

The indictment, the second in eight years against the powerful 69-year-old New Jersey Democrat, alleges

an illegal commingling of Menendez’s professional obligations as chairman of the Senate Foreign Relations Committee to advance U.S. priorities and his private interests in cultivating relationships with wealthy businessmen. The indictment — coming years after an earlier criminal case against Menendez ended with a deadlocked jury — also charges the senator’s wife and three New Jersey businessmen who authorities

LaHarpe: Cleanup

Continued from A1

are unable to do so on their own.

The group will meet at LaHarpe City Hall for breakfast at 8 a.m. before heading out to several properties in need of cleaning, hauling away debris, and yard or household items. Car tires will be picked up at a cost of $2 per tire.

Ideally, homeowners should be on site if volunteers come on property to pick up items.

Those unable to do so

are encouraged to pull the items to the edge of the street if possible.

A half dozen or so

Kansas State University students are forgoing an idle weekend to volunteer for the cause, but more help is needed.

Trucks from Nelson Quarries and Southern Star Central Gas will be used to help with the effort as well.

To be put on the list for cleanup or to volunteer, call LaHarpe City Hall (620) 496-2241.

say showered the couple with money, gold and a luxury car in exchange for his actions on their behalf.

Menendez is also accused of trying to derail the criminal case against one of the businessmen by pushing to install Philip R. Sellinger as U.S. attorney for New Jersey because Menendez believed he could influence Sellinger. Prosecutors say he also tried to use his position of power to try to meddle in a separate investigation by the New Jersey Attorney General’s office.

Authorities found more than $100,00 worth of gold bars in Menendez’s home, and $480,000 in cash — much of it hidden in closets, clothing and a safe, prosecutors say. Photos included in the indictment show cash that was stuffed in envelopes found in jackets bearing Menendez’s name. Authorities found a Google search by Menendez for “how much is one kilo of gold worth” and DNA of one his co-defen-

dants on an envelope in Menendez’s home filled with thousands of dollars of cash, they said.

Prosecutors allege Menendez took repeated actions to benefit Egypt despite US. government misgivings over the country’s human rights record that in recent years has prompted Congress to impose restrictions on aids.

His steps include ghost-writing a letter to fellow senators encouraging them to lift a hold on $300 million in aid to Egypt as well as transmitting non-public information to Egyptian officials about military issues, the indictment says.

House Republicans, who are intent on spending cuts beyond those laid out in a June deal that also suspended the legal cap on the government borrowing’s authority until early 2025.

“They’re back at it again, breaking their commitment, threatening more cuts and threatening to shut down government again,” Biden during a recent speech in suburban Maryland.

McCarthy faces immense pressure for severe spending cuts from a handful of hardright conservatives in his caucus, essentially halting his ability to lead the chamber. Many on the right flank are aligned with Donald Trump — the Republican frontrunner to challenge Biden in the 2024 election — opposed the budget deal the speaker reached with Biden earlier this year and are trying to dismantle it.

Trump has urged the House Republicans on, pushing them to hold the line against federal spending.

If you have enjoyed the Food Detox or Infrared Sauna or thinking about trying it, book five sessions of your choice and receive your sixth for free until November 1, gift certificates and online booking are available at nativehealing.co or contact us at nativehealingiola@gmail.com.

A7 iolaregister.com Saturday, September 23, 2023 The Iola Register ALLEN COUNTY 10 a.m. - 2 p.m. 505 N. Buckeye St., Iola KS FLU AND PNEUMONIA VACCINES AVAILABLE. FREE HEALTH SCREENINGS. Vendors include Community Health Center of Southeast Kansas, SEK Mental Health Center, Iola Public Library, K-State Research and Extension, Hope Unlimited and so many more! Need a ride? Contact Allen County Regional Transportation at 620-228-0463 to schedule a free ride to and from the event. , FALL SPECIAL
110 S. Jefferson Ave., Iola Second Chance Thrift Store 209 South St., Iola, KS 620-363-4499 We are looking for volunteers. Come see us today! We need donations! Gently used items are always appreciated. Come and see all the new things happening! Thurs. and Fri. 10 a.m. - 5 p.m. Sat. 10 a.m. - 3 p.m.
Visitors walk past the U.S. Capitol on Sept. 11 in Washington, DC. The House of Representatives is scheduled to return Tuesday following an almost six-week break and lawmakers have only a dozen legislative days left to come up with a budget compromise and avert a government shutdown. GETTY IMAGES/CHIP SOMODEVILLA/TNS
A8 Saturday, September 23, 2023 iolaregister.com The Iola Register We install Onyx Showers! Kenton “Kenny” Anderson (620) 365-0402 7 N. Jefferson Ave. Iola, Kansas 66749 PROUDLY MADE IN BELVUE, KS REMODEL YOUR BATHROOM WITH ONYX! Providing your roofing needs for more than 69 years. borensroofing.com Family owned & operated 306 N. State St., Iola 800-750-6533 • 620-365-ROOF (7663) Commercial • Industrial • Residential Licensed & Insured Get your furnaces ready! CALL US FOR ALL OF YOUR HVAC MAINTENANCE NEEDS. 620-365-3534 211 N. Jefferson • Iola THE NEW KLEIN LUMBER CO. 201 W. Madison | (620) 365-2201 • Insulation • Caulking • Thresholds • Weather Stripping • Storm Window Kits • Replacement Windows Summer has come and gone. With dropping temperatures, will you be ready for winter? We are here to help you stay safe and warm this winter. WE HAVE EVERYTHING YOU NEED: FALL WINTER INTO PREPARATIONS WITH KLEIN LUMBER Decorator We offer the latest in all floor coverings such as: 102 N Washington in Iola (620) 365-5211 We do Graber window treatments, too! 824 N. Chestnut-Iola • tholenHVAC.com (620) 365-6445 NATIONAL FURNACE TUNE-UP MONTH IS HERE! Call HVAC Service Pr and get a qualified technician to: Clean the burner and check for cracked heat exchanger Lubricate moving parts and check condition of system Inspect fuel and drain lines Measure and fix airflow, including ductwork Test and calibrate thermostat Recommend energy-saving practices And more! Give us a call today! KALE ELECTRIC Ken Kale kdankale@gmail.com P.O. Box 215 Moran, KS 66755 ELECTRICAL WE’RE HERE FOR ALL OF YOUR NEEDS! Is your furnace ready for winter? We will be glad to make sure it is! Fall is the best time to upgrade your home system. Call us to get a quote! 18-month no-interest financing! Special fall rate for replacement units!

Sports Daily B

Saturday, September 23, 2023

Iola’s Middle Mustangs open Homecoming

Iola’s Middle School football teams welcomed Santa Fe Trail to town Thursday and split their matchups.

The seventh grade Mustangs scored a touchdown in each of the final three quarters for a 20-14 win before Iola’s eighth grade team was outmuscled in a 28-8 loss. Iola only suited up 11 Mustangs in their eighth grade game.

“It was iron man football today. The boys worked their tails off, and I am proud of that,” Iola head coach Scott Ellis said. “We will learn from it and get back to it.”

Seventh grade

Iola did an admirable job of holding onto the ball of-

fensively and limiting turnovers in their third victory of the season.

Lucas Boeken led the Mustangs with 89 rushing yards and a touchdown while

Hunter McDaniel provided the Mustangs with runs of 45 and 22 yards, racking up 67 total ground yards.

“The boys played hard until the end,” said Ellis. “We let too many big plays get by us, but I appreciated us executing the offense a little bit better tonight. We didn’t give as many turnovers as we’ve had in previous games, but it’s something we need to continue to get better at.”

Keithly started as quarterback for the Mustangs and completed three passes for 27 yards and a touchdown. The touchdown came on a 15-yard completion to Henry Kramer, one of Iola’s three touchdowns.

Defensively, McDaniel led Iola with a team-high eight tackles while Spencer Sar-

Chiefs host struggling Bears to Arrowhead

KANSAS CITY, Mo. (AP)

The Kansas City Chiefs appeared to fix many of their Week 1 problems last week in Jacksonville, when All-Pro defensive tackle Chris Jones returned from his holdout, star tight end Travis Kelce was back on the field following a knee injury, and an offense that struggled against Detroit looked just a little bit better against the Jaguars.

Sure, they still had a bunch of penalties. Turnovers remained a problem. The offense was still trying to hit its stride.

Yet those issues seem like mere nuisances compared to what’s going on in Chicago these days.

As the Bears prepare to visit the Chiefs on Sunday, they are without a defensive coordinator following Alan Williams’ surprising and abrupt resignation and their offense is embroiled in controversy after quarterback Josh Fields blamed coaching for “robotic” play and then tried rather unsuccessfully to walk back his comments.

So how does Bears coach Matt Eberflus steer a rudderless team going forward?

“You focus on here and now,” he said. “What could we do right now during this time, with the meetings we had this morning, with the

improvements we’re going to make? That’s all you can do. Be where your feet are, focusing on right now.”

Problem is their feet will be in Arrowhead Stadium on Sunday, facing the defending Super Bowl champions. The Bears (0-2) are nearly twoTD underdogs, according to FanDuel Sportsbook, as they try to snap a 12-game losing streak dating to last season.

“We’re going through a storm right now,” Field said after last week’s loss to Tampa Bay. “It’s frustrating not winning. But I think at the same time, like I said, just take it day by day and not really worry about the past. The past is the past.”

It’s not as if the Chiefs (11) are humming along perfectly, especially on offense. They turned the ball over three times, committed 12 turnovers for 94 yards and a group of wide receivers that had eight drops in their opener against Detroit continued to put the ball on the ground during their 17-9 victory over the Jaguars last week.

“The frustration is probably more of me and about myself and how the offense has been doing,” Chiefs quarterback Patrick Mahomes said. “Everybody has been having that mentality that we just have to keep working.”

gent added six tackles and Theodore Beerbower and Boeken each had two tackles. The Mustangs allowed Santa Fe Trail to score once in the second quarter and the other in the fourth.

“Hunter McDaniel was much more aggressive for us on both sides of the ball and finishing leading tackles for us,” said Ellis.

Eighth grade Despite only having 11 players suit up, the 8th grade Mustangs were able to stay close to Santa Fe Trail for three quarters in their loss.

Iola played a very physical game before Santa Fe Trail broke away for good, scoring two touchdowns in the final quarter. The Mustangs

only allowed the Chargers to score a pair of touchdowns early and trailed 14-8 heading into the fourth.

“I think this was a game that could have gone either way, but tonight it wasn’t ours,” said Ellis. “This team took us out of our game at times, which is something we haven’t seen yet.”

Reed Clift scored the lone touchdown for Iola when he carried in a one-yard touchdown run in the second quarter to cut the deficit to 14-8.

Reginald Davis III rushed for a team-high 79 yards while Kevon Loving rushed for 45 yards and Clift added six rushing and 85 passing yards.

Defensively, Clift led the Mustangs with a team-high six tackles while Colton Thompson had five tackles and Brycen Baker and Noah Anderson each had four tackles. In a physical matchup, the Mustangs weren’t able to force any turnovers.

Iola hosts Prairie View next Thursday at 4 p.m.

Wildcat volleyball in action

MORAN — Marma-

ton Valley’s Junior High volleyball team hosted Pleasanton on the hardwood Thursday afternoon.

The Wildcats A team lost to the Blu-Jays while Marmaton Valley’s B team won in two sets and the C team Wildcats earned a win in only one set.

Marmaton Valley A was defeated by Pleasanton in three sets, 11-25, 25-21 and 12-15.

MVJH beats Pleasanton

MORAN — Marmaton Valley’s Junior High football team throttled Pleasanton at home Thursday, 46-6.

The Wildcats (3-1) were the more physical bunch and controlled the line of scrimmage most of the game, only allowing Pleasanton to score one touchdown in a blowout win. Marmaton Valley was disciplined offensively, picking up a number of penalty yards.

“Offensively, I have seen

improvement, and that is the key,” Marmaton Valley head coach Dan Uhlrich said. “I was happy this week that we focused and got many free yards from being disciplined and focused on the task at hand.

Pleasanton scored once through the air but couldn’t get anything going outside of that.

“I thought we tackled very well,” said Uhlrich. “Pleasanton had some great athletes, so this was nice to see.”

Marmaton Valley kicks off at Yates Center next Thursday at 4 p.m.

Reagan Marshall scored a team-high three points in the first set before Alayna Cook scored a team-high nine points in the second. Layla Cook and Alayna Cook each notched a teamhigh three points in the third set.

The Wildcats’ B team knocked down Pleasanton, 25-19 and 25-12.

Kenna Bryant-Boone scored a team-high 10 points in the first set while Kaylee Burris added five points. Marshall had a team-high seven points in the second set while Grayce Dodson notched six points. Harlie Cook and Bryant-Boone each had four points in the set.

Marmaton Valley’s C team dropped their lone set to Pleasanton, 25-13. Dodson scored a teamhigh 11 points while Burris had five points.

Marmaton Valley hosts another home meet Monday at 5:30 p.m.

Iola’s eighth grade football team is introduced pregame against Santa Fe Trail on Thursday, Sept. 21. REGISTER/QUINN BURKITT
The Iola Register
Iola eighth grader Reginald Davis III hauls in a long pass against Santa Fe Trail. REGISTER/QUINN BURKITT The Iola Register Marmaton Valley’s Bryant Uhlrich reaches and catches the ball and scores. PHOTO BY HALIE LUKEN Kameren McClenning goes for a tackle. PHOTO BY HALIE LUKEN

Kansas to host BYU’s first-ever Big 12 game

The Associated Press

The Cougars make their Big 12 debut when they travel to Memorial Stadium to take on Kansas, a program that has been on the upswing under Lance Leipold the past two seasons. Both are coming off narrow wins that took them to 3-0. BYU squeezed out a 38-31 win at Arkansas while the Jayhawks won 3124 at Nevada. Kansas is trying to win its first four games for the second straight year. It won the only previous meeting with BYU 2320 in the 1992 Aloha Bowl.

KEY MATCHUP

Kansas RB Devin Neal against the BYU run defense. Neal is the Big 12’s top returning rusher, and he’s averaging more than 100 yards per game after going for 79 with three touchdowns last week at Nevada.

The Cougars allowed 177 yards and two TDs on the ground last week against Arkansas, despite the Razorbacks missing star running back Raheim Sanders.

PLAYERS TO WATCH

BYU: QB Kedon Slovis has thrown for 660 yards and six TDs with just one interception. More importantly, the

former USC and Pitt quarterback has been a calming influence for the Cougars. They trailed 14-0 against Arkansas before rallying to take the lead, and then Slovis led another rally when the Razorbacks took the lead again last week.

Kansas: QB Jalon Daniels had nearly 300 yards passing against Nevada, but the dual-threat star wasn’t much of a threat on the ground. He actually lost four yards on seven carries during the win over the Wolf Pack.

Rapinoe’s legacy bigger than soccer

Whether she was advocating for equal pay and racial justice or just scoring a rare goal off a corner kick, Megan Rapinoe was always unabashedly authentic during her soccer career.

As she prepares to step away, the 38-year old Rapinoe is showing a more vulnerable side, too.

FACTS & FIGURES

The Cougars have won seven straight games dating to last season.

BYU is beginning Big 12 play after spending the past 12 years as an independent. Cougars WR Darius Lassiter’s father Kwamie Lassiter played for Kansas before a career in the NFL.

His brother Kwamie Lassiter II also played WR for the Jayhawks while brother Kwinton Lassiter currently plays DB for them.

The Cougars rallied from 14 down to beat Arkansas last week, their largest comeback

under coach Kalani Sitake.

Parker Kingston became the seventh player in BYU history with TDs throwing and catching last week.

The last time Kansas started 4-0 in consecutive seasons was a stretch of three straight years from 1913-15.

Jayhawks FS Kenny Logan has 212 solo tackles, making him one of two active players at the FBS level with at least 200.

Kansas has 28 tackles-for-loss through its first three games. That is sixth nationally.

US sweeps Europe at Solheim Cup

CASARES, Spain (AP)

— The United States enjoyed its best-ever start to a Solheim Cup, sweeping the favored European team in all of the foursomes matches in the opening session to take a 4-0 lead in Spain on Friday.

The Americans, who are trying to avoid losing three Solheim Cups in a row to Europe for the first time, got off to a quick start and were ahead in most matches throughout the morning foursomes. The U.S. trailed briefly in only two of the matches at Finca Cortesin in southern Spain.

The previous best start for the U.S. was 3 1/2-1/2 in Wales in 1996.

The first U.S. point came with the final group, as Ally Ewing and Cheyenne Knight easily beat Charley Hull and Emily Pedersen 5 and 4. Ewing and Knight made the turn 6 up and were never really challenged.

The Americans also won with the first group as Lexi Thompson and Megan Khang defeated Swedish rookies Maja Stark and Linn Grant 2 and 1. Thompson and Khang, who together have nine Solheim Cup appearances, took an early 3-up lead through three holes. The two Swedes rallied to even the match through 13 holes, but winning Nos. 15 and 17 secured the point for the U.S.

Andrea Lee and Danielle Kang were 1 down through eight holes but came back to win 1 up against Celine Boutier and Georgia Hall.

U.S. Women’s Open champion Allisen Corpuz made a short

putt on the final hole to secure a 1-up victory with Nelly Korda against Leona Maguire and Anna Nordqvist, who is also acting as a vice captain for the Europeans. Maguire had won four matches in her Solheim Cup debut two years ago,

The teams will be back in the afternoon for the fourball matches, when each player will hit their own ball. They alternated shots with one ball per team in the foursomes.

The Europeans, looking for their unprecedented third consecu-

tive title, came in with the label of favorites after bringing an experienced squad to Spain. The Americans arrived with a young team that included five rookies, though many who have won important tourna-

See US | Page B6

Rapinoe sobbed following the U.S. loss to Sweden at this summer’s Women’s World Cup, knowing it would be her final tournament with the national team. She was emotional again last weekend, playing her final rivalry match between her NWSL team, OL Reign, and the Portland Thorns.

“I’ve just loved every moment of my career,” she said through tears at the World Cup last month in Australia. “I’ll just miss it to death, but it also feels like the right time. And that’s OK.”

On Sunday, Rapinoe will play her final game in a U.S. jersey when the United States faces South Africa at Chicago’s Soldier Field. She’ll have a few more regular-season games for the Reign, including a send-off match for local fans in Seattle on Oct. 6.

“Obviously, the Pinoe that the world sees is an incredible person and human.

And that is her also up close and personal: She brings a sense of humor and lightness, but intensity and empathy, and just — she is one of a kind,” defender Kelley O’Hara said. “There’s never been one like her. There’s probably never going to be one close to her.”

Portland was where it all started for Rapinoe. As a freshman at the University of Portland, she helped lead the Pilots to the 2005 national title.

Canadian Christine Sinclair, who also played for the Portland Pilots, said she and Rapinoe sort of grew up together, navigating college before competing on opposing national teams and professional clubs.

“I’ve spent pretty much my entire career competing against her ever since college, whether it’s for Canada or here in Portland. I have so much respect for her. We’re definitely two different types of people, but what she’s done for the game, I think she’s helped inspire an entire generation of young soccer fans,” Sinclair said.

Rapinoe went on to win a pair of World Cups and both gold and bronze medals at the Olympics. In just over 200 appearances for the United States since her debut in 2006, she has scored 63 goals. She’s scored two goals directly

See USWNT | Page B3

B2 Saturday, September 23, 2023 iolaregister.com The Iola Register OBTP#B13696 ©2017 HRB Ta G oup I c 108 W MAIN ST CHANUTE KS 66720 620-431-0570 901 N STATE ST IOLA KS 66749 620-365-2141 FROM PAYROLL AND BOOKEEPING TO EXPERT TAX PREPARATION AND ADVICE, H&R BLOCK IS READY TO WORK FOR YOUR SMALL BUSINESS. Let us handle your books so that you can focus on what matters most: Your Small Business. For the year-round services you need and the individualized attention you deserve, come visit or call us today. At participating offices, services do not include audit, attest or other services for which a license is required. Family owned and operated for over 40 years! (620) 431-4840 19 S. Highland - Chanute w w w chanutehearing com Mon.-Thurs. 9 a.m. to 1 p.m. • Closed on Fri. OMNIA INTRODUCING OUR BRAND RECHARGABLE HEARING AID New • Free hearing evaluations • Free 30 day trials with no up front costs CATHERS OFFERS • Interest Free financing with Approved credit
Kansas’ Devin Neal avoids being tackled by Nevada’s Ezekiel Robbins as he carries the ball in 4th quarter of an NCAA college football game Saturday, Sept. 16. AP PHOTO/ANDY BARRON Solheim Cup team US golfer Nelly Korda reacts to a putt during the foursomes play at the Solheim Cup in Finca Cortesin. AP PHOTO/BERNAT ARMANGUE

USWNT: Rapinoe’s legacy with team bigger than soccer

Continued from B2

from corner kicks at the Olympics.

At the 2019 World Cup in France, Rapinoe scored six goals, including a penalty in the final against the Netherlands.

With her lavender hair, her victory pose, arms outstretched, became one of the iconic images of the dominant U.S. run. She claimed the tournament’s Golden Boot and the Golden Ball for the best overall player,

and later that year was named the FIFA Best women’s player and won the prestigious Ballon d’Or.

“I don’t think there’s enough words to talk about Megan and her impact on this sport,”

fellow forward Lynn Williams said. “From equality to human rights, the list goes on and on and on. So that’s going to sting a little bit, to not see her on this team and wearing the crest anymore.” With the Reign, Rapi-

noe is one of just five players who have spent their entire career in the NWSL playing for just one club.

But for all of her accomplishments in the game, she is probably just as well known for her off-the-field advocacy and activism.

Rapinoe led her team’s long fight for equal pay with their men’s national team, which started with an EEOC complaint back in 2016. It was finally resolved last year, when both teams

reached contracts with U.S. Soccer that paid them equally and split tournament prize money. Among prominent athletes to publicly come out, Rapinoe has been outspoken about LGBTQ issues, including transgender rights.

In 2022, President Joe Biden awarded her the Presidential Medal of Freedom, the nation’s highest civilian honor.

At the 2019 World Cup, there was controversy when an old video

surfaced of her saying she wouldn’t visit the White House if the team won the tournament. It attracted former President Donald Trump’s attention and he tweeted: “Megan should never disrespect our Country, the White House, or our Flag, especially since so much has been done for her & the team.”

The team didn’t go to the White House after winning the title — but got a ticker-tape parade in New York City.

“She’s just a big per-

sonality both on and off the pitch,” former coach Jill Ellis said. “And I think she honestly thrives in these moments.”

In 2016, Rapinoe knelt during the national anthem in solidarity with Colin Kaepernick, the former San Francisco 49ers quarterback. He knelt during the anthem to call attention to racial inequality.

U.S. Soccer responded by adopting a rule that players must stand for anthems, which was rescinded in 2021.

B3 iolaregister.com Saturday, September 23, 2023 The Iola Register WE WANT TO HELP YOU GROW DIGITAL MARKETING FOR BUSINESSES • Lots of storage units of various sizes • Boat & RV Storage building • Fenced - under lock & key - supervised 24/7 • RV park for trailers and self-contained vehicles • Concrete pads & picnic tables • Ferrellgas propane sales • Laundry & shower facilities (620) 365-2200 1327 W. Hwy. 54 TIME TO SHINE, MORAN! Ken Kale kdankale@gmail.com P.O. Box 215 Moran, KS 66755 KALE ELECTRIC THE BEST PLACE TO GET IT FIXED. My Cool Neighbor LLC Heating, Cooling and Home Services Derrick Foster Owner Office: (620) 380-6196 Cell: (816) 699-4473 Contact@MyCoolNeighbor.com MyCoolNeighbor.com commercial-residential licensed-insured office 620-365-6684 cell 620-496-9156 Danny Ware Miller’s Gas Body Shop Gas Body Shop Hwy. 54 in Gas • (620) 365-6136 • 8 a.m.-5 p.m. Mon. -Fri. David (Duke) Miller, owner Collision Repair and Painting We treat your car right...the rst time! We guarantee it! 511 S. State Street, Iola, KS Tire Sales & Service 620-365-3163 Mechanic Shop Goodyear Firestone Bridgestone Toyo Mastercraft • Cooper JD’s TIRE & AUTO 202 S. State • Iola • Headstones • Final Dates • Setting & Straightening • Vases Granite Memorials From Main Street to Your Street Give us a call for your roofing needs at: (620) 365-ROOF (7663) Serving the Area for 69 Years! 306 N. State St., Iola, KS 66749 borensroofing.com or 1-800-750-6533 BUSINESS DIRECTORY 6-8 times/month • $100/1 Mo. • $200/3 Mo. Read local. Shop local. CUSTOMIZED HEALTHCARE ACUPUNCTURE • SPORTS INJURIES NUTRITION & ALLERGY TREATMENTS MOST INSURANCE ACCEPTED 620-365-7711 103 West St. • Iola, KS 66749 CELEBRATING 35 YEARS IN BUSINESS! Two Locations To Serve You M-W-TH: Iola T&F: Fort Scott M&T: 9 a.m.-5 p.m. • W: 9 a.m.-6 p.m. TH: 1-5 p.m. • F: 9 a.m.-2 p.m. Serving Southeast Kansas Locations in Bourbon & Allen County 701 W. Mary St. • Yates Center, KS (620) 625-2191 301 W. 1st • Gas, KS (620) 365-3195 boc-ks.com 129 W. Randolph, Moran • (620) 237-4591 • themarmatonmarketinc.com Full Service Grocery Store Community Owned! Open 8 a.m. to 8 p.m. Mon-Sat. and 9 a.m. to 6 p.m. Sunday. Iola, KS (620) 365-6908 Humboldt, KS (620) 473-3831 Moran, KS (620) 237-4631
P S IINSURANCE LOREN KORTE & ROSAN WILLIAMS psi-insurance.com STAFF AVAILABLE M-TH 9:00 A.M. TO 8:00 P.M. AND BY APPOINTMENT FRI-SUN. 1301 N. 9th St. Humboldt, KS 66748 620-473-5200 NO CONTRACTS humboldtfitness.com READ LOCAL 302 S. Washington, Iola, KS 66749 • 620-365-2111 iolaregister.com @iolaregister @theiolaregister @iolaregister Support local. Subscribe to The Iola Register TODAY! 7 E. Madison Ave. Iola, KS 66749
620-363-4832

UAW expands strike targeting GM, Chrysler

The United Auto Workers union expanded its strike against major carmakers Friday, walking out of 38 General Motors and Stellantis parts-distribution centers in 20 states.

Ford was spared additional strikes because the company has met some of the union’s demands during negotiations over the past week, UAW President Shawn Fain said during an online presentation to union members.

“We’ve made some real progress at Ford,” Fain said. “We still have serious issues to work through, but we do want to recognize that Ford is showing that they are serious about reaching a deal. At GM and Stellantis, it’s a different story.”

GM and Stellantis, he said, have rejected the union’s proposals for cost-of-living increases, profit sharing and job security, and “are going to need some serious pushing.”

Instead of targeting more production plants Friday, the UAW went after centers that distribute parts to car dealer service departments. That could quickly drag consumers into the middle of the fight, if dealers run short of parts.

The UAW said the new walkouts will affect 5,600 workers on top of the nearly 13,000 who began strikes last week at three Ford, GM and Stellantis assembly plants. Those original strikes will continue, the union said.

The UAW is continuing to avoid targeting plants that make Detroit’s bestsellers, such as the Ford F-150 and Stellantis’ Ram pickups, which represent outsize shares of the companies’ revenue and

profit. That represents a union strategy to gradually increase the pain of a strike on the automakers. However, the industry’s supply chain is so integrated that even hitting lower-profile plants cuts into production.

Deutsche Bank analysts estimated Friday that GM, Ford and Stellantis have lost production of more than 16,000 vehicles since the strike started last week at a Ford assembly plant near Detroit, a GM factory in Wentzville, Missouri, and a Jeep plant run by Stellantis in Toledo, Ohio. Anderson Economic Group, a consulting firm in Michigan that tracks the industry, estimated Friday that the three big automakers have suffered economic losses of more than $1.6 billion.

The carmakers and some of their suppliers have laid off about 6,000 workers in moves they say are related to the strike. GM shut down a factory in Kansas that relies on parts stamped at the Wentzville plant.

Still, the impact is not

yet being felt on car lots around the country — it will probably take a few weeks before the strike causes a significant shortage of new vehicles, according to analysts. Prices could rise sooner, however, if the prospect of a prolonged strike triggers panic buying.

In bargaining, the union is pointing to the carmakers’ huge recent profits as it seeks wage increases of about 36% over four years. The companies have offered a little over half that amount. The UAW has other demands, including a 32-hour work week for 40 hours of pay and a restoration of traditional pension plans for newer workers.

The companies say they can’t afford to meet the union’s demands because they need to invest profits in a costly transition from gaspowered cars to electric vehicles.

Fain said that Ford has agreed to some union proposals, including the restoration of cost-of-living wage increases that were dropped several years ago, better profit-shar-

ing and improved job security.

A Ford spokesman, Daniel Barbossa, said the company “is working diligently with the UAW to reach a deal that rewards our workforce and enables Ford to invest in a vibrant and growing future.”

“Although we are making progress in some areas, we still have significant gaps to close on the key economic issues,” he said.

In response to repeated inquires, GM and Stellantis said Friday they would comment soon.

Rather than bargain with one company and set a pattern for contracts at the other two, the UAW has been negotiating simultaneously with all three Detroit giants. Targeting the parts-distributions centers could inflict quick pain on GM and Stellantis, said Daniel Ives, an analyst with Wedbush Securities.

“The UAW is going for the gut punch as this strike gets a lot nastier,” Ives said. He called it “a very strategic and risky poker move by the UAW.”

EMPLOYMENT SERVICES GARAGE SALES 1471 MONTANA RD IOLA MONDAY, TUESDAY & WEDNESDAY 1PM7PM DAILY. Books - Cast Iron Skillets - ClothesChristmas Decorations - Electric Drills - Electric Saws - Earthway Garden Seeder- Engine StandEstate Trimmer - Generator (PowerPro 1000 Watt) - Hats - Ice Chest - Kitchen Ware - Karcher Power Washer - Lantern - Mantis TillerPrinter - Picture Frames - Picture Albums - Qwik Benches - Roadmaster Wagon - Roller StandsSentry Safes - Soaker Hose - Saws (Hand) - Stanley Router - Trolly Jack (2-ton) - Tools - Two Wheel Dolly & Much More. EMPLOYMENT GARAGE SALES 628 N KENTUCKY FRIDAY 8 TO 5 SATURDAY 8 TO ?. Tools, Craftsman Chop Saw, Craftsman 13” Planer - Material, All Kinds of Doll, Hand Quilting Frame, Clothes, Power Tools, New Bit Shaper, Metal Chairs, Jewelry, Color Books, Something for Everybody. EMPLOYMENT ITEMS FOR SALE PACKING PAPERS AVAILABLE at the Iola Register Office. $3 per bundle. HOMES FOR RENT LODGING WANTED Willing to buy Annals of Iola and Allen County, 1868-1945, Vols. 1 and 2. Call the Iola Register, 620365- 2111 or email susan@ iolaregister.com PETS LAND WANTED LOOKING FOR HUNTING LEASE FOR DEER, DUCK, OR GEESE in Allen, Woodson, Neosho county area. Call 903-522-1176. SERVICES CLASSIFIED RATES: 3 Days - $2/word | 6 Days - $2.75/word | 12 Days - $3.75/word | 18 Days - $4.75/word | 26 Days - $5/word 3-DAY GARAGE SALE SPECIAL: 20 words or fewer - $12 | 21-40 words - $15 | 41+ words - $18 All ads are 10-word minimum, must run consecutive days DEADLINE: 10 a.m. day before publication. CLASSIFIEDS Nice Homes For Rent! View pictures and other info at growiola.com Insurance/Real Estate Loren Korte HUMBOLDT HUMBOLD 1 3 8 3 - 3 7 4 MORAN MORA 1 3 6 4 - 7 3 2 I O L A 365-6908 Storage & RV of Iola 620-365-2200 Regular/Boat/RV/Storage LP Gas Sales, Fenced, Supervised iolarvparkandstorage.com HECK’S MOVING SERVICE •furniture •appliances •shop •etc. Ashton Heck 785-204-0369 Licensed and Insured Free estimates (620) 212-5682 BOTTOMS UP TREE SERVICE 1 0 0 8 N I n d u s t r i a l R o a d H I o l a G e n e r a l R e p a i r a n d S u p p l y , I n c SHOP MACHINE H REPAIR MANUFACTURING CUSTOM Bolts StockofSteel Complete &RelatedItems Bearings ( 6 2 0 ) 3 6 5 - 5 9 5 4 1008 N. Industrial Road H Iola PAYLESS CONCRETE PRODUCTS, INC. 802 N. Industrial Rd., Iola (620) 365-5588 SEK Garage doors full service! residential &commercial industrial repair and installs fully insured free estimates! 620-330-2732 620-336-3054 sekgaragedoors.com B4 NELSON EXCAVATING RICK NELSON 620-365-9520 Saturday, September 23, 2023 iolaregister.com The Iola Register Call Jeanne 620-363-8272 Clean & affordable. Shots required. If you want the best, forget the rest! BOARDING CREATIVE CLIPS BOARDING FACILITY NOW OPEN FEEL AT HOME. 54 modern and comfortable rooms. Stay longer and save up to 50%. 14 N. State St., Iola Book direct! Call 620-365-2183 or visit regencyinnmotels.com EXTENDED STAYS FROM $650/MONTH TRUTH Newspapers put truth ont and center RECYCLE Iola Mini-Storage 323 N. Jefferson Call 620-365-3178 or 365-6163 JJ & LAWN SERVICE 620-473-0354 Garden Tilling Tree Stump Removal Junk Removal SOUTHEAST KANSAS History Online EMPLOYMENT Now hiring full-time day and night shifts Second shift differential $2 per hour Shifts are 7 a.m.-3:30 p.m. and 3:30 p.m.-2 a.m. Apply online at PeerlessProducts.com or visit us at 2702 N. State, Iola Now hiring for the positions below.Visit our website to review our excellent benefits package! Administrative Assistant Title III Starting Salary Range: $14.50 - $15.00 STARS Math Specialist Salary Range: $$35,280 - $39,720 Adult Education Instructor - Labette Starting Salary $33,280 Safety Officer Salary based on experience $33,280 - $40,000 Instructor Biology, Plumbing and Accounting For a detailed description of all open positions and instructions for submitting your application, visit our website at www.neosho.edu/Careers.aspx NCCC is an EOE/AA employer. CALL OR TEXT 620-363-0687 IN THE IOLA AREA ONLY AFTER 3:30 P.M. GUTTER CLEANING! $85 FOR A SINGLE-STORY HOUSE, $100 FOR A 2-STORY MONDAY - FRIDAY: 3:30 - 7:00 P.M. SATURDAY AND SUNDAY: 9 A.M. - 7 P.M. LAWN CARE JEREMY’S SMALL $15 - $20 PER SMALL YARD. INCLUDES WEED EATING AND EDGING. ARCHIVES iolaregister.com/archives Subscribers have unique access to CLASSIFIEDS RESULTS BUILD ADVERTISE YOUR IN THE CLASSIFIEDS 824 N. CHESTNUT • IOLA ( 6 2 0 ) 3 6 5 - 6 4 4 5 (620) 365-644 • Geothermal • Ice Machines • Residential HVAC • Commercial HVAC • LG Ductless Systems • Commercial Refrigeration We specialize in the sales, service and installation of: tholenhvac.com Please notify The Iola Register at least two days before you wish to stop or restart your paper. Call our Circulation Department at: 620.365.2111 GOING ON VACATION? WANT YOUR PAPER STOPPED OR HELD?
From left, United Auto Workers (U.A.W.) members Kaleb Delfine, Bryan Broecker, Michael Gatto and James Triplett picket outside the Jeep Plant on Sept. 18 in Toledo, Ohio. GETTY IMAGES/SARAH RICE/TNS

Holiday plans leave father feeling left out

Adapted from online discussions.

Dear Carolyn: My father is upset because my fiancé and I already made plans to spend an upcoming holiday with my fiancé’s family. My father asked why I hadn’t considered spending it with him. I truly didn’t mean any harm or even think about it, since my fiancé’s family asked us months ago.

I feel like I’m constantly disappointing my parents, who are divorced, because I’m now stuck in the middle of my parents and my fiancé’s family as well. I feel like I can’t make anyone happy. — Stuck in the Middle

Stuck in the Middle: You can make you happy. You can be thoughtful. And prepared, and transparent.

When someone invites you and you want to say yes, then that’s fine — but if you let that be your only guide, then the pre-planners will get all your time. That’s not fair to other people, or to yourself.

So: Decide generally who you want to see, how often, and how often you want to do your own thing as a couple. (No compulsory attendance at everyone’s family events.) Then block out a rough schedule as a couple so you know, when you’re invited to something, whether you can feel good about saying yes. Preparation also allows you to say, “I know you’re disappointed, Dad, but I’m doing my best to be fair.” No further discussion.

This hard work is optional; it really is your

time, your call, and they can all lump it. But you seem to want to stay close, which is admirable. With forethought, it’s achievable, too.

Dear Carolyn: A friend of my spouse must commute (via plane) to our state for work three days every week because he’s not approved to work remotely. He asked my spouse about apartments or rooms he could rent. My spouse suggested he live with us.

I was angry and told my spouse I don’t want a roommate or to be a landlord. My spouse was upset and felt I wasn’t being nice. He wants me to change my mind. We have a 6-monthold child and finally a house of our own after renting and sharing with roommates for 13plus years; I want my space and privacy. There are other ways we can show his friend kindness.

The friend is a nice guy and has been help-

ful to my spouse in finding employment and giving us lots of passme-downs from his kids. I told my spouse we could offer a room as a stopgap until he finds something more permanent. Am I really a bad person for not saying yes to this?

— Not a Roommate

Not a Roommate: Nope. Your offer is a generous compromise under the foreheadslappingly bad conditions your spouse created by not talking to you before he offered his friend a room. Two equals who share a home forfeit the right to offer it out unilaterally, except in a shortterm emergency or unless there’s some sort of shared cultural understanding or protocol you both live by.

Since you have enormous incentive to fix this with your spouse, even though you’re 100 percent right, maybe acknowledge his big heart and his indebtedness and say you’re

fine with doing x, y or z in lieu, but you’re not fine with the indefinite roommate or with being pressured to change your mind. Or with not having a serious talk about his not talking to you first.

Are you sure the friend even wants to be there? He asked for rental prospects and might have meant it. The fifthwheel roommate in a home with a baby is not a tempting gig.

ZITS
by Jerry Scott and Jim Borgman BEETLE BAILEY by Mort HAGAR THE HORRIBLE by Chris Browne BLONDIE by Young and Drake MUTTS
CRYPTOQUOTES R Z R H S J R X O W B R X T W U J Q W W A N V R , O X J J Q M C O H N V A G R X D A D V M A H R R . — R V Q J S U H N M A R
the bird that
Rabindranath
B5 iolaregister.com Saturday, September 23, 2023 The Iola Register
MARVIN by Tom Armstrong HI
AND
LOIS by Chance Browne
Yesterday’s Cryptoquote: Faith is
feels the light when the dawn is still dark. —
Tagore
PIXABAY.COM Please notify The Iola Register at least two days before you wish to stop or restart your paper. Call our Circulation Department at: 620.365.2111 GOING ON VACATION? WANT YOUR PAPER STOPPED OR HELD?
Tell Me About It
Carolyn Hax

NHL tries to grow game Down Under

BRISBANE, Australia

(AP) — It’s a frequent — and most often frantic — high-pitched yell when kids playing street hockey in North America know their game is about to be interrupted.

“Car!” screams one of the players, and the nets at either end of the makeshift asphalt or cement “rink” are quickly — and most often begrudgingly — pulled to the side of the road to allow a vehicle to pass. Then the nets are back on the street and play with the often tattered hockey sticks and a battered tennis ball resumes — at least until the next car approaches.

If the National Hockey League has its way, youth in Australia — where it’s common to see cricket being played in parks and on quiet streets — will soon have an opportunity to do the same with a variation of North American street hockey.

The NHL, attempting to build on its first foray into the Southern Hemisphere with two preseason games between the Los Angeles Kings and Arizona Coyotes on Saturday and Sunday in Melbourne, is expanding its NHL Street Hockey program to Australia.

The program is designed for children ages 6 to 16. The North American version has incorporated various aspects of previously successful NHL club programs in non-traditional hockey markets such as Las Vegas, Nashville and Tampa, Florida.

Although Australia fits the non-traditional hockey market, Mark Black, the NHL’s vice president of international operations, told The Associated Press that the league feels it’s a long-term viable market.

“There is an interesting history of hockey in Australia and a lot of passion there for all sports,” Black said in a telephone interview. “It may be a smaller market, but there is a lot of knowledge.”

The NHL’s plan Down Under will be to use the upcoming year to pilot the program within a selection of interested lo-

Solheim

Continued from B2

ments recently. There was a lively crowd on the first hole ahead of the opening tee shots at Finca Cortesin, with the American fans in smaller numbers but being heard just as loud as the Europeans.

Former Spain great José María Olazábal brought on the trophy to the first tee and lauded what he called “one of the most important tournaments in women’s golf.”

Spain is hosting the Solheim Cup for the first time, 26 years after it hosted the men’s Ryder Cup at Valderrama.

cal schools in Victoria state, with a focus on the Melbourne area. It will then attempt to expand it across the country by mid-2024.

While ice hockey in Australia is definitely non-traditional, it’s been around for a while, and has a profile.

The semi-professional Australian Ice Hockey League has 10 teams, made up of a lot of expatriate and some former pro players, and it completed a 26-game schedule this season.

Ice hockey has a surprising 120-year history in Australia. The first rink in Australia was the Glaciarium Ice Palace in Adelaide, South Australia where the first games of “bandy” were played using field hockey sticks with a ball on the ice.

In 1904, a notice at the Glaciarium asked for skaters to express their interest “in the introduction of a new form of amusement on the ice.” So hockey on ice, unlike its distant field hockey cousin which is played outdoors on grass or artificial turf and with a slew of different rules, equipment and styles — no serious contact among competitors, for the most part — was born.

And field hockey in Australia has plenty of street cred. The men’s Kookaburras and women’s Hockeyroos have won numerous Olympic medals and World Cup or world championship titles.

Organized hockey games featuring more North American rules started when ice rinks

Nesty is first Black US swimming coach

Anthony Nesty made more history Thursday when he was picked to lead the U.S. men’s swimming team in Paris, where he will become the first Black head coach for the powerhouse American squad at the Olympics.

Nesty’s selection was announced by USA Swimming, which also appointed Todd DeSorbo to head the women’s squad next summer.

the world championships.

Nesty and DeSorbo, who coaches at the University of Virginia, will be reprising their roles from the Budapest worlds, where Nesty led the men’s team and DeSorbo headed the women’s group.

opened up a few years later in 1906 in Melbourne and Sydney. It’s had its dry spells, particularly with the fledgling domestic league over the past 20 years.

Australian ties to the NHL are somewhat distant.

The first Australian-born NHL player — Jordan Spence — made his NHL debut during the 202122 season with the Kings. He was born in the beachside Sydney suburb of Manly and started playing hockey in Osaka, Japan before moving to Prince Edward Island in Canada as a teenager.

Spence, who identifies as Japanese-Canadian because he was only a year old when his family moved to Japan from Australia, is expected to play this weekend for the Kings against Arizona.

Ice Hockey Australia says St. Louis Blues forward Nathan Walker made NHL history twice: in 2014, when he became the first player of Australian nationality to be drafted by an NHL team when he was selected by the Washington Capitals in the third round — at No. 89; and again in 2017 when he became the first Australian player to appear in an NHL game in his debut for the Capitals.

Walker was born in Cardiff, Wales, but grew up in western Sydney and moved to the Czech Republic in 2007 after dominating local competition in Australia. He will soon begin his seventh season in the NHL and his fifth with the Blues.

The lack of topnotch talent currently in Australia is highlighted by the fact that Ice Hockey Australia has asked on its website for “expressions of interest” from potential players to fill its men’s and women’s teams for the world championships next year.

Australia, which has more than 6,000 registered hockey players, has been a member of the International Ice Hockey Federation since 1938 and played at the 1960 Olympics, though it lost both of its games, outscored by a combined 30-2 by Czechoslovakia and the United States.

The NHL’s Black says he hopes that the two preseason weekend games at Melbourne’s Rod Laver Arena and the street hockey program in schools might result in more homegrown Aussies in the NHL in the future, and help create a player pool for Australian teams in international competitions.

“We are looking at leaving a lasting impact beyond the weeks that we are in the market,” Black said. “It’s not a tomorrow thing, it’s a 20-year thing.”

Nesty, the University of Florida coach, works with top American swimmers such as Katie Ledecky, Caeleb Dressel and Bobby Finke.

“I’m excited to be the men’s head Olympic coach in Paris,” Nesty said in a statement released by USA Swimming. “Todd and I look forward to coaching these athletes to the best of their abilities in Paris next summer.”

Competing for Suriname, Nesty was the first Black male swimmer to win an Olympic gold medal when he upset Matt Biondi at the 1988 Seoul Games. In 2022, Nesty became the first Black coach to lead a U.S. team at

“I am thrilled coaches DeSorbo and Nesty will be joining us in Paris and am looking forward to the experience and leadership they will bring to the games,” said Lindsay Mintenko, managing director of the U.S. national team.

Nesty and DeSorbo served as assistant coaches with the U.S. team at the Tokyo Olympics, where the Americans won a total of 30 medals. Nesty’s swimmers included Finke, who captured a pair of golds, and Kieran Smith, who earned a bronze.

Since then, Dressel and Ledecky have joined his Gainesville, Florida-based pro training group.

In Budapest, the Americans captured 45 medals in the pool, surpassing the previous record of 38 by an individual country. The U.S. team will be decided at the Olympic trials, which

See USA | Page B7

B6 Saturday, September 23, 2023 iolaregister.com The Iola Register DDS Richard T. HALE Making Dental Care Simple Accepting new patients 519 S. Maple St. Garnett, KS 1136 W. 15th St. Ottawa, KS Bring in this ad for a 10% discount 785-242-1800 Make an appointment today! richardthaledds.com CREATE When you subscribe to The Iola Register, you help us A MORE CONNECTED COMMUNITY WHERE EACH STORY ABOUT our children, our towns, our businesses, our lives are part of our larger story, our communi ’s story. READ LOCAL. SUBSCRIBE TODAY! Because in a world full of news, what’s close to home matters most. Visit iolaregister.com/subscribe to check our special offers or scan the QR Code.
Please notify The Iola Register at least two days before you wish to stop or restart your paper. Call our Circulation Department at: 620.365.2111 GOING ON VACATION? WANT YOUR PAPER STOPPED OR HELD?
Chicago Blackhawks Connor Bedard practices during the first day of training camp. EILEEN T. MESLAR/CHICAGO TRIBUNE/TNS

What’s next in college football realignment

Now that the Power Five is about to become the Power Four, the schools left out of the recent consolidation of wealth produced by conference realignment are looking at creative ways to stay relevant.

An idea floating around the Mountain West Conference calls for the creation of a multi-tiered conference or alliance of leagues that would use a promotion-and-relegation system akin to what is done in European soccer. Yahoo Sports first reported the existence of the proposal and Front Office Sports obtained the detailed presentation of a plan put together by Boise State associate athletic director Michael Walsh.

Right now, it’s just an idea.

“I’m open to anything that elevates the Mountain West,” said Commissioner Gloria Nevarez, whose league is most often associated with Oregon State and Washington State — the only two Pac-12 members committed to the battered league past this season.

A relegation approach is a complicated if inclusive way to reach what might be the best next move for the two schools and other top programs in the socalled Group of Five conferences: A best-ofthe-rest, football-only conference that ignores geography and focuses on maximizing TV dollars and securing access to the College Football Playoff, which will expand from four teams to 12 next year. The wave of conference realignment that washed away most of the Pac-12, sending 10 members scattering to three other conferences starting next year, has left schools outside the Atlantic Coast, Big Ten,

Big 12 and Southeastern conferences facing the reality that if they have not been invited to the VIP room yet, they won’t be anytime soon.

As the rest of major college football plots a course for what’s next, Oregon State and Washington State — who will play Saturday in Pullman, Washington — want to rebuild the Pac-12 and keep control of the tens of millions of dollars in assets the conference still has.

A partnership with Mountain West schools makes sense, but how does that work if there is more value in the Pac12’s brand and business?

Ideally for Oregon State and Washington State, they would keep the Pac-12 open and invite new members. Essentially, create a bestof-the-rest conference that would peel from the top of the Mountain West (Boise State, San Diego State, Air Force, etc.) and maybe even the American Athletic Conference (Memphis, Tulane).

The problem is that it would cost $34 million for a Mountain West school to join another

conference next year.

The exit fee for the AAC would likely be at least $18 million. Complicating matters, the Mountain West and AAC have TV deals in place for another couple of years.

The Pac-12 has nothing for 2024.

That leads to unusual proposals like a 24-school, three-tiered conference conglomerate in which teams are grouped by performance. Revenue would be distributed based on success, which might sound familiar to folks in the ACC, and schools would move up and down based on yearly football results.

“I think it’s intriguing,” said Bob Thompson, a former Fox Sports executive. “It creates storylines and if people have figured anything out about college football this year by Mr. Sanders (Colorado coach Deion Sanders), storylines matter.”

Oregon State athletic director Scott Barnes said major college athletics seems to be moving away from equal revenue sharing in conferences and toward rewarding schools that

US: Swimming has first Black coach

Continued from B6

will be held next June at Lucas Oil Stadium in Indianapolis.

In an interview with The Associated Press ahead of this year’s national championships, Nesty acknowledged the significance of having a prominent Black coach in a sport that is still struggling to diversify.

“You know you’re a role model,” he said. “You have to take that

very seriously. Maybe it’s why I work so hard at what I do. I try to be the best Anthony Nesty I can be.”

As a swimmer, Nesty produced one of the greatest upsets in Olympic swimming history when he beat Biondi by one-hundredth of a second in the 100-meter butterfly at Seoul. He remains the only gold medalist from Suriname, a country of less

than 1 million people.

“It’s just an amazing story,” Nesty told The AP. “Whether it was being in the right place at the right time or just luck or just God-given talent that I, of course, had, it’s a unique story, that’s for sure.”

Now, he’s adding another chapter to that story.

drive value for television networks, heavily invest in football and have success on the field.

“There’s some merit to look at some form of hybrid model that supports that,” Barnes said. “We see it working and in a similar fashion in Europe, and certainly it’s worthy of our study.”

There is also plenty of skepticism for such a plan. Division I already has a top-tier Bowl Subdivision with myriad ties to postseason games and revenue and a Football Championship Subdivision, which has had a 24team playoff for a decade.

“We don’t believe in relegation,” American Athletic Conference Commissioner Mike Aresco said. “Relegation from what? We’re all FBS.”

The goal is to get the best teams in a conference playing each other more often, which creates value for potential television partners and, in theory, a playoff-worthy resume for the champion.

The second part is particularly important with the College Football Playoff’s imminent expansion. Right now, the format calls for the top six conference champions to be in the field along with six at-large selections.

The CFP management committee meets next week.

Changing the format is up for consideration. If there is one fewer FBS conference because the Pac-12/Mountain West become one entity, changing the 6-6

Tuesday: Tennis at Pittsburg, 3 p.m.; Volleyball at Anderson County, 4:30 p.m.

Thursday: Volleyball at Eureka, 5 p.m.; Cross country at Central Heights, 4 p.m.; Tennis at Pittsburg, 3 p.m.

Friday: Football at Burlington, 7 p.m.

Monday: Volleyball at Erie, 5 p.m.

Tuesday: Volleyball at home, 5 p.m.

Thursday: Cross country at Central Heights, 4 p.m.

Friday: Football at Eureka, 7 p.m.

Tuesday: Volleyball at Northeast, 5 p.m.

Thursday: Cross country at Central Heights, 4 p.m.

Friday: Football v. Hartford, 7 p.m.

Tuesday: Volleyball v. Uniontown/Chetopa, 5 p.m.

Thursday: Cross country at Central Heights, 4 p.m.

Friday: Football at St. Paul, 7 p.m.

Monday: Volleyball at Erie, 5 p.m.

Thursday: Cross country at Council Grove, 4 p.m.; Volleyball at Jayhawk-Linn, 5 p.m.

Friday: Football v. Ceder Vale, 7 p.m.

Monday: Volleyball at Friends University, 5 p.m.

Wednesday: W/M soccer v. Hesston, 5:30/7:30 p.m.; Volleyball v. Labette County, 6:30 p.m.

CALENDAR IOLA ACC HUMBOLDT ACC ACC CREST MARMATON VALLEY YATES CENTER 701 W. Mary St. • Yates Center, KS (620) 625-2191 301 W. 1st • Gas, KS (620) 365-3195 boc-ks.com this week’s sponsor APPLY NOW! DEADLINE: OCTOBER 1, 2023 For more information, contact YCF at givingmakesadifference@gmail.com or call 620-228-4261 $15,000 for projects dedicated to improving our region’s health, education and recreation. P.O. Box 44, Iola • (620) 228-4261 givingmakesadifference.com NOW AC�EPTING GRANT APPLICATIONS FOR 2023! Download application at: givingmakesadi erence.com We will give away up to Pickup starts October 10 Gather up things you don’t want or need and call 620-365-4910 or 620-365-4903 before Noon October 6 to schedule a pick-up. Absolutely not Yes Demolition or construction debris, tires, auto parts, hazardous materials, ammunition or explosives. Please separate yard debris from household waste items. Mixed loads will not be picked up. No calls accepted after Noon Fri., October 6 CLEANUP All items should be set out by Sunday evening, October 8 CITYWI DE Leaves, grass clippings & limbs, freon-free appliances, furniture, clothing, miscellaneous... All items must be placed at the street. Family owned and operated for over 40 years! (620) 431-4840 19 S. Highland - Chanute w w w.chanutehearing.com Mon.-Thurs. 9 a.m. to 1 p.m. • Closed on Fri. OMNIA INTRODUCING OUR BRAND RECHARGABLE HEARING AID New • Free hearing evaluations • Free 30 day trials with no up front costs CATHERS OFFERS • Interest Free financing with Approved credit
UCLA quarterback Justyn Martin (6) hurdles over North Carolina Central defender Kole Jones in the fourth quarter at the Rose Bowl. LUIS SINCO/LOS ANGELES TIMES/TNS
B7 iolaregister.com Saturday, September 23, 2023 The Iola Register this week’s sponsor

MLB’s new playoff field adds excitement to races

PHOENIX (AP) —

Rookie sensation Corbin Carroll was all smiles Wednesday, a few minutes after stealing his 50th base of the season, cracking his 25th homer and leading the streaking Arizona Diamondbacks to their fifth straight win.

If the 22-year-old is fazed by September playoff-chase baseball, he certainly hasn’t shown it. Ten days remain in MLB’s regular season, and the playoff races are hot, particulary in a crowded Na-

tional League.

“This is the fun part,” Carroll said. Of course, that depends on which way you’re trending. For every team rising this time of the year, there’s almost always another team going in the opposite direction. During their fivegame winning streak, the D-backs took three straight from the Chicago Cubs and two more from the San Francisco Giants, two teams backsliding in the NL wild-card picture.

The Giants fell to 7676 after Wednesday’s games and need a minor miracle to get into the postseason.

“These were mustwin games and, going back several games, those were also mustwin games,” Giants manager Gabe Kapler said. “Now, the math is not on our side. Every game is one we have to win.”

The NL wild-card race has been tight for the better part of a month, with the Phillies, Diamondbacks,

Cubs, Marlins, Reds and Giants scrambling to claim three playoff positions. It’s exactly the kind of drama MLB hoped for when it expanded the playoff field from 10 to 12 teams before the 2022 season.

Here are some of the other storylines as the long 162-game regular season reaches its end.

AL WEST SCRAMBLE

The American League playoff race isn’t quite as crowded, but it’s still a good one.

The Houston Astros, Texas Rangers and sur-

RACING THIS WEEK

BASS PRO SHOP NIGHT RACE

prising Seattle Mariners are in a close fight for the AL West — the three teams were separated by just a halfgame in the standings after Wednesday. Simultaneously, all three are contending with the Toronto Blue Jays for a potential AL wildcard spot. When the dust finally settles, three of the four teams will be in the playoffs. One will not.

“It’s just fun to be playing meaningful games,” Blue Jays pitch-

XFINITY BONUS PHOTO: Austin Hill (left) with RCR team owner and HoFer Richard Childress after winning the 2023 Xfinity Regular Season Championship after qualifying for the Food City 300 at Bristol Friday. (Jared C. Tilton/Getty)

Saturday night, Denny Hamlin won for the third time this season, the third time at Bristol and the 51st time in his career.

Post-Bristol Hamlin primed for a Playoff 12 rumble

BRISTOL, Tenn. — Denny Hamlin landed a knockout punch in the Bass Pro Shops Night Race at Bristol Motor Speedway.

Cup Series regular-season champion Martin Truex Jr. survived to fight another round.

Bubba Wallace rescued himself from the brink of playoff elimination and advanced to the Round of 12 by four points.

Kevin Harvick, winner of the first elimination playoff in 2014, won’t be around to fight for the title in his final season of Cup racing. He joins defending champion Joey Logano on the outside looking in for the final seven Playoff races.

Despite a strong run on Saturday night, Michael McDowell didn’t get the win he needed to advance, and Ricky Stenhouse Jr. likewise fell by the wayside in a car that couldn’t compete for a top-five position.

Taking the lead off pit road on Lap 366 of 500, Hamlin beat Kyle Larson to the finish line by 2.462 seconds. Hamlin led the final 135 laps in the No. 11 Joe Gibbs Racing Toyota, 142 overall, and second only to the 187 circuits led by pole winner and third-place finisher Christopher Bell.

Led by Hamlin, all five playoff Toyota drivers advanced to the next round.

Chris Buescher followed Bell to the stripe as the top four finishers all will race in the Round of 12. Brad Keselowski and William Byron (eighth and ninth, respectively) also advanced, as did 23XI Racing teammates Wallace and Tyler Reddick (13th and 14th), Truex (19th), Kyle Busch (20th), Ryan Blaney (22nd) and Ross Chastain (23rd).

Wallace finished 14th, a lap down, but the eight points he gained by running third in Stage 1 proved decisive. Only 10 cars finished on the lead lap, the last of whom was Stenhouse, who ended the Round of 16 in 15th, seven points behind Wallace.

Wallace was greeted with a chorus of boos when he climbed from his car, as was Hamlin.

“Like Coco Gauff said, all they’re doing is adding fuel to the fire-I love it,” said Wallace, who drives for Hamlin and coowner Michael Jordan at 23XI. “I love where I’m at with this team. Wish my mom, dad, sister were here to celebrate with me.”

“I’m mentally exhausted. I’m wore out. Gave it our all there. Battled hard and executed. That’s what you got to do. We know next week’s a reset. We just got to go out and have some fun, work our asses off. Thank you to the ones that believe in me. Keep it going. Yeah, on to next week.”

A vicious wreck on the backstretch cost Joey Logano a chance to advance to the Round of 12, the first time under the elimination format that a defending championship has exited the postseason in the opening round.

Logano was a lap down, running toward the back of the

Denny Hamlin, driver of the No. 11 FedEx Freight Direct Toyota, takes the checkered flag to win the Cup Series Bass Pro Shops Night Race at Bristol Motor Speedway Saturday. (Getty)

pack, when Corey LaJoie went three-wide underneath the Chevrolet of Erik Jones and lost control of his No. 7 Chevrolet. LaJoie’s car swept up the track into the path of Logano, Justin Haley and Ryan Newman, all of whom were knocked out of the race in the accident.

“Yeah, I saw the smoke,” said Logano, who was credited with a 34th-place finish and missed the Round of 12 by four points. “I saw the 7 spinning. (Spotter) Coleman (Pressley) was saying, ‘He’s coming up. He’s coming up as I was on the brakes to try to pull onto the bottom.

“I think it was Newman behind me, but I think someone hit him behind him, and it was just kind of a chain reaction into it. Once I got hit, I was like, ‘Shoot, I’ve got to go up now,’ because I couldn’t make the bottom, so I committed to that, and the hole closed up.

“Obviously, it’s a real bummer. You get out of the race like that, and you’re behind the wall, and you’re in denial for a minute. You don’t want to believe that it happened, and you want to think that it’s fixable, but the car was tore up too bad.”

Harvick fought an ill-handling car from the outset and finished 29th, five laps down. Like Logano, he finished four points behind Wallace in the battle for the final spot in the Round of 12.

“We’ve been like that all year,” Harvick said. “We’ve been hit-or-miss. Tonight, we just missed by a mile. I’ve had some good days and bad days, but that’s definitely the worst one I’ve had with fenders on it.”

Ty Gibbs finished fifth after leading 102 laps. McDowell ran sixth, followed by Chase Elliott, Keselowski, Byron and Stenhouse.

er Kevin Gausman said on Wednesday. “Every game matters right now and every win is one step closer to our goal.”

NL AWARDS

The NL MVP race continues to be an epic showdown between Ronald Acuña and Mookie Betts. The two have remarkably similar numbers in many respects: Acuña was batting .337 with 39 homers and 100 RBIs while Betts has a .310 batting average, 39 homers and 103 RBIs.

CUP PLAYOFFS: 4TH RACE

AUTOTRADER ECHOPARK

AUTOMOTIVE 500

Texas Motor Speedway

3:30 p.m. ET Sunday, USA

Surface: Asphalt

Length: 1.5 mi (2.4 km)

Turns: 4 Banking Turns: 1-2 20° & 3-4 24°

CUP PLAYOFF NOTES

Four championship hopefuls were eliminated from title contention following the Cup Series Playoffs elimination race at Bristol Motor Speedway on Saturday night, resetting the standings board and setting the Round of 12.

• After nishing second at Kansas Speedway a week prior, Denny Hamlin continued the upward trajectory with a convincing win at Bristol Motor Speedway in the Bass Pro Shops Night Race. Kyle Larson, Christopher Bell and Chris Buescher were a trio of additional drivers to make up the top ve.

• ELIMINATED DRIVERS: Joey Logano, Team Penske; Kevin Harvick, Stewart-Haas Racing; Ricky Stenhouse Jr., JTG Daugherty Racing; Michael McDowell, Front Row Motorsports

NEXT RACE - The Round of 12 opens at Texas Motor Speedway for the AutoTrader EchoPark Automotive 400 Sunday. WHO IT FAVORS - Tyler Reddick. In four career Cup races at Texas, Reddick’s worst nish was 15th (2020). His three other nishes? Second, ninth and rst, with the Victory Lane appearance coming last year. Reddick’s 6.8 average nish ranks rst among all active drivers with a minimum of two Cup races at the track. Couple the fact that Reddick has shown blistering speed up to this point of the postseason, and this seems like an easy layup for the No. 45.

Tyler Reddick wrangled up a Victory Lane dance last year at Texas.

JONATHAN BACHMAN/ GETTY IMAGES

B8 Saturday, September 23, 2023 iolaregister.com The Iola Register GRAIN STORAGE? Let Yoder’s Construction build your grain storage solutions! • Steel Buildings • Grain Bins • Grain Handling Equipment 660-973-1611 HENRY YODER RUNNING OUT OF yodersconstruction85@gmail.com Specializing In: ANDERSON PLUMBING LLC 301 S. Humphrey, Gas Tankless Water Heaters Kenton “Kenny” Anderson (620) 365-0402 BUY LOCALLY & SAVE ALL THE HOT WATER YOU NEED, FOR AS LONG AS YOU NEED IT. #1 selling high efficiency tankless water heater in North America! 511 S. State Street, Iola Tire Sales & Service 620-365-3163 Mechanic Shop Goodyear • Firestone Bridgestone • Toyo Mastercraft • Cooper JD’s AUTOMOTIVE PROFESSIONAL SERVICE AT A FAIR PRICE

Turn static files into dynamic content formats.

Create a flipbook
Issuu converts static files into: digital portfolios, online yearbooks, online catalogs, digital photo albums and more. Sign up and create your flipbook.