Katalóg CE ZA AR 2025

Page 1


OSTATNÉ PRIHLÁSENÉ DIELA

OTHER ENTRIES

Prvú skúsenosť so Slovenskom som získal v roku 2024 – prednášal som na podujatí Slovenskej rady pre zelené budovy o severskom pohľade na zodpovednú výstavbu. Oficiálny program trval len pár dní, ale ja som sa rozhodol v Bratislave ostať celý týždeň. Pracoval som na diaľku, ponoril sa do miestnej kultúry a architektúry a naučil sa aj niečo o slovenskej mentalite. Nečakane som spoznal aj nových priateľov, ktorých láskavosť a pohostinnosť ma naozaj dojali.

Veľmi rád som sa sem opäť vrátil – tentokrát preto, aby som preskúmal najlepšiu súčasnú architektúru v krajine spolu s váženou porotou zo Švajčiarska, Rakúska, Nemecka a Slovenska. Naša skupina strávila päť intenzívnych dní cestami po malých okresných cestách od živých miest po ospalé dedinky a museli sme sa pri tom vyrovnať s horúčavami aj dažďom. Meniaca sa krajina a inšpirujúca spoločnosť sa postarali o to, že aj počas dlhých dní objavovania sme si zachovali dobrú náladu.

Porota z asi stovky kvalitných nedávno dokončených projektov vybrala okolo tridsať na osobnú obhliadku. Navštívili sme odvážne a experimentálne rodinné domy, osobité bytové domy, neobyčajné verejné a občianske budovy, klenoty interiérovej architektúry, rozsiahle rekonštrukcie exteriérov a takisto projekty z azda najzábavnejšej a najzaujímavejšej kategórie – fenomény architektúry.

Jednotlivé názory a kombinácia odborných zameraní našej rozmanitej poroty pokrývali

My first experience with Slovakia took place in 2024, when I gave a lecture at a Slovak Green Building Council event, offering a Nordic perspective on responsible construction. Though the official program lasted just a few days, I decided to stay in Bratislava for a whole week to work remotely and immerse myself in the local culture, architecture, and learn a bit about the Slovak mindset. Unexpectedly, I made new friends whose warmth and hospitality were truly touching.

I was excited to return—this time to explore the country’s best contemporary architecture alongside a distinguished jury from Switzerland, Austria, Germany, and Slovakia. For five intense days, our group travelled small country roads, from lively cities to sleepy villages, braving both heat and rain. The ever-changing landscapes and inspiring company kept our spirits high, even during long days of exploration.

The jury had selected about thirty recently finished projects to visit in person from among roughly a hundred high-quality candidates. We explored bold and experimental family houses, distinctive apartment buildings, exceptional public and civic buildings, gems of interior architecture, extensive exterior redevelopments, and perhaps the most fun and interesting category: phenomena in construction. The opinions and combined expertise of our diverse jury seemed to cover all the fields necessary for a just and fair analysis of projects,

snáď všetky oblasti nevyhnutné na spravodlivé posúdenie projektov, ktoré mali často rozličný kontext, rozpočet aj motiváciu. Niektorí z nás projekty skúmali z pohľadu urbanizmu či krajinnej architektúry, iní venovali väčšiu pozornosť dômyselným detailom interiéru a dizajnu nábytku, ďalší ocenili spoločenské aspekty a kultúrny a kontextuálny pohľad na projekty a niektorí sa zamerali na vplyv na životné prostredie, otázky udržateľnosti a nakoniec aj na posolstvo, ktoré chceme ako porota vyzdvihnúť.

Skutočne silnou stránkou našej poroty však nebolo len to, z akého širokého uhla sme mohli projekty vnímať, ale najmä to, že sme s rešpektom a otvorenosťou počúvali názory ostatných členov, boli sme pripravení sa od nich niečo naučiť, či dokonca zmeniť vlastný názor v reakcii na dobrú argumentáciu o niečom, na čom sme sa predtým nezhodli alebo sa nám to nezdalo zaujímavé. Bolo mi naozaj cťou v tejto porote pracovať ako predseda (a úprimne povedané, s týmito skvelými kolegami bola táto práca dosť ľahká). Nielenže som sa mohol nechať ohromiť inteligentným, krásnym a zodpovedným navrhovaním po celej krajine, ale som sa toho aj veľa naučil z diskusií s autormi diel a ostatnými porotcami, z ktorých sa, dovolím si povedať, stali počas tejto výpravy za špičkovou architektúrou moji priatelia.

Hoci sa nám podarilo vytvoriť atmosféru rešpektu a prijatia rôznych názorov, ktorá nám bez väčších problémov umožnila vybrať nominované diela, pred určením víťazov sme sa museli dohodnúť ešte na jednej veci – či uprednostníme čistý talent a zručnosti v oblasti navrhovania budov ako formy umenia, alebo zdôrazníme spoločenské aspekty a pokrok, ktoré považujeme za dôležité pre rozvoj krajiny.

Myslím, že nakoniec sme vysoko ocenili všetko uvedené, ale v mnohých kategóriách sme nakoniec dospeli k názoru, že našou najdôležitejšou zodpovednosťou v rámci poroty je zdôrazniť pohľad environmentálnej udržateľnosti a ukázať slovenskej verejnosti, že planétu zachránime len vtedy, ak nebudeme stavať nové budovy, ale hľadať inovatívne spôsoby, ako s minimálnymi materiálnymi zdrojmi znovu využiť a revitalizovať existujúce a možno nedocenené stavby. Možno s nami nebudú všetci súhlasiť, ale som presvedčený, že naše rozhodnutia sú hlasom budúcnosti, a som hrdý na všetky nominácie a víťazov, ktorých sme vybrali.

often with quite different backgrounds, budgets, and motivations behind them. Some of us approached the projects from an urban development or landscape design point of view, some paid more attention to the skilfully detailed interiors and furniture design, some were keen on recognizing the social aspects and the cultural and contextual perspectives of the projects, whereas others focused on environmental footprints, sustainability issues, and, in the end, the message we wished to emphasize as the jury. However, our true strength as a jury was not just how widely we could perceive the projects from different angles, but rather how respectfully and open-mindedly we listened to each other's points of view and were ready to learn from others and even revise our own opinions after a wellargued point on something we first disagreed with or didn’t find interesting. It was truly an honour (and to be fair, quite an easy job with these amazing individuals) to work as the chair of this jury. Not only did I get to be astounded by the clever, beautiful, and responsible design all over the country, but I also learned a lot from discussing with the authors of the projects and the co-jurors, who, I might say, became my friends too during this crusade for the finest architecture.

Even though we managed to create an atmosphere of respect and multiple voices, which made it quite easy to choose the nominees for the final phase, we still had to agree on something before selecting the actual winners: would we decide to embrace the sheer talent and skill in building design as a form of art, or would we underline the social aspects and the progress we see as important for the development of a nation?

I guess in the end, all of the above was highly valued, but in many categories, we ultimately felt that our most essential responsibility as the jury was to highlight the perspective of environmental sustainability and show the Slovak audience that the only way to save the planet is not by building new, but by finding innovative ways to reuse and revitalize the existing—and perhaps undervalued—with minimal material resources. Not everyone might agree with us, but I believe that our decisions represent the voice of the future, and I am proud of every single nomination and winner we selected.

Samppa je generálnym riaditeľom JKMM Architects, jednej z najväčších a najúspešnejších architektonických kancelárií vo Fínsku. V nej hrá kľúčovú úlohu pri prepájaní rôznych záujmov developerov a investorov s cieľom zabezpečiť vysokú kvalitu architektúry a vytváranie zmysluplných mestských častí. Svoju profesionálnu kariéru začal v roku 2005 založením vlastného ateliéru. Odvtedy sa ako architekt venoval viacerým oblastiam, od luxusných súkromných domov a historických rekonštrukcií až po udržateľnú výstavbu či projekty v oblasti mestskej kultúry. Verejnosti vo Fínsku je známy ako moderátor v ocenenej televíznej relácii „Grand Designs Finland“.

Samppa is the CEO of JKMM Architects, one of the largest and most successful architectural offices in Finland. He plays a key role there in bringing together the differing interests of developers and investors with the aim of ensuring a high quality of architecture and creating meaningful urban areas. He began his professional career in 2005 when he founded his own office. Since then, he has been active as architect in a number of areas from luxury private homes and historical renovations to sustainable construction and projects in the field of urban culture. He is known to the Finnish public as the host of the awarded TV show “Grand Designs Finland.”

RETO GMÜR (CH)

Reto je angažovaný švajčiarsky architekt, ktorý prevádzkuje vlastnú prax v Bazileji. Veľkosť kancelárie je limitovaná dopytom po kvalite, ktorú sa snaží dosiahnuť. Zameriava sa na navrhovanie v zdravotníctve, ale pôsobí aj v oblastiach verejných budov, bytového dizajnu, architektonických premien a kultúrneho dedičstva. Má skúsenosti ako účastník aj člen poroty v rozličných architektonických súťažiach, v ktorých presadzuje vysokú kvalitu architektúry. Od roku 2024 je členom výkonného výboru Architektonickej rady Európy.

Reto is a committed Swiss architect who runs his own atelier in Basel. The size of the office is limited by the demand for quality he tries to reach. His focus lies on healthcare design, but he is also active in the field of public buildings and housing design, transformations, and cultural heritage. He has experience both as a participant and jury member in a variety of architectural competitions, where he promotes a high quality of architecture. Since 2024, he has been a member of the Executive Board of the Architects' Council of Europe.

HENRIETA MORAVČÍKOVÁ (SK)

Henrieta Moravčíková je profesorkou na Fakulte architektúry a dizajnu STU a vedúcou Oddelenia architektúry Historického ústavu SAV. Venuje sa výskumu architektúry 20. a 21. storočia so zameraním na modernú architektúru a architektonické dedičstvo. Vedie slovenskú pracovnú skupinu DOCOMOMO a je členkou poradného výboru DOCOMOMO International. V rokoch 1996 až 2009 bola šéfredaktorkou časopisu ARCH o architektúre a inej kultúre. Dnes predsedá redakčnej rade časopisu Architektúra & Urbanizmus. Publikovala viacero monografií, stovky štúdií a kritík, pripravila niekoľko výstav a spolupracovala na kľúčových filmových dokumentoch o architektúre. Je nositeľkou niekoľkých národných a medzinárodných ocenení.

Henrieta Moravčíková is a professor at the Faculty of Architecture and Design at the Slovak University of Technology, and the head of the Department of Architecture at the Institute of History, Slovak Academy of Sciences. Her research interests include the architecture of the 20th and 21st centuries with a focus on modern architecture and architectural heritage. She leads the Slovak DOCOMOMO working group and is a member of the DOCOMOMO International Advisory Board. Between years 1996 and 2009 she was the editor-in-chief of the ARCH magazine on architecture and other culture. Nowadays, she chairs the editorial board of the Architektúra & Urbanizmus magazine. Her publications include several monographs and hundreds of studies and critical reviews. She has also prepared a number of exhibitions and was involved in key documentary films on architecture. She has received several national and international awards.

V roku 1990 úspešne absolvoval štúdium krajinárskej architektúry na TU Dresden, kde ďalej pracoval v pozícii odborného asistenta. V roku 1993 založil vlastnú kanceláriu Rehwaldt Landchaftsarchitekten a venuje sa vlastným projektom. V rokoch 2006 až 2008 hosťoval ako profesor na TU v Berlíne na Katedre krajinného dizajnu. V roku 2009 získal Nemeckú cenu za krajinnú architektúru za projekt parku ULAP v Berlíne a od roku 2014 do 2022 zastával funkciu prezidenta Asociácie nemeckých krajinných architektov. Od roku 2017 pôsobí ako vedúci ateliéru navrhovania na Fakulte architektúry ČVUT v Prahe (2017 – 2019 ako hosťujúci profesor). V roku 2019 bol menovaný členom Nemeckej akadémie pre krajinné plánovanie a rozvoj miest. Popri riadení vlastného ateliéru je aj členom rôznych poradných zborov pre design a odborným porotcom v súťažiach.

In 1990, he graduated in landscape architecture at TU Dresden and continued to work there as an assistant professor. In 1993, he founded his own office Rehwaldt Landchaftsarchitekten and has worked on his own projects there. In 2006–2008 he worked as a visiting professor at the Landscape Design Department at TU Berlin. In 2009, he received the German Landscape Architecture Prize for his project of the ULAP Square in Berlin, and since 2014, he has been the President of the Federation of German Landscape Architects. Since 2017 he has led the studio of landscape architecture and design at the Faculty of Architecture of the Czech Technical University in Prague (in 2017–2019 as visiting professor). In 2019 he was appointed a member of the German Academy for Urban and Regional Spatial Planning. Besides leading his own office, he is also a member of various advisory boards for design and an expert juror in competitions.

OLIVER SADOVSKÝ (SK)

Oliver Sadovský sa narodil v Bratislave a je absolventom Fakulty architektúry a dizajnu Slovenskej technickej univerzity v Bratislave. Ako architekt získal zahraničné pracovné skúsenosti v Amsterdame. Spolu s Matúšom Vallom založil v roku 2004 ateliér Vallo&Sadovsky Architects, s ktorým získali viaceré architektonické ocenenia, napríklad cenu CE ZA AR, Cenu Dušana Jurkoviča či nomináciu na európsku cenu Mies van der Rohe Award za projekt Nádvorie v Trnave. Stojí za iniciatívou Mestské zásahy, ktorá od roku 2008 vygenerovala viac ako 900 projektov na vylepšenie verejného priestoru v 20 slovenských a českých mestách. Od roku 2018 stojí na čele ateliéru Sadovsky&Architects, ktorý tvorí takmer 20-členný kreatívny tím zameraný na projekty rôznej mierky, od interiérov cez rezidenčné projekty, komplexné renovácie, dočasné zásahy až po ambicióznu mestskú regeneráciu.

Oliver Sadovský was born in Bratislava and graduated from the Faculty of Architecture at the Slovak University of Technology in Bratislava. As an architect, he has gained work experience abroad, specifically in Amsterdam. In 2004, he and Matúš Vallo founded the Vallo&Sadovsky Architects office, and received a number of architectural awards, such as CE ZA AR, the Dušan Jurkovič Award, or a nomination for the European Mies van der Rohe Award for their Courtyard project in Trnava. He is also behind the City Interventions initiative. Since 2008 it has generated more than 900 projects to improve public spaces in 20 Slovak and Czech cities. Since 2018, he has led the Sadovsky&Architects office with a creative team of almost 20 members focused on projects of various scales from interiors through residential projects, complex renovations, and temporary interventions to ambitious urban regeneration.

POROTA

SILJA TILLNER (AT)

Architektka a urbanistka, ktorá s nadšením pracuje v oboch profesiách. Ťažiskom jej práce sú citlivé zásahy do historického kontextu, oživenie pamiatkovo chránených budov prostredníctvom využitia inovatívnych konceptov a energeticky efektívna rekonštrukcia. Odkedy sa podieľala na revitalizácii centra Los Angeles, so spektrom siahajúcim od renovácie a prestavby až po inovatívnu, neobyčajnú architektúru, sú plány rozvoja miest a revitalizácia existujúcich štvrtí s ekologickým zameraním pevnou súčasťou jej práce. Silja Tillner sa vždy zaujímala o interakciu medzi mestským plánovaním a architektúrou, o vzťah medzi budovami a ich okolím, o kontext architektúry v spojení s verejným priestorom a jej vplyv na ľudí. Udržateľnosť v zmysle ekologického urbanizmu a architektúry bola pre ňu od začiatku jej profesionálneho života determinujúcim leitmotívom. Téma šetrenia zdrojov určuje urbanistický kontext, krajinné plánovanie, infraštruktúru, mobilitu, energetickú koncepciu, nadčasovosť, odolnosť a flexibilitu architektonického dizajnu, ako aj úsporný a inteligentný výber materiálov.

ZUZANA ZACHAROVÁ (SK)

Vyštudovala architektúru a urbanizmus na Fakulte architektúry Slovenskej technickej univerzity a od roku 2002 pôsobí v spoločnosti DF CREATIVE GROUP. Medzi jej najvýznamnejšie realizované projekty patrí rekonštrukcia budovy Design factory v Bratislave spolu s kolegami Martinom Paškom a Zoranom Michalčákom. Patrí jej výrazný podiel na príprave a realizácii študentskej súťaže na rekonštrukciu objektu Elektrárne Piešťany a participovala aj na realizácii jej obnovy. Projekt získal ocenenie Pamiatka roka 2014 a nomináciu na významné medzinárodné ocenenie Mies van der Rohe Award. V rokoch 2019 až 2021 viedla vertikálny ateliér „Dedičstvo pre rozvoj“ na FAD STU. Za projekt Jurkovičovej teplárne NKP získala viaceré významné ocenenia: Cena Dušana Jurkoviča 2022, Stavba roka 2020-21, Architecture MasterPrize Award 2022, BIGSEE Architecture Award 2022, nomináciu na Mies van der Rohe Award 2024 a medzinárodnú cenu prof. Vladimíra Karfíka 2019 – 2021 za výtvarnú a racionálnu architektúru v Česku a na Slovensku.

Architect and urban designer who enjoys working in parallel in both these fields. Her work focuses on sensitive interventions into the historical context, revitalising listed buildings by using innovative concepts, and energy-efficient construction. Since she was involved in the revitalisation of Downtown Los Angeles with a portfolio covering renovations and redevelopments as well as innovative and unusual architecture, urban development plans and revitalisation of existing neighbourhoods with an ecological aim have become an integral part of her work. Silja Tillner has always been interested in the interaction between urban planning and architecture, the relation between buildings and their surroundings, the context of architecture in connection to the public space and its impact on people. Sustainability in terms of ecological urban design and architecture has been the determining leitmotif of her professional life since the very beginning. The theme of resource conservation determines the urban context, landscape planning, infrastructure, mobility, energy concept, timelessness, resilience, and flexibility of architectural design, as well as the economical and intelligent selection of materials.

She graduated from the Faculty of Architecture at the Slovak University of Technology in architecture and urban design and has been active in DF CREATIVE GROUP since 2002. Her most notable projects include the renovation of the Design factory building in Bratislava, which she worked on with colleagues Martin Paška and Zoran Michalčák. She made a significant contribution to the preparation and execution of a student competition for the reconstruction of the Piešťany Power Plant, and she also participated in the renovation. The project was awarded the Monument of the Year 2014 award and was nominated for the renowned international Mies van der Rohe Award. In 2019–2021 she led the “Heritage for Development” vertical studio at the Faculty of Architecture and Design at the Slovak Technical University. She has received several accolades for the Jurkovič Heating Plant national cultural site project: Dušan Jurkovič 2022 Award, Building of the Year 2020–21, Architecture MasterPrize Award 2022, BIGSEE Architecture Award 2022, a nomination for the Mies van der Rohe Award 2024 and Professor Vladimír Karfík International Award 2019–2021 for visual and rational architecture in the Czech Republic and Slovakia.

This document is a revised, abridged documentation of the Jury meeting. The record consists of more than four hours of discussion on the 31 objects visited, resulting in 23 nominations for the CE ZA AR 2025 Award.

ZÁZNAM Z HODNOTENIA POROTY JURY EVALUATION

SL (Samppa Lappalainen) So, in the first phase, we will place all of these projects into their own categories. At least for now. And for the second phase, my suggestion is that everyone will choose their two favourite projects in each category, and there will probably be some overlap of the best, which will automatically lead to the top three in each category.

OS (Oliver Sadovský) That sounds like a good way to proceed.

HM (Henrieta Moravčíková) We need to discuss it. First, we will have a brief discussion, and then we should come back and explain our decision on the winner in each category. Is that OK?

TR (Till Rehwaldt) We should also discuss the projects which are not our preferred ones.

ST (Silja Tillner) Then I propose to discuss the first project in the category of Apartment buildings.

RESIDENTIAL HOUSES

ST The project on Vajnorská Street is a very thoughtful housing project. It all starts with the way the city is designed and how the land is used. As I understand it, the architects started the project from the tree in the backyard and wanted to increase the green space, which makes it a difficult starting point, especially since they already had a building permit for something else. I think the next thing to consider is that they really reflected the surrounding context and worked very well as a result. The front of the building matches the front of the building next to it. I had the feeling that the ground floor was designed well and that there was a lot of activity. The apartments and corridors were of a high standard, and the stairwell was light and airy. The floor plans were good, as the apartments were not too big. It's not a luxury project; it's affordable because the flats are smaller. An interesting aspect is the construction, because apparently, it is still unusual to use a prefab system in Slovakia. The wish to try something different resulted in something new and creative. I also like the front façade of the building. The first impression was a bit overwhelming, but the architects explained that there are a lot of decorations in the vicinity and that the daylight for the apartments is better than from regular flat windows, because the sun enters the apartment more favourably. I think this is an excellent project for several reasons, and it is in a difficult site, situated next to a noisy city road.

On the other hand, the other project, “Nový Ružinov” on the outskirts of Bajkalská Street, has created a green space in the centre of the area. This is very important for people living in the area to meet each other. I think that if we want to encourage people to live in denser environments and make apartments more appealing, we need to change the way people think about them. Right now, people think that they need a single-family home. But if we build apartments with large balconies and lots of green space, the indoor and outdoor spaces can be brought together, and the inhabitants can see outside, e.g. the children playing. I consider this also a great project.

Hausberg, I think it's an excellent project by a very good architect. The details are of the highest quality. I see it in the top category. The situation is that he was trying to work with the slope, but I still think it's negatively affecting the buildings on the other side of the street, where there's a small-scale villa. But it's important to note that they already had a permit and I don't think the architect could have said that he would create less volume by proposing two buildings instead of one. I'd like to know what others think.

HM It's quite interesting that we have two examples that had a permit issued before. Different in form because the original design on Vajnorská street was really bad. However, both projects, Vajnorská and Hausberg, should be considered a change to the design after the building permit was issued.

RG (Reto Gmür) Did they say if they needed a second permit at Hausberg? I would be surprised if you could add some extra floors and some underground parking floors without changing the permit. Perhaps this was already included in the original permission.

ZZ (Zuzana Zacharová) The projects on Vajnorská and Hausberg are my favourites too.

RG I would nominate Hausberg even though I think it's a very big house in the local context. I completely agree that it was well done. But it is also important to support affordable housing, and they certainly should get some nominations. Instead of just saying, "Let's go", let's do a lot of houses and nice things together.

ZZ That’s a pity that we didn't walk across the whole urban block around Hausberg. I think the architect tried to follow the style, which is readable in this urban structure, determined by the historical First hospital on Palisády street. There were gardens and the building of the second hospital on the premises of the Hausberg before. I think the architect was following the surrounding structure of villas despite the fact that the

high-density permit was already issued. The context is clearly very well done. Architecture here is with a higher density, but also on a higher level and in a higher standard. This was the assignment of the developer, who bought very expensive land. And how the architect deals with this site and the context is excellent.

RG Nový Ružinov has a lot of qualities. It looks nice, but as it was said, it changes the scale towards the structure of the single-family houses, and it’s problematic towards the street.

ST If we can nominate three, I think we all agree.

HM It is always good to consider what a project has brought to the neighbourhood, as well as what it has taken away. Regarding Nový Ružinov, I am aware that the connection to the surrounding single-family homes could be better. Nevertheless, it is truly admirable that they have created an island of peace in the middle of nowhere, especially given that the city's most congested highway is located just tens of metres away. The situation is similar in the case of the Vajnorská street project. The site was an awfully devastated place for more than 10 years. What began as a difficult situation has been transformed into something positive. The house now has a positive impact on the local neighbourhood. Regarding Hausberg: I totally disagree that it fits the environment; it is so insensitive to the local structure of the small villas around. It is true that the volume of the nearby hospital is big, but it is situated on the main street. The concept of the Palisády street is clear. The taller buildings line the street, forming a protective wall for the single-family houses behind them. And if I ask, what has the new apartment block brought to the neighbourhood? Not as much. Perhaps there will be at least one coffee shop.

ZZ That is an unreal request for the architect; the task is coming from the developer, and it was already permitted with the current density and volume.

HM I understand. I don't want to blame the architect of the current project. I just wanted to comment on the way the area is being developed.

ST But I think the materiality of the façade is good and relates to the context; it blends well, because of the colours and the materials. I only ranked Hausberg lower because I think the other two are even better. But apart from that, I think it's an excellent project with a high level of quality. I think we have to bring these three projects in front of the curtain.

ZZ It's impossible to change this density when you start on this project, because the developer engaged the architect to follow these administrative and economic limits.

ST Yes, we know this kind of projects. If there is a certain square footage required in the brief, we have to fulfil it, because the development of the land and everything was calculated when they bought the land: the number of apartments and the net floor space.

RG This doesn’t seem like a discussion to me. It's about the quality of the projects. I'm not sure if the house project in Dúbravka isn't a residential house, because it's not a single-family house either.

ZZ Legislation says that a family house has a maximum of three flats.

ST I think we should follow that. That’s clearly a family house, and it looks like one, too.

SL My understanding of the residential context in Slovakia is limited, but I understood that all three examples are from different categories in the way that the price per square meter is probably different in all of them. And I think they're all very good examples in their price range. The chances of succeeding are smaller if your budget is limited, so I think they did a good job in Nový Ružinov. There might be some issues that you raised about how it's connected to the surroundings, but all in all, I think it's a very positive thing that a bit more affordable housing can look that good. Compared to any other mid-range private housing, for instance. And I was astonished by the sheer quality of Hausberg. Every detail was done so well. I don't think this massive volume could have been placed better in the surroundings. It has great detailing, and yet it is monumental. It's like a statue, but still like a pleasant surprise in many ways.

ST We could also agree to nominate all of them, because I understand that all of them have to be in the Slovak context, and they have good qualities.

RG We should also always consider the public spaces around the houses. Hausberg is quite a gated community. The open spaces are completely closed and private.

ST You're right.

RG Now it's like this huge block area is closed. And I think this is a negative point, but I agree with the quality. That's amazing. Nová Vajnorská has a certain roughness of the volume, combined with the prefab technology. It looks nice in the outcome. We have not seen all the buildings, and it’s not the best standard compared to Hausberg, but still good.

OS Talking about private and public space, I understand that with projects like Hausberg, it is quite difficult to expect an open courtyard; it is also not very common in the area, but maybe pedestrian shortcuts through the site would be nice. To be fair, the courtyard in Nova Vajnorská is also gated, accessible for residents only.

In Nový Ružinov, they have a public and open courtyard, but since it's too far from everything, it's again mostly for residents

HM Unfortunately, there are the single-family houses, which have been separated by a tall concrete wall that makes it difficult for people to walk around the neighbourhood.

ST But they can go there, into the area, and I think it's still a good starting point to create all these beautiful open spaces where everybody can go. They're not closed and privatised. It's a great statement that should be valued in the future.

RG For Vajnorská street, the front image is not the best. I think this would be much nicer if it had some shadows on it. It would be nice to have it because this is the most iconic image of this project.

ST I like the courtyard.

HM I like the courtyard too.

HM The central staircase works well on Vajnorská and in Hausberg. It is perfect in both buildings. But Vajnorská is just half the price. And you actually get the same effect.

RG Even a bit better.

HM Such a high-quality inner space, I mean, for this category of housing development.

SL But I still think the architecture was next level in Hausberg.

ZZ Another level (..)

ST When we talk about innovation on Vajnorská Street, we can think about added innovation because they used prefabricated elements. These were the norm in the past, but now, the big construction companies prefer on-site concrete, which is why they price it higher. I think we should revive that because it makes the construction less noisy and polluting. For the existing neighbourhoods and the environment, this technology is better. They have really done a good job on Vajnorská.

TR I also like the way they are working with the street because there’s a very busy traffic, but they found a way to build the façade facing this and use the street as a source of light.

HM I was very sceptical because of the main façade, but I changed my mind. The city representatives have a plan to turn Vajnorská into a boulevard. I think the façade and the parterre will support this change of atmosphere in the street.

SL Maybe we can move on with the discussion and vote for the winner. It seems that even if we don't all agree, we have a majority for the winner – Nová Vajnorská.

PUBLIC AND INDUSTRIAL BUILDINGS

RG I would like to comment on the factory in Krivá. The quality and transparency of the space is just nice, as well as the light inside and at the different levels, and the sun shading too. The wooden sun shading is better than the one on the first building, because it is more transparent and the central space gets more light. These wooden elements are load-bearing elements, at least for the façade and for the balconies, not like the first phase. So, I think they really improved this project. And yet, it’s just fantastic. The outside space has good details.

HM I agree, let’s add it to our favourites.

ST The school was a bit disappointing. The quality of the details is not very good.

ZZ I think it's because the process of public procurement is not ideal. The architects did their best, but everything that comes with the only condition of “ the lowest price” is poor.

ZZ The project in Piešťany is a very good example for the whole society, showing how to deal with all industrial buildings. If you must destroy part of it, you have to keep the rest. I think this is also a good thing to know that there are open-minded investors who can collaborate, and in the open architectural competition, they selected a team of young architects. They had to deal with the opinion of the person who is licensed, and who is not an architect. In this sort of situation, they did a great job.

SL I found it a bit awkward how they rebuilt the oldest part in “Magna Energia” instead of restoring it. If you want to replicate something old, it should be done properly, or if not possible, maybe you should reinterpret it more boldly - now we are a bit in between. The new parts that were clearly new were better in my opinion, but I missed the spirit of the old interior in the old parts – the office was pretty neutral and basic. I would say that in UNIDOM, they had the right way to approach building things. That was the modern way to do sustainable design – what can we do to save the bodies and structures of buildings that have already been completed years ago, and how can we avoid releasing more emissions? I think the examples where old buildings found new life were the most interesting examples. Trenčín was an old building that was probably going to be knocked down. But they brought new life to it, so I think that's much more interesting than the alternative.

OS I think we have a lot of strong projects in this category with interesting stories behind them. In Krivá, we have an investor

who cares about his employees and tries to make their working environment as good as possible. In Magna, it's similar, but with the extra value of keeping the original building as part of the local history and dealing with the whole project with great care. In Trenčín, we have seen how an existing structure can be remade into a decent and representative house. Strekov is a great project working with regional heritage, and of course, the school is a good and rare example of how to improve quality in this typology. It would be a good message to show all these five good projects we have in this category.

ST Each of the five projects has a good story behind it, and I think we could also tell the stories for the five nominations, including the school.

RG Back to the school. I don't think it's a problem of public procurement. It’s good it was a public procurement. This is one story, and if there's only one corridor, that's fine too. But if you don't make sure the overall quality and design are good, I think this is not enough. They have spent the money, but I think they could have done it in a better way.

OS Yeah, I know what you mean, but you have to take into consideration that it's a very simple and rational design. It all makes sense – the spaces are good with plenty of natural light. You also have this new sports hall, and there's a playground outside on the roof. It's like the whole campus. I'm all for it.

ZZ They're very genuine and happy to show materials they know well, as well as other colours. They do it in a very natural way, and you can't pay attention to every detail in this process. But I understand. I have at least five nominations. I would like to have them because this is a very good and strong message for society. Maybe this is not an investment. This is an investment by the public sector, not the private sector.

ST So, then we should keep all five nominated.

TR It's so interesting to follow the discussion. I completely agree to nominate all of them to say this. Of course, it's a bit old school, but I like the spaces and the spirit of the foundation. But why did architects rebuild the old building in Piešťany? They made a copy of a part which was torn down. I don't understand it. And also, I don't understand the structure of the sports hall of the primary school in Bernolákovo, because they have this relatively large plot, and then they decide to go underground and create a huge structure, and they have different complicated levels and this huge ramp, and they need a lot of concrete and steel for this. And underground, they need air-conditioned rooms, and finally,

they built the sports facilities on the roof, where they are not very accessible. This concept is more commonly used in dense areas. If you are in a big, dense city, like London or New York, and do not have the space, then you place sports facilities on the rooftop. But if you have the space like here, it would be better to stay on the ground level with these functions. Neither is in the discussion for the winner, but we can take all of them for the nominations.

HM I would like to go back to the heritage question. I think that it is even more important to deal with post-war architecture. The discussion on the interwar period is clear; we know what is important and how to deal with it. In Slovakia, there are many unprotected buildings from the second half of the 20th century. Our message should therefore be to work with these structures, improve them, and make them fit for the current requirements.

The Factory in Krivá is more about the social impact. They are developing the region. They employ local people. They are doing something for the local community, and architecture is part of it.

SL Building brand new should always be the last option. That is why, in my opinion, the project in Trenčín was spot on. It's a very modern thing to think about, while building new buildings with lots of flat glass and concrete structures is kind of out of fashion. I also was not sure if the wooden parts were that relevant, since they looked structural, but actually they were just shades for sunlight, if I understood correctly. But here, I think you can be proud that you're doing something like this. It's a very modern thing that they did there.

ST When talking about the factory in Krivá, I'm talking about the space; the way the factory is set up. I've been to a lot of factories, and I've never seen a concept like this, where the whole factory room is completely open and transparent. It is separated by glass and is part of the office building. It also shows the owner's personality, whom the architect credits to be an innovative person. There's a great shortage in skilled workers, and he's doing so much for them because of that. It's also a relevant message today. This is a future-oriented concept to counteract a problem that all companies are facing right now because the population is shrinking, and they don't have enough staff. The concept of creating beautiful workplaces to encourage people to work there is a great example in that respect, because it's a wonderful place with indoor and green outdoor areas with many plants.

SL Let’s keep these five for the nominations.

ST I advocate for this project in Krivá – Orava

region because I think the whole story of what the company is doing for the workers in that region is real. And they are doing a lot for the area and the community.

RG As I understood, the previous phase of the project was already nominated in the previous CEZAAR award, right? We should advocate for more transformations of old buildings and as we saw, you can get a very good result. That is what we have seen in Trenčín, and it is an interesting message. And we should also consider the winery, because I think it was the best architecture we saw in the whole competition.

HM I completely agree. I mean... This is obviously the best way to do it. It really is. When we want to advertise it to the public, we have to say, for example, that the original structure should be preserved even if the building is not listed.

SL It is unique in the sense that this is the only way we can say, and we can show that we can come up with modern, up-to-date buildings.

RG The problem in Trenčín is simple. They didn't do the interiors. They didn't change the way it was organised. They had an interior architect working on the offices. It basically stops with the façade, which is ok for me. I think it can be interesting if you choose this option. We should write a special message in this category to say that there should be more reuse of existing buildings.

SL If everybody gave two votes again, would that help fix it all?

HM In Trenčín, they delivered a good job and a good message on how to take care of the existing buildings, but for me, that is not enough for such an award.

OS I agree. I think we are already sending this message without sending it out.

ST Winemaking as an industry needs certain structures and cellars; a cellar already existed. What was interesting was that the client wanted to expand, and a few buildings were needed. The layout creates an ensemble that fits well in the area. I also consider it positive that it offers jobs and gets the community involved.

HM In Strekov, they created that wonderful space and architecture. It is a far more complex answer to the brief than in Trenčín.

RG It is really very beautiful and very welldone architecture. And maybe it has a bigger chance to become renowned internationally.

ST And also, the impact on the other wineries might be positive

EXTERIOR

TR What we have seen in most cases is that architects and landscape architects are trying to create new exterior spaces. Except for the bus stop, which is more of an object, not an exterior. I like to see the exteriors incorporated in the projects from other categories, especially the factories in Piešťany and Krivá. They were very well done and very well planted. So firstly, I would exclude the bus stop because I don't understand what the aim of it was, I think it is the wrong construction for this place. You can do this as an experiment, right? But I think it's not. Another visited project was Adlerka sport park, which I read as a standard object. The other three have their qualities, and I would vote for them as nominations.

ZZ You should choose only two.

TR Then, because of social and ecological quality, I would say the following. The tree path is interesting but is a small intervention. It is not so difficult to build a path down the hill. As an object, it looks good. And the area under the bridge, it's a good place under the bridge. So, if I compare them, they are both old-school principles with a good social impact.

ST Regarding the sports park Adlerka, I will say critically that it was really not ecological in terms of the materials, and they didn't think about the water. If you compare it to Agátka, where they collected the water from the sports ground and guided it to the trees. The idea of using containers seems like a very affordable way to create space for the function, and it was good. But there was just so little design there.

ST The project in Nový Ružinov is about getting residents involved and talking about the social impact. I don't think you can move it to landscape. I would also pick the same two options as you. I just think the winning project should really have a positive effect on people. The skate park is a great project. I agree that the design isn't perfect, but I think the overall impact is great. I would also like to nominate the footbridge because I think it is more than just a connection. It's also an experience of being up in the trees, and it's a pity that those trees fell after the storm in September, because it would have been much more impressive.

TR Trees make decisions for objects because they are there. The forest is like a living organism because the trees grow very quickly. It's not a problem to cut a tree in the forest, so I don't understand why this decision was made. It's a forest. The forest changes every year. Cutting down a tree is a mistake, but not in the forest.

SL I think it was kind of surprising that in all these exterior categories, there was very little design in any of these, so they were more like some sort of socially important experiments. Their impact was more somewhere else. I mean, in terms of design, they made it short and simple, I guess. I also like the tree path the most, but this area in Trnava – Agátka was so large that there were so many big parts. So, we kept on walking around forever and never found all the features like that “Hobbit Hill” –meadow and the hill. Then this river or creek, and then the pouring park with just the lawn. And then these parts. And they were not really connected. I think it might have been fine if they were somehow more unified by concept. I don't know the story behind it. But finally, the result is nice. It obviously has a social impact, as was said at the beginning.

TR For Agátka, I say this: it's partly an old school strategy. They decided to bring the water element there as an artificial stream with a circulation, and this is really a bit problematic because you need all the energy, and the distance is very long to move the water from the end of this circle to the beginning. Also, the riverbed is a bit deep, and at the end, this dramatic hole for the pond is not really integrated into the existing topography.

ZZ I like Agátka and Tree Path the best. Anyway, I understand that the tree path is not an exterior. This is an object which is outside, but the instructions were followed correctly. I went there a few times, and it was hard to go down to the Partisans' meadow because of the unsafe stairs.

TR I don't agree that this is contemporary. Contemporary means using sustainable principles and materials as they did here. But I agree with all the other points.

RG We are talking about an outdoor bridge. It should last for about 100 years. Made of wood, it would also be possible and more sustainable.

I'm glad the bus stop is gone. It's important to say that we don’t want to see a bus stop made of 45 centimetres of concrete. I like the idea of using new techniques of printed concrete. Lots of labs are doing that, and they can create shells in concrete that are between 8 and 10 centimetres thick. There it gets interesting, but not 45 centimetres. The footbridge is simple, and it is nice to mention it. It also has a positive effect on people's social lives, as it encourages people to visit the meadow. I think this is the right approach, and I agree with what was already said. It can be made of steel. It can be a floating element because this lets nature do its thing below. To me, it was Agátka that made a difference. It was quite good. I understand what you mean about

those mistakes made there. I agree. But that's what we have here in this entry. I thought the skate park was ok. And socially speaking, it was great. It was very good at developing this area. I agree, but the limits in terms of the parking were not addressed. You know, the problem with the parking lot has not been solved, and it is problematic that the skate ramps end directly on the cycle path.

HM You cut all my grass, Reto… I would also go for Agátka and for the food bridge. Agátka is everything that was said. But it is a typical example of all cities in Slovakia, where you have to deal with these vast green areas, which are actually not green, and people avoid them. But here in Agátka, OK, it's not brilliantly connected to the housing blocks. There are several issues; let's say different trends are present on the site, but on the other hand, it's really a big added value for the local people.

The ramp seems like a very technical solution. You mentioned that steel is not an ideal material, but there is an intervention of a path made of wood, and it is a catastrophe, because in winter or during rain, you can't use it. It gets very wet, muddy, and slippery. So, I mean, this new ramp was really the solution after they researched the situation there. And I must say that you perhaps did not recognise it in the morning when we were there. It was only starting, all the strollers, all the parents with small kids, they go that way. Because this is now the best connection between the parking lot and the playground in the meadow. This was the problem, and we saw an effective solution there. Perhaps the only comment, it's quite difficult for pets. So Agátka and the footbridge are my favourites.

OS Exactly. But the dog can take the stairs right next to it. There were stairs. I'm also struggling with the design in this category, like all of you. And I already said it; I appreciate the impact of Agátka and the variety of spaces. Of course, not perfect, but a huge impact and a huge improvement in the typical socialist housing, which can bring more quality into the lives of the residents around. And if there is a selection of three, I would add the skate park there.

ST I think we can nominate 3.

OS It's overlapping.

HM I would like to make a comment on the Skate Park. For me, it was a big disappointment to start such a project without having any plan on how to deal with the bridge as a whole.

OS I think they are taking it step by step.

HM I know that the construction could be done step by step, but the plan should be there. ST I totally agree with these two projects. I mean, also with the sequence, but I think

it's a very strong statement. I mean, these infrastructure pieces that are cutting through our cities, they're all over the place. And I think even if there is no plan for the whole bridge, this doesn't block anything. I think the Skate Park is a very good intervention. It activates the park, and it's at the right location because it's connected to the City Park.

HM I mean, I don't need any special design. I need to see the plan for working with the bridge as a cultural heritage site and technical monument on both sides of the Danube.

ST I asked the director of the Metropolitan Institute who was present there, if there was a master plan in terms of locations in Bratislava for similar interventions, and she said they didn’t have such a plan. So perhaps that's a recommendation for the city council to develop such a plan or strategy.

SL I think we have three quite different examples. One brings something new to a special area. The second is developing the city park and the third one is like this, an urban strategy. So, it's like 3 good examples. We want to give attention to all typologies. I would be for nominating all three because they represent good examples of how to work with leftover space. Maybe provoke some good ideas in the future. Somebody will say that. Hey, we can develop these leftover places under bridges.

RG For me, the winner should be Agátka. I think the quality of this space is good. The interventions in the landscape were somewhat extensive, but the rest was good, considering the social impact, too.

TR I agree. They implemented the aspect of biodiversity.

RG I think it was also an architectural design competition. That's also important.

SL Is anyone against Agátka? Thank you, everybody – we have a winner in the category.

FAMILY HOUSES

ST Let’s start with this former pink house. It was an ordinary house before, a plain ordinary house. It wasn't ugly, but its main feature was the pink colour…let’s call it like that

HM Pink house. It is again an important message: if you dream of a family home, please use any ugly pink house that already exists and try to develop it for your own purpose. In this case, it was done in a very innovative, excellent, and interesting way, and it was quite fun. I'm going to use the building, but let’s turn the logic of the house insideout, upside-down. This is an important message also because it is not an architect’s own home or a design for a wealthy client; it is for ordinary young people who contacted architects to rebuild their new home. It looks like it was not a very expensive approach.

I like the second house in Dolná Lehota too. It is a family house that could educate people in the region about how they still could improve and sustain traditional crafts with the use of local materials to create their dream home. It reminds me of a movement in Austria in the 1970s where architects went to the region and started a kind of new tradition of building. They educated the local people in how to reuse or reinvent tradition.

The next house we visited was the one with the black charred wood façade in the village of Plavecký Štvrtok. A former summer chalet transformation. It was a nice project, a reinvention of an old structure, done by architects for themselves. In the end, this approach was more about new construction, rather than about reusing an old structure. I'm not a big fan of changing recreational areas into permanent housing. When I go to the house in Bernolákovo, it's been done very well and with a lot of sensitivity. The area might even be considered a very problematic urban neighbourhood. The houses are close together, and there are only streets lined with walls. This makes the neighbourhood unpleasant. The architects did their best to overcome this disadvantage, but still, I see some better examples of this type of architecture. We also have the house above the lake. The situation is similar to that with the black chalet. It occupies a space very close to the natural recreational area. It takes land away from wild animals, too.

I don't agree with this approach, and I think there are better ways to build in such settlements. A good example of how to approach this is in Dúbravka. I appreciate the formal entry to the context of a traditional village. What I found quite problematic

was the absence of any added value. Like a pedestrian passage, a bench on the street…

Then we finally have Banánka near Piešťany. In terms of the architectural concept and space, it was impressive. It's well elaborated, very interesting. My main comment is about how they dealt with the original natural context because they built completely artificial surroundings.

Regarding the house in Liptovské Revúce, I do not understand why it was necessary to move the old structure from one spot to another. It's completely incomprehensible because all the houses in the neighbourhood have such a structure situated in the same context. And the interior was also over-designed. There was this travertine kitchen countertop and the handmade floor tiles, which are nice, historical craft, but totally out of the context of such a barn.

RG I would advocate the idea of not nominating too many projects in this category. On a political level, we shouldn't support the construction of single-family houses too much.

In this context, Dúbravka is a very interesting example for me. Maybe because its plot was only around 600 square meters, and they managed to situate three houses and kept the appearance of the house almost invisible in the historical environment. That's great.

For me, it would be the only reason to have three mentions in this category because this project is very dense. We should take care of our soil and avoid having too much sealed soil. That's why we should really densify the existing areas and densify our cities without using too much space.

HM Just for the record, Banánka was originally also a recreational area. If I may add, this is practically a sort of privatisation of a public good. Nature belongs to all of us, not just private owners.

ZZ You mentioned Banánka. What wasn't very understandable from my point of view, was that this garden is totally different to the surrounding greenery. If I can choose two projects, I would choose the “Pink” one, because I think this is a very simple and good example of how to deal with the suburban areas without having a huge impact on them.

The second one is in Lehota. A very nice example of how to work with the old craft and formal tradition. Not in terms of renovating the old material, but in terms of how to deal with new volume with new materials too. This approach is very important for our tradition.

OS I am very enthusiastic about the pink house too. On the other hand, the rest have brought a little disappointment in this category, because this category is always one of the

strongest. And I see a lot of examples that are playing in a safe zone. They are nice but lack a fresh approach.

But for me, the pink house stands out completely among everything here. From my point of view, there is a lot of courage and a lot of thinking behind it. You almost have the feeling that they are doing something weird and not right, but in the end, everything mysteriously works very well. Every step you take in this house, there are always new layers, new things to discover. With the nice layer of sustainability on the top – don't destroy this ugly former house, just keep it and try to play an open game with it. Surprisingly good decisions happened there in terms of how they work with different spaces. This is an outstanding approach to me. I'm not sure about the second one, but probably the house in Lehota. It is a very nice example of how to deal with the local context. I like the story behind, an architect designing a house for his parents, returning home, and building something in his birthplace. It's a very nice, spacious, and compact house with perfect details. I also like the Bernolákovo house with the different volumes and how they create this intimacy instead of putting this prefabricated concrete fence like everybody else. I like it and appreciate the scale of the house, and this would be in the third place for me.

SL I would choose these two – exact opposites from a sustainability point of view. I think of the pink house with a new façade behind the old wall. I think this is the strongest sustainability statement. Opposite to that, I see Banánka. The house was just extreme in architecture; it was truly crazy eccentric to me. I understand all the social and environmental problems. But despite this, it was somehow an amazing house. But the pink house is another story, kind of un-architecture. We have already discussed the house in Lehota. If I had to put the third favourite, it would be this house because I really liked almost everything in there.I would take the pink house as well. I agree with all the things that were said in the pink house. I think the whole story and the way it's transformed is really cool, and I was impressed with the transition from interior to exterior and the layering of spaces, so they created these in-between spaces that are sort of half outdoor, half indoor, and I think that's exceptional. But the second for me would be Dúbravka, because I think it really responds to a lot of the important topics. There is existing infrastructure, it's part of the city, and there is a street there. So why are we still taking green fields? I think it's an excellent example of how to situate a house on a plot to have enough living space and a garden in the city, too.

TR I think this pink house is truly outstanding. When you are inside and going out, you go through different layers. This idea is very, very smart. You all have said this before, so I don’t have to repeat it. My second choice would be the house in Lehota. This house was interesting in the way they built it. Not a rustic cottage, not something radically new, but they used the old composition of the local traditional farmhouses.

ST Again, I suggest nominating a maximum of three projects just because of what Reto said, that this category is not the one where the architecture is better than in the other categories.

ZZ But this type of work is the main job of Slovak architects. Please let’s not forget this.

SL There have been doubts about whether we have high-quality architecture in Slovakia, but all of the candidates are great examples that the local studios can do incredible things, both with lower budgets and just lots of imagination and with a bit bigger budgets, highly international level. These luxury houses could be just anywhere in the world.

ST Can we discuss the winner? I think we decided that this project actually shows the way, how we should build in the future.

SL It seems like there is a clear consensus on the Pink House in Plavecký Štvrtok.

INTERIOR

TR The cosmetic salon in Trenčín was nice, but not outstanding or innovative. Especially if you compare it with the façade and the structure of the architecture done by the same architects. The tea house, I understand that many of you like the organic space. But it was also not so consequent a space, and it was too small to really feel the atmosphere. The Buny Bakery, I think it's a very good standard, but on the other hand, it's a very common type of project, not extraordinary for me. Nehera, this project is characteristic in its spirit, but on the other hand, it is more about how to arrange the exhibition. Well, we can still call it inter. But I think the most outstanding project is the Library in Prešov. It is another level. I think this is also more about the background, which is very complex compared to others. The aesthetics of this space is really well developed. It is outstanding and has a very clear design. I think it's also a good combination of the spatial concept and the furniture, both working symbolically and physically with the idea of transparency. This project also comes with the message to tell the municipalities what a treasure they have in the tradition and infrastructure of the libraries. With such a huge potential! It is a gift to have a library. And it's very valuable for the public to have this kind of building. I'm very sure that this project fulfils all the expectations anyone can have of the award here.

ST I totally agree that the library is by far the best project. And although you've said everything, I want to point out the interpretation of the cross-section and how they used the structure and its constraints for the programme. It is very thoughtful and complex for interior architecture. The architects worked well with the space, in the section and the physical limits created by the weight of the books, which was one of the biggest challenges. Their idea to hang the weight from the ceiling instead of putting it on the floor was a smart decision, as well as making the shelves smaller towards the bottom. It's intelligent not only from a structural point of view, but also for the users, especially for the kids. They also created a space for the community, with a piano for concerts or other cultural gatherings. And that works so well, thanks to the fact that they didn't organise the shelves in the classic order. Really an exceptional project in many ways.

The Tea Room. I also think from the point of view of interior architecture for a shop that it is well done. The only thing I would have added is that there should be a place where you take your shoes off and can sit

on a Tatami mat, like in a real Japanese tea house. They explained to me that probably people won’t do that here, and they are right because it's not the custom. And then finally, Nehera store, I truly like it because it is so beautiful in its reduced aesthetics. But I have a problem with its situation in a shopping mall. The general message is contradicted by the lack of quality in the shell, so there is great design and architecture in a space, which creates everything except good architecture and quality space.

The other two, I wouldn’t nominate the cosmetics salon because of its non-ecological materials. It's also in contradiction to the design for the building, which they renovated so perfectly. The bakery, on the other hand, is a great space, perhaps not outstanding, but I would support its nomination if somebody recognised the higher qualities.

ZZ I agree here with the salon, but regarding the bakery, I see this is not only a bakery. It's more of a meeting point, and people really like being there. Definitely the library is the best, as was already said. The Tea Room is the second vote for me, and Buny Bakery is third.

ST I agree with what you said, it made me think that the bakery is probably even more important because it's on the ground floor and creates a welcoming social perspective for the neighbourhood. The outdoor garden was nicely designed too, and together it was activating the street.

TR This is the strategy for how to transform an existing space.

ZZ Even though I don't like this “naked” design because it's everywhere now, it's very important to show that such a non-place could be changed to a place where people love to meet.

RG Nehera is an interesting example because it's different. It creates a different kind of experience. Behind the lowered wall, you enter a visual world that appeals to the senses. This is extraordinary. It takes courage to do it this way, especially if it is situated in the shopping centre. It’s a totally unexpected experience in such an environment. As for the rest, I completely agree. I was impressed by the way the entire space of the library was organised with only minimal architectural elements.

SL Genius, yes. It was a genius idea. Minimalist and genius.

HM Well, talking about my two favourites. I would say at the library, we have seen the most advanced way of dealing with the brief. It was amazing how they understood the space and its potential. But there were other great things too, like the social impact and the craftsmanship.

The Tea Room. I would like to underline

how they dealt with the Japanese tradition. I think most people would not expect this. This is also a kind of added value. How they combined the local understanding of the Asian way of using space, and how to bring people together.

I would also say that Nehera is the third one. Well, it's a shopping mall, but... we have shopping malls everywhere, so we need to consider how to design the shops within them. We should deal with this topic and try to do our best because these spaces exist. This is not just about shops; it's about a space where you can experience the strategies of the people who invented the brand. Who developed the old tradition of Nehera clothing. It is also very important to consider how they did it, with all these movies showing the beautiful Slovak countryside and all these high-quality materials.

Buny is a beautiful place. I totally agree that it's important for the local community, and that place is very inviting. I'm not sure if it is worth the nomination.

OS I would stick with Nehra at the top three. These top three projects have a strong approach, every single one of them. In the Nehera store, I like how they made everything totally different from what you would expect in a shopping mall. It's a very bold approach in terms of the shopfront, the carpet, and the materials on the walls. They created a totally unexpected environment inside something banal like a shopping mall. So, for me, it's a very good project in terms of interior design. And of course, the library everybody mentioned already has an extraordinary quality. It's standing out from this beautifully, with the whole story of construction and everything.

SL Have we reached a consensus on the winner in this category? It appears that a unanimous agreement has been reached concerning the project, which is characterised by both elevated spatial quality and significant social impact. This project is the library in Prešov.

PHENOMENA OF ARCHITECTURE

ST In Ferdinand Café, they revived the original spirit of the architecture, repaired the damage that had been done in the past and sensitively refurbished it and reorganised the plan of a landmark building that not only revives but also improves it functionally and spatially.

The original design was from a different time, and what they did now is much more appropriate for the current use. Openness to all sides acts like an activator for the city park, so it has a larger impact.

My second vote is for the Artist Residence in Poriadie. That place impressed and touched me. I think the architects did everything right, and I don't see a single point to criticise, also from the technological side of things. Having worked on historical buildings, I know how difficult it is to get rid of the humidity and how to work with the ground floor. The research they put in to redevelop the original plaster and the colours. The renovation of this building is a great example of a sensitive architectural approach with the right scale of interventions.

The Sauna is really fun; if we nominate it, it activates the location. I appreciate how they open up a way to swim in the Danube, which would not happen otherwise. The intervention of this project is small, but the impact is much bigger. I am not sure if it is worth a nomination, but we can discuss it further.

The other residency project in the Hont region – Hermitage, there was too little for me to nominate the project. I like that it was designed and built for students and young professionals. The interior space of the barn was a surprise, and the way they reinvented this original materiality was also interesting. The last project we saw was the Bunker. I would prefer for the bunker to stay a bunker, overgrown by bushes. That's my opinion.

ZZ I agree, Ferdinand Café is phenomenal for us – for people from Bratislava. The building had a complicated story. Everything was done in an appropriate way. I also think the small interventions are good and in a good position. The atmosphere there was great. I think we must support such kinds of projects. I'm not sure about the sauna.

OS It's more about the impact of these projects, too.

ST The performance.

SL The fact that part of the jury got naked and truly experienced the sauna. I'd like to nominate Sauna Bobor, because I think it

has a socially important value that such a space activates and creates culture and supports the community.

I liked the bunker just as an idea of turning military constructions into civilian use, and somehow like the biblical idea of forging swords into ploughs. It was kind of absurd. It's next to the noisy highway. There is a kind of need to be inside the bunker to protect yourself from the soundscape because it's so harsh. I mean, it is absurd and somehow even funny.

RG I would like to be clear here: I have to say the Art Hermitage shelter was the most poetic space I have seen during the whole trip. The light was fantastic, and the smell of the natural materials was amazing too. The feeling of being up there in the nest, just to have such a surprising space for meditation. It was very poetic. And that's why I liked it a lot. I think we could keep this minimal intervention as a manifesto between art and architecture. Ferdinand is very important too, I don't have to repeat what you have already said, and the Art residence in Poriadie is a nice space too, a good idea and a well-done piece of craftsmanship, but it's not great architecture, it's well done, good renovation, but there is nothing outstanding about it.

And the Sauna is an important “urban guerrilla intervention.” This is very nice and very important for the community. The idea to build it on a boat, if you don’t get a building permit on the riverbank, is a courageous approach. And finally, it makes the river more accessible in the city centre. I think this could be the beginning of a strong moment.

HM First, I would like to touch on the bunker because it is actually a good example of how to deal with this kind of heritage, and there are already different approaches to this typology in Bratislava. Most of the bunkers are abandoned. However, the idea of using it as an AIRBnB does not appeal to me. It could have been much more positive if it were used for people in need. It could be a place where the homeless people could come to get some kind of treatment or something like that. Just an idea. But now it is a kind of exclusive spot for whom? This is my biggest concern. I mean, you can deal with this heritage in a non-military way, but it should be really elevated in the social context.

I was not a big fan of the Barn – Hermitage. But now, as Reto started the discussion, I support the advocacy of the project because there are many workshops each year. But in this case, they are in a region which is not really a centre for such an intervention. They're creating an attractor in a remote village to bring people there.

They have created something beautiful from nothing. This is in contrast to the other art residence near Myjava in Poriadie village, which was situated in a beautiful historical estate, which was a fantastic spot to be renovated. This abandoned barn in the Hont region was nothing special. I would like to put it up for nomination because of such a successful approach.

And the sauna, to be honest, I personally would not go there because I see the sauna as something very intimate, and I prefer the countryside. I don’t really see this as a part of the rush of urban life, but I totally agree with people who think it belongs in the city, and I love how much they love the sauna. I hope it will make the people of Bratislava freer and challenge the conservative and somehow shy society… and perhaps I will go there once too. It's maybe good for teaching people how to feel free in their city.

And of course, Ferdinand Café is the most important project here on the table for me. Paradoxically, I would choose those two, the Sauna and Ferdinand. I would never have said that at the beginning, but they are so in contrast to each other, yet equally important. They both activate the public space, but in completely different ways. The Sauna is a bottom-up approach, and Ferdinand is a top-down approach. And they happen to meet in the same area, which is connected by a bridge. In Ferdinand's case, we must mention the added value of saving a precious asset that was almost destroyed by the foolish privatisation under conservative mayor Andrej Ďurkovský. This is truly important, offering a change from those dark times. It is a space full of optimism and hope because nothing has been lost. You should always keep trying because things may turn out well.

OS Ferdinand has the strongest story for me. It's about not giving up and fixing the mistakes of the past. The city had to pay public money for this correction. But it's great that they did it and gave the building back to the public. There's no question.

The other project is the sauna, I love it. And then the artist's residence in Poriadie Kopanice. I appreciate the project for the love and a lot of care the architects put in. A lot of hard and invisible work was done there. The perfect example of how to treat this kind of rural property. These are my top three.

At the same time, I support the Hermitage art residency advocated here by Reto and Henrieta. I agree that it was a poetic space, but I see the impact as too small compared to the other projects here.

ZZ In the conditions of the current cultural policy in Slovakia, we must support

a cultural approach as much as possible. Support the architects, the artists for their contribution, but at the same time, the investors and generous individuals who support these cultural and artistic activities.

TR Ferdinand is outstanding and very complex with all the historical background and has a great potential to change the locality. I agree that the sauna is not a classical building, but why not architecture? I think what is very important in this project is not the sauna itself as a typology, but the activator of the river and an act of performance to bring the people to this abandoned riverside, where it is not easy to even touch the water in the river. I'm very sure that this is a kind of phenomenon. Renovation of the Poriadie estate is perfect. I think this could influence a lot of other people in how to avoid mistakes in the renovation process, and how to reinvent the substance of every old house. I think the architects had a lot of respect here, and I agree with this way of thinking.

SL Looking at these final four, I'm happy to see them together as a clear message, how heritage and wellbeing are important. Based upon the discussion, the first project of the category is Café Ferdinand.

The edited transcript of the jury's evaluation meeting was prepared by Martin Zaiček.

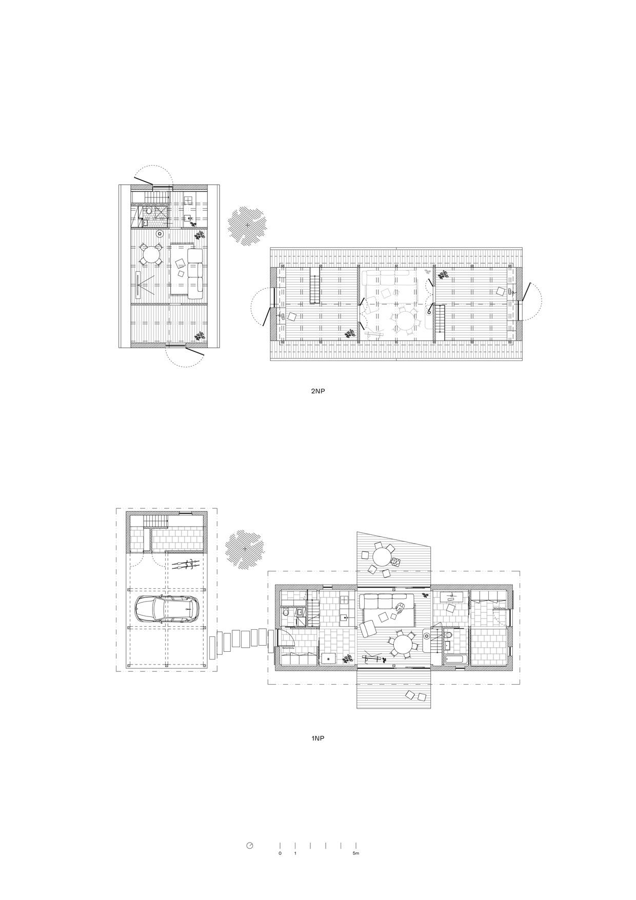
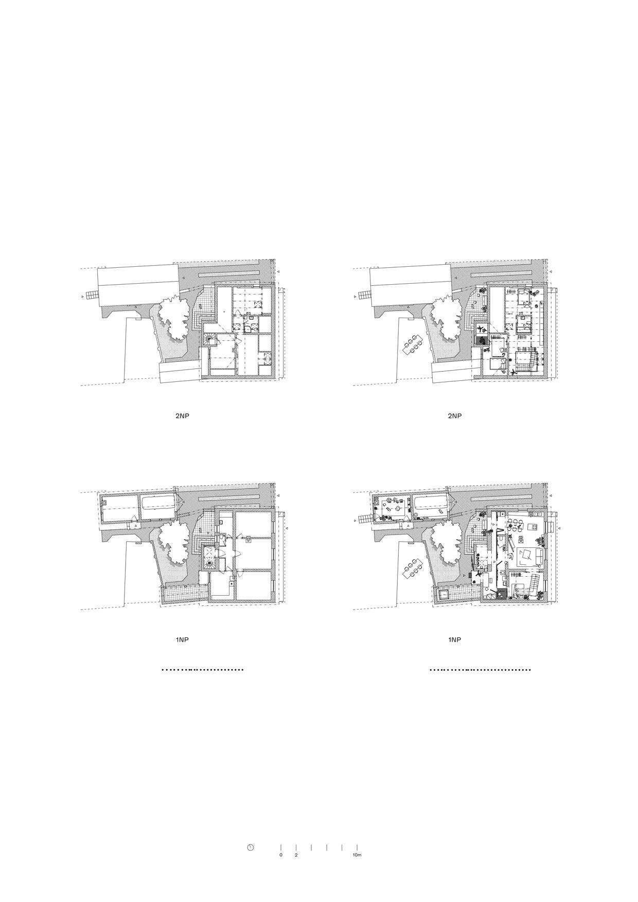
Rekonštrukcia rekonštruovaného domu

Dom BANÁNKA

Rodinný dom Strmé domky

Dom v Dolnej Lehote

BYTOVÉ DOMY

Nový Ružinov

Nová Vajnorská

Bytový dom Hausberg

FENOMÉNY ARCHITEKTÚRY

SJK Pavilón Kaviareň Ferdinand

Pustovňa pre Umenie

Komunitná sauna Bobor

Umelecká rezidencia Poriadie

INTERIÉR

KONOMI Tea House

NEHERA Store

BUNY

Interiér Krajskej knižnice

P. O. Hviezdoslava v Prešove

EXTERIÉR

Skatepark Janka Kráľa pod mostom SNP Obnova sídliskového

dvora Agátka

Lávka medzi stromami

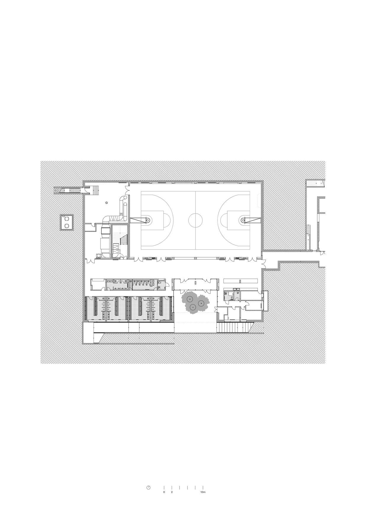
OBČIANSKE A PRIEMYSELNÉ STAVBY

Kancelárska a výrobná budova MTS H4

Dostavba Základnej školyI. etapa Nový pavilón školy a II. etapa

Multifunkčná hala

Námestie Svätej Anny 9

Vinárstvo S Strekov

Nové sídlo spoločnosti Magna Energia

of the P. O. Hviezdoslav

EXTERIOR

Janka Kráľa under

MTS H4

of a Primary SchoolI. phase New School Pavilion and II. Phase

REKONŠTRUKCIA

REKONŠTRUOVANÉHO DOMU

Plavecký Štvrtok

Ateliér / Atelier: Kilo / Honč

RECONSTRUCTION

A RECONSCRUCTED HOUSE

Architektúra / Architecture: Richard Kilo, Matej Honč, Ľubomíra Blašková

Autori tomuto dielu hovoria architektúra bez architektúry. Teda, ak pod architektúrou rozumieme čosi, čo sa dá pekne odfotiť, vystaviť a je v tom cítiť status a ego. Architekti prizvaní k rekonštrukcii dedinského domu rýchlo zistili, že niečo také tu nie je nutné ani potrebné. Ponúkal sa iný druh architektúry. Uvažovanie nad tým, ako nepríťažlivý a užívateľsky skôr neprívetivý dom nastaviť na pohodovejší režim. V prvom rade išlo o to, aby si dom všimol, že má za sebou veľkú záhradu, ktorá prechádza do lesa. Vytvorili doňho preto nové priezory. A aby to bolo zrejmé, stopy zásahov „nekašírovali“. Zrušili tiež prísne delenie na vnútro a vonkajšok. Vložením presklenej fasády jednak dom opticky ešte viac otvorili do zázemia. Posunutím fasádnej steny zároveň vytvorili nový typ medzipriestoru, ktorý má vlastné kvality. Vyjdete von, no dom vás stále chráni. Cítite čerstvý vzduch, ale môžete si sadnúť za stôl k obedu či k práci. V konečnom dôsledku tu nejde o architektúru bez architektúry, ale o takú, akou by mala byť.

The authors refer to this project as ‘architecture without architecture’. That is, if by architecture we mean something that can be nicely photographed, displayed, and has a sense of status and ego. The architects called in to renovate the village house quickly realised that such a thing was neither necessary nor needed here. A different kind of architecture presented itself – contemplating about how to make an uninviting and rather user-unfriendly house more relaxed. The first step was to make the house aware of the large garden behind it, which extends into the forest. Therefore, new openings were created to offer views of it. And to make this clear, they did not try to hide the traces of their interventions. They also abolished the strict division between inside and outside. Adding a glazed façade made the house open up visually even more towards the outside. By moving the façade wall, they also created a new type of transitional space with its own qualities. You are outside, but the house still protects you. You can feel the fresh air yet still sit down at the table for lunch or work. Ultimately, this is not architecture without architecture, but architecture as it should be.

VYJADRENIE POROTY

Prestavba staršieho domu je dôkazom toho, že aj problematické nehnuteľnosti možno premeniť na hodnotné obytné prostredie. Architekti prostredníctvom invenčných intervencií obrátili naruby pôvodnú uzavretú dispozíciu a vytvorili niekoľko pozoruhodných sekvencií polootvorených priestorov prepojených medzi sebou aj s exteriérom.

JURY STATEMENT

The redevelopment of an older house is proof that even problematic properties can be transformed into valuable living environments. Through ingenious interventions, the architects have turned the original enclosed layout upside down and created several remarkable sequences of semi-open spaces connected to each other and to the exterior.

NOMINÁCIA V KATEGÓRII

RODINNÉ DOMY

NOMINATION IN THE CATEGORY FAMILY HOUSES

Foto / Photo: Matej Hakár
Foto / Photo: Matej Hakár

DOM BANÁNKA

Ateliér /

Na začiatku bolo hľadanie toho správneho miesta. Cieľom bolo môcť žiť uprostred prírody, zároveň jej neublížiť a nevzdialiť sa úplne od civilizácie. Dom Banánka sa nachádza v pešej dostupnosti od Piešťan a zároveň pôsobí, akoby bol kdesi na samote. Jednopodlažný objekt má veľkorysú obytnú plochu, voči okolitému lesu sa výškovo správa decentne. Chce s ním splynúť. Trojramenný pôdorys domu jednak zabezpečuje, aby nemuseli byť vyťaté stromy. Zároveň sa tak vytvára priestorové členenie, ktoré umožňuje rôzne situácie a výhľady z domu. A do tretice tak vzniká vnútorná logika jednotlivých priestorov, napríklad zabezpečenie väčšej intimity nočnej časti. Kľúčovým princípom je čo najintenzívnejšie prepojenie interiéru s exteriérom. Slúžia na to presklené steny, ktoré je možné v letných mesiacoch aj odsunúť. Vznikne tak úplné splynutie vnútra domu s autenticky prírodnou scenériou záhrady s potokom a jazierkom. Minimalistický a materiálovo surový dizajn interiéru sa tak prepája s naturálnosťou jeho okolia.

BANÁNKA HOUSE

VYJADRENIE POROTY

Priestorové riešenie domu s plynulým prepojením interiéru s exteriérom pripomína slávne modernistické vily 20. storočia. Veľkorysá dispozícia doplnená minimalistickým interiérom je v priamom kontakte s expresívnou skalnatou záhradou, ktorá evokuje exotický a exkluzívny pocit.

First, the right place needed to be found. The goal was to live in the middle of nature, without harming it and completely moving away from civilization. The Banánka House is located within walking distance of Piešťany but also feels secluded. The single-storey building has a spacious living area and is unobtrusive in height in relation to the surrounding forest. It wants to merge with it. The three-bay floor plan of the house ensures that no trees needed to be cut down. However, this also creates a spatial division that allows for different situations and views within the house. Thirdly, it establishes the internal logic of the individual spaces; for example, it ensures greater intimacy in the night area. The key principle is to maximise the connection between the interior and exterior. This is possible thanks to glass walls that can be slid aside in the summer. This creates a complete fusion between the interior of the house and the authentic natural scenery of the garden with a stream and a pond. The minimalist and raw material design of the interior is thus intertwined with its natural surroundings.

JURY STATEMENT

The spatial design of the house with a seamless connection between the interior and exterior is reminiscent of the famous modernist villas of the 20th century. The generous layout and the minimalist interior offer an interesting contrast to the exotic garden.

NOMINÁCIA V KATEGÓRII RODINNÉ DOMY

NOMINATION IN THE CATEGORY FAMILY HOUSES

Foto / Photo: Matej Hakár
Foto / Photo: Matej Hakár

RODINNÝ DOM

STRMÉ DOMKY

Bratislava

Ateliér / Atelier: Eckhardt studio

FAMILY

HOUSE STRMÉ DOMKY

Architektúra / Architecture: Martin Eckhardt, Matej Brondoš, Šimon Vacek

Iné / Others: Ivan Tužinský (záhradná architektúra), Jakub Brondoš (statika)

Už názov rodinného domu naznačuje, že sa nachádzame v rázovitom prostredí. Konkrétne na jednom zo svahov Starej Dúbravky v Bratislave. Do zložitej parcely na hranici pamiatkovej zóny (blízky Kostol sv. Kozmu a Damiána) sa doteraz nikto nepustil. Autori návrhu z komplikovanosti terénu robia pozitíva. Jednak opúšťajú ideu jedného domu a namiesto toho koncipujú členitý trojdom so samostatnými bytovými jednotkami. Keďže terén nielen stúpa, ale zároveň klesá do údolia, dom sa do ulice decentne tvári ako jednopodlažný, v skutočnosti sa však člení do troch úrovní. Voči okolitej historickej zástavbe sa stavba taktiež správa ústretovo. Volia sa sedlové strechy a vizáž klasických vidieckych domov. Dom je špecifickou formou radovej zástavby, pričom každá jednotka má zabezpečené súkromie a individuálny vstup do záhrady. Byty tvoria hmotný celok, no aj vizuálnym riešením fasád sa od seba líšia. K individuálnemu rázu interiérov prispeli samotní klienti, ktorí sa zapojili do tvorby v priebehu realizácie.

Already the name of the house (‘Steep Houses’) suggests that it is located in a picturesque area. Specifically, on one of the slopes of Stará Dúbravka in Bratislava. No one has yet attempted to build on this challenging plot of land, which borders a conservation area (the nearby Church of St. Cosmas and Damian). The authors of the design have turned the complexity of the terrain into an advantage. Firstly, they abandon the idea of a single house and instead design an articulated house comprising three separate housing units. As the terrain rises and falls into the valley, the house subtly appears as a single storey from the street but is actually divided into three levels. The building also respects the surrounding historical architecture. Gable roofs and the appearance of traditional country houses were chosen. This house is a specific form of terraced housing, with each unit offering privacy and individual access to the garden. While units form a single whole in terms of mass, they also differ in the visual design of the façades. The clients themselves contributed to the individual character of the interiors. They were involved in the design process during construction.

VYJADRENIE POROTY

Rodinný dom s troma samostatnými bytmi vstúpil s rešpektom do historického prostredia centra Dúbravky, na ktoré reaguje tradične tvarovanou hmotou aj použitými materiálmi. Rozdelenie programu do troch na seba nadväzujúcich kompaktných hmôt je sviežou interpretáciou radovej zástavby.

JURY STATEMENT

The family house with three separate flats entered the historical environment of the centre of Dúbravka with respect. It responds to its surroundings with a traditionally shaped mass and materials used. The division of the programme into three successive compact masses is a fresh interpretation of terraced housing.

NOMINÁCIA V KATEGÓRII

RODINNÉ DOMY

NOMINATION IN THE CATEGORY FAMILY HOUSES

Foto / Photo: Martin Eckhardt
Foto / Photo: Martin Eckhardt

DOM V DOLNEJ LEHOTE

Dolná Lehota

Ateliér / Atelier: What architects.

HOUSE DOLNA LEHOTA

Architektúra / Architecture: Tomáš Krištek, Ondrej Kurek, Laura Krišteková, Jakub Krištek

Kto chce dnes stavať na vidieku, môže si tým napĺňať potrebu úniku z mesta. No motivácie môžu byť oveľa hlbšie. Tak je to aj v prípade Domu v Dolnej Lehote. Nový objekt nadväzuje na dlhodobú rodinnú tradíciu života v tejto stredoslovenskej obci. V bezprostrednej blízkosti žijú generácie rodinných príslušníkov a priateľov. Nová stavba sa tak napája na susedstvo už existujúcich obydlí a pozemkov. Formálne pritom nevybáča, naopak, snaží sa nadviazať na tradíciu dedinských dreveníc. Kopíruje preto bazálnu formu objektu so sedlovou strechou, ktorého základom je drevená konštrukcia. Zachováva sa aj logika členenia interiéru, pričom sa prispôsobuje potrebám a predstavám súčasného života. Priestory sú presvetlené a vzdušné, cez posuvné presklenie sa otvárajú do exteriéru. Koncept domu nadväzuje na tradíciu aj materiálovo, a to využitím lokálnych zdrojov a tiež oživením remeselníckej zručnosti. Stavba vznikala postupne vo vlastnej tvorivej réžii, k realizácii priložili ruku aj rodinní príslušníci a susedia.

People who want to build in the countryside today may be fulfilling their need to escape from the city. But the motivations may run much deeper. This is certainly true of the House in Dolná Lehota. The new building continues a long family tradition of living in this village in central Slovakia. Generations of family members and friends live in the surrounding area. The new building is therefore connected to the neighbourhood of existing dwellings and plots. Formally, it does not stand out; on the contrary, it tries to follow the tradition of wooden village houses. It therefore copies the basic form of a building with a gable roof, with a wooden structure as its base. While adapting it to the needs and ideas of contemporary life, the logic of the interior structure is also maintained. The rooms are bright and airy, opening into the exterior via sliding windows. The concept of the house also follows the tradition in material terms by using local resources and reviving craftsmanship. The building was constructed gradually under the creative direction of the owners, with help from family members and neighbours.

VYJADRENIE POROTY

Rodinný dom svojou formou aj citlivým umiestnením dokonale zapadá do miestneho prostredia. Prostredníctvom vývoja tradičných remeselných postupov a využitím lokálneho materiálu ukazuje, ako môže vyzerať moderné regionálne stavanie.

JURY STATEMENT

Thanks to its form and sensitive positioning, the family house fits perfectly into the local environment. Through the development of traditional craftsmanship and the use of local materials, it shows what contemporary construction in the region can look like.

NOMINÁCIA V KATEGÓRII

RODINNÉ DOMY

NOMINATION IN THE CATEGORY FAMILY HOUSES

Foto / Photo: Tomáš Krištek
Foto / Photo: Tomáš Krištek

Bratislava

Ateliér / Atelier: Compass Architekti; Laboratórium architektúry krajiny

Architektúra / Architecture: Matej Grébert, Juraj Benetin, Juraj Kurpaš, Milan Andrejko

Krajinná architektúra / Landscape architecture: Michal Marcinov, Matúš Antolík, Zuzana Antolíková, Andrej Morávek, Katarína Stanislavová, Zuzana Kovaľová

Iné / Others: Peter Hörmann (statik)

Nachádzame sa v rozvíjajúcej sa oblasti bratislavského Ružinova, nový development sa tu rozbehol už pred viacerými rokmi. Už na prvej etape Nového Ružinova sa podieľali architekti z ateliéru Compass. Teraz k vzniknutým obytným domom pribudol súvisiaci nový komplex. Výzva ostala rovnaká: územie sa nachádza v blízkosti frekventovanej infraštruktúry, neďaleko je diaľnica i železnica. Cieľom bolo minimalizovať rušivé vplyvy a navyše vytvoriť pokojný spoločný exteriérový priestor. Ako bariéra voči ruchu dopravy slúži štruktúra doskových domov, ktorých dispozícia smeruje do vnútrobloku. Veniec komplexu dopĺňajú nižšie samostatné bytovky, ktoré sa napájajú na susedstvo existujúcich rodinných domov. Časť parkovania je ukrytá v podzemí pod vnútorným dvorom. Ten je priestorovo napojený na zelené jadro prvej fázy projektu. Voľne dostupný priestor má rôzne funkčné využitia na spoločné aktivity. Obyvatelia disponujú aj súkromnými predzáhradkami a v rámci bytov na poschodiach aj veľkorysými balkónmi a lodžiami.

We are located in the developing area of Ružinov in Bratislava. Construction of the new development began here several years ago. The architects from Compass were involved already in the first phase of Nový Ružinov. The residential buildings have now been complemented by a new, related complex. The challenge remained the same: the area is close to busy infrastructure – both a motorway and a railway line. The aim was to minimise disturbance and create peaceful shared outdoor spaces. The plank-like structure of the houses, which are arranged to face the inner courtyard, serves as a barrier against traffic. Lower detached apartment buildings, which connect to neighbouring pre-existing single-family homes, complete the complex’s wreath-like design Some of the parking is hidden underground beneath the inner courtyard. This space is connected to the green centre of the first phase of the project. This freely accessible space can be used for various community activities. Residents also have private gardens and those living in the upper apartments have access to generous balconies and loggias.

VYJADRENIE POROTY

Bytový komplex predstavuje úspešnú premenu zvyškového priestoru na okraji dopravnej infraštruktúry hlavného mesta na kvalitné obytné prostredie. Najväčším benefitom sú veľkorysé exteriérové plochy bytov, balkóny, lodžie a predzáhradky, orientované do parku vo vnútrobloku.

JURY STATEMENT

The residential complex represents a successful transformation of an unused space on the edge of the capital’s transport infrastructure into a quality residential environment. The greatest benefit is the generous outdoor spaces of the apartments – balconies, loggias and front gardens turned towards the park in the inner courtyard.

NOMINÁCIA V KATEGÓRII

BYTOVÉ DOMY

NOMINATION IN THE CATEGORY RESIDENTIAL HOUSES

/ Photo: DYNAMEET visual studio
Foto / Photo: DYNAMEET visual studio

Bratislava

Ateliér / Atelier: Compass Architekti

Architektúra / Architecture: Matej Grébert, Juraj Benetin, Roman Janata, Matúš Grega-Jakub

Iné / Others: Lucia Benetinová Andrejková (autorka dizajnu infografiky)

Doplniť blokovú zástavbu na frekventovanej bratislavskej ulici, nevytŕčať za každú cenu, ale zároveň byť rozoznateľní. Taký prístup zvolili architekti pri návrhu bytovky Nová Vajnorská. Jej poznávacím znakom sú skosené tvary balkónov a lodžií na prednej fasáde, ktoré odkazujú na dynamiku rušnej ulice. Šesťpodlažný objekt s ustúpeným najvyšším poschodím sa sebavedomo, no zároveň ohľaduplne zaraďuje do existujúcej blokovej zástavby z polovice 20. storočia. Bytovka ponúka pestré možnosti bývania, od jedno po štvorizbové byty so strešnými terasami. Stavba s pôdorysom písmena L v zázemí vytvára pokojný vnútroblok. Ústredným prvkom je pôvodný vysoký strom, ktorému sa prispôsobujú aj priestory podzemného parkovania. Do vnútorného dvora sú otočené prízemné byty s predzáhradkami, smerom do ulice ich nahrádzajú presklené priestory pre prevádzky. Konštrukčne sa objekt vracia k prefabrikovanému železobetónovému systému. Disponuje vlastným geotermálnym systémom, ktorý je primárnym zdrojom vykurovania a chladenia.

Completing the block development on a busy Bratislava street, not standing out at any cost, but being recognizable at the same time – this was the approach taken by the architects when designing the Nová Vajnorská apartment building. The angled shapes of the balconies and loggias on the front façade distinguish the building, echoing the dynamics of the busy street. The six-storey building, with a set-back top floor, is both confident and considerate in how it fits into the existing mid-20th-century block development. The residential building offers a variety of housing options, ranging from studios to three-bedroom apartments with roof terraces. The L-shaped building creates a quiet inner courtyard at the back. The central feature is the original tall tree, which even influenced the placement of the underground parking spaces. Ground-floor flats with gardens face the inner courtyard, while glazed spaces for businesses are located on the street side. Structurally, the building goes back to a prefabricated reinforced concrete system. It has its own geothermal system, which serves as the primary source of heating and cooling.

VYJADRENIE POROTY

Architektom sa podarilo vstúpiť do existujúcej zástavby významnej bratislavskej radiály kultivovaným riešením, ktoré prispieva k zvýšeniu hodnoty tamojšieho urbánneho prostredia a súčasne poskytuje obyvateľom všetky benefity bývania v meste. Významným príspevkom k lokálnej stavebnej praxi je využitie prefabrikovaných betónových panelov.

JURY STATEMENT

The architects have managed to enter the existing development along the important Bratislava radial and bring a sophisticated solution that contributes to increasing the value of the local urban environment and also provides residents with all the benefits of living in the city. The use of precast concrete panels is an important contribution to local building practice.

NOMINÁCIA V KATEGÓRII

BYTOVÉ DOMY

NOMINATION IN THE CATEGORY RESIDENTIAL HOUSES

Foto / Photo: Matej Hakár
Foto / Photo: Matej Hakár

Bratislava

Architektúra / Architecture: Ilja Skoček

Krajinná architektúra / Landscape architecture: Katarína Čárska

Iné / Others: Danica Ščepková (spolupráca), Michal Dinda (spolupráca), Michal Kontšek (spolupráca), Katarína Čárska (sadové úpravy)

Nachádzame sa na území niekdajších záhrad starej Bratislavy. Na tomto mieste, „domácom kopci“ či „vrchu za oknami“, sa začalo s výstavbou až na začiatku 20. storočia, keď mesto získalo administratívnu dôležitosť. Z oblasti dnešných Palisád sa stala vilová štvrť, ktorej prestíž pretrváva dodnes. Bytový dom Hausberg do tohto prostredia vstupuje s citom pre kontext. Na svoju finálnu podobu si musel počkať, projekt prešiel viacerými podobami. Tá finálna nesmeruje k okázalosti, nechce zámerne vyčnievať. No vyžarovaním solídnosti, kvality materiálneho spracovania a citu pre detail dáva najavo, že tu sa ponúka nadštandard. Betón na fasáde odkazuje na brizolitové omietky historických domov v okolí, pripájajú sa drevené povrchy a hliníkové prvky. Vonkajšiu betónovú škrupinu vo vnútri dopĺňajú veľkorysé spoločné priestory s dôrazom na kvalitný dizajn v dreve. Byty na najvyššom poschodí disponujú veľkou terasou, prízemné zase zelenými predzáhradkami. Predstava, že dom by mal pôsobiť tak, akoby tu vždy bol, vyšla.

We are located on the site of the former gardens of Old Bratislava. Construction on this site, known as the ‘home hill’ or ‘hill behind the windows’, did not begin until the early 20th century, when the town gained administrative importance. The Palisády area became a villa district, and it still enjoys that prestige today. The Hausberg residential building blends into this environment with a sense of context. It took several forms before reaching its final design. The final form is not ostentatious; it does not deliberately seek to stand out. However, by exuding solidity and showcasing the quality of its materials and attention to detail, it is clear that a high standard is on offer here. The concrete façade echoes the brizolit plaster of the historical houses in the area, and wooden surfaces and aluminium elements are also incorporated. Inside, the exterior concrete shell is complemented by generous communal areas with an emphasis on quality wooden design. The top-floor flats include a large terrace, while the ground-floor flats have green gardens. The idea of making the house look as if it had always been there worked.

VYJADRENIE POROTY

Bytový dom je príkladom dokonale prepracovaného architektonického riešenia v zmysle priestorovej koncepcie, použitých materiálov aj remeselného spracovania. Do cenného historického prostredia bratislavského Hausbergu tak prináša ďalšiu vrstvu dobovej predstavy o bývaní.

JURY STATEMENT

The apartment house is an example of a perfectly elaborated architectural solution in terms of its spatial concept, materials used and craftsmanship. As a result, it brings a new layer of the period idea of housing to this valuable historical environment of Bratislava's Hausbergl.

NOMINÁCIA V KATEGÓRII

BYTOVÉ DOMY

NOMINATION IN THE CATEGORY RESIDENTIAL HOUSES

Foto / Photo: Peter Jurkovič
Foto / Photo: Peter Jurkovič

FERDINAND

Bratislava

Ateliér / Atelier: studený architekti, Peter Stec, GRAU

Architektúra / Architecture: Ján Studený, Peter Stec, Maroš Bátora, Petra Ďuríšková

Iné / Others: Andrej Olah (interiér), Filip Marčák (interiér), Simona Fischerová (interiér)

Kto sa prejde bratislavským Sadom Janka Kráľa od Starého mosta, rád sa občerství na krátkom posedení. Budova na okraji parku sa prirodzene ponúka na verejné využitie. Objekt od architekta Ferdinanda Končeka zo začiatku 80. rokov však po revolúcii túto funkciu stratil. Nielenže bol neprimerane využívaný ako erotický salón, stavba prešla aj necitlivými zásahmi. Prínos jej revitalizácie je hlavne v prinavrátení služby verejnosti. Architekti cielili na udržanie tvaru a výzoru pôvodnej stavby. Hlavnou funkciou sa stalo bistro s exteriérovou terasou, k jej atmosfére prispieva zrekonštruovaná fontána. Objekt je tiež zázemím kultúrnych akcií susediaceho open air pódia. Nové presklenia, bezbariérovosť a celková otvorenosť stavby prispievajú k jej napojeniu na park. Interiér je prispôsobený gastro prevádzke, pohyblivý mobiliár umožňuje rôzne scenáre využitia. Koncept otvorenosti podčiarkuje vizuálny vhľad do kuchyne. Citlivý prístup dokladá aj zrekonštruovaná nástenná keramika od Ľubice Končekovej-Veselej.

As you walk through Bratislava’s Sad Janka Kráľa park from the Old Bridge, you will be glad to have the opportunity to sit down and enjoy some refreshments. The building on the edge of the park is ideally suited to public use. However, the building, which was designed by the architect Ferdinand Konček in the early 1980s, lost this function after the revolution. Not only was it used inappropriately as a massage parlour, but the building also underwent insensitive alterations. The key value of the revitalisation lies in returning the building to public use. The architects aimed to preserve the shape and appearance of the original building. The main function is a bistro with an outdoor terrace. A renovated fountain contributes to the bistro’s atmosphere. The building also provides facilities for cultural events on the adjacent open-air stage. New glazing, barrier-free access, and the building’s overall openness contribute to its connection with the park. The interior has been adapted for food service, and the movable furniture allows for a variety of uses. The idea of openness is accentuated by the visual connection to the kitchen. The sensitive approach is also evident in the reconstructed ceramic wall artwork by Ľubica Končeková-Veselá.

VYJADRENIE POROTY

Kaviareň Ferdinand je exemplárnym príkladom toho, ako možno zvrátiť aj ten najhorší vývoj. Niekoľko desiatok rokov chátrajúce architektonické dielo z 80. rokov v strede obľúbeného Sadu Janka Kráľa sa mestu podarilo vrátiť naspäť verejnosti vo vynovenej plne funkčnej podobe, ktorá plnohodnotne zohľadňuje nároky súčasných užívateľov.

JURY STATEMENT

Café Ferdinand is an example of how even the worst development can be reversed. For several decades, the architectural work from the 1970s in the centre of the popular Janko Kráľ Park has been falling into disrepair. Now, it has been returned to the public in a fully functional form that reflects the demands of the users of today perfectly.

NOMINÁCIA V KATEGÓRII FENOMÉNY ARCHITEKTÚRY

NOMINATION IN THE CATEGORY FENOMENA OF ARCHITECTURE

Foto / Photo: Alex Shoots Building
Foto / Photo: Alex Shoots Building

PUSTOVŇA

Hontianske Trsťany

Ateliér / Atelier: Ateliér HAUS

Architektúra / Architecture: Tomáš Ružiak, Matthias Marcel Jean Arnould, Robert Provazník, Viktória Žigmundová, Eva Šestina, Katarína Urgelová, Matúš Šestina, Miroslav Šestina

Iné / Others: Stanislav Piatrik (koncepcia investora), Mária Piatriková (koncepcia investora), Ervín Surovec (statika), Marek Halász (oceľové konštrukcie), PRAKS o.z. (materiálové riešenie a realizácia)

Architektúra môže byť niekedy zredukovaná na úplný minimalizmus, čo sa týka mierky, rozpočtu, výrazu či vyhotovenia. Pustovňa pre Umenie naznačuje striedmosť už svojím názvom. Sme v obci Hontianske Trsťany, kde sa pod vedením občianskeho združenia stal zo starej stodoly priestor pre súčasné umenie. Samotná architektúra sa týka len časti objektu. Na stropných trámoch sa vznáša ubytovacia jednotka pre umelca či umelkyňu, ktorí prišli na tvorivú rezidenciu. Je tu len matrac, stôl a stolička, aj vybavenie je zredukované tak, aby nič nerušilo pozornosť. Ubytovacia bunka je dostupná po rebríku, je vyhotovená z prútia, čiže lokálneho materiálu. Spôsob tkania odkazuje na miestnu košikársku tradíciu. Objekt vznikol v kooperácii so skupinou študentov, rozpočet bol minimálny, časový rámec tiež. Asketický výraz priestoru pre tvorivú dušu jednak odzrkadľuje potrebu odpojiť sa od hektickej súčasnosti, zároveň je výrazom často prekérnej umeleckej existencie. Hovorí o tom, že architektúra si vystačí aj s málom.

Architecture can sometimes be reduced to pure minimalism in terms of scale, budget, expression, or execution. By its very name, the Hermitage for Art suggests restraint. We are in the village of Hontianske Trsťany, where an old barn has been converted into a space for contemporary art under the leadership of a civic association. The architecture itself only addresses part of the building. Hovering above the ceiling beams, a residential unit provides accommodation for an artist on a creative residency. The space contains only a mattress, a table, and a chair – the furnishings are kept to a minimum so as not to distract the artist. The accommodation is accessed via a ladder and is made of wicker, a locally sourced material. The weaving method reflects the local basket-weaving tradition. The object was created in collaboration with a group of students, and within a minimal budget and time frame. The ascetic quality of the space for a creative soul embodies both the need to disconnect from the hectic present and the often-fragile reality of artistic existence. It demonstrates that architecture can thrive with limited resources.

VYJADRENIE POROTY

Tradičná hontianska stodola sa vďaka iniciatíve vlastníka, skupiny architektov a remeselnej práci študentov premenila na miesto stíšenia a umeleckej tvorby. Poetickú intervenciu pritom tvorí len krehké plató utkané z miestneho tŕstia priamo v jej krove.

JURY STATEMENT

Thanks to the initiative of the owner, a group of architects and the craftsmanship of the students, the traditional Hontian barn has been transformed into a place of peace and artistic creation. The only poetic intervention is a fragile plateau woven from local reeds directly under the roofstructure.

NOMINÁCIA V KATEGÓRII FENOMÉNY ARCHITEKTÚRY

NOMINATION IN THE CATEGORY FENOMENA OF ARCHITECTURE

Foto / Photo: Tomáš Ružiak
Foto / Photo: Tomáš Ružiak

Bratislava

Architektúra / Architecture: Martin Šichman, Matej Kurajda

Iné / Others: Ján Brunovský (iniciátor projektu), Matej Mazák (iniciátor projektu), Peter Jančár (realizátor, Woodmaster), Matúš Neusch (statik), Branislav Jurčák (stavebné a dokončovacie práce), Michal Mikuš (vizuálna identita, logo), Dionýz Troskó (oceľ)

Dunaj v Bratislave stále nepôsobí ako rieka, ktorú by si obyvatelia osvojili. Nefunguje ako mestotvorný prvok, naďalej viac rozdeľuje, ako spája. Nábrežia sú síce využívané na korzovanie a ako miesta pre (plávajúce) komerčné prevádzky. No skutočné používanie rieky chýba. Z vnímania tohto stavu vychádzali autori Komunitnej sauny Bobor. Objekt je umiestnený na lodi Pink Whale, ktorá svojou funkciou hudobného klubu už priniesla neformálny spôsob života na rieke. Na zadnú kormu lode pribudlo verejné saunovanie s možnosťou prírodného ochladenia. Keďže v tejto časti plavidla nebolo dosť miesta, bunka samotnej sauny sa vznáša za loďou.

Vytvára sa tak pocit ešte užšieho prepojenia s riekou. Na korme sú umiestnené priestory pre šatňu, ochladenie a prístupová rampa s pokladničným okienkom. Dizajn objektu je postavený na drevenom obklade, pričom sa tu interpretuje proces saunovania (očista za použitia ohňa a tepla).

Povrch dreva je kontrolovane opálený, čím je vytvorená odolná vrstva s uhlíkovým vzhľadom.

The Danube in Bratislava still does not feel like a river that the inhabitants view as their own. It does not serve as a city-forming element; it continues to divide rather than unite. The waterfronts are used for strolls and as locations for (floating) establishments. However, the river itself is not really used. This perception of the situation inspired the authors of the Community Sauna Bobor. The structure is located on the Pink Whale boat, which has already brought an informal way of life to the river through its function as a music club. A public sauna has been added to the stern of the ship with a natural way to cool off. As there was not enough space in this part of the vessel, the sauna floats behind the boat. This creates an even closer feeling of connection to the river. At the stern, there are changing rooms, a cooling-off area, and an access ramp with a cashier window. The structure’s design is based on wooden cladding and interprets the sauna ritual (purification through fire and heat). The wooden surface has been carefully charred to create a durable layer with a carbon-like appearance.

VYJADRENIE POROTY

Pink Whale, loď permanentne ukotvená na brehu Dunaja v centre mesta, je už zavedeným hudobným klubom a miestom stretnutí lokálnej komunity. Sauna, ktorú skonštruovali na jej zadnej palube však prináša ďalší rozmer v podobe aktivácie rekreačného využívania rieky.

JURY STATEMENT

The Pink Whale, a boat permanently moored on the banks of the Danube in the city centre, is an established music club and meeting place for the local community. However, the sauna constructed on its back deck adds another important dimension in the form of activating the recreational use of the river.

NOMINÁCIA V KATEGÓRII FENOMÉNY ARCHITEKTÚRY

NOMINATION IN THE CATEGORY FENOMENA OF ARCHITECTURE

Foto / Photo: Katarína Janičková
Foto / Photo: Katarína Janičková

UMELECKÁ

Poriadie

Ateliér / Atelier: architekti SPDe

ARTIST RESIDENCY IN PORIADIE

Architektúra / Architecture: Štefan Lichvár, Mária Lichvárová, Michal Petráš, Alexander Schleicher, Petra Schleicher, Ernest Vajčovec, Viktor Bruthans, Miloš Kopták

Iné / Others: Lukáš Kramarčík (statika)

Zachrániť chátrajúci vidiecky objekt znamená zachovať stopu konkrétneho typu staviteľského know-how. Výsledkom nemusí byť skanzen či súkromné využitie na rekreáciu. Môže ísť o sofistikovanejšiu funkciu. To je prípad Umeleckej rezidencie Poriadie. Základom projektu je revitalizácia kopaničiarskej usadlosti na Myjave. Objekt z prelomu 19. a 20. storočia, ktorý bol v havarijnom stave, získava ďalšiu kapitolu života, a to novým funkčným využitím ako priestor pre umelecké rezidencie. Obnova stavby dbá na zachovanie pôvodného ducha miesta, orientuje sa na použitú materialitu, výzor a hmotnú podstatu. Do objektu bývalého gazdovského dvora citlivo vkladá nové funkcie ateliéru, kuchyne či hygieny. Idea umeleckých pobytov nespočíva len v presune tvorcov do pokoja rurálneho prostredia. Aj samotná stavba, s jej kvalitami i nedokonalosťami, má slúžiť ako inšpirácia pre tvorbu. Rezidenčný gazdovský dvor sa neuzatvára pred svetom, chce byť miestom stretnutí a tiež kontaktu s dedinou a jej obyvateľmi.

Saving a dilapidated rural building means preserving the traces of a particular type of building know-how. The result does not have to be an open-air museum or private recreational space. It can also be something more sophisticated. This is the case with the Artist Residency in Poriadie. The project centres on revitalising a rural homestead in Myjava. Dating from the turn of the 19th to 20th centuries, the building was previously in a state of disrepair, but now embarks on a new chapter, with a new functional use as a space for artist residencies. The restoration process has taken great care to preserve the original spirit of the place, focusing on materials, appearance, and physical essence. The former homestead has been thoughtfully adapted to accommodate new functions, including a studio, kitchen, and hygiene facilities. The purpose of the artist residencies extends beyond simply moving creators to the tranquillity of the countryside. The building itself, with all its qualities and imperfections, is intended to inspire their work. The residential homestead is not closed off from the outside world; it aims to be a place for gatherings and interaction with the village and its residents.

VYJADRENIE POROTY

Stará usadlosť na Myjavských kopaniciach dostala vďaka ambicióznemu programu v podobe umeleckej rezidencie a precíznej obnove šancu na druhý život. Je ukážkovým príkladom narábania s vidieckou historickou architektúrou bez nepatričnej nostalgie, ale s hlbokým rešpektom k pôvodným hodnotám.

JURY STATEMENT

Thanks to its ambitious programme in the form of an art residency and careful restoration, the old estate in the Myjava Hills has been given a chance for a second life. It is a prime example of handling rural historical architecture without undue nostalgia but with a deep respect for the original values.

NOMINÁCIA V KATEGÓRII FENOMÉNY ARCHITEKTÚRY

NOMINATION IN THE CATEGORY FENOMENA OF ARCHITECTURE

Foto / Photo: Matej Hakár
Foto / Photo: Matej Hakár

KONOMI

Bratislava

Ateliér / Atelier: M ぢ PA

Architektúra / Architecture: Patrícia Botková, Marián Stanislav

Iné / Others: Patrícia Štefaničková (spolupráca), Edina Koligyerová (spolupráca), Simona Tóthová (spolupráca)

Pri tvorbe priestoru ázijskej prevádzky hrozí, že sa vytiahnu všetky klišé. Nejde o autentickosť, ale o prvoplánovú rozoznateľnosť. Tvorcovia interiéru čajovne a obchodu Konomi Tea House do seba s vášňou nasali pravú japonskú kultúru. Ňou inšpirovaní sa ju pokúsili vo vlastnom výraze preniesť do čajového domu pod Bratislavským hradom. Základom bolo vyčistenie priestoru a nastavenie jeho striedmej logiky. Ústredným prvkom je v medi vyhotovený pult pre čajového majstra, s polkruhovým výkrojom pre jeho prácu. Od zázemia prevádzky ho delí čiastočne priehľadná stena, ktorá evokuje ázijské interiéry. Po podlahe z malých dlaždíc, ktoré odkazujú na klasické dláždenie japonských ulíc, sa dostávame do priestoru pre hostí. Čaká tu autorský mobiliár, taktiež vyhotovený podľa tradičného remesla. Keďže nejde len o miesto konzumácie čaju, ale aj o predajňu, steny lemujú decentné police s ponukou. Všetky technológie sú skryté, pôvodnú výšku stropu a betónový povrch prezrádzajú dva okrúhle stropné svetlíky.

When designing an Asian establishment, there’s a risk of resorting to all the clichés. The focus is not on authenticity, but on superficial recognisability. The architects of the Konomi Tea House and Shop interior have embraced true Japanese culture with passion. They found inspiration in it and tried to recreate it in the tea house under the Bratislava Castle in their own interpretation. The key was to declutter the space and establish a modest logic. The central element is a copper counter for the tea master with a semicircular cut-out for his work. This is separated from the back of the establishment by a semi-transparent wall reminiscent of Asian interiors. After walking through a floor of small tiles echoing to the traditional paving found on Japanese streets, we reach the guest area. Here, we find original furnishings that were also made using traditional craftsmanship. As it is not just a place to drink tea, but also a shop, the walls are lined with unobtrusive shelves displaying products. All technology is hidden, and the original ceiling height and concrete surface are revealed by two round skylights.

VYJADRENIE POROTY

Interiér čajovne je poetickou interpretáciou japonskej tradície. Vyhýba sa však všetkým klišé, ktoré by návštevník od takej prevádzky očakával. Použité materiály aj riešenie detailov pritom jednoznačne odkazujú na vzdialený ázijský predobraz.

JURY STATEMENT

The interior of the teahouse is a poetic interpretation of Japanese tradition. t avoids all the clichés that a visitor would expect from such an establishment, but the materials used and the design of the details clearly echo a distant Asian model.

NOMINÁCIA V KATEGÓRII INTERIÉR

NOMINATION IN THE CATEGORY INTERIOR

Foto / Photo: Matej Hakár
Foto / Photo: Matej Hakár

Bratislava

Ateliér / Atelier: Kilo / Honč

Architektúra / Architecture: Richard Kilo, Matej Honč, Ľubomíra Blašková

Iné / Others: Nehera (koncepčný vklad), Jandl agency (koncepčný vklad)

Pri tvorbe interiéru komerčného priestoru neradno exhibovať, pretože pozornosť nesmie unikať. Musí ostať zameraná na obsah. Architektom vlajkového obchodu značky odevov Nehera to bolo zrejmé. Napriek tomu sa výrazný autorský grif nachádza už pri vchode. Vstup do prevádzky totiž znižuje akoby zhora zosunutá opona, ktorá opticky zmenšuje priechod a vhľad. Vzniká tak pocit intímna, istej exkluzivity, ale hlavne sa tak vzbudzuje záujem. Čo sa deje za oponou? Po tomto rafinovanom vstupe (navyše z unifikovaného priestoru nákupného centra) už interiérový dizajn slúži výlučne podpore produktu. A to súznením s jeho kvalitami a hodnotami. Už jemný koberec interiéru, ktorý láka vyzuť sa, navodzuje dojem, že tu pôjde o haptickosť, o dotyk. Medzi zavesenými kúskami sa bežne pohybujú návštevníci, no priestor sa môže jednoducho zmeniť aj na predvádzacie mólo. Atmosféru interiéru dolaďuje hudba a veľké projekcie na stenách, ktoré tiež komunikujú hlavné prvky étosu značky: jemnosť, prirodzenosť a udržateľnosť.

When designing the interior of a commercial space, it is unwise to indulge in exhibitionism. It may divert attention, which must remain focused on the content. The architects of the Nehera clothing brand’s flagship store understood this. Yet, a distinctive authorial touch is evident already at the entrance. The entrance to the shop is lowered by a hanging curtain, which makes the passage and the view appear smaller. This creates a feeling of intimacy and certain exclusivity, but most importantly, it arouses interest. What is going on behind the curtain? After this refined entrance (from the unified space of the shopping centre), the interior design is there solely to support the product. And it does so by being in tune with its qualities and values. Already the soft carpet, which makes you want to take off your shoes, gives the impression that this is all about touch. Visitors usually move between the hanging pieces, but the space can easily be transformed into a catwalk. Music and large projections on the walls enhance the atmosphere of the interior and communicate the main elements of the brand ethos: softness, naturalness, and sustainability.

VYJADRENIE POROTY

Napoly spustený záves predajného priestoru v jadre nákupného centra dáva najavo, že za ním pôjde o niečo mimoriadne. A je to presne tak. Tradičná odevná značka Nehera sa za oponou prezentuje minimalistickým interiérom, ktorému dominuje filmová projekcia zobrazujúca čisté línie jej aktuálnej kolekcie aj najkrajšie kúty Slovenska.

JURY STATEMENT

The half-lowered curtain of the sales area in the midst of a shopping centre makes it clear that something extraordinary is going on behind it. And it is exactly that. Behind the curtain, traditional clothing brand Nehera presents itself with a minimalist interior dominated by a film projection showing both the clean lines of its current collection and the most beautiful parts of Slovakia.

NOMINÁCIA V KATEGÓRII INTERIÉR

NOMINATION IN THE CATEGORY INTERIOR

Foto / Photo: Matej Hakár
Foto / Photo: Matej Hakár

Bratislava

Ateliér / Atelier: Hubinský ateliér

Architektúra / Architecture: Juraj Hubinský, Kornélia Lincéniová

Iné / Others: Magdaléna Scheryová (grafický design)

Na okraji bratislavskej obytnej štvrte 500 bytov už dlhšie vzniká živá kaviarenská a barová scéna. Deje sa tak v kontraste k neďalekému veľkému nákupnému centru. Nablýskaná budova centra nutne ovplyvňuje vizáž podnikov v nej. Prevádzky v parteroch bytových domov oproti sa prirodzene hlásia k priestorovej a materiálovej atmosfére pôvodnej zástavby. Z obnažených železobetónových stĺpov, odhalených murovaných stien a stropov s betónovými prefabrikátmi sa stala estetika. Aj v interiéri remeselnej pekárne Buny sú hlavnými princípmi odkrývanie vrstiev, všeobecná otvorenosť a transparentnosť. Ide jednak o prihlásenie sa k už dlhšie rozšírenej urbánnej vizáži, v ktorej surový povrch komunikuje úprimnosť. Hovorí: my sa tu na nič nehráme. V prípade gastra ide zároveň o podporenie étosu autentickosti a rukodielnosti. Z interiéru pekárne sa zároveň stáva miesto stretnutí a zážitkový priestor. Veľké presklenia (s možnosťami sedenia na oboch stranách) otvárajú prevádzku do ulice, kde pokračuje jej život.

For some time now, a lively café and bar scene has been emerging on the edge of the 500 bytov neighbourhood in Bratislava. This is in contrast to the nearby large shopping centre. The appearance of the businesses within the shopping centre is inevitably affected by the flashy building. The establishments in the parterres of the residential buildings opposite naturally reflect the atmosphere of the original development in terms of space and materials. Exposed reinforced concrete columns, exposed masonry walls and precast concrete ceilings have been transformed into a distinctive aesthetic. The interior of the Buny artisan bakery also adheres to the principles of revealed layers, general openness, and transparency. On the one hand, this recognises the now widespread urban appearance, where the raw surface communicates sincerity. It says: ‘We are not pretending anything here.’ On the other hand, as this is a food business, it is also about promoting an ethos of being authentic and handcrafted. The bakery’s interior also serves as a meeting place and a space for experiences. The large windows with seating on either side open the establishment towards the street, where its life continues.

VYJADRENIE POROTY

Remeselná pekáreň s kaviarňou láka okoloidúcich nielen svojimi produktmi, ale aj interiérom, ktorému dominuje obnažená konštrukčná podstata domu doplnená prvkami z ušľachtilej ocele a dreva. Pridanou hodnotou riešenia sú do ulice smerujúce veľké výklady oživujúce uličný parter.

JURY STATEMENT

The craft bakery and café attracts visitors not only with its products, but also with its interior, which is dominated by the bare structural essence of the house, complemented by elements made of stainless steel and wood. The added value of the design lies in the large shopfronts facing the street, bringing life to the street parterre.

NOMINÁCIA V KATEGÓRII INTERIÉR

NOMINATION IN THE CATEGORY INTERIOR

Foto / Photo: Matej Hakár
Foto / Photo: Matej Hakár

INTERIÉR KRAJSKEJ

P. O. HVIEZDOSLAVA V PREŠOVE

Prešov

Ateliér / Atelier: DOXA & bistan architekti

INTERIOR OF THE P. O.

HVIEZDOSLAV REGIONAL LIBRARY IN PREŠOV

Architektúra / Architecture: Matúš Bišťan, Maroš Mitro, Ondrej Jurčo, Tomáš Boroš, Jakub Števanka, Pavel Bakajsa

Iné / Others: Ivan Tatala (statika), Tomáš Eisner (grafický dizajn), Iveta Hurná (zadávateľka a koordinátorka projektu), Vincent Ung (spolupráca na súťažnom návrhu), Martina Hončárová (spolupráca na súťažnom návrhu), Ján Hlodák (spolupráca na súťažnom návrhu)

Knižnice dnes nemajú byť len skladiskami kníh, ale živými priestormi, do ktorých sa nechodí len za tlačeným slovom. Tento princíp sa premietol do interiérového riešenia krajskej knižnice v Prešove. Základom iniciatívy vedenia knižnice bolo spojenie troch roztrúsených budov do jedného centrálneho bodu. Ako vhodný objekt boli vytipované tri meštianske domy, ktoré dnes splývajú do budovy novej knižnice. Architekti využili impozantnú výšku prízemných priestorov a navrhli do nich dvojposchodové regály. Problém so statikou súvisiaci s hmotnosťou kníh je vyriešený šalamúnsky. Vzdušne pôsobiace vysoké regály sú totiž zavesené na vložených oceľových nosníkoch. Fakt, že knihy visia, umožňuje, aby závesné konštrukcie pôsobili subtílne a vytvárali dojem ľahkosti. Vertikálnym rozmiestnením kníh sa vytvára priestor pre akcie. Na vyšších poschodiach sa výška regálov znižuje a ich počet zvyšuje. Súvisí to s odlíšením žánrového zamerania, a aj s tým, že deti na treťom poschodí musia na svoje knižky dosiahnuť.

VYJADRENIE POROTY

Krajská knižnica prenesie návštevníka do sveta literatúry nielen metaforicky, ale aj fyzicky, pričom zároveň plní dôležitý verejný záujem – vzdelávanie miestnej populácie. Architekti doplnili veľkorysý priestor vo vnútri historických meštianskych budov sústavou ľahkých oceľových políc, ktoré tvoria zdanlivo krehký rámec svojej náplni, knihám.

The libraries of today should be more than just warehouses for books. They should be living spaces that you visit for more than just the printed word. This principle is reflected in the interior design of the regional library in Prešov. The library management’s initiative was based on combining three scattered buildings into one central location. Three town houses, which have now been incorporated into the new library building, were chosen as the ideal location. The architects took advantage of the impressive height of the ground-floor spaces by designing two-storey shelving. The static problem of the weight of the books was solved in a rather clever way. The airy, high shelves are suspended from embedded steel beams. The suspension of the books allows the hanging structures to be subtle and creates an impression of lightness. Arranging the books vertically created a space for events. On the upper floors, the height of the shelves was reduced and their number increased. This has to do with differentiating genres, and also with the fact that the children on the third floor need to be able to reach their books.

JURY STATEMENT

The regional library takes the visitor into the world of literature not only metaphorically but also physically, while fulfilling an important public interest - the education of the local population. The architects have completed the generous space inside the historic townhouse buildings with a set of lightweight steel shelves that form a seemingly fragile framework for their purpose, the books.

NOMINÁCIA V KATEGÓRII INTERIÉR

NOMINATION IN THE CATEGORY INTERIOR

Foto / Photo: Alex Shoots Buildings
Foto / Photo: Alex Shoots Buildings

SKATEPARK JANKA KRÁĽA

POD MOSTOM SNP

Bratislava

Ateliér / Atelier: U/U Studio

SKATEPARK JANKA KRÁĽA

UNDER THE SNP BRIDGE

Architektúra / Architecture: Jiří Kotal, Martin Hrouda, Lukáš Kalivoda, Jan Maleček, Andrea Nováková, Nikola Žuchová, Jakub Strejc Iné / Others: Bonidee MNG s.r.o. (generálny dodávateľ stavby), Eisen s.r.o (zámočnícke prvky), Technické siete Bratislava, a. s. (osvetlenie), Jakub Karlík (grafika, návrh a realizácia)

K mestu patria urbánne športy, podieľajú sa na jeho kolorite. Slovensko však ku kolieskovým komunitám doteraz nepristupovalo vľúdne. K zmene nastavenia prispieva aj skatepark pod Mostom SNP v Bratislave. Veľkým prínosom je už to, že sa dlhodobo nevyužívané miesto (ne-miesto) mení na živý priestor. Koncept skateparku reaguje na objekt mosta. Tento jednak vytvára prístrešie celého areálu. Funkčné členenie športovej zóny zároveň využíva nosné piliere. Priestor je tak rozdelený na jazdnú plochu s prekážkami a rampou a územie pre kondičné cvičenie. Umiestnenie skateparku do centra a nie na perifériu prispieva k atmosfére verejného života. Skoky na doskách a kolobežkách totiž nie sú len možnosťou vyžitia mladých, ale aj atrakciou pre okoloidúcich. Priestor pre urbánne športy je tak príspevkom k téme ústretového mesta voči deťom a mladistvým. Skatepark je zároveň napojený na Sad Janka Kráľa. Svojou polohou na okraji parku sa stáva jeho vstupnou bránou. Je ďalším krokom k rôznorodosti života v ňom.

Urban sports belong in the city; they contribute to its atmosphere. However, Slovakia has not been kind to communities on wheels. The skate park under the SNP Bridge in Bratislava is helping to change attitudes. This (non-)place has long been unused and transforming it into a living space is a great benefit in itself. The design of the skate park is a response to the structure of the bridge. The bridge shelters the entire area, and the load-bearing pillars divide the sports zone into different functional areas. The space is divided into an area for riding with obstacles and ramps and a fitness area. The location of the skate park in the centre rather than on the outskirts improves the atmosphere of public life. Skateboarding and scootering is not only a way for young people to enjoy themselves, but it also attracts passers-by. This space for urban sports therefore contributes to the concept of a child- and youth-friendly city. The skate park is also connected to Janko Kráľ Park. Due to its position at the edge of the park, it acts as its gateway. This is another step towards a more diverse life in it.

VYJADRENIE POROTY

Dlhodobo zanedbané miesto pod najznámejším bratislavským mostom sa prostredníctvom intervencie v podobe skateparku premenilo na verejný priestor plný farieb a života. Pridanou hodnotou projektu je fakt, že je určený ťažiskovo pre prehliadaných tínedžerov a tínedžerky, ktorým umožňuje praktizovať ich obľúbený šport priamo v centre mesta.

JURY STATEMENT

A long-neglected place under Bratislava’s most famous bridge has been transformed into a public space full of colour and life through an intervention in the form of a skate park. The added value of the project is that it is designed primarily for overlooked teenagers, allowing them to practice their favourite sport right in the centre of the city.

NOMINÁCIA V KATEGÓRII EXTERIÉR

NOMINATION IN THE CATEGORY EXTERIOR

Foto / Photo: Kubo Križo
Foto / Photo: Kubo Križo

REVITALIZATION OF A RESIDENTIAL COURTYARD AGATKA

Trnava

Krajinná architektúra / Landscape architecture: Ivana Štigová Kučírková, Michal Štiga

Iné / Others: Marian Papp (vodné hospodárstvo)

Revitalizácia sídliskových verejných priestorov kedysi znamenala, že sa vysadila nová tráva a osadili nové hojdačky. Obnova sídliskového dvora Agátka na najväčšom trnavskom sídlisku ukazuje, že dnes ide a musí ísť o oveľa komplexnejšie zásahy. Toto riešenie prináša nielen atrakciu divokej prírody medzi paneláky, no cieli aj na zlepšovanie mikroklímy a podporu biodiverzity. Prostredníctvom jazierka a umelého potoka vnáša do areálu vodný prvok a zároveň rieši zachytávanie dažďovej vody. Dopĺňa ďalšie stromy. Stará sa o to, aby priestor pôsobil pozývajúco a aby ho mohli využívať všetky vekové skupiny. Myslí aj na to, že súčasťou tohto miesta je najväčšia trnavská základná škola. Mení jej pôvodne čisto betónový školský dvor, vytvára možnosti pre vyučovacie hodiny pod holým nebom. Ale predovšetkým prepája areál školy s okolitým sídliskovým parkom. K formálnym pozitívam revitalizácie patrí, že vzišla z architektonickej súťaže a jej koncipovanie prebiehalo v komunikácii s obyvateľmi sídliska.

In the past, revitalising public spaces in housing estates meant planting new grass and installing new swings. The restoration of the Agátka courtyard in Trnava’s largest housing estate shows that it now requires much more complex interventions. This project brings the beauty of the natural world to the area between the residential blocks, and it aims to improve the microclimate and biodiversity too. The area gets a water feature in the form of a pond and an artificial stream, giving it the possibility to collect rainwater. New trees have been planted. The project ensures that the space is inviting and can be used by people of all ages. The fact that the largest primary school in Trnava is located here has also been taken into consideration. The former concrete schoolyard has been transformed, creating opportunities for outdoor classes. But above all, the school grounds are connected to the surrounding estate park. The formal positive aspects of the revitalisation include the fact that it was the result of an architectural competition; and that the design was developed in consultation with the residents of the housing estate.

VYJADRENIE POROTY

Väčšina veľkých panelových sídlisk na Slovensku stále trpí nízkou kvalitou verejného priestoru. Na najväčšom trnavskom sídlisku sa vďaka sérii citlivých intervencií podarilo vytvoriť inkluzívne miesto s aktivitami pre všetky generácie miestnych obyvateľov a pritom posilniť aj biodiverzitu pôvodného prírodného prostredia.

JURY STATEMENT

Most large, prefabricated housing estates in Slovakia still suffer from poor-quality public spaces. Thanks to a series of sensitive interventions in the largest housing estate in Trnava, it has been possible to create an inclusive place with activities for all generations of local inhabitants, while at the same time strengthening the biodiversity of the original natural environment.

NOMINÁCIA V KATEGÓRII EXTERIÉR

NOMINATION IN THE CATEGORY EXTERIOR

Foto / Photo: Lukáš Patrik
Foto / Photo: Matej Cagala
Foto / Photo: Lukáš Patrik

Bratislava, Nové Mesto

Ateliér / Atelier: plusminusarchitects

FOOTBRIDGE BETWEEN THE TREES

Architektúra / Architecture: Maroš Fečík, Filip Kandravý, Tomáš Perďoch

Krajinná architektúra / Landscape architecture: Eugen Guldan

Partizánska lúka je nástupným bodom do rekreačnej oblasti Železná studnička v Bratislave. Napriek tomu, že ide o dlhodobo veľmi navštevované a obľúbené miesto pre rôzne druhy trávenia voľného času, doposiaľ tu, paradoxne, neexistoval bezbariérový prístup návštevníkov z úrovne zastávky hromadnej dopravy a parkoviska k ploche parku. Tento hendikep odstraňuje až Lávka medzi stromami. Jej primárnym účelom je umožniť bezproblémový vstup do oddychového areálu pre ľudí s pohybovou limitáciou či pre rodiny s kočíkmi. Títo doposiaľ museli podstúpiť ďalekú obchádzku. Navrhnutá lávka má formu rampy, ktorá sa vznáša nad terénom, kopíruje vrstevnicu, preklenuje Vydricu a prepája existujúce schodiská. Jej subtílna oceľová konštrukcia je zvolená vzhľadom na minimalizovanie nutnosti opráv, na bezpečnosť, trvácnosť i pre dosiahnutie nenápadného vzhľadu. Krátka prechádzka z úrovne cestnej komunikácie do zelene sa tak stáva pohybom medzi stromami, ktoré nová vložená konštrukcia rešpektuje a podľa plánu sa im vyhýba.

Partizánska lúka is the starting point for the Železná studnička recreational area in Bratislava. Although it has long been a popular place for various leisure activities, there has been no barrier-free access to the park for visitors coming from the public transport stop or the car park. This shortcoming has now been resolved thanks to the Footbridge between the Trees. Its primary purpose is to provide people with impaired mobility or families with strollers with seamless access to the recreation area. Until now, these people have had to take a long detour. The footbridge is designed as a ramp that floats above the terrain, follows the contours, and bridges the Vydrica River, connecting the existing staircases. The subtle steel structure was chosen to minimise the need for repairs, maximise safety and durability, and achieve an unobtrusive appearance. The short walk from road level to the greenery now turns into a stroll among the trees, which the newly built structure respects and avoids.

VYJADRENIE POROTY

Ľahká priehľadná oceľová konštrukcia lávky rieši zásadný problém bezbariérového prístupu k športoviskám a ihriskám najväčšej rekreačnej zóny v Bratislave. Prostredím pritom prechádza nanajvýš nenápadne, bez toho aby narušila pôvodné kamenné schody či existujúcu vegetáciu.

JURY STATEMENT

The lightweight transparent steel construction of the footbridge solves the fundamental problem of barrier-free access to the sports grounds and playgrounds of the largest recreational zone in Bratislava. It passes through the environment in a very discreet way, without disturbing the original stone steps or the existing vegetation.

NOMINÁCIA V KATEGÓRII EXTERIÉR

NOMINATION IN THE CATEGORY EXTERIOR

Foto / Photo: Maroš Fečík
Foto / Photo: Maroš Fečík

KANCELÁRSKA A VÝROBNÁ

BUDOVA MTS H4

Krivá

Ateliér / Atelier: FORM A21

OFFICE AND PRODUCTION

BUILDING MTS H4

Architektúra / Architecture: Ján Jacko, Richard Koseček, Ján Kuva, Ákos Takács Krajinná architektúra / Landscape architecture: Miriam Húšťavová

Iné / Others: Šimon Chmelár (konštrukčné riešenie), Vladimír Kobliška (konštrukčné riešenie),

Andrej Valent (konštrukčné riešenie), Mojmír Vychodil (konštrukčné riešenie),

Peter Somorovský (statika betónových konštrukcií), Miroslav Fašang st. (statika oceľových konštrukcií)

Kto sleduje ocenenie CE ZA AR, ten vie, že v oravskej obci Krivá sa stavia kvalitná architektúra. Pred dvomi rokmi získala nomináciu budova firmy MTS, ktorá sídli na okraji dediny. Ukázalo sa, že kvalitný prístup k architektonickej tvorbe nie je výsadou miest. Dôkazom, že v Krivej v tomto trende pokračujú, je ďalšia budova spoločnosti v jej areáli. Architekti koncepčne aj výrazovo nadviazali na centrálny objekt firmy. Opäť máme dočinenia so zvlneným pôdorysom čelnej stavby (administratíva), ktorá pôdorysne pripomína štvorlístok. Okolo budovy sa vinie krytá exteriérová terasa. Nosníky v tvare písmena V vytvárajú jej vonkajší výraz. V zadnej časti sa k objektu pripája výrobná hala v klasickom pôdoryse. Jej strechu tvoria svetlíky, vytvárajúce z bočného pohľadu profil píly. Zvlneným tvarom kancelárskej časti i použitím dreva ako výrazového prostriedku sa opäť akcentuje poloha areálu v prírodnom prostredí Oravy. Ide o tvorbu kvalitného pracovného prostredia a zároveň o zladený dotyk s prostredím okolo.

Those familiar with the CE ZA AR Prize will know that the Orava village of Krivá is a place where quality architecture is being built. Two years ago, the MTS building, located on the outskirts of the village, was nominated. It became clear that a quality approach to architectural design is not the prerogative of cities. This trend continues in Krivá, as evidenced by another building on the company’s premises. The architects followed the concept and expression of the company’s central building. We encounter again the undulating plan of the front building (offices), which resembles a four-leaf clover. A covered outdoor terrace winds around the building. The V-shaped beams give the building its exterior appearance. At the back, the building connects to a production hall with a traditional floor plan. Its roof comprises skylights that resemble the shape of a saw when viewed from the side. The undulating shape of the office section and the use of wood as an expressive element highlight the location of the premises in the natural environment of Orava. The aim is to create a quality work environment that blends harmoniously with the surroundings.

VYJADRENIE POROTY

Výrobné podniky dnes na vidiek spravidla neprinášajú nič iné, než pracovné miesta. Príklad z Krivej však ukazuje úplne iný prístup. Dlhodobá spolupráca s architektmi umožnila vznik súboru budov, ktoré sú pozoruhodné svojim priestorovým riešením, použitými konštrukciami a materiálmi aj výnimočne citlivým výberom vegetácie v exteriéri.

JURY STATEMENT

Today, manufacturing businesses generally bring nothing but jobs to the countryside. However, the example of Krivá shows a completely different approach. Long-term cooperation with architects has resulted in a set of buildings that are remarkable in their spatial design, the structures and materials used, and the exceptionally sensitive choice of vegetation in the exterior.

NOMINÁCIA V KATEGÓRII

OBČIANSKE A PRIEMYSELNÉ STAVBY

NOMINATION IN THE CATEGORY CIVIL AND INDUSTRIAL BUILDINGS

Foto / Photo: Dominik Sepp
Foto / Photo: Dominik Sepp

DOSTAVBA ZÁKLADNEJ

ŠKOLY - I. ETAPA NOVÝ

PAVILÓN ŠKOLY A II. ETAPA

MULTIFUNKČNÁ HALA

Bernolákovo

Ateliér / Atelier: BAKYTA ARCHITEKTI

EXTENSION OF A PRIMARY

SCHOOL - I. PHASE NEW SCHOOL PAVILION AND II. PHASE MULTIPURPOSE HALL

Architektúra / Architecture: Róbert Bakyta, Ľubomíra Blašková

Iné / Others: Michal Pacher (projekt pre Stavebné povolenie), Tatiana Kuva (architektonická štúdia), Denis Zeman (zámočnícke výrobky, fasády), Karina Humajová (interiérové a materiálové riešenie), Ján Majerník (stavebnotechnické riešenie), Pavol Drha (statika), Július Vass (architektonické riešenie fasády Dostavby ZŠ), Jaroslav Rell (zámočnícke výrobky Dostavby ZŠ) , Matúš Lelovský (grafický dizajn)

Bratislavské prímestské obce sú dlhodobo vystavené prílivu nových obyvateľov, čo sa prejavuje aj v nedostatku zodpovedajúcej infraštruktúry. Jednou z krízových oblastí sú počty miest v základných školách. V Bernolákove sa situáciu rozhodli riešiť za pomoci architektov a architektiek. Pôvodná idea revitalizácie podkrovia existujúcej budovy z 30. rokov bola zavrhnutá. Ako najschodnejšie riešenie sa ukázala nová dostavba. Vzniknutý objekt sa na pôvodnú stavbu napája nielen fyzicky, ale aj výrazovo. Napriek takmer storočnému posunu, staré a nové tu vytvárajú výrazovo harmonický celok. Vzniknutý blok prístavby obsahuje desať tried a tiež jedáleň a zázemie kabinetov. Rozbehnuté zvýšenie kapacít pokračovalo v druhej fáze výstavbou novej multifunkčnej haly. Vzhľadom na okolitú zástavbu rodinných domov je objekt telocvične čiastočne zapustený do terénu. Napriek veľkému objemu príliš nevytŕča. Dbá sa tak aj o zachovanie dostatku zelených plôch na povrchu. Strecha haly navyše taktiež slúži ako športovisko.

VYJADRENIE POROTY

Dynamicky rastúce obce v okolí Bratislavy dlhodobo trpia nedostatkom verejnej infraštruktúry. Dostavba pôvodného areálu základnej školy priniesla nielen kultivované navýšenie pôvodnej kapacity, ale výstavbou športovej haly vytvorila pre obec aj nový verejný priestor.

Bratislava’s suburbs have long experienced an influx of new residents, which has led to a lack of adequate infrastructure. One such issue is the lack of places in primary schools. In Bernolákovo, architects were commissioned to help solve this problem. The original idea of revitalising the attic of the existing 1930s building was discarded. A new extension proved to be the most viable solution. The resulting structure connects to the original building both physically and in its appearance. Even though almost a century went by, the old and the new form a harmonious whole. The new extension contains ten classrooms, a canteen, and office facilities. The ongoing capacity increase continued in the second phase with the construction of a new multifunctional hall. Due to the surrounding family houses, the gym building is partially underground. Despite its large volume, it does not stand out too much. This also ensures that there are sufficient green areas on the surface. In addition, the roof of the hall provides another space for sports activities.

JURY STATEMENT

The dynamically growing municipalities in the vicinity of Bratislava have long been suffering from a lack of public infrastructure. The completion of the original primary school complex not only increased the capacity in a cultivated manner, but also created a new public space for the village with the construction of an attractive sports hall.

NOMINÁCIA V KATEGÓRII

OBČIANSKE A PRIEMYSELNÉ STAVBY

NOMINATION IN THE CATEGORY CIVIL AND INDUSTRIAL BUILDINGS

Foto / Photo: Matej Hakár
Foto / Photo: Matej Hakár

Trenčín

Ateliér / Atelier: Hubinský ateliér

Architektúra / Architecture: Juraj Hubinsky, Alexandra Kotrusová, Peter Kuklica, Martin Smerek

Iné / Others: Roman Rosina (stavebno-technické riešenie)

Obnova existujúcich stavieb je jeden z hlavných imperatívov dnešnej architektonickej tvorby. Ekologická revitalizácia budov by pritom zároveň mala byť posunom k lepšiemu. Príkladom na to môže byť premena trenčianskeho Unidomu, štandardnej kancelárskej budovy z druhej polovice 20. storočia. Východiskom je tu kompletná prestavba. Z pôvodného objektu zotrváva železobetónový skelet, ktorý však ostáva dobrým predpokladom pre nové využitie. Architekti vnášajú do stavby nové dispozičné riešenie, pridávajú piate odstúpené poschodie s veľkorysou terasou a tvoria novú fasádu. Tá sa jednoznačne stáva poznávacím znakom vynoveného objektu. Reliéfna fasáda s výraznými preskleniami, na ktorej je použitý kamenný obklad z vápenca, pritom reaguje na okolitú zástavbu a odkazuje na historické mestské domy. Nový dom tak elegantne, a zároveň tvarovo i výtvarne, zapadá do svojho kontextu. Pred obnovenou budovou vzniká piazzetta so stromami. Pôvodne hluché miesto sa tak dnes stáva príspevkom k verejnému priestoru.

The restoration of existing buildings is one of today’s key architectural imperatives. At the same time, the ecological revitalisation of buildings should result in positive change. One example is the transformation of Unidom in Trenčín, a standard office building from the second half of the 20th century. The starting point here was to rebuild it completely. The original building’s reinforced concrete frame remains, providing a solid foundation for its new purpose. The architects gave the building a new layout, added a fifth recessed storey with a generous terrace and created a new façade, which clearly became the characteristic feature of the renovated building. The relief façade, with its distinctive glazing and limestone cladding, responds to the surrounding buildings while referencing historical town houses. Thus, the new building fits into its context so elegantly, both in shape and design. A piazzetta with trees is created in front of the restored building. What was originally a dead space has become an integral part of the public space.

VYJADRENIE POROTY

Prestavba štandardnej administratívnej budovy z druhej polovice 20. storočia je príkladom udržateľného narábania s existujúcimi stavbami. Výtvarne atraktívne priečelie a citlivé riešenie nástupu do budovy v priestore ulice súčasne ukazuje, ako možno aj jednotlivou investíciou prispieť k obnove centra mesta.

JURY STATEMENT

The conversion of a standard office building from the second half of the 20th century is an example of the sustainable use of existing structures. At the same time, the visually attractive façade and the sensitive design of the entrance to the building in the street space show how a single investment can also contribute to the regeneration of the city centre.

NOMINÁCIA V KATEGÓRII OBČIANSKE A PRIEMYSELNÉ STAVBY

NOMINATION IN THE CATEGORY CIVIL AND INDUSTRIAL BUILDINGS

Foto / Photo: Matej Hakár
Foto / Photo: Matej Hakár

VINÁRSTVO

Strekov

Ateliér / Atelier: What architects.

Architektúra / Architecture: Tomáš Krištek, Ondrej Kurek, Michal Krcho

Podporiť región architektúrou – tak by mohlo znieť motto Vinárstva S vo vinohradníckej oblasti Strekov. S pomocou architektov tak nielen vzniká solídny domicil pre výrobcu vína, ale do krajiny vstupuje ikonický prvok, ktorý funguje ako maják pre návštevníkov. Nie sú na to potrebné žiadne okázalé gestá. Koncept vinárstva sa orientuje na archetypálnu podobu vinárenských objektov, ktoré sa tu nachádzajú. Namiesto jednej masívnej budovy je areál rozložený do viacerých objektov v klasickej mierke. Murované stavby so sedlovými strechami sú združené okolo centrálneho dvora a zároveň funkčne oddelené. Jedno krídlo tvorí showroom, miesto pre gastro, ubytovanie a objekt výroby, druhú hospodárske budovy. Spoločným znakom je biele ladenie stavieb, čo jednak zvýrazňuje areál v krajine a zároveň to zabezpečuje neprehrievanie objektov. Z rovnakého dôvodu absentujú strešné okná, svetlo vpúšťajú otvory na štítoch. Súčasťou výrazu sú klenbové fasádne otvory, ktoré odkazujú na tvaroslovie vínnych pivníc.

Supporting the region through architecture could be the motto of Winery S in the Strekov winegrowing region. The architects’ work here not only created a solid home for the wine producer but also brought an iconic structure to the landscape that acts as a beacon for visitors. No ostentatious gestures are needed for this. The winery’s design follows the archetypal form of the winery objects found here. Rather than one massive building, the project is spread over several buildings of traditional scale. The brick buildings with gabled roofs are grouped around a central courtyard yet remain functionally separate. One wing houses a showroom, a gastronomy space, accommodation, and the production facility, while the other consists of ancillary buildings. A common feature is the white colour of the buildings. This accentuates the winery’s presence in the landscape and prevents the buildings from overheating. For the same reason, there are no roof windows; light is let in through openings in the gables instead. The arched openings in the façade, which reference the morphology of wine cellars, are part of the expression.

VYJADRENIE POROTY

Architekti koncipovali vinárstvo ako štruktúru voľne stojacich objektov, pričom formálne aj rozmermi nadviazali na pôvodné vinohradnícke stavby v okolí. Týmto citlivým spôsobom sa im podarilo vytvoriť jedinečné miesto, ktoré miestnu tradíciu nielen kultivuje, ale násobí aj jej potenciál pre 21. storočie.

JURY STATEMENT

The architects conceived the winery as a structure of freestanding buildings, following the original vineyard buildings in the vicinity in form and dimensions. In this sensitive way, they have succeeded in creating a unique place that not only cultivates the local tradition but also multiplies its potential for the 21st century.

NOMINÁCIA V KATEGÓRII

OBČIANSKE A PRIEMYSELNÉ STAVBY

NOMINATION IN THE CATEGORY CIVIL AND INDUSTRIAL BUILDINGS

Foto / Photo: Matej Hakár
Foto / Photo: Matej Hakár

M ぢGNA ENERGIA

Piešťany

Ateliér / Atelier: ateliér GARAD, Stavikon Piešťany

NEW HEADQUARTERS OF M ぢGNA ENERGIA

Architektúra / Architecture: Lukáš Rypák, Veronika Rypák Vaňo, Karol Volf, Karina Humajová, Jaroslav Konečný

Tvorba priestorov pre sídla firiem nemusí spĺňať len reprezentatívnu funkciu. Môže byť citlivým príspevkom do vizáže mesta a taktiež vľúdnym prostredím pre prácu ľudí, ktorí sú v spoločnosti zamestnaní. Všetky tieto atribúty spĺňa sídlo firmy Magna Energia v Piešťanoch. Lokálpatrioti vo vedení firmy si za sídlo zvolili objekt bývalej výrobne vianočných svetielok. Jej súčasťou bol ešte starší historický prvok – budova mestskej vily z 20. rokov 20. storočia. Mladý tím architektov, ktorý vzišiel z početne zastúpenej súťaže, prepája všetky tieto vrstvy. Revitalizuje stavbu vily, ponecháva industriálny charakter pôvodnej výrobne a dopĺňa novú prístavbu. Do pôdorysu tvaru U rozmiestňuje prevádzku spoločnosti a vytvára tak tiež malé nádvorie, prístupné verejnosti. Interiér je členený na viacero menších priestorov a zákutí, naplnených súčasným umením. To podčiarkuje rodinný charakter spoločnosti, istú neformálnosť a tiež všeobecný záujem o priestorovú kultúru. Bonusom sú pobytové terasy s výhľadom na mesto.

Designing company headquarters does not have to fulfil only a representative function. It can also make a sensitive contribution to the appearance of the city and provide a welcoming working environment for employees. Magna Energia’s headquarters in Piešťany meet all these attributes. Local patriots in the company’s management chose the former Christmas lights factory as their headquarters. This included an even older historical structure – a town villa dating back to the 1920s. A young team of architects, which emerged from a competition with numerous teams, connected all these layers. They have revitalised the villa building, retained the industrial character of the original factory and added a new extension. They placed the company’s operations within a U-shaped layout and also created a small courtyard, which is open to the public. The interior is divided into several smaller spaces and nooks filled with contemporary art. This highlights the family nature of the company, its informality, and its general interest in spatial culture. An added bonus is the terraces overlooking the city.

VYJADRENIE POROTY

Konverzia areálu bývalej výrobne vianočného osvetlenia je ukážkou citlivého narábania s duchom miesta. Architektonickému tímu sa podarilo oživiť spomienku na významnú súčasť piešťanskej identity a zároveň vytvoriť príjemné pracovné prostredie pre potreby investora.

JURY STATEMENT

This conversion of the former Christmas lights factory is a prime example of working sensitively with the spirit of a place. The team of architects has revived the memory of an important part of Piešťany's identity while creating a pleasant working environment tailored to the investor's needs.

NOMINÁCIA V KATEGÓRII

OBČIANSKE A PRIEMYSELNÉ STAVBY

NOMINATION IN THE CATEGORY CIVIL AND INDUSTRIAL BUILDINGS

Foto / Photo: Alex Shoots
Foto / Photo: Alex Shoots

Zastávka MHD Lipského

Public transport stop Lipského

Bratislava, 2025

AT: Architekti Šebo Lichý, Collarch

AA: Aleš Hradecký, Ondřej Janků, Veronika Kommová, Igor Lichý, Tomáš Šebo, Shota Tsikoliya, Imrich Vaško

I: Tomáš Michálek (stavebný inžinier), Daniel Pacalaj (architekt), Richard Weiss (architekt)

F: Tomáš Manina

Apartmánový dom Lebenski

Apartment building Lebenski

Vysoké Tatry, 2024

AT: Atrium Architekti

F: Matej Hakár

Na kopci

On the Hill

Šenkvice, 2024

AT: Konečná - Frič

AA: Jana Konečná

I: Martin Frič (koordinačná, konštrukčná a výtvarná spolupráca), Maroš Baťo (interiérová spolupráca), Róbert Švarc (výtvarná spolupráca), Marek Cagáň, Drevostavby Durač

F: Martin Frič

RDO

RDO

Záhorská Bystrica, 2024

AT: ČECHVALA ARCHITECTS

AA: Tomáš Čechvala, Filip Galko, Monika Homolová

I: Stanislav Komár (stavebný inžinier)

F: Alex Shoots Buildings

Pokus o oživenie bratislavského podhradia

An attempt to revive Bratislava´s castle district

Bratislava, 2024

AT: ATELIER-S

AA: Sven Szokolay, Miroslav Tomík, Hana Wildová

F: Matej Hakár

Delta Office

Bratislava, 2024

AT: Delta Pods Architects

AA: Michaela Pivoňková, Lenka Némethová, Katarína

Siváková

F: Lenka Némethová

Metropol - coliving

Metropol - coliving

Bratislava, 2024

AT: BEEF ARCHITEKTI

AA: Rado Buzinkay, Andrej Ferenčík, Peter Baroš, Marika Izakovičová

F: Lenka Némethová

Strešný byt Rooftop apartment

Bratislava, 2024

AT: What architects.

AA: Tomáš Krištek, Ondrej Kurek, Mária Šebová, Mária

Vaňurová

F: Matej Hakár

Materská škola Tramín Kindergarden Tramín

Bratislava, 2024

AT: PANTOGRAPH

AA: Peter Kožuško, Tomáš Auxt, Miroslav Hrušovský, Linda Hrušovská, Peter Hudač, Zsolt Nagy, Paulína Juráková, Peter Greguška, Lukáš Zachar, Adela Tichá, Aleš Berec, Mária Jergová, Veronika Rusnáková

F: Rastislav Blaško

Dom hudby a Základná umelecká škola Miloša Ruppeldta

House of Music and Miloš Ruppeldt Elementary School of Arts

Bratislava, 2024

AA: Matúš Ivanič

I: Lukáš Rypák (splupráca na interiéri), Peter Zaťko (priestorová akustika), Vladimír Višváder (reštaurátorská obnova), Tomáš Duba (statika)

F: Alexandra Timpau

SDM Domino - Zázemie futbalového klubu

SDM Domino - Football Club Facilities

Bratislava, 2024

AT: LANG BENEDEK ASSOCIATED ARCHITECTS

AA: Borislav Benedek, Michal Lang, Sláva Mráziková

F: WELINNA

Polyfunkčný objekt Liget

Liget – Mixed-use Building

Bratislava, 2024

AT: DZ architekti, Ing. Michal Bajan

AA: Michal Bajan

F: DZ architekti

Šport aréna Malacky

Sports Arena Malacky

Malacky, 2025

AT: CITYPROJEKT s.r.o.

AA: Pavol Citovický, Stanislav Cesnak

I: Marián Halvoň (statika), Pavol Drha (statika)

F: Tomáš Manina

Showroom "Ulita"

Showroom "Shell"

Sielnica, 2023

AA: Martin Boleš

KA: Denisa Halajová

I: Tomáš Labanc (spolupráca), Martin Kocúr (statika), Aleš Berec (projekcia)

F: Eva Benková

Lekáreň PURA

PURA pharmacy

Bratislava, 2024

AT: Krobot Hudač

AA: Peter Hudač, Jaromír Krobot

I: Zuzana Lipráková (grafický dizajn)

F: Peter Jurkovič

Obnova parku Na Sihoti v Nitre

Restoration of the park Na Sihoti in Nitra

Nitra, 2024

AT: Ateliér Krejčiříkovi

KA: Přemysl Krejčiřík, Kamila Krejčiříková, Daniela Plandorová, Martina Štěrbová, Daniel Lasák, Aneta Dalajková, Aneta Hopová, Jiří Dohnal, Martina Šípošová

I: Libor Loveček (fontanier)

F: Přemysl Krejčiřík

Kancelárie 2_BA_NM

2_BA_NM offices

Bratislava, 2024

AT: linear

AA: Juraj Mihálik, Michal Hanko

I: Branislav Piliš, Sandra Dolejš

F: Marek Mucha

Hotel Elements - hotelovo-apartmánový komplex

Hotel Elements

Tatranská Lomnica, 2024

AT: Grido architekti, s.r.o.

AA: Peter Sticzay, Martin Šimek, Sebastian Sticzay, Lukáš Drotár, Ladislav Vendel

I: Jozef Jágrik (zástupca investora/spoluautor)

F: alexshootsbuildings

Rekonštrukcia kaštieľa v Čunove

Reconstruction of the Čunovo Manor House

Bratislava, 2024

AT: Ateliér VAN JARINA

AA: Ivan Jarina, Martin Kubovský, Štefan Šuster

KA: Tamara Reháčková

F: Anna Maria Jarina

Dom nad Hradom

House Above The Castle

Bratislava, 2024

AT: Pokorny architekti

AA: Pavol Pokorný, Veronika Michalíková, Bjorn Kierulf, Marián Prejsa

I: Martin Hreščák (interiér), Martina Hreščáková (interiér), Vladimír Butek (statika)

F: Matej Hakár

RE-BYT

RE-FLAT

Košice, 2023

AT: Zoran Trpčevski

F: Tomáš Lazorik

Nový Hlohovec

Nový Hlohovec

Hlohovec, 2023

AA: Michal Tatranský, Monika Jendrálová

I: Pavol Maciak (spolunávrh dispozícií)

F: Matej Jendrál

CITYHUB Landererova

CITYHUB Landererova

Bratislava, 2024

AT: INDEX, spol. s.r.o.

AA: Michal Oborný

I: Ladislav Tausinger (statik)

F: Martin Šteiner

Štvorizbový byt na brehu Dunaja

Four-room apartment on the banks of the Danube

Bratislava, 2024

AT: .archstyl

AA: Zoltán Horváth, Juraj Krč, Daniela Selická , Zuzana Horniaková

F: Marián Svítek

Rodinný dom Líščie údolie

Family house Líščie údolie (Fox valley)

Bratislava, 2024

AT: a3um atelier

AA: Ladislav Jurík, Henrich Korec

F: Tomáš Manina

POSH BEAUTY

POSH BEAUTY

Trenčín, 2024

AT: Hubinský ateliér

AA: Juraj Hubinský, Kornélia Lincéniová

I: Tomáš Pevný (stavebno-technický dozor)

F: Matej Hakár

WILSONOVA

WILSONOVA

Bratislava, 2024

AT: diagram studio

AA: Kristína Tomanová, Tatiana Kuva

F: Adam Šakový

Reštaurácia Narbon

Narbon Restaurant

Bratislava, 2024

AT: CAKOV&PARTNERS

AA: Kalin Cakov, Ján Obušek, Martina Šajgalíková, Michaela Lazorová, Dominika Chovancová, Ondrej Németh, Adam Benčo

F: Tomáš Manina

Ateliér Architekti.sk

Studio Architekti.sk

Bratislava, 2024

AT: Architekti.sk

F: Martin Rezník

Sídlo Úradu na ochranu oznamovateľov

Whistleblower Protection Office

Bratislava, 2025

AT: MAPA

AA: Patrícia Botková, Marián Stanislav

I: Tomáš Vrtek (spolupráca na stavebnej časti realizačnej dokumentácie), Simona Tóthová (spolupráca na štúdii)

F: Matej Hakár

Apartment Z

Bratislava, 2025

AT: GRAU

AA: Andrej Olah, Filip Marčák, Matej Kurajda, Jana Filípková

F: Matej Hakár

Ružový mlyn Pink Mill

Piešťany, 2023

AT: Kilo / Honč

AA: Richard Kilo, Matej Honč

F: Matej Hakár

Hlavné námestie, Nové Zámky

Main Square, Nové Zámky

Nové Zámky, 2024

AT: Gabriel Kuczman & Attila Tóth & Janka Melišková; Ladislav Vikartovský a kolektív (FKF Design)

AA: Ladislav Vikartovský

KA: Attila Tóth, Gabriel Kuczman, Janka Melišková

I: Sylvia Csandalová (autorizovaná stavebná inžinierka), Michal Šarafín (ideový a koncepčný vklad), Silvia Ficza (stavebná inžinierka), Csaba Baji (statika), Ladislav Fišer (zdravotechnika), Pavol Jakab (elektrotechnika), Ján Beseda (fontána)

F: Attila Tóth

Konverzia stodoly na rekreačný domček

Barn Conversion into Holiday Home

Liptovské Revúce, 2024

AA: Eliška Turanská

I: Crmomani (ručne kresané drevené časti konštrukcie), Horíme.sk (murovaná pec so sporákom), Bapo Detva (presklenia), Eurokameň (výrobky a obklady zo spišského travertínu), Beskydský šindel (šindľová strecha), Historická dlažba (ručne vyrábaná betónová dlažba), Miroslav Korček (investor)

F: Eliška Turanská

Prístavná 1

Prístavná 1

Bratislava, 2024

AT: AVK ARCHITECTS; ATELIER DUMA – LIVING GARDENS

F: Matej Hakár

Nadstavba SPŠ. Jozefa Murgaša - obnova obvodového plášťa

Superstructure of SPŠ. Jozef Murgaš - Renovation of the Outer Shell

Banská Bystrica, 2023

AT: Teplan architekt, spol.s.r.o

AA: Igor Teplan, Eva Teplanová

I: Pavol Hubinsky (statika)

F: Igor Teplan

T67

T67

Bratislava, 2024

AT: AT26 ARCHITECTS

AA: Branislav Loskot, Jaroslav Takáč, Peter Kukučka, Zuzana Vlžáková, Soňa Havlíková, Tomáš Jozefík, Lenka Hlubinová Vargová

F: Matej Zelenay

Autonómna vyhliadková veža - Greenpoint

Autonomous Observation Tower - Greenpoint

Kluknava, 2023

AA: Igor Cziel, Patrícia Humeňanská, I: Marián Dragošek (statika)

F: Karol Cziel

Revitalizácia Počúvadlianskeho mlyna

Revitalization of the Počúvadliansky Mill

GPS 48.357, 18.855, 2024

AT: Ateliér HAUS

AA: Tomáš Ružiak, Eva Šestina, Miroslav Šestina, Matúš Šestina, Matthias M. J. Arnould, Katarína Urgelová

I: Jakub Lysý (grafický dizajn), Ester Lysá (grafický dizajn)

F: Miroslav Šestina

Mimóza

Mimóza

Bratislava, 2024

AT: GRAU

AA: Andrej Olah, Filip Marčák, Matej Kurajda, Alexandra Májska

I: Tereza Maco (grafický dizajn), Jozef Sklenka (grafický dizajn)

F: Matej Hakár

OMA

OMA

Bratislava, 2023

AT: Hubinský ateliér

AA: Juraj Hubinský

I: Jakub Dianiška (idea), Patrícia Dianiška (idea)

F: Lenka Némethová

Hostel Izy Bratislava

Hostel Izy Bratislava

Bratislava, 2024

AT: Milan Škorupa

AA: Milan Škorupa

F: Daniel Ondruš

Molo Centre

Molo Centre

Prievidza, 2023

AT: hlinka architekti

AA: Marian Hlinka

F: Vanda Mesiariková

Zamkovského chata

Zamkovskeho Chalet

Tatranská Lomnica, 2024

AT: Grido architekti, s.r.o.

AA: Peter Sticzay, Katarína Kandráčová, Martin Kuncl, Sebastian Sticzay, Michaela Sara Srbecká, Lukáš Drotár

I: Juraj Michalík (projektant)

F: alexshootsbuildings

Apartment Smoko

Bratislava, 2024

AT: Studio Oko

AA: Natália Okáliová, Thomas Ivanov, Mateja Vonkomerová

F: Jakub M. Teringa

Výrobná hala EcoCocon EcoCocon Production Hall

Voderady, 2024

AT: CREATERRA

I: Juraj Očenášek (Zdravotechnika, vykurovanie, vetranie), Vladimír Butek (Statika), Michael Ftorek (Požiarna ochrana), František Adamčák (Príprava stavby)

F: Milan Hutera

Apartment H

Bratislava, 2024

AT: martinskoček

AA: Martin Skoček, , Lucia Miklová, Radoslav Hamara

F: Matej Hakár

Nad priehradou

Above the Lake

Lozorno, 2024

AT: NOIZ architekti

AA: Samuel Zeman, Andrej Šabo

KA: Martin Malachovský

I: Ján Majerník (projekcia), Lucia Inczingerová (spolupráca)

F: Alex Shoots Buildings

Obnova a nadstavba - materská škola Jarovce

Renovation and Extension - Kindergarten Jarovce

Bratislava, 2024

AT: EDITED s.r.o.

AA: Edita Vráblová, Michal Czafík, Branislav Puškár

F: Matej Kováč

Mestský úrad Stará Turá The City Office in Stará Turá

Stará Turá, 2023

AA: Marek Pavlech, David Repiský, Mária Rakúsová

F: Pavel Kudiváni

Obnova môjho Rodného domu Renovation of my Old home

Vráble, 2025

AT: FÁBRI Architekt

AA: Aurel Fábri

F: Aurel Fábri

Majer - polyfunkčný dom Majer - Multifunkcional House

Banská Bytrica, 2023

AT: BMX studio

AA: Katarína Michalková, Martin Bielik, Marian Šovčík

I: Monika Zemanová

F: Tomáš Manina

Adlerka

Adlerka

Bratislava, 2023

AT: AT26 ARCHITECTS

AA: Branislav Loskot, Peter Kukučka, Jaroslav Takáč, Zuzana Vlžáková

F: Zdena Molnárová

Dom v súlade s prírodou House in Accord with Nature

Banská Bystrica, 2024

AT: Tornyos architects

AA: Tomáš Tornyos, Miroslava Tornyosová

I: Erik Nota (ideový vklad investora)

F: Soňa Sadloňová

Dom pri vinohrade

House by the Vineyard

Limbach, 2024

AT: ARCHITEKTI mikulaj & mikulajova

AA: Juraj Mikulaj, Andrea Ambrovičová, Jana Machalová

KA: Ján Augustín

F: Matej Hakár

Lávka ponad Galvaniho ulicu

Footbridge over Galvaniho Street

Bratislava, 2024

AT: Suchánek, architektonická kancelária s.r.o

AA: Michal Suchánek, Pavel Suchánek, Michal Trizma

I: Michal Šefčík (statika), Marián Dallemule (statika)

F: Michal Suchánek

Prestavba chaty pri lese

Conversion of a Cabin by the Forest

Plavecký Štvrtok, 2024

AA: Peter Hudač, Pavlína Kolcunová

F: Ján Kekeli

DOM NH

DOM NH

Nitrianske Hrnčiarovce, 2023

AT: JURAJ TESÁK ARCHITEKTI

AA: Juraj Tesák

I: Karin Humajová (spolupráca), Kristína Valičková (spolupráca), M+M D (inšpirácia (skvelí investori))

F: DYNAMEET STUDIO / Peter Čintalan

Obytný súbor Prúdy

Residential Complex Prúdy

Trnava, 2024

AT: CAKOV&PARTNERS

AA: Kalin Cakov, Metodiy Monev, Ján Obušek, Tomáš Fojtík, Michal Kyselica, Diana Michnová, Mário Chovan, Zuzana Potočná, Adriana Trebuľová, Dominika Chovancová, Ondrej Németh, Adam Benčo, Martina Šajgalíková, Michaela Lazorová, Kristína Bednárová, Katarína Bezecná, Tadeáš Staško

F: Terra Trnavia

Arabeska

Bratislava - Staré Mesto, 2024

AT: BEEF ARCHITEKTI

AA: Rado Buzinkay, Andrej Ferenčík, Zuzana Valenčinová

F: Lenka Némethová

Rekonštrukcia a dostavba povojnovej vily

Reconstruction and Extension of a Post-War Villa

Bratislava - Staré mesto, 2024

AT: playarchitects

AA: Branislav Hantabal, Matúš Gondek

I: Adam Janis (spoluautor), Peter Kokinda (spoluautor)

F: Matúš Gondek

Domov sociálnych služieb Nezábudka

The Social Services Home Nezábudka

Leopoldov, 2023

AT: architekti SPDe

AA: Štefan Lichvár, Mária Lichvárová, Michal Petráš, Alexander Schleicher, Petra Schleicher, SImona Kolimárová, Lea Rollová

KA: Andrea Prievalská

I: Miroslav Lacko (statika), Marcel Benčík (grafický dizajn)

F: Matej Hakár

BACKSTAGE BAR

BACKSTAGE BAR

Bratislava, 2024

AT: NOIZ architekti

AA: Andrej Šabo, Samuel Zeman

I: Lucia Inczingerová (spolupráca), Ctrl Space Studio (svetelný design)

F: Welin Nagyová

Bunker B-S 10

Bunker B-S 10

Bratislava, 2024

AT: toito architekti

AA: Katarína Príkopská, Ivan Príkopsky, Tomáš Szőke, Martin Kleibl

F: Alexandra Timpau

Rodinný dom Skala

Family House "Rock"

Bratislava, 2024

AT: EDITED s.r.o.

AA: Edita Vráblová

I: Dušan Kočlík (interiér)

F: Matej Kováč

Dom BOAN

House BOAN

Bernolákovo, 2025

AT: toito architekti

AA: Katarína Príkopská, Ivan Príkopský, Tomáš Szőke

F: Peter Jurkovič

Pikniková lúka ZELOKVET

Picnic Meadow ZELOKVET

Nitra, 2024

AT: IN-HABIT

KA: Attila Tóth

I: Soňa Bellérová (dizajnérka, autorka koncepcie, kompozičného riešenia a mobiliáru), Marek Hus (krajinný architekt, autor rastlinného dizajnu a technickej dokumentácie), Katarína Melichová (výskumníčka, autorka koncepcie a metodiky co-design procesov), Michaela Poláková (realizátorka, autorský vklad do projektovej dokumentácie), Viliam Vnuk (realizátor), Jakub Pagáč (geodetické práce), Jana Kuffová Popovicsová (komunitná aktivátorka), Filip Stranovský (realizátor, komunitný aktivátor), Henrieta Gergelová (výskumníčka)

F: Peter Bednár

Byt K76

Apartment K76

Bratislava, 2025

AT: toito architekti

AA: Katarína Príkopská, Ivan Príkopský, Tomáš Szőke

F: Peter Jurkovič

Chalupa v Červenom Kameni

Cottage in Červený Kameň

Červený Kameň, 2024

AT: Ateliér HAUS

AA: Tomáš Ružiak, Eva Šestina, Miroslav Šestina, Natália Marková, Pavlína Blažeková

F: Tomáš Ružiak

Bratislava, 2024

AT: MIMO architekti

AA: Soňa Králiková, Dajana Goda, Zuzana Grenčíková, Šimon Galanský

F: Marie Starovecká

F: Foto Photo

Slovenská komora architektov, Inštitút Slovenskej komory architektov a Loco Agency ďakujú všetkým partnerom za podporu pri realizácii

Ceny za architektúru CE ZA AR 2025.

VYHLASOVATEĽ

POD ZÁŠTITOU

SAMOSPRÁVNYCH KRAJOV SLOVENSKA

PRIMÁTORA HLAVNÉHO MESTA SR BRATISLAVY

STAROSTU MESTKEJ ČASTI BRATISLAVA –STARÉ MESTO

ORGANIZAČNÍ PARTNERI

Z VEREJNÝCH

ZDROJOV PODPORIL HLAVNÝ PARTNER PROJEKTU

GENERÁLNY PARTNER

HLAVNÍ PARTNERI

PARTNER MOBILITY

The Slovak Chamber of Architects, Institute of the Slovak Chamber of Architects and Loco Agency would like to thank to all partners for their support in realisation of the prize for architecture CE ZA AR 2025.

PARTNERI

PRODUKTOVÍ PARTNERI

ŠPECIÁLNY PARTNER

HLAVNÍ MEDIÁLNI PARTNERI

GENERÁLNI MEDIÁLNI PARTNERI

PRIESTOROVÝ PRARTNER

HLAVNÍ ONLINE MEDIÁLNI PARTNERI

MEDIÁLNI PARTNERI

Cenu za architektúru

CE ZA AR 2025 vyhlasuje

Slovenská komora architektov

S K A

Slovenská Komora Architektov

Prize for Architecture

CE ZA AR 2025 is announced by the Slovak Chamber of Architects

Vyhlasovateľ / Prize announcer: Slovenská komora architektov

Námestie SNP 18, 811 06 Bratislava www.komarch.sk

Vydavateľ / Publisher:

Inštitút Slovenskej komory architektov

Námestie SNP 18, 811 06 Bratislava www.iska.sk

www.cezaar.sk

Manažérka ocenenia / Prize manager: Oľga Miháliková

Editoriál / Editorial: Samppa Lappalainen

Editor / Editor: Michaela Fillová

Záznam z hodnotenia poroty / Jury evaluation record: Reto Gmür, Samppa Lappalainen, Henrieta Moravčíková, Till Rehwaldt, Oliver Sadovský, Silja Tillner, Zuzana Zacharová, Martin Zaiček

Texty nominovaných diel / Texts of nominated works: Patrik Garaj

Fotografie / Photography: Peter Jurkovič, archív CE ZA AR

Ilustrácie / Illustrations: Ivana Čobejová

Písmo / Font: Komora regular by David Kalata

Grafický koncept a dizajn / Graphic concept and design: Ľubica Segečová, Róbert Púček

Úprava architektonických výkresov / Editor of architectural drawings: Zuzana Kovaľová

Jazyková korektúra / Language proofreading: Filip Németh

Preklady / Translations: Martin Majzlík

Za správnosť údajov pri popisoch diel zodpovedajú prihlasovatelia. / Applicants are responsible for the accuracy of the data in the descriptions of the works.

Náklad / Run: 300 ks / pieces

Tlač / Print: LK-R s.r.o., Amurská 36, 821 06 Bratislava

Všetky práva vyhradené / All rights reserved Október 2025

EAN 9788097452087

ISBN 978-80-974520-8-7

Slovenská komora architektov je samosprávna stavovská právnická osoba nepodnikateľskej povahy so sídlom v Bratislave s preneseným výkonom štátnej správy. Bola zriadená zákonom Slovenskej národnej rady č. 138/1992 Zb. o autorizovaných architektoch a autorizovaných stavebných inžinieroch. Svoju činnosť financuje z vlastných príjmov bez štátnych dotácií. Je členom Architektonickej rady Európy (ACE www.ace-cae.eu) a súčasťou siete príslušných orgánov v architektúre (ENACA www.enaca.eu).

Slovenská komora architektov okrem iných zákonom stanovených úloh overuje súťažné podmienky súťaží návrhov v oblasti architektúry a poskytuje vyhlasovateľom odbornú pomoc pri organizovaní a vyhodnocovaní verejných súťaží, stará sa o stavebnú kultúru a harmonické utváranie územia a sama zabezpečuje súťaž o Cenu Slovenskej komory architektov CE ZA AR.

The Slovak Chamber of Architects is a selfgoverning professional non-entrepreneurial legal person based in Bratislava with a delegated performance of public administration. It was established by Act of the Slovak National Council No. 138/1992 on authorised architects and authorised construction engineers. Its activities are funded from its own resources without state subsidies. It is a member of the Architects’ Council of Europe (ACE, www.ace-cae.eu) and the European Network of Architects’ Competent Authorities (ENACA, www.enaca.eu). Besides the tasks specified by law, the Slovak Chamber of Architects also verifies competition conditions of design contests in the field of architecture and provides inviting parties with expert assistance when organising public competitions and their evaluation, and organizes the CE Z A AR Prize for Architecture of the Slovak Chamber of Architects.

Turn static files into dynamic content formats.

Create a flipbook
Issuu converts static files into: digital portfolios, online yearbooks, online catalogs, digital photo albums and more. Sign up and create your flipbook.
Katalóg CE ZA AR 2025 by Inštitút Slovenskej komory architektov (ISKA) - Issuu