








R E N D E R






























R E N D E R





R E N D E R





















































![]()









R E N D E R






























R E N D E R





R E N D E R






















































Construction Supervisor
2 YEARS
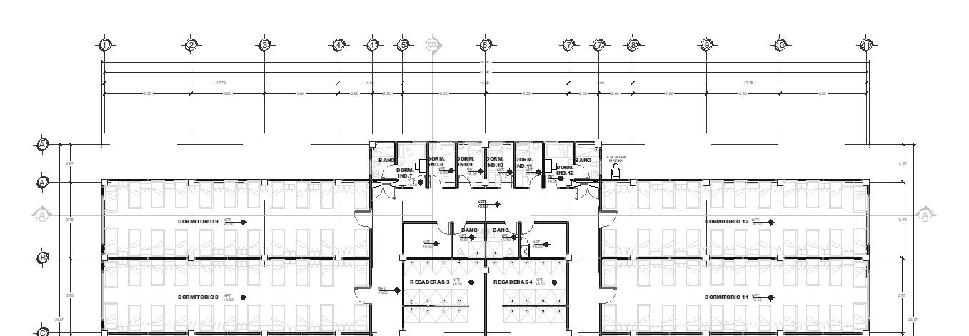
Construction Be Grand Coapa. Proyect with 4 phases, 160 departments in each phase. I t counts with an amenities área ubicated intheaccessofPhase1.
ACTIVITIES:
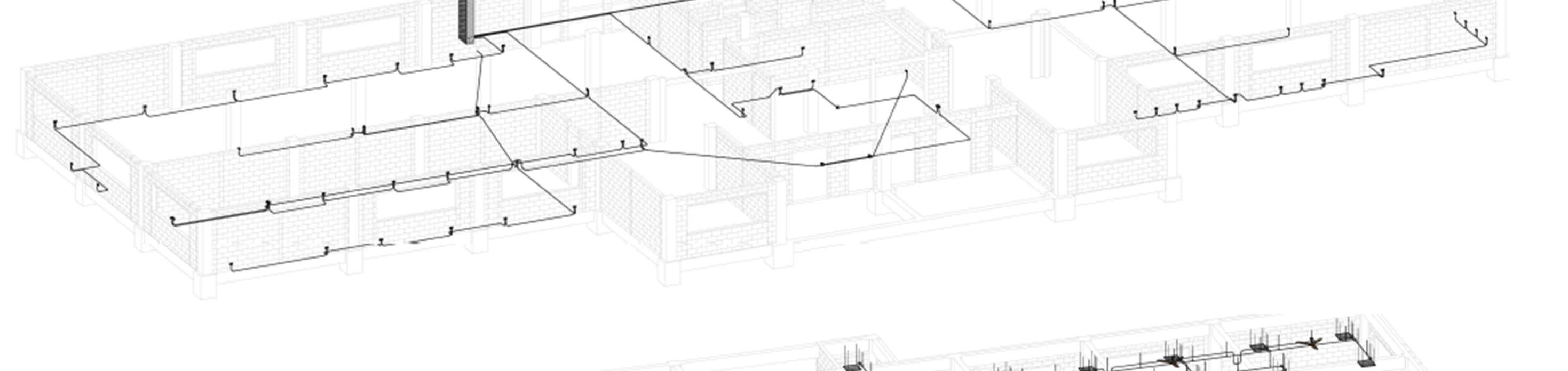
- Supervisor in material finishes: sheetrock, durock, painting, carpentry, kitchens, aluminum and glass work, tile works and waterproofingworks.
- Staff coordinator, reviews for changes in project, work schedule review, program in progress at the construction, critical route and changes inprograms.
- Review of conciliation and release of estimates and construction administration.




















Construction Supervisor
Thedevelopmenthas2towers,271departmentsintower1and261in tower2,startingwithdepartmentsof58m2to218m2,kitchen,dining room,serviceroom,privateandcommonbathroom.
It counts with an amenities area which are ubicated in a club house of3levels.

ACTIVITIES:
- Supervisor in material finishes: sheetrock, durock, painting, carpentry, kitchens, aluminum and glass work, tile works and waterproofingworks.
- Staff coordinator, reviews for changes in project, work schedule review, program in progress at the construction, critical route and changes inprograms.
- Review of conciliation and release of estimates and construction administration.










































