FASCICULOS

![]()



RAMON ROJO / PRESIDENTE CAPBA
“A unos trescientos o cuatrocientos metros de la Pirámide me incliné, tomé un puñado de arena, lo dejé caer silenciosamente un poco más lejos y dije en voz baja: Estoy modificando el Sahara. El hecho era mínimo, pero las no ingeniosas palabras eran exactas y pensé que había sido necesaria toda mi vida para que yo pudiera decirlas. La memoria de aquel momento es una de las más significativas de mi estadía en Egipto.”
_Jorge Luis Borges. El desierto. Publicado en Atlas.1984
Tamaña responsabilidad la nuestra cada vez que comenzamos a construir un proyecto en un sitio específico. No hay respuestas únicas, desde ya, pero no debiéramos desconocer que su pertinencia y diversidad derivan de un cuidadoso análisis del espacio donde vamos a situar nuestras obras. La pertinencia

es una construcción compleja y laboriosa, que requiere tiempo y dedicación. Su deriva, entendemos, es siempre, siempre, economía de recursos, un punto que está en el origen mismo de nuestra disciplina, aunque muchas veces desatendido. Una cita de Peter Behrens da cuenta que la problemática ya existía hace un siglo:“Las prisas se han adueñado de nosotros y ya ni siquiera nos conceden la tranquilidad de detenernos para profundizar en los detalles”.
Desde aquellas primeras definiciones de la vivienda como refugio, como resguardo frente a un medio natural impredecible y poco conocido, hemos pasado a ¿dominar? la Naturaleza. Nuestros recursos tecnológicos para hacerlo parecen inagotables, hasta infinitos en su expansión. Y es tanto lo que avanzamos, es tanto lo que podemos transformar, que ahora es la misma Naturaleza la que se está agotando, la que día a día advierte de los riesgos que estamos asumiendo.
Comprender en profundidad un sitio, su geografía, y hasta su vocación, no es entonces, y en este tiempo, solo un dato más de proyecto. Es un regreso a las buenas prácticas de la arquitectura, prácticas que suelen verse -creemos- más en el anónimo de la ciudad que en las grandes obras.
Para esta nueva entrega de Fascículos CAPBA hemos seleccionado cinco obras. Cuatro de ellas están situadas en territorio bonaerense y muestra a las claras que aun somos hijas e hijos de la Modernidad, aquel tiempo que solo pensaba la historia en términos de progreso indefinido. Evidentemente, ha quedado demostrado que no es así y que debemos revisar nuestros parámetros de consumo, y el espacio arquitectónico no escapa a esa lógica.
En todos los casos, las cuatro viviendas y el pequeño agrupamiento residencial asumen el sitio, lo abordan, lo estudian y producen una respuesta que entienden pertinente. No hay automatismos ni posiciones neutrales.
Mas allá de las escalas de cada una ellas o de la complejidad de los programas a los que dan respuesta, hay una evidente decisión compartida de establecer un diálogo abierto con el sitio, desde lo conceptual hasta su producción material. No hay imposiciones ni artificios escenográficos por el simple hecho que no es necesario recurrir a ellos cuando la arquitectura despliega su sabiduría, adquirida en siglos de experiencia. Insistimos en la idea inicial: no se trata de disponer de recursos económicos cuantiosos, sino y más bien, de tiempo de estudio y análisis, de revisión conceptual permanente sobre nuestra posición como constructores de hábitat, no solo de edificios.
Propietario Colegio de Arquitectos de la Provincia de Buenos Aires
Director Arq. Ramón Rojo
Consejo editor Arqs. Juan Carlos Sánchez y Mario Pérez
Direccion de arte y diseño Estudio RO-K
CONSEJO EDITORIAL
En todo proceso proyectual, el análisis del sito, del lugar de implantación de la futura obra, es, o debería serlo, un momento crucial para definir premisas que guiarán la tarea de diseño y para inspirar las primeras ideas. No siempre ha sido así. Castillos neogóticos, renacentistas y normandos pueblan muchos parajes de la llanura, costa y sierra bonaerense -algunos de ellos rodeados hoy por trama urbana-, construidos hace ya más de un siglo con materiales importados de Europa, materiales físicos e intelectuales: los proyectos-transplantes eran imaginados, en muchos casos, por arquitectos que jamás pisaron la gramilla pampeana. En la arquitectura Moderna, el sitio es uno de los protagonistas del proyecto: Wright, Alto, y localmente, Eduardo Sacriste, Wladimiro Acosta e Hilario Zalba -maestros precursores en muchos aspectos-, valoraron los datos que proporcionan el lugar y el contexto del emplazamiento. Hoy se habla de “arquitectura situada”, arquitectura respetuosa con el entorno natural y/o construido y, como consecuencia, asociada con el desarrollo sostenible y la preservación del patrimonio cultural.
La topografía, el clima, la vegetación, son las variables que brinda el sitio al proyecto, es la referencia de “lo físico”, de la naturaleza, en definitiva. En sintonía, el lugar representa la historia, la identidad, las emociones y recuerdos que sucita un espacio específico. Es la cultura, el producto de la intervención humana. El contexto , finalmente, engloba lo natural y lo cultural
En referencia a este último, Bernard Tschumi opinaba en el número 34 de la Revista Arquine (2005) que “no hay arquitectura sin concepto -una idea general, un diagrama o un partido dan coherencia e identidad a un edificio-. El concepto, no la forma, es lo que distingue a la arquitectura de la mera construcción. Sin embargo, no hay arquitectura sin contexto (excepto para la utopía). Una obra arquitectónica está siempre situada o `en situación´, localizada en un sitio. (…) Dentro de la arquitectura, el concepto y el contexto son inseparables. Frecuentemente, también, están en conflicto. El concepto puede negar o ignorar las circunstancias que lo rodean, mientras que el contexto puede oscurecer o difuminar la precisión de una idea arquitectónica.”
Con una visión poética, Peter Zumthor expresa el nexo esencial entre arquitectura y entorno: “Uno arroja una piedra al agua: la arena se arremolina y vuelve a asentarse. La perturbación fue necesaria, y la piedra ha encontrado su sitio. Sin embargo, el estanque ya no es el mismo que antes.”
Las obras que se publican en las próximas páginas hacen referencia explícita al sitio, al lugar, al contexto; sus autores han adoptado distintas posiciones al respecto, un abanico de interpretaciones que enriquecen, desde la diversidad, el contenido de este fascículo. Vale la pena examinar brevemente cada una de las propuestas.
La Casa LRC (BDB Arquitectos) “se incrusta” en una barranca de San Isidro, en un contexto urbano, desplegando el programa en
cuatro niveles que se retraen desde el acceso hasta una terraza mirador, ganando iluminación y ventilación natural. La obra respeta la topografía, obteniendo un buen resultado estructural y una circulación que descubre, de a poco, un entorno rico en naturaleza. Una relación de reciprocidad entre concepto y contexto, opinaría Tshumi.
El Estudio Fernández Renati considera a Casa Rita como parte de una serie de viviendas orgánicas que han construido en diversos lugares, en este caso en una Urbanización Cerrada. Con una implantación cuidadosa de una añosa arboleda y buscando la mejor orientación, el partido adoptado para la residencia -a partir de formas orgánicas, como se ha dicho- facilita la iluminación y ventilación natural, la integración de las zonas privadas con el bosque, y las visuales a la altura de la copa de los árboles para el sector público. Un vínculo contextual que enfatiza la sustentabilidad a partir de preceptos modernos.
Una vivienda-monovolumen, elevada cuatro metros del nivel de la calle, localizada en Pinamar, posicionada perpendicular a la calle y con franca orientación norte. En la Casa Fragata (Estudio Galera Arquitectos), la función sigue al sitio: la planta baja despejada se reserva para las actividades más libres (quincho, gimnasio, playroom) y permite la conservación del paisaje dunario, en tanto que el espacio superior, por implantación y restricciones normativas, siempre tendrá vistas hacia el bosque y el más lejano Boulevard Alamos. Un “volumen horizontal que acota el espacio, dando escala humana y transformándose, por su impronta, en parte del aire”.
En la memoria de “Los bosquecitos”, obra del arquitecto Pablo Reynoso, se manifiesta que la vivienda “se concibe como un refugio inserto en el medio natural con una amplia conexión hacia su entorno”. Más adelante, se agrega que “la obra se genera, en primer lugar, a partir de la concepción del recorrido como elemento fundamental”, considerando, además, “la geografía del humedal próximo al arroyo que delimita el sitio, elevando el volumen compacto sobre dos apoyos lineales”. Un prisma cubico y abstracto dialogando sin mediaciones con la naturaleza.
DM Taller, autores de Villas 72, un conjunto de viviendas emplazado en el área central de Mérida, al sur de Méjico, proponen armonizar con el contexto a partir de la reinterpretación contemporánea de la casona histórica local, del uso de materiales y métodos constructivos de la zona, y del diseño de paisaje, con el empleo de plantas endémicas de la región.
Cinco obras, cinco modalidades para dialogar con la geografía del sitio, la identidad del lugar y el contexto natural y construido. Y un artículo, en las próximas páginas, del arquitecto urbanista Marcelo Lenzi, en el que nos invita a recorrer “sitios” bonaerenses de la mano de la historia y de la geografía, con ideas para una relación amigable entre naturaleza y cultura.
ARQUITECTO MARCELO LENZI*
*Arquitecto urbanista por la Universidad de Buenos Aires especializado en planificación urbana, desarrollo de proyectos urbanos e instrumentos de gestión
¿EL ORIGEN?
Existe una imagen poderosa instalada en las profundidades de la memoria colectiva, quizás por su proximidad a la infancia o ligada a otras menos evidentes; en ella, todos de alguna manera estamos arriba de esas tres estructuras de madera y trapos al viento que se mecen en el océano arrastradas por los vientos alisios. Llevamos semanas y alguien un poco menos distraído grita exaltado ¡Tierra! Y en este pequeño acto, millones de seres inexplicablemente incorporados a la estrechez de esas embarcaciones entramos en un soplo a la historia oficial. A occidente.
Difícilmente alguien haya resistido la tentación de imaginar esa experiencia de “descubrir el nuevo mundo”, por poco, similar a llegar a la luna sin necesidad de escafandras ni gran tecnología, bajo la compulsiva necesidad de instalar la explicación de lo que se encuentra, de hacerlo visible en el relato de época, transmitir “la novedad” de lo que hasta entonces “no existía”.
La barbarie en el mito de occidente rodeó a la civilización durante siglos. En principio a los griegos, más tarde a los romanos imperiales, rodeó masivamente la Bastilla, y al nuevo mundo. El relato ocultó siempre un dato de profunda ignorancia: ¡no hablaban mal sino otro idioma! No había escritura porque la cultura era oral. Una inteligencia milenaria del territorio se opacó, se negó.
Somos sin duda parte in-escindible de la cultura occidental, de un mundo globalizado, del océano de información. Pero somos habitantes de este lugar del mundo, con toda su historia y potencialidad, con sus miserias y complejidades. Solo que ya los espejitos de colores se han oxidado, la barbarie resultó ser más inteligente con la geografía que habitamos. Lo que somos, finalmente, es el desafío de construcción cultural sin colonizar que nos debemos. Mestiza y exuberante, esta región transita una sublevación simbólica que apasiona.

LA EXTRAORDINARIA INCERTIDUMBRE DEL ENSAYO
Muchas veces suponemos como una realidad inobjetable o referencial cuestiones formuladas en escenarios y experiencias bastantes disímiles a la propia. Así como en el ámbito provincial, la centralidad y la concentración poblacional operan de igual forma un conocimiento con lógicas de supuesta universalidad, que luego se aplican por comodidad, defecto o falta de recursos técnicos, sobre un territorio que contiene diversidades que no las contiene, ausentes de interpretación y fuera de la agenda cotidiana. Existen datos relativamente obvios, en condición de invisibilidad para la percepción, donde resulta necesario un ejercicio de contrastes continuos entre la certidumbre y la experiencia. Evidencian una sistemática transposición de elementos externos sobre las preexistencias naturales geográficas, culturales, religiosas, científicas. Somos protagonistas de una joven historia que aún arrastra las marcas de un espejo construido para adaptar la mirada en un reflejo distante. Importante no distraerse. Actualmente habitamos ciudades que ocupan sólo el 5% de esta superficie continental. En la provincia de Buenos Aires, el 80% de la población vive en el 2% del territorio, y el 20% restante se desparrama en el variado interior bonaerense que fue retratado magistralmente en el film “Historias Extraordinarias”, de Mariano Llinás. El territorio geográfico que nos explica culturalmente es mayoritario y externo a la breve pisada urbana. Comenzar a revisar la impronta cultural desde el soporte natural nos entrega la posibilidad de interpretar a las ciudades, ya no desde la dualidad artificio urbano / exterior natural, sino a ésta como la densificación misma de un territorio. De un sitio particular con genética propia, en un paisaje singular a descifrar.
LA INTELIGENCIA SITUADA
Si recuperamos la curiosidad en lo próximo, las comarcas nos regalan un universo de situaciones y saberes. Producto de la marca de origen, Buenos Aires resulta en un territorio mayoritariamente desarrollado en el borde continental, donde agrupa los grandes aglomerados urbanos, la infraestructura portuaria de relación-exportación, los enclaves industriales, la cultura visibilizada. Por las cuencas interiores habilita sucursales del mismo modelo de ocupación. Un único flujo interior-borde-exterior-global recorre y recurre históricamente, alterado solo por la aparición de corredores e infraestructuras borde-borde. Rutas, oleoductos, gasoductos y electroductos y cuanta línea imagine se enciende sólo en el extremo con la permanente ausencia a la incorporación de los territorios interiores. Podríamos decir entonces que existe una geografía natural de soporte y una geometría decisional del poder, con flujos que lo densifican o ausentan de la configuración general. Resulta clave entonces, la responsabilidad y posibilidad que establece actuar desde las zonas privilegiadas en la formulación de escenarios alternativos. Entender nuestra realidad como posibilidad, significa darle a nuestros recursos técnicos y humanos una dimensión trascendente. Un acto de creatividad postergado en la replicación compulsiva.

MATERIALES INEDITOS
De los materiales conocidos y ensayados en la pertinencia de la técnica, el espacio, la luz y los lugares que habitamos; una exploración profunda aporta otras condiciones que solo se escalan e interpretan en la dimensión territorial. A la incorporación del Suelo como primer nuevo material (en el concepto sitio-geografía expresado anteriormente), cada región ofrece un repertorio de materialidad más intangible y que, de una forma menos convencional, se sitúan en la oportunidad y eficacia de su aplicación. Imaginemos entonces el desafío que ensaye e imagine, con las condiciones geográficas que manifiestan los territorios, convertidas éstas en material de pensamiento y formulación para nuestras ciudades. Viento y agua, arena y barro. Relieve y Pampa, como materialidad primaria, estructurante y necesaria para reconocernos en la esencialidad geográfica que habitamos.
CONSTRUIR CON VIENTO
Gran parte del territorio sur convive cotidianamente con el viento. Esta cultura sureña no es solo patrimonio patagónico ni excluyente de otros sitios. Podríamos decir que, del territorio bonaerense, la costa que enfrenta los vientos del ártico y las corrientes de aire que superan los 30 kilómetros de forma medianamente habitual, construyen una idiosincrasia cultural propia. Un saber en lo cotidiano que atraviesa desde los hábitos de vestimenta hasta el uso del espacio público. Lo que se puede y deja hacer, lo limitado. Pregúntese: ¿existe en el siglo de mayor avance en aerodinámica volcada a la industria automotriz, la aviación y algunos deportes extremos, una incorporación de estos saberes a la arquitectura?, ¿una dimensión manualística de cómo operar, morigerar, aprovechar y cohabitar el espacio viento? La mayoría de las aplicaciones resultan un dispositivo externo. En las viviendas próximas a zonas industriales, es notorio ver los cercos construidos con chapones clavados al suelo, o más al sur rodeadas de un muro bajo de piedra y setos, que lejos de emular las rejas de la “inseguridad”, provoca casi un edificio que contiene el verde en un árido continuo y seco. Los dispositivos mencionados formulan un pedazo de territorio libre de viento, si aplicáramos esta aero-respuesta a la arquitectura, un cono proyectado similar al efecto solar provocaría análogamente “una sombra de viento”. Un imaginario poco explorado y bastante útil de incorporar al concepto arquitectónico. En lo relativo a los efectos en altura, una experiencia bahiense ensayada en algunas construcciones con cierta edad, proponen un nivel libre entre el basamento y la torre, con efectos notables en la disminución del efecto Venturi a nivel de calle. Sin embargo, esta tradición no ha sido sostenida en la actualidad y caminar por el centro cuando sopla, es saberse protegido por una cultura invisible y sostenida que extrañamente hace que nada vuele.
CONSTRUIR CON
La historia de grandes culturas de la humanidad estuvo determinada por los ríos. El Tigris y el Eufrates en la Mesopotamia, el Nilo en el norte africano, el Yang Tse en China, el Ganges en la India, cada uno replica automáticamente una imaginería de civilizaciones, sapiencias y colores. Sin embargo, ¿podríamos precisar una reflexión similar? ¿Un listado de ríos que invoquen nuestra civilización sudamericana? Va un pequeño dossier: Tres grandes cuencas recorren el territorio de las planicies interiores sudamericanas entre el cordón Andino y la cadena atlántica. El Amazonas traza el meridiano desde las cumbres del Perú, juntando exuberancia de selvas, hasta hacerse salado en la antesala del mar. Al norte la caribeña corona del Orinoco, se extiende ramificada y amplia. Siempre cálida. Completan la familia el Uruguay, Magdalena, el Meta, Tocatins, San Francisco, el Colorado, el Negro, hasta el austral río Grande. Finalmente, la vena sur interior del ParanáParaguay, la que nos identifica, inicia en el pantanal boliviano–paraguayo y desde los pies de San Pablo respectivamente. Uno sinuoso y lento a veces, otro más ancho y siempre caudaloso, para reunirse bicolor antes de terminar en el delta del Plata. Cada aproximación en el mapa renueva estructuras hídricas particulares, en la provincia la extensa cuenca interior del río Salado la recorre y expone en planicie y universos de charcos, hasta alcanzar una bahía inexplorada. Las cuencas de borde se precipitan perpendiculares a las costas en vocación de puertos. Un estuario se interna en ría profunda entre marismas de barro y hace puerto en Bahía Blanca. La geometría del agua dibuja los sitios. Serpentea en llanura de cóncavos y convexos que alternan suelo firme y limoso. Se ensancha en las planicies, se hace variable entre la seca y la estación de lluvias. Se rectifica en los bajos canalizando su escape, en los altos serranos hiberna breve para surfear pendientes; esculpe cañadas, angosturas y quebradas. Hace huella y transforma. Se aquieta en pantanos, y se acumula en lagunas. Se reúne, rebalsa y se mueve, de a ratos fluctúa. Arrastra genética de un territorio a otro, reúne porciones de sitios desagregados, se hace referencia, riesgo y paisaje. Se puede decodificar, es aprensible.
En nuestra relación ambivalente de precio y desprecio, los sitios del margen conforman un lugar de incertidumbre. Las costas interiores han funcionado como vertedero residual de las industrias, frigoríficos y mataderos. Las infraestructuras portuarias se ubican como único hecho de certidumbre. Su carácter recreativo o identitario en lo cultural y social, sólo parece reservado en el imaginario a las playas de arena “mediterráneas”. Dibujamos un agua celeste, cuando es marrón de barro y tierra arrastrada. Cuando acumula juncos en suelos limosos, y cimienta costas variables.

En la comprensión de este recurso y sus leyes, habita la posibilidad de un nuevo paradigma donde la arquitectura puede estar trazada con el agua, como un hecho unívoco. En los resquicios inconclusos del damero urbano, en las infraestructuras de puentes, muelles y diques, en la capacidad de incorporar el “diseño” del agua (canales, ensanches, plazas de agua) sin alterar su ley natural y ambiental, anida una posibilidad. La de recrear una visión superadora al entubamiento de los cursos de agua, que solo promueven el vertido clandestino. A la especulación inmobiliaria de afectar las planicies inundables en una escenografía de lagunas, cavas encubiertas y rellenos de coquetos barrios que provocan distorsiones hidráulicas e inundaciones donde antes no las había. Al recupero de los márgenes públicos frente a la privatización espontánea y generalizada como habitual. En el territorio bonaerense, muchas ciudades han incorporado con la mínima infraestructura e impacto que permite la llanura, pequeños embalses que incorporan al agua como un gran espacio recreativo y balneario, tal es el caso de Azul. El Club Pejerrey en la costa de Quilmes, con su extensísimo muelle resulta un referente adecuado para atender la variabilidad del agua costera, y una arquitectura “multipata” que salva el territorio barro y arrima al agua constante. Se dice, no podría aseverarlo, que la obra moderna de estas latitudes más visitada globalmente en la virtualidad de la web, es la exquisita Casa del Puente de Amancio Williams y Delfina Gálvez Bunge, por suerte recientemente recuperada. Mucho más profundo, en el interior bonaerense, el repertorio de opciones se hace extenso y rico en el habitar el agua; lamentablemente también, su manipulación descuidada sigue promoviendo tragedias.
CONSTRUIR CON PENDIENTE
Dos culturas imperiales signaron la forma de ocupar el territorio. La más conocida para nosotros es la impronta hispana que dictaba “establecerse en los sitios llanos, alejados de los bajos costeros que son enfermos y de los altos para protección de los vientos”. E iniciar un continuo de extensión que no sabía de valles, cuencas y barrancas, o mejor dicho no proveía soluciones para esas dificultades. En el mejor de los casos, las alternativas fueron aplanar, tapar, evitar; pero siempre continuar. Ideal y recomendable para llanuras pampas. Otorga: facilidad de movimiento y multidireccionalidad. Sus contraindicaciones: poca destreza para el relieve. Por otro lado, la matriz portuguesa ubica los sitios altos como el escenario de privilegio; el territorio del borde brasilero y sus ciudades costeras interiores, colonizan el alto y avanzan en pendiente hasta una altura prudencial que establece el malecón. Un balcón urbano a media altura y de allí solo la bajada a las instalaciones costeras. Ideal y recomendable para geografías de morros y la observación paisajística. Otorga: condición

aeróbica óptima. Contraindicaciones: deberá adquirir destreza en infraestructura para crecer pisando cumbres. El paradigma es certero, una historia ocurrida en el extremo sur bonaerense lo certifica si gusta comprobarlo. Sobre el Río Negro, si viaja por la R3, encontrará en la ribera norte la ciudad bonaerense de Carmen de Patagones, y en la orilla opuesta, la ciudad de Viedma, asiento de la capital rionegrina. Cada una refiere fielmente a uno de las matrices de ocupación expuesto, pero lo extraordinario resulta la consolidación definitiva de la margen norte, los patrones de asentamiento que fijó el nuevo territorio colocaron a la plaza mayor y la iglesia Nuestra Señora del Carmen (1880), en el alto del promontorio. Definiendo así la impronta urbana más portuguesa de la provincia. Como verán, la geografía de pendientes no nos resulta innata culturalmente para la arquitectura; aún en las sierras es costumbre el “corte” de la piedra para lograr el plano horizontal que habilite habitar. Finalmente, y antes de abandonar los relieves, un pequeño homenaje a la prolífica Lina Bo Bardi con una mención a una pequeña obra conocida como la “casa de la barranca”. En un sutil equilibrio material y espacial, transcurre en corporizar la materia en la piedra, para luego alivianarse en el privilegio de la mirada balcón, interior y resguardada. Una sencilla operación que establece por debajo un espacio íntimamente ligado y vinculado al artificio edilicio y a la naturaleza del sitio. Sombra y paisaje en un nuevo lugar “barranca”, que la re-significa. Sencillo y a disfrutar. No se angustie, a ellos los emociona la pampa.
CONSTRUIR CON ARENA
La ribera de barro que se extiende pampa en el agua del Plata, incierta en su límite húmedo-seco, se agota cuando abandona el río. Enfrentar el Atlántico trae otras dinámicas marinas que trasuntan del limo a la arena. De humedal al médano, se hacen playa, las playas del país. Un extenso territorio que ribetea la provincia de bahía a bahía con vértice en la pétrea Tandilia, detiene la ruralidad para celebrar el mar. Suelo indómito que esculpe paisajes jugando con el viento y la dinámica del médano costero. Su tramo sur no entrega posibilidad de recorrerlo en continuidad de orilla. Las ciudades y pueblos se alejan a promedio de 15 a 20 kilómetros en la estacionalidad de resguardo, en la huella perdida del ferrocarril, de ahí a la ruta que los conecta otros tantos. Los asentamientos balnearios que se encienden al calor veraniego son bajamente habitados. Este encuentro alternado, atravesando llanuras cultivadas hasta divisar los montículos de arena con calvicie de arbustos, entrega un fabuloso retrato de diversidades al encuentro marino. Cada paisaje de estos balnearios revela una escenografía distinta como en un gran set fílmico; unos con médanos chatos y desnudos hasta el infinito podrían incorporar tranquilamente camellos al paisaje; otros se desordenan en cadenas onduladas de vegetación que los atesora; hay sitios donde se escurren tierra adentro y forman grandes dunas que varían constantemente en indómitas formas, y hay un mega médano que esconde y guarda a sus espaldas un pueblo, Reta, que construyó un túnel a sus pies para ir en búsqueda del mar. Todos, sin excepción, desbordan inmensidad y cobijan bajo ese suelo etéreo el agua dulce en un duelo subterráneo y frágil con su homónimo salado.
Sitios de cuidado, rompibles en acciones que suponen habitualidad urbana pero que quebrantan leyes propias de ese diálogo natural. Se pierden playas y paisaje si se ocupan con directrices ajenas. Por supuesto, hay experiencias notables en la capacidad de forestar y asentarlos, ancladas en la obsesión del viejo Gesell, y el bosque Lillo en Necochea es ejemplo en la materia para conformar un espacio recreativo de sombras, complementario al soleado. La dificultad habita cuando el dispositivo forestal habilita urbanizaciones donde la opera-

ción es retirar árboles, y el destino se hace incierto. Varios desafíos se abren en la oportunidad de pensar nuestras ciudades de arena, y más aún en la posibilidad de complejizar sus economías estacionales a una dimensión anual de su desempeño económico. No sólo de dividir suelo y estacionar casas devendrá un futuro posible, si no se ensayan condiciones alternativas sobre un recurso finito e irrepetible que lo identifica como inédito en la extensión de llanura.
CONSTRUIR CON PAMPA
Había que salir a conocer paisajes para reconocer el propio. Pareciera que la llanura pampeana (aclarando que se deja de lado otros atributos nacionales, y siendo este el mayoritario de la provincia), en la mayoría de las acepciones de uso diarias, es un no-paisaje, al que sólo la aparición del relieve genera el escalafón valorativo. Sin embargo, esta presunción de base en la dimensión turística de lo notorio, no incorpora la presencia cultural que establece la condición cotidiana de la mirada infinita. La imagen regalada por el entrañable Negro Fontanarrosa con la línea horizontal que soporta el rancho de Inodoro Pereyra, y del ilimitado transcurrir de situaciones ingresando al cuadrito de historieta, que invariablemente son anticipadas por el “lejos”, conforman ya una marca cultural. Tanto desde lo sonoro como en lo visual, hay un tiempo de presunción y anticipo en la incertidumbre del relato, que solo en la proximidad se confirma o refuta. Sea el malón confundido con una rebelión de hormigas, o la silueta de la Eulogia con el Rastrojero del paisa amigo, existe una distancia-tiempo que la picardía del Negro supo explotar exquisitamente.
En la llanura, la percepción permite un sin número de planos de aproximación que involucran la condición tiempo-espacio. Podríamos decir que existe una medida de visualización para los objetos, que en primera medida se escalan en la dimensión paisaje, en el casi infinito. La aproximación es el segundo estadio y puede incorporar situaciones en primer plano, secuencias referenciales, circuitos alternativos de percepción, o solo la transformación de lo supuesto y sugerido, a lo descifrable en mayor detalle. La culminación es la proximidad, el llegar, la certidumbre. Así como decimos reconocer un saber del borde y uno interior a escala continental, en la provincia de Buenos Aires, durante la gobernación de Fresco entre el ´36 y el ´40, sucedió un hecho similar. Dispuesto a valorizar el territorio, y más allá de las consideraciones políticas de la época que obviaremos, encomendó al arquitecto Bustillo el diseño de los equipamientos edilicios que conforman la rambla marplatense (el borde), y sobre el resto, la encomienda recayó en el ignoto Salamone. Dueño de la disposición del “patio trasero” (el interior profundo) y encontrándose en estado embrionario la conformación de los
pueblos, produjo un repertorio de obras y equipamientos que para quien suscribe resultan la formulación más sofisticada de arquitectura de llanura y su correlato en la definición urbana. Setenta y dos obras manifestadas en cuatro años, ya octogenarias en tiempo, resultan todavía una provocación su apropiación temeraria y certera de las posibilidades distancia-tiempo, la relación escalar del paisaje, la sugestión del lejos y la resolución particular de la proximidad. Una secuencia difícil de emular, acentuada por el variado repertorio de soluciones formales enmarcadas en el Art Decó que profesaba, y que han sembrado de artefactos maravillosos y desafiantes la interioridad bonaerense. Municipios, escuelas, mercados, mataderos, cementerios y plazas, la mayoría aún en uso, con diseños de mobiliario y artefactos de iluminación, hacen de esta prolífica obra la huella más notoria de estrategia territorial ensayada. No refiero a las formulaciones teóricas que abundan, sino a la posibilidad de contrastar su efecto real materializado. Refranero pampeano: sólo es invisible en el lejos de la llanura la oquedad, el hueco, pozo o depresión, fuera este natural o artificial. Por eso al aljibe le hacemos pared.
LA DIMENSIÓN MATERIAL EN LA POSIBILIDAD URBANA
Estos inéditos materiales se escalan en la dimensión territorial y seguramente no se agotan en este repertorio. Interpretar la escala territorial no resulta una opción para nuestra profesión, es sin duda una obligación para operar con pertinencia nuestro sitio. Si la nueva materialidad resulta en viento, agua, relieve, arena, pampa, y más. Aplica y sucede en vastas porciones de la fisonomía geográfica. Si sugieren arquitectura, ¿no pueden acaso sugerir ciudades?
De una manera u otra la revolución simbólica que transitamos en la región, la revelación de nuevos paradigmas que cuestionan la certidumbre habitual y empujan a la construcción de lo extraordinario, la posibilidad de interpretar los modos y modelos desde una óptica sincera con la posibilidad de recursos y ambiciosa en la respuesta creativa de alternativas al despilfarro de la banalidad, suceden y están pasando ahora. Si alcanza para mirar de reojo la biblioteca algo desconfiado, revisar lo actuado y asomarse curiosamente a la ventana… ¡Qué oportunidad maravillosa de transformación!
Aviso solidario: Se necesita con suma urgencia dadores de ideas, de tiempo e inteligencia para afectar a los lugares de decisión. Presentarse voluntariamente en cuanto sitio encuentre que se estimule la inventiva y la crítica a lo irreversible. Preferentemente en oficinas públicas, centros educativos y otros que permitan involucrar mucha gente que anda distraída. Este llamado no tiene fecha de vencimiento, pero el tiempo corre.


AUTORES BDB ARQUITECTOS / IGNACIO BALDUZZI, SANTIAGO DONOVAN Y CAROLINA BERTAGNI
COLABORADORAS/OR ARQUITECTAS GLORIA
BRADLEY Y ALINE VENTAN, JOAQUIN OÑATE
FOTOGRAFIA SANTIAGO DONOVAN
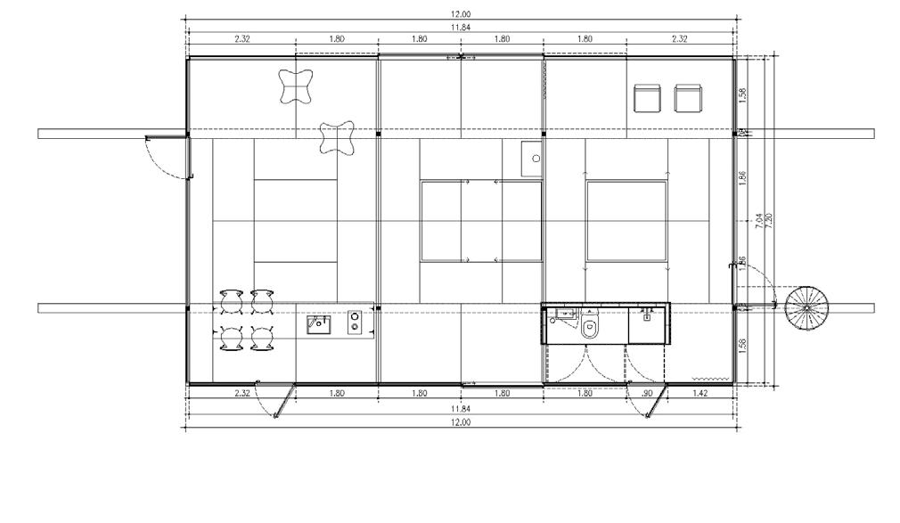
La casa está ubicada en un lote de 21,60 metros de largo, con un importante desnivel de 8,50 metros desde el +/-0,00 a su punto más alto, en la barranca de San Isidro. Esta barranca es testimonio de la costa original y de la superficie ganada al Río de la Plata a lo largo de nuestra corta historia, motivo por el cual nos pareció importante alterarla lo menos posible. Mantener el perfil original del terreno permitió minimizar los esfuerzos en la resolución estructural. El resultado es una casa de hormigón armado que se va incrustando en la barranca y cuya ocupación en planta va incrementándose a medida que se retrae la pendiente del lote. Una escalera longitudinal acompaña la casa de un extremo al otro y enfatiza la intención de respetar la barranca.
FICHA TECNICA
UBICACION SAN ISIDRO / PARTIDO DE SAN ISIDRO
SUPERFICIE CONSTRUIDA 308 M2
FECHA DE FINALIZACION 2017
La casa se implantó en forma de “L”, en torno a un rellano existente en el lote, para generar un patio en el primer nivel, que permite aprovechar el asoleamiento de la vivienda a lo largo del día. En la planta baja se encuentra el hall de entrada y los servicios, en el primer nivel, la parte pública (living comedor, cocina, patio y pileta), en el segundo nivel, la parte privada (dormitorios y estar íntimo) y, finalmente, en el tercer nivel, un estudio mirador y la terraza jardín desde donde se puede observar el río.
















AUTORES ESTUDIO FERNANDEZ RENATI / HECTOR FERNANDEZ
RENATI Y GIMENA CAFFO (EQUIPO DE DISEÑO)
COLABORADORES ALEJO FERNANDEZ (ARQUITECTO A CARGO),
CLAUDIO IANESSE (INGENIERIA)
FOTOGRAFIA JAVIER AGUSTIN ROJAS
FICHA TECNICA UBICACION CASTELAR / PARTIDO DE MORON SUPERFICIE CONSTRUIDA 1.141 M2 FECHA DE FINALIZACION 2021
MEMORIA
Rita es la número dos de una serie de casas orgánicas, como Chloé, Borja y Filippa. Todas con el mismo objetivo, desarrollar un ejercicio que radica en materializar y repetir un conjunto de operaciones proyectuales que en el estudio llamamos “Manifiesto Habitacional”:
• Patio interno.
• Iluminación y ventilación cruzada.
• Relaciones espaciales.
• Mueble baranda.
• Recorrido arquitectónico.
• Acceso a la azotea.
El terreno tiene 2.500 metros cuadrados y está ubicado en un club de campo en las afueras de Buenos Aires. Sitio donde predomina una añosa arboleda, la cual se respetó en su totalidad para el emplazamiento de la vivienda.
El eje de la obra es un patio interno rodeado de rampas que
conectan espacios cubiertos con otros semi-cubiertos, generando un recorrido de transición fluida entre los espacios que se habitan.
La casa fue implantada en el fondo del terreno, para recibir sol durante todo el día. Decidimos invertir la toma de partido tradicional, ubicando el programa privado en la planta baja y el social a la planta alta. Los cuartos los caracterizamos con un espacio privado, calmo y estanco, que da la sensación de estar inserto en un bosque, mientras que el living comedor se eleva para estar a la altura de la copa de los árboles y generar ventilación cruzada e iluminación durante todo el día, permitiendo acceder desde este espacio a la totalidad de la vivienda. En el segundo nivel se ubican un estudio con acceso independiente y un cuarto para invitados, culminando el recorrido.
La construcción es despojada y carece de materiales pretenciosos: todo el lujo se lo da la naturaleza que lo rodea. Predominan entre los materiales utilizados: hormigón, ladrillo y madera.



















AUTORES ESTUDIO GALERA ARQUITECTURA / ARIEL GALERA, CESAR AMARANTE Y FRANCISCO VILLAMIL
COLABORADORES/AS PABLO AHUMADA (SUPERVISION DE OBRA), VERONICA COLEMAN (GESTION/ADMINISTRACION) Y SOLEDAD
PEREYRA (CORRECCION DE TEXTOS Y TRADUCCION), INGENIERO
JAVIER MENDIA, AGRIMENSORES JUAN PABLO Y CLAUDIO D ERAMO
FOTOGRAFIA JAVIER AGUSTIN ROJAS
FICHA TECNICA
UBICACION PINAMAR / PARTIDO DE PINAMAR
SUPERFICIE TERRENO 1005 M2
SUPERFICIE CONSTRUIDA 210 M2
FECHA DE FINALIZACION 2021



Casa Fragata fue proyectada en 2017 y construida entre ese año y 2021, en el Barrio Alamos, al noroeste de Pinamar. Durante la pandemia, la vivienda era única en la manzana en un barrio que se desarrollaba a un ritmo aletargado, pero en muy poco tiempo se vio rodeada de varias obras -algunas incluso habitadas antes que Fragata-. Esta zona sigue siendo a la fecha el sector de mayor crecimiento en la ciudad, por lo que el paisaje urbano cambia constantemente.
Casa Fragata se apoya en diez puntos sobre un terreno casi plano de 24.50 metros de frente por 41 de profundidad. Elevar la casa fue el único pedido de los propietarios, quienes iban a habitar la vivienda de modo permanente. Debido a esto, la misma se planteó como un monovolumen cerrado para las actividades que requieren cobijo construido a cuatro metros por sobre el nivel de calle. Bajo el volumen se diseñó el espacio vacío en relación directa con el terreno para usos más libres y factibles en el exterior. En planta alta, una caja contiene todas las actividades cubiertas de la vivienda, separando la zona pública de la privada por el núcleo de escaleras. Asimismo, esta planta alberga un estudio al cual se llega invirtiendo el sentido de la circulación general. La casa posicionada perpendicular a la calle, se abre completa al norte en todos sus ambientes, generando vistas extendidas por sobre la planta baja de las casas vecinas. Al recostarse sobre el retiro lateral opuesto, la primera construcción aparece a 17 metros de distancia. Por características de implantación y restricciones normativas, Casa Fragata siempre tendrá vistas abiertas hacia el bosque en el centro de manzana y al lejano Boulevard Alamos. Su posición en altura le permite, además, dominar las vistas en 360 grados.
La división de programa se genera entre aquellos usos en espacios que deben estar protegidos de las variaciones e inclemencias del tiempoy aquellos que en épocas de clima amable pueden desarrollarse en el exterior y bajo el semicubierto. Di-
vidir el programa de esta forma redunda en una economía de metros cuadrados, solo factible al elevar la casa, minimizando los espacios cubiertos abajo y sacando el máximo provecho a los metros cuadrados bajo la caja elevada. Hormigón, aluminio y vidrio son los únicos materiales en el exterior, a los que se suma madera en el interior, formando un abanico simple. Un catálogo de bajo y sencillo mantenimiento que también se manifiesta en el tratamiento paisajístico de la parcela, el cual refleja el estado natural y autóctono de la duna. La estructura se muestra parcialmente en tabiques y pilares inclinados. Este mismo esquema estructural no deja ver la vinculación de los elementos bajo la arena y menos aún los entramados de vigas en toda la superficie sobre plata baja. Aquí se reparten las cargas de modo uniforme. las cuales llegan desde la cubierta mediante tabiques contundentes y columnas que se mezclan con la perfilería de carpintería al frente. Sobre la cubierta, las vigas contienen losas en diferentes niveles definiendo los espacios que incluyen. Liberar el cero para maximizar el uso del suelo, planteando actividades bajo la estructura, es entender que el espacio es moldeado por los voladizos y la estructura intermediaria entre planta alta y las bases. Esto genera un ámbito versátil solo definido por la función que allí se vaya a desarrollar (estacionamiento, playroom, gimnasio, quincho). La parrilla, el baño y el acceso a la casa como únicos elementos inamovibles colaboran a generar un espacio pleno y despejado sin interrupciones. Vistas abiertas en ancho y largo a nivel de calle amplían y mezclan el espacio público con el privado. Al no existir cercos ni una construcción apoyada que marque límites, la división de la condición urbana con la dimensión de los privados se da por los pocos gestos urbanos presentes -como pilares con medidores de servicios o alguna huella vehicular-lo cual transforma al terreno en un apéndice del espacio público. Casa Fragata se posiciona como un volumen horizontal que acota el espacio, dando escala humana y transformándose, por su impronta, en parte del aire.













AUTOR ARQUITECTO PABLO REYNOSO
COLABORADORES/AS INGENIERO FABRICIO BARCO Y ARQUITECTO ARIEL
FRAGOSA / ZOE OTAMENDI, VALENTINA CARRIZO Y HALIMA GHETTI
FOTOGRAFIA JAVIER AGUSTIN ROJAS / EMANUEL SANTILLAN / GIOVANNI
PEMINTEL LINES y JUAN PABLO PORCO
FICHA TECNICA
UBICACION CALLE EL TREBOL SAN JORGE Y ARROYO ABASCAY/ CORONEL BRANDSEN / PARTIDO DE CORONEL BRANDSEN
SUPERFICIE CONSTRUIDA 86,40M2 FECHA DE FINALIZACION 2022
La geografía del lugar y sus condiciones naturales, junto al diálogo con los maestros del pasado, configuran este espacio diáfano en el bosque. Se concibe como un refugio inserto en el medio natural con una amplia conexión hacia su entorno, dejando libertad al deseo de vivir en contacto con el exterior. La técnica precisa, permite que las cosas sucedan en silencio en un espacio confortable, que utiliza estrategias de diseño bioclimático para alimentar tanto la relación como el respeto por el medio en el que se inserta.
ADAPTAR
La obra se genera, en primer lugar, a partir de la concepción del recorrido como elemento fundamental. Al situar el volumen en el extremo norte del terreno, permite prolongar la llegada a través de un recorrido oblicuo conservando la arboleda existente. Se considera, además, la geografía del humedal próximo al arroyo que delimita el sitio, elevando el volumen compacto sobre dos apoyos lineales.
Por último, la materialidad se adoptó en función de fundir el paisaje con lo proyectado. La disponibilidad en la zona de acero destinado a la industria agrícola y la mano de obra especializada, determinaron las decisiones sobre los materiales a utilizar.
FLEXIBILIDAD
Se estableció la máxima flexibilidad como criterio fundamental para responder al funcionamiento integral de la vivienda, proporcionando un interior único, fluido y versátil, dando lugar a la variabilidad de apropiaciones del usuario, donde el espacio se compartimenta con tabiquería liviana y mobiliario que segmentan virtualmente la totalidad del proyecto.
ESTRUCTURA
El esqueleto del proyecto está compuesto por perfilería metálica para las vigas en voladizo y columnas, apoyadas sobre dos zapatas corridas de hormigón in situ, las cuales absorben las cargas y las derivan al suelo. A su vez, los apoyos generan un despegue del nivel del suelo natural, permitiendo el libre escurrimiento del agua frente a posibles inundaciones, frecuentes en la zona.
La estructura se completa con losetas pretensadas alivianadas con alma de poliestireno, que una vez en el sitio se ensamblan y fijan sobre las vigas metálicas.
ORIENTACION Y CERRAMIENTO
En base al estudio solar, se concluye en que la incidencia solar en la vivienda no requiere protección diferenciada en sus diferentes caras, para lo que se adopta un cerramiento simple y de bajo mantenimiento que favorece el bajo consumo energético. En la elección del cerramiento, se opta por un sistema integral de perfilería de acero modular que evita desperdicio de material; los vidrios aseguran la reducción de la carga térmica y el control del deslumbramiento, sin descuidar las visuales hacia el exterior.
ILUMINACION Y CLIMATIZACION
La iluminación de la planta se realiza a partir de sistemas leed en función de la modulación, lo que permite una iluminación uniforme sobre los distintos planos atendiendo a los requerimientos del programa.
El acondicionamiento de aire es del tipo Split individual con planta térmica de refrigeración compuesta por una máquina enfriadora de agua con compresor a tornillo y condensación de aire. El equipo es de bajo nivel sonoro y alta eficiencia energética, con refrigerante ecológico, lo que garantiza alta calidad de servicio y confort para los ocupantes y bajo consumo energético.
DISEÑO BIOCLIMATICO
La vivienda posee incorporados en su diseño, dispositivos de arquitectura sustentable, basados en las recomendaciones básicas indicadas en la norma Iram 11603, respecto a las condiciones climáticas de las zonas (Zona III: templada cálida. Subzona IIIb).
Se planteó que el ahorro energético producido por efecto de refrigerar y calefaccionar la vivienda en forma pasiva, sea uno de los objetivos centrales del diseño, contemplando además, posibles incorporaciones de sistemas activos en forma posterior, como es el caso de colectores solares, celdas fotovoltaicas para iluminación de bajo consumo y otros posibles. De esta manera, el proyecto se orienta a poder obtener un etiquetado eficiente según las normativas prontas a cumplir en provincia de Buenos Aires respecto a la eficiencia energética. En este sentido, la búsqueda en relación a una buena orientación, proponiendo la posición del núcleo fijo con la orientación sur y los ambientes de uso cotidiano con orientación norte, y la posición de las puertas (que tienen ventilación selectiva), que quedan cruzadas con las puertas ventanas para así lograr una adecuada ventilación pasiva en todos los ambientes.



















AUTORES DM TALLER
FICHA TECNICA
UBICACION MERIDA / YUCATAN / MEJICO
FECHA DE FINALIZACION 2021

Entender la ciudad y sus valores arquitectonicos fueron los primeros procesos a seguir para lograr un proyecto que se adaptara a las nuevas necesidades de los usuarios, tomando en cuenta a su vez los aspectos más destacados de los métodos constructivos de la península de Yucatán.
A través de un estudio minucioso de los elementos de diseño y acabados de las casonas del centro de la ciudad, se pudieron lograr interpretaciones modernas de dichos aspectos. Tal fue el caso de la carpinteria y sus ventanas que funcionan como persianas o shutters y que, en una época, la ciudad adoptó como elemento importante para generar ventilacion a los espacios. El reto más importante en el proyecto fue que, al encontrarnos con un terreno de forma irregular con un acceso estrecho y una preexistencia, se debieron acoplar los volúmenes a dicha edificación que, al no tener ningun valor histórico, se optó por conservarla para dar un toque interesante a la conservación de dicha estructura. Fue importante considerar el método constructivo, ya que el acceso al sitio fue complejo; sin embargo, al entender el proyecto como un elemento que utilizaría materiales de la zona y métodos contructivos del sitio, se logró establecer un gran trabajo entre la mano de obra local y la materialidad final. Los materiales se consideraron, en primer lugar, a partir de generar espacios monocromáticos, en donde la luz y sus reflejos fueran importantes, con el color beige tanto en muros,

como en pisos y plafones. El proyecto está basado en la simplicidad de elementos que se combinan entre sí para dar un aspecto cálido, con el uso de la madera de la región generando espacios muy bien ventilados e iluminados.
La textura en el proyecto fue trascendente, siempre tomando en cuenta las preexistencias como la piedra caliza en las colindancias, así como elementos constructivos como la dovela que, finalmente, quedó aparente, dándole una optimización al proyecto en términos económicos.
Entender los materiales fueron importantes para lograr un proyecto bioclimático y sustentable, ya que al ser de la región permitió generar confort en todos los espacios.
Las Villas están basadas en dos cuerpos importantes cada una. En primer lugar, se genera un galerón a doble altura en donde es concebida el área social de todo el proyecto. El segundo volumen o cuerpo esencial del proyecto, está modulado por tres habitaciones y un estacionamiento que, a decir por las medidas, guardan una proporción adecuada al proyecto.
La optimización de ambos volúmenes permitió que las circulaciones estén prácticamente reducidas al mínimo y simplemente tener espacios de transición entre cada uno.
Por último, dentro de la misma proporción se crearon terrazas que, a decir por sus dimensiones, permiten el sombrado a través de los muros para poder tener un exterior utilizable debido a las temperaturas del sitio.
El proyecto busca establecer una conexión con la diversidad de usuarios que la utilizan. Es importante mencionar que el proyecto fue creado inicialmente como villas que funcionaran para las necesidades de usuarios que vivieran permanentemente; sin embargo, el proyecto se fue transformando de manera que hoy en día se encuentran con villas en renta en donde la gran diversidad de usuarios pueda realizar sus actividades y sentir ¡cada uno de los espacios como si estuvieran en casa! Para nosotros fue importante siempre sentir que se encontraban inmersos en el centro de Mérida y es por eso que se adecuaron elementos representativos de la arquitectura del sitio.
Villas 72 genera a través de la sutileza espacial y formal un lugar único inmerso en el centro de Mérida, lugar patrimonial con mucha historia. A través de su simplicidad el conjunto logra transportar y transmitir una vibra de paz al usuario. Es importante mencionar que el conjunto de casas logran ensamblarse en el contexto inmediato, no solo mediante la arquitectura si no a través del diseño de paisaje, ya que dentro de cada una de las casas podemos encontrar especies de plantas endémicas de la región que habitan dentro y fuera de las Villas. Podemos encontrar desde el famoso árbol de la ceiba y un framboyan, hasta un chaka de origen yucateco en el interior de las dobles alturas de los espacios sociales. Para generar esta armonía fue importante considerar la cromática de los materiales con el contraste sutil que daban las plantas y las diversas tonalidades de verdes.






















