FASCÍCULOS

![]()

COLEGIO
ARQUITECTO RAMÓN ROJO / PRESIDENTE CAPBA
“Instalar el concepto de arquitectura en términos de proceso, una entidad dinámica, continua y cambiante en el tiempo, hace que su diseño se transforme en “estrategia”. La incertidumbre entonces, pasa a ser parte de su lógica operativa. Pensar en su posible evolución alimenta el misterio de su futuro, ya que supone no sólo considerar el posible advenimiento de alternativas provenientes de ámbitos conocidos, como el científico o el tecnológico, sino también de las que pudieran derivar de otra manera de relacionar hechos y acontecimientos, dando origen a otras formas de usar o habitar lo disponible.” Vicente Krause Fragmento de la memoria del primer premio del concurso Distrito Dock Central Puerto de la Plata
Las palabras de Vicente Krause están dichas hace mucho tiempo, su vigencia nos recuerda cuanto conocimiento ya producido debemos reguardar, recuperar y promover. La solidez de nuestras propuestas disciplinares, en cualquiera de los ámbitos donde sean presentadas, necesitan invariablemente de un anclaje en experiencias anteriores. Sin reconocerse en ellas, no parece posible construir una voz autorizada para incidir en la política urbana. Reconocerse no implica, desde ya, dejar a un lado la mirada crítica sobre ellas. Los concursos que estamos publicando aquí, involucran iniciativas de integración socio urbana de escala diferente, en dos de las ciudades más importantes de la Provincia, que hoy buscan reafirmar su condición histórica de cabeceras regionales. En este sentido, quienes obtuvieron el primer premio del concurso del puerto La Plata, sostienen que: la búsqueda de una “Región Capital “ (Berisso, Ensenada y La Plata) es al desarrollo local, como la recuperación de la costa, costanera, playas, malecones, puentes, escolleras, deltas, canales, edificios históricos y de equipamiento -junto con la infraestructura portuaria y todo lo que define al frente ribereño- es a la comunidad “una enorme oportunidad de cara a un mejor presente y un futuro que motorice los cambios más esperados: desarrollo progresivo, equilibrado y verificado por los usuarios mediante dinámicas de apropiación, cambio y uso consciente en el cual se incluyan los ideales y las memorias fundacionales”. Y cuando los autores del segundo premio del concurso en Bahía Blanca reseñan su propuesta, dicen: “Habitando sobre un mundo post pandemia con más de media población mundial viviendo en estructuras urbanas -pueblos, ciudades intermedias, ciudades capitales y áreas metropolitanas-, la sociedad contemporánea reside en un mundo cada vez más artificial. Casas, edificios, equipamientos, parques, ciudades e infraestructuras, donde las escalas de la arquitectura y las incumbencias de los arquitectos son cada vez más amplias y complejas. Frente a la presión del crecimiento, la congestión, la densidad

y la necesidad de establecer nuevos parámetros de convivencia y relación, el modelo de los equipamientos urbanos que se han producido en las últimas décadas dentro de las ciudades promueve establecer una gran reflexión en pos de una adecuada actualización a estos tiempos.
Las ciudades, desde sus diferentes inicios y fundaciones, estuvieron equipadas y representadas, en su espacio urbano, con edificios que promovían el carácter de una arquitectura emblemática, dando lugar a las actividades que demandaban los distintos ámbitos y poderes de la sociedad, tanto públicos como privados, para su funcionamiento. La iconicidad de estos equipamientos, generados por la forma, la materialidad constructiva, la disposición geométrica y la escala urbana, ha creado un legado que genera un impacto en los valores e impronta de la sociedad. Un modo de construir identidad al velo del espíritu de estos tiempos”
Las palabras de quienes han dedicado tiempo y esfuerzo intelectual a pensar estas ciudades en particular, son mucho más elocuentes que nuestras opiniones como editores. En ambos concursos, sus participantes no tienen más que coincidencias a la hora de enfrentar el desafío de pensar los nuevos entornos urbanos, en ciudades que quieren recuperar su vocación de centralidad regional. Asumir que la fragmentación es un mal de estos tiempos, que es necesario una reflexión seria sobre sus consecuencias de no mediar operaciones que modifiquen esa tendencia, es común en cada propuesta. No es menor que se piensen lugares de encuentro ciudadano cuando imperan lógicas que van en el sentido contrario. Nuestra Provincia en menos conocida de lo que suponemos. Su riqueza y complejidad territorial amerita profundizar su comprensión. Los concursos de arquitectura son una enorme oportunidad para hacerlo.
Dejamos para el final algunas reflexiones del arquitecto bahiense Luis Caporossi, un viejo conocido cuya labor profesional ha dejado un legado muy valioso para entender mejor el territorio bonaerense.
“El futuro no se predice, se construye a partir de pasos concretos que, superando consignas abstractas o fragmentarias, inaugure procesos sostenidos de transformación. Los primeros pasos son en este caso tan importantes como definir las metas de largo plazo: éstas no existen sin los primeros. Estos pasos deben poder convocar y movilizar energías colectivas hoy dispersas. En Holanda las infraestructuras contra el avance del mar y en China la Ruta de la Seda satisficieron y satisfacen estos tópicos. Son metas épicas y a-temporales que, por fuera de intereses sectoriales y cronogramas fijos, continúan ordenando los esfuerzos colectivos.
La Argentina necesita encontrar metas equivalentes con capacidad de desencadenar sinergias múltiples. Federalismo, producción, trabajo formal, seguridad, medio ambiente y república son dimensiones interconectadas a planificar.”
STAFF CAPBA FASCÍCULOS
Propietario Colegio de Arquitectos de la Provincia de Buenos Aires Director Arq. Ramón Rojo
Consejo editor Arqs. Juan Carlos Sánchez y Mario Pérez Diseño Estudio RO-K
CONSEJO EDITOR
No es la primera vez que los Fascículos CAPBA son una herramienta para divulgar los concursos que se organizan en el ámbito del CAPBA y sus Distritos, entendiendo este Consejo Editor que la divulgación de los trabajos premiados y los juicios que merecieron del jurado son un momento importante del proceso de concursar obras de arquitectura o urbanismo. El acceso de la matrícula a este material facilita el debate, indispensable y enriquecedor en toda disciplina, y promueve la posibilidad de avanzar hacia nuevas metas programáticas y proyectuales en futuros concursos o, por qué no, en el trabajo cotidiano de los y las profesionales.
En este sentido, en las próximas páginas se pueden consultar los premios y menciones de dos concursos cuyas áreas de intervención difieren significativamente: central, en el caso de Bahía Blanca, y periférica, en el Dock del Puerto La Plata. Sin embargo, ambas competencias proponen a los participantes pensar las ideas desde la escala urbana, intervenir sobre espacios públicos e incorporar, dentro de sus proyectos, medidas y soluciones que aseguren la sustentabilidad ambiental.
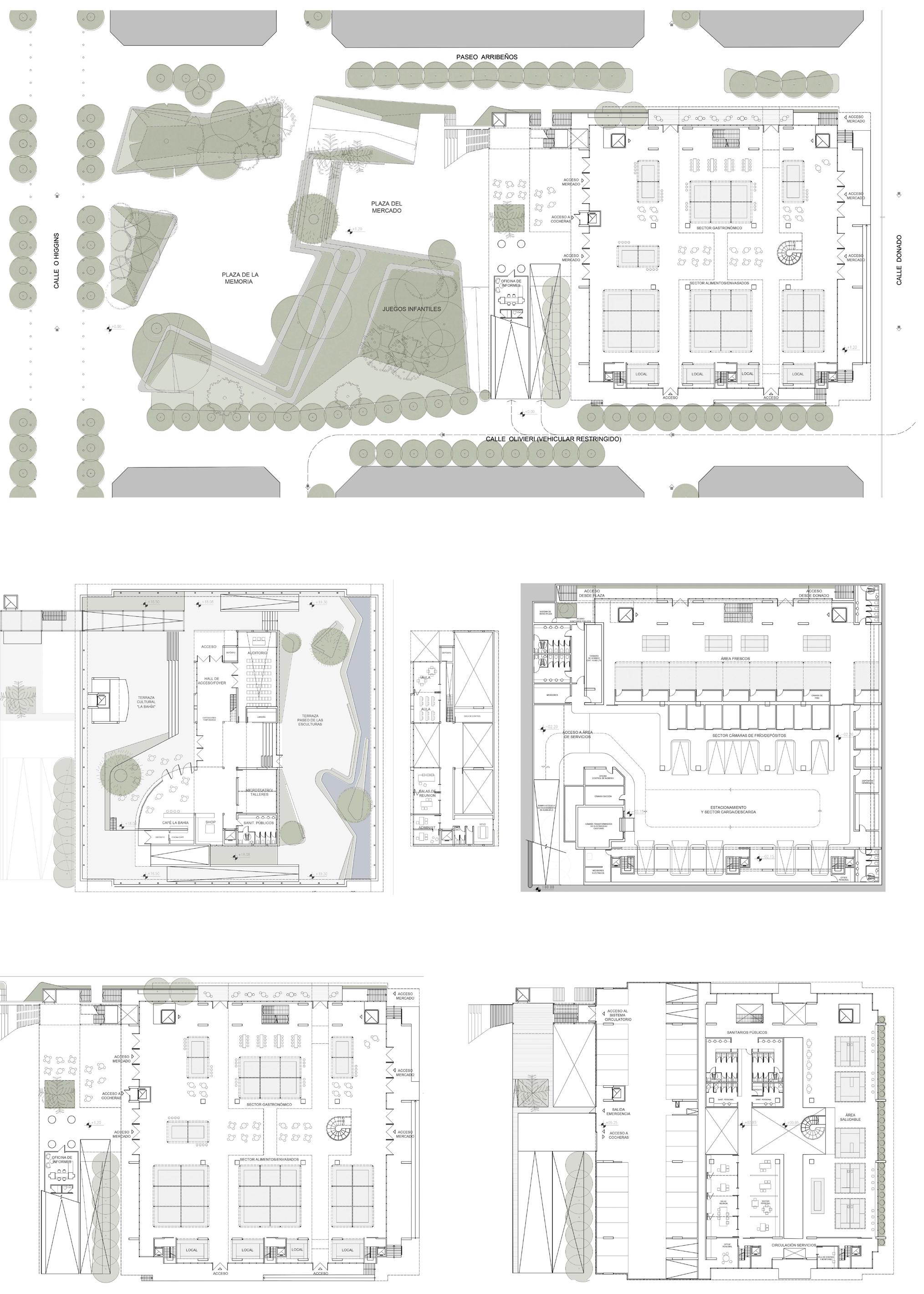
En el caso bahiense, las bases convocaron a potenciar uno de los extremos de un eje institucional, que se inicia en el Teatro municipal y culmina con el área a intervenir: una “macromanzana”, cuyos elementos distintivos son el Mercado Municipal y la Plaza Lavalle. Las bases presentan de esta manera ambos equipamientos:
“Sin lugar a dudas, el espacio urbano “Plaza Lavalle”, aun denominada muchas veces como “Plaza del Sol”, se reconoce como un espacio público con identidad propia y diversos eventos a través de su historia (culturales, políticos, sociales, etc.) lo han transformado en un punto de referencia local.”
“El “Mercado Municipal” es también un edificio rápidamente reconocido por el vecino bahiense. Su nivel de acceso, el zócalo que fuera desde los inicios de uso comercial/gastronómico, desarrollado con un mismo lenguaje en todo el perímetro del edificio, es una imagen presente en toda la población y reconocida incluso por visitantes de ciudades vecinas. Sus frentes vidriados, sobre todo aquellos que se apoyan sobre calle Donado, su carácter abierto, sus escalinatas y rampas (territorio de juego para los niños), sus angostas veredas, los olores a pescado fresco, etc., forman parte de la memoria del bahiense. Estas características se distinguen de, y contrastan con, los pisos superiores del mismo edificio, a tal punto que ellos se reconocen sencillamente como una caja de hormigón, de un interior ininteligible, y prácticamente no conocido por la población. Las rampas de acceso a las cocheras (pisos altos del edificio), sin embargo, son reconocidas por el paseante, no tanto por su uso, sino por sus formas distintivas.”
El promotor -el municipio de Bahía Blanca- solicitaba una reformulación de las funciones actuales del Mercado y una adaptación a nuevos usos culturales. En el mismo sentido, la Plaza presentaba dificultades para el desplazamiento universal y la congregación de personas, que los concursantes debían resolver. El espacio cubierto (Mercado) y descubierto (Plaza) debían establecer un diálogo basado en el destino
colectivo común. Un concurso, en definitiva, sobre usos públicos ya consolidados que requerían algunos ajustes, incorporar innovaciones y recibir una mirada más actual y contemporánea. Intervenir para mejorar.
El puerto platense es una pieza de infraestructura de nivel regional con características poco comunes: parte del territorio bajo su jurisdicción son sectores de la trama urbana de tres ciudades, La Plata, Berisso y Ensenada. Estas localidades, entonces, “comparten con el puerto la infraestructura de transporte y los sistemas de movimientos viales, ferroviales y fluviales como así también confluyen en el uso de las costas tanto del Rio de La Plata como del Rio Santiago, arroyos y canales artificiales. Este paisaje rico en complejidades donde se intersectan puerto y ciudad, puerto y río, ciudad y humedal, cobra gran injerencia ya que nunca son escindibles unos de los otros: todo conforma una trama heterogénea de funciones, acciones y negociaciones muchas veces contradictorias y conflictivas” (Bases concurso).
Las bases para el Puerto La Plata solicitaban a los concursantes la presentación de ideas para la elaboración de un Plan Maestro para un sector en particular: el Dock Central, cuyo eje estructurante es la avenida Baradero. Precisamente, el área específica de intervención es dicha avenida y sus zonas aledañas: el ex Club YPF, una zona de estacionamientos, la Usina de hidráulica, el Canal de Reunión, los barrios YPF y El Farol. El objetivo: dotar a Baradero de “actividades urbanas tanto recreativas como comerciales y de trabajo, propiciando a su vez una continuidad urbana entre las ciudades de Berisso y Ensenada”. En otras palabras, reconvertir una zona eminentemente fabril en un espacio urbano. Planificar para recrear y ordenar. Dos concursos que ofrecen la oportunidad de mejorar, en ámbitos públicos y satisfaciendo multiplicidad de funciones -desde las lúdicas hasta las circulatorias y laborales-, la calidad de vida de ciudadanos y ciudadanas bonaerenses.


PROMOTOR Consorcio de Gestión Puerto La Plata
ORGANIZADOR Colegio de Arquitectos de la Provincia de Buenos Aires / Distrito 1
PATROCINANTE Colegio de Arquitectos de la Provincia de Buenos Aires / Consejo Superior
AUSPICIANTE Federación Argentina de Entidades de Arquitectos
ASESORES
Arquitecto Carlos Javier Díaz De La Sota / Capba D1
JURADOS
Arquitectos Aquiles Ruiz y Marcelo Ponce (Consorcio de Gestión Puerto La Plata) / Arquitecta María Juliana Fullone y Arquitecto Nicolás Saravi Cisneros (Capba D1) / Arquitecto Eduardo Castellitti (Fadea) / Arquitecto Marcelo Vila (Participantes)
OBJETIVOS
El objetivo principal del presente concurso es la obtención de ideas para el desarrollo de un plan urbano para el sector conformado por la avenida Baradero y áreas aledañas. Se busca potenciar un sector clave para la integración regional, enmarcándose a su vez en un plan de acciones destinadas a la integración del puerto con las ciudades linderas y con el Río de la Plata, redefiniendo la relación histórica entre los municipios, el puerto y el río, en beneficio de los pobladores y del medio ambiente. Entendemos que estas ideas deberán:
• Propiciar la creación de espacio público entendido como un ámbito de valor social, ambiental, cultural, económico y paisajístico, espacios que posibilitarán la integración social y urbana, fomentándose la calidad ambiental de la ciudad, dotando la zona de áreas verdes equipadas con senderos peatonales, iluminación, mobiliario y equipamiento necesarios para realizar actividades de esparcimiento y recreación tendiendo al fomento el uso peatonal del área.
• Poner en valor el patrimonio cultural e histórico (arquitectónico) existente, exaltando las condiciones paisajísticas del área
y a su vez promoviendo el desarrollo de actividades culturales, sociales, comerciales y laborales.
Se pretende reconvertir al área de conexión de la avenida Baradero en suelo urbano para posibilitar nuevos desarrollos y emprendimientos asociados a los beneficios del ágora urbana y a la condición de la actividad portuaria, actividad basada en la conexión y el intercambio, que no solo es de mercaderías sino que es también cultural.
• Concientizar la necesidad de proteger el río y sus costas entendiendo sus dinámicas y sus beneficios ambientales paisajísticos y recreativos.
Pretendemos que se generen proyectos que contemplen y tomen en consideración los componentes naturales y antrópicos preexistentes acercándolos a la población en el espacio público para que formen parte de la ciudad y se conviertan en un atractivo turístico a nivel regional.
Se busca mediante este concurso, potenciar la estratégica área de la avenida Baradero dotándola de actividades urbanas tanto recreativas como comerciales y de trabajo, propiciando a su vez una continuidad urbana entre las ciudades de Berisso y Ensenada. En ese sentido se plantea un espacio multifuncional capaz de responder a una diversidad de demandas tanto públicas como privadas y generar así la reconversión de un sector de fuerte carácter industrial en un espacio urbano.
Se prevé la creación de áreas de densificación destinada a oficinas y a actividades comerciales y de esparcimiento, optimizando el uso de suelo, considerando valores mínimos de ocupación de suelo para las partes privadas.
También es deseable contribuir así a la sustentabilidad social y económica del conjunto y de las actividades que se desarrollen en el área, posibilitando nuevas inversiones, creación de nuevos puestos de trabajo y convirtiendo al sector en un nuevo polo laboral, comercial, turístico y recreativo con actividades todos los días de la semana y con escala a nivel regional.

AUTORAS/ES ARQUITECTAS MARÍA JULIETA ETCHART MANDON, MARÍA LAURA GARGANTA Y PATRICIA LORENA BELLONI / ARQUITECTOS GUILLERMO DANIEL CASTELLANI, FRANCISCO TINEO Y MARTÍN ESTEBAN BILEVICIUS
COLABORADORES/A MAURICIO POLVERIGIANI, FRANCISCO COMELLI Y FLORENCIA CAPDEBARTHE (ASESORA)

“Instalar el concepto de arquitectura en términos de proceso, una entidad dinámica, continua y cambiante en el tiempo, hace que su diseño se transforme en “estrategia”. La incertidumbre entonces, pasa a ser parte de su lógica operativa.
Pensar en su posible evolución alimenta el misterio de su futuro, ya que supone no sólo considerar el posible advenimiento de alternativas provenientes de ámbitos conocidos, como el científico o el tecnológico, sino también de las que pudieran derivar de otra manera de relacionar hechos y acontecimientos, dando origen a otras formas de usar o habitar lo disponible.”
Vicente Krause
MARCO NATURAL, IDENTIDAD LOCAL Y MARCO REGIONAL EN DESARROLLO.
Todo ocurre en simultáneo. Procesos de orden climático, biológico evolutivo, así como procesos de transformación urbanística con capacidad y potencial para activar, recuperar e interpretar paisajes originales, paisajes históricos evocativos y paisajes futuros.
En tal sentido, la búsqueda de una “Región Capital “ (Berisso, Ensenada y La Plata) es al desarrollo local, como la recuperación de la costa, costanera, playas, malecones, puentes, escolleras, deltas, canales, edificios históricos y de equipamiento -junto con la infraestructura portuaria y todo lo que define al frente ribereño- es a la comunidad “una enorme oportunidad de cara a un mejor presente y un futuro que motorice los cambios más esperados: desarrollo progresivo, equilibrado y verificado por los usuarios mediante dinámicas de apropiación, cambio y uso consciente en el cual se incluyan los ideales y las memorias fundacionales”.
HUELLAS DEL SITIO.
Caracterizado y reconocido como “punto tripartito” entre los municipios de la Región Capital, el “Sitio del Puerto” presenta la complejidad de los usos, de la infraestructura de gran escala y los flujos y dinámicas de la logística que permiten su actividad También conserva rasgos del paisaje autóctono y un patrimonio forestal añoso, pero, sobre todo, los espacios vacantes, los intersticios y su particular acceso al río configuran la oportunidad de instalar un hito es esta localización. Hablaremos de “hito” porque el planeamiento y sus proyectos buscarán “a toda costa” integrar e integrarse a “sistemas de escala regional”, proporcionar referencia, oportunidades y eventos que convoquen visitantes, usuarios nuevos y una mejora para los residentes y vecinos que lo habitan desde su fundación. Los espacios recuperados de la reconversión ferroviaria, del puerto y los equipamientos de infraestructura se reconvierten a partir de la idea de “sentar bases y criterios de ordenamiento e intervención” para futuras acciones y modificaciones de este y cualquier otro Plan cuya visión de unidad ribereña sume acciones e hitos para la posteridad.
PREMISAS PROYECTUALES.
Partiendo de la interpretación del vacío y el eje de fragmentación funcional y espacial que genera la avenida Baradero, se organiza el conjunto de transformaciones espaciales del proyecto: La explanada o rambla pública a modo de espina central. Una grilla virtual que estructura la composición del vacío y los nuevos nodos. Los nodos programáticos que, mediante la expresión sintética y sistematizable de claustros, organizan la implantación para sincronizar paisaje agreste, visuales desde y hacia el río y las dinámicas de proximidad y complementa-


ción funcional que requiere el programa.
Estructura de conectividad. Orientada a restablecer el orden de los flujos (de logística industrial, transporte público, vehículos particulares, vehículos no motorizados y senderos aeróbicos peatonales), se incorpora para vincular el sitio como una pieza que ofrezca diferentes experiencias de aproximación y recorrido. Son los senderos que recorren la reserva y los jardines los que llevarán la carga de convocar a deportistas, turistas y trabajadores según los momentos y eventos que la nueva vida del puerto proponga. El río y los canales. Nuevos espacios recuperados para el ocio y la práctica deportiva.
Fusionar y suturar el entorno, permitiendo que la naturaleza-forestación, los circuitos peatonales y los elementos artificiales introducidos por el proyecto recompongan la unidad del área. Proponer nuevas dinámicas de usos, apropiación e interpretación del Puerto, mediante la continuidad de la copa de los árboles, la reinterpretación de una red de circuitos peatonales y la incorporación de un soporte urbano. Siempre buscando la permeabilidad de lo edificado, integrando paisaje.
Incluir armónicamente los edificios emblemáticos/patrimoniales, tanto existentes como nuevos, dentro de unos recintos, reconociendo y poniendo en valor las cualidades institucionales y patrimoniales.
Sustentabilidad. La renovación de las condiciones naturales del Puerto, la reducción de contaminación y la incorporación de tecnología para el ahorro energético.
La escala de la intervención debe ser consecuente con el paisaje y con el contexto inmediato. La matriz como modelo geométrico abstracto ofrece la flexibilidad, articulación e integración necesarias. La incorporación de las partes y el todo en un sistema continuo y permeable. Un espacio de estructura clara, de bajo impacto en el entorno natural, así como una serie de espacios accesibles y de escala humana. La estrategia del proyecto responde a un rigor geométrico que, a través de operaciones tridimensionales sencillas, facilite que los sistemas espaciales se integren al sitio, articulando, en un todo, las diversas demandas programáticas y favoreciendo las vistas al rio.
PROPUESTA URBANA: CONCEPTO E INSERCIÓN EN EL SITIO.
En cuanto al sitio, la propuesta promueve la integración funcional y programática buscando re-equilibrar las relaciones entre los diferentes sectores del área y sus inmediaciones. La propuesta invita a repensar el concepto de parque como una secuencia de jardines siempre variables. Evocar el tema del jardín no significa volver atrás en el tiempo sino, al contrario, trascender la idea de parque como espacio para la contemplación pasiva de la naturaleza y entenderlo como un espacio de diversidad, intercambio y solidaridad entre los habitantes de la ciudad. Al igual que el jardín medieval, el jardín




contemporáneo puede ser un espacio que englobe diferentes “recintos” en continua transformación y, en este caso, un jardín donde la naturaleza pueda ser valorada e interpretada por los vecinos y visitantes.
De este modo, la artificialidad no se oculta sino que se despliega a través de un diseño que organiza el parque como una secuencia de elementos de los que emergen ritmos diversos, pero claramente reconocibles, mediante la utilización y articulación de siete elementos:
• Soporte Infraestructura.
• Soporte urbano-ensanche público.
• Soporte de usos y actividades-recinto-condensador social “marco”
• Preexistencias Patrimoniales.
• Equipamientos Autónomos-flexibilidad/etapabilidad.
• Elementos singulares del área: puente/hitos en plazas de Berisso y Ensenada.
• Soporte Natural-vegetación/agua: la ampliación y continuidad, el follaje de la arboleda, una red de senderos que estructuran nuevos circuitos para el recorrido interno.
ACCIONES PÚBLICO-PRIVADAS PARA UNA
RECUPERACIÓN URBANA EFECTIVA.
Pensar el proyecto urbano, es decidir sobre el espacio y el tiempo, con foco en las personas y el medio natural. La “progresividad, capacidad de evolución y cambio” son parte fundamental de la propuesta. Por esta razón se interviene recomponiendo inicialmente la estructura vial y planificando la ubicación de conjuntos de usos organizados, vinculados a partir de una retícula virtual pensada para colonizar organizadamente el vacío. Como hechos artificiales, el ensanche central de la explanada y los claustros resuelven los paquetes del programa, conciliando las escalas, mientras que el re-diseño de la estructura circulatoria sumada a la progresiva “des-motorización” de los movimientos dentro del Puerto, promueve (en la periferia) espacios para la detención y estacionamiento de transporte público y privado. BORDES.
Las tres avenidas (Baradero, 43 y 60) requieren adecuaciones para ordenar los sistemas de movilidad públicos y privados y garantizar seguridad vial y accesibilidad para los usuarios de
los edificios público y privados, así como para viabilizar intervenciones integrativas del tejido y la continuidad urbana.
EL PUERTO-LO GENERAL.
La propuesta hace foco en el usuario, reconociendo en el diseño del programa la prioridad de una oferta ampliada de servicios y el deseo de “vivir el agua”, concentrando todas las actividades administrativas/culturales/festivas/deportivas y elevando las condiciones de servicios y equipamiento.
Apertura, funcionalidad, sensibilidad y factibilidad de realización son cualidades que se transfieren a la propuesta como marco equilibrado para destacar la expresión de la identidad portuaria.
LOS SECTORES-LO PARTICULAR.
Sector 1: ex Club YPF
En este sector se concentran las actividades administrativas propias del puerto y el comedor y la actividad social de un polideportivo con preexistencias identitarias de la zona. Se desarrolló un sistema de cerramientos asociados al recinto que permitirán utilizar el espacio público o privado, de acuerdo a las necesidades.
Sector 2: estacionamiento
El estacionamiento es un sector de apoyo para todos los demás lugares con diferentes actividades. Pero se contempla la posibilidad de entender al recinto como un condensador de usos. Eventos, ferias, circo, una oportunidad para diversificar el uso de este sector.
Sector 3: la Usina
Es el sector cultural y centro del proyecto, con visuales y conexiones con el agua. Se ubicó el Hotel, con el sector de coworking y capacitación, y el Centro de Convenciones, lugar posible para realiza el Festival Internacional de Cine de Ensenada / FICE.
Sector 4: canal de reunión
La propuesta hace foco en este sector como el área deportiva acuática, el área del Mercado de frutos y gastronomía, donde se realizan las festividades para los habitantes de la región: “Fiesta del Inmigrante” y “Fiesta provincial del Vino de la Costa”.
Sector 5: el “agua”
La propuesta hace foco en el usuario y su relación directa con el agua. El Barco-Museo como singularidad del sector.
ACCESIBILIDAD Y ADAPTACIÓN
A partir de considerar que todas las personas puedan hacer uso y disfrutar de todos los espacios del proyecto en igualdad de condiciones, se establecen distintas estrategias de intervención garantizando que la morfología y estructura general de funcionamiento posea base/marco de referencia y soporte para que la mayoría de los espacios sean accesibles y/o potencialmente adaptables, garantizando el acceso, permanencia y egreso de todas las personas. Entorno urbano. Rediseño de refugios de colectivos: paradas accesibles (actuar sobre niveles, señalética, iluminación, tecnología). En veredas, se trabaja sobre el ancho y niveles de solados, diferenciando espacios de circulación peatonal que garanticen un ancho de circulación de tres metros como mínimo y un sector por fuera del mismo para equipamiento urbano y arbolado. Se propone la recolocación de solados de texturas uniformes y antideslizantes, utilizando el solado podo táctil como “lenguaje” urbano de orientación en el espacio. Entorno inmediato. Solados: se trabajaron los niveles, anchos y materialidad. Se incorpora tratamiento paisajístico y equipamiento teniendo en cuenta el concepto de “espacio de los sentidos” mediante la vegetación y elementos que, por su aroma, sonido o textura, ayuden en la orientación y uso de los mismos, invitando a la reunión, descanso, permanencia y uso. Plazas: se nivela la calzada con veredas para captar y canalizar la circulación más masiva hacia los puntos de acceso principales. Se propone incorporar señalética/infografía orientativa del espacio y accesos. Aporte extras del proyecto: se propone y garantiza un programa con actividades recreativas y de esparcimiento accesibles para todas las personas, más allá de su condición física, sensorial o cognitiva.
La “materialidad del área” se refiere a los aspectos físicos, tangibles y estructurales que componen un puerto, así como a


los materiales utilizados en su construcción y operación. Este concepto abarca tanto las infraestructuras materiales que permiten la funcionalidad del puerto (muelles, grúas, almacenes, pavimentos, etc.) como las características naturales del entorno portuario, como el agua y el suelo. Se asimila todo esto a los edificios que lo rodean.
DIÁLOGOS CON EL VACÍO-EL VERDE. PAISAJISMO. Desde la visión de que medio natural y medio artificial conforman una unidad, se generan dos elementos de jerarquía, a partir de las cuales se resuelve la totalidad del sistema de aproximación y accesos a cada área del complejo, ofreciendo al usuario nuevos espacios de encuentro y convivencia en cada específica situación de uso.
En un mundo cada vez más consciente de los desafíos que enfrenta nuestro planeta, el concepto de desarrollo sostenible
ha emergido como un faro de esperanza y una hoja de ruta hacia un futuro más equitativo y saludable y son tres los pilares. Uno de ellos es el social, requiere un modo de desarrollo que no se consiga a expensas de los demás, sino en colaboración con ellos. Las empresas que adoptan un enfoque de responsabilidad social se comprometen, por ejemplo, a limitar el impacto social de sus actividades, a luchar contra la exclusión y la discriminación y a cuidar del bienestar de sus empleados. El crecimiento de un país también debe contemplarse a través del prisma del progreso social. Considerar el Índice de Desarrollo Humano de un país en lugar de su producto interior bruto para evaluar su nivel de desarrollo, forma parte de este enfoque.
La Resolución provincial 259/19 que regula y promueve el uso de plantas nativas en la provincia de Buenos Aires, emitida por el Ministerio de Ambiente es otro de los pilares. Esta


resolución establece el “Plan Nativas Bonaerenses” y busca fomentar el uso de especies autóctonas en proyectos de restauración, espacios públicos y proyectos de paisajismo, además de promover la creación de viveros de plantas nativas. Entre los objetivos de la resolución se encuentran:
• La protección y recuperación de la biodiversidad autóctona de la provincia.
• La reducción de la dependencia de especies exóticas que pueden ser invasoras o tener un alto costo de mantenimiento.
• La concientización y educación sobre la importancia de las plantas nativas en los ecosistemas locales.
La Resolución apunta a coordinar esfuerzos entre municipios, ONGs y la comunidad para revalorizar las especies locales y asegurar su uso sostenible en áreas verdes, parques, jardines y proyectos públicos y privados. Los árboles talas, al fondo, aportan un marco de sensación de solidez
y profundidad, el follaje azul grisáceo de los espinillos genera contraste y suaviza la profundidad y los Cina- Cina, en el área más expuesta, dan ligereza y luminosidad al diseño. Todas las especies son nativas, lo que fomenta un hábitat adecuado para la fauna local (biodiversidad). Estos ejemplares están adaptados al clima y suelo de la región, lo que asegura menor mantenimiento (resistencia). El contraste de colores, verde claro, azul grisáceo y verde oscuro, aporta dinamismo y armonía al diseño (estética).
SUSTENTABILIDAD.
Mejorar las condiciones medio ambientales del sitio: mejorar las ganancias/mejorar el ciclo de vida del edificio/mejorar el bienestar. Un puerto sustentable-amigable con el medio ambiente. Lograr la certificación ambiental: Certificación EDGE (Green Business Certificación) en los nuevos edificios, sistema de





certificación de construcción sostenible que se enfoca en hacer edificios más eficientes.
Cumplir con un ahorro mínimo del 20% de energías/ 20% en agua/ 20% energías incorporadas en los materiales del edificio para poder obtenerla. Plan de administración eficiente de la energía.
FORESTACIÓN DE ESPACIOS EXTERIORES.
Priorización de materiales reciclados en las terminaciones y contratación de proveedores con certificación ISO 14001. Uso de luces LED.
Reciclado de residuos. Colocación de cestos de basura con clasificación de residuos. Disminución de generación de residuos por elementos descartables (trabajo en conjunto con CEAMSE).
Reutilización de aguas de lluvia. Pluviales para riego de los espacios exteriores. Colectores solares para agua caliente sanitaria para alimentar
baños públicos y servicios de los sectores. Energía solar fotovoltaica / On Grid, con conexión a la red. Considerar una superficie libre en la cubierta del Hotel, teniendo en cuenta que es un sistema modular y que se puede desarrollar de a partes.
LA ESTRATEGIA DE INTERVENCIÓN = SUPERFICIES. ETAPABILIDAD.
La ejecución por etapas prevé la realización de trabajos de acondicionamiento, transferencia y desalojo de usos existentes incompatibles. En primera instancia, la definición y trazado de las nuevas piezas y la estructura v ial que evitará conflictos y problemas de logística. La remoción y traslado de las interferencias de infraestructura y la ejecución de los trabajos sobre la avenida Baradero y los bordes de canal. Los elementos de construcción industrializada que componen los claustros iniciarán concomitantemente, su producción fuera del predio.
AUTORES/AS OP ARQUITECTOS / MARCELA ORCAJE, GONZALO PÉREZ Y ANA OTTAVIANELLI (ASOCIADA) / EQUIPO DE PROYECTO: ARQUITECTAS FLORENCIA SANTILLÁN, EMILIA MELENDI, MELINA BIASOTTI Y MICAELA ARANCIBIA / ARQUITECTO CARLOS BRIZUELA / FERNANDO URQUIOLA, IVÁN RICO Y MAIA TERWISSEN


PARQUE AMBIENTAL DEL PUERTO
La propuesta de intervención en un área del Puerto plantea la construcción de un espacio público acorde a su posición estratégica: un parque intermedio ubicado entre el Bosque de La Plata, a cuatro kilómetros, y la Isla Paulino-Santiago, a tres kilómetros. Ubicado en el punto de confluencia de la relación entre las ciudades de Berisso, Ensenada y La Plata el “Parque Ambiental del Puerto” es un espacio de oportunidad para el disfrute colectivo.
Se propone la integración de las áreas mediante un parque público que vincule el soporte natural, la estructura portuaria e industrial, las preexistencias significativas, los nuevos edificios, el dock central de puerto y los bordes urbanos con los que limita. La propuesta implica diversas escalas de actuación: Territorial. Constituye una compleja articulación entre el soporte natural -de gran valor ambiental y paisajístico- y el artificial, que incluye la infraestructura del puerto diseñado por Waldorp, con las sucesivas transformaciones que afectaron

su estructura. La accesibilidad al sitio, donde se yuxtaponen dinámicas diversas, que van desde lo productivo con la zona franca, los astilleros y el sistema industrial, hasta los espacios de ocio y deportes náuticos en relación a la ribera. Urbana. En esta escala, conviven la cuadricula de manzanas, la linealidad del puerto y sus canales con el verde que le sirve de soporte, con un oscilante espacio público que constituye un escenario poco aprovechado y con huellas de conflictos. Dicha trama coexiste con un inesperado paisaje de puentes y cursos de agua, conviviendo con la domesticidad. La presencia de la calle Nueva York y el barrio Campamento se constituyen como sitios de memoria y escenarios de acontecimientos históricos. Arquitectónica. En un área donde los espacios domésticos aún conservan el legado de las casas de chapa de gran valor patrimonial en convivencia con la contundencia de las construcciones industriales y edificios históricos de gran impacto, vinculados a la memoria colectiva, junto a artefactos diversos de la infraestructura portuaria y petroquímica.
El paisaje emergente se constituye como testimonio, como un palimpsesto entre la naturaleza primigenia y las huellas de las diversas intervenciones, siendo transversal a todas las escalas y como un potencial escenario de conciliación territorial, urbana y arquitectónica
¿Qué conservar? ¿Qué recuperar? ¿Qué intervenir? Son acciones a considerar en un nuevo escenario que permita integrar el Puerto a la comunidad, incluyendo el derecho a la ciudad y el bien común, centrado en el espacio público como protagonista del proyecto.
El Parque del Puerto plantea las siguientes estrategias:
• Considerar el sistema de movimientos y accesos al Puerto, incluyendo la nueva traza de la autopista que prevé nuevas bajadas en Camino Vergara y avenida 60 y que amortiguaría el tránsito de la calle Baradero.
• Desarrollar una secuencia de espacios públicos, jerarquizando calles, plazas y edificios públicos.
• Volver a la naturaleza, recuperando los valores ambientales de la ribera.
• Desarrollar una mejor conexión entre las ciudades, a partir de solucionar las escalas vehicular, peatonal, náutica y alternativas, como la bicisenda.
• Integrar espacios de ocio y trabajo.
• Recuperar las preexistencias significativas y el rol de la cultura y la memoria.
• Jerarquizar el sistema de canales y el dock central integrados al Parque del Puerto.
• Incluir los espacios domésticos y los barrios próximos.
• Plantear una infraestructura sostenible que involucre distintos actores sociales, entendiendo al espacio público

como una oportunidad de conciliación. La estructura propuesta implica: Nuevos programas. Se vinculan a necesidades concretas del sitio y de los diversos actores -residentes, trabajadores, empresas-, pero básicamente a la idea de parque activo donde conviven actividades educativas, laborales, de ocio, de formación, entre otras. Espacio público. Plantea distintas instancias que abordan calles, veredas, senderos y plazas.
Calles. La calle Baradero se reformula no solo como espacio de conexión entre Berisso y Ensenada, sino como espacio público de disfrute. Se contempla la inclusión de una franja verde intermedia y la realización de veredas que permitan incluir superficies absorbentes. Entendiendo la necesidad de conservar el carácter de la calle Baradero como vínculo vehicular, el proyecto propone la redefinición de sus bordes, originando diversos espacios que permiten su ensanche para incluir espacio público a fin de articular sus bordes con el entorno. Veredas, equipamiento urbano, mobiliario, paradas de micros, dársenas laterales con estacionamientos temporales para la feria y el puesto de informes, taxis, flujos diversos, se consideran en la reformulación de la calle. Sendas. Se definen sendas que se complementan con la vereda de la calle Baradero, la senda del agua rodeando al dock y el sendero de borde peatonal del Parque. En conjunto proponen un recorrido múltiple, versátil y dinámico en relación al paisaje natural y urbano, a la contemplación y disfrute del agua, el paisaje industrial y la conexión con los edificios significativos y el entorno urbano. Se complementan con puentes sobre la calle Baradero, haciéndose eco de los puentes existentes a fin de satisfacer el movimiento peatonal. La pasarela que rodea el dock central

plantea la posibilidad de reubicar los conductos de fluidos bajo la misma en todo el perímetro, racionalizando recursos. Plazas. A lo largo de la calle Baradero, se propone una secuencia de plazas que vinculan la calle y la vereda con los conjuntos arquitectónicos existentes y nuevos.
Los usos se definen de acuerdo a la identidad de cada sector.
Plaza Ambiental / Zona 4. En torno al Canal de reunión se ubica el centro de interpretación del puerto y espacio del ecosistema del río; incluye aula, invernadero, huerta y dispositivos de energía renovable. Conforma la puerta de acceso a todo el conjunto a partir de un puesto de informes ubicado en la antigua escuela de la Marina Mercante, que se reformula como Centro de Información del Parque, define el acceso al Centro de Convenciones y Hotel. Este sitio se complementa con la reformulación de la estación de servicio y la inclusión de un extenso parque para usos recreativos, didácticos y sociales, reforestando el área con especies autóctonas, a partir del vacío que genera la erradicación de la planta de hormigón.
Plaza de la Cultura / Zona 3. La Usina hidráulica se encuentra en una situación privilegiada, frontal al dock se extiende entre el estacionamiento y la Usina de la Cultura, planteando un espacio lineal que acogerá funciones públicas como el Mercado de la Ribera, la Fiesta provincial del Vino de la Costa y el Festival de Cine / FICE. Servirá también de escenario para la Fiesta Nacional del Inmigrante, propuesto como un espacio de encuentro social en relación a las tradiciones locales y al vínculo con el edificio más emblemático del sitio. Incluye espacios para la educación y la cultura, integrando aulas, talleres, salas y el Museo en la ex Usina, con criterios de flexibilidad. La Plaza de la Chimenea y el Museo complementan este espacio.



Plaza del Agua. Ubicada sobre el dock y en coincidencia con el eje del canal de acceso, permite el contacto directo con el agua y la contemplación de las actividades portuarias. Un sistema de muelles permite la conexión con el Barco-Museo y el embarcadero.
Plaza del Deporte / Zona 1 (ex Club YPF) se ubica en un ángulo entre la calle Baradero y la Plaza del Puerto, frontalmente al Polideportivo. De importantes dimensiones, propone usos deportivos incorporando sectores de servicios para su correcto funcionamiento. Además, este edificio se plantea como escenario de eventos masivos, dada las dimensiones que posee. Se incorpora una estructura perimetral liviana a fin de integrar las partes, dotar de servicios para público y deportistas, e incorporar gradas rebatibles complementarias a las existentes, para otorgarle flexibilidad.
Estacionamiento jardín / Zona 2. Se plantea incluyendo la ampliación de la superficie actual a fin de atender la demanda de los nuevos usos. Incluye un jardín de flores perimetral y una pérgola de paneles solares que atiende las necesidades de energía de las nuevas actividades, otorgando al sitio criterios de
sustentabilidad e inclusión de energías limpias. Edificios preexistentes. Son varios los edificios que se incluyen en el proyecto, atendiendo las necesidades y potenciando los posibles usos, considerando la premisa de “nunca demoler, eliminar o sustituir, siempre añadir, transformar y reutilizar” (Lacaton y Vassal), atendiendo a la transformación de paradigma en relación al cambio climático y al consumo de recursos que genera la construcción de edificios. Obviamente que en el conjunto hay sitios de valor patrimonial, vinculados con la memoria colectiva que requieren atención y replanteo de sus actividades. La Usina hidraúlica es, sin duda, el más importante, por su posición frontal al dock y su historicidad. El edificio que permitía mover las grúas del puerto, propone un nuevo paradigma como condensador social. Compuesto por dos edificios, la contundente Usina, de lenguaje ecléctico y de planta basilical, junto con la posteriormente anexada usina eléctrica de carácter pragmático y estructura de perfiles, chapa exterior y madera interior, proponen un Centro cultural y educativo, incluyendo un museo, aulas, salas de distinta dimensiones, talleres, comercios y actividades públicas.

Para ello se recurre al concepto de analogía formal y adición, que atiende la condición de etapabilidad requerida, a la vez que incorpora un testimonio del paso del tiempo y de la “atmósfera” que la naturaleza generó en una de las naves, y sirve de soporte para incluir un sistema de movimientos que vincula todas las partes y niveles. Las nuevas piezas se desarrollan con tecnologías equivalentes de estructuras metálicas y cerramiento de chapa y madera. Por otra parte, se trabajó la escala doméstica de las nuevas intervenciones a fin de no incidir en la jerarquía de la Usina hidráulica como pieza central de la composición. Un espacio lateral, rodeado de vegetación, se propone como ámbito para las distintas ferias que utilizarán temporalmente el sitio, en una situación de frontalidad con el dock central, que incluyen una dársena vehicular vinculada al movimiento que requieren los nuevos usos. El bosque posterior se integra al parque público mediante senderos de reconocimiento y detección de piezas de la arqueología industrial del sitio. Lateralmente, el conjunto compuesto por el ex Club YPF se
rescata a partir de la valoración de sus espacios significativos para incluir el comedor de los trabajadores del Puerto en planta baja y el SUM existente; dadas las características espaciales del edificio, se incluyen los servicios de cocina en planta baja, complementando la existente en planta alta para el SUM, anexando lateralmente una pequeña torre de oficinas. Nueva forestación y conservación de la existente Se propone un estudio de las especies existentes y su estado de conservación a fin de evaluar su recuperación para el paisaje del Parque. La nueva vegetación, básicamente integrada en la Zona 4, propone la regeneración de un ambiente original, atrayendo la fauna. La forestación de menor altura, transitable y permeable desde lo visual, incluye espejos de agua reproduciendo las condiciones de bañados para su reconocimiento y comprensión. La propuesta paisajística del Parque en diversos puntos rescata el entorno natural para que sea perceptiblemente rico durante todo el año, promoviendo la contemplación y uso del espacio verde y el paseo peatonal perimetral, así como también


busca delimitar el área del mismo.
Nuevos edificios. El Centro de Hotelería y Convenciones se ubica en un ángulo de la Zona 4, planteando un edificio etéreo y palafítico. Mientras las habitaciones establecen vínculos con la naturaleza, el Centro de Convenciones abre al dock central. En el otro extremo, comparte el área sustentable con la reformulación de la Estación de Servicio, que incorpora las nuevas prácticas ecológicas de abastecimiento.
Para la Escuela de la Prefectura Naval Argentina, se propone su relocalización a fin de atender las necesidades formativas en un espacio de centralidad del sitio.
Etapabilidad y flexibilidad. Tanto los nuevos edificios como los existentes han incorporado plantas abiertas y criterios de adición, ante la posibilidad de cambios de uso y etapabilidad, de acuerdo a la demanda y criterios de flexibilidad requeridas por una sociedad dinámica.
Accesibilidad universal. Se atiende mediante la eliminación de barreras arquitectónicas, la inclusión de rampas y ascensores
y todos los equipamientos necesarios.
Equipamiento urbano. Se propone una “estación” replicable a lo largo del sendero perimetral que, a manera de rizoma, coloniza el Parque dotándolo de puntos de encuentro, información sobre el mismo, zonas de cargas, áreas de estar, juegos y entretenimiento.
Sustentabilidad. Se formula un espacio capaz de proponer un modelo productivo que interactúe con lo social, tenga posibilidades de rentabilidad (a partir del alquiler de los sitios significativos de manera temporal) y rescate el medio ambiente en convivencia armónica con las actividades portuarias.
La propuesta del Parque Ambiental del Puerto plantea una reflexión sobre la complejidad del sitio y trata de marcar un punto de inflexión en un sector de la ciudad de alta productividad, cargado de significación histórica que, a la vez, nos brinde la posibilidad de recuperar el paisaje portuario en convivencia con el entorno natural y, como espacio de encuentro social, nos permita encontrarnos en las diferencias.





ARQUITECTOS

Para el Plan Maestro del dock central del Puerto de La Plata. desarrollamos un compendio de ideas fundado en los siguientes lineamientos:
1. SOPORTE URBANO.
• La idea central del proyecto arquitectónico es la creación de una gran promenade o paseo peatonal que actúe como un hilo conductor entre los diferentes fragmentos que conforman el Parque del Puerto, generando una conexión fluida entre los diversos elementos históricos, culturales y ambientales del lugar. Estos fragmentos incluyen la ex usina, el ex edificio de eventos de YPF y el Salón de Usos Múltiples, que serán revalorizados a través de intervenciones arquitectónicas que rescaten su valor histórico y cultural, a la vez que promuevan su integración con el paisaje circundante.
• El proyecto busca, además, aprovechar la ubicación privilegiada del Parque, en el remate del dock portuario, mirando directamente al río. Este elemento paisajístico se convierte en un componente esencial de la propuesta, ya que la vista hacia el agua crea una fuga visual que conecta el espacio con el entorno natural. Este vínculo con el paisaje tiene un fuerte componente simbólico: el Parque, anteriormente dedicado a fines industriales, se reconvierte ahora en un espacio cultural, ambiental y de memoria.
• La promenade actúa como un nexo, no solo entre los distintos elementos del parque, sino también entre las ciudades vecinas de Berisso y Ensenada. Este vínculo urbano y social tiene como objetivo fortalecer la identidad de la región y fomentar un sentido de pertenencia compartido entre ambas comunidades. La intervención arquitectónica propone, por lo tanto, una
conexión que no solo es física, sino también emocional y cultural, proporcionando una nueva perspectiva sobre el paisaje que, durante mucho tiempo, estuvo al servicio de la industria.
• El enfoque del proyecto es generar un espacio de reconversión, donde el valor histórico y arquitectónico de los edificios existentes se combina con un nuevo programa cultural y ambiental, creando un lugar vibrante y activo que celebra el patrimonio local. A través de una cuidadosa intervención, el proyecto busca no solo conservar, sino también reinterpretar los espacios históricos, dotándolos de un nuevo sentido y de nuevas oportunidades para la comunidad, con la mirada puesta en la sostenibilidad y el respeto por el entorno.
• El proyecto propone que cada fragmento se transforme en un nodo cultural autónomo, pero interconectado dentro de un sistema mayor, permitiendo un desarrollo gradual y funcional. Esta intervención busca revalorizar el patrimonio industrial y convertirlo en un espacio cultural y ambiental que fortalezca el vínculo entre Berisso y Ensenada, ofreciendo una nueva perspectiva del paisaje, antes al servicio de la industria, ahora como un condensador de historia, cultura y naturaleza.
2. SOPORTE EDILICIO.
En base a los edificios existentes patrimoniales, postulamos una propuesta que enhebre cada una de la partes, intentando construir un sistema edilicio.
1. Contenedor gastronómico multicultural. Un edificio contenedor de múltiples programas -culturales, gastronómicos, recreativos, entre otros-, que conforme un gran frente al canal, simbolizando una fusión entre Ensenada y Berisso.
Un edificio de morfología horizontal, galponera, simple, sencillo
de realizar, que incorpore a los dos galpones laterales de la Usina y que defina un espacio cubierto y semicubierto que pivotea entre la Usina cultural y el Hotel, que da acceso a un parque temático ambiental interior.
2. Usina multifunción. Una gran sala para eventos, icónica, que da jerarquía y genera un contrapunto al Paisaje conformado.
3. Patio multieventos. Reestructurando los dos edificios existentes, intentamos conformar un área de eventos para festivales, recitales, encuentros de mediana masividad. El salón de grandes luces existentes se complementa con un edificio de servicios gastronómicos, conformando entre ellos un patio urbano.
4. Hotel. Se incorpora un Hotel en una torre de mediana escala, vinculado al sector multicultural/gastronómico. Este emprendimiento se implanta en una parcela independiente, con accesos y estacionamientos propios para posibilitar la gestión del mismo en formato mixto público/privado.
5. Oficinas ex Club YPF. Propiciamos la puesta en valor del patrimonio edilicio, como así también la de sus jardines perimetrales.
6. Escuela de Prefectura y comedor. Proponemos su implantación en el sector del ex Club YPF como anexo, con acceso y estacionamientos independientes.
7. Playones deportivos. Planteamos un sector deportivo con tres playones multiuso con sus estacionamientos, que funcione como nexo entre el Parque y la Estación de servicio.
Conectividad / Movilidad, interacción y paisaje. La conectividad trasciende la movilidad física para abarcar dimensiones culturales, emocionales y paisajísticas, promoviendo un vínculo profundo entre las personas y su entorno. Este enfoque fomenta un sentido de pertenencia y fortalece el tejido social, integrando lo funcional con lo experiencial. La conectividad propuesta intenta conformar un gran paseo urbano que articula las diversas áreas del proyecto, como ser parques, deportes, sectores de regeneración ambiental, áreas edilicias, entre otras.
Condensadores sociales / Espacios para la convivencia y la comunidad.
Los condensadores sociales son puntos clave de interacción y convivencia que fortalecen el tejido social. La propuesta incluye
playones gastronómicos -que combinan oferta culinaria y encuentro-, museos -como centros culturales y educativos-, y salones de usos mixtos, ideales para diversas actividades comunitarias, como la Fiesta del Inmigrante y el FICE. También se encuentran postas deportivas y playas de juegos, que promueven recreación y bienestar, así como huertas comunitarias y ferias, que fomentan la sostenibilidad, el aprendizaje colaborativo y el comercio local. Estos espacios integran funciones sociales, culturales y recreativas, creando comunidades más unidas e inclusivas.
4. SOPORTE AMBIENTAL Y PAISAJÍSTICO.
Paisaje / Conexión emocional y sensorial. Miradores urbanos. Proponemos miradores panorámicos que enmarcan vistas amplias y secuenciales, ofreciendo nuevas perspectivas del paisaje.
Jardines. Incorporamos jardines, con colores y aromas como dama de noche y lavanda, que crean experiencias sensoriales únicas. Singularidades. Incorporamos singularidades vegetales como jacarandás y ceibos para dar carácter a distintos sectores, y huertas urbanas que promueven la sostenibilidad y el encuentro comunitario.
Vegetación. Respetamos la vegetación nativa, incorporando alineamientos de especies como sauces para los bordes costeros y palo amarillo y tala para áreas de parques y zonas urbanas. Regeneración productiva. Viveros locales fomentan la regeneración de especies autóctonas. Islote de camalotes en el agua revitaliza el ecosistema ribereño, fortaleciendo la conexión entre las personas y su entorno natural.
Reconversión ambiental / Sostenibilidad y recuperación ecológica.
Restaurar el borde ribereño con especies locales, como cortaderas, azucenita de noche y sauces, e incorporar un islote verde de camalotes para enriquecer el ecosistema acuático. Respetar la vegetación autóctona, dando entidad a la flora nativa, e instalar pantallas verdes para controlar las visuales no deseadas. Incorporar huertas urbanas y viveros que fomentan la sostenibilidad y el encuentro comunitario, apoyando la regeneración de la biodiversidad.
Restaurar las edificaciones patrimoniales, dándoles nueva vida y fortaleciendo el vínculo con la historia local.

















AUTORES/A ARQUITECTOS ALEJANDRO CASAS Y FEDERICO GARCÍA / ARQUITECTA MARÍA JOSÉ FALCIONI
COLABORADORES/AS FACUNDO ROIG HONDAGNEU, NICOLÁS DUPONT, MATEO GIANNI, DIEGO ARRIOLA, CANDELA YURI Y MARÍA FERNANDA PIAMONTI (ASESORA ARTÍSTICA)

CONSIDERACIONES GENERALES.
La región de La Plata/Berisso/Ensenada se ha convertido a lo largo de las últimas décadas en un área de gran potencial, acompañada por una rica historia que ha marcado a fuego la identidad, tanto de Berisso como de Ensenada. Su fuerte impronta industrial, la mixtura cultural producto de la inmigración y el intercambio portuario que otrora fuera característico de la región, poco a poco ha ido perdiendo pregnancia para dejarla en un estado de espera para su futuro. Ese futuro debe reescribirse desde muchas dimensiones -social, cultural, económica, productiva y, especialmente, urbana-, que marquen los lineamientos futuros de desarrollo. Es por ello que entendemos a la convocatoria generada por el Consorcio de Gestión Puerto La Plata como una oportunidad para reflexionar sobre este futuro. Pensamos que los conflictos emergentes se resumen en la movilidad (conexiones viales, peatonales, etc.), la fragmentación urba-

na (determinada por lo físico y por lo social) y la gestión ambiental (en este caso en particular, con posibilidades de mitigación).
Es así que creemos que la única herramienta capaz de condensar las líneas de trabajo antes mencionadas es el espacio público, como condensador social. Creemos que debemos afrontar la ciudad futura desde la noción de dotarla de más y mejor espacio público. Es por ello que proponemos al Distrito Dock Central Puerto La Plata como un gran parque público que amalgame las características de la región, trayendo su rica historia hacia el presente y proyectando las posibilidades futuras hacia adelante.
ESCALA REGIONAL.
Las características ambientales originales del sector, condicionadas por el bañado Maldonado como humedal regulador -el cual ha disminuido significativamente su capacidad desde 1890 a esta parte-, se contraponen con las necesidades urbanas de la

región y específicamente las conexiones necesarias para el intercambio de bienes y servicios que potencien la capacidad productiva del mismo. A esto debemos sumarle la complejidad de un sector urbano de gran fragilidad en cercanías de un polo petroquímico, en un equilibrio urbano y ambiental sumamente frágil. Entendemos que desde nuestra propuesta no podremos dar solución a estos temas de escala regional y provincial, pero que sin duda debemos plantear los posibles lineamientos futuros para poder mitigarlos. De esta manera, creemos necesario potenciar y acrecentar la superficie de espacios verdes en el sector, pero de manera interconectadas desde el Bosque de La Plata, acompañando las vías del ferrocarril en su paso por Destilería y, sobre todo, en ambos canales paralelos al Puerto y al sector de Destilería, que permitirían a futuro, con el saneamiento de los mismos, generar posibles caminos de comunicación fluvial o terrestres con la zona del Puerto. Es así que entendemos que acompañado con
la extensión de la Autopista La Plata-Buenos Aires, permitirá dinamizar los accesos al Puerto desde el interior del país, por Camino Vergara en Ensenada, y por la avenida del Petróleo en Berisso. Esta futura conexión es fundamental para quitarle carga de tráfico a la avenida Baradero y a la avenida 122, evitando la actual fragmentación urbana existente en estos sectores.
EL ÁREA DEL CONCURSO: DISTRITO DOCK
CENTRAL / PUERTO LA PLATA.
Entendemos al sector como un palimpsesto o derrotero histórico que plasma en hechos físicos y urbanos la historia de los últimos 150 años de antropización del mismo. De este modo, el Dock Central hace llegar el rio hasta el bañado Maldonado, las huellas del pasado productivo del sector, la vieja Usina eléctrica, el Club YPF, vías del ferrocarril en desuso y hasta vestigios de canales artificiales, son el insumo de las ideas urbanas a proponer. Además, el presente está definido por las necesidades específicas



del Puerto La Plata y Destilería YPF, los conflictos con áreas urbanas inmediatas y la única conexión vial entre Berisso y Ensenada. Es así como el paisaje está dominado por infraestructuras industriales de todo tipo, nuevas y viejas. Entendemos entonces que el gran desafío es coser e hilvanar una relación entre fragmentos intersticiales definidos por los cuatro sectores del proyecto que doten al sector de un nuevo elemento condensador que unifique y ligue a ambos municipios con el Puerto.
LA PROPUESTA.
Paseo de interpretación del Sitio
El nuevo Distrito se estructura a partir de una nueva infraestructura adicional a las ya existentes. Una nueva infraestructura, ya no industrial sino urbana, que recorre la calle Baradero desde el antiguo club YPF, en Ensenada, hasta el nuevo Parque del Dock en Berisso. En su recorrido se convertirá en un paseo de interpretación del Sitio, donde la sociedad podrá visualizar el pasado, entender el presente y proyectar el futuro de la región. Además de su recorrido en nivel 0, permite, por medio de sus recorridos en nivel +8.00, dinamizar el tránsito vehicular por la calle Baradero, permitiendo la vinculación peatonal por los diversos sectores. También da el marco para actividades de encuentro y define la nueva identidad del sector. Esta pieza se materializa mediante una grilla espacial metálica, que, por momentos, hace de protección para ferias (Mercado de


Frutos), luego pasa a ser puente cruzando Baradero, se convierte en loggia que permita enmarcar el frente sobre el Dock con actividades gastronómicas y finalizar como límite del nuevo Polideportivo YPF. También sirve de mirador en todo su recorrido.
Sector 1: ex club YPF
Proponemos concentrar las actividades propias del Puerto, con oficinas, comedor, la recuperación del Polideportivo y la creación de un gran playón de eventos. En estos sectores se podrán realizar recitales, el Festival de Cine, y actividades deportivas. Además, en este sector se realojará la Escuela de Marina Mercante con mayores posibilidades de crecimiento futuro. La plaza del Puerto será reacondicionada con el aporte de un Skate Park y juegos infantiles para el Barrio El Farol.
Sector 2: Parque Empresarial
El dinamismo del sector del Puerto debe ser acompañado, sin dudas, por espacios de trabajo acordes para las empresas que así lo requieran. En este sentido, entendemos que el actual sector podrá contener 13.000 metros cuadrados de espacios de trabajo. También se contemplan espacios gastronómicos y estacionamientos propios, además del estacionamiento exclusivo de los trabajadores de Destilería. Los edificios se intercalan con estacionamientos y plazas, donde prevalezca el verde. Esto permitirá que las inversiones privadas puedan desarrollar de diversos modos las estrategias a implementar.





Sector 3: Usina y centro de convenciones
Este sector se caracteriza por la gran presencia de verde: un bosque frondoso de especies naturales autóctonas y foráneas enmarcan la antigua usina. Es así que entendemos que debemos reforzar las características ambientales y espaciales del sector, con la recuperación de la Usina y la incorporación de una nueva pieza que apoyará las actividades empresariales y culturales. Un Centro de Convenciones con Hotel que permita dotar al sector de una actividad vacante para ambas ciudades. El mismo se presenta como una pieza en fuerte relación con el verde, donde el parque pase por sobre su cubierta, dejando emerger solamente la pieza del Hotel. En cuanto a la Usina, pieza característica del patrimonio del Dock (hoy abandonada), deberá ser puesta en valor y restaurada como un nuevo espacio de arte contemporáneo. Sera un lugar de exposición, pero por sobre todo de formación. Sera la Usina del Arte. La ciudad de Berisso cuenta con una larga historia con este tema, con la creación en 1973 de la Escuela de Artes (EAB), donde artes visuales, música y teatro se han desarrollado desde entonces, y es la Usina un lugar propicio para poder exponer y desplegar actividades de extensión. Además, contará con una cafetería y bar.
Sector 4: Parque del Dock
Este sector se define como la pieza de relación directa con el Dock. Es por ello que enmarcada entre la grilla espacial que contendrá el Mercado de Frutos y Ferias de Artesanos locales -con venta de productos de la Costa-, y en su otro extremo una serie de locales gastronómicos, dará el soporte para
el uso cotidiano del sector. Sobre el Canal de Reunión, se desarrollan las actividades náuticas de bajo impacto -kayak, bicicletas de agua, etc.- con tres bajadas puntuales.
En este sector se propone realizar el desembarco de la Fiesta Nacional del Inmigrante, junto con el desarrollo de la Fiesta, con la posibilidad de armado de stands y ferias dándole el marco ideal para su expansión.
ETAPABILIDAD.
Es voluntad de la propuesta, proponer diversas estrategias de etapabilidad que permitan la gestión, por parte del Consorcio, de su implementación futura. De esta manera, entendiendo que los cuatro sectores se han fragmentado, cada uno puede resolver su propia etapabilidad independientemente de los demás. Es, sin dudas, la pieza de la grilla espacial la que, si bien puede desarrollarse en etapas por su condición modular, debe ser realizada para poder terminar de ligar y amalgamar la propuesta. Etapa 1/ Recuperación de la calle Baradero, actualmente en desarrollo con iluminación urbana, mobiliario y señalética, y construcción de la Escuela de Marina Mercante en Sector 1 para poder liberar el Sector 4.
Etapa 2/ Sector 4: construcción de la nueva Estación de Servicios con locales comerciales y parque del Dock. Esto permite dotar de espacios públicos de inmediata ocupación para poder desarrollar actividades.
Etapa 3/ Sector 1: Recuperación del Polideportivo YPF que consolide la cabecera de Ensenada, logrando equilibrar actividades en ambos extremos.



Etapa 4/ Desarrollo de la grilla espacial y Centro de Interpretación del Sitio.
Desarrollo del Parque empresarial en y nuevo estacionamiento de YPF (Sector 2) y desarrollo del Hotel y Centro de Convenciones. Esto permitirá la generación de recursos para el desarrollo de la grilla espacial y la recuperación de la vieja Usina y el parque de la misma (Sector 3).
En estos casos, al ser inversiones público-privadas podrán ser desarrolladas con autonomía de las anteriores.
PAISAJE.
El área de trabajo se encuentra fuertemente impactada por la industria. Es así que la presencia de especies naturales es escasa, con arbolado urbano en los sectores de la plaza del Puerto y presencia de vegetación autóctona de la ribera en los canales. Sin embargo, en el Sector 3 se encuentra la mayor concentración de especies de gran porte.
Se intenta lograr una propuesta sustentable que instale la idea del uso de un espacio público, que respete y reconstruya el hábitat natural mediante la implantación de flora autóctona que, a su vez, convoca a la fauna autóctona y permite la recuperación de un ecosistema propio del sitio, aunque con nuevas y urbanizadas aristas. Es la idea de este proyecto reformular las existencias, conservando toda la vegetación cuyo estado fitosanitario y su condición sean óptimos (plaza del Puerto, sector de la Usina, ribera de los canales) y darle un giro que aborde los conceptos de restitución del ecosistema natural y desarrollo sustentable del paisaje que nos obliga a desplazar el eje ornamental, decorativo y de búsqueda de confort, para priorizar la conservación y regeneración de los ecosistemas nativos existentes.
Se tomarán decisiones paisajísticas que intenten mantener la mayor superficie absorbente posible y también la mayor forestación admisible, de manera de consolidar escenarios de resiliencia ante el cambio climático. Los ecosistemas nativos o autóctonos nos prestan importantísimos servicios ambientales que debemos aprovechar al máximo y multiplicar: son fuente de biodiversidad, actúan sobre la regulación de los ciclos de nutrientes, favorecen la reserva y regulación de agua disminuyendo la evapotranspiración, colaboran en la regulación de las temperaturas, etc. Se seleccionaron las siguientes especies arbóreas y herbáceas nativas, para generar bosques y praderas urbanas: Árboles: Tala Celtis tala, Cina cina Parkinsonia akuleata, Sauce criollo Salixhumboldtiana, Palo borracho y Ceiba speciosa Herbáceas: Marcela Achyroclinesaturoides, Chilca Baccharis latifolia, Vara de oro Solidagosp y StipaStipasp.
CONCLUSION.
Proponemos la inserción de un nuevo ícono urbano-arquitectónico, protagonista de la nueva operación de reconversión del Sitio para las futuras generaciones. Un lugar de encuentro de la comunidad de la región, con el propósito de potenciar la actividad turística y comercial del área, integrándose a las actividades portuarias existentes sin impedir las posibles expansiones futuras de éstas, afianzando el carácter multifuncional de la zona portuaria, y resaltando el valor cultural, patrimonial e histórico del Dock Central del Puerto La Plata, que fue, es y será un motor de desarrollo de La Plata, Berisso y Ensenada. Entendemos al Distrito del Dock Central como un parque urbano vibrante con actividades culturales, de ocio, productivas y recreativas permanentes.





INTRODUCCIÓN
La dimensión simbólica del sector a intervenir, contiene un peso histórico particular. La ubicación del remate del Dock Central del Puerto La Plata, incluye sobre sus huellas y superposiciones rastros de la historia que acarrea la consolidación de las ciudades de Berisso y Ensenada y el impacto de la fundación de la nueva capital provincial.
Zona industrial y productiva por excelencia, concentra en su radio de influencia una sociedad que creció al calor de su desarrollo fabril. Sobre el Dock Central se traza el eje que divide los partidos de Berisso y Ensenada, y sobre ello reside también, el peso de la historia de una hipotética extensión del trazado del agua hasta el Bosque de la ciudad de La Plata que finalmente no fue. La vinculación truncada de la nueva capital planificada con el agua, el desarrollo industrial del sector como motor económico productivo de la zona de influencia, el paulatino desembarco de grandes industrias, los frigoríficos, los astilleros, el tren de carga, el puerto, la calle Nueva York, fueron caracterizando el conglomerado urbano con particularidades de complejidad metropolitana. Consideramos al sector como un reducto plagado de potencialidades, no solo de reactivación y refundación productiva continuando la línea histórica programática que lo compone, sino también como un lugar fértil para una transformación que busque la mixtura urbana de usos, que dinamice fuertemente el espacio, en donde sucedan inéditas formas de transitarlo, vivirlo. Una apertura al uso público intenso, al desglose de distintas formas de atravesarlo. Peatonales en el nivel cero, ciclovías y pasarelas aéreas, hitos urbanos de referencia identitaria, miradores del Río de la Plata, mercados, gastronomía, parques, polideportivos, usos puntuales y masivos que modifiquen el uso industrial actual, prácticamente exclusivo. Buscamos que la intervención genere la nueva puerta de acceso a la futura metrópolis de la capital provincial, de tal forma que se
transforme en un lugar de referencia, pero al mismo tiempo, en la imagen icónica que sintetice y represente a uno de los enclaves estratégicos de la provincia y el país. Es objetivo de la idea, al mismo tiempo, devolverle a la ciudadanía el uso del espacio público en relación al agua y en convivencia con la industria y las grandes infraestructuras, con una visión integral y estratégica de la ciudad, ofrecer nuevas funciones y mixtura de servicios, recorridos urbanos alternativos y diversas actividades. Este espacio en tensión con los espacios públicos circundantes, así como con el conglomerado industrial, permiten asegurar un futuro sostenible de dinámica urbana intensa para las aglomeraciones urbanas contemporáneas en la medida que aseguran la pluralidad de encuentros y actividades de los grupos humanos que dan vida a la urbe (Pablo Vega Centeno).
ESTRATEGIAS ESTRUCTURANTES DE LA IDEA.
Región Metropolitana. El área de influencia conformado por los partidos de La Plata, Berisso y Ensenada, paulatinamente, va constituyendo un área de características metropolitanas de importancia: el desarrollo de la zona industrial y portuaria, la infraestructura, las áreas productivas, el cordón frutihortícola, la cantidad de población y la velocidad con la que se está dando la expansión de la mancha urbana, son algunos de los puntos a tener en cuenta en la comprensión integral. Esto conforma una potencialidad posible de desarrollar diversos escenarios que generen las condiciones para profundizar un crecimiento inducido, el cual debe tener como norte la mejora de las condiciones urbanosociales del partido. Abandonar la fragmentación programática e impulsar un camino hacia la mixtura de usos y la dinamización del espacio público posibilitaría situaciones hoy inexistentes. La historia de la ciudad es la de su espacio público. Las relaciones entre los habitantes y entre el poder y la ciudadanía se
materializan, se expresan en la conformación de las calles, las plazas, los parques, los lugares de encuentro ciudadano, en los monumentos, las zonas productivas y residenciales. La ciudad entendida desde una concepción holística, sistémica, de redes o de conjunto de elementos -tanto si son calles y plazas como si son infraestructuras de comunicación (estaciones de trenes y autobuses), áreas comerciales, equipamientos culturales, es decir, espacios de uso colectivo debido a la apropiación progresiva de la gente- que permiten el paseo y el encuentro, ordenan cada zona de la ciudad y le dan sentido. Son también el soporte físico de la expresión colectiva y de la diversidad social y cultural. Es decir, el espacio público es a un tiempo el espacio principal del urbanismo, de la cultura urbana y de la ciudadanía, es no sólo un espacio físico, sino también simbólico y político. Viabilizar su uso de forma contundente, es hacer ciudad. La ciudad, escena donde la sociedad se fotografía, donde el simbolismo colectivo se materializa. En este escenario, el
fortalecimiento del espacio público expresa también la democratización política, social y productiva de la sociedad.
Capas, superposiciones, mixtura. La búsqueda de la mixtura de usos va en línea con la interpretación de desandar un camino hacia la ciudad contemporánea, la zonificación y fragmentación de la ciudad con exclusividad de funciones, que fue uno de los fracasos del movimiento moderno en su interpretación de la ciudad del futuro y la urbanidad. La ciudad pensada para las cercanías, descentralizada y equitativa, acerca herramientas en busca de ampliar el derecho a la ciudad. Imaginamos un área que en la superposición de capas -infraestructuras, industria, oficinas, cultura, arte, vivienda, movilidad, accesibilidadencuentre la dinamización y formas de uso inéditas.
Anillo holístico. El anillo, materializado como una pasarela aérea de uso para ciclovía y peatonal, no solo consagra de forma

IMPLANTACIÓN SECTOR URBANO



IMPLEMENTACIÓN FASES
concreta la vinculación de espacios hoy divididos por infraestructuras, arterias viales complejas e industrias, sino que busca instaurar una dimensión simbólica de la intervención urbana. A caballo del eje que separa los partidos de Ensenada y Berisso, y en el remate del Dock Central, buscamos que en su imagen se sintetice la nueva postal de referencia de acceso marítimo a la metrópolis. El anillo intenta volcar una visión holística de la intervención y la comprensión del sector urbano, en donde sus múltiples dimensiones que lo explican conformen una mirada sobre el todo y al mismo tiempo sobre la parte. Simbólicamente, intenta materializar la idea de la costura y vinculación estable y permanente de las tres ciudades. Cada una con su identidad, con su impronta, con su historia y con su gente, le dan forma a la caracterización social del puerto con mayor potencial de la cuenca del Plata.
Promenade. Recorrido Urbano. El anillo se encuentra acompañado de un recorrido desarrollado por pasarelas aéreas que pretenden otorgar no solo la nueva centralidad como núcleo identitario del sector como se mencionó anteriormente, sino también la apreciación del canal y Dock Central desde un punto de vista inédito, a partir de un paseo público que garantiza atravesar de punta a punta el sector de forma segura, pero al mismo tiempo gratificante para el peatón.
Manto vinculante. La intervención integral se sostiene a partir de la generación de espacios urbanos más amigables, accesibles, equipados, principalmente utilizables, aptos para la pausa. Cada uno de los nuevos edificios que conforman la intervención se encuentran absorbido por un manto de piso público que actúa como costura general, encargándose de vincular todo en el nivel cero del sector urbano. Este solado toma forma a partir de lo definido por el módulo densificador, el cuál como estrategia se retira de la calle generando una vereda que se asemeja a una plaza por sus dimensiones, transformando al sector en altamente caminable.
Módulo densificador. Célula Repetible. El módulo densificador es la célula generadora concreta, a partir de su repetición, del perfil y entorno urbano que se pretende crear para la regeneración del sector. Esta célula pretende, a partir de una normalización relativa de alturas, morfologías y estrategias que vayan delineando el marco normativo con el que se tiene que transformar el área, generar paulatinamente un sector urbano dinámico, de mixtura de usos, en donde la génesis industrial no desaparezca, sino que, a partir de transformaciones controladas, permita que la ciudad acceda al agua creando situaciones antes inéditas. Se pretende elevar la condición de ciudadano de quienes habitan en los barrios aledaños al complejo industrial
refinería-puerto-astilleros, creando las condiciones de una ciudad más caminable, mejor transitable, con múltiples formas de atravesarla. La puerta de entrada a la región metropolitana de la capital provincial debe complejizar la superposición de actividades creando un entorno contemporáneo.
Implementación. Fases.
A. Fase 01 / Concurso
1. Manto vinculante. Calles y veredas
2. Anillo, pasarelas aéreas, hitos y miradores
3. Muelles y pontones
4. Nuevo programas y edificios: Mercado de Frutos, Hotel y Centro de Convenciones
5. Rehabilitación del Polideportivo y el ex Club YPF
6. Reforestación del paisaje nativo
7. Nueva YPF del futuro
B. Fase 02 / Futura
1. Urbanización mixta sobre lateral derecho del Canal Central
2. Parques Urbanos Públicos. Espacios verdes reforestados
C. Fase 03 / Futura
1. Urbanización mixta sobre lateral izquierdo del Canal Central
2. Reconversión estratégica de infraestructuras obsoletas. Refuncionalización de espacios públicos, culturales.
Infraestructura del paisaje. Reforestación nativa del sector. El sector a intervenir, en conjunto con la integralidad del Delta del río Santiago y la ribera del Río de la Plata, se encuentran catalogados como “Paisaje Protegido Provincial” por la ley provincial 12756 del año 2001, que propicia “preservar la integridad de su paisaje natural, geomorfológico, histórico y urbanístico”, induciendo a que “los municipios de Berisso y Ensenada celebren acuerdos para establecer formas coordinadas de gestión”. Entendemos que esto se corresponde de forma armoniosa con la propuesta del presente concurso para la reconversión del sector.
Es intención de la propuesta hacer especial foco en la puesta en valor de las condiciones ecosistémicas de un humedal natural que contiene una biodiversidad altamente intensa. Es por esto que en el centro de la propuesta sobre el remate del muelle, se ubicará el Centro de Interpretación de la Naturaleza, para la investigación e implementación de estrategias que se encarguen de conservan y potenciar sus condiciones. Dentro de cada uno de los sectores intervenidos se desarrollan sectores naturales para tal fin, los cuales serán reforestados con especies nativas, intentando poner en valor los diferentes escalafones presentes en el sector, como albardones, pajonales y praderas.









MÓDULO DENSIFICADOR CÉLULA REPETIBLE



Promotor Municipalidad de Bahía Blanca
Organizador Colegio de Arquitectos de la Provincia de Buenos Aires / Distrito 10
Patrocinante Colegio de Arquitectos de la Provincia de Buenos Aires / Consejo Superior
Auspiciante Federación Argentina de Entidades de Arquitectos
Asesores Licenciado Pablo Andrés Forgia (Municipalidad de Bahía Blanca) / Arquitectos Hernán Loffredo y José L. Fernández (Capba D10) / Colaboradora: Arquitecta Estefanía Armillei
Jurados Arquitecta Rosana Vecchi / Ingeniero Horacio Varela / Arquitecto Gabriel Santinelli (Participantes) / Arquitecta Cecilia Bobeda / Arquitecto Martín Castro García
OBJETIVOS DEL CONCURSO
GENERALES
g Consolidar el valor patrimonial y urbanístico del sitio, Mercado y Plaza, y revalorizar las instalaciones en su conjunto mediante una refuncionalización del Mercado y Plaza Lavalle.
g Crear conciencia sobre la importancia del espacio público en la interacción y el desarrollo social y cultural de la comunidad.
g Adecuar y/o reformar las construcciones existentes en concordancia con los nuevos requerimientos para este tipo de espacios de uso mixto, tal como lo ha manifestado el Municipio como su objetivo para la comunidad.
g Incentivar la participación de la comunidad en proyectos públicos, a través de sus instituciones. Atender el desarrollo de arquitectura sustentable, como garantía de inversión.
g Crear un centro, nodo o referente urbano-arquitectónico cultural en un sector ampliamente reconocido por la población de Bahía Blanca, y que además sirva de atracción al turismo de la región.
ESPECÍFICOS
g Refuncionalizar y poner en valor todos los sectores del Mercado destinados al uso público, sin inclusión de las cocheras.
g Lograr un tratamiento unificado de todos los espacios públicos de la manzana, incluidos sus bordes.
g Mejorar la relación de la Plaza con las vías de circulación peatonal y vehicular que la rodean.
g Lograr una vinculación clara, directa y bien articulada entre calles, Plaza y Mercado.
g Readecuar los sectores del Mercado para los usos planteados en el programa.
g Proponer y/o re-proponer usos posibles para algunas áreas del edificio.
g Consolidar, mediante la mejora de las instalaciones del Mercado, actividades tendientes a la comercialización de alimentos y otros productos producidos y elaborados en la región, como así también espacios destinados a la gastronomía.
g Proponer obras en el piso superior y terraza del edificio, destinadas a actividades culturales, en particular para las nuevas modalidades de expresión artística joven.
g Proponer para la Plaza obras que claramente sirvan de soporte a la interacción y encuentro social, manifestaciones artísticas callejeras, congregaciones de grupos o asociaciones con fines específicos, todas ellas ajustadas a las modalidades de la época y para todas las edades.
g Proveer servicios públicos básicos de bajo mantenimiento (baños, cabina de información y otros).
g Dotar el lugar de obras amigables con el medioambiente, o que mejoren las condiciones ambientales.

AUTORES/A ARQUITECTOS JUAN MARCOS BASSO Y CARLOS MANUEL MENNA / ARQUITECTA LORENA EGUIGUREN COLABORADORES/A ARQUITECTO ALEJANDRO DELUCCHI / ANISA IBARRA, MATÍAS NICOLÁS SCHOUABS, GASTÓN SEBASTIÁN SCHOUABS, JERÓNIMO AGUSTÍN LOPEPE Y EMANUEL PELAEZ

El microcentro, en los últimos veinte años, ha desarrollado una dinámica expansiva propia de la concentración de actividades en áreas centrales. Es reconocido y usado intensamente por la sociedad bahiense como una referencia obligada para actividades comerciales y turísticas. Pese a su extensión difusa, el área delimitada por las calles O`Higgins-Alsina y Belgrano-Donado, entre el teatro municipal y la calle Berutti al sureste, funciona como una pieza urbana en sí misma, resultando un circuito casi obligado para los usuarios del centro.
EL Mercado Municipal y la Plaza Lavalle forman parte de un fragmento urbano singular en el trazado de la Ciudad de Bahía Blanca. Este fragmento tiene una conformación de macromanzana, con una subdivisión también inusual, compuesta por seis pequeñas manzanas definidas por pasajes y un gran solar central en el que se ubica el conjunto mercado–plaza en relación con las calles Donado y O’Higgins. Este conjunto arquitectónico contiene en su interior construcciones de alto valor patrimonial, como el antiguo Hotel Italia, la Casa del Ángel y el edificio Taberner. Todos estos edificios ampliamente reconocidos por el conjunto de la población.
La dinámica expansiva del microcentro encontró dificultades para integrar naturalmente la macromanzana, sobre todo por el diseño del edificio del Mercado Municipal y la Plaza Lavalle que se encuentran constituidos por verdaderas barreras urbanas que dificultan su apropiación e integración al circuito comercial y turístico característico del área.
Las recientes intervenciones sobre el espacio público en el microcentro priorizan al peatón y promueven el retiro paulatino del vehículo privado, la semipeatonalización de algunas calles, el ensanche de veredas; entre otras intervenciones, buscan avanzar en la consolidación de una ciudad más ac-
cesible e inclusiva.
Entre los principales desafíos que presenta este concurso, ponderamos la necesidad de integrar este fragmento estratégico de ciudad con su entorno inmediato, potenciar las características urbanas y arquitectónicas de esta macromanzana, poner en valor su arquitectura e incorporar actividades que permitan recuperar el área como un “centro dentro del centro” bahiense.
RECUPERAR LA MACROMANZANA
En términos urbanos, la propuesta persigue en cada una de sus intervenciones la integración física y funcional de la macromanzana al sistema de espacios públicos urbanos conformado por el circuito comercial y turístico determinado por las calles O´Higgins-Alsina y Belgrano-Donado, con intervenciones que eliminen todo tipo de barreras y permitan dar continuidad a las políticas que promueven construir una ciudad sin ellas.
Proponemos continuar con el proceso de peatonalización de la macromanzana con una mirada integral en el tratamiento del espacio público que incluya el acceso universal a cada uno de los espacios y programas.
Este proceso busca consolidar la condición distintiva de la macromanzana dentro de la ciudad mediante la recuperación de sus “callecitas del mercado”, con intervenciones que permitan restringir la circulación vehicular, priorizando al peatón en el uso de la cota cero; mejorar el entorno de un espacio público de alto valor paisajístico como la plaza Lavalle; fomentar la mixtura de usos con la recuperación del Mercado Municipal y la incorporación del equipamiento cultural en terraza. En síntesis, busca recuperar una imagen de vida urbana que aún permanece en la memoria colectiva local.
La franja central de la macromanzana, objeto central del concurso, tiene a su vez una problemática propia: la relación entre el Mercado y la Plaza se encuentra obstaculizada por las rampas vehiculares. La desconexión espacial y funcional también es reconocible con todo el espacio público de la macromanzana, situación evidente y relevante a la hora de definir las operaciones proyectuales. Tres situaciones determinan estas desconexiones: la ubicación del sistema desdoblado de rampas de acceso para las cocheras en subsuelo y primer piso funciona como obstáculo físico que limita sustancialmente la integración del Mercado con la Plaza; la planta baja elevada del nivel de vereda del Mercado Municipal, su ocupación sin transiciones entre interior y exterior, sus rampas y escaleras atomizadas también dificultan esta integración; y el diseño de la Plaza, que se presenta con muchas barreras físicas, canteros en diferentes niveles, escalones, barandas, etc., dificultan la apropiación del espacio público. Nuestra propuesta tiene un enfoque común para el diseño de cada una de las intervenciones: determina que todos los edificios y espacios públicos sean accesibles y utilizables, independientemente de las capacidades físicas, sensoriales o cognitivas de los usuarios. En este sentido, buscamos eliminar las barreras que puedan restringir la inclusión y participación de todas las personas.
Si bien la propuesta busca recuperar las cualidades arquitectónicas del edificio original, las intervenciones anteriormente mencionadas fueron pensadas para ser construidas mayoritariamente en taller, para su posterior montaje in situ. Esta decisión no solo responde a la ventaja comparativa en el proceso de producción y montaje, sino que forma parte de una estrate-


gia frente a la condición patrimonial del edificio existente. Una vez recuperado el edificio original buscamos que todas las intervenciones promuevan un diálogo silencioso y no una mímesis que distorsione y modifique el espíritu de la obra.
CINCO NIVELES DE INTERVENCIÓN
Frente a este diagnóstico en distintas escalas, proponemos:
1. Conectar el mercado y la Plaza mediante un Portal de Acceso
2. Integrar la planta baja del Mercado con el espacio público circundante mediante una Recova del Mercado
3. Incorporar la última planta como parte del sistema de espacios públicos con una Terraza Cultural
4. Integrar funcionalmente la terraza cultural con todo el programa en cota cero (Mercado, Portal y Plaza) mediante un Mirador Vertical
5. Eliminar barreras físicas en la Nueva Plaza Lavalle
1. Portal de Acceso
La incorporación de un portal de acceso sobre Plaza Lavalle cambia por completo la orientación y funcionamiento del Mercado. La incorporación de un segundo acceso permite dar continuidad al eje natural del edificio determinado por el ingreso central en calle Donado, quedado en vinculación funcional directa con calle O’Higgins. El nuevo ingreso no busca ni imponerse ni mimetizarse con el edificio existente. Por un lado, funciona como una ampliación natural de la espacialidad determinada por las rampas vehiculares, pero, por otro lado, se presenta como un espacio diáfano cuyo manejo de la luz estará dado por una cubierta traslúcida que permita integrar espacialmente el nuevo programa con el espacio urbano. Con esta operación proyectual, las rampas de acceso vehicular dejan de ser una barrera física entre el Mercado y la Plaza. Se




incorpora un programa que vincula funcional y espacialmente a la totalidad del complejo edilicio. La utilización de los bajos de las rampas permite ampliar la superficie de ocupación con programas complementarios para la Plaza y el Mercado, ubicándose allí un centro de información turística con sala de exposición temporaria, áreas gastronómicas y áreas de servicio, todos ellos vinculados directamente con los accesos a la Terraza Cultural y los estacionamientos privados mediante el núcleo vertical.
2. Recova del Mercado
El proceso de refuncionalización del Mercado se inicia con la recuperación de la esencia arquitectónica del edificio, retirando toda intervención y dejando solo su estructura resistente y sus sistemas de circulación como forma de reconocimiento de sus valores espaciales desde la cual definir una nueva ocupación con un mayor grado de flexibilidad. Estas operaciones de recuperación de la planta libre subyacente en el proyecto original tienen un primer impacto positivo: permite definir con libertad la ubicación del cerramiento. La posibilidad de ampliar el espacio semicubierto se presenta como estrategia efectiva para integrar la planta baja del Mercado municipal en todo su perímetro con el sistema de espacios públicos de vereda. Receder el cerramiento para ampliar la ocupación exterior del
Mercado, incorpora una nueva espacialidad con usos en franca vinculación con las peatonales laterales. Como intervención complementaria a la Recova, se renueva todo el sistema de escaleras y rampas con el objetivo de dinamizar los ingresos al Mercado desde todas las orientaciones. La recuperación de la planta libre del Mercado permite una apropiación abierta de los locales, mezclando áreas de venta de productos con locales gastronómicos. El subsuelo mantiene su condición de servicios asociados a los locales comerciales y resuelve los baños públicos, el entrepiso contiene áreas para eventos especiales y amplían la posibilidad de ocupación gastronómica sobre calle Donado.
Las ubicaciones de los locales comerciales en relación directa con la Recova permiten cierta independencia funcional, ampliando la posibilidad de uso en horarios distintos a los del Mercado.
3. Terraza Cultural
La refuncionalización de la azotea mantiene los criterios proyectuales sobre todo el edificio; tiene como primera intervención recuperar la conformación edilicia original como condición para poner en valor su arquitectura y como segunda operación incorporar equipamiento y dispositivos que permitan ampliar la ocupación de la terraza.
La propuesta incluye una plaza para eventos al aire libre, una sala de exposiciones temporales, un cowork y un área gastronómica integrada en el edificio existente. Propone también una edificación nueva (aunque podría ser la estructura existente) para actividades educativas y culturales. Este contenedor de actividades tiene la posibilidad de dividirse en tres salas, continuando con la flexibilidad funcional de todo el proyecto. Como segunda operación proyectual incorporamos una serie de dispositivos arquitectónicos que amplifican la posibilidad de ocupación de la terraza como espacio público. Un primer dispositivo es la incorporación de un cerramiento perimetral que funciona como protección, pero también como remate, con una tectónica sutil y rigurosa, como también liviana y efímera, que permite seguir reconociendo la arquitectura del edificio existente. La estructura metálica y la malla tensada delimitan el espacio habitable sin obstaculizar la vista privilegiada de la ciudad. Un segundo dispositivo es la escalinata que resuelve el desnivel entre la plaza para eventos al aire libre y el edificio original. Se presenta como un espacio de apropiación libre en relación directa con la ciudad.
4. Mirador Vertical
La organización funcional apilada requería necesariamente la incorporación de un sistema de transporte vertical que vincule el subsuelo con la terraza, que complemente la capacidad de transporte vertical existente. La ubicación propuesta responde a la posibilidad de abastecer la totalidad de los programas, conectando el subsuelo de servicios, el Mercado Municipal, el
Portal de Acceso, la Nueva Plaza Lavalle y los estacionamientos privados con la Terraza Cultural del Mercado. La llegada del ascensor a la Terraza está pensada para permitir la utilización del mirador con independencia de las otras actividades. La materialidad y la disposición de sus elementos están resueltos para transformar el recorrido en una experiencia sensorial intensa. El ascensor mirador y la condición traslucida de la escalera permiten participar de las actividades de Plaza Lavalle desde distintos puntos de vista.
5. Plaza Lavalle sin barreras
Recuperar el espíritu de macromanzana implica una mirada integral en el tratamiento del espacio público, una aproximación que incluya el acceso universal a cada uno de los espacios y programas. Proponemos avanzar en un proceso de peatonalización de toda la macromanzana, buscando eliminar barreras físicas en todo el espacio público. El diseño sobre Plaza Lavalle repite la estrategia, busca simplificar la estructura organizativa eliminando elementos de difícil apropiación, se asienta sobre la distribución de espacios originales reconvertida en un espacio público accesible, respeta las especies de árboles, mantiene el nivel superior de la Plaza, redefine la configuración del anfiteatro existente y simplifica su diseño con dos texturas predominantes, el pavimento pétreo y el manto vegetal.
El trabajo se desarrolla con un elevado nivel de síntesis logrando una propuesta clara y contundente, tanto en lo urbano,


en lo paisajístico como en los arquitectónico, encontrando un adecuado balance entre innovación, carácter y preservación. Esta estrategia está claramente manifiesta tanto en su memoria descriptiva como en sus dibujos, donde plantea concretamente cinco niveles de intervención, los cuales transcribimos a continuación:
1. Conectar el Mercado con la Plaza mediante un Portal de Acceso.
2. Integrar la planta baja del Mercado con el espacio público circundante mediante una Recova del Mercado.
3. Incorporar la última planta como parte del sistema de espacios públicos con una Terraza Cultural.
4. Integrar funcionalmente la Terraza Cultural con todo el programa en cota 0 (Mercado, Portal y Plaza) mediante un Mirador Vertical.
5. Eliminar barreras físicas en la Nueva Plaza Lavalle. El jurado valora de la propuesta el desarrollo de una plaza “sin barreras”, que permite la preservación del arbolado preexistente integrada a un tratamiento de superficie ameno, donde con una suave pendiente resuelve el acceso al nivel del Mercado, componiendo así un nuevo espacio urbano de calidad y jerarquía, coherente con una visión contemporánea del espacio público “abiertos, fácilmente reconocibles, seguros y flexibles en cuanto a sus potenciales usos”, resolviendo problemas de accesibilidad manifiestos en las bases del presente concurso.
Considera como otro acierto la disposición de un “Portal de Acceso” como mediación entre la Plaza y el Mercado, jerarquizando el acceso a éste desde Plaza Lavalle. Este portal no
pretende “ni imponerse ni mimetizarse con el edificio existente”, incorporando en él el bajo rampa vehicular, dando lugar a un nuevo espacio de exposiciones y cafetería.
Con operaciones mínimas logra un Mercado que mejora su relación con el entorno a través de la “Recova del Mercado” y recupera una planta libre subyacente en el proyecto original, logrando así mayor flexibilidad e integración del entrepiso. Con otra sutil operación propone la vinculación directa de la “Terraza Cultural” con la Plaza y con el nuevo Portal de acceso a través de un Mirador Vertical. Resultó de gran valor la propuesta programática y arquitectónica para con la terraza, donde destacamos el desarrollo de una gran sala flexible, dando la opción también a reutilizar la nave existente.
La claridad de objetivos planteados en el proyecto, en particular los descriptos en la memoria, permite considerar la posible etapabilidad de obras.
Es valorado el abordaje integral de los objetivos planteados en las bases del llamado a concurso; no obstante, el jurado realiza las siguientes recomendaciones:
Revisar el sistema de escaleras propuesto para la vinculación del entrepiso con el Mercado, donde seguramente el uso de las escaleras laterales no resultaría viable.
Incorporar sistemas de rampas peatonales sobre las calles laterales (Olivieri y Arribeños) para mejorar la accesibilidad de las recovas laterales.
Asegurar en la operación de remoción de parapetos y canteros de la Plaza preexistente la no afectación del arbolado a preservar.








AUTOR MAGISTER ARQUITECTO JUAN MARTÍN FLORES
COLABORADORAS/ES ARQUITECTA MARIANA STARK / MARIANO CAPRARULO, MILAGROS BANGARDINO, MARÍA PAZ ALBISU, GUADALUPE FERRARI, EVELIN TROBO Y FACUNDO DÍAZ

La actualización de la ciudad.
Redefinir los edificios públicos como gesto de resiliencia y sostenibilidad urbana.
MARCO GENERAL
Habitando sobre un mundo postpandemia con más de media población mundial viviendo en estructuras urbanas -pueblos, ciudades intermedias, ciudades capitales y áreas metropolitanas-, la sociedad contemporánea reside en un mundo cada vez más artificial. Casas, edificios, equipamientos, parques, ciudades e infraestructuras, donde las escalas de la arquitectura y las incumbencias de los arquitectos son cada vez más amplias y complejas.
Frente a la presión del crecimiento, la congestión, la densidad y la necesidad de establecer nuevos parámetros de convivencia y relación, el modelo de los equipamientos urbanos que se han producido en las últimas décadas dentro de las ciudades promueve establecer una gran reflexión en pos de una adecuada actualización a estos tiempos.
Las ciudades, desde sus diferentes inicios y fundaciones, estuvieron equipadas y representadas, en su espacio urbano, con edificios que promovían el carácter de una arquitectura emblemática, dando lugar a las actividades que demandaban los distintos ámbitos y poderes de la sociedad, tanto públicos como privados, para su funcionamiento. La iconicidad de estos equipamientos, generados por la forma, la materialidad
constructiva, la disposición geométrica y la escala urbana, ha creado un legado que genera un impacto en los valores e impronta de la sociedad. Un modo de construir identidad al velo del espíritu de estos tiempos.
MARCO URBANO
La ciudad de Bahía Blanca, desde su fundación, estuvo equipada y representada en su espacio urbano con edificios institucionales emblemáticos que dieron respuesta a las actividades que demandaban los poderes públicos para su funcionamiento. El conjunto de edificios que hacen a este sector, contiene un carácter especial por su diagramación y ocupación del espacio, logrando una verdadera novedad en el tejido central de Bahía Blanca. El Mercado Municipal y el espacio público de Plaza Lavalle es la institución que representa el universo del comercio e intercambio de materias primas y manufacturadas en el ámbito público y local, es el ámbito que fomenta un fructífero y sano intercambio en provisión y promoción de alimentos y productos tanto para usuarios como productores, como así también un intercambio colectivo en lo social y el encuentro.
La situación actual de este gran espacio presenta una creciente inactividad, tanto del Mercado como de sus espacios colindantes en los últimos años; esto ha establecido una marcada barrera de uso y funcionamiento en el área, logrando generar un sector de preocupante abandono, establecido por una
gran inactividad social y comercial.
A su vez, también, este conjunto surge como fruto de un concurso nacional pasado, donde las ideas materializadas promulgaban la generación de un nuevo modelo, tanto de urbanización como así también de interpretar el comercio. El edificio del Mercado, a partir de esto, se ha convertido en un edificio icónico, a lo largo de los años, para la sociedad de Bahía Blanca y se configura como un valor a resaltar para la arquitectura moderna vernácula de la ciudad. Este nuevo concurso busca lograr una posible actualización de sus instalaciones, usos y actividades, y sobre todo, una verdadera puesta a punto y renovación para que el Mercado pueda volver a funcionar y así generar una renovación en su ciclo de vida actual y recuperar aquellos anhelos que hicieron que el mismo pueda materializarse.
EL CONCURSO
El concurso de anteproyectos para la refuncionalización del Mercado Municipal y de ideas para el espacio público de la macromanzana, constituida entre las calles Donado, O’Higgins, Brown y Saavedra -en donde a su vez se encuentra emplazada Plaza Lavalle, llamada también Plaza del Sol-, se presenta como una gran oportunidad para desarrollar una propuesta urbano/arquitectónica que represente diversos desafíos en múltiples escalas y escenarios en el contexto de la generación de un nuevo modelo de ciudad y una nueva arquitectura. Una propuesta de cara a toda la sociedad y a los vecinos de Bahía Blanca.
Una propuesta que, en este contexto, se constituye en un elemento de resiliencia y redefinición macro, generando las pautas arquitectónicas y urbanas para la futura transformación del área, que plantea la concepción de una fuerte relación con el futuro medio urbano, a la vez que busca una relación equilibrada entre las diferentes áreas, tanto del Mercado como de los macizos colindantes, zonas de intercambio, reunión y plaza/parque,
como el ámbito citadino y de espacio público, tan rico y característico de la zona central y comercial.
Una propuesta que busca ser contextual a toda una serie de eventos que hacen a la escala e identidad arquitectónicas de la ciudad, las preexistencias de gran valor patrimonial como parte de los edificios existentes, como también sus espacios verdes, sus sectores comerciales, sus diferentes bordes urbanos, su skyline sobre las calles Donado y O’Higgins como grandes corredores de movimiento y actividad, y por otro lado, sus calles internas, más pequeñas, como las perpendiculares Beltrán y Anchorena y las paralelas Arribeños y Olivieri, las cuales, a través de la propuesta, reinventan el carácter urbano del sector tanto en su escala como en la impronta espacial de relación con el espacio público. La ocupación intensa y estratégica en el fomento de nuevas actividades, el tratamiento de su solado y equipamiento, la generación de nuevas áreas verdes naturales, y también, en todo esto, sumar una variable de uso y horario, diversificando las posibilidades de este espacio, permiten establecer un ámbito diferenciado con una nueva identidad, la construcción de un espacio público para el peatón y la relación con espacios verdes. En definitiva, una nueva centralidad de valor verde y peatonal, en el área central de la ciudad. Para esto se hace imprescindible la creación de un nuevo enfoque y visión que reinterprete las preexistencias (Mercado y Plaza actual) en la generación de un nuevo espacio que pueda, por un lado, resolver el conjunto de condiciones necesarias para el funcionamiento esperado y sugerido por estas bases, y a su vez, pueda, a partir de su iconicidad tanto urbana como arquitectónica, aportar en el marco social, cultural y comercial de Bahía Blanca la generación de un nuevo espacio que promulgue un renovado bienestar para su población. El escenario del proyecto se encuadra dentro de una situación singular, ya que el concurso promueve ideas para el ámbito urbano, macromanzana central, y de anteproyectos para


IMPLANTACIÓN GENERAL






CORTE LONGITUDINAL URBANO

la refuncionalización del Mercado Municipal. Es idea de esta propuesta lograr establecer una amalgama de relaciones entre estas dos escalas, logrando definir un Conjunto Urbano y Arquitectónico donde cada instancia depende de una reciprocidad proyectual en cada una de estas escalas. En este sentido la propuesta de refuncionalización del Mercado Municipal y Plaza Lavalle definen un nuevo espacio público urbano como conjunto urbano, una nueva área pública, con una nueva propuesta de edificación urbana y arquitectónica que establece un borde urbano en relación directa con el área central de la ciudad y con su nueva propuesta de espacio comercial/cultural, espacio libre y verde del área. Un escenario urbano abocado al encuentro y las experiencias, donde puedan convivir presente, pasado y futuro de la ciudad.
DE LO URBANO AL PROYECTO
La idea es generar, desde su concepción arquitectónica, una forma edilicia y una imagen actualizada y contemporánea, que se asocie naturalmente con la región, la ciudad y sus habitantes. La estrategia proyectual para el Nuevo Mercado Municipal, se define a partir de la incorporación de un nuevo cuerpo volumétrico que se articula y conjuga con el actual edificio. Un nuevo cuerpo de cristal asociado al edificio preexistente en la voluntad de generar una pieza articulada, austera y totalizadora, como ele-
mento urbano de conexión entre la ciudad y el edificio. La propuesta busca promover la imagen, conceptualización e identidad de una “pieza única”, que conjugue pasado y futuro a través de sus volumetrías y espacialidades. En este sentido, la idea de esta intervención es generar una imagen de conjunto, una nueva pieza ciudad, donde las partes son parte de un conjunto integrado. Esta nueva pieza surge como elemento catalizador y vinculador de usos, actividades, relaciones, pero por sobre todas las cosas, artífice de todos los movimientos verticales tanto directos como indirectos de la propuesta, transformándose, a partir de estas características, en un espacio abarcador, el nuevo hall urbano del Mercado Municipal y de la macromanzana. Su estratégica ubicación sobre la calle interna Olivieri, calle con una mayor dimensión en su ancho en el marco urbano, establece la factibilidad de realizar esta operación de ampliación del Mercado. Este nuevo volumen e intervención producirán un fuerte impacto en el desarrollo del área, y sobre todo, en la actividad del conjunto, dinamizando las relaciones funcionales entre los usos de base del Mercado y las nuevas actividades culturales y gastronómicas planteadas en la terraza del edificio, poniendo en valor la trama urbana, su prexistencia y el crecimiento de la ciudad. El carácter esencialmente urbano del proyecto, racionalmente y plásticamente integrado a su entorno, crea situaciones espaciales que permiten el recorrido, la comunicación y el encuentro
entre sus vecinos y usuarios, consolidando de manera natural la incorporación del Nuevo Mercado Municipal -sus nuevos espacios verdes y sus necesarios sistemas de movimientos propuestos- al tejido urbano.
La importancia del programa exige que el edificio encarne los valores simbólicos de la institución y proyecte una imagen, a la vez, austera y contemporánea. Se trata de responder al conjunto de condiciones del sitio, a las necesidades del programa y al máximo volumen construible permitido por las regulaciones urbanas y de edificación.
El programa solicitado se refleja en el proyecto dentro de una estrategia que abarca lo funcional, lo espacial y lo constructivo. Se da respuesta a diferentes actividades y escalas solicitadas, teniendo en cuenta desde el mínimo espacio y sus relaciones desde lo comercial, de trabajo y cultural, hasta el macro espacio que requiere su complejo funcionamiento, garantizando ámbitos de exposición, espacios temáticos, recorridos singulares, diferentes armados y escalas espaciales, flexibilidad de uso y transformación, equipamiento administrativo, de reunión, seguridad y protección a todos los elementos de exposición

que legitiman, conjuntamente con la arquitectura propuesta, el valor de la prexistencia y de la innovación en relación a la ciudadanía. El programa específico se resuelve de manera flexible en su interior, ponderando los recorridos directos en vertical e indirectos en horizontal para lograr relacionar las áreas de planta baja del mercado y las áreas culturales propuestas en la terraza. Se trata de resolver en una forma sencilla una situación de gran complejidad de uso y conexiones de programa que logre una integración efectiva de cada una de las partes, conformando una totalidad coherente y posible para los distintos escenarios y usuarios (municipio /propietarios cocheras/público en general).
PLANTA MERCADO
Cada área del programa específico cuenta con su propio espacio, armado de acuerdo a la tipología planteada por el edificio de base y por la actualización planteada en esta intervención. En este sentido, la propuesta, por un lado, redefine el área del mercado haciendo una reinterpretación espacial del ámbito que define su planta baja, a la vez que se articula con el nuevo hall urbano de la pieza conectora, volumen de ampliación del Mercado. La planta baja, a partir de esto, se interpreta como un gran continente espacial de continuidad y

fluidez, tanto en horizontal como en vertical, resaltando diferentes relaciones espaciales -hacia calle Donado, por el corte espacial del edificio, hacia Plaza Lavalle, por su inmanencia desde lo relacional, y hacia el nuevo hall de acceso sobre calle Olivieri, por asociación de nuevas actividades-, logrando así una mejor relación de las proporciones, de la espacialidad, la luz natural, la profundidad y, también, de sus vínculos con el ámbito urbano inmediato.
El nuevo planteo de uso sobre esta planta se basa en el sistema de movimientos y grilla modular heredada del edificio preexistente, logrando proyectar una actualización de este ámbito, alternando lugares de venta de productos como así también locales gastronómicos y potenciando las áreas de depósitos en el entrepiso, ahora como espacios de oficinas o espacios de coworking, tanto para la planta del Mercado como también para el municipio.Es importante destacar el rol que este tipo de edificios ejercen en la actualidad dentro de la ciudad como ámbito de intercambio con servicios, apuntando a una continua utilización de sus espacios.
El conjunto de exposiciones y espacios temáticos se proponen en la planta terraza -planta cultural-, sobre la base de los espacios preexistentes que dieron cobijo a las sesiones del Consejo Deliberante del municipio, estableciendo desde la propuesta una puesta en valor de estos aspectos simbólicos. Un espacio bimodal entre área gastronómica, área de circulaciones y área de exposiciones, todas relacionadas por un sistema de circulaciones y sus grandes terrazas-jardín, con espacios semicubiertos y verdes/nuevos espacios miradores hacia la ciudad. Los niveles superiores, básicamente, se articulan como de perímetro libre, despejados de puntos fijos, modulados, flexibles y funcionales con la posibilidad de adaptarse a diferentes armados programáticos. Esta idea se plasma en base a una grilla basada

en un módulo estructural de 7,20 metros y un módulo funcional de 0.90 por 0.90 metros. En este sentido, se tiene como objetivo incrementar la eficacia del programa a partir de unos esquemas flexibles que permitan que los espacios, tanto de exposición como de trabajo, se adapten racionalmente y sean capaces de absorber la constante transformación del quehacer de las exposiciones, ámbitos académicos e investigadores, así como zonas de administración y de encuentro.
ACCESOS/HALL URBANO
El Nuevo Mercado redefine sus puntos de acceso a partir de la propuesta. El acceso principal se establece en enmarcar, a partir de la experiencia de un recorrido lineal, el eje entre calle Donado y Plaza Lavalle; la propuesta renueva ambos accesos, aunque, sobre todo, recaracteriza el espacio de acceso sobre Plaza Lavalle, incentivando a partir de estos accesos los vínculos relacionales entre estos ámbitos y el Mercado.
A su vez, y a partir de la propuesta de renovación del Mercado, el conjunto urbano define un nuevo eje público y de acceso en relación a calle Olivieri, un Hall urbano, un nuevo espacio que resulta una ampliación semicubierta de la vereda a escala de la ciudad. Este Hall se constituye en un continente espacial dinámico que permite la afluencia del público que visita el edificio y del personal que trabajan en las distintas dependencias, y se define como un espacio lateral luminoso y conector de los grandes ámbitos que componen el programa, los cuales puedan, a partir de su escala y transparencias, relacionarse de forma mutua. El Hall se complementa a partir de la inclusión de sistemas de movimientos, tanto directos como indirectos, en disposición lineal, logrando en esto la presencia, no solo del contexto urbano sino también de las personas que caminan en ellos, utilizando y recorriendo los distintos espacios y áreas de los diversos pisos de cada edificio. También se plantean accesos lateralizados sobre calle Arribeños, integrando parte del marco urbano inmediato.



SISTEMA DE MOVIMIENTOS
La circulación vertical en el conjunto se focaliza en un sistema de núcleo de ascensores más escaleras como sistema directo, y de una rampa de hormigón como sistema indirecto de recorrido, vinculando la planta baja con la terraza del edificio, su planta cultural. Los núcleos circulatorios, batería de ascensores y escalera presurizada, tanto para el personal como para el público, según las necesidades, atienden las áreas de servicio y se comunican naturalmente con las circulaciones generales, otorgando óptima flexibilidad de interconexión en vertical. Operativamente, en la propuesta, este sistema distribuye el mayor número de usuarios, empleados y funcionarios.
CRÍTICA DEL JURADO
Del presente trabajo se ponderó la decisión de preservar íntegramente el edificio existente, lo que permite seguir reconociendo su arquitectura original desde la plaza. Se valora la fuerte identidad que genera el Centro Cultural. La incorporación de un elemento urbano que lo conecta con la ciudad, desde una ubicación estratégica que pone en valor un sector invisibilizado y que a su vez permite el ingreso directo desde calle Donado. Es acertado el uso del tratamiento de la macromanzana, resolviendo con eficiencia el recorrido vehicular, reconstruyendo el espacio público, priorizando las ventajas que esta condición otorga en relación al peatón. El Jurado valora la claridad de la organización funcional y espacial del programa propuesto, destaca la flexibilidad y diseño del espacio público de la Plaza y su clara vinculación con el interior del Mercado. Hubiese sido deseable un ajuste en la proporción del “hall urbano” y la incorporación de actividades culturales desde el nivel de acceso.

AUTORES/A BARRO ARQUITECTOS / RODRIGO BARANCHUK, TOMÁS PODESTÁ, JUAN MARTÍN ROJAS, RUBÉN SERPA Y MELINA NICOLE MARIÑASKY
COLABORADORA ARQUITECTA MARÍA BELÉN IRIGOYTÍA

La ciudad de Bahía Blanca se encuentra con una enorme oportunidad para crear en este sitio espacios abiertos, reconocibles y propicios para la recreación, el intercambio y las actividades culturales.
La mixtura de usos en un nodo estratégico de la grilla urbana puede potenciar y revitalizar la ciudad, mejorando los aspectos sociales, paisajísticos y económicos.
Los espacios peatonales y los paisajes en relación con los edificios abiertos al público son en este proyecto prioritarios a la hora de articular Plaza, vereda y Mercado.
La propuesta define una clara acción de continuidad entre la plaza descubierta y la plaza cubierta gastronómica en relación a los locales de venta del Mercado. Esta acción se inscribe dentro de un gesto urbano de mayor escala que transforma el área priorizando al peatón, las calles de acceso al Mercado y a la Plaza.
La transformación del edificio apunta a crear un ícono tecnológico que congregue diferentes usos y subraye la identidad de la ciudad con su puerto y su paisaje. Una poderosa infraestructura urbana transformable para y por la ciudad.
INTERCAMBIOS Y CULTURA
Una ciudad plural y vital ofrece lugares para el encuentro horizontal entre sus ciudadanos. Las plazas, las calles y los mercados constituyen un sustrato donde el tejido social se nutre y se fortalece.
El proyecto promueve, a través de un gran gesto, una continuidad: intentar construir un eje urbano que emerja desde el Teatro Municipal por la calle O’Higgins, pase por la plaza Rivadavia y culmine en la Nueva Plaza Lavalle con su solado
unificador, que nos adentra en el nuevo Mercado. El peatón como protagonista. Un nodo de encuentro entre las partes del programa de usos. Un vínculo potente entre la Plaza, el Mercado y sus alrededores, disolviendo las barreras de niveles y transformado los accesos viales al estacionamiento y al subsuelo: una de las rampas del estacionamiento es demolida para crear la conexión, la otra es ensanchada para permitir el correcto funcionamiento del espacio.
Este nuevo espacio peatonal de gran escala urbana funciona como espacio abierto de la ciudad para el encuentro de sus habitantes, potenciando los edificios más emblemáticos e históricos de la zona.
Un gran semicubierto distribuye a las distintas partes del Mercado, a la Plaza y al sistema de acceso a la cubierta de uso cultural. La propuesta imagina un sector vital con actividades que se van sumando e intercalando a lo largo del día. Un polo ciudadano. Un ágora contemporánea.
NATURALEZA Y PUERTO
La gran potencia paisajística del sitio se multiplica con dos acciones puntuales. La creación de parques en planta baja y cubierta y la transformación del volumen del Mercado hacia un edificio icónico que incorpore tecnología y nuevos usos.
Se crea un nuevo escenario natural a nivel suelo con plantas autóctonas y silvestres y se reconstruye un jardín terraza en relación a los nuevos usos culturales. El nuevo escenario natural en el nivel cero recrea por momentos la naturaleza de la barda y el humedal, incorporando agua y flora autóctona, diferenciándose notablemente con la otra parte de la Plaza Lavalle, que se caracteriza por su continuidad de solados. Una

plaza “seca” y una “verde”. Esta última se define con formas blandas en relación a un gesto contundente peatonal de vínculo con el Mercado. Las calles de acceso al mismo y a la Plaza se rediseñan como un gran sistema peatonal de movimiento libre. acotando la circulación vehicular al mínimo necesario para acceder a las rampas. El paisaje urbano es potenciado mediante la incorporación del volumen de escalera, ascensor y mirador con vistas largas de la ciudad. El paisaje de torres y conectores de referencia portuaria convive con el paisaje natural de vegetación y senderos. La nueva imagen del edificio del Mercado actuará como un faro de atracción y configuración del barrio. La convergencia de los programas culturales con una resolución técnica innovadora aportará una nueva mirada sobre el barrio. Una acción fundamental dentro de la propuesta se centra en la unificación y renovación de las fachadas del Mercado y estacionamiento. Una estructura de parantes verticales y horizontales cosen el edificio, constituyendo dos gestos: por un lado, sobre la calle Donado, una nueva marquesina inspirada en los históricos toldos comerciales de la ciudad de Bahía Blanca, y por otro, el armado de un gran atrio de entrada en el nivel terraza, dándole una nueva impronta al edificio.
La planta baja se define como el gran espacio transparente, “atravesable”, de encuentro entre los programas. Una gran franja de solado conduce naturalmente al corazón del proyecto donde convergen el Mercado con los espacios gastronómicos y culturales. En ese espacio se ubica una pequeña sala de informes y un paquete de sanitarios accesibles, liberando a la plaza de todo programa perenne. La planta baja contiene locales gastronómicos, comerciales y mixtos en dos áreas claramente definidas para poder sectorizar los usos en los distintos horarios del día. Dos escaleras abiertas dan acceso franco a los entrepisos, que se activan como lugares de apoyo a la planta baja, con sanitaros, oficinas, espacios multiusos y puestos de ventas. Por su parte, el subsuelo mantiene su función original con cocheras destinadas a feriantes/puesteros y momentos de carga y descarga, donde la rampa se ajusta a ese uso. El gran gesto peatonal de la rampa entre la Plaza y el Mercado se inscribe dentro de un proyecto accesible de manera natural e inclusiva. Además de la gran rampa de acceso, todos los núcleos sanitarios y los medios de elevación son accesibles. Por su parte, la terraza intenta albergar lo imprevisible del arte, y manteniendo la esencia del ex Concejo Deliberante,


y con escasos ajustes, se logra una gran variedad de espacios y posibilidades. Primeramente, mirando a la gran Plaza Lavalle, se conforma un enorme atrio de acceso, protegido de la intemperie a través de una serie de cerramientos transparentes y livianos; aparece este gran vacío para la acción. El interior del edificio se “refuncionaliza”, eliminando algunos tabiques livianos y agregando una pieza liviana a la ex sala del Concejo Deliberante, que la agranda y conecta con el atrio, creando condiciones para albergar diversidad de usos en un mayor tamaño. En el otro lado, la zona que balconea a la calle Donado se convierte en un “bosquecillo” natural, potenciando el encuentro entre humanos y no humanos, donde el único programa será una pequeña cafetería con vistas al otro lado de la ciudad. En conclusión, el techo del Mercado buscará constituir una oportunidad donde la experimentación sea posible, abrazando lo espontáneo.
TECNOLOGÍA Y SUSTENTABILIDAD
El conjunto presenta dos sistemas constructivos que se encuentran y dialogan. El hormigón armado existente, de gran audacia e identidad, dialoga con las nuevas acciones constructivas de montaje. Dos identidades constructivas y formales que se identifican con la ciudad de Bahía Blanca como un polo agroindustrial y de grandes infraestructuras territoriales. Conviven, en la solución tecnológica de las fachadas, el puerto, el silo y el galpón.
La nueva torre de acceso a la cubierta se resuelve mediante estructuras de perfiles metálicos, dándole gran transparencia y vistas a la ciudad. Velocidad y economía de montaje.
Se aprovecha la potente estructura de hormigón para liberar la planta baja y habilitar opciones de armado de los locales y variaciones a lo largo del tiempo.
Las acciones de paisaje van a incluir una mayor captación de aguas, con ayuda de una gran “estanque” y una mayor absorción en los nuevos solados.
Todas las decisiones de diseño en la vegetación van a tender al reducir al mínimo los gastos y consumos ocasionados por el mantenimiento de las plantas, gracias a una intensa utilización de plantas nativas, potenciando a su vez la fauna autóctona. Por otra parte, la nueva cubierta de la terraza incorporará a su estructura liviana de montaje nuevos espacios para la colocación de paneles solares, sumándose una serie de recolectores de lluvia en busca de la autosuficiencia total en relación a la energía.
La propuesta resuelve acertadamente la construcción de un gran espacio urbano integrador, “un ágora contemporánea” que enlaza la calle Donado con su futuro ensanche de vereda y la calle O›Higgins. Este playón incorpora acertadamente en su recorrido todos los accesos principales a los programas del concurso, como ser: el Mercado, las cocheras y el Centro Cultural.
Se valora además la decisión de conformar un claro acceso al Mercado sobre la avenida Donado como así también la integración a esta gran ágora urbana del pasaje Arribeños. Estas virtudes urbano/edilicias son solo posibles con el alto costo identitario de la demolición de la mitad de la rampa de hormigón de acceso a las cocheras del edificio existente.





COLABORADORA

La propuesta desarrollada para este concurso tiene como premisa fundacional, trabajar sobre la prexistencia en función de las peticiones realizadas por las bases, manteniendo la esencia de la misma, pero potenciándola y adecuándola a nuevas y futuras necesidades. Intentando, por medio de intervenciones muy puntuales, enriquecer aún más el espacio sobre el que se actúa. El modo que encontramos de hacerlo es por medio de una arquitectura de la infraestructura. Es decir, una serie de elementos ajenos al proyecto preexistente que se adicionan al mismo para poder dar respuesta a nuevas y diversas necesidades, fácilmente reconocibles pero que interactúan con la misma y la enaltece (tarimas de expansión y acceso al mercado, circulaciones verticales exteriores, cubierta).
LA ESCALA URBANA
A escala urbana, dos grandes planos definen la intervención: Por un lado, una suerte de alfombra sobre la cual posar las manzanas que competen a este concurso, generando un límite y a la vez fortaleciendo la lectura de conjunto, Para esto, un piso continuo con algunas variaciones que piensa tanto en el valor del peatón como en la inclusión del automóvil, incorpora todas las manzanas a la propuesta y marca de esta manera un hito en la ciudad, destacando el sector como un espacio de interés para la misma reforzando la relación entre Plaza Lavalle, el Big Six, la Casa de los Ángeles, el edificio Taberner y el Mercado. Es importante destacar que esta intervención se suma y forma parte del ensanche de vereda que están llevando adelante en las calles O Higgins y Donado. respectivamente. Por otro lado, un gran plano que auspicia de cubierta del Mercado Municipal y levita sobre él, poniendo de manifiesto la nueva intervención y haciéndose presente a escala urbana, potenciando
el hito que es este edificio para la ciudad.
Dicho plano, debido a su materialidad y por medio del reflejo, permite que, desde el nivel peatonal y sobre todo desde la Plaza Lavalle, se perciba la actividad de la terraza. De la misma manera, incorpora la Plaza a la azotea del viejo Mercado, reflejando la copa de los árboles en el cielorraso, incorporándolos de alguna manera a la terraza de expansión y logrando así unidad en la propuesta.
La propuesta para la Plaza consiste básicamente en que la arboleda preexistente, la cual se mantiene en su totalidad, defina su morfología. Para esto, se plantea remover pisos y muros de contención, generando una topografía producto de la necesidad de mantener cubierta las raíces de los árboles que se encuentran a distintos niveles respecto de la cota cero, garantizando su permanencia. Es la misma topografía y sus intersticios, la que define los espacios para reunión, juego y distensión, además de proporcionar espacios de sombra y, por medio de la topografía, en parte el control de los fuertes vientos. Por medio de un plano con una muy suave pendiente, el piso de la Plaza logra salvar el desnivel entre la misma y la cota +1.18 del Mercado. Los sanitarios e información turística se incorporan a la Plaza como dos cajas de ladrillos de vidrio rojo, reciclados (sustraídos de las circulaciones verticales de la fachada del Mercado), generando dos faroles urbanos por la noche y favoreciendo el control de los sanitarios desde el exterior. Asimismo, son ubicados de manera estratégica para su fácil localización, como también para definir y dar apoyo a las distintas posibilidades que la Plaza brinda.
EL MERCADO
El Mercado propiamente dicho mantiene el espíritu y gran parte de la estructura funcional del mercado original. Se busca con-
tinuidad y fluidez en relación con la Plaza Lavalle, tanto física como visual, en el eje N-S y fomentar el atravesamiento del mismo de este a oeste, proponiendo casi una prolongación cubierta de calle Anchorena, con su potencial gastronómico y comercial. Liberar y ensanchar el perímetro exterior por medio de unas tarimas metálicas que contienen escaleras y rampas, ofrecen accesibilidad y múltiples posibilidades al peatón y a los usuarios, haciendo mucho más franca la relación entre el Mercado y las veredas, y fortaleciendo la relación de los locales comerciales con la calle. En su interior, el criterio del espacio inicial se mantiene, pero se busca, en detrimento de la superficie comercial, ganar superficie de encuentro en el espacio central del edificio, el que lo pone en relación directa con la Plaza y la avenida. El retiro de las vidrieras por debajo de las losas en el paseo central, otorga un nuevo y revitalizador espacio con múltiples escalas, definiendo el tránsito y la estadía, a la vez que incorpora las estructuras a la composición del espacio. La rampa, como mecanismo circulatorio que recorre el espacio y lleva a los visitantes a los servicios en subsuelo, se hace nuevamente presente en el Mercado, vuelve a ser parte del espacio y su experiencia. En consonancia con esta, una nueva escalera que hace de ingreso al patio de comidas ubicado en la planta alta del ala sur, pone en relación a los visitantes con la calle Donado desde la planta alta.
Tipo de locales y criterios de ubicación:
Gastronómicos. Los locales de este tipo fueron dispuestos en relación al exterior en su totalidad, entendiendo sus posibilidades en cuanto a horarios y el enriquecimiento del espacio público con su actividad.
Además, se contempló el actual funcionamiento del sector y la posibilidad reforzar la actividad ya existentes sobre las calles Anchorena y Arribeños o en la planta alta de Donado como un llamador. No esta demás destacar la importancia de que en su mayoría cuenten con la infraestructura necesaria para el desarrollo de la actividad.
Concesiones permanentes. Por momento ligadas a muchos de los sectores gastronómicos, las concesiones permanentes están más relacionadas a aquellos comercios que necesitan mayor superficie y un poco más de complejidad. Uso temporario. Éstos se encuentran sobre todo en el corredor secundario que atraviesa el Mercado de este a oeste, destinando


los de usos permanente y horarios prolongados al corredor N-S o la prolongación de calle Anchorena, garantizando la actividad comercial y el movimiento dentro del edificio.
EL CENTRO CULTURAL
En la azotea del edificio, bajo una nueva y enorme cubierta metálica que se manifiesta como un gran plano horizontal que flota sobre el edificio del viejo mercado y dota al conjunto de un renovado carácter, se encuentra una prolongación de la Plaza Lavalle y el nuevo Centro Cultural.
La plaza semicubierta favorece el encuentro ciudadano y proporciona un mirador de excepcional carácter a la ciudad. El Centro Cultural, conformado en parte por infraestructura existente en la terraza, aloja el bar, foyer y auditorio, todos balconeando a ambas plazas y la ciudad. El recorrido culmina en una nave acristalada, en el sector sur de la azotea, donde se disponen un espacio flexible de exposiciones y salones que pueden transformarse según la demanda con expansión visual al horizonte lejano. El acceso a dicha Plaza y al Centro Cultural se da de manera semicubierta por medio de una columna de escaleras y un gran ascensor que, sin tocar la potente fachada del Mercado, se desliza por delante de la misma dándole movimiento. Este elemento, indispensable en este proyecto en relación con la fachada existente, termina de definir la imagen definitiva del complejo comercial/cultural.
En cuanto a la materialidad de la intervención, se optó por estructuras y piezas metálicas que aportan al proyecto existente aquello de lo que carece y con el cual entabla un diálogo, logrando a nuestro entender una comunión a pesar de evidenciarse claramente la obra existente y las nuevas, que sirven como de prótesis a la primera. Como mencionamos anteriormente, es esta misma estructura la que define la arquitectura y las terminaciones e imagen del edificio, bajando costos en la construcción y en el posterior mantenimiento.
Se destaca la jerarquización del edificio existente mediante una cupertina a escala urbana, que le otorga prestancia y singularidad al complejo Plaza, Mercado y Centro Cultural.













AUTOR/A ARQUITECTA LETICIA ALFARO Y ARQUITECTO GUILLERMO LESCH
COLABORADORES/A ARQUITECTOS AXEL TANNER Y PABLO VILAS / MARTÍN LESCH, PAULA LESCH, SANTIAGO FRANCO Y JERÓNIMO ÁLVAREZ


Una intervención en este sector tan representativo de la ciudad debiera abarcar tres escalas. Territorial, urbana y arquitectónica. “No podemos seguir considerando los problemas como rurales o urbanos, construidos o naturales. Todo está conectado.” (David Chipperfield)
TERRITORIO
Las plazas urbanas son una pausa, un recordatorio de que debajo del suelo construido urbanizado, está el territorio, el suelo, la naturaleza.
Por otro lado, también la naturaleza provee todo lo que nos ofrece el mercado.
En el centro de esta intervención urbanística, uniendo plaza y mercado, está la naturaleza.
Se propone liberar de solados los laterales del sector central del conjunto, y que allí aflore el suelo vivo y los ecosistemas latentes. Es un pulmón verde que celebra el paisaje original, con especies autóctonas, reservorio de aguas pluviales y suelo permeable. El suelo vivo resulta la mejor estrategia para absorber CO2 y generar oxígeno. Estas prácticas de rewilding en tiempos de cambio climático, resultan no solo interesantes sino urgentes. El paisaje nativo se regenera incluso sobre una de las rampas vehiculares existentes, transformándola en un paseo peatonal. Es decir, no solo ya no hay asfalto allí, sino que, en lugar de autos, hay personas y vegetación.
Estas rampas icónicas, reutilizadas y reconvertidas en paisaje, se transforman en un símbolo de cambio de paradigma en

la forma de habitar nuestro planeta.
El urbanismo regenerativo se torna necesario.
La intervención pone en primer plano esta estrategia, haciéndola explicita, transformando a la ciudad acorde a los tiempos de la agenda ambiental global.
URBANISMO
Los solados del extremo de la Plaza y del interior del Mercado están ambos actualmente en un nivel por encima del cero, pero se encuentran desvinculados entre sí. Se propone unificarlos, fundiéndolos en una calle central elevada que balconea sobre el ecosistema central, poniéndolo en valor.
Esta calle central recorre a modo de eje compositivo la totalidad del conjunto, exterior (Plaza) e interior (Mercado), generando nuevas relaciones urbanas.
Este eje elevado es abastecido por rampas y por las preexistencias escalonadas de la plaza actual (escalinatas y anfiteatros), atraviesa por el centro el arco icónico que conforman las rampas existentes, y se funde en el interior del Mercado, conformando en conjunto un zócalo urbano para el encuentro de la comunidad. Este zócalo urbano se hace explícito en los perímetros del edificio y se va desmaterializando en rampas y equipamiento urbano (gradas, canteros, etc.) que lo vinculan fuertemente a las veredas. Esta estrategia se refuerza mediante el retranqueo de las carpinterías del Mercado, lo cual genera un espacio semicubierto sobre el zócalo urbano. De esta manera, mejora la espacialidad de este sector clave, permitiéndole tener usos y
articulando los dos niveles existentes. Es indispensable vincular estos diferentes niveles, para lograr accesibilidad fluida, intercambio entre interior y exterior y la consecuente vitalidad urbana. En ese sentido se pone especial cuidado en dotar con funciones y actividades (mercado, gastronomía, mix de usos) en estos perímetros sobre vereda, contribuyendo a la dinámica y continuo urbano.
ARQUITECTURA
Esta necesidad de integración del edificio del Mercado en sus perímetros, se hace aún más necesaria en su fachada hacia la Plaza, donde se requiere una operación potente, que logre integrar estos dos elementos actualmente divorciados. El tratamiento de esta frontera, entre edificio y plaza, es clave para lograr la integración.
Allí, se propone un espacio nexo, un atrio urbano inmaterial, una etérea estructura metálica soporte de paisaje , desde donde asciende el ecosistema desde nivel cero y llega hasta el nivel azotea.
Esta estructura no solo transporta paisaje nativo, también transporta personas a través de la circulación vertical y paseos rampantes que unen el nivel cero con la terraza cultural. Este sector nexo, de transición, se transforma en una expansión natural del edificio, en su vocación de integrarse a la Plaza. Es
un jardín vertical que tiene su punto de partida en un atrio urbano de múltiple altura, que articula el acceso al Mercado desde la Plaza. Desde allí se suceden recorridos rampantes y espacios de uso, graderías, cine al aire libre, mercado de flores, etc., que convocan a ser recorridos camino hacia los equipamientos gastronómicos y culturales de la azotea, constituyendo entre todos, un conjunto de atractores urbanos que dinamizarán toda el área. Este nuevo espacio es accesible e inclusivo, sin utilizar su presencia para apropiarse del lugar, sino para crear espacio público liberado, un paseo urbano. De esta manera, la vitalidad propia del Mercado se ve amplificada por este boofer urbano que lo vincula con la Plaza y, a través de ella, a la ciudad toda.
La intervención tiene la vocación de mixturar ecosistemas naturales con ecosistemas culturales, generando espacios con vitalidad urbana, para el encuentro de la comunidad toda.
Se valora de este proyecto la incorporación de un recorrido paisajístico, un ecosistema que une la Plaza con la terraza, un “atrio urbano” con espacios de uso. Se pondera también la relación del Mercado con el espacio urbano, tanto en sus calles perimetrales como en la Plaza.












AUTORES/AS ARQUITECTOS JUAN IGNACIO ALLERBÓN, JUAN GIOVINO, JUAN SEBASTIÁN OLEA Y LEONARDO
PARIGIANI / ARQUITECTAS NATALIA ASPREA, NATALIA GILARDI, CAMILA HERNÁNDEZ Y ANTONELA MANSUR COLABORADORES/AS ARQUITECTA ARIADNA GELABERT CRISAFULLI E INGENIERA GISELA MARÍA JOSÉ GONZÁLEZ / ARQUITECTO MANUEL MORÓN E INGENIERO LUCIANO MARTÍN SERVETTO MARTÍN

En la actualidad, las ciudades atraviesan un proceso de transformación que responde tanto a los desafíos globales como a las necesidades locales. En un contexto dominado por la digitalización y la globalización, es esencial que los espacios públicos no solo cumplan funciones prácticas, sino que también actúen como catalizadores de la vida comunitaria.
La pandemia ha reconfigurado la forma de habitar estos sitios. En este nuevo escenario, se busca proyectar entornos accesibles e inclusivos, que se ajusten a las necesidades de movilidad y convivencia. La revitalización de estos lugares representa un modelo de ciudad que prioriza la equidad, la sostenibilidad y el bienestar social, reconociendo que la calidad del entorno urbano impacta directamente en la vida cotidiana.
En el caso del macro y microcentro de Bahía Blanca, se evidencia una yuxtaposición de espacios que refleja la complejidad y diversidad de la vida urbana contemporánea. Este fenómeno, explorado por Michel Foucault a través del concepto de “heterotopías”, se manifiesta en la coexistencia de lugares con funciones, temporalidades y significados diversos dentro de un mismo contexto urbano.
La Plaza Lavalle y el Mercado Municipal no son meras infraestructuras urbanas; son espacios cargados de historia e identidad, funcionando como nodos de interacción social. Estas áreas reúnen actividades que, en otros contextos, podrían estar dispersas.
La yuxtaposición de estos espacios como oportunidad indica un cambio en la concepción de la ciudad. Este concurso brinda la posibilidad de repensarla, no solo como un lugar de tránsito o residencia, sino como un escenario complejo donde se entrelazan diferentes tiempos, funciones y experiencias. Este
enfoque permite la convivencia de lo diverso y fomenta la resiliencia urbana, creando entornos flexibles y adaptables. En este contexto, la iniciativa surge de un intenso análisis de las necesidades planteadas y de la búsqueda de un sistema que permita actuar proyectualmente con coherencia, priorizando la ejecución y la rápida puesta en marcha del Mercado y de la obra nueva. La intervención pone énfasis en lo social, favoreciendo el encuentro de las personas y generando espacios amables para el desarrollo de la vida en comunidad, permitiendo así desarrollar un sentido de pertenencia con el sitio, apropiarse de él y darle significado. “Encontrar un sistema estructural aplicable a todos los programas, que permita emplear todos los materiales, que se preste a todas las aplicaciones, de las más complejas a las simples; revestir esta estructura de una forma que no sea sino la expresión misma del sistema; decorarla sin contradecirla jamás, explicándola por la combinación de perfiles trazados con un método geométrico que resulte un corolario del aplicado para concepción del conjunto; dar a la arquitectura, es decir a la estructura recubierta por una forma artística, los principios de estabilidad más simples y comprensibles al ojo.”
Viollet-le-Duc. Dictionnaire raisonné de la Architecture Française. A Morel Editeur, Tomo XVIII, 1866. p. 490.
LA ACTIVACIÓN SOCIAL COMO ESTRATEGIA PROYECTUAL. INFRAESTRUCTURA DE ACTIVACIÓN SOCIAL. Nuestra propuesta se fundamenta en una estrategia conceptual que denominamos “sistema de activación social”, entendiendo que este término expresa las relaciones humanas y las instituciones que regulan la vida en comunidad dentro de una cultura. Resalta la importancia del bienestar colectivo,
promoviendo la equidad y la justicia social.
Este sistema se divide en tres ejes:
1. Activador colectivo: estrategia urbana y de pertenencia con el sitio
Garantizar accesibilidad y visuales largas desde los diferentes puntos de la intervención, así como también, la relación espacial entre las calles Donado y O´Higgins. Paseo lineal que une Mercado y Plaza en el nivel +1.20 m.
2. Activador funcional. Lo que funciona se preserva Rápida adecuación y puesta en marcha de las preexistencias del Mercado y la terraza.
3. Activador cultural. Acercar la cultura a la comunidad
Catalizador cultural y educativo. La obra nueva como nexo entre lo académico y lo popular.
Estos ejes se interrelacionan para estimular la activación social. Los usamos como una caja de herramientas para abordar los distintos sectores y desarrollar la propuesta programática. Se materializa en una intervención infraestructural, que en algunos casos se encuentra expuesta, actuando en sectores deteriorados y a activar, respetando las preexistencias. En línea con esto, el programa y las propuestas proyectuales están basados en los Objetivos de Desarrollo Sostenible (ODS), entendiendo que el cuidado del medio ambiente es el soporte vital para el desarrollo de la comunidad. La activación funcional puede mejorar la calidad de vida, esto incentiva la permanencia en un sitio, y a la vez genera posibilidades de cruces y encuentros que estimulan el sentido de pertenencia.
LA PROPUESTA URBANA. LA MACRO MANZANA, EL +1.20 Y LA PLAZA ELEVADA.
Tratamiento de bordes del Mercado y la Plaza Lavalle:
Continuidad con intervenciones previas y en ejecución.
Mejora en conexión urbana con sectores como la Plaza Rivadavia.
Elevación del nivel de la calzada:
Nivelación de la calzada a la altura de la vereda en las calles internas, Donado y O›Higgins.
Reducción del ancho de las calles a 5.70 metros (dos carriles).
Regulación del flujo vehicular, con acceso restringido a cocheras y áreas de descarga.
Priorización de la movilidad y accesibilidad peatonal.
Jerarquización de la fachada del Mercado y la Plaza como respuesta a una situación urbana atípica.
Flexibilidad urbana:
Posibilidad de desplazar bolardos y ampliar carriles en caso de necesidad futura de aumentar el flujo vehicular.
Equipamiento urbano:
Colocación de bancos de hormigón, canteros, maceteros de gran escala, luminarias LED, bicicleteros, cestos y bolardos en áreas vehiculares.
Instalación de dársenas de estacionamiento para transporte público, taxis, motos y servicios de abastecimiento.
Tratamiento de veredas con arboleda de ejemplares autóctonos.
Mejoras en la seguridad vial:
Protección de peatones y ciclistas mediante la creación de espacios exclusivos.
Mejora de la movilidad peatonal:
Priorización de la accesibilidad y el tránsito peatonal. La Plaza Lavalle extiende sus bordes.
Impacto positivo en el comercio:
Ecologización y recuperación del valor histórico, patrimonial y paisajístico del Mercado.
Mejora de la calidad de vida y oferta comercial, gastronómica y cultural.
Plaza Lavalle:
Acceso al nivel +1.20 m. (nivel interior del Mercado) mediante un sistema de rampas que suavizan la transición entre el nivel cero y la intervención.
Adoptamos un perfilado de suelo (+1.20m) que respeta



los terruños inalterables del área de influencia radicular de las especies de gran porte existentes, condición fundamental para su salud y estabilidad.
Proponemos una plaza con una explanada cívica que facilite la realización de reuniones espontáneas, además de un sector al nivel cero para personas de la tercera edad, con equipamiento adecuado. Se contempla un espacio para la memoria, vinculado a la vegetación autóctona, y dos áreas de juegos: una a nivel 0,00 en relación con estos espacios, y otra a +1,20, al nivel del centro cívico.
Perímetro del Mercado:
Generación de accesos fácilmente identificables desde las diferentes calles que rodean el edificio. Sobre calle Donado, se resuelven con dos rampas en ambas direcciones como acceso principal; en Olivieri, se aprovecha la altura existente para la descarga de camiones; en Arribeños, se incorpora una escalera en el sector gastronómico junto a una expansión que actúa como límite entre el peatón y el automóvil. La fachada que da a la plaza se resuelve con rampas que confluyen en el eje longitudinal.
LA PROPUESTA ARQUITECTÓNICA.
FUNCIÓN Y CULTURA.
Mercado Municipal: una rápida puesta en marcha. Los puestos vuelven al Mercado.
Aprovechamiento de preexistencias, reutilizamos y reacondicionamos montacargas y escaleras de servicio.
En subsuelo, eliminamos motores de cámaras, liberamos el área para generar más espacios de estacionamiento y generamos depósitos bajos para puesteros, materializados con sistema constructivo que permita el flujo de aire desde la calle.
Liberamos y rematerializamos la rampa central para crear un recorrido que conecta el subsuelo con el entrepiso en la fachada de Donado. Esta rampa está diseñada de manera que permita el flujo de aire a través del eje central, utilizando una estructura metálica suspendida que incorpora un piso de malla. Sistema de ventilación natural: El objetivo es mejorar la calidad de vida dentro del mercado y eliminar olores, preservando las rejillas perimetrales en el subsuelo. Teniendo en cuenta los vientos predominantes a lo largo del eje Donado/O›Higgins, el aire del subsuelo asciende por la rampa central, empujando el aire caliente y denso hacia unos ductos que, situados en el exterior del mercado, permiten la expulsión del aire viciado y fomentan la entrada de aire fresco (ver esquema de corte). Gradiente de usos: La distribución de los usos en planta está basada en la ventilación natural del recinto. Los locales con desagües y generadores de olores, se ubican hacia los bordes del mercado. Garantizamos ventilación y visuales largas. Los entrepisos de altura mínima se utilizan para depósitos y cámaras de frío, allí se alojan los sistemas de calefacción y las cocinas con fuegos del sector gastronómico. El calor que generan sube por los ductos que ventilan a los cuatro vientos. Desagües cloacales: Eliminamos baños y el sistema de bombeo cloacal del subsuelo. Proponemos un sistema de desagües con tanques de acumulación tipo cisternas en el nivel 0.00 y bajo el aro perimetral del +1.20m. Estas plataformas actúan como explanadas y bajo ellas se alojan estos tanques de fácil acceso para el mantenimiento y sobre la cota del ramal principal de cloaca.
Descarga: La calle Olivieri recibe la descarga de productos








frescos y secos para el sector de locales. Aprovechamos la altura +1.20m para ingresar los productos frescos a las cámaras en entrepiso mediante el uso de rampas niveladoras hidráulicas de descarga. Para el sector carnes rojas, diseñamos un recinto apropiado para desposte en nivel planta baja. Las cámaras de frio quedan en entrepiso solo para productos congelados de carnes blancas.
Puestos: Ubicación de puestos de frescos haciendo espalda a calle Olivieri, esto libera la planta para el armado de puestos bajos que no obstaculicen las visuales largas dentro del Mercado. Mixtura de usos: El programa de mercado en planta baja se fusiona con el programa gastronómico.
Gastronomía: proponemos dos locales en planta baja con cocinas amplias en entrepiso, para elaboración de platos calientes. Hacia las esquinas del Mercado proponemos comidas al paso, de rápida elaboración. Generamos una expansión elevada a 1,20m sobre calle Arribeños, alojando por debajo las instalaciones y para aprovechar la ubicación de mesas al aire
libre sobre un sector que recibe luz directa del sol. Entrepiso cara Donado: La rampa central permite la continuidad del Mercado en el entrepiso hacia la cara de Donado. Por su altura óptima, lo consideramos como superficie útil para el desarrollo de programas que incentiven el consumo de la producción de diseñadores locales independientes, lo fusionamos con espacios de cowork y cafetería, reforzando esta idea de cruces y oportunidades. Sistema de módulos: Se propone sistematizar el armado de diferentes opciones modulares para puestos del Mercado, apoyo y huertas con solo seis piezas de producción industrial y seriada que dan múltiples posibilidades combinatorias para cubrir todas las necesidades de equipamiento del conjunto. Bajo rampa vehicular: Se propone un programa de vivero de venta al público de la producción de la huerta de la terraza. Parasoles de cocheras: No intervención, aportan a la identidad del Mercado y cumplen su función de forma eficiente, controlando la ventilación.
TERRAZA. UN ESPACIO PARA LA DANZA Y LA CONCIENCIA MEDIOAMBIENTAL.
Desmantelamos el edificio azul y conservamos el edificio de hormigón, conservando la sala del antiguo Concejo Deliberante, eliminamos la tabiquería liviana, vaciando el ambiente interior transformándolo en un espacio de uso flexible Bóveda vidriada: Esta pieza existente conecta la llegada a la terraza con el edificio. Se vacía la losa del piso, preservando solo la parte superior de la bóveda, lo que genera un espacio semicubierto para el acceso.
Flexibilidad espacial: Proponemos la creación de salas multifuncionales que permitan configurar espacios para ensayos de danza contemporánea o talleres. Aunque el uso es flexible, el diseño del programa ha sido desarrollado considerando el valor e importancia de esta rama artística en Bahía Blanca, así como la falta de espacios físicos adecuados para su óptimo desarrollo. Conciencia medioambiental: Proponemos un programa educativo en la parte exterior de la terraza. Un espacio apto para visitas grupales. Desarrollamos un paseo elevado formado por espacios con vegetación autóctona y un sistema de huertas urbanas cuyo riego proviene del agua de lluvia que incentivamos acumular sobre las losas del edificio existente en terraza. De esta forma, el agua actúa como aislante y protector del hormigón ante los cambios bruscos de temperatura de la zona.
EDIFICIO NUEVO. UN UMBRAL, UN PUNTO DE ENCUENTRO, UN COBIJO, UN REGULADOR DE LA ESCALA, UN ACTIVADOR SOCIAL.
Infraestructura de activación: Proponemos implantar una estructura espacial liviana con mínimos apoyos posibles, de manera que permita liberar la planta de la plaza. De esta forma, priorizamos el espacio público y las visuales largas potenciando los momentos de oportunidades y cruces.
En el nivel +1.20 generamos los baños públicos y un hall de acceso pasante, que puede ser abierto o cerrado, y se integra con la explanada de la Plaza y el Mercado, permitiendo abrir o cerrar el espacio de acuerdo al uso que se genere bajo y sobre este umbral.
Proyectamos una estructura que, a modo de puente grúa, habilita la conexión plaza/terraza. Esta pieza estructural permite recibir la carga del puente en voladizo y estar en equilibrio, sin trasladar cargas al Mercado.
La pieza estructural tiene imagen portuaria, intencionada por la decisión de una intervención infraestructural; la función puso en evidencia una forma que remite a la identidad de la ciudad-puerto de Bahía Blanca. En cuanto a la materialidad, pensamos en una pieza de rápido montaje, que se prefabrique en talleres, fomentando la economía local y disminuyendo la huella de carbono. El ensamble se plantea por etapas.
La viga Vierendeel: Momento del proyecto en donde las tres estrategias proyectuales se cruzan, generando un espacio de oportunidades, cruces y encuentro, es un espacio indeterminado, un gran hall, un lugar listo para ser apropiado por múltiples usos, bajo y sobre este elemento. Actúa como regulador de la escala entre el Mercado y la Plaza, funciona como soporte de los eventos culturales, le da marco al Mercado, no lo niega, lo hace participar, lo integra. La intención es mostrar la producción artística del centro cultural en un nivel intermedio y con posibilidades de albergar a un gran número de personas; la cultura se acerca a la gente y se integra con el entorno urbano.
“La arquitectura ha dejado a través de los siglos sistemas puros. Estos sistemas son las diversas arquitecturas de la historia. Estos sistemas extienden sus efectos de la casa al templo. Estos sistemas comportan la solución rigurosa de un problema de estática: cada arquitectura está atada a un modo de estructura.”
Le Corbusier. Almanach d’une architecture moderne, Ed. Crès, Paris, 1925
Se destaca la alusión a la construcción identitaria de la Ciudad-Puerto como el modelador del diseño. Además, incorpora una estructura calada que permite las transparencias al Mercado, un equipamiento abierto al uso múltiple, generando escenario a las variadas propuestas culturales posibles.

AUTORES ARQUITECTOS FERNANDO MONTI, MARCO ZAMPIERON Y ADOLFO SCHLIEPER COLABORADORES FEDERICO LUCERO Y GINO MONTEVERDE

Entendemos el concepto de mercado como espacio de intercambio, como ámbito donde poner en relación lo producido y lo deseado, lo que unos tienen para ofrecer y aquel lugar donde otros van a buscar lo que necesitan, pero también como un paseo, como un esparcimiento. Mercado como espacio de encuentro, como pintura de lo social: mixtura y reunión, diferencias y similitudes, mercado como espacio público, abierto, democrático, local, propio y apropiable; complejo y heterogéneo. Estos límites ambiguos nos llevan a pensar, dentro de la dinámica urbana, en ámbitos que promueven estas interacciones tan contemporáneas: ya no hablamos de un edificio y un espacio público, un mercado y una plaza, hablamos de mercado-plaza y plaza-mercado, dos superficies imprecisas que se conjugan exacerbando la mezcla y la interacción. La planta cuadrada del mercado cuyos límites se desdibujan y el todo abierto de la plaza en la que el cuadrado del semicubierto, memoria del cuadrado del edificio, establece esos límites que naturalmente están indefinidos. Entendido el concepto así, el proyecto para la refuncionalización y puesta en valor del Mercado Municipal y el espacio público circundante, el cual incluye la Plaza Lavalle, establece una serie de criterios que serán la base para pensar y definir el proyecto de forma integral. El edificio deja de ser un elemento aislado de su entorno inmediato para transformarse en una pieza urbana integrada al espacio público, en su constante diálogo con la Plaza Lavalle. Las escalas de la intervención las podemos definir en base a:
g El ámbito del Mercado en su interacción con la Plaza Lavalle y con el resto del espacio público. El pasaje de la idea de dos unidades contiguas, plaza y mercado, a la transformación en un sistema de mercado-plaza y plaza-mercado.
g La puesta en funcionamiento del Mercado como espacio comercial contemporáneo.
g Las intervenciones en la terraza del edificio con su refuncionalización en espacio cultural.
El ámbito del Mercado en su interacción con la Plaza Lavalle y con el resto del espacio público. El pasaje de la idea de dos unidades contiguas: plaza y mercado a la transformación en un sistema de mercado-plaza y plaza-mercado. Hay un cambio de concepción del espacio público y semi privado. Empezamos a pensar en términos de un suelo público cuyos límites son difusos e indeterminados. La idea de un mercado que es una plaza cubierta y una plaza que es un mercado al aire libre.
En cuanto a la intervención en lo que llamamos el nivel 0 o planta baja, la misma pretende considerarlo en continuidad y atadura con la Plaza Lavalle, llevando todo a la misma cota y unificando todos los solados para hacer, de este nivel, un todo de uso público. Las calles Arribeños y Olivieri se incorporan al proyecto de manera unánime; su ya propuesto uso manda-peatón logra congeniar con la intervención, relacionando el contexto inmediato -edificios de uso residencial, comercioscon el sistema mercado-plaza y plaza-mercado.
Es así que las veredas próximas al proyecto, estas calles y los solados propuestos se integran para generar una gran macromanzana urbana.
Esta primera operación lleva consigo la voluntad de resolver la actual carencia de versatilidad de la Plaza existente en la que, debido a su configuración morfológica, ciertos usos de la vida colectiva que tienen que ver con el esparcimiento quedan casi
imposibilitados. Se suma a esto, su escasa superficie permeable, que es otro tema a resolver.
La Plaza pasa a conformarse como un gran espacio permeable que puede alojar diversas actividades (recitales, cine al aire libre, lugares de esparcimiento para niños, actividades deportivas), en cuyo perímetro se desarrolla un espacio semicubierto para alojar ferias y espacios de intercambio comercial que se relacionan con lo que sucede en el interior del Mercado; es la plaza-mercado.
El resultado de esta primera operación es un equilibrio entre el espacio de uso público de la planta baja, tanto exterior como interior. Proponemos una relación fluida entre los usos de la Plaza Lavalle y la planta baja del Mercado Municipal, donde el piano nobile es el principal elemento integrador entre dos espacios que hoy en día permanecen desvinculados, con versatilidad de usos donde la mayor parte del tiempo estos espacios están siendo utilizados por los ciudadanos.
La puesta en funcionamiento del mercado como espacio comercial contemporáneo.
Con las características propias de un edificio destinado en sus niveles inferiores a un ámbito comercial, la situación interior del edificio en su nivel 0 requirió repensar los espacios de puestos de venta, circulaciones y flujos.
En primer lugar, la propuesta anteriormente mencionada de piano nobile y la condición ordenada y/o simétrica del edificio nos llevó a pensar en la conjugación de diversas tensiones: en primer
lugar, un eje de circulación central que se corresponde con la dirección planteada por la situación de contigüidad entre el edificio y la Plaza, que determina una suerte de fuerza longitudinal que define un atravesamiento interior de esta planta baja comercial desde calle Donado hasta calle O’Higgins. Por otro lado, esta fuerza se conjuga con otras de significativa potencia que están determinadas, tanto por la transparencia de toda la planta baja como por el uso de una carpintería que se repliega y desdibuja los límites físicos y transforma dicha planta en un espacio flexible, de variadas aperturas hacia el espacio como un todo público cubierto, semicubierto y descubierto, donde los accesos ya no se producen en un lugar específico sino en todo el perímetro libre. Esto refuerza la idea de plaza cubierta y mercado descubierto o sistema mercado-plaza y plaza-mercado. En segundo lugar, los puestos, de ligera transparencia para continuar con la permeabilidad de planta baja, son de índole comercial y gastronómico. El nivel 0 se destaca por los puestos comerciales, de uso cotidiano, mientras que en la planta de entrepiso predominan los puestos gastronómicos, tomando el usuario otra relación con el espacio público e invitándolo a una condición más de permanencia en el edificio. Estos dos niveles mantienen constante relación, dada por la estructura original del Mercado Municipal, con sectores en doble altura. El subsuelo de servicios mantiene sus núcleos verticales que recorren desde este nivel hasta el entrepiso, para una adecuada logística en cuanto a la distribución de productos/servicios.



Las intervenciones en la terraza del edificio con su refuncionalización en espacio cultural.
Las intervenciones en el nivel superior del edificio, donde en algún momento funcionó el Consejo Deliberante de la ciudad, están dadas, en primer lugar, por los núcleos de acceso vertical hacia este último nivel y, en segundo lugar, por las intervenciones edilicias propiamente dichas en esta terraza.
Las circulaciones verticales se toman como dos adiciones al edificio existente en la fachada que da hacia la Plaza, destacándose dos elementos -escalera por un lado y ascensores por el otro- por sobre la tensión lineal que generan las losas existentes de los estacionamientos. Estas circulaciones recorren el edificio en toda su altura, desde el nivel 0 hasta la terraza; podría decirse que vinculan dos espacios de acceso público en altura. El revestimiento reflejante del núcleo de ascensores nos permite pensar en la imposición del edificio brutalista en la ciudad en contraposición con los reflejos del verde de la plaza, en un solo elemento que interactúa constantemente entre estas dos materialidades contrapuestas y los distintos momentos del día.
Las intervenciones en el último nivel expresan cierta liviandad y ligereza respecto al edificio existente. Por un lado, al llegar de los núcleos verticales, una gran expansión semicubierta hace las veces de antesala del espacio cultural propuesto. En la terraza, junto con la nueva intervención directamente relacionada al edificio del exConsejo, se proponen elementos estructurales livianos que expresan lo mínimo, no solo en cuanto a lo constructivo, sino también a un lenguaje dado por la sutileza de la intervención en sí misma. Es esta transparen-
cia y ligereza lo que nos permite lograr un espacio que considera la memoria colectiva del edificio, dado por la permeabilidad visual desde la terraza hacia el edificio donde funcionó el exConsejo. Sumado a esto, nos da la oportunidad de pensar este espacio como una gran linterna urbana en las noches en las que se desarrollan actividades, tanto en la Plaza como en la terraza, abriendo el edificio a toda la ciudadanía bahiense. Estos nuevos usos, dados por el nuevo sector propuesto como por el edificio existente, son de uso cultural y administrativo. La nueva intervención, debido a sus condiciones espaciales, permite una gran flexibilidad y versatilidad de usos, siempre en relación con la terraza y con visuales directas hacia la Plaza Lavalle. Del edificio existente se aprovechan sus cualidades espaciales para generar un gran espacio central con muestras/exposiciones permanentes o temporales y, en los sectores laterales, oficinas y un auditorio/sala de conferencias.
Todos estos espacios tienen una relación directa con una propuesta de terraza verde de esparcimiento, tanto para el usuario como para el personal administrativo del edificio. Estas intervenciones paisajísticas pretenden poner la balanza a favor de los espacios permeables y no contar con gran cantidad de superficie impermeable, favoreciendo el uso sustentable del edificio.
Se pondera de este trabajo la conceptualización del espacio público a modo de “Mercado Plaza”, reformulando justamente la relación entre ambos a través de un ring semicubierto que oficia como espacio ferial, confinando un gran espacio verde interior. Propuesta de fuerte carácter tipológico y marcada geometría.









AUTORES/AS ARQUITECTOS JUAN IGNACIO SÁNCHEZ Y SEBASTIÁN CERRI, JUAN MANUEL PRIETO Y AGUSTÍN
LANFRIT / ARQUITECTAS CLARA FOCACCIA Y SOL GONZÁLEZ SPÍNOLA
COLABORADORA INGENIERA AGRÓNOMA CAROL GALLO (PAISAJISMO)
VOLVER AL ESPACIO PÚBLICO. DEMOCRATIZAR EL ACCESO A LA CULTURA.
La arquitectura se vuelve una disciplina clave para la ciudad siempre y cuando fomente la participación ciudadana de manera amplia, abierta y tendiendo a la integralidad. La pregunta es: ¿qué pueden impulsar o generar las prácticas arquitectónicas en los colectivos que habitan la ciudad (humanos y no humanos), que se relacionan con ellas? Podemos asegurar que las prácticas de relaciones que se dan en las espacialidades urbanas y edilicias pueden cambiar o incidir en la trayectoria de los porvenires. La arquitectura puede producir efectos en los comportamientos y movimientos urbanos, efectos políticos, y uno de estos es la vuelta al “espacio público” a través de las actividades culturales, que son la manifestación tangible e intangible de los acontecimientos de una sociedad en la vida urbana.
La ciudad es un fenómeno territorial que contiene capas superpuestas que dan cuenta de su historia y sus procesos de crecimientos y decrecimientos a través de las manifestaciones estilísticas, infraestructurales, ambientales y económicas, entre
otras. “El territorio como palimpsesto” es el título del libro de André Corboz en el que propone descifrar y poner en valor, por medio de la comparación de la ciudad con un manuscrito sobre-escrito, “las huellas” que van quedando “atrás” de lo que se va reescribiendo a lo largo del tiempo.
En este marco, es objeto de la propuesta concientizar miradas, entendiendo a lo preexistente como un dato valioso y verdadero de un porvenir pasado, en el que se encuentran muchas de las respuestas a los dilemas presentes.
Bucear esas texturas urbanas, culturales y ambientales, sus lógicas evolutivas y transformativas, es una misión que esta propuesta ofrece. Reconocer lógicas, expresiones, y paisajes, preservarlos y así ponerlos en valor como dinámica que ha guiado a nuestra propuesta como una nueva capa urbana con una expresión cuidadosa, contemporánea y reparadora, evitando cualquier atisbo de gentrificación. La idea es seguir preguntándonos si en ello se encierran nuevas claves para ofrecer a la red de actores urbanos una nueva vuelta al espacio público.



RELACIÓN URBANA, LA MACROMANZANA.
La propuesta se centra en estrategias claves para unificar el área y crear un nodo urbano cohesivo:
1. Flexibilidad de uso. Se unifica el nivel de solados exteriores, elevándolos a nivel de vereda y separando vehículos y peatones con bolardos. Esto permite peatonalizar el conjunto para eventos especiales (festivales gastronómicos, artísticos, culturales) mientras mantiene el acceso vehicular en horarios regulares, evitando la desolación típica de zonas peatonales permanentes.
2. Continuidad visual y funcional. Se incorpora equipamiento urbano, iluminación e intervenciones paisajísticas integrales que dan unidad a la macromanzana como nodo peatonal.
3. Potenciación de bordes:
g Donado. Se ensancha la vereda, reduciendo un carril vehicular para dar mayor presencia al acceso norte del Mercado y mejorar el flujo peatonal comercial.
g Brown y Saavedra. Se diseñan veredas con espacios para actividades gastronómicas y de esparcimiento, incluyendo pérgolas en paradas de colectivos.
g O’Higgins. Se aumenta la superficie verde y especies arbóreas, reemplazando muros de contención por lomadas de vegetación para mejorar la relación visual con la Plaza. Además, se continúa con la propuesta de ensanche de veredas en ambos frentes con dársenas para estacionamientos vehiculares.
g Saavedra. Se amplía el arbolado en cazuelas, siguiendo un orden regular que refuerza la idea de conjunto.
4. Integración público-privada. El diseño fomenta el uso mixto del espacio, potenciando el atractivo del conjunto y la interacción entre áreas públicas y privadas.
Estas estrategias buscan transformar el área en un espacio urbano dinámico y cohesivo, que responda a las necesidades de la comunidad y potencie la identidad del lugar, mejorando significativamente la experiencia peatonal y la calidad ambiental del entorno.

ESPACIO CULTURAL/ESPACIO INTEGRADOR.
Con el objeto de integrar los componentes existentes del sector en un conjunto reconocible, incorporamos un nuevo elemento arquitectónico evitando intervenir de manera invasiva en la preexistencia patrimonial, que cumple múltiples funciones:
1. Conecta el Mercado, la Plaza y el espacio cultural de la terraza. 2. Resuelve requisitos técnicos (sistema de escape de emergencia y elevador).
3. Añade valor cultural con salas de exposición y actividades. 4. Genera una nueva capa arquitectónica, cuidadosamente “apoyada” en la preexistencia de valor patrimonial, con un nuevo uso.
5. Generar un nuevo hito urbano-ambiental. Este nuevo elemento no solo mejora la funcionalidad, sino que también dota al conjunto de una identidad visual coherente con su nuevo propósito. Así, el recorrido se convierte en una experiencia integral, ofreciendo vistas a la Plaza y la ciudad, mientras representa física y visualmente la nueva función del complejo y se adapta a la escala de una intervención cultural significativa Esta nueva función está pensada para ser energéticamente eficiente a través de elementos de climatización pasiva, materiales provenientes de la zona y la construcción llevada adelante por medio de cooperativas locales.
PLAZA LAVALLE.
La intervención en la Plaza se centra en crear un espacio más integrado y funcional, manteniendo los rasgos de su esencia y mejorando su relación con el entorno. Se genera un playón cívico, una nueva huella, delimitado por el acceso al Mercado/espacio cultural y por una gran pérgola lineal que marca la transición hacia el área de mayor vegetación y el anfiteatro. Este playón multifuncional permite la ampliación del Mercado con puestos exteriores y ferias temporales, además de acoger diversas actividades comerciales, culturales y cívicas de gran escala.
Para lograr una mayor apropiación de la Plaza por parte de la ciudadanía, se realizan cuidadosas operaciones de nivelación
en los solados. Estas mejoras facilitan el acceso a cada sector, eliminando barreras arquitectónicas, aunque conservando en gran medida los niveles existentes. Se ha puesto especial atención en preservar elementos apreciados por la comunidad, como el anfiteatro, que se mantiene prácticamente intacto. Las modificaciones realizadas en esta área son mínimas y están orientadas a maximizar las superficies de vegetación, mejorando así la calidad ambiental del espacio. Esta reconfiguración equilibrada busca respetar la historia y el uso actual de la Plaza, al tiempo que introduce mejoras significativas en su funcionalidad y atractivo.
MERCADO.
Se propone una reorganización integral que prioriza la flexibilidad y la conectividad urbana. Se invierte el esquema de distribución, creando un amplio eje central que une las calles Donado y O’Higgins, mejorando la circulación y vinculando el Mercado con la ciudad y la Plaza adyacente. La accesibilidad se optimiza mediante intervenciones en los niveles de la Plaza, eliminando barreras arquitectónicas. Aprovechando el espacio disponible, se crea un nuevo hall de acceso bajo la rampa vehicular, que conecta el mercado con un área cultural y una terraza. Esta transformación busca convertir el Mercado en un espacio dinámico y accesible, reforzando su papel como centro de actividad comercial y social en la comunidad.
Terraza/Bosque Urbano (conceptos para los espacios verdes). “El vacío arquitectónico contiene un lleno biológico donde se escenifica el movimiento, es decir, la realidad del jardín.” Gilles Clément.
La intervención en la terraza se centra en crear un “parque en altura”, maximizando el espacio para cubierta verde. Se eliminan las ampliaciones posteriores, conservando solo la construcción original. El nuevo elemento arquitectónico proporciona acceso y provee de servicios a la terraza. La incorporación de árboles de tamaño medio permite que este espacio verde elevado sea reconocible desde diversos puntos de la ciudad, creando un hito visual y ambiental distintivo. La escena del jardín sucede en la Plaza y en la terraza del edificio. Nos empeñamos en conservar las especies existentes, muchas de ellas de gran porte, y procuramos reforzar su presencia para fortalecer el movimiento de la naturaleza. Los ejemplares utilizados en la plaza son de Palo borracho (Chorisia speciosa). Los ejemplares seleccionados para las terrazas son Espinillo (Acacia caven) y Barba de chivo (Cesalpinia gillesii). En la base de estos árboles bajos, o arbustivos, que harán las veces de bosque denso de baja altura, se utilizarán todo tipo de plantas herbáceas aromáticas que puedan ser utilizadas en la cocina de los restaurantes: menta, orégano, tomillo, salvia, romero, estragón, ciboulet.
Se valora la propuesta principalmente desde lo urbano al proyectarse una plaza de carácter multifuncional y cívica respetando la arboleda sobre la calle O’Higgins. Caracteriza a este proyecto la neutralidad de la nueva fachada sobre la Plaza, que opera como sistema circulatorio y contiene actividades culturales mientras conecta el nivel cero con la azotea.









EXPANSIÓN MERCADO
EVENTOS CULTURALES
PROYECCIONES
RECITALES
AUTORES/A ARQUITECTOS ESTEBAN CÓRDOVA, MAURO BAVARO, MARIANO GÓMEZ BLANCO, GABRIEL
GALEANO Y FABRIZIO AIELLO / ARQUITECTA LUCÍA DEL MORO
COLABORADOR/A DOCTOR ARQUITECTO LUCIANO DICROCE (ASESOR BIOCLIMÁTICO) Y LICENCIADA
DIANA ESTÉVEZ (ASESORA DE PAISAJE)

AXONOMÉTRICA
Se destaca la importancia que ha tenido este espacio urbano de la ciudad de Bahía a lo largo de la historia, considerado centro urbano y llamado microcentro, espacio que supo albergar el mercado de abastecimiento para la población y que ha sido renovado en la década del 60 con la construcción de un moderno edificio, en términos conceptuales, resaltando su vacío central con una gran plaza de patios interiores (así fue concebida). Ha sufrido un notable éxodo, que no ha favorecido el crecimiento comercial y habitacional, y esa condición ha generado un abandono del área central, quedando estigmatizado como un añejo microcentro deteriorado, sin vida, sin mantenimiento, inseguro, una zona no tenida en cuenta por los bahienses ni por los visitantes como lugar de paseo, lugar de compras o recreativo, y mucho menos, residencial.
Se busca volver a reincorporar en el mapa del imaginario urbano bahiense y del turista, este gran centro olvidado, con su característica única de macromanzana y pasajes, volviendo a resurgir y unirse en el circuito cultural, social y comercial de la ciudad (Eje Teatro-Mercado).
REGENERACIÓN URBANA: “CONTEMPORANEIZAR LA CIUDAD”.
Se apuesta por un nuevo fortalecimiento urbano a partir del reciclaje y cambio de usos del monumental edificio del Mercado y su Plaza aledaña que potenciará su entorno, permitiendo el mejoramiento del equipamiento público, veredas, calles, dársenas
y mobiliario para el desarrollo, tanto residencial prioritariamente, como comercial, recreativo y turístico, etc.
Es importante sentar postura acerca de la forma de revitalización adoptada; no se trata de iniciar de cero, de dejar de lado una construcción histórica sino de darle valor, aportarle brillo y generarle pequeñas intervenciones que den respuestas al cambio de paradigmas, de generaciones, y con ese gesto de acupuntura, poder transformar lo negativo en positivo, y encender un motor que provocará una sinergia social, cultural y urbana.
Esta renovación generará un desarrollo de espacios públicos, parques, que brinde lugares para el intercambio de los vecinos, permitiendo una construcción necesaria de comunidad contemporánea.
Es por eso que pretendemos reforzar esa lógica urbana resaltando e integrando el gran mercado que acompañe esa nueva dinámica, con un espacio abierto por debajo, accesible perimetralmente y un nuevo remate de fuerte carácter simbólico cultural, apuntando hacia una evolución futura desde todo punto de vista, ya sea desde lo urbano, lo arquitectónico, como desde lo social. Una pieza que se renueva en el centro del gran vacío, remarca la continuidad del corazón histórico de la ciudad, genera lazos con el vacío urbano “Plaza de la ciudadanía”, que favorece la conexión de áreas desarticuladas e intenta generar costuras en ambas direcciones, facilitando conexiones indispensables para un desarrollo sano del área y brindando garantías en el correcto crecimiento.
Se busca generar una gran plaza que pueda contener y condesar un paisaje cultural, social y natural, creando identidad y sentido de pertenencia en la población, concepto fundamental pensando en la integración entre la ciudad, la arquitectura y los habitantes, en una relación directa a la temática del edificio en cuestión. Se propicia espacio público de calidad con equipamiento de intercambio en relación a los aspectos anteriormente mencionados y se caracterizan de la siguiente manera, siguiendo el concepto de patios e islas como lugares de apropiación:
1/ Pasaje de las Ferias. Se crea un gran vacío lineal conector urbano, que resuelve la ruptura espacial dando perspectivas largas, genera un nuevo acceso al Mercado desde varios puntos de llegada y propone un lugar propicio para paseo de puestos feriales fomentando el desarrollo de una economía social solidaria y la promoción de pequeños productores, artesanos, etc. Con posibilidad de organizar eventos de mayor escala, como festejos, celebraciones, y conformar la expansión gastronómica constante del Mercado.
2/ Plaza cívica. Anfiteatro con espacios de encuentros, de participación ciudadana, de hall exterior de llegada, de reuniones vecinales, y todo tipo de manifestaciones necesarias para el desarrollo de las personas y la sociedad en su conjunto.
3/ Patio de la niñez. Un espacio para el juego, la actividad física, el desarrollo de la imaginación y la creatividad, promoviendo el sano crecimiento de los niños y garantizando sus derechos.
4/ Isla deportiva. Isla de actividades aeróbicas y físicas, con equipamiento para ejercicios, y por otro lado, espacios de rampas para skaters y bicicletas deportivas, para todas las edades.
5/ Patio de encuentro. Un espacio contenido para el descanso, para el encuentro con amigos.
6/ Pabellón de información. Como lugar de llegada desde la Plaza, implantamos un pabellón de información como punto simbólico de referencia y control, con equipamiento sanitario y seguridad para el entorno, garantizando el correcto funcionamiento de las actividades sociales propuestas.


Es importante dejar en claro que tanto calles como veredas, sendas y equipamientos urbanos serán diseñados en esta propuesta integradora para generar una renovación que refuerce la identidad.
PROPUESTA PAISAJÍSTICA.
Siguiendo el concepto de darle vida al centro, pensamos en tomarlo también desde un punto de vista metafórico y literal, proponiéndolo como “una gran isla de Biodiversidad”. “La ciudad como hábitat creado por nuestra especie, lejos de lo que se pensaba antaño, debería poseer una amplia biodiversidad para conservar su salud y contribuir a conservar la vida, dentro y fuera de ella. El término biodiversidad se entiende como un reaseguro de la conservación saludable y sostenible de los sistemas biológicos y humanos, que no dejan de ser la misma cosa. Surge a nivel mundial la necesidad de trabajar para incrementar la biodiversidad como reaseguro de la conservación de la vida en todos los niveles, de lo que se ve y de lo que no. Imbuir a las ciudades de vida ha sido la premisa, y una de las ideas más abrazadas, la de generar áreas donde se promueva esta biodiversidad para que tanto aves, insectos y microorganismos beneficiosos formen parte de la misma, enriqueciendo la vida de sus habitantes y de toda la región circundante, con áreas que ofician de puentes por donde se mueven los seres vivos. Las islas de biodiversidad contribuyen a la restauración ecológica de las ciudades, favoreciendo la presencia de flora y fauna beneficiosa que forma parte de las redes tróficas y/o que interviene en el control biológico de otras especies. También promueven el retorno a la naturaleza de los habitantes citadinos, para entrar en contacto con microorganismos beneficiosos para su salud, disfrutar de aves, mariposas y promover un mejor manejo de estrés”. Se basan, principalmente, en un área donde se acondicionan bandas herbáceas florales y gramíneas espontáneas o implantadas, así como también refugios (composteras de hojas, maderas en descomposición, hoteles de insectos, etc.), facilitando con ello la existencia de alimento y de zonas de refugio y nidificación.



CORTE TRANSVERSAL

El entorno urbano resulta cada vez más adverso para todo tipo de fauna, incluidos los insectos polinizadores. Los grandes edificios, el asfalto y la contaminación, entre otras causas, hacen que muchas especies pierdan sus hábitat y vayan disminuyendo sus poblaciones; de ahí la importancia de conservar y restaurar las zonas verdes de nuestras ciudades para proporcionar hábitat adecuados que favorezcan la presencia de los polinizadores e insectos que van a beneficiar de estas islas de vegetación. Escarabajos, abejorros, mariposas, orugas atraídas por sus plantas nutricias, también encontrarán en estas estructuras un hábitat propicio para establecerse, favoreciendo, a su vez, a depredadores de insectos perjudiciales cuando se salen de control, como las últimas epidemias de dengue que hemos padecido. Jardines biodiversos: al igual que los espacios y lugares propuestas para las actividades, se piensan esas islas con diversas especies generando nuevos ecosistemas y desde lo paisajístico, atmosferas vegetales de distintas coloraciones, texturas, aromas, etc. Jardines de lluvia: enfoque innovador y alternativo de la gestión del agua de lluvia en entornos urbanos (en espacios de veredas y calles semipeatonales del “impermeable” microcentro de Bahía). Estos espacios verdes, además de los temas mencionados, colaboran en la reducción del riesgo de inundación, en la absorción de contaminantes a través de las macròfitas (plantas), en la reducción del efecto “isla de calor” en las ciudades -contrarrestando el aumento de temperatura provocada por superficies asfaltadas y
hormigonadas-, en el incremento del valor añadido de la ciudad de Bahía -debido a la calidad paisajística del entorno-, y previenen la contaminación del agua, reduciendo las fuentes potenciales de contaminantes aguas abajo.
Propuesta arquitectónica.
Se busca a nivel general, una intervención de genere una gran renovación urbana con recursos moderados, manteniendo las preexistencias en la medida de lo posible para aprovechar lo que tenga valor y se integre bien en esta reconversión, incorporando ciertos elementos, realizando pequeños movimientos como piezas de ajedrez, para provocar una alteración espacial, funcional, y sobre todo, simbólica, reciclando con nuevos materiales para quitar el tinte de tristeza del deterioro. Con una planta baja permeable, una plaza que se acople en esa continuidad en ambos sentidos, despejando las interrupciones y abriendo nuevas perspectivas urbanas, y un remate como un faro cultural, al cual se accede de manera contundente desde la Plaza y la ciudad.
Distribución del programa.
Mercado. En términos específicos para cada parte del programa, se propone una planta baja permeable, que tenga accesos en los cuatro lados, y un perímetro ligado a lo gastronómico para generar desborde en la vía pública, dándole vida a las calles semipeatonales.


El centro del espacio de la planta baja es un mercado de piezas moduladas, integrables, que definen una estética renovada, contemporánea, de elementos livianos, de imagen continua y homogénea para dar unidad, y adaptándose a las múltiples actividades que se puedan dar. Con entrepisos despejados para espacios de gastronomía, lugares de trabajo tipo cowork, o puestos de venta que requieras espacios expositivos. Servicios. Los servicios se ubican ordenadamente en un perímetro para liberar el espacio central de un mercado flexible, pero se intercalan como llenos y vacíos para despejar los bordes y asi tener accesos libres desde la ciudad en todas las caras. Hall cultural. Se propone un nuevo Hall cultural, accesible desde la Plaza y el nuevo pasaje propuesto y desde el espacio peatonal urbano, siendo un espacio de llegada con exposiciones como antesala del gran remate cultural. Núcleo. El nuevo núcleo emerge como un hito que se eleva como un tótem de cara a la Plaza. Otorga un valor simbólico de renovación y de cartel de escala regional, que conecta la vida urbana del cero con el remate de esta pieza urbana, como es el faro cultural. Asociado al nuevo Hall, tiene su acceso desde ese único punto, reforzando la idea de espacio de llegada. Centro cultural y Terraza mirador. Pensando en la idea de acupuntura, introducimos una nueva pieza que articula las partes en las preexistencias, potenciando las conexiones y el uso de la terraza como un recorrido cultural, que tiene exposiciones en todos los espacios reciclados para tal fin. Con diseños contemporáneos, brindan la posibilidad de generar actividades contemplativas como participativas, con salas, salones multiuso, bar y expansiones como patios de esculturas, convirtiéndose en el gran
mirador público de la ciudad. Plaza y pabellón de información. Como hemos explicado anteriormente, la Plaza genera lugares contenidos y más abiertos, respetando una construcción histórica de la ciudad y mejorándola en relación a las nuevas generaciones y la época actual. El pabellón de información con equipamiento sanitario, se ubica cercano al acceso de calle O Higgins, siendo referencia de llegada desde un eje conector urbano. Rediseño de veredas y calles. Siguiendo la renovación de espacios públicos de la ciudad, se otorga a este centro las mismas características y lenguajes utilizados en áreas aledañas. Ensanchamientos de veredas para la mejor circulación peatonal. Dársenas de estacionamiento reducidas para alivianar, pero ayudando a la llegada de vehículos. Calles a nivel vereda, mejorando las conexiones ciudad Plaza-Mercado, dando mejor accesibilidad y continuidad espacial, protegiendo al peatón con cambios de solados y bolardos ubicados en los bordes. Equipamiento fijo de asientos de cemento para generar lugares de encuentro y descanso. Equipamiento de cestos de residuos, luminarias y cartelería urbana, siguiendo un concepto que integre el lenguaje no solo del centro sino de áreas ya consolidadas.
Materialidad.
Al preservar las construcciones existentes, tanto desde lo edilicio como en la Plaza, se intervienen sus materialidades para recuperarlas y darles valor, y en algunos puntos específicos, renovarlos. En el Mercado, se propone la renovación de la carpintería de aluminio de la planta baja, se modifica los solados interiores por una superficie continua de piso vinílico de color, fácilmente


limpiable y de rápida colocación. Los puestos de venta del Mercado se realizan con estructura de hierro y placas de cerramiento de chapa ondulada mini onda, siendo de carácter liviano y dando homogeneidad en el diseño. En relación al Centro Cultural, el volumen de hall incorporado será de construcción en seco, tipo steel frame, con placas cementicias y con el perímetro de vidrio laminado con DVH. Las intervenciones interiores se realizan con sistemas livianos de perfiles galvanizados y placas de yeso, madera y vidrio. Los solados exteriores de la terraza se renovarán con baldosas de caucho de color, siendo un lugar apto para proponer además de las exposiciones, actividades de juegos de niños, etc. Las fachadas serán recicladas, manteniendo su carácter de hormigón visto y se pintarán los parasoles de las aberturas, manteniendo su imagen original. En relación a la Plaza, el ladrillo visto se pintará de blanco, “iluminándola” y dando un cambio de imagen a nivel estético para generar impacto a nivel urbano.
Propuesta bioclimática edilicia. Sustentabilidad. Como hemos mencionado anteriormente en relación a las cuestiones urbanas y paisajísticas -como la generación de una gran isla de biodiversidad-, en esta ocasión enunciaremos diferentes estrategias en relación a lo edilicio: Aislación térmica de la envolvente edilicia. En relación al Centro Cultural y su acondicionamiento, se restringen pérdidas térmicas por conducción. Se incorpora aislación térmica en la envolvente edilicia: muros, cubiertas, pisos y aberturas. Con estas medidas, se contempla el criterio de “conservación de la energía”, minimizando el sobrecalentamiento estival y el acondicionamiento invernal. Radiación solar. Para verano se propone en el Centro Cultural, espacio más expuesto a las fuertes radiaciones, el control


solar y sombreo, minimizando la incidencia de la radiación solar, tanto para muros como para aberturas. Mallas con vegetación, parasoles, etc. Utilización de cortinas y aleros para proteger de la radiación solar en el período estival. Para invierno, se utilizan las aberturas según sus orientaciones en función de la geometría solar. Se realiza el aprovechamiento lumínico y térmico del recurso. Ganancia solar directa por aberturas, tanto en el Centro Cultural como en la planta baja del Mercado. Sistemas solares. Producción de agua caliente para uso sanitaria, a partir de colectores solares, y producción de energía eléctrica fotovoltaica en la cubierta del edificio y el Centro Cultural. Recursos hídricos. Retención y recolección de agua de lluvia y su reutilización como agua gris. Protección de la calidad del agua de red general, a través de aireadores y filtros en las salidas de las griferías. Reducción del consumo a través de medidores y válvulas sanitarias de control de caudal.
Ventilación natural. Se aprovecha la ventilación cruzada y/o selectiva por aventanamientos. Se utilizan espacios semicubiertos y terraza, los cuales ofrecen ambientes confortables en los períodos críticos del día.
Protección de vientos. Se protege la terraza-mirador de los vientos de mayor frecuencia. Se propone forestación de rápido crecimiento con adaptación regional en la malla perimetral que conforma.
Destaca del proyecto la propuesta para la fachada Donado y la accesibilidad que sucede por la ampliación de vereda. Se valora la síntesis de los elementos constitutivos de articulación entre la preexistencia y lo agregado, como así también la impecabilidad de la materialidad sugerida.
AUTORAS/ES ARQUITECTAS GISELA BUSTAMANTE, MARÍA LOURDES ANDUAGA Y LUCÍA DI ROSA / ARQUITECTOS NEVIO SÁNCHEZ, LUIS BANINI Y FABIÁN ALBINO / LEANDRO EID MARTÍNEZ, CAMILA ETCHEVERRY Y AGUSTINA FAE (ASESORA EN PAISAJE)

Complejo “El Mercado”.
Rediseñar y recuperar espacios públicos es una misión fundamental en la agenda de Estado. El proceso de crecimiento de las ciudades es producto básicamente de decisiones políticas y acuerdos socio-económicos, pero la manera en que estas decisiones toman forma es a través de proyectos arquitectónicos y urbanos que los materialicen. Creemos posible repensar la ciudad para que sea más inclusiva, y otorgue oportunidades a todas las personas.
“[…] el mercado es, también, un compendio de la ciudad y de su historia ya que nace con la ciudad y, a menudo, constituye su inicial fundamento. Originariamente, el mercado se confunde con el espacio público: las calles y plazas, la ciudad entera como lugar colectivo, constituye el mercado. […] La stoa, el pórtico, la loggia, son manifestaciones arquitectónicas de ese entrelazamiento entre mercado y ciudad a través del cual la actividad va definiendo su propia forma.”
Martí Arís, Variaciones sobre la identidad.
Situación-Conceptos.
El Mercado y la Plaza Lavalle se encuentran en la denominada “área centro”. Es imprescindible pensar el tema del Mercado Municipal y la Plaza Lavalle, desde su inserción urbana y la implicancia que tiene en el continuo espacial del sector, desde el Teatro Municipal y la calle Alem hasta la prolongación del parque Noroeste.
Para nosotros se trata de una propuesta urbana: una operación a escala urbana.
Es un edificio que forma parte fundamental de la ciudad y su espacio urbano, integrando la “nueva Plaza Lavalle” y el Edificio del Mercado como una pieza urbana única. El proyecto busca no solo organizar los usos y funciones, sino también configurar un espacio de intensidad urbana inédita para la ciudad.
El rediseño de la nueva Plaza + Mercado + Centro Cultural revaloriza el área y le aporta actividades, intentando equilibrar los usos públicos a lo largo del área centro. Una operación a fin de consolidar el valor patrimonial y urbanístico del sector además de inferir en la creación de conciencia del espacio público. Es nuestro objetivo recuperar la dimensión simbólica de este sector para que se configure como un Centro reconocible por todos los habitantes de la Ciudad y de la Región.
Una plaza que contiene un edificio.
El tratamiento y las decisiones de la propuesta consolidan el concepto de continuo urbano y espacial total. Tanto la “macromanzana” como el edificio propiamente dicho del Mercado y el Centro Cultural del nivel superior, se ven supeditados al concepto de superar la dicotomía espacio abierto-cerrado, espacio público-privado, para configurar un edificio-ciudad, tal que el usuario transite en un continuo sin interferencias ni barreras arquitectónicas.
Para eso hemos elegido como primera herramienta de trabajo el nivel peatonal. Se trata de darle continuidad al suelo urbano. Una superficie continua sobre la que pueden tener lugar todas las funciones que se dan en una plaza; este plano que forma parte del suelo de la ciudad se pliega hasta el ac-
tual nivel +1.20 del Mercado, conduciendo de forma natural y casi imperceptible al peatón y desde allí dar cabida a una gran variedad de acontecimientos urbanos. La continuidad de la superficie es una estrategia formal que hemos elegido aplicar a todos los niveles del diseño. Es el mismo material que configura de acuerdo a su ubicación estratégica o su forma, los espacios de juegos para niños, los sectores de sombra, los espacios de gastronomía, el espacio de la memoria y el anfiteatro. Los paseos peatonales adyacentes al Mercado son tratados de acuerdo al mismo concepto.
Decisiones
Premisas de proyecto:
• Revertir la “desconexión” espacial actual entre las partes, para convertirla en una interface entre el mercado y el espacio abierto circundante.
• Tratamiento diferenciado de bordes.
• Construcción de un único sistema de movimientos en vertical. Concepto de “paseo”.
• “No tapar” el edificio original, todo lo contrario: ponerlo en valor.
• La Plaza
Enmarcado en el concepto de un tratamiento totalizador del área centro, pensamos que el plano del suelo no solo cumpla el rol de apoyo, sino que sea quien defina los espacios. De esta manera, el suelo se convierte en rampa, gradas de anfiteatro, asientos en el verde, espacios de juegos o área gastronómica, diluyendo así los límites y dando lugar a una topografía que produce y contiene el espacio que también atraviesa el
edificio hasta la calle Donado. Con el mismo criterio se trataron los pasajes Arribeños, Beltrán y Olivieri.
Un espacio para recuperar lo común. Un soporte para actividades de índole colectiva.
• El paseo de las esculturas
La decisión expresada en las bases de generar un sistema de movimientos por fuera del edificio que comunicara la Plaza con el futuro Centro Cultural en el último nivel, no está exento de la estrategia utilizada para el desarrollo de nuestro trabajo. Para ello, diseñamos una estructura metálica que no solamente contenga las escaleras y el ascensor, sino que sea un espacio recorrible y de usos alternativos y complementarios a la Plaza, el Mercado y el Centro Cultural. Un sistema de movimiento en vertical que alterna “plazas en altura”, donde se ubican esculturas de artistas locales y regionales. Cada plaza es un espacio de espera y descanso del recorrido, que permite al visitante tener una vista diferente de la ciudad y del “área centro”, situación inexistente hasta el momento en algún otro espacio público de la ciudad.
La configuración formal y estética del paseo se diferencia del edificio del Mercado. Una estructura metálica de perfiles y malla transitable recorre toda la altura, terminando en la terraza de expansión del Centro Cultural donde se ubican el bar y unas gradas junto a un pequeño escenario para eventos al aire libre. Dos elementos metálicos (una marquesina sobre el nivel comercial y una cornisa sobre el nivel del Centro Cultural) enmarcan el edificio existente, acentuando su carácter simbólico.
• El Mercado



Para la intervención del Mercado se decidió jerarquizar los ingresos sobre la calle Donado y la Plaza Lavalle, generando permeabilidad y fluidez peatonal. De esta manera, se jerarquiza la relación del Mercado con el entorno. Acompañando esta idea se propone un tratamiento de los cuatro bordes provocando espacios continuos de mediación urbana que jerarquizan los accesos.
Se decidió recuperar parte de la planta subsuelo para uso público, optimizando los espacios de servicio y estacionamiento y aumentando las áreas de puestos en conexión directa con la peatonal Arribeños. Para lograrlo se pone en valor la estructura espacial existente, manteniendo los tres núcleos verticales sobre la calle Olivieri como núcleos de servicio que conectan directamente con el sector de depósitos, estacionamientos para carga y descarga y las cámaras de frío a rediseñar, a partir de la idea propuesta de los tres núcleos verticales para el movimiento público, en los huecos de los núcleos existentes sobre calle Arribeños.
Ubicamos los puestos y locales gastronómicos en el nivel +1.20, organizados deliberadamente de dos formas: por un lado, un sistema modular compacto, agrupado y contra el borde del paseo Arribeños, y por otro lado, un diseño más libre que posibilite la ubicación de mesas y sillas que desbordan a una pequeña terraza sobre la peatonal y en directa relación con el espacio semicubierto que da a la Plaza.
El nivel inferior se destinó al comercio de productos frescos que necesitan indefectiblemente de cámaras de frio, las cuales se readecuarán para tal fin. Rediseñamos la planta aumentando la cantidad de espacios de estacionamiento de carga y descarga, haciéndola más eficiente y flexible. En el entrepiso proponemos un nivel de uso comercial más flexible destinado a diferentes productos, pudiendo ser una alternativa los productos saludables. Respetamos todos y cada uno de los sistemas de escaleras existentes, readecuándolos a las medidas reglamentarias actuales. La propuesta, además, incorpora naturalmente los servicios requeridos para el espacio urbano, como son los baños públicos y la oficina de información turística.
• Centro Cultural
Consideramos el Centro como la culminación del recorrido del «Paseo de las Esculturas», que se completa en la terraza del Mercado, ofreciendo vistas panorámicas de la ciudad en todo su perímetro. Esta última está dividida en dos áreas claramente diferenciadas, lo que permite llevar a cabo diversas actividades. El Centro en sí está diseñado para albergar una variedad de eventos culturales, como obras teatrales, recitales, cine al aire libre y exposiciones artísticas estables y permanentes, sin interferir con el uso si multáneo del auditorio.
Todos los espacios contemplados en las bases han sido reciclados, y se ha añadido una superficie adicional para incluir un pe-
queño bar dentro del Centro, desde donde se puede disfrutar de la vista de la Plaza o de los espectáculos en el escenario, ubicado debajo de la actual sala de máquinas del ascensor existente. Este espacio tiene el potencial de convertirse en un faro urbano que promueva la cultura a nivel local y regional.
Propuesta paisajística.
Teniendo en cuenta las consideraciones paisajísticas, se respetaron la totalidad de las especies arbóreas existentes y el nuevo material vegetal a incorporarse son especies ya adaptadas en la región. La propuesta se consolida con el aporte de material vegetal autóctono y nativo de la zona, los cuales colaboran con la mitigación del impacto ambiental de los procesos productivos y con la reducción de la huella de carbono. Todos los taludes ajardinados funcionan como superficies captadoras de agua pluvial, conduciéndola a tanques de absorción, los cuales se ubican bajo suelo y desde donde se bombeará agua para riego de la Plaza.
Consecuentemente, el diseño paisajístico de las áreas verdes será ambientalmente sustentable, fusionándose el material vegetal existente y el propuesto bajo lineamientos que se basan en dos estrategias espaciales: el primer estrato forestal, acompañando a la arquitectura propuesta; el segundo, generando puntos focales con especies vegetales que actúen por su estadios otoñales o primaverales en estratos bajos de altura máxima 1.20m con especies vegetales arbustivas y herbáceas. La forestación planteada complementa la propuesta con árboles de mediano porte en los espacios peatonales. Para el Paseo Arribeños se sugiere la especie Chañar (Geoffroea decorticans), mientras que en el resto de las peatonales se opta por la Pezuña de Vaca (Bauhinia forficata), aportando identidad y color al sector.
Sustentabilidad.
La propuesta consigue aumentar de manera considerable la superficie absorbente del área. El proyecto propone un consumo energético racional para

un edificio de esta envergadura. Todos los cristales a colocarse serán del tipo DVH, tanto en la zona del Mercado como en las instalaciones del Centro Cultural del nivel terraza. La azotea tiene un sistema de recolección de agua, la cual se reutilizará para las aguas grises del Mercado. La iluminación general es del tipo LED. En la cubierta del Centro Cultural se incorporarán paneles solares, que darán la energía necesaria para alimentar el sistema lumínico de los espacios comunes del complejo comercial. En línea con estas operaciones, el proyecto está pensado con materiales de bajo mantenimiento, posibilitando que el mismo sea sostenible en el tiempo, lo cual resulta una razonable inversión municipal.
Conclusiones.
Aprovechamos la oportunidad de reimaginar la infraestructura existente, transformándola en un espacio público que potencie la vida urbana. Esta propuesta busca hacer de la ciudad un lugar más sostenible, moderno y habitable, un resultado que surge de manera natural y casi inevitable. La Plaza, como un lugar que celebre la vida urbana y la interacción social.
El proyecto ofrece una nueva forma de apropiarse del espacio urbano a través del vacío. La intervención dialoga con la preexistencia y el espacio público de manera contemporánea, entendiendo al futuro edificio como un eslabón en el proceso de construcción de la identidad cultural de la ciudad y como parte de la historia del patrimonio arquitectónico de Bahía Blanca.
Evidencia un claro Juego entre el todo y la parte, generando una pieza continua de contraste material reforzada por la apuesta al color como metáfora de las “folies” del “Parc de la Villette”. Se valora la continuidad de la estrategia tanto desde el acceso y remate del conjunto como de la continuidad de la lógica interior/exterior en el diseño. Destaca la austeridad de elementos agregados para la resolución del proyecto.





SITUACIÓN ACTUAL
AUTORA/ES ARQUITECTA MARÍA ELENA AMAYA / ARQUITECTOS LEONARDO HAAG AMAYA Y ARIEL DE LA FUENTE
Mercado-Jardín. Institución urbana siglo XXI
La recuperación del Mercado Municipal de Bahía Blanca implica repensar la institución del mercado y su rol en la recualificación del lugar urbano, reforzado por la incorporación de nuevos usos culturales. Se piensa el proyecto a partir del concepto del Jardín en cuatro instancias que guiarán la intervención: Plaza-Jardín, repensando la Plaza del Sol, Jardín Vertical -que conformará la nueva fachada del Mercado-, Mercado-Jardín y Jardín Cultural. Generar jardines en la ciudad busca mejorar la calidad de vida de los habitantes, permitiendo la aparición de vegetación y espacios de descanso, especialmente en áreas céntricas, donde la densidad es mayor.
La recuperación del edificio tendrá un impacto inmediato positivo en el área circundante y la ciudad. Refuncionalización y Re-Arquitectura constituyen una manera de recuperar elementos de la identidad, lenguajes y vivencias de la memoria colectiva, repensando espacialidades y generando nuevas experiencias en esos espacios arraigados en la tradición de la ciudad. Estas acciones implican hacer una valoración de los aspectos a recuperar de la preexistencia, en este caso, el edificio del Mercado y su relación con la Plaza.
Lenguaje. El lenguaje moderno, a partir de los parasoles de hormigón, las fachadas vidriadas y las rampas del estacionamiento le otorgan escala urbana y una imagen singular que caracteriza el Mercado.
Volumetría-Espacialidad. Se generan espacios interiores con distintas escalas y transiciones que aparecen como oportunidad para intervenir.
Espacio Funcional. La planta libre, a partir del reconocimiento de la estructura independiente, otorga diferentes posibilidades de armado de los espacios, garantizando la flexibilidad y posibilidad de modificar de forma fácil, lo que en un mercado es esencial. Por otro lado, el funcionamiento del subsuelo, como espacio que “sirve” al espacio del Mercado, es un dato que se tiene en cuenta para la intervención. Rampas. Las rampas, si bien son un elemento que genera una barrera urbana en la relación entre el espacio-mercado y la Plaza, son una característica particular del edificio. Por lo tanto, se incorporan al proyecto, garantizando su normal funcionamiento. A partir de entender estos elementos de la preexistencia, se proyecta la intervención, centrando las acciones en la Plaza, el espacio sobre las rampas, el Mercado con su entrepiso y la terraza. Se proyecta una gran Grilla Espacial, interviniendo con un lenguaje contemporáneo, que se diferencie de lo existente, dando cuenta del momento de la intervención. La Grilla será el elemento articulador, proponiendo una nueva fachada hacia la Plaza, redefiniendo la escala del espacio y otorgando una imagen institucional. Se propone una estructura metálica que se ordena de forma modular y permite generar los elementos circulatorios, escaleras y ascensores, para acceder al nuevo



Espacio Cultural. A su vez, se articulan espacios para exposiciones, flexibles, espacios ajardinados e invernaderos, que enriquecen el paseo arquitectónico, hacen a la visión serial, incorporando diferentes y complejas perspectivas a medida que se recorre, junto con la visual de la Plaza y la ciudad, rematando en Espacios Miradores. A su vez, la grilla permite diferentes usos urbanos en relación a la Plaza, como poder colgar y presentar instalaciones, que se produzcan en el espacio cultural o pantallas para ver películas o partidos, logrando un nuevo espacio de convocatoria en el tejido. Centro Cultural. La grilla permite ordenar también el nuevo espacio cultural de la terraza. Se recuperan los edificios existentes pertenecientes al Concejo Deliberante, valorando la espacialidad, interviniendo los cerramientos de los espacios para ganar fluidez y adaptabilidad. Se reemplaza el volumen de chapa por un nuevo volumen que albergará el SUM, que puede utilizarse tanto como parte del Centro Cultural como de forma independiente para distintos eventos, y se añaden nuevos volúmenes articulados a los existentes, para proponer espacios de producción artística-talleres, integrados a los espacios exteriores de la terraza, que también permiten realizar actividades al aire libre. Sistemas de rampas facilitan salvar la diferencia de niveles que presenta la terraza, garantizando la accesibilidad y articulando los distintos volúmenes, permitiendo la continuidad espacial y
largas visuales, que rematan en los edificios del entorno. Mercado. Se repiensa el Mercado como un espacio de planta liberada, fluida, donde instalar nuevos puestos que se articulen con espacios gastronómicos de forma directa. Los puestos serán sistemas modulares que sean fácilmente modificables y se repiensa la circulación de forma más libre, manteniendo la disposición de los núcleos actuales, que garantizan la conexión con el subsuelo -que mantendrá su vocación de servicio al espacio principal-: espacios de depósito y salas de máquinas. Los cerramientos, que originalmente se encuentran sobre el perímetro, se llevan hacia atrás, permitiendo la aparición de espacios de terraza, que podrán ser utilizados con fines gastronómicos o como puestos de venta, que proponen otra relación con el espacio-calle, mejorando la vinculación con la planta baja. Se recupera también el entrepiso, instalando espacios de coworking y oficinas en las secciones de mayor altura, articulados por una nueva escalera con la planta principal. Plaza. Se lleva toda la plaza a nivel 0, con ondulaciones en los espacios de vegetación, que permite la accesibilidad y libre recorrido de todo el ámbito. Se proponen espacios de juego, de descanso y un playón en relación directa con la fachada Grilla, donde se puedan desarrollar asambleas, actividades sociales y culturales. Se adiciona vegetación a la existente y se proyecta una estructura tipo pérgola en el perímetro, que hace a la continuidad

de la Grilla, dando unidad a todo el conjunto y permitiendo la instalación de puestos de venta, de sanitarios y del punto de Información en el perímetro. La estructura permite su uso flexible, con espacios de pérgola que otorgan sombra; funciona como ordenador y referencia urbana, liberando el espacio plaza.
Sustentabilidad
Se proponen distintas estrategias de diseño sostenible, entendiendo la sostenibilidad a partir de la vinculación entre la naturaleza, la economía del lugar, la salud y la dimensión social, siendo la institución un aporte a la mejora de la calidad del habitar urbano y con un rol importante en el tejido de la ciudad. Vegetación. Se incorpora vegetación autóctona en la Plaza, en los invernaderos y en la terraza verde, con el objetivo de humidificar el ambiente, contribuir a la disminución de la isla de calor y mejorar la calidad del aire, con el consiguiente beneficio para los habitantes, disminuyendo la posibilidad de enfermedades respiratorias, así como también a potenciar la aparición de agentes polinizadores. La terraza verde colabora con la retención del agua de lluvia y disminuye la velocidad de las escorrentías, previniendo inundaciones, especialmente en un contexto actual, donde asistimos a un aumento anual del régimen de precipitaciones. La vegetación de hoja caduca colabora a refrescar espacios interiores y fachadas, funcionando como tamiz y parasol en verano y dejando pasar los rayos en invierno, para poder aprovechar las ganancias de calor durante las horas de sol. A su vez, se alternan especies, incorporando árboles frutales y desarrollando huertas, con el objetivo de buscar una “autosuficiencia alimentaria”. Esta idea se potencia con el invernadero, donde se cultivan especies que requieren de determinadas regulaciones climáticas, intentando acercarnos a una economía circular, ya que los cultivos urbanos mejoran la vida en la comunidad. Los espacios verdes mejoran también la salud, el estado de ánimo -a través de espacio terapéutico de re-
conexión con la naturaleza- y para reducen el estrés. Asoleamiento. Se estudia el recorrido solar, incorporando parasoles y pérgolas, para disminuir la incidencia en verano y favorecer las ganancias de calor durante el invierno. Se incorporan lucernarios, como un sistema que regula la orientación, para obtener calidades de luz diferentes según la función que se quiera desarrollar en el espacio interior. A su vez, la ubicación estratégica de aberturas y lucernarios permite las ventilaciones cruzadas, funcionando también los lucernarios como torres de “escape” del aire caliente en verano.
Se busca la eficiencia energética a partir de un diseño que se adapta a las variaciones térmicas de cada estación. Se incorporan paneles solares fotovoltaicos y la utilización de termotanque solar para calentar el agua, sistema que también se favorece con la incorporación de mangueras en el invernadero, que en el invierno permitan calentar agua a partir de la radiación solar generada en este espacio.
Ciclo del agua. Se proyecta un uso eficiente del agua potable, a través de la incorporación de griferías monocomando y depósitos de inodoro doble descarga. Se recuperarán las aguas de lluvia para riego y sistemas de efluentes, así como el reciclado de aguas grises.
Gestión de residuos. Implementación de sistemas de clasificación y gestión de residuos, promoviendo la economía circular y la reducción de desechos.
Predomina el criterio de instalación, adición y substracción ordenada en una grilla espacial que transmite el carácter efímero de la cualidad líquida de la sociedad actual. Resignifica la apuesta ambiental hacia una arquitectura sustentable. Interpela la masividad de la arquitectura modernista y eclecticista del contexto, proponiendo un tipo de arquitectura provocadora, desmaterializada y liviana.













