Skip to main content

Sola Lida 2024 Portfolio

Page 1

S O L A L I D A junior architect / selected works
010913
19253539

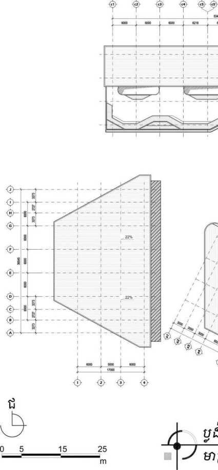
COMMUNITY CENTER

Year: 2023

Location: KEP, CAMBODIA

Project: Year V, Thesis project

Type: Public Building

Role: Architectural Design and Visualization

In response to the insights gathered through direct data collection and discussions with the O’Krasar commune chief, it has become evident that despite the gradual development in this area, there is a notable lack of essential social infrastructure. To address this gap and enhance the well-being of the community, I propose the implementation of the “White Horse Community and Tourism Information Center” project.

01
02

CONCEPT

The concept prioritizes communal space optimization, tailored to meet specific functional needs. Integrating prevailing wind direction and key viewpoints refines the building’s form. Culminating in a facade designed for optimal light and ventilation, the addition of a community bridge seamlessly connects the three main buildings.

03
04

FLOOR PLANS

05
06
07
08
09

VOCATIONAL HOUSE

Year: 2021 (Finished Construction)

Location: Koah Thom District, Kandal Province

Project: Freelance Project

Type: Residential building

Role: Architectural Deisgn and Site follow up

The client’s vision for a two-story house prioritizes comfort and cost efficiency. The ground floor features an open-air living room and bedroom, while the upper floor serves as a dedicated shrine room. Positioned along the Basac river, the front elevation boasts a wide glass door, fostering a seamless connection between the indoor and the outdoor. This intentional design not only invites natural airflow but also maximizes the play of natural light, creating a functional yet soulful living space.

10
11

FINISHED CONSTRUCTION

12
UNDER CONSTRUCTION

ATM CENTER & COFFEE SHOP

Year: 2022 (Finished Construction)

Location: Chroy Changvar, Phnom Penh

Project: Freelance project

Type: Comercial Building

Role: Architectural Design and Visualization

13

In response to a client’s request for a business venture on a limited land parcel, we present an innovative two-story building design that maximizes utility and rental potential. This concept seamlessly integrates an ATM center at the front of the building, ensuring accessibility and convenience, while the remaining space is dedicated to a charming coffee shop.

14

kMNt;sMKal;

ATM Center eFñIresovePA

CeNþIr

Coffee Shop Counter

kEnøgrgcaM bnÞb;sþúk bnÞb;buKÁlik bnÞb;Twk

bøg;Can;pÞal;dI

kMNt;sMKal; CeNþIr saLúgkNþal B A

bøg;Can;TI1

15
A B B A
eFñIresovePA tux<s; tuTab A B
16
17
rUbPaBemIlBImux
rUbPaBBuH B-B
rUbPaBemIlBIsþaM rUbPaBBuH A-A
18
19

BOKO APARTMENT

Year: 2023 (Under Construction)

Location: Phnom Penh

Project: Company Project

Type: Compact High-Rise Residential building

Team: AO Architects

Role: Architectural Drawing and Site follow up

Located in a potential area, Khan Chamkar Mon, a new compact high-rise residential building has emerged on a 300sqm plot. Our design emphasizes a harmonious blend of indoor and outdoor spaces, creating optimal living conditions within these medium-sized apartments.

20
LIFT 800KG s:20X1970 10p LIFT 800KG s:20X1970 10p AC UNIT 3 2 1 D C B A AC UNIT AC UNIT AC UNIT Balcony 2.20 Room Area m² Balcony 3.09 Room Area m² Balcony 4.52 Room Area m² Balcony 1.74 Room Area m² i=2% i=2% i=2% i=2% W i=2% i=2% RISER i=2% i=2% i=2% i=2% RISER +10.52m +10.52m +10.52m +10.52m +10.52m +10.52m D02 Balcony 2.20 Room Area m² Balcony 3.45 Room Area m² Balcony 3.75 Room Area m² Balcony 2.48 Room Area m² Bathroom 4.65 Room Area m² STUDIO-03 19.45 Room Area m² Bathroom 3.50 Room Area m² Bathroom 3.25 Room Area m² Studio room 22.50 Room Area m² Hallway 26.62 Room Area m² STUDIO-02 26.20 Room Area m² Stairs 8.00 Room Area m² 4950 6100 6000 18350 12100 6700 6700 1 UP 2 3 5 6 7 8 9 18 17 16 15 14 13 12 10 11 4 AC UNIT Bathroom 3.80 Room Area m² Livingroom 15.60 Room Area m² Bedroom 12.40 Room Area m² Bathroom 4.60 Room Area m² Livingroom 19.90 Room Area m² Bedroom 2 11.75 Room Area m² Bedroom 1 9.40 Room Area m² Balcony 1.15 Room Area m² Balconly 1.21 Room Area m² Balcony 1.58 Room Area m² AA IA-024 BB IA-024 SCALE: 2ND FLOOR-LAYOUT FLOOR PLAN 1/100 IA-005 FL 50 50 50 50 50 50 50 50 50 50 50 50 50 50 50 +69.51M LEVEL LINE IN ELEVATION AND SECTION SWIMMING POOL 1550 1830 Glass railing Temper glass Th.k 20mm 190 190 190 190 190 190 2050 1600 B A 6700 190 190 190 150 POOL SLAB 200mm thk. With water proof layer POOL FINISHING 50mm thk. PUMP ROOM DRAINAGE 150mm depth Decking floor finishing Decking structure steel tube 40mmx80mm 250 480 220 550 190 2700 5000 1750 280200 280 280 280 280 280 280 280 280 280 Wall Skirting DRAINAGE SCALE: SWIMMING POOL-SECTION BB 1/50 B-B SE ARCHITECTURAL DRAWINGS 21
3 2 1 6100 12100 6000 14th Floor 16th Floor 15th Floor ± 0.00M +66.70M 16th Floor / Swimming pool +69.88M Roof Floor Ground Floor +22.13M +18.26M +14.39M +6.65M +26.00M +29.87M +33.74M +37.61M +41.48M +45.35M +49.22M +53.09M +56.96M +60.83M +64.70M 1st Floor 2nd Floor 3rd Floor 4th Floor 5th Floor 6th Floor 7th Floor 8th Floor 9th Floor 10th Floor 11th Floor 12th Floor 13th Floor Top Roof Floor +73.66M +10.52 2000 3180 3780 350 68860 Mezzanine Floor +3.50M +0.35M 3550 3550 3550 3550 3550 3550 3550 3550 3550 3550 3550 3550 3550 3550 3550 3150 3150 SCALE: FRONT ELEVATION 1/300 A-022 022 22
SITE PHOTOS 23
24

INTERIOR DESIGN-BRITEA APARTMENT

Year: 2023 (Under Construction)

Location: Phnom Penh

Project: Company Project

Type: Interior Design

Team: AO Architects

Role: Architectural Drawing and Site follow up

25

In the heart of Toul Kork, just a short stroll from TK Center Market, Britea Apartment brings you modern luxury and contemporary living. Thoughtfully designed for both owners and potential tenants, it’s your comfortable haven in the city.

26

ARCHITECTURAL DRAWINGS

SCALE: EL IA-013 1/60 ELEVATION-02

985 440 3000 1000 4030 17305
WP-04 F E D
WP-02
WP-04
WP-02
DO-01 27
1000 4100 1000 1510 240 200 1800 650 100 150 2900 +2.75 +2.90 +0.00 C B A ELEVATION-02
28
WP-04
WP-02 DO-01 DO-01
ARCHITECTURAL DRAWINGS E D 3740 ±0.00 +2.75 1900 1200 600 260 240 900 140 300 2000 90 WALL SKIRTING CLOSET WOOD LAMINATE FINISH LED STRIP STEEL COLUMN 100mm, OFF FROM WALL STEEL STRUCTURE SUPPORTING MC BOARD TO COVER STEEL COLUMN GYPSUM BOARD WHITE PAINT FINISH COVERING STEEL COLUMN LED STRIP BED HEAD WOOD LAMINATE FINISHED +2.20 EXPOSED STAIR STRUCTURE DRAWER DRAWER DRAWER SCALE: EL IA-019 1/50 BR1 ELEVATION 01 2 1 4700 590 1600 590 +2.75 ±0.00 220 800 900 620 1250 300 LIGHT SWITCH LED STRIP DRAWER 2250 DRAWER 850 1300 650 535 1710 535 200 2310 150 150 BLACK GASSES BUILT GLASS WINDOW BED HEAD WOOD LAMINATE FINISHED BRICK WALL TWILIGHT COLOR PAINT BEADBOARD PANEL SCALE:1/50 BR1 ELEVATION 02 D03 EL IA-020 D E 3740 ±0.00 +2.75 1250 100 2000 800 250 1360 1000 150 300 350 200 500 RISEN FOR BALCONY SOFA, 200mm HEIGHT WALL SKIRTING BALCONY SOFA LED STRIP STEEL COLUMN 100mm, OFF FROM WALL STEEL STRUCTURE SUPPORTING MC BOARD TO COVER STEEL COLUMN GYPSUM BOARD WHITE PAINT FINISH COVERING STEEL COLUMN LED STRIP BED HEAD EXPOSED STAIR STRUCTURE 2200 BUILT GLASS WINDOW DRAWER DRAWER DRAWER DRAWER SCALE:1/50 BR1 ELEVATION 03 EL IA-021 1 2 4700 620 120 1260 1085 2115 120 +2.75 SOCKET 350 530 530 530 530 100 2600 AC HEIGHT 2.46m BRICK WALL TWILIGHT COLOR PAINT 120mm, THK TABLE CLOSET 750 2370 GLASS CLOSET SWING DOOR 50 ±0.00 SCALE:1/50 BR1 ELEVATION 04 D04 EL IA-022 29
30
PERSPECTIVE VIEW
N/A DE D04 100 2600 50 530 530 530 530 2120 10 75 GLOSSY GOLD TEXTUR LAMINATE FINISH GLASS 600 2750 100 250 145 150 145 150 1160 600 50 400 SE D04 31
FURNITURE DETAIL DRAWING B01-D04
SCALE:

SCALE: 1/25

EL D04 100 150 250 145 150 145 1160 600 50 530 530 1060 DARK WOOD LAMINATE FINISH LED STRIP LIGHT 250 1750 600 TEXTUR 01 S 03 S 440 390 390 390 390 600 2750 100 440 390 390 390 390 600 50
B01-D04 FRONT VIEW SCALE: 1/25
B01-D04-SECTION 01 B01-D04-SECTION 02
SCALE: 1/25 SE D04
30 25 25
LED STRIP
SCALE:
DE D04 32
D04-LED STRIP
1/5
SITE PHOTOS 33
34

កុុដិិចៅ�អធិិការ

Year: 2022 (Under Development)

Location: វត្តតជេេត្តពន (ខេេត្តតកំំពង់់ចាម)

Project: Company Project

Type: Religious Building

Team: TAK Architect

Role: 3D Visualization

សំណង់់សាសនា (កំុដិ) នេះ តេូវបានសិកំេសាយ៉េង់ហ្មត្ត់ចត្ត់នូវការ បេើបេេស់កំេបាច់លម្អរខ្មេរដេលបំពាកំ់ទៅលើគេឿង់បង់្គុំសំខាន់ៗនេ អគារ។ ជាមួយការដកំយកំមកំបេើនូវដង់កា្ដេរដេលមានខ្លួនពត្ត់ ពេនភ្ជេប់នឹង់កំេបាលនាគកំេបាច់អង់្គរ រំលេចនូវកំេបាច់ផ្កេច័ន្ទនៅលើ ដង់ខ្លួន កាន់តេធ្វើឲសំណង់់នេះមានលកំ្ខណៈពេញលេញ និង់ បេណិត្ត នៅពេលបំពាកំ់លើដំបូលកំឹង់មុខកាត្ត់នេះ។

35
36
37
38

KPS RESORT

Year: 2022 (Under Development)

Location: Kampong Seila District, Sihanouk Ville

Project: Company Project

Type: Vacational building

Team: Shi Yi Construction (Architects team)

Role: 3D Visualization

Situated in the picturesque Kampong Seila district along the meandering Sre Ambil canal, this resort is artfully crafted for enthusiasts seeking a multifaceted environment. A segment of the expansive site is dedicated to a vocational house for sale, offering a unique residential opportunity. Concurrently, a charming natural resort emerges along the canal, inviting visitors to relish a plethora of activities, creating a diverse and immersive experience for all who venture here.

39
40

MASTERPLAN AND BUNGALOW DESIGN

41
42
43
#Twinmotion #Vray

SOME RANDOM RENDERINGS

44
#Enscape #Vray
#Twinmotion
#Vray
T H A N K Y O U solalidanu@gmail.com Telegram: 097 403 8319

Turn static files into dynamic content formats.

Create a flipbook