Skip to main content

Portfolio Imen Jlassi Enau

Page 1


I’m Imen, an architecture student with passion for 3d modeling, visual storytelling and creative problem-solving. To me, architecture is where beauty meets function. I’m seeking an internship opportunity that not only exposes me to the broad spectrum of architectural design but also challenges me to push my own boundaries and enhance my skills.

Tunis Tunisia NATIONALITY : Tunisian imenjlassi79@gmail.com

: +216 92 459 153

2019

2019 - 2024

2024

Softwares

Autocad

Revit

Sketchup

Lumion

Indesign

Language

Arabe

French English Italian

Native Advanced Advanced Intermediate

Interest and skills

Sketching

Photography

Graduation from high school , Experimental sciences section

National school of architecture and urbanism of Tunis, ENAU

Dissertation defense, topic : towards a perpetuation of the poetics of Kesra

Professional experience

2021 2022 2023

Internship for 7 weeks in « AM workshop, Ahmed Mejri »

Siliana Sousse

Internship for 6 weeks in « New vision architects, Hassine Ben attia »

Internship for 6 weeks in « Turnkey for architecture and interior design»

Tunis

Participations

UIA World congress of Architects, Copenhagen Denmark

Workshop « Villa Baizeau Carthage - Le Corbusier »

Activities

Charity and Valunteering experiences « Tunis sports University »

Non-profit organization « Tunivision »

Entrepreneurship center Villa Z Semi-collective

Guesthouse Business Hotel Miscellaneous

Entrepreneurship center

Reflections... to lose oneself between the real and the unreal for a timeless dimension. Embracing this interplay fosters a deeper understanding of ourselves and the world, revealing the infinite possibilities within our consciousness.

Design Evolution

1

2

3 Functional boxes

Box within a box

Transparency of the walls

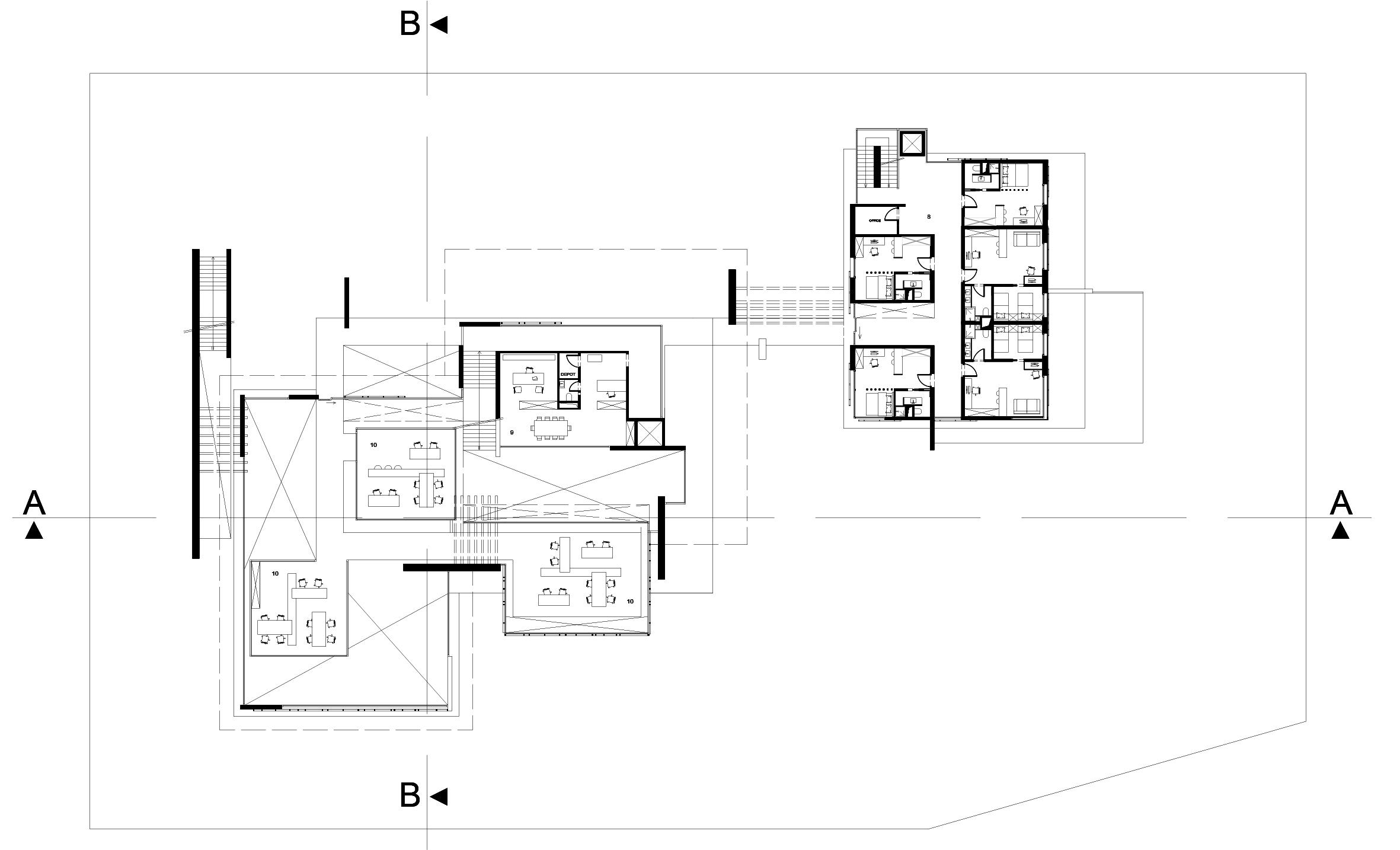
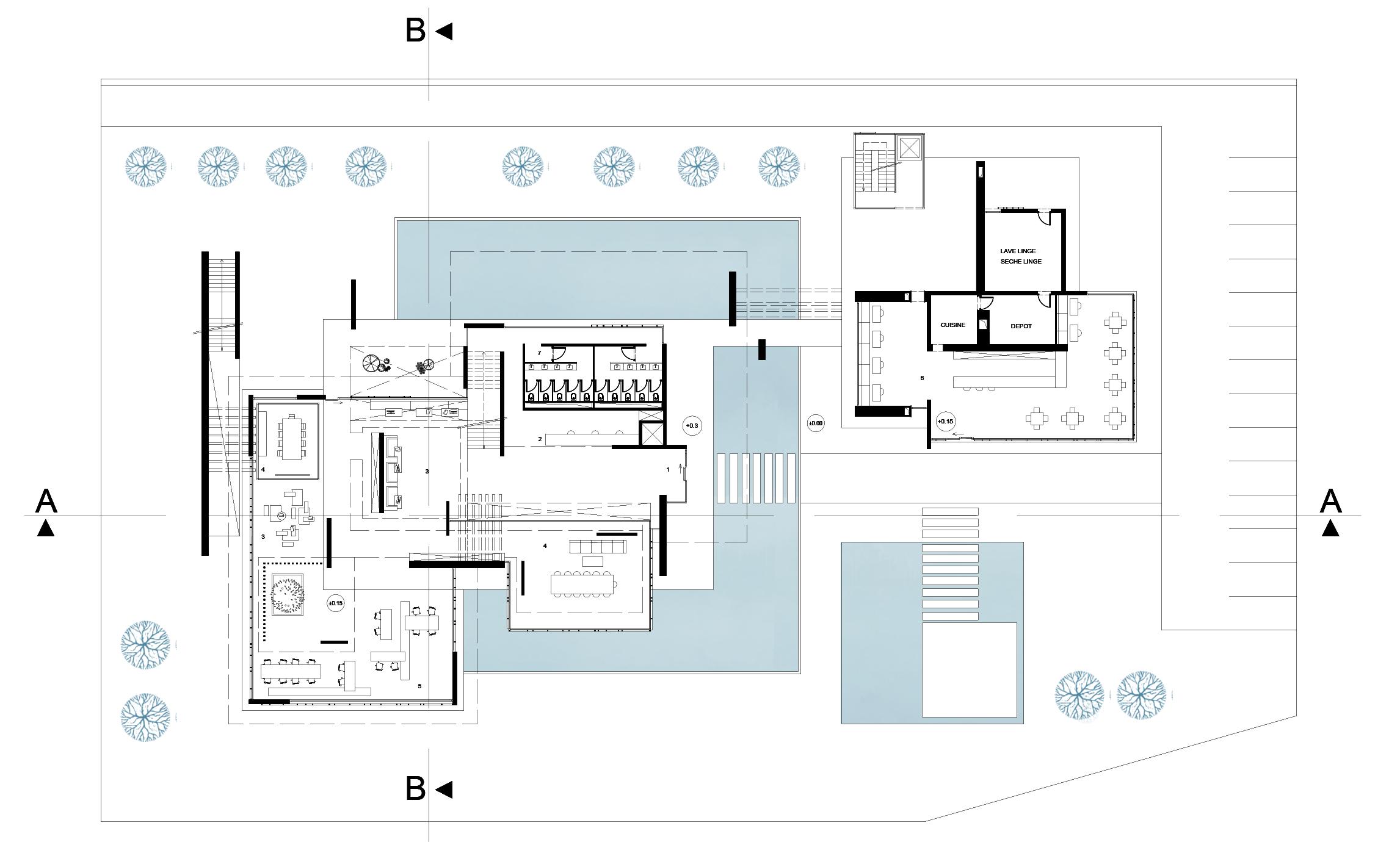
The project draws inspiration from the «box within a box» concept to create a stimulating and flexible environment tailored to the diverse needs of its users. Inside a large modern concrete structure, a series of smaller glass volumes are arranged, forming modular workspaces. Each internal box offers a distinct setting: individual offices for concentration, collaborative meeting rooms, and relaxation areas. These spaces are connected by bright corridors, encouraging circulation and interactions among users.

1. Entrance

2. Reception

3. Individual workspace

4. Meeting room

5. Collaborative workspace

6. Restaurant

7. WC

8. Accomodation

9. Administration

10. Training space

The project draws on the innovative «box within a box» concept to create a versatile and engaging environment that caters to the varied needs of its users. Nestled within a striking modern concrete structure, a series of smaller glass volumes are strategically positioned to form modular workspaces. Each of these internal boxes is meticulously designed to provide a distinct atmosphere: private offices foster deep concentration, collaborative meeting rooms encourage dynamic brainstorming, and inviting relaxation areas offer spaces for informal gatherings and rejuvenation.

Bright, airy corridors connect these diverse spaces, promoting fluid movement and interaction among users. This intentional design not only enhances functionality but also cultivates a vibrant sense of community. By seamlessly blending individual focus with collaborative opportunities, the environment inspires creativity and productivity, making it a truly adaptable space for a wide range of activities. Overall, this thoughtful arrangement ensures that every user finds a place that resonates with their unique work style and fosters a culture of innovation.

1st floor : Plan at + 4.50m
Ground floor : Plan at ± 0.00m

Khzema Sousse Villa Z

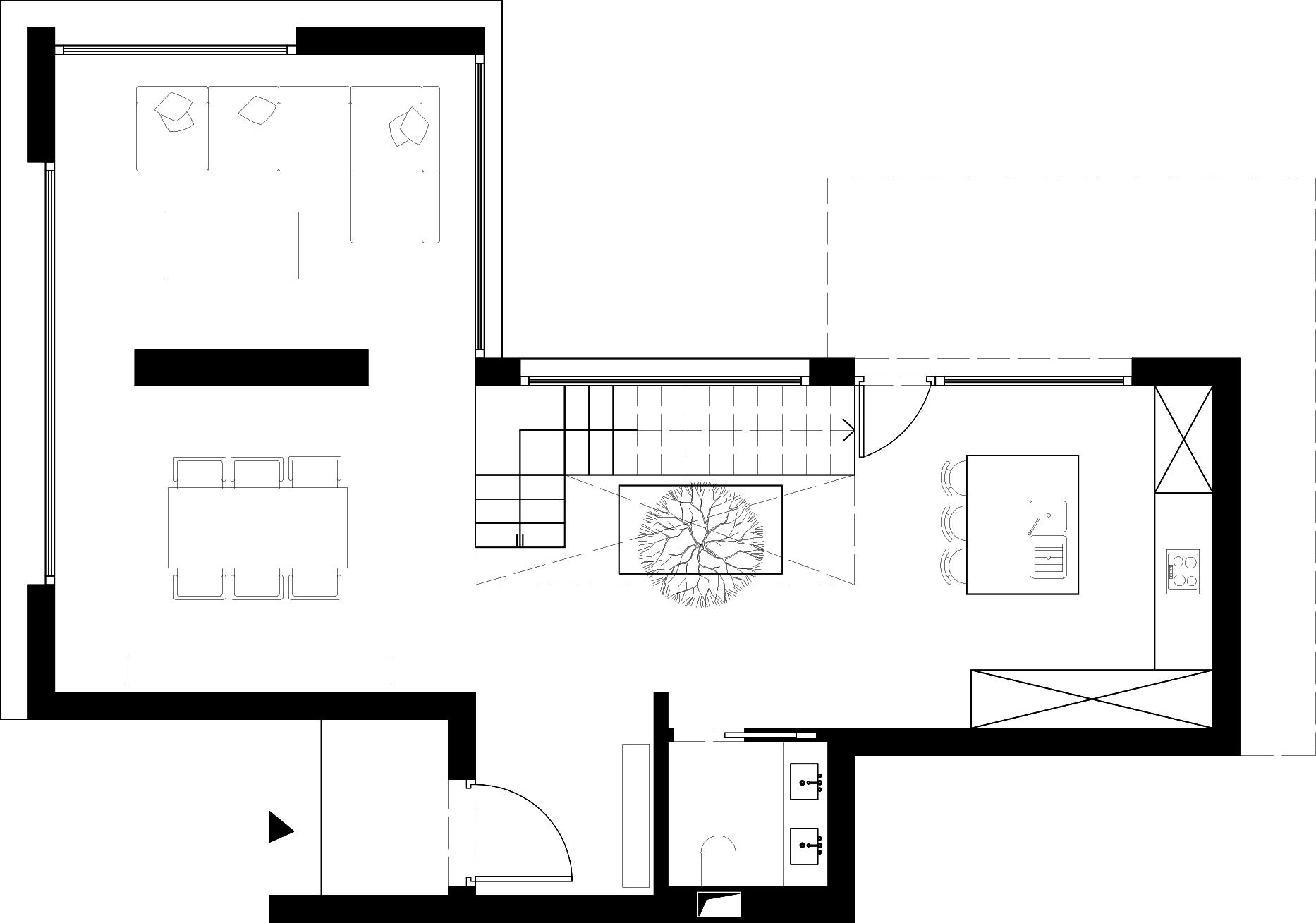
Nestled within its surroundings, this small minimalist house features clean lines and simple geometric volumes. The design prioritizes functionality and sustainability, with a flat roof and large windows that invite natural light while maintaining privacy. Constructed from local materials, the facade showcases a muted palette that complements the environment. Careful attention to site regulations ensures that the structure’s footprint remains modest, allowing for a small garden that enhances the home’s connection to nature. This tranquil retreat embodies a balance of modern simplicity and thoughtful integration with its setting.

Setback from the public road

Subtract for ventilation and improved airflow

Vertical circulation for the possibility of extension

Massive voulume

The facade of this one-level house is a striking composition that harmoniously blends white concrete walls with warm wood elements and expansive glass surfaces. This combination of materials creates a dynamic yet cohesive exterior, reflecting a contemporary approach to design that embraces both simplicity and sophistication.

Lounge
Living room
Bedroom
Bathroom
Wet room
Kitchen
Drying area
Garden
Garage Ground floor : Plan at ± 0.00m
Section AA
Section BB

Prototypes

1. Entrance
Living room
Kitchen
Bathroom

Design Evolution

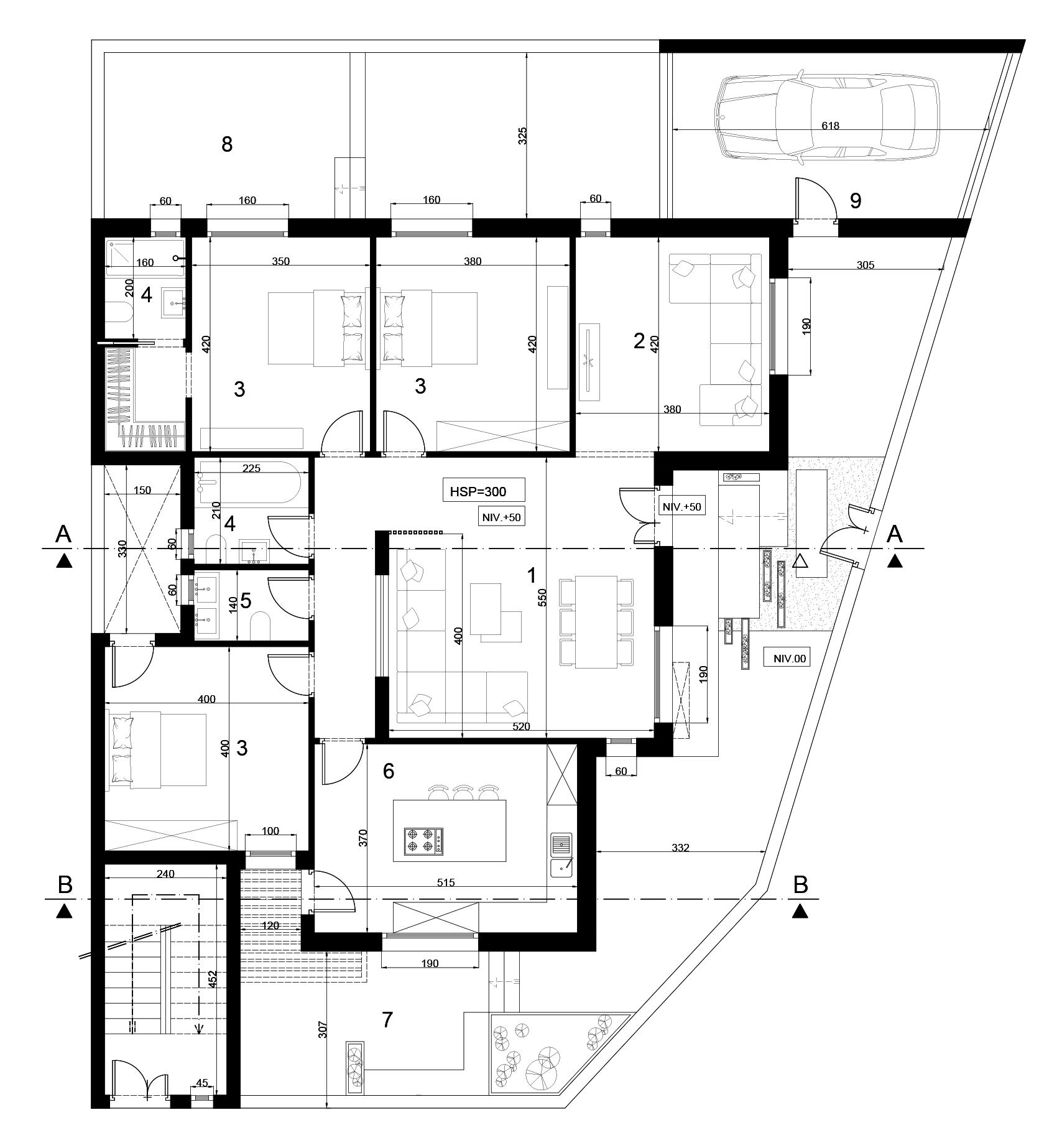
Kesra, nestled among the Berber villages, stands out for its remarkable material and immaterial richness. The current project carefully respects the cultural specificities and genius of the place by integrating local materials and utilizing the iconic stone of Kesra. This approach creates a contemporary architecture that harmoniously engages with the surrounding landscape. Users are invited to experience a unique sensory journey, where the history of the place intertwines with its natural beauty. By highlighting traditional know-how while incorporating modern elements, the project celebrates Kesra’s cultural identity while addressing contemporary needs. This dialogue between past and present offers a deep immersion, allowing one to feel the soul of this emblematic village.

The stone in its new form Discovery path inhabit the roof
The box within the box
Conforming the shape of the land

The architectural design of the project not only respects the cultural heritage of Kesra but also enhances the experience of its stunning natural surroundings. By incorporating discovery pathways that meander through the site, visitors can engage with the landscape at a leisurely pace, encouraging exploration and connection with the local environment. Accessible rooftops are thoughtfully integrated into the design, offering breathtaking views of the lush woodlands that envelop Kesra. These elevated spaces serve as vantage points for reflection and appreciation of the area’s natural beauty, allowing users to immerse themselves in the serene atmosphere. With seating areas and gardens on the rooftops, the architecture fosters a sense of community and invites social interactions, transforming the site into a vibrant gathering place.

Section AA
Section BB

Nomenclature

Hotel restaurant details

Plinthe en marbre

revetement du sol en marbre Mortier de pose Chape de rattrapage (6cm) Appuit en marbre

DÉTAIL COUCHE DE DALLE ECH 1/20

DÉTAIL N1 Enduit (2cm) Hourdis (19cm)

Chape en béton (6cm)

Terrasse +27

Terrasse +27

Support en marbre

Terre végétale

Film en géotextile

Ploydrain 4cm

Relevé d'étancheité

Enduit de ravoirage

Etancheité

Dalle en béton armé

7eme etage +24.1

7eme etage +24.1

7eme etage +24.1

Détail Toiture végétalisée Ech 1/10 ème

6eme etage +20.74

6eme etage +20.74

6eme etage +20.74

5eme etage +17.54

5eme etage +17.54

5eme etage +17.54

4eme etage +14.34

4eme etage +14.34

4eme etage +14.34

3eme etage +11.14

3eme etage +11.14

3eme etage +11.14

2eme etage +7.94

2eme etage +7.94

2eme etage +7.94

1er etage +4.42

+0.90

+0.90

Niveau 0.00

Terrasse +27 Section ECH 1/50

COUPE Façade ECH 1/50

06. Miscellaneous

Photography

Thank you

Turn static files into dynamic content formats.

Create a flipbook