Demo_Rimtai Saitan Village

Page 1

RINTAI SAITAN VILLAGE

MAERIM

LOCATION

4 5
2. Dara Phirom Palace Museum
1 2 3
Chiang Mai International Airport Scan QR Code for Google Map Directions
15 km.

LANNA

CONTEMPOLARY

LANNA

CONTEMPOLARY

AREA ETA LS

MASTER Layout Plan S TE AREA (1-3- 8 LAN SCAPE ARE ROA ARE POOL ARE TERRACE AREA ,913 95sq m. 1,6 7 73sq m. 358 07sq m. 5x 0m (119 9) 1 75 sq m
6 TOTAL BU L NG AREA 6 1 BASEMENT FLOOR AREA 6 1st FLOOR AREA 6 3 nd FLOOR AREA 6 ROOF AREA
Scale 1 : 250
1,722.27 sq.m. 535.65sq.m. 645.91 sq.m. 400.54 sq.m. 140.17 q.m.
MASTER PLAN
BASEMENT Layout Plan PA IN FO E FO E W M SHOE W SHOES O I O EE STO STO STO 24 72 sqm 5 66 sqm 5 66 sqm 7 80 sqm 5 sqm 48 sqm 2 45 sqm 88 sqm 26 sqm 5 26 sqm A EA ETAILS STO LAUN PUMP OO PUMP POOL OO POOL STO
BASEMENT Scale 1 : 250 OO 10 65 sqm 11 47 sqm 5 0 qm 7 sqm 5 1 sgm MA D MA D MA D WC WO KSHO /MUT A E WO KSHO STO 11 68 sqm 11 04 sqm 11 10 sqm 102 4 sqm 4 8 sqm
Layout Plan 1 FLOOR ST LI IN MAIN STAIR AS AS M NT STAIRWA ORRI O INING/PANTRY 174.1 sqm 33.79 sqm 11.73 sqm 26.33 sgm .91 sqm KIT WAS ING AR ORRI OR MAST R ROOM LOS T
23.8 sqm 4.68 sqm .93 sqm 4 .79 sqm 21.28 sqm
AR A TAILS
Scale 1 : 250
C UES E ROO C C L V N POOL C ALCONY M E 1 20 50 sqm 25 28 sqm 28 32 sqm 7 31 sqm 5 08 sqm 5 3 sqm
FLOOR
Layout Plan 2 FLOOR ND MAS R B DROOM LOS . MAS R B DROOM . B DROOM LOS B DROOM 1 . B DROOM . . 2 sqm 4.84 sqm 6.6 sqm . 2 sqm 14.80 sqm AR A D AILS 24.6 sqm 8. sqm 4.79 sqm 18. 2 sqm 11.14 sqm
FLOOR Scale 1 : 250 RAYE FITNES MINI A W MINI A ORRIDOR AL ONY MT ED AL ONY MT ED 24 60 sqm 1 sqm 12 16 sqm 5 42 sqm 6 5 sqm 2 2 sqm 54 79 sqm
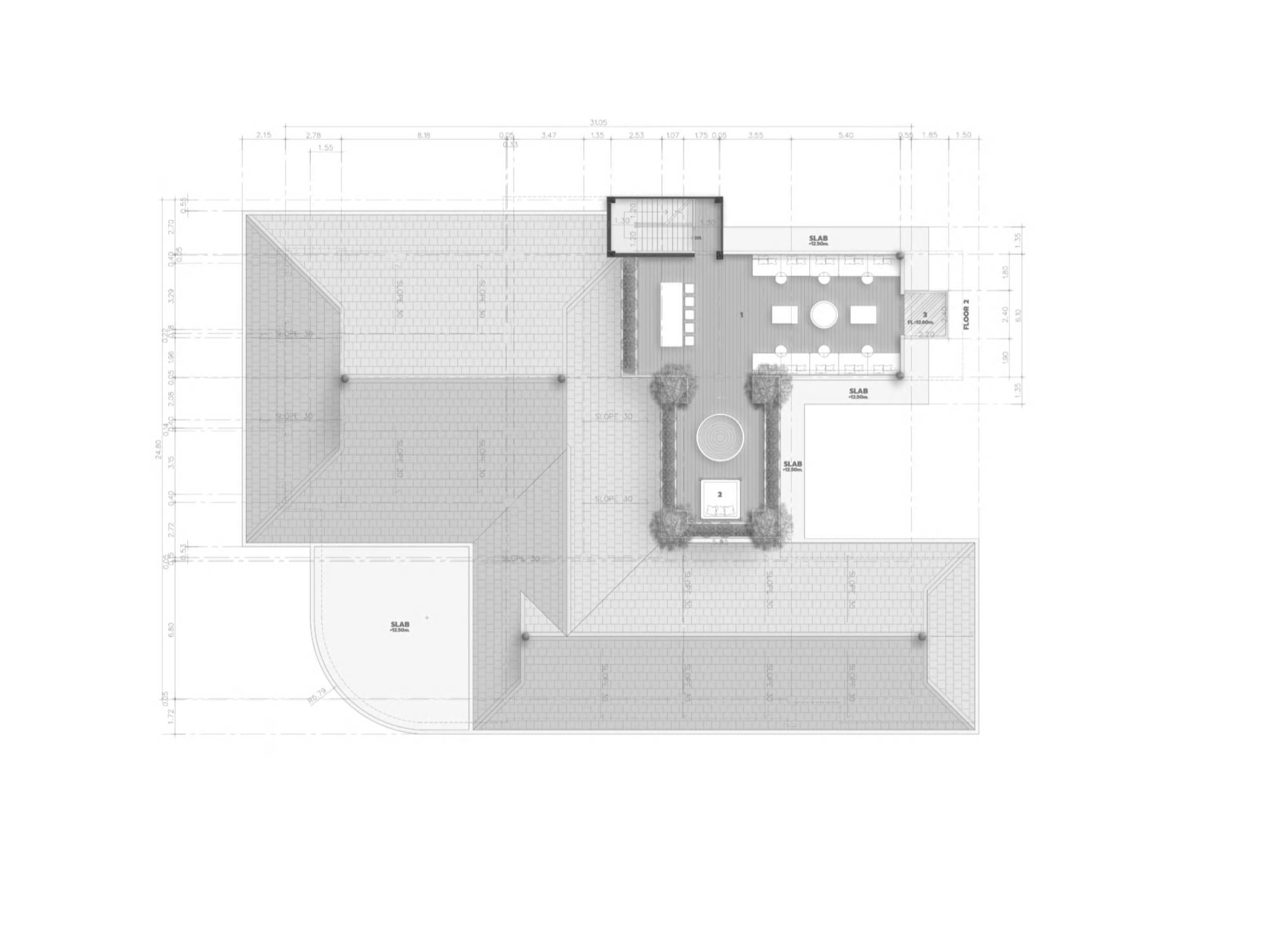
Layout Plan ROOF TOP BAR/FIRE PI JA UZZI ARE GLASS BAL ONY 87.84 sqm 47.61 sqm 5. 7 sqm
AREA DETAILS

TOP PLAN

Scale 1 : 250

EXTERIOR

The Contempolary of Lanna

CONTEMPOLARY LANNA

PRIVATE TIME

With Loving Family

NATUER LIFE

Every Time

LIVING & FAMILY AREA

PERSPECTIVE

PANTRY & DINING AREA

PERSPECTIVE

FITNESS PERSPECTIVE

MASTER BEDROOM 2

PERSPECTIVE

MASTER BATHROOM 2

PERSPECTIVE

KEY FEATURE

Rimtai Saitan Village

ULTRA LUXURY DESIGN

Crisp clean lines, seamless floorto-ceiling windows overlooking an ocean of greenery, and vast open spaces complement Sanctum’s cutting- edge design.

SMART HOME

Comprehensive SMART home capabilities have been integrated into each Sanctum villa, allowing for the management and monitoring of the entire property at the touch of a button.

HOME SPA

Luxurious home spa is the ideal relaxation zone, offering everything from a steam room to massage tables, and all in unequalled comfort.

1 Luxury House

REMAINING POOL

The epitome of luxury, each Sanctum villa comes with a private infinity edge saltwater swimming pool, with built-in jacuzzi jets and an incomparable, breathtaking view.

4 CAR GARAGE

Every Sanctum villa comes with its own four-car garage for the ultimate in value-added comfort and practicality.

ITALIAN KITCHEN

Every Sanctum villa comes with its own four-car garage for the ultimate in value-added comfort and practicality.

Chiangmai Rimdoi Public Co., Ltd.

cmrd.co.th

Turn static files into dynamic content formats.

Create a flipbook
Issuu converts static files into: digital portfolios, online yearbooks, online catalogs, digital photo albums and more. Sign up and create your flipbook.