Skip to main content

Undergraduate Architecture Portfolio

Page 1

IKJOT KAUR

A passionate, creative Architect and capable of producing and delivering results.

CONTACT

+91-843-712-2450

PUNJAB,INDIA

ikjotparmar@gmail.com

RESUME

2021 (July-present)

QUOTE I LIVE BY :

“As an architect you design for the present, with an awareness of the past, for a future which is essentially unknown.”

EDUCATION

2016-21

Graduation

BachelorofArchitecture

Guru Nanak Dev University

CGPA– 7.7

Last 2 years – 8.25 CGPA

2020 (June-July)

PROFESSIONAL EXPERIENCE

- JuniorArchitect @Absolute Space (Architecture,Interior and Builder)

Jalandhar, Punjab

• Practice mainly focused on residential and commercialbuildings

• Responsibilities include production of detailed 2D drawings and 3D models both physical and digital and site inspections.

Part-time Architect @ BassiAssociates

Jalandhar, Punjab

Workedon façade designs of residences and designed interior of a Temple.

2019 (June-Nov)

Intern @ARCOPAssociates Private Limited (Architecture,Interior and Urban Design)

New Delhi

• Projects focused on commercial buildings, housing apartments and architecturecompetitions on national level.

• Workedon 2D drawings, 3D modelling and presentations.

• Major responsibilities included development of conceptualdesigns and drafting of detailed drawings.

2014-16

SeniorSecondary Education

Doaba Khalsa Model Senior SecondarySchool

LANGUAGES

• ENGLISH

• PUNJABI

• HINDI

EXPERTISE

• Architecture Design

• Interior Design

• ConceptualDesign

• LandscapeDesign

• Urban Planning

RECOGNITION

AutodeskRevitArchitecture CertificateCADD Centre, Jalandhar, India

ACHIEVEMENT

Zonal NASADesign Competition 2017 (Shortlisted) – Gwalior, India

SOFWARESKILLS

AutoCAD

SketchUp Revit Photoshop

Drafting

V-Ray

MS Excel PowerPoint

MANUAL SKILLS

Model Making Sketching

– Norman Foster
CONTENTS 01 THESIS PROJECT: TAJ ORIENTATION CENTRE AND SHILPGRAM 02 ACADEMIC PROJECT: 5 STAR HOTEL 04 INTERNSHIP PROJECT: CENTRAL BUREAU OF INVESTIGATION (CBI) HOUSING APARTMENTS 05 INTERNSHIPPROJECT: BHARAT VANDANA PARK 06 INTERNSHIPPROJECT: GUJARAT TECHNOLOGICAL UNIVERSITY, COMPETITION PROJECT 03 ACADEMIC PROJECT: DOCUMENTATION
TABLE OF

TAJ ORIENTATION CENTRE AND SHILPGRAM, AGRA

(10th sem Thesis project - Individual)

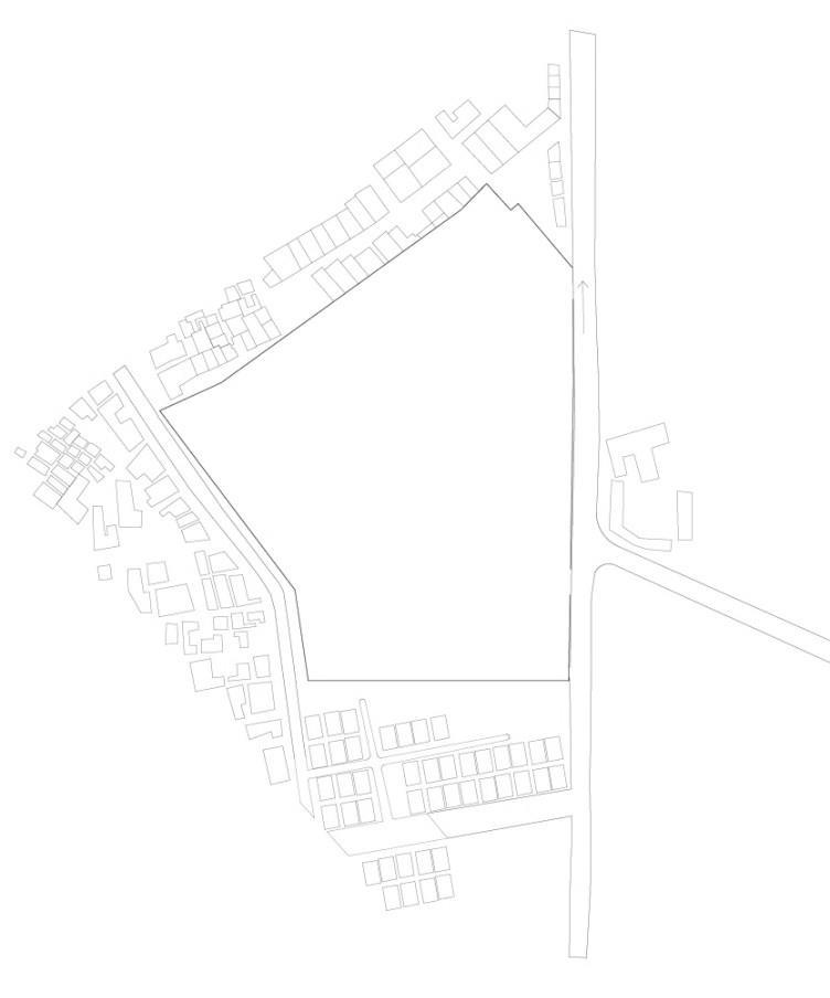
Agra features a semi arid climate that borders on a humid sub tropical climate. The city features mild winters, hot and dry summers and a monsoon season. Site has an area of 11.5 acres.

ENHANCING USER EXPERIENCE

By upgrading and modernizing the existing and adding new dimensions to the experience.

Agra is a major tourist destination because of its many Mughal-era buildings.

‘TAJ ORIENTATION CENTRE‟ aims to attract tourists and promote tourism of Agra. The orientation centre will provide a platform for local artisans to promote their craft In order to keep local art of Agra alive, visitors should have a knowledge and the artists should be encouraged

From the point of publicity and the tourist awareness most of the common tourists visit Taj Mahal only and other monuments like Akbar Tomb, Imtab – Ud - Dauld‟s receives only few visitors due to which deteriorating conditions of the lesser known monuments are found This project creates awareness and sense of belonging to the city by providing employment opportunities.This project will help in promoting lesser known monuments to create additional tourist destinations.

Recreational centre has been designed along with essential cultural site by introducing Mughal elements and it's composition showing it's principle of balance & symmetry with geometric patterns.

Taj Orientation Centre is inspired from the planning ofTaj Mahal

-Planning is done in the form of 9 fold plan

-Planning has been done on the basis of 8 chambers that surround the central space beneath the dome.

•Interior is modeled after Quran. 8th paradise of

•The term „Hasht Bihisht (8 paradises) has been interpreted as a reference to the 8 rooms surrounding central chamber

•Taj Mahal is a symmetrical planned building with an emphasis of bilateral symmetry

Basic planning of the site has been evolved from the plan of Taj Mahal which includes a central chamber octagon in shape and surrounded byoctagonal rooms

Site has been considering open designed plaza in octagonal shape acting as chamber.

1 1 2 2 2 2 3 5 3 4 6 7 7 8 9 10 11
01. T O U R I S T H U B
Taj Mahal Plan
PLAN
In the form of artisan gallery in Shilpgram and galleries in orientation centre.
EVOLUTION
AGRA आगरा
TAJ MAHAL SITE 236m 186m approx 173m
1. Entry Gates (Iwan) 2. Ticket Booths 3. Artisans/Shops Block 4. Library Block 5. Auditorium 6. Restaurant / Food Court 7. Baradari 8. Orientation Centre / Museum 9. Dormitory 10.Administrative Block 11. Outdoor PlayArea PlanningEvolved Central Chamber used as central plaza in Shilpgram

INCREASED STAYIN THE CITY

In order to prolong the stay of a visitor by providing more information and visiting centres to ensure a hassle-free experience.

NEW MODERN INTERVENTIONS

By finding, documenting and effectively exhibiting the neglected heritage and creating new landmarks to celebrate them.

DEVELOPMENT AND EMPLOYMENT

Creating awareness and a sense of belonging to the city by providing employment opportunities.

TypicalArtisans Shops Block

Shops on ground floor- 28

Shops on first floor- 28

In order to keep local art of Agr alive, visitors should have knowledge and the artists shoul be encouraged. This will motivate these artisa and keep the tradition fro perishing in this fast paced era

Shops in ‘SHILPGRAM‟ help in bringing artisans and craftsme who specialise in unique an ethnic handicraft under one roof.

ss Sense of closeness and openne has been provided with t introduction of jaalis

Library Block

Divisions on ground floor- 05

Divisions on first floor - 06

This city has absence of cultural and entertainment activities to engage tourists.

Seminar rooms, display areas (exhibition), library and tutorial room spaces are made available so that visitors should have a knowledge about the art of Agra and the artists should be encouraged.

Kid‟s play area has been provided on the ground floor.

Sense of closeness and openness has been provided with the introduction of jaalis

FEATURES

The arch, being an important element of the Mughal Architecture, is introduced as a skin to the face of the buildings

Arch allows entry into the corridor at the ground-floor level. The form of jaali arches is derived by modifying the basic lines of traditional Mughal arches from which light can pass through in the corridors

The structure is clad with RedAgra sand stone

The unique concept along with the form, scale, materials and elements that render the architecture give an iconic building to the people of Agra.

MATERIAL USED

Buildings such as artisans shops blocks, library block are clad with Red Agra Sandstone that helps to unify their diverse forms and functions

Jaalis are made of marble to create a distinction between elements.

Concrete & brick flooring provided for pathways.

Steel framework for arched corridor.

RCC and Brick masonry structure.

8mm display glass has been used for shops.

ns m
Ground Floor Plan First Floor Plan
SECTION X-X’ X X‟ Y

ELEVATIONALELEMENTS

Jharokha – „balcony for viewing‟

The Jharokha is a window projecting from the wall face of a building, in an upper story, overlooking a street, market, court or any other open space A common feature in classical Indian architecture

Its architecture served not only the basic need for lighting and ventilation but also attained a divine concept during the reign of Mughals

The jali not only add artistic flair to the magnificent architectural wonders of Indo-Islamic architecture They also served practical purposes, such as allowing for the circulation of air, shelter from direct sunlight, as well as privacy

The jali is a simpler hexagonal pattern In the daytime, sunlight passing through the jali cast a patterned silhouette on floors and walls inside, thereby creating a playful effect of light and shadow. The passage of the air through the perforations allows for the release of hot air and for cool air to enter.

Ground Floor Plan First Floor Plan Jharokha Jaali
SECTION Y-Y’ Y‟

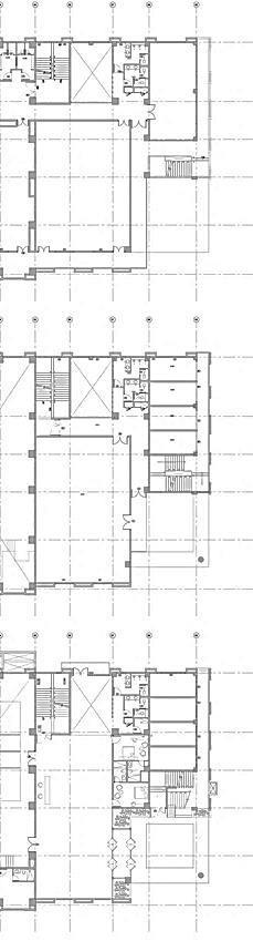
TAJ ORIENTATION CENTRE / MUSEUM

Ground coverage- 3287 sq m

At the entrance, massive transitional vaulted gateway is introduced to give grandeur effect

Display areas, study galleries, exhibition galleries and floating article in the centre of the museum has been provided on the ground floor Display areas has been provided where history of Mughal Period is explained in the form of timeline via display panels and display screens

Noise cancellation headphones has been provided on the booths around floating article where visitors can have an audio tour which provides a recorded spoken commentary in different languages. The central part of the museum is double heighted.

The outer star shape of this centre is inspired from one of the Islamic geometric patterns It is 8-pointed star, made of two squares, one rotated 45 degrees with respect to the other The exterior corridor has a continuous flow on all the 4 sides of the orientation centre It is 3 6 meter wide arched corridor The walls of the corridor serves as picture galleries Jaalis has been provided in the outer façade A harmony has been created in the outer elevation with the help of jaalis and arches. Contrast is provided by breaking the monotony of the colour.

Only a few people know that there is so much more heritage in Agra other than the Taj Mahal. To uplift this city, a creation of new magnet was required to experience the city of Agra. This museum will provide a hassle free experience to the visitors and their stay will be prolonged which will boost the economy ofAgra. Along with Taj Mahal, this centre will help in promoting lesser known monuments to create additional tourist destinations Visitors will get to know the historical relevance of various heritage abandon structures in Agra along with the introduction to the local culture and presentation of historical artefacts will be shown

MATERIAL USED

Agra is famous for marble and marble inlay work. White marble is used on the façade of this orientation centre. In order to provide a contrast and break the monotony, red colour is used for jaalis which are made up of marble. Marble inlay work is done in the form of calligraphy at the entrance of this museum Calligraphers were highly regarded in Islam which reinforces the importance of artistic significance.

The outer star shape is derived from the geometric patterns of Mughal architecture which acts as corridor.

Internal octagon shape is inspired from the nine fold plan of „Taj Mahal‟ which is a typical plan of Mughal architecture The corners of the square are chamfered to form an irregular octagon The internal planning is divided into 8 segments which refers to the term hasht bihisht (eight paradises). Hasht bihisht refers to the eight rooms surrounding the central chamber. The further model is developed in a perfect symmetry faithfully reflected in the elevation and remained true to MughalArchitecture.

Ground Floor Plan First Floor Plan FORM EVOLUTION
SECTION Y-Y’ SECTIONX-X’

FRUIT BEARING TREE

HEDGES

WATERBODY FLOWER BEDS

SHRUBS

SHRUBS HAS ALSO BEEN PLANTED ON HEDGES

The reference for plantation in site is also extracted from the gardens of Taj Mahal. The combination of fruit bearing trees and non fruit bearing trees is used, representing the living and dead respectively. The various plantation used are

Fruit bearing trees

Non fruit bearing trees

Flowers

Hedges

Shrubs

Cypress trees

Water channel is also designed as in Taj Mahal It gives cooling effect to minimise the scorching heat of Agra Water channels are designed so as to create cooling effect.

At the entrance, water fountains are placed in front of jaali which passes cool breeze and keep the entrance foyer cooler.

Handdrafted section through the central OATshowing level differences

LANDSCAPING
CYPRESS TREE

Baradari (rendered image on the right), also Bara Dari, is a building or pavilion with twelve doors designed to allow free flow of air Bara in Urdu/Hindi means Twelve and the word Dar means 'door'.

The structure has three arches on every side of the square-shaped structure. during historic times, they were valued for their fresh air during hot summers of India. It is made of red sandstone

Conceptual sketch of water body to be designed on site. Water was the central and connecting theme of the Mughal gardens. Octagonal water body is made around the OAT and 8 number of water bodies are provided around each building since number 8 was considered auspicious by the Mughals

5 STAR HOTEL AMRITSAR, INDIA (9th sem Academic project )

Collaboration with Tejveer Saini

Total site area- 4.5 acres

A hotel is not designed only on the

basis of aesthetic and functionality; on the contrary, proper design takes into consideration all aspects of the visitor‟s stay, both tangible and emotional And, of course, it ends with one key goal: to create unique experiences for the traveller

5 star hotel offers luxury amenities, full service accommodation ,an restaurant etc have fancy interior, pool, gym all added for the visitors comfort and wellbeing.

Designed as a flowing land-scrapper that blends earth to sky Spaces flow and connect to each other encouraging exchange and interaction.

The Hotel Omen is not exactly how you would imagine it. They want you to come, observe and experience the structure and design details without prejudice served by a star rating system It‟s like when you meet a new person and someone tells you “he is a 4” OMEN wants you to make up your own mind

This was a group project. Members allowed in each group were 2. WORK HANDLED by me in this project was-

• Conceptual evolution of the form

• Detailed 2D plans from 2nd to 14th Floor

• Rooms layout

• Site Plan

• Photoshop

• Sections

• Basement Plans

• Interior views and renders

• Rendering of bedroom plans

LOCATION AND CLIMATE

Site is located near one of the 12 Gates of the walled city in Amritsar. The climate of the district is classified as tropical, semi arid and hot which is mainly dry with very hot summer (April to June) and cold winter (November to March) except during south west monsoon season (July to September) and post-monsoon (September to November) The wind direction ofAmritsar is from NW to SE

The concept was derived simply from the shape infinity. Initially, it was thought to keep the corners at right angle to keep planning easy but to remain true to the conceptual form (infinity), the corners were blended and curves were added at the later stage The twisted loops swoop to form the predominant circulation space of the structure, whilst also providing a substantial space frame upon which facade is mounted The upper side of this loop in plan wraps up into banquet hall

Initial stage development steps-

Railway line Road network around site
02. HOTEL O M E N
Ground Floor Plan First Floor Plan Typical Floor Plan (3rd - 6th) Seventh Floor Plan Typical Floor Plan (8th – 11th) X X‟ Y‟ Y

Site circulation out. Proper ensures parking entry of taken from Ground

The entry area which lounge the visitors

Private multi-cuisine has been hall for has been also accessible Kitchen provided

FAÇADECONCEPT

Exterior Interior

In banquet hall, faceted walls fold up to the ceiling, enveloping guests in rhythmic portals. An abstracted Indian motif grafted onto a sound absorption surface aids acoustical comfort without being obtrusive.

First floor -

Consists all the offices, meeting & conference halls, gym and restaurant seating, playroom and storage rooms. Second floor is the service floor.

Presidential suites, Deluxe suites and executive rooms are provided on each floor from 3rd – 11th On the 7th floor, infinity swimming pool has also been provided along with open sitting and changing rooms separately for men and women.

A total of 207 rooms are provided in which there are 08 presidential suites, 40 deluxe suites and 159 executive rooms with separate 24 rooms serving as service apartments from floor 12-14.

Structure –

Earthquake resistant-The use of steel sections makes the structure earthquake resistant.

Reinforced concrete framed structure. One long span steel truss provided in the banquet hall to afford columnless spaces

Material used –

Use of sandstone on the façade of the lower two floors (ground & first).

Vertical louvers made of stainless steel give responsive shading and absorbs large part of the solar gain as Amritsar is a city with extreme summers

SECTIONX-X’ SECTION Y-Y’

STREET & STRUCTURES of AMRITSAR, INDIA (8th sem Academic Project)

Amritsar is known for its rich history, exuberant culture and religious harmony. However, the town seems to be confronted with modern day complexities and challenges of growth and urbanization which have taken a toll on its heritage. It struggles to find balance between preserving the “past” and keeping up with the “present” The objective was to document and analyse area, street and structures according to various parameters To study the functional and structural patterns of street and the social patterns of the area and their influence on architecture and planning. The main aim was to study the form, function and structure of buildings.

Amritsar is surrounded by a number of historical monuments that belong to different historical backgrounds- Colonial and Sikh Architecture. I focused mainly on the English colonial architecture . Queens road was one of the primary roads to be laid during British rule.

Currently this is the busiest street in Amritsar and there is no unity in design on the Queens street now There has been a constant upgrade in the typology on the street that has been added to its milieu

BUILDING- GANDHIASHRAM (DOCUMENTEDABANDONED STRUCTURE)

ABOUT THE SITE

The site is located on the Cooper road, to be precise Its rear side entrance faces the Queens road A total of 3480 Sq m , the site consist of the haveli, Radha Bhawan, which is where the staff stays (some), garage and a swimming pool (years ago). The site‟s very welcoming feature is its beautiful sculpted fountain, belonging to rich English landscapearchitecturalcharacteristics. The structure is 160 years old, belonging to Indo-Saracenic Architecture. Characteristics involve rich English, Gothic, and Mughal styles all incorporated or fused to be appropriately put into the one magnificent structure.

The entrance is raised by three steps, which create a plinth. The steps are rotating around the entire structure. This is only because there are fenestrations on almost all four sides The manner is symmetrical and thus its detailing is also similar on all four sides. The internal spaces are dark due to tinted glass and thick tracery. Thus it is difficult to live in with no light source.

The ground floor has twelve rooms in total, six on the ground floor, six on the first. At the entrance is a porch that leads to the central hall, which is hexagonal in shape, basically a rectangle which is bayed at one edge having three doors Since it is symmetrical planned out, the central hall further leads to three other rooms- the room which now is the office, and two more rooms.

The structures have undergone changes and thus, the structures are categorised as categoryAand B. Category A indicates the unchanged architecture, that is colonial architecture. Category B symbolises the new structures that have been built of concrete and cement.

Volumetric Analysis talks about the variations. In this case, there is a gradual increase in heights on one side of the road while the other side remains consistent with a slight rise at its centre. The volumetric analysis helps us achieve the sectional details and the problems faced by the street. These include angle of vision, enclosure, whether the street receives proper light and ventilation.

It has rich detailing even in its interiorscarvings and frescoes. The doors have a peculiar design. The shutters meet and make a triangle with its edges Each and every room has four doors The central hall and the seven doors each. There office have is a space pocket on the ground, rendering a connectivity to staircase that leads to the terrace.

The first floor is led through the staircase at the rear end It is basically the projection of the ground floor. The porch becomes terrace .

Most of it is now wrecked due to poor or no maintenance at all. Few of the rooms are used by the staff, few locked away and contain the storage of khadi stock. The washrooms are in a very poor condition.

First Floor Plan

03. DOCUMENTATION
STREETPLAN

Side Elevation

The sections reveal the characteristics of the haveli, its play of levels, the chhatris which are used to view sites while sitting under its dome The detail can be said and even now is known to be very intricate. The geometric patterns, jaalis are seen on the arches. The cornices and motifs are minutely detailed, featuring floral patterns.

Front Elevation

The detailing is intricate as already spoken about Honey comblike screens are created in its riser that becomes its pediment Basically, inspite of rose window, other remarkable fact is that the two pointed arch is converted into segmental where its sofit is visible from its segmental characterand the two pointed utilizes in the pediment like character.

A certain division of levels is visible from its ornamentagtion due to bands of conrnices, motifs running throughout the elevation on all four sides. Miniature sized brackets are added alongside the room of porch for aesthetic purpose. The porch, which forms the terrace, has chhatris at its vertices.

SECTION YY‟(vertical) SECTION XX‟
(horizontally)

HOUSING APARTMENTS

NEW DELHI, INDIA

(7th Sem Internship Project)

Collaboration with - ARCOP Associates Pvt Ltd

Area of site – 7.66 acres

The project involves construction of a housing complex comprising 586 units The site is surrounded by CAPF Institute of Medical Sciences on East and DDA Housing on West. Asola Wildlife Sanctuary covers the Northern part while a proposed 24 m wide road gives access to site on Southern side

The site is mainly flat and devoid of any major tree population Central Bureau of investigation has approximately 2900 employees of various ranks in Delhi .To cater their housing needs, the Bureau has 498 residential pool quarters of various types at five locations in Delhi The shortage of the staff quarters are quite evident, hence the requirement of new staff quarters was urgent

WORK HANDLED

This was the ongoing project during my internship. Construction of housing towers was being done at that time Community centre and NGO mess was yet to be constructed Various types of work was done by me on this project-

• Planning of NGO mess

• Community centre

• Sections

• Elevations

• Kitchen details

• Toiletdetails

• Surface parking

• Terrace details of towers

• Staircase details

• 3D model of a tower

04. CBI H O U S I N G Proposed site and connectivity from Bus stand
X X‟ SECTIONX-X’
Expansion joint details

NGO Mess is a 6 floor building. Ground floor includes reception, dining area, lounge and recreation areas. 10 guest bedrooms at each floor (1-4) are provided with 4 suites at 5th floor.

Specifications NGO Mess:

• Block work has been used.

• Aluminium Frames of windows. door and

• Vinyl sports flooring in rooms.

• Granite stone in corridors, circulation lobby and staircase Ceramic tiles in toilet flooring and upto dado height

• Reflective high performance glass for external glazing and for window glass.

• Grooves in external plaster and stone dust texture paint for external finish.

• PU (polyurethane) based waterproofing coating on terrace.

Lighting fixtures in periphery area of office and cabins in NGO mess and community centre are provided with infra red based lux level cum presence sensor to control / switching the light automatically.

TYPICAL STAIRCASE DETAIL

All the buildings in this housing complex consists of 2 staircases in each building having one of them coming from basement. This staircase is also used as fire staircase.. It is on the exterior walls of the building and open directly to the exterior open space of safety. To prevent the entry of fire and smoke, a wall has been made at the ground floor (red coloured wall as shown in image) and a person exits at the outdoor so that no individual goes to basement in case of emergency Separate entrance from ground floor leads to upper storeys

NGO MESS Ground Floor Plan First Floor Plan Typical Floor Plan (2-4) Fifth Floor Plan
COMMUNITY
X
Section through the balcony

Granite flooring detail for staircases

CENTRE
DETAILS
Community centre
X‟ SECTIONX-X’
Plan and section of water tank at terrace in housing towers
Terrace details of towers showing flooring details, roof parapet wall along with shaft and khurra details
Central green landscaping

BHARAT VANDANAPARK

DWARKA, NEW DELHI, INDIA (7th Sem Internship Project)

Collaboration with -ARCOPAssociates Pvt Ltd

AREAOF SITE – 200ACRES

As the name suggests, Bharat Vandana, i e Tribute to our Nation, gives a clear idea about the intent behind the proposal to build an urban park of this scale and grandeur

The purpose of this park is to include multiple activities in order to make it a vibrant and dynamic park which would also be selfcontained and self-sustaining The park visions to integrate various experiences and activities that would engage people of all ages and cultures This park has been conceptualized by dividing the site into different leaves each having its own function and special elements Different binding elements such as sky bridges, walk along the wall and water canals add a unique feel to the park.

WORK HANDLED BYME INCLUDES-

• Photoshop of the site plan

• Planning of Entrance Gate and its 3D model

• Conceptualization of sky bridge

• Conceptualization of Conservatory zone

• Sections of Vandana Sarovar (central water area)

The green precincts include congregational zone, cultural zone, tree walk, eco sensitive zone, conservatory, fun park, adventure park, lake view restaurants and mini India The park also features excursion like boating, zip-lining, animal animatronic zoo, musical fountain and light show Pylon structures with observatory are other attractions

Mini India an important element of the park, state-wise outlines the heritage and geography of India. It brings forward the state identities in the form of buildings, gateways, landscapes, topography also with its crafts and cuisines The walk through the park is educational

LOCATION AND WEATHER:

Bharat Vandana park is located in Dwarka, a location in the south west district of Delhi It is located approximately 15 km from the Indira Gandhi international airport

3 1 2 4 5 6 89 7 1

• Introducing axis on site

• Introducing traditional Indian floral rangoli pattern on site

• Establishing petal forms to create different landscape zones.

• Developing water channels along the petals

• Creating a sarovar as the binding element and focal point

• Green wall around the periphery

• Potential entry points

MINI INDIA

CONGREGATIONAL ZONE

CULTURAL ZONE

ECO TRAIL

ECO SENSITIVE ZONE

CONSERVATORY

FUN PARK

ADVENTURE PARK AND LAKE

VIEW RESTAURANTS

• Leaf 1- Congregational Zone

• Leaf 2 – Cultural Zone

• Leaf-3 – Eco- Trail

• Leaf 4 Eco-forest

• Leaf-5 – Conservatory

• Leaf-6- Fun Park

• Leaf-7- Adventure Park

• Leaf-8- Lake View Restaurants

• Leaf-9- Mini India

1 2 3 5 6 6 7 7 8 9 10 1 1 VISITOR HOLDING AREA 7000x6675

8 9 52 52 60 M WIDE ROAD

7 WATER COMMAND CENTRE

45 M WIDE ROAD 45 M WIDE ROAD A

ENTRANCE GATE COMPLEX-1 ENTRANCE GATE COMPLEX-3 ENTRAN CE GATE COMPLE X-2

1 2 3 4 5 6

A A

60 M WIDE ROAD

1.5 KMS 15MIN. WALK IICC BHARAT VANDA NA METRO DWARKA SECTOR–9 0.3KMS INDIRA GANDHI INTERNATIONAL AIRPORT DWARKA SECTOR–8 METRO DWAR KA SECTO R–150MIN.WALK METRO DWARK A SECTOR –11 METRO DWARKA SECTOR–21 METRO 05.
Harsh weather in the hot months and high humidity throughout the year. Predominantly the wind direction is from North-West.
ENTRYGATEAT3 SIDES OF THE SITE

Pylon is a word used for any large shape that tapers upwards Pylon consists of two tapering towers, each surmounted by a cornice, joined by a less elevated section

which enclosed the entrance between them.

Vandana Sarovar (below) the central element of the park has musical fountains as an attraction The sarovar acts as a focal point for the park Viewing deck around the fountains has been provided

A conservatory is a building or room having glass or tarpaulin, roofing and walls used as a greenhouse or a sunroom Conservatory for different plant species has been created in this part The plants are kept in controlled environs A skywalk through the different conservatory domes for different viewing experience has been designed

1 3 4
porch pylon Plan Section
Elevation
Dome 1 Dome 3
Dome2
Roof plan LEAF 5
SECTION BB‟
CONSERVATORY(leaf 5)
SECTION AA‟ Glass dome PLATFORM Pole for projector
A B B A
Column with Lift and elevated desk

UNIVERSITY(GUJARAT,INDIA)

GUJARAT TECHNOLOGICAL (7th sem Internship Competition Project)

Collaboration with -ARCOPAssociates Pvt Ltd AREAOF SITE – 100ACRES LOCATION AND WEATHER

The campus site is situated at Lekawada village on the outskirts of Gandhinagar in Gujarat Gujarat weather is marked by an arid and dry climate, with a little bit of rain during the monsoons Weather is hot during summers and winters are mild, pleasant and dry The wind is most often from the west from February to September The wind is most often from the east from October to December

This was a competition project in which various offices from different parts of India participated showcasing different proposals

This was a team project and work handled by me includes -

• Site zoning

• Conceptual evolution

• Placements of blocks on site

• Façade development

• Planning of hostels & faculty residence

• 3D model

Concept evolution from Nalanda complex

Nalanda, characterized as India's early universities was one of most proficient learning centre from the fifth century CE to c. 1200 CE. At its peak, the school attracted scholars and students from near and far with 10000 students and 2000 teachers in the university.

Nalanda is considered as one of the architectural marvels in terms of its campus layout and building design.

The Nalanda university complex was divided by a central walkway which went from south to North and in the same way site has been divided into central axis as shown in the conceptual sketch from N-S Monasteries were planned leading to central open courtyards Lower storey‟s comprises areas of learning/ instructions and communal worship Upper storey‟s comprises cells for resident students Similarly, central courtyards has been provided with each building and lower part of the site is academic and upper part of he site has been given to residential zone.

Proposed site

National highway147

KH road

Unnamed road

Proposed road

Road no. 7

Railway station (11.3 km)

Academic zone

Central green buffer

Residential zone

Student residential zone

Faculty residential zone

Green buffer in front

Green edge along the boundary River edge enhancement

RIVER
HIGH TENSION LINE
1 2 1 1 1 3 5 7 6 9 4 10 6 11
Inspiration from Nalanda
06.
CONCEPTUALEVOLUTION ZONING

FAÇADEEVOLUTION

It is a land of Marble rocks & Ghats. Ghats are considered sacred and recreational zones in the an interactive community.

Of Stone Masonry Patterns city rendering Different types observed are: OrderedArrangement

1 8 1
1. ACADEMICPRECINCT 2. AUDITORIUM 3. ADMINBLOCK
CEREMONIAL
ACADEMIC ENTRY / EXIT RESIDENTIAL ENTRY / EXIT
4. AMPHITHEATRE 5. HOSTELS 6. STAFF RESIDENCES-2 BHK 7. STAFF RESIDENCES-3 BHK 8. SPORTS FIELDS 9. RIVEREDGE ENHANCEMENT 10. INDOORSPORTSCLUB 11. MEDITATIONGARDEN
ENTRY / EXIT
Shifting Planes 1. CREATINGASOLID BUILT MASS 2. CREATING A STRONG AXIS WITHIN THE BUILTMASS 3. CREATINGA CENTRAL COURTYARD 4.CREATING UNITS ALONG THEAXIS 5 CREATING HOSTEL UNITS ALONG THEAXIS 6. CREATING INTERNAL COURTYARD WITHIN THE UNITS 7. CREATING MODULES WITHIN THE UNITS
STUDENT‟SHOSTEL(DESIGNEVOLUTION)
ZONE PUBLIC ZONE REGISTRAR‟S RESIDENCE
8. CENTRAL PARTCONTAINS CORE OF THE BUILDING ANDACTS ANATURAL LIGHT WELL.
COURTYARD PRIVATE
FACULTYRESIDENCE2BHKAND 3 BHK Key Plan 2BHK & below 3BHK

THANKYOU

Turn static files into dynamic content formats.

Create a flipbook