Ignacio M. Casal



![]()



Architecte - Infographiste
EXPÉRIENCE PROFESSIONNELLE
03.2024 - 09.2024 ESTHER FERRER ARQUITECTURA Barcelone, Espagne. www.estherferrer.com

647433898

ignaciomcasal@gmail.com

Barcelone, Espagne.
Architecte doté d’expérience dans des projets d’habitation individuel et collectifs, d’établissements commerciaux, gastronomiques et culturelles. Je suis passionné par le design dans toutes ses dimensions: de la conception architecturale aux espaces intérieurs et le mobiliaire, en intégrant des solutions esthétiques, techniques et constructives. Ayant fait partie de plusieurs agences d’architecture en Argentine, en France et en Espagne, j’ai appris à intégrer les aspects culturels, climatiques et constructifs dans le travail de conception. Soucieux du détail, critique et en constante recherche d’expériences et d’apprentissage, j’aimerais faire partie d’une équipe dynamique et relever de nouveaux défis professionnels. En tant qu’infographiste et projeteur, au sein de différents studios et dans ma carrière en tant que freelance, j’utilise ma passion pour le design, l’esthétique, la musique et la photographie dans la production d’images et de représentations virtuelles pour mettre en valeur les idées et leurs résultats architecturaux et spatiaux.
FORMATION
12/2023 - FORMATION - REVIT 2023 C.I.S.C.A (École d´architectes de Buenos Aires)
07/2015 - ARCHITECTE U.N.L.P (Universidad Nacional de La Plata, Argentine)
03/2013 - FORMATIONRENDU ET VISUALISATION 3D
3ds Max / Vray (VIMSTUDIO, La Plata, Argentine)
10/2011 - FORMATIONLIGHTWEIGHT STEELFRAME
CAPBA1, La Plata, Argentine (Colegio de Arquitectos de la provincia de Buenos Aires)
12/2007 - FIRST CERTIFICATE IN ENGLISH
SOFTWARE
AUTOCAD 2D/3D
PHOTOSHOP
SKETCHUP
LUMION
ENSCAPE
VRAY IN DESIGN
3DS MAX
REVIT
LIGHTWORKS
LANGUES
ESPAGNOL langue maternelle
FRANÇAIS niveau C1 (avancé)
ANGLAIS niveau B2 (intermédiaire)
Responsable d’infographie/ Modeleur 3D/ Projeteur
L’agence se spécialise dans la rénovation d’appartements de style moderniste catalan et dans des projets de logements unifamiliaux contemporains de moyen et haut standing.
01.2020 - Actuel Architecte infographiste et designer freelance
Réalisation de matériel graphique, conception de façades et d’aménagements paysagers pour des ensembles de logements collectifs pour l’agence Bernard Buhler. Réalisation de projets à plus petite échelle en tant qu’architecte indépendant (Argentine).
Mon parcours en tant qu’architecte freelance m’a permis de poursuivre ma collaboration avec l’agence Bernard Buhler tout en réalisant mes propres projets commerciaux, industriels et d’habitat individuel, de manière indépendante et en collaboration avec d’autres professionnels.
10.2017 - 01.2020 AGENCE BERNARD BUHLER - Bordeaux, France. www.bernardbuhler.com
Infographiste 3D/ Projeteur/ Dessinateur
Agence spécialisée dans les projets de logements collectifs de moyenne et grande taille dans différentes villes de France (Paris, Bordeaux, Montpellier, Grenoble et Biarritz).
Dans le cadre de mes fonctions, j’ai exercé des fonctions de dessinateur, de projeteur, de concepteur de façades et d’intérieurs, de relevés photographiques et de production d’images, tant pour des concours que pour des études de faisabilité et des commandes pour des groupes de promoteurs immobiliers privés (Pichet, Promogim, Fradin, CDC Habitat, Cogedim).
Mon expérience au sein de l’agence Bernard Buhler m’a permis d’intégrer des notions de design propres à la culture française et de la réglementation locale, tout en intégrant des aspects techniques et constructifs. Son attention particulière pour la qualité de la vie sociale m’a permis d’adopter dans mon processus de conception des critères de rationalisation et de systématisation typiques des projets de plus grande envergure.
2013 - 2015 ESTUDIO TRASSA ARQUITECTURA Bs As/Madrid (siège en Argentine) www.trassanet.net (Lettre de recommandation)
Projeteur/ Dessinateur/ Infographiste 3D
Spécialisation dans des projets de logements individuels, collectifs et d’établissements commerciaux. Fonctions de projeteur et de dessinateur de dossiers techniques complets pour l’exécution des travaux, y compris les plans architecturaux, la structure, les installations et les images. Maître d’œuvre dans les Cafeterías Havanna de Bernal et de la ville de Buenos Aires.
- Prix CAPBA 2018 – Mention – Catégorie d’habitation individuelle (œuvre bâtie)
2012 ESTUDIO BARES/BARES/BARES/SCHNAK - City Bell, Argentina. www.estudiobares.com (Lettre de recommandation)
Dessinateur/ Infographiste 3D
Concours « Polo audiovisual y cultural de la provincia de Tierra del Fuego » (Centre audiovisuel et culturel de la province de Terre de Feu) (20 000 m2). Concours de programme de logement « PROCREAR » (Buenos Aires) (40 000 m2). Concours « Complejo Teatral » (Complexe théâtral) (Berazategui, Buenos Aires) (40000 m2) – Mention.

Avenue de Paris - Lormont - Francia domaine de Fontbelleau
123 viviendas de 1/2/3/4 habitaciones
Projet Agence Bernard Bühler Visualisation Ignacio Casal
: SketchUp - Lumion - PS
Avenue de Paris - Lormont - France domaine de Fontbelleau
123 logements T1/T2/T3/T4
Projet Agence Bernard Bühler Visualisation Ignacio Casal
: SketchUp - Lumion - PS
A veinte minutos del centro de Burdeos, el parque de Fontbelleau constituye un pulmón verde con con arboles centenarios. La primer etapa del proyecto consta de dos torres de 123 viviendas de diversas tipologías, contemplando usuarios de edades y composiciones familiares diferentes, en un entorno natural convenientemente conectado a la metrópolis. Los volumenes se hacen espacio entre los arboles, emulando sus formas, sus colores, y reflejando el paisaje circundante mediante la utilización del vidrio y el color, firma característica de la Agence Bernard Bühler. Las torres se apoyan sobre un zocalo enterrado que contiene las cocheras y permite al parque continuar ininterrumpidamente, mediante una cubierta vegetalizada, minimizando el impacto paisajístico. La realización de las torres representa la primer fase del proyecto total para todo el parque, que incorpora edificios de vivienda y oficinas, también a cargo del estudio Bernard Bühler
À vingt minutes du centre de Bordeaux, le Parc de Fontbelleau constitue un espace vert avec des arbres centenaires. La première étape du projet comprend deux tours de 123 logements de différentes typologies, visant des utilisateurs de divers âges et compositions familiales, dans un environnement naturel adéquatement connecté à la métropole. Les volumes s’insèrent parmi les arbres, imitant leurs formes et leurs couleurs, et reflétant le paysage environnant grâce à l’utilisation de verre et de couleurs, signature caractéristique de l’Agence Bernard Bühler. Les tours reposent sur un socle enterré qui abrite les garages et permet au parc de se prolonger sans interruption, grâce à un toit végétalisé, minimisant ainsi l’impact paysager. La réalisation des tours représente la première phase du projet global pour l’ensemble du parc, qui intègre des bâtiments résidentiels et des bureaux, également sous la direction de l’agence Bernard Bühler.


Implantación Plan de Masse
- Acceso Torres - Cubierta vegetalizada RDC
- Accès Tours - Toiture vegetalisée
Implantación Plan de Masse

Avenue Thiers - Burdeos - Francia vivienda colectiva Bastide
Superficie 96 viviendas de 1/2/3/4 habitaciones + 700m2 espacio flexible
Proyecto Agence Bernard Bühler Visualización Ignacio Casal
Software : SketchUp - Lumion - PS
Avenue Thiers - Bordeaux - France logement collectif Bastide
Surface 96 logements T1/T2/T3/T4 + 700m2 espace flexible
Projet Agence Bernard Bühler Visualisation Ignacio Casal
Logiciel : SketchUp - Lumion - PS
El proyecto Bastide completa el masterplan diseñado por el estudio MVRDV para el barrio Bastide (Rive droite) de la ciudad de Burdeos.
Se inscribe en una parcela libre en sus cuatro fachadas y respeta la morfología de los proyectos constituyentes del masterplan, utilizando la forma para maximizar el asoleamiento del espacio público. Se contemplan diversas tipologías priorizando los espacios exteriores privados (terrazas).
El nivel cero aloja un espacio flexible subdivisible que podrá albergar desde oficinas hasta comercios y locales gastronómicos, en relación al espacio público que rodea todo el edificio.
El volumen de mayor altura resuelve la esquina generando un hito para quienes circulan por la avenida Thiers, anterior a la desembocadura en la plaza de Stalingrado, frente al histórico «pont de pierre» de Burdeos.
(FR) El proyecto Bastide completa el masterplan diseñado por el estudio MVRDV para el barrio Bastide (Rive droite) de la ciudad de Burdeos. Se inscribe en una parcela libre en sus cuatro fachadas y respeta la morfología de los proyectos constituyentes del masterplan, utilizando la forma para maximizar el asoleamiento del espacio público. Se contemplan diversas tipologías priorizando los espacios exteriores privados (terrazas).
El nivel cero aloja un espacio flexible subdivisible que podrá albergar desde oficinas hasta comercios y locales gastronómicos, en relación al espacio público que rodea todo el edificio.
El volumen de mayor altura resuelve la esquina generando un hito para quienes circulan por la avenida Thiers, anterior a la desembocadura en la plaza de Stalingrado, frente al histórico «pont de pierre» de Burdeos.









Rue du Chateau Thierry - Merignac - France ampliacióny reforma vivienda unifamiliar
Projet Ignacio Casal
Visualisation Ignacio Casal
Logiciel : SketchUp - Enscape
Rue du Chateau Thierry - Merignac - France rémodelation et surélévation maison individuelle
Projet Ignacio Casal
Visualisation Ignacio Casal
Logiciel : SketchUp - Enscape
El destinatario de este proyecto es una familia de cuatro personas con dos niños pequeños, que busca rehabilitar una pequeña vivienda individual de 50m2 incrementando la superficie interior, respetando el volumen de la construcción existente y la fachada original.
La propuesta consiste en la sobreleevación de la vivienda, elevando el nivel de cubierta y construyendo un forjado intermedio para albergar un piso superior, conservando la superficie del jardín. Contenido en planta baja por la envolvente original, el volumen interior se prolonga en altura adoptando el color característico de los tejados tradicionales, y generando con su forma un diálogo entre lo contemporáneo y patrimonial.
La planta baja contiene el estar - comedor y la cocina-barbacoa, abriéndose sobre el jardín trasero y el espacio lateral, de orietación sur.
El primer piso contiene la habitación principal en suite, estudio, habicion/es de los niños y un baño.
(FR) Le destinataire de ce projet est une famille de quatre personnes avec deux jeunes enfants, qui souhaite réhabiliter une petite maison individuelle de 50 m² en augmentant la surface intérieure, tout en respectant le volume de la construction existante et la façade originale. La proposition consiste en une surélévation de la maison, en élevant le niveau de la toiture, construisant un plancher pour accueillir un étage supplémentaire, sans empiéter sur la surface du jardin. Contenu au rez-de-chaussée par l’enveloppe originale, le volume intérieur se prolonge en hauteur, adoptant la couleur caractéristique des toitures traditionnelles et créant, par sa forme, un dialogue entre le contemporain et le patrimonial Le rez-de-chaussée comprend le salon-salle à manger et la cuisine avec barbecue, s’ouvrant sur le jardin arrière et l’espace latéral, orienté au sud. Le premier étage comprend la suite parentale, un bureau, la/les chambre(s) des enfants et une salle de bain.


1. Acceso peatonal
2. Acceso vehicular
3. Entrada
4. Escalera
5. Estar - Comedor
6. WC - Lavadero
7. Cocina
8. Cocina ext - Barbacoa
9. Terraza
10. Jardin
11.Guardado - Bicicletas
RDC
1.Accès piéton
2.Accès véhicule
3.Entrée
4.Escalier
5.Pièce de vie
6.WC - Buanderie
7.Cuisine
8.Cuisine ext - Barbecue
9.Terrasse
10.Jardin
11. Cellier - Vélos
1. Circulación
2.Habitación principal
3. Baño en suite
4. Baño
5. Estudio
6. Habitación
7. Habitación

1.Couloir
2.Chambre principale
3.Salle de bain attenante
4.Salle de bain
5.Bureau
6.Chambre
7.Chambre




Fachada Calle
1. Fachada original
2.Bicicletas - Depósito
3. Sobreelevación
4. Reja existente

Fachada Jardín Façade Rue
1. Façade d’origine
2. Vélos - Dépôt
3. Surélévation
4. Grille existante
Façade Jardin






Proyecto
Visualización
Software : SketchUp - Enscape - PS
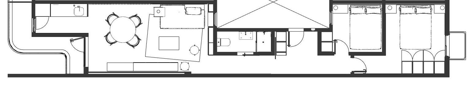
Esta remodelación interior en el barrio de El Clot, Barcelona, se encuentra en un edificio de principios del siglo veinte, que ha sido interioremente modernizado individualemente por sus propietarios en los 90’s. La premisa es generar un gran salón-comedor con balcón al corazón de manzana, ganando luminosidad interior y resignificando el sector íntimo-social, mediante la supresión de una tercera habitación existente (que ocupa parte del estar comedor del proyecto), la modificación y reubicación del mobiliario de cocina, y la supresión de dos cerramientos vidriados construidos en el balcón, permitiendo recuperar la ventilación y relación con el exterior del proyecto original. En los interiores, las tonalidades de pisos (microcemento) y paredes (madera) generan una atmósfera de sobriedad y cálidez, apreciada por el cliente, donde los espacios de guardado y el mobiliario se funden con los revestimientos.
Cette rénovation intérieure dans le quartier d’El Clot, à Barcelone, se situe dans un immeuble du début du XXe siècle, qui a été modernisé individuellement par ses propriétaires dans les années 90. L’objectif est de créer un grand salon-salle à manger avec un balcon donnant sur le cœur de la parcelle, augmentant la luminosité intérieure et redéfinissant le secteur intime et social, par la suppression d’une troisième chambre existante (qui occupe une partie du salon-salle à manger du projet), la modification et le repositionnement du mobilier de cuisine, ainsi que la suppression de deux vitrages construits sur le balcon, permettant de retrouver la ventilation et le lien avec l’extérieur du projet original. À l’intérieur, les tonalités des sols (micro-ciment) et des murs (bois) créent une atmosphère de sobriété et de chaleur, appréciée par le client, où les espaces de rangement et le mobilier se fondent avec les revêtements.


Estado actual - État actuel


Estado actual État actuel
1. Entrada
2. Pasillo
3. Baño
4. Estar - Comedor
5. Cocina
6. Balcón
7. Cerramiento (modif)
8. Guardado
9. Habitación
10. Habitación ppal.
Proyecto - Projet Proyecto
1. Entrada
2. Pasillo
3. Baño
4. Estar - Comedor
5. Cocina
6. Balcón
7. Habitación invitados
8. Habitación ppal.
1. Entrée
2. Couloir
3. Salle de bain
4. Salon - Salle à manger
5. Cuisine
6. Balcon
7. Vitrages (modif)
8. Célier
9. Chambre Chambre principale
1. Entrée
2. Couloir
3. Salle de bain
4. Salon - Salle à manger
5. Cuisine
6. Balcon
7. Chambre invités
9. Chambre principale




Mar Chiquita - Argentina
proyecto básico vivienda de alquiler turístico
Superficie Container Marítimo 30m2 (12.19m x 2.43m)
Proyecto + Visualisación Ignacio Casal
Software : SketchUp - Lumion - PS - Acad
Mar Chiquita - Argentine avant-projet logement de location touristique
Surface Container Maritime 30m2 (12.19m x 2.43m)
Projet + Visualisation Ignacio Casal
Logiciel : SketchUp - Lumion - PS - Acad
Pensada como vivienda de alquiler de temporada suceptible de ser replicada en diversas configuraciones, esta vivienda para dos personas se resuelve en un container marítimo de 30m2, ligeramente elevado del terreno y revestido exteriormente en madera, material imperante en las construcciones residenciales de la zona, buscando renovar el concepto de «cabaña» como construcción tìpica en madera, características del municipio. Se accede mediante terrazas exteriores variables según la disposición de las unidades y la vegetación existente.
El volumen metálico del container se descubre, dejando su materialidad al desnudo en los espacios interiores; el sector de día y la habitación.
La envolvente en madera permite la incorporación de aislación térmica exterior, mejorando sus prestaciones, maximizando la superficie habitable interior, y permitiendo jugar exteriormente con su geometría y color, inspirándose en los materiales y los techos inclinados de la zona.
(FR) Pensée comme une résidence de location temporaire susceptible d’être reproduite dans diverses configurations, cette maison pour deux personnes est aménagée dans un conteneur maritime de 30 m², légèrement surélevée par rapport au sol et habillée de bois à l’extérieur, un matériau dominant dans les constructions résidentielles de la région, cherchant à renouveler le concept de « cabane » en tant que construction typique en bois, caractéristique du village.
L’accès s’effectue par des terrasses extérieures variables selon la disposition des unités et la végétation existante. Le volume métallique du conteneur est révélé, laissant sa matérialité à nu dans les espaces intérieurs : la zone de jour et la chambre.
L’enveloppe en bois permet l’intégration d’une isolation thermique extérieure, améliorant ses performances, maximisant la surface habitable intérieure et permettant de jouer avec la géométrie et la couleur, en s’inspirant des matériaux et des toits inclinés de la région.


1. Estar
2. Comedor
3. Cocina
4. Pasillo
5. Baño
6. Habitación
RDC
1. Séjour
2. Salle à manger
3. Cuisine
4. Couloir
5. Salle de bain
6. Chambre

Cours Victor Hugo - Burdeos - Francia
bar Los dos hermanos
Proyecto Ignacio Casal
Visualización Ignacio Casal
Software : SketchUp - Vray - PS
Cours Victor Hugo - Bordeaux - France bar Los dos hermanos
Projet Ignacio Casal
Visualisation Ignacio Casal
Logiciel : SketchUp - Vray - PS
(ES) Ubicado en Avenida Victor Hugo y a inmediatez de la «Porte de Bourgogne» , un sector en plena transformación, el proyecto busca renovar completamente la imagen de un establecimiento que forma parte de la tradición del barrio desde hace décadas.
El local se encuentra en la planta baja de un edificio patrimonial del siglio XIX. La sala principal contiene el sector de bar, cocktails y vinos, y la sala secundaria el sector de tapas españolas. En el subsuelo se encuentra una tercera sala abovedada en piedra de uso flexible, y un salón de juegos. Para la nueva estética se buscará crear un diálogo entre lo antiguo, lo vintage y toques de aspecto industrial. Hemos elegido una paleta de colores que combina el cobre con los paramentos gastados de la fachada y tonos oscuros en hormigón y revestimientos, buscando hacer de la barra un elemento protagónico del espacio interior.
Le projet de rénovation intérieure pour le bar Los dos hermanos vise à renouveler entièrement l’image d’un établissement qui fait partie de la tradition du quartier depuis des décennies. Situé sur l’Avenue Victor Hugo, à proximité immédiate de la « Porte de Bourgogne », le secteur est en pleine transformation, accueillant une offre gastronomique et nocturne en plein essor. Le local se trouve au rez-de-chaussée d’un bâtiment patrimonial du XIXe siècle. La salle principale abrite la zone dédiée aux cocktails, vins et au bar, tandis que la salle secondaire est réservée aux tapas espagnoles. Au soussol, une troisième salle voûtée en pierre offre un espace flexible, en plus d’un salon de jeux. La nouvelle esthétique cherchera à établir un dialogue entre l’ancien, le vintage, et des touches d’aspect industriel. Nous avons choisi une palette de couleurs qui associe le cuivre aux parois vieillies de la façade et des tons sombres en béton et revêtements, avec pour objectif de faire du bar l’élément central de l’espace intérieur.


Terraza - Entrada 2. Espacio de trabajo 3. Mostrador / Caja 4. Barra Bar Cocktails
5. Sala Bar Cocktails
6. Sector Mesas - Cocktails
7. Baño apto discapacitados
8. Baño mixto 9. Escalera uso restringido
Salida de emergencia
Escalera
12. Sala sector tapas
13. Barra sector tapas
14. Cocina
15. Refrigerados
16. Escalera interna
17. Sala independiente ( cava )
18. Sala de Juegos
19. Guardado
20. Depósito general
Terrasse - Entrée
Space de travail
Caisse
Comptoir Cocktails
Salle Bar Cocktails
Secteur de tables - Cocktails
WC apte PMR
Toilettes
Escalier privative
Sortie d’emergence

Avenue Thiers - Burdeos - Francia vivienda colectiva Bastide
Superficie 96 viviendas de 1/2/3/4 habitaciones + 700m2 espacio flexible
Proyecto Agence Bernard Bühler Visualización Ignacio Casal
Software : SketchUp - Lumion - PS
Avenue Thiers - Bordeaux - France logement collectif Bastide
Surface 96 logements T1/T2/T3/T4 + 700m2 espace flexible
Projet Agence Bernard Bühler Visualisation Ignacio Casal
Logiciel : SketchUp - Lumion - PS
El proyecto Bastide completa el masterplan diseñado por el estudio MVRDV para el barrio Bastide (Rive droite) de la ciudad de Burdeos.
Se inscribe en una parcela libre en sus cuatro fachadas y respeta la morfología de los proyectos constituyentes del masterplan, utilizando la forma para maximizar el asoleamiento del espacio público. Se contemplan diversas tipologías priorizando los espacios exteriores privados (terrazas).
El nivel cero aloja un espacio flexible subdivisible que podrá albergar desde oficinas hasta comercios y locales gastronómicos, en relación al espacio público que rodea todo el edificio.
El volumen de mayor altura resuelve la esquina generando un hito para quienes circulan por la avenida Thiers, anterior a la desembocadura en la plaza de Stalingrado, frente al histórico «pont de pierre» de Burdeos.
(FR) El proyecto Bastide completa el masterplan diseñado por el estudio MVRDV para el barrio Bastide (Rive droite) de la ciudad de Burdeos. Se inscribe en una parcela libre en sus cuatro fachadas y respeta la morfología de los proyectos constituyentes del masterplan, utilizando la forma para maximizar el asoleamiento del espacio público. Se contemplan diversas tipologías priorizando los espacios exteriores privados (terrazas).
El nivel cero aloja un espacio flexible subdivisible que podrá albergar desde oficinas hasta comercios y locales gastronómicos, en relación al espacio público que rodea todo el edificio.
El volumen de mayor altura resuelve la esquina generando un hito para quienes circulan por la avenida Thiers, anterior a la desembocadura en la plaza de Stalingrado, frente al histórico «pont de pierre» de Burdeos.


1.Acceso Peatonal
2. Acceso Cocheras
3. Hall
4. Ascensores
5.Cochera
RDC
1. Séjour
2. Salle à manger
3. Cuisine
4. Couloir
5. Salle de bain
6. Chambre
Planta tipo oficinas
1. Séjour
2. Salle à manger
3. Cuisine
4. Couloir
5. Salle de bain
6. Chambre
Planta tipo oficinas
1. Séjour
2. Salle à manger
3. Cuisine
4. Couloir
5. Salle de bain
6. Chambre
Planta tipo
Vivienda
1. Séjour
2. Salle à manger
3. Cuisine
4. Couloir
5. Salle de bain
6. Chambre
Planta tipo
Vivienda
1. Séjour
2. Salle à manger
3. Cuisine
4. Couloir
5. Salle de bain
6. Chambre