INGI KIM PORTFOLIO

Page 1


CONTACT

Mobile

Address Nationality

EDUCATION

Email Birth Seocho-gu, Seoul Republic of Korea +82) 10-2082-5941

Visa Status

Jul.2020-Feb.2025

Mar.2019-Jun.2020

Jul.2023

AWARDS

EXHIBITION

PUBLICATION

EXPERIENCE

REFERENCES

16.Mar.1999

popularity0316@gmail.com

Working Holiday Visa (9M)

Yonsei University, Seoul, Republic of Korea

Bachelor of Architecture (GPA 3.88/4.3)

Yonsei University, Seoul, Republic of Korea

Bachelor of Astronomy (major transfer to architecture)

Architectural Association Visiting School Seoul, Korea

National University of Singapore, Singapore, Exchange Student Aug.2022-Dec.2022

2024 Graduation Design Conpetition, Representative work prize Nov.2024

(organization: Architecture Design Institute of Korea, Seoul)

The Space Prize for Intl. Students of Architecture Design Sep.2023

Selected work (organization: 空間 SPACE GROUP, Seoul)

Yonsei Univ. Dpt of Architecture & Architectural Engineering Jun.2024

2024 Graduation Exhibition, Seodaemun-gu, Seoul

10 models of interpreting Villa Savoye Feb.2024-Mar.2024

Life Architects, Jongno-gu, Seoul

Cube A, Graduation Exhibition Conference in Yonsei Univ. Mar.2021-Feb.2022

Concept design, preparing goods and pamphlets.

Urban Interface Workshop Aug.2021-Nov.2021

Bae Ryum’s House, Jongno-gu, Seoul

Studied public space in Gangnam and did group exhibition.

Archat, Designer of Student Architecture Magazine Aug.2023-Feb.2024

Made overall design of the 2 magazines and published them.

理學(I-hak), College of Science magazine club Mar.2019-Feb.2022

Wrote about environment and designed a magazine twice.

Internship at SAMOO Architects & Engineers, Seoul Dec.2022-Feb.2023 (2 months)

K-project, David Chipperfield Architects as design architects. (HQ office) 3D Modeling for DD process, Editing image, plan for administratie review

WAVE, Vice-president of Committee of Club Society Oct.2020-Oct.2021

Created an integrated club website for online exhibition.

Seowoo, Yonsei Calligraphy Club Mar.2019-Jul.2023

Participated in 2 chinese character calligraphy exhibitions.

Sang YunLee / Professor at the Yonsei University, President at the Korea Association of Collegiate Schools of Architecture / sangyunl@yonsei.ac.kr / +82) 2-2123-5787

The Shinsegae

Commercial Project / Year 5-1 (2024) / Architectural Design Studio 7 / Personal

*Representative work prize, Excellence in Education Award

Modern department stores are not simply places for shopping, but are transforming into spaces for hobbies, leisure, rest, and culture. In this change, I propose an open and open department store that does not only pursue efficiency.

Dutch architect Rem Koolhaas mentioned the (excessive) expansion of commercial space in his book ‘Mutation’. In a capitalist society where the infiltration of shopping is unavoidable, I seeks to strengthen the positive impact of commercial space, and shopping itself, on society.

The site is right next to the Gangnam Shinsegae Department Store, one of Korea’s representative department store. The New Shinsegae will be built in the same size as the existing Shinsegae making a large contrast. I also wanted to connect both to provide a variety of spatial experiences and create a synergy. (Lotte department store brands gathered several department stores building together to form a so-called ‘Lotte town’)

Mutation, Stefano Boeri Architetti
In addition, as it is located between residential areas, publicity and green space are added. It can connect the green space in the north and south, providing convenience for local residents, and extending floating population to the south.

Recently, (At least in Korea) with the trend of wanting to own rare products, ‘suggestions of selected items’ rather than ‘a simple listing of items’ have become important. Architectural space suitable for new shopping characteristics is also required. Therefore, I convert the existing typical floor layout (ex.Women’s luxury/ Cosmetics/ Men’s luxury/ Golf&Sports/ Living/ Restaurant) to vertical and propose floor classification according to the themes(Experimental, Modern, Classic, Casual, and Outdoor). Customers walk around one floor, shop for various items that suit their tastes, and meet people with the same tastes.

The positions of the six sections on the floor plan determine the categories of products sold, and the structure extending to the facade emphasizes the six vertical divisions. The management functions of the building (restrooms, heating and cooling facilities, evacuation stairs, elevators, etc.) other than sales are handled by the structure. Natural lighting reflected by the structure and transmitted to the basement is a bonus. In the curved slabs, the people and objects that can see the various objects that can be seen at each location on each floor are different. This is to maximize the value of the gaps created by the curved structure.

The structure, which resembles the structure of bones, supports most of the building’s load instead of columns. The six part of builidng was decided based on the three-dimensional Voronoi shape (a three-dimensional figure divided into a set of faces with the closest distance to a specific point in the three-dimensional space). Then the structure was finally decided by modifying some of the six-unit areas where people move and the facade meet.

3D Voronoi Strucutre

The inside of a department store with glass on all sides is flooded with natural light. To maximize transparency, the building is supported by a voronoi structure instead of opaque walls or thick columns. The structure is formed by approximately 8,000 shaped steel beams of different dimensions. Pipes for communication and electrical equipment, ducts for HVAC, and pipes are attached to the steel beams, and they are completed by covering them with curved cover. In addition to the voronoi structure, some of the cores of the restroom and stairwell bear the load.

The main voronoi structure starts from the basement and grows to the rooftop, creating a megastructure. The slabs on each floor are hung as cantilevers from the main structure, and the tensile cables coming down from the rooftop structure pull the slabs on the opposite side. The lower slabs, where the cables do not reach, relieve excess load through voids.

Indoor heat release from the atrium

Visual communication between in and out

There is a column-structure that fits the grid for vehicle underground, and a Voronoi structure is located above ground.

LED display boards are installed on the exterior walls of bathrooms to reduce the presence of the wall and are used for promotional purposes.

Elevators and stairwells are finished with glass to give transparency allowing people to interact with each other more often.

In the central part of the structure, there are two upward and two downward escalators per floor.

In the upper part, the load of the slab is supported by tension cables, and in the lower part, the load is reduced through voids.

Public green space leading from the surrounding ramp to the rooftop
Horizontal louver
Tension cables supporting the slab
Structure
Bathroom (LED Display Board)
E/V, Stairs (Glass)
Escalator
Slab cable

The structure, seems like the bone structure, supports most of the building’s load in place of columns. The six-unit form was decided based on the three-dimensional Voronoi shape (a three-dimensional figure divided into a set of faces with the closest distance to a specific point in the three-dimensional space), and then the specific structure was decided by modifying some areas where people move and the facade is connected.

The circular tubes that make up the Voronoi shape are finished with aluminum plates, giving them a softly curved shape. At the point where they meet the straight curtain wall, they are naturally connected as a diffuser, becoming a device that helps air conditioning. Depending on the structure, the thickness of the tubes varies, and it is expected that the empty space can be used to install air conditioning ducts, electrical/communication facilities, water supply, etc. As epartment store program which have a large cooling load, louvers and a double facade were used to reduce the burden.

Facade System

The large curtain wall facade is composed of three width units (1000mm, 2200mm, 2900mm). Depending on the needs of the program and the amount of solar radiation, patterns or colors can be added to block the view or control the incoming heat energy. Also it can be used as a pattern for the facade.

A diffuser was installed where the structure and the facade meet to facilitate air conditioning. A ventilation window for natural ventilation is installed near the diffuser, which plays a design and functional role. The diffuser and ventilation window are located in the center of the glass frame.

Width Options

A) 2900mm

B) 2200mm

C) 1000mm

Glass Material Options

1) Laminated glass

2) Semitransparent flat glass

3) Pattern glass (frost)

4) Pattern Glass (linear)

5) Tinted glass (grey)

Diffuser Hole Options

a) Hole

b) No hole

RIA Tower

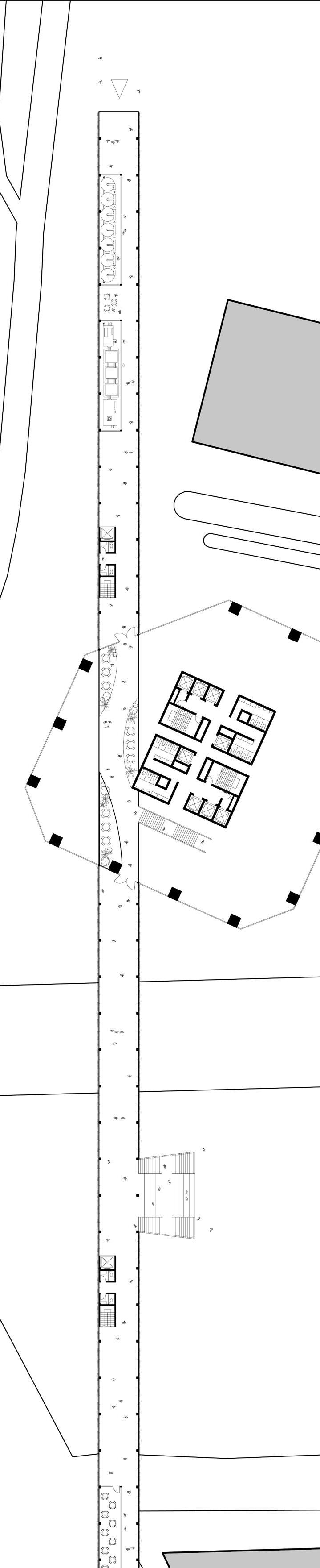
The floor plan of the office is in the form of a square grid with various curves attached to the exterior and interior atrium. A square grid enables an efficient workspace plan. In the curved part, programs suitable for each type are entered, for example, transparent elevators, restrooms, conference rooms, bathroom facilities, emergency stairs and elevators, private rest areas and terrace. Therefore, each space, especially the functional spaces located in the core, which did not have a good environment, can have a unique and good view with natural light. To prevent excessive natural light and heat from entering, vertical louvers are installed from the third floor and above. The bright rectangular-shaped louver is thinly inserted into the part where there is a facility between the

slabs, creating a thinner and cleaner image of the slab. In addition, it visually separates the open lower floors from those on the 3rd floor or higher, centered on office users.

‘Ria’ is a submergent coastal landform, often known as a drowned river valley. The RIA tower has a planar shape similar to that of the ria. Just as the part where the ria meets the sea is larger than the general topography, this tower has a special feature that the part where it meets the outside is much larger than other shapes with the same area. Therefore, most office users can sit by the window and enjoy individual views, light, and ventilation. This will also help to form a horizontal corporate culture.The atrium, which runs from the roof to the basement, enhances the central indoor environment darkened by the complex windows. This shape makes the office bright and transparent.

ria comes into contact with the outside air more than other buildings of the same area. The area of the passive zone where natural ventilation occurs naturally also expands. As office buildings require more cooling energy than heating energy, natural ventilation will significantly reduce energy usage. Even if all sides are made of glass, energy use will not increase significantly if energy-efficient low-e glass is attached.

To prevent excessive natural light and heat from entering, vertical louvers are installed from the third floor and above. The bright rectangular-shaped louver is thinly inserted into the part where there is a facility between the slabs, creating a thinner and cleaner image of the slab. At the end of the slab, outside air is drawn in, ensuring that users always feel comfortable even though the building does not have openable windows. To minimize the load of the building, a hollow slab was used. Also the air conditioning unit was installed on the floor rather than the ceiling, allowing efficient cooling even in the atrium.

At the end of the slab ceiling finish, curved anodized aluminum was installed. At night, it reflects the light from the line type lights installed below to give a soft glow, and blinds were installed to hide it from view indoors, providing functionality.

BRUR SYSTEM

Robot+City Project Project / Competition (2023) / Group Work (2 members) (Role : Site analysis, Rendering, Concept study, Robot/module modeling) *Selected work

The theme of this competition is the application of new technologies to architecture. We chose a self-replicating robot based on the von Neumann hypothesis. Von Neumann, who first mentioned the technological singularity, proposed the idea of a special probe called the Von Neuman probe. This probe is a very small probe that can self-replicate and can start the work of developing space through an exponential growth of the population.

A study on self-replicating robots conducted at a research lab at MIT suggested that it could become a reality.

The research team opened up the possibility of biological self-replicating robots by adding self-replication and the concept of hierarchy, which is the combination of larger robots, to the existing modular robot system.

They created a three-dimensional voxel unit with a flat unit and completed the robot with accessories that provide functions such as rotation and fixation between voxels.

We believe that these biological self-replicating robots will make space exploration possible. We think that if we put a few biological robots on a rocket and send it into space, they can create voxels from the materials of the planet or star they arrive at, and can create robots using these voxels to self-replicate or build structures

for buildings. This is about creating an environment for humans in a harsh environment where humans are difficult to operate, and we want to propose a flexible city that edits space according to population changes and demands using this system.

Planar Unit Accessories
Voxel Unit
Robot

Site Selection: Mokpo (South of Korea)

The place we decided to set as the site of the flexible city is the old downtown area of Mokpo, around Mokwon-dong. It is the lefst side area on the map. Mokpo started as a planned city and once experienced population growth, but it has not experienced much growth since immediately after liberation. Since the construction of Hadang New Town in 1993 and Nam-ak New Town in 2005, the population of the old downtown area has continuously flowed out, and it has been experiencing serious decline.

Site Problem: Doughnut pattern

We define the Mokwon-dong area, the old downtown area of Mokpo, as a shrinking city, and we want to respond to issues such as population decline/downtown hollowing out/lack of education infrastructure. In particular, we set the Mokpo Tween Tower, the only high-rise tower located in the center of Mokwon-dong, as the center of the system, so that the system can be applied well throughout the city. In order to imagine various urban changes, we selected four additional buildings other than the tower.

A three-dimensional voxel was created from a flat unit, and a robot was created using accessories that provide various functions to the voxel. The number of robot units changes according to the unit circulation process. In the main tower, you can see the size of the residential space for people (white) and the space for robot units (blue) changing depending on the time of year.

These robots travel between the tower and the city, changing the city according to the population. During periods of population growth, robots are created using units produced in the tower, and residential spaces are created by mining resources from unused

Circulation Process

buildings or nature. On the other hand, during periods of population decline, robots that are no longer needed are disassembled and stored in the tower as units, and abandoned houses are demolished on their own to organize the cityscape.

This is the city center changing according to the commands of the tower. In Mokpo, there are many empty houses that the owners do not dispose of due to cost issues or neglect due to difficulties in management. The possibility of development in various forms was indicated by providing motivation for redevelopment through vertical expansion, suggesting various types of space using existing structures, and suggesting different types of residential spaces for each generation.

Old House Vertical Extension
Commercial : Vertical Extension
Apartment : Structure-based Renovation
Warehouse : Pavilion, Semi-outdoor space

CITY BRIDGE

Project / Year 4-2 (2022) / Architectural Design Studio 6 (NUS) / Personal

The City Bridge started with the URA’s plan. South of the site, the current port is planned to be moved to another location in the future, and that site suddenly becomes empty. The area is close to the sea and has very high real estate value through a good view. If I connect the area to the site, the real estate value of our site will also increase. Therefore, with the goal of masterplan by 2080, I propose a city-scale bridge that connects the site and the south side of the site, and eventually the sea.

Fishing Village

According to the Malay Annals, there was a village under attack by a group of swordfish. To prevent this, a banana stem barricade was erected, and the “Pagar” or “stakes” in the toponym “Tanjong Pagar” came about due to the barricade.

Business & Commercial Centre

Tanjong Pagar is the starting point of the maritime industry that has played an important role in Singapore’s development, currently contributing about 7% to GDP growth and becoming a global hub connecting 600 ports in 120 countries.

Harbour & Port

Technological advances in the late 19th century prospered Singapore’s trade activity. A wharf was built at Tanjong Pagar for geographical advantage. In 1905, the government purchased a privately owned dock and operated it as a PSA.

Greater Southern Waterfront (Plan)

Once the leases of the ports expire in 2027 and are subsequently moved to the Tuas Mega Ports, the freed-up space will be created. Also newer residential and commercial districts will be built along the coastline which will stretch over 30km from the waterfront promenade that connects Labrador Park to Gardens by the Bay.

2023, Present
2055, Future
Future
Site History

Direction

Because the bidge is very long, fine control of direction was very important. The current alt.1 has been selected. Alt.1 follows the greed of the city relatively well, and naturally leads people to the park, allowing for the influx of people. In addition, it was able to connect to the sea efficiently because it was vertically facing south.

Key Dimensions

Program Flow

The bridge’s long shape looks like an urban hose connecting the sea and the city center. Once fully extended, it will evolve into a method of recycling water used within the city instead of rainwater, collecting rainwater collected from surrounding buildings, and even using seawater.

Reusing rainwater is the other role of the bridge. Rainwater collected from the long roof is stored in an indoor water tank. The stored water is filtered at a water purification facility and then reused in many places. The cleanest water immediately after purification is used as agricultural water in vertical farms, and then it can be used in toilets or outdoor fountains.

1. Main Entrance

It naturally connects with the sloping park located above, allowing people to easily access it.

2. Rainwater tank, purifier

Passengers can see how rainwater was collected and purified, and there is a studying space to introduce related content. Through this, understanding and trust in the water purification process will be developed.

The last is looking out to the sea from the end of the bridge. At present, the sea cannot be seen close, but in the future, it will become a bridge to the sea directly.

3. Core

In addition to the main entrance, people can enter the bridge via the core part consisting of stairs, elevators and bathroom. Cores are placed at a reasonable distance away from each other and can be seen on the ground plan.

It is the part connected to the existing building. It is connected to the second floor of the existing three-story building. A green area was created near the junction and automatically managed through rainwater.

The bridge passes under a large overpass, which is filled with soot from many vehicles. Therefore, for the sake of comfort, plants that are good for air purification are grown along the louvers. Of course, plants grow with rainwater that the bridge collect.

4. Office Connection

It is the part connected to the office building. It is a building currently under construction and has been applied to my project with slight modifications. A bridge passes through the lobby. There is also a staircase leading down to the lobby. Above the bridge, a garden was planned for office users.

5. Stair Square

5 is the square located in front of the hotel. I took the red staircase in Times Square as a reference. There are wide stairs and high steps to sit, so people can rest or sit to watch performances. I also placed a fountain and water space around it so that rainwater can be reused here.

It would be more reliable to see rainwater being used for agriculture. In addition, unlike other major parts, the rainwater tank and water purifier, the restaurant and the farm were planned as an indoor space separated by glass, rather than an external space with only louvers for safety and comfort.

It is a space where you can taste food using vegetables grown with purified rainwater in the Mini Vertical Farm, which is right next door.

7. Mini Vertical Farm
6. Restaurant
8. Vertical Garden
9. Green Curtain
10. End / Ovservatory

KIND OF POCKET

ARRANGEMENT 2 - 1/500

Kind of pocket is a double expression, the meaning of ‘friendly’ and the meaning of ‘sort’. Thus it means a friendly pocket or several types of pockets. Site is an old area in the center of Itaewon. It has a cultural aspect where various foreigners and minorities live together, and a geographical aspect blocked by low buildings on three sides. Therefore, the site was expressed in the form of several hands clasping something.

Like the site, I also wanted my project to be like a person who looks cynical on the outside but has warmth on the inside. From a distance, it looks like a simple box-shaped building, but various functions are hidden in a pocket. Also the square grid is slightly bent to add warmth.

Abstraction of the first impression of the site

Gallery personification

Gallerty Project / Year 3-1 (2021) / Architectural Design Studio 3 / Personal Drawing Specifiaction / Year 5-2 (2023) / Architectural Design Studio 8 / Personal

Drawing - Section 1/2

Sewage manhole details
Slab/ beams/ columns/ wall schedule
East Elevation

POURING STARS

Pavilion Project / Year 2-2 (2020) / Design Fundamentals / Personal

Star Flow is a pavilion in the yard of MMCA (National Museum of Modern and Contemporary Art) Seoul Center. It consists of about 500 modules, which has a star shape based on an octahedron. As you pass the main road in the middle, you can see the sight as if the stars are pouring down from side to side.

Planar Figure

Boundary Fold in Fold out

Pavilion has a 3 kind of unit. The first one, unit A is a basis unit. Unit B is a connector which connect two basis unit. The last one is unit C. It consist of 12 basis unit. And it became a unit of the ‘Star Flow’.

Villa (Sa)Voyage

(SA)Voyage is a model that reinterprets the Villa Savoye house. The existing architectural sequence(architectural slope) is divided into 10 to express each moment. From the moment you enter the forest and discover a house in the distance, to the final rooftop garden. The length of the slope is determined by the duration of the sequence, the width of the slope is determined by the illuminance, and the objects on the slope represent each sequence.

1:100 Scale Model Paper / 1000*900*640mm / 2020
Villa
Model Making / University Workshop (2024) / Group Work (4 members, Group leader)
(Role : Concept study, Model making, Pamphlet drawing)

Glancing Dunes

Kazuo Shinohara, Tanikawa House, 1972 (original) 1
Editied Tanikawa House; no walls, natrual dirt floor
Sand, foundation and pillars
Roof structure and the way to use furniture
House Project / Architectural Association Vising School (2023) / Personal

BENCH PLANE

Unlike three-dimensional art such as sculpture or architecture, a painting exists on a single plane. This is called the picture plane(flatness) and it is a unique property that only paintings have. The bench plane maximizes flatness using the vertical force of the pipe between the ceiling and the floor. Unlike general furniture that has at least three legs and get a three-dimensional shape, it has five legs on the floor and ceiling, and all legs are located on the same plane. We propose a picture-like-bench using only thin pipes and steel plates.

Furniture Project / External Workshop (2024) / Group work (2 members) (Role : Concept study, Design development, Plan drawing, Pipe bending, Assembling)

Turn static files into dynamic content formats.

Create a flipbook
Issuu converts static files into: digital portfolios, online yearbooks, online catalogs, digital photo albums and more. Sign up and create your flipbook.