






![]()







n. satu rasa
Kebun Serasa menggabungkan konsep food garden dan
farmers market, fokus pada pem
Desa Pakembinang
ekonomi dan sosial bagi pet
melalui pemasaran langsung k
Interaksi ini m
tentang konsumsi mereka.










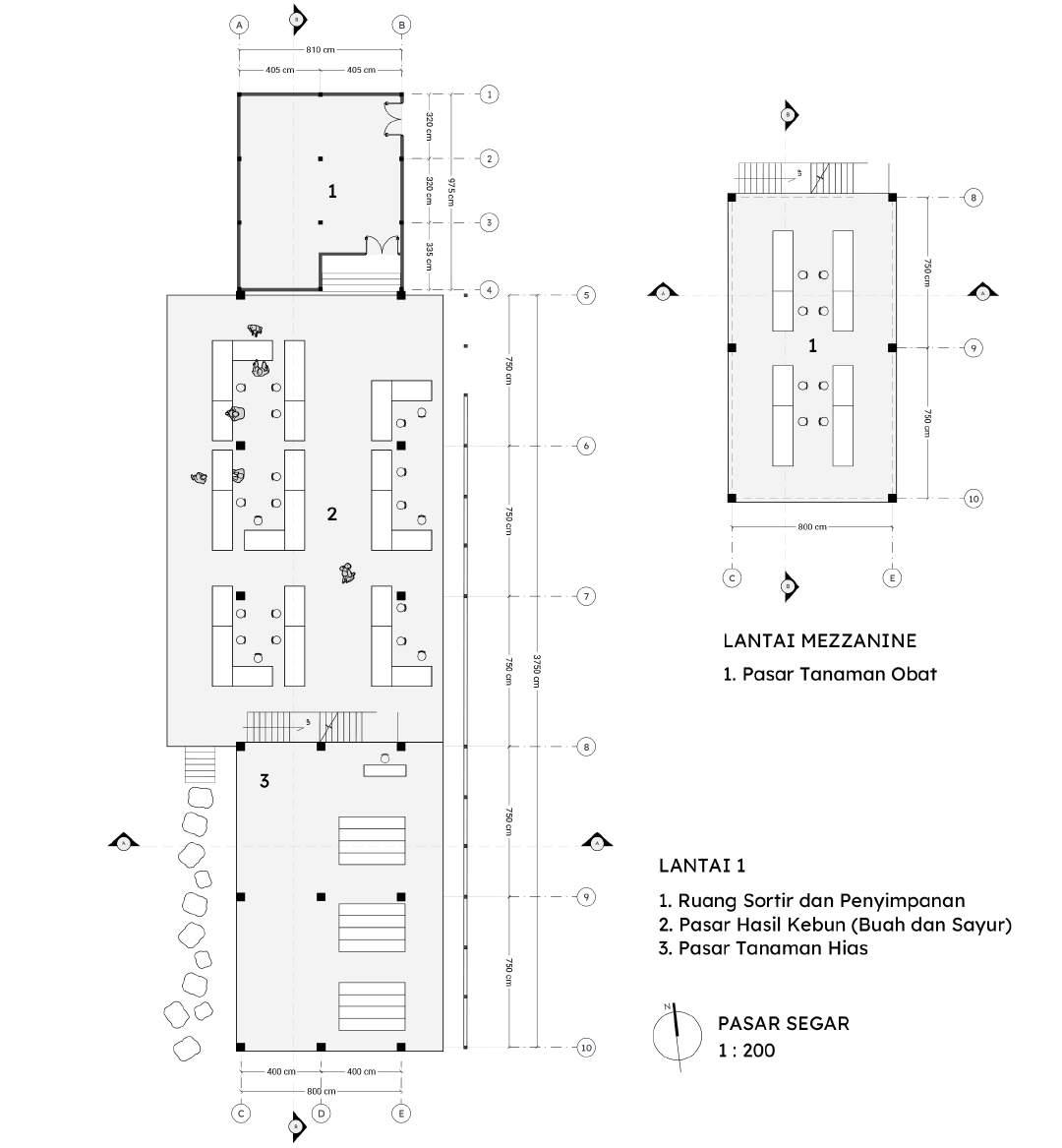
Gudang & Sortir 1.
Pasar Buah & Sayur 2
Pasar Tanaman Hias 3.

Pasar Tanaman Obat 1.

1 : 200
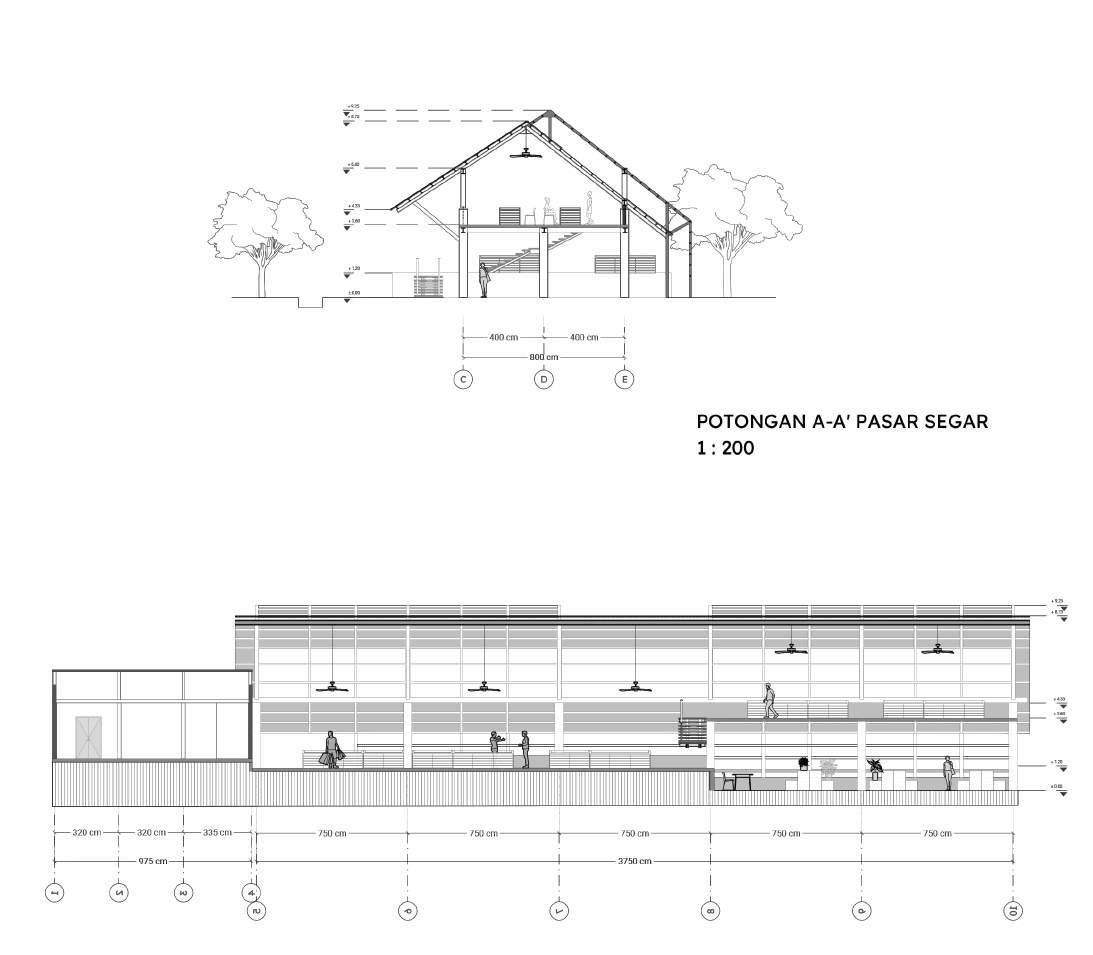
POTONGAN A-A’ PASAR SEGAR
1 : 200

POTONGAN B-B’ PASAR SEGAR
1 : 200




1 : 150


DENAH RESTORAN
1 : 150


DENAH RESTORAN
1 : 150


Ruang wo
UMKM dan
berbagi
wisatawan
untuk mem
lokal dan
gunakan.
berfungsi
untuk
mengena
pengelola
pengemb
kualitas pr

Ruang ini mendukung kolaborasi antara pelaku
UMKM, petani, dan masyarakat sekitar untuk
menciptakan ekosistem yang saling
mendukung dalam pengembangan ekonomi
lokal.
Panel partisi rotan dipadukan dengan material
semi transparan (PC). Untuk acara workshop
yang lebih besar, kedua ruang dapat digabung.
Namun, ketika ada dua workshop yang
berlangsung bersamaan, partisi dapat ditutup
untuk memisahkan ruang, menjaga privasi dan
kenyamanan tiap ruang tanpa mengganggu
satu sama lain.






































