Portfolio Abdoul Moumine

Page 1

Ide
ARCHITECTE
P RTF LI O O P RTF LI O O O
Seyni Abdoul Moumine
DESA

IDE SEYNI Abdoul Moumine Architecte DESA

Curriculum Vitae

Passionné d’Architecture, j’ai un parcours supérieur assez atypique.Un parcours m’ayant fait découvirir plusieurs cultures ainsi que diverses manières de concevoir selon les contextes. De l’Afrique subsaharienne à la France en passant par le Magrheb, j’ai acquis une richesse architecturale et une maturité à travers les travaux d’équipes au cours de mon cursus, de mes stages, des concours auxquels j’ai participé ainsi que mon début de parcours professionel.

COORDONNÉES

25-37 Rue Jean Hemard, 94000, Creteil

Ideseynia@gmail.com

https://www.linkedin.com/in/ abdoul-moumine/ https://issuu.com/home/published

INTÉRÊTS

EXPERIENCES PROFESSIONELLES

Atelier 15-4 à Neuilly Plaisance.

Jan 2023 à aujourd’hui _Assistant chef de projet CDD.

Conception de maisons individuelles et d’immeubles de logements. Esquisses (ESQ) et Dépôt de permis de construire (DPC) Dossier de consultation des entreprises (DCE). Rendus 3D intérieurs et extérieurs. Visite de chantier et compte rendu. Dossier PRO et DCE. Reunions clientèle.

Direction Générale de la Protection Civile du Niger (DGPC).

Juil-Nov 2021_Stage PFE

Sensibilisation des populations sur les risques des inondation, Enquête auprès des sinistrés, réflexion sur l’architecture d’urgence et sur le double habitat.

Saisie des données des inondations en cours et contribution à l’élaboration du rapport final.

Laboratoire National des travaux publics et du bâtiment du Niger. LNTP/b

Dec-Jan 2021_Stage junior

Tests de compression sur des échantillons de béton de 7 et 28 jours. Réalisation de différents essais granulométrie, poids spécifique, densité apparente, d’équivalent de sable et Proctor. Dosage du béton et contrôle sur chantier.

AMAA Architecture Aménagement à Niamey.

Jan-Fev 2020_stage d’imerssion

Assistant chef de projet : Conception d’une maison individuelle R+1 APS/APD rendus 3D et d’un centre de formation en R+1 ESQ/APS_ rendus 3D (Revit+lumion). Visites de chantier et compte rendu.

Agence internationale d’architecture à la Défense: PIRATHSEH ZAD

AOût 2020_stage d’ immersion

Lecture

Football Graphisme Art

Voyage

LANGUES

Français

Anglais

Arabe

Zarma et Haussas

LOGICIELS

Revit 2D/3D

ArchiCAD 2D/3D

AutoCAD 2D Sketchup

BIM 360

Lumion

Photoshop

Indesign/

Illustrator

Microsoft office

Qgis

COMPÉTENCES ET APTITUDES

Sens de l’organisation et de la polyvalence

Sens de l’éthique, de la confidentialité et du professionalisme

Aptitude à travailler en èquipe et sous pression

Sens de l’abnégation et de la dévotion au travail

Curiosité, créativité et soif d’apprendre

Assistant chef de projet : montage d’un dossier de permis de construire d’un bâtiment de box de location. Plans _coupes_ façades (AutoCAD+Revit).

Perspectives de logements individuelles (Lumion+Photoshop).

MNG ARCHITECTURE à Villneuves St-George Juillet 2020_stage d’ immersion

Assistant chef de projet : Redaction de pièces écrites (CCTP/CCAP). Conception 3D d’une maison individuelle (Revit+Lumion+Photshop) Apprentissage des méthodes de recherches dans un PLU.

Agence d’Architecture Projedis Afrique. Juin-Août 207 et Juillet-Août 2018_Stage ouvrier

Conception d’une maison individuelle ESQ/APS (ArchiCAD) et rendus 3D sur Lumion. Relevé sur site et montage d’un dossier d’expertise immobilière.

DOMAINE ARCHITECTURAL

4e prix du concours Archijeunes 2023 de Valode&Pistre

L’hôtel urbain de demain.

RAM agora challenge, GHAR MELH en Tunisie.

Aménagement d’un quai à Bizerte en Tunisie.

Peace pavillon Kairaa Loro au Sénegal.

Conception d’un pavillon pour les femmes au Sénégal.

3e prix du Workshop: Transversal container à l’UIK Tunis

Aménagement d’un container en habitat mobil.

PARCOURS UNIVERSITAIRE

2022 Ecole Spéciale d’Architecture (ESA) de Paris. Master 2. Mention bien, Félicitations du jury

Ecole supérieure d’Architecture et Beaux Arts Ibn Khaldoun (UIK) à Tunis Premier cycle d’Architecture. Mention bien

2017

2019 Ecole Africaine des Métiers de l’Architecture et de l’Urbanisme(EAMAU) au Togo.

1ère année du premier cycle d’Architecture. Mention bien

T S E N N T C O T S E N N T C O 1 Résilience urbaine à Niamey M2_ESA-Paris P14-P27 2 Îlot commercial/Logements partagés M1_ESA-Paris P28-P41 3 Science center. S6_ESA-Paris P42-P51 4 habitat intermediaire L3_UIK-Tunis P54-P55 5 Bibliothèque L3_ESA-Paris P56-P57 P58-P61 6 7 Concours ArchiJeunes 2023 de Valode&Pistre. L’hôtel urbain de demain P04-P13
RECHERCHE
PARTIR
A LA
D’UN CONTRAT CDD A
DE SEPTEMBRE 2023 +33 7 58 12 02 36
2021 2023 2021 2020 2020 2020 2019 2023 2018 2020 2017/ 2018

Lieu de rencontre et de partage, l’hôtel est aujourd’hui plus qu’un simple lieu d’hébergement. Le concept empirique autour des hôtels consistant à accueillir uniquement des visiteurs de façon temporaire ne répond plus aux exigences actuelles. Cela conduit à une baisse de fréquentation de ces lieux au profit d’autres types de structure s d’accueil comme les Airbnb.

Pour répondre aux exigences de cette société en constante évolution, il est impératif pour nous architectes de ré-questionner l’hôtel urbain de demain dans le fond et dans la forme.

Avec l’avènement du Covid 19 l’inflation, la crise énergétique, ainsi que les enjeux climatiques l’hôtel doit répondre à des exigences en termes d’usage de confort et de service

Au-delà de sa fonction principale consistant à héberger temporairement, il doit selon nous être dès à présent un lieu de partage offrant aux visiteurs d’autres services et une immersion dans la culture locale.

Un hôtel peut aujourd’hui offrir une mixité de lieu à ses clients comme ’hébergement, le travail et le loisir, être authentique dans ce qu’il propose et permettre à son environnement proche d’y accéder facilement à travers des espaces en communs tels que des salles de coworking, de restaurations, d’apprentissage pour ne citer que ceux-là.

CHOIX DU SITE

Les départements d’île de France connaissent une croissance urbaine assez importante. La seine Saint-Denis depuis quelques années est dans une phase de développement urbain. Ce département sera au cœur des Jeux Olympiques de 2024 et sera doté d’un parc bâti conséquent qui est principalement constitué de logement et d’équipements sportifs. A cela s’ajouteront les nouvelles lignes de métros 15, 16 et 17 du Grand Paris Express. Malgré les potentialités dont dispose ce site, nous n’avons recensé que quelques rares hôtels offrant uniquement des services de bases. Les atouts et enjeux autour de cette zone de la métropole sont importants, il nous a donc semblé primordiale de nous y intéresser dans le cadre de ce projet.

Ce projet d’hôtel prend place dans la ville de Saint Denis, au 20 rue de Francis De Pressensé à 450 m du Stade de France et à 300 m de la gare de la Plaine – Stade de France. Toute la partie nord du site, en longueur, est bordée par la rue Francis de Pressensé et plus loin par

TEXTE EXPLICATIF DU PROJET CONCOURS ARCHI JEUNES II 2022 – 2023 TITRE DU PROJET : LA LIGNE COMME EPAISSEUR SERVANTE
1.
1.

Notre proposition comprend une chambre type qui se décline en trois variantes dont une chambre double, une suite et une typologie de chambre constituées de deux chambres adjacentes pour les groupes avec une spécificité de pouvoir se transformer en deux chambres de couchage séparées la nuit et en un seul grand espace la journée.

Ici, la parois ne jouent pas seulement un rôle de séparateur, elle endosse une fonction d'espace servant de rangement.

La fenêtre n'est plus un trou dans le mur, elle devient un espace où l'on peut travailler, s'assoir, se reposer, lire tout en profitant de la vue, de l'aération et de la lumière naturelle du soleil.

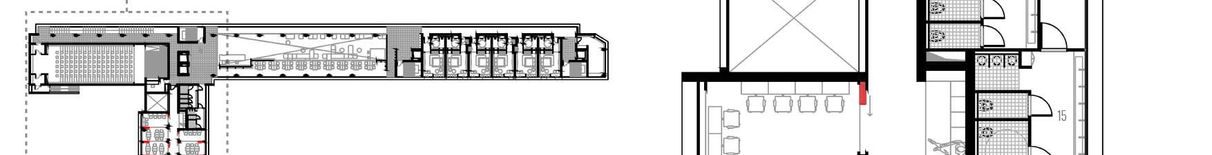
LEGENDE:

1: Entrée

2: Salle de bain

3: Toilette

4: Chambre

5 Séjour

6 Salle à manger

7: Kitchenette

8: Chambre simple

9: Chambre double

10: Suite

11: Atrium

12: Hall

13: Salle polyvalente

14: Espace de co-working flexible

15: Toilettes homme

16: Toilettes femme

17: Local technique

18: Podium

19: restauration/Petit déjeuner

20: Entrée du personnel

21: Escaliers et ascenseur de service

22: Salle de service

23: Local poubelle

24: Pass

25: Pâtisserie

26: Plonge

27: Préparation des plats chauds

28: Préparation des plats froids

29: Terrasse extérieure côté rue

30: Terrasse extérieure côté cour

31: Entrée parking

32: Entrée principale

33: Accueil/reception

34: Bagagerie 35: Lobby 36: Bar 37: Ouverture zénithale du parking 38: Parking 39: Vestiaire homme 40: Vestiaire femme 41: Cave à vin 42: Stockage 43: Chambre froide 44: Salle de pause

45: Bureaux des responsables

46: Buanderie d’hôtel

Parois mobiles

417 871 417 1160 417 1160 0 2 5 m VARIANTE CHAMBRE DOUBLE Echelle 1/50
2 3 4 2 3 4
CHAMBRE TYPE CHAMBRE UNIQUE

Résilience urbaine à Niamey

Plan masse projet

Vivre avec les aléas de l’eau... Changer de paradigme... Faire avec le local...

S’inscrire dans le temps...

Valoriser le potentiel local...

AU Niger pays sahélien, l’eau occupe une place importante dans le paysage urbain. La capitale Niamey s’est installée le long du seul cour d’eau permanent du pays qui est le fleuve Niger.

Ceci a conduit à créer une convoitise auprès des populations et bin nombres de gens se sont installés le long de ce dernier malgré le risque qu’il peut entrainer.

Eau source de vie et de production/ Eau source de catastrophes : Tel est le sujet de réflexion autour duquel s’est articulé des projet

Programme

1. Centre d’apprentissage

2. Stand de vente

3. Centre de recherche et d’administration

4. Parking

5. Collecte des dechets

6. Zone de tri et vente en gros

7. Halle de marché

8. Bloc de toillettes

9. Mosquée

10. Zone de production maraichère

11. Promenade et boungalow

12. Parcours de santé

13. Quai et zone d’entretien des pirogues

14. Le pont

15. Le fleuve

100 2. M2_ESA-Paris 1 2 3 4 5 6 7 9 8 10 12 14 15 11 13 8
16. Les habitations sur l’île 16 10m N

Déplacement des popualtions en cas d’inodation Déplacement des popualtions vers les marchés de la ville

Produire sur place...

Commercialiser sur place...

S’adapter aux inondations….

A travers cette intervention, nous avons l’objectif de changer de paradigme en inversant le sens des déplacements des populations au quotidien mais également en cas d’inondation.

14

15 11

Plan de niveau projet 6 7 9 8

10 12

1. Centre d’apprentissage

2. Stand de vente

3. Centre de recherche et d’administration

Programme 4 5

4. Parking

5. Collecte des dechets

6. Zone de tri et vente en gros

7. Halle de marché

8. Bloc de toillettes

9. Mosquée

10. Zone de production maraichère

11. Promenade et boungalow

12. Parcours de santé

13. Quai et zone d’entretien des pirogues

14. Le pont

15. Le fleuve

13 8 16 N

10m
16. Les habitations sur l’île 1 2 3

Mettre en valeur les sites de production... Mettre un projet pour les femmes de l’île... Transmissions de savoirs...

Dans ce contexte deliact pour les femmes, nous venons mettre en place un projet qui npermettra aux femmes d’être réellement au coeur du projet et non d’interveni à la fin de la ligne de production. Grâce aux differentes installations, les bvenéficiaires de ce projet pourront produire, transformer et commercialiser leurs produits sur place.

Au dela du cycle de production et de vente, le projet est conçu de telle sorte que le shabiatants de l’île puissent resté sur place en cas d’inondation. Cela evietera un aflut massif des sinistrés sur des sites qui ne repondent aucunement a des besoins d’hygiene et d’intimité.

Le projet se veut etre une vitrine ou un prototype de r’esilience pour repondre aux problèmes relarifs aux inondation tout en mettant en contribution au maximum les produits et latériaux locaux.

5m Évolution du paysage urbain 1960-1962 1962-1974 1974-1980 1980-1988 1988-1999 1999-2014 Halle marchande Centre de formation Pont +0m +1.5m +5m
Produire,transformer et apprendre
Fleuve
Parcours sportif Production maraichère
Fleuve Boungalow

Rapport du fleuve à la production

Le végétal a considerablement évolué dans la ville de Niamey. Ainsi d’une verdure essentiellemtn constitué d’arbres plantés pour consitituer une ceinturen verte pour la ville nous nous retroouvons aujourd’hui avec une verdure de production.

Cette végatation évolue fortement le long du fleuve le long duquel s’est accentué une production agricole.

5m Pont +0m +1.5m +5m Centre de formation
Stand Administration

Centre d’apprentissage

Autour de l’arbre....

En faisant référence à l’arbre à palabre autour duquel se débattent tous les sujets du village, nous venons implantés notre centre de formation et d’apprentissage dédié prioritairement aux femmes. Ce centre est formé par des salles isolées tout en étant interconnectés à traves des passerelles. Celles-ci serviront de quai car étant surélevées avec un socle en béton, les salles pourront fonc-tionnées en période crue.

Les parois des salles sont en blocs de terres comprimés avec un traitement permettant une ventila-tion et un éclairage naturel.

La toiture est quant à elle en chaume disponible localement.

11.Toiture en chaume 10.Solives en bois 9.Grillage anti moustiques 8.Pannes en bois 7.Poutre en bois 6.Poteaux en bois 5.Pied de poteau en acier 4.Structure poteau-poutre 3.Mur en briques de terres compressés 2.Poteau en béton (30*30) 1.Semelle isolée en béton
11 10 9 8 7 6 5 4 3 2 1
5m 5m Ouest +0m +0m 1 2 3 4 5 6 7 8 9 10 11 +1.5m +1.5m +4.5m Est

Stand de vente

Formaliser l’informel...

Les marchés de la ville étant bondés de vendeurs ambulants occupants généralement les voies, nous avons voulu dans ce projet à travers des structure simples faisant référence aux tentes tradi-tionnelles permettre à ces derniers d’occuper formellement le marché. Ces tentes permettront à ces vendeurs ambulants d’exposer temporairement leurs produits et cela à des prix accessibles. Les parois étant amovibles, ils pourront bénéficier d’une partie de stockage en bas et une zone d’étalement en haut.

Cette structure est également pensée pur répondre à des besoins en cas d’inondations.

13.Toiture en chaume 12.Support toiture en bois 11.Poutre en arc en acier 10.Support poutre en V 9.Système de poutre en bois d’eucalyptus 8.Élement d’assemblage poteau-poutre en U 7.Poteau en bois d’eucalyptus 6.Pied de poteau en acier 5.Poteau en bois 4.Cloison en bois 3.Muret en béton 2.Poteau en béton 1.Socle en béton 13 10 12 11 8 9 6 5 4 3 2 1
5m 5m +0m +1.5m +0m +1.5m

Détente et découverte

Valoriser le potentiel paysager...

Dans notre optique de mettre en valeur les ressources locales nous avons voulus offrir des moment de pauses et detentes sur les berges du fleuve ou le paysage verdoyant est à couper le souffle. Pour fcela, nous avons pensé a des boungalow qui longent la bordure du fleuve marquanr la fin du parcours sportif.

La structure est béton pour les piliers et le plancher bas. Les boungalow tiennent grace a du bois d’eucalytus assemblé à mis bois et la couverture est elle en chaume.

10.Toiture en chaume 9.Pannes en bois 8.poutre en bois d’eucalyptus 7.Poteau principal croisé 6.Pied de poteau en acier 5.Poteaux secondaires croisés 4.Plancher en béton 3.système de poutre en bois d’eucalyptus 2.Elément en acier 1.Pieux en béton 10 8 7 9 6 5 4 3 2 1
+0m +2m 5m

Entrée de ville

Logement mixtes et espaces de partages

Situé au Niveau des sept îles à Montfermeil, ce projet consistait à repenser l’entrée de la ville marquée par le centre commercial d’Auchan et son parking formant un grand ensemble imperméable. Ce site est également traversé par un parcours historique qui est la promenade de la Dhuys. Notre projet consistait à marquer cette entrée en mettant en place un îlot commercial en proposant une diversité programmatique. Les rez de chaussée étaient dédiés à des programme de proximité tels que des cafés, une pharmacie et une boulangerie. Les étages quant à eux sont dédiés à des logements partagés et des duplexes tout en bois pour des familles directement connectés à la place et la promenade de la Dhuys à travers une série d’escaliers sur la façade.

A la porte des sept îles

M1 P2020_ESA Paris 3.
10m N
2.
Plan R+1 Plan R+2 10m N Plan R+4 Plan R+3 10m N

Rapport visuel

Un parcours recadré

Coupe transversale 10m

Coupe de rive au 50e

Coupe de détail au 20e

Poteau porteur

Vitrage isolant

Isolant

Semelle

Salle

5m

Promenade sur l’acqueduc des sept îles

4. Science center.

L3-S2 P2020_ESA Paris

Le projet urbain consistait à retravailler les limites du parc Hessischels de Darmstadt qui sont mal définies. Nous avons au total quatre projets dont les trois viennent occuper la frontière séparant la ville au parc. Il s’agit d’une extension du musée, un complexe pour la petite enfance et des logements.

J’ai pour ma part pris le parti de m’implanter dans le parc avec un centre scientifique faisant le lien entre la place du musée et l’université de Darmstadt. L’idée était de crée un bâtiment dans les arbres et d’exploiter le potentiel qu’offre le parc en terme de vue.

Ainsi le rez de chaussez sera complètement vitré, le premier étage étant dans les feuilles aura plutôt des ouvertures qui s’adapterons a cette lumière tamisée et la toiture profitera de la vue que laisse la canopée des arbres.

Les axes est

Analyses

Les axes sud-est

Rencontre des axes
Zone de rencontre

Le projet urbain

N 10m
5m N
Rez de chaussée
Coupe transversale Coupe longitudiale 5m 5m

1:Chape

Ambiances. Détails façade
béton
corps
Dallettes
de fixation
de fixation
Panneau metallique
industriel
fixation
horizontal 11:Double vitrage 12:Enduit 13:Retombée poutre 14:Béton 15:Planelle 16:Pare pluie 17:Semelle
int/ext.
2:Garde
3:
4:Couvertine 5:Structure
6:Equerre
7:
8:Plancher
9:Equette
10:Meneau
Relation

Détails puit de lumière. Vue sur accès principale

1:Garde corps 2:Dallettes 3:Chape béton 4:Etencheité 5:Equerre de fication 6:Retombée poutre 7:Meneau horizontal 8:Double vitrage 9:Meneau vertical 10:Equerre de fixation 11:Retombée de poutre 12:Complexe d’etancheité 13:Chape 14:Plancher industriel 15:Isolation

Habitat intermediaire

L3-S2 P2019_UIK Tunis

Entre privé et public...

Situé sur les berges de Tunis le long d’un canal, le projet consistait à créer un cadre de convivialité pour des familles tout en ayant la possibilité de vivre en in-timité. Il s’agit là de proposer un habitat intermédiaire dans un contexte ou l’habitat individuelle est majoritaire. Mon projet avait pour but d’utiliser au maximum le potentiel qu’offrait la parcelle sur la canal tout en créant des ruelles intérieur bien aménager afin que les résidant puissent avoir des lieux de sociabilités et d’échanges.

Distribution au rez de chaussée

5.
10m N
Coupe transversale Vues sur le canal 5m GSPublisherVersion 0.90.100.100

Workshop: Transversal container

Ce workshop lancé par l’université Ibn Kalhdoun de Tunis consistait à proposer un aménagement d’un container en une journée. Nous étions un groupe de cinq pour ce concours à l’issu duquel nous étions troisième.

L’objectif étant de maitriser l’espèce et de proposer un aménagement respectant les normes et qui présente une certaine qualité de vie. Nous avons proposé pour cela un container sous forme de camping qui permettra à son propriétaire de se déplacer avec sa maison en cas de besoin.

Plan de Toiture

Coupes

Groupe:

-MANASSE Abdou

-Rabo Oumarou

-HASSANABI Mansour

-MOUSSA ABOU Ramadan

-IDE SEYNI Abdoul Moumine

Organisation interieure

Insertion paysagère

6.
10m
L2-S2 P2020_UIK Tunis 10m Espace nuit Espace jour

Expression plastique

Expression et mode de représentation: Expression

plastique

1ere année (EAMAU) et 2eme année (UIK) du premier cycle.

Voici une sélection ce quelques travaux réalisés au cours de cet atelier

Ayant pour objectif d’initier l’étudiants aux différentes techniques

De représentations.

7. Arts works.
Croquis aquarelle Replique en acrilyque @image google
Composition en arts plastiques

Atelier de croquis

Cet atelier servait d’appui à l’atelier d’architecture. Mettant en avant la representation graphique , cet atlier avait pour objectif de permettre à l’étudiant d’arriver a representer graphiquement son projet architectural dans son contexte. Nous mettons en scène sur ces differents croquis un parcours mettant en exerge les differents amenagements et ambiances que nous créons.

URELIE GODARD

2 3 4 5 6 7 8
AUTOMNE 2019.ESA-PARIS Groupe; Hugo LEMBCKE, Pierre LEBLAY et IDE SEYNI Abdoul Moumine
@plan masse projet Angers 25m 1 2 3 4 5 6 7 8
N
L3-S2 P2020_ESA Paris
Ide Seyni Abdoul Moumine P RTF LI O O P RTF LI O O O MERCI. +33 7 58 12 02 36 Ideseynia@gmail.com https://www.linkedin. com/in/abdoul-moumine/

Turn static files into dynamic content formats.

Create a flipbook
Issuu converts static files into: digital portfolios, online yearbooks, online catalogs, digital photo albums and more. Sign up and create your flipbook.
Portfolio Abdoul Moumine by ideseynia - Issuu