Faisal Zulkarnaen_Portfolio 2024

Page 1


ARCHITECTURE + DESIGN PORTFOLIO

PREFACE...

This portfolio is a showcase portfolio that attempts to chronologically present my academic achievements and work process, in order to be reviewed as part of an evaluation of my progressive body of work.

It collates renderings, photograps, graphics visuals and original artwork, displaying not only educational experiences, but also skills acquired and put to use towards basic and advanced mastery

ARCHITECTURAL DESIGN

MIXED-USE BUILDING + PLAYGROUND + INTERIOR + LANDSCAPE

HONG KONG

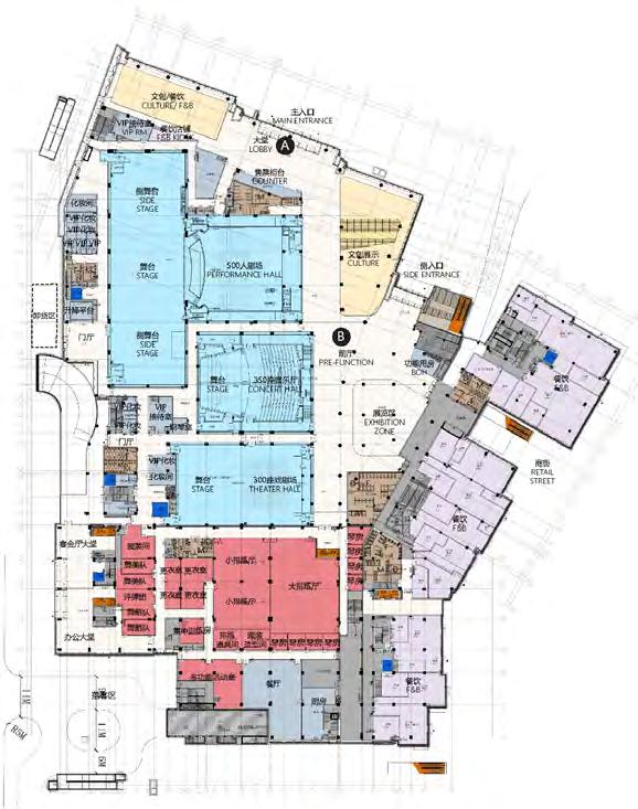
WUXI PLOT-3 MIX-USE BUILDINGS

This commercial building complex is an extension of the existing mall complex in the next plot connected to the Wuxi Theater. It consists of 5 story of Mall, 4 Office Towers, Retail Street buildings, and Cultural Center. Three levels of Glass-box in the middle of the mall accommodate the users to see the entire site of buildings and the Wuxi Theater that surrounded by Wuxi Lake.

Implementing 4 types of materials to retail street’s facade that comes from local values: tiles, terracotta, brick, and wood. Interpreting them into patterns that merges Wuxi’s local material value and contemporary design. This Retails Street goes along connecting the mall, office towers, and cultural center around it. The big sunken plaza between F&B shops and Mall is giving the juncture of space creating interlocking area for users having their time in this shopping complex. Urging them to spend more in terms of money on this commercial plot.

Wuxi, China

EYE OF WUXI

China

3-levels height of Glass-box is put in the middle as an “eye” to anchor the wings and to attract user flows from retail street complex leading them to the mall. Applying modular pattern both in main entrance crown and other crowns as an intention to give dynamic facade together with cost efficient at the same time. 2 types of Terracotta modules are applied in the MainEntrance crown, and 3 types of Aluminum modules are applied to other crowns to form an interesting pattern.

Wuxi,

ELEVATION DETAILS

WUXI CULTURAL CENTER

Wuxi, China

It’s an extension of the plot that connects the shopping complex to the Wuxi Theater in front of it. Accommodating performance from the small to large scale stage. In its behind, it connects to retail street complex and there is also connected seven levels of tower to accommodate the performers and/or guests as a dormitory. The stone facade enclosed a multi-levels story of glass facade, with accessible rooftop that integrated in landscape that also provide an observation deck to see the Wuxi Lake. Modular patterns are applied into front & back facade wrapping those “3 masses” of building become a whole enclosed massing.

NANJING DAJIAOCHANG MALL FACADE- PLOT A

Nanjing, China

The Terracotta facade is applied to all sides of the mall. Since the massing of the building is simple and consists of big chunks of boxes and big surfaces, parametric pattern is a way to break these humongous canvases. Modular terracotta panels are arranged in some way that it rotated from 0-degree to 45-degree opening creating a dynamic visual impact as it will have different visual perception depending on where people stand to look at it. The parametric “brick” facade is applied as a secondary pattern using aluminum to give the depth to the terracotta facade behind. And additional glazing is put randomly in some of terracotta panel units giving interesting texture in the facade.

Terracotta Modules and Pattern

Thera are 6 type of modular terracotta panels with some of type is being glazed to give some depth and different reflection with the others. Some of modules are combined to be a certain unit that its logic is applied to the facade together with rotated modules. Each elevation has different flow and direction of pattern but keep using the same logic of units and modules.

GUANGZHOU-SHIPYARD MASTERPLAN DESIGN

JINMAO MALL PROJECT DESIGN

Tianjin, China

Tianjin became the frontier of opening up in northern China and the base of the modern Chinese Westernization Movement. After more than 600 years, Tianjin became a combination of Chinese and Western culture, ancient and modern. Also, Tianjin was developed for water transportation in ancient times. After the middle of the Tang Dynasty, it became a land and water terminal for the transportation of grain and silk from the south to the north of China.

This building is show-casing how Tianjin as culturally merged between Chinese and Western culture, as in building form and shape, it shows wavy and pointy curve as a represent that Tianjin is a water terminal in ancient times.

BRIDGE AND WATER

The facade of this building echoes the shape of bridge and water. they can be seen in the curvy and pointy shape of the skin of building. The parametric panels are also applied on car park area in wavy and flowing arrangement.

Setting up a wide range of node of commercial on entrance to drive flow of people.

Connecting the front and back entrance into single line as interaction between inside and outside.

Putting the car-park on the east side of building for the best accessibility, connecting from subway station and pedestrian bridge.

3 atriums are connected as breaking points, so people won’t move in too long distance. 2 entertainment spots are in the end of both sides of building. to drive the flow of people.

HARBIN MALL FACADE RENOVATION PROJECT

Harbin, China

With its often-harsh winters, Harbin is heralded as the Ice City for its well-known winter tourism and recreations. Harbin is notable for its ice sculpture festival in the winter. This design echoes Harbin City’s strongest signature as Ice-city. The existing building has four separated building masses. the new design, enclosing all those masses into one integrated building with towers. Cubical masses are stacked each other with snow-flake-like fritted glass as an effect of stacked ice cube that are applied into the podium of building and the towers.

STACKED ICE-CUBE

EAST-JINJI LAKE COMMERCIAL PROJECT DESIGN

Suzhou, China

The design is responding to Jinji Lake as an ecological coconstruction. It creates an urban space full of unique culture in Suzhou. It focuses on luxury top shopping malls, leading to international top lifestyle benchmark of future Central Business District.

VILLAGE ON THE MOUNTAIN

Building masses are scattered in “mountain” and forming layered terraced landscape. The village is an integration between commercial streets and mall, forming enclosed roof as a pathway that direct people to top of the mountain, where they will find observation deck on top. Bringing white on its architecture materials, combining with green from greeneries to enhance the sense of “mountain” in the design.

SCPG SHENYANG FACADE RENOVATION PROJECT

Shenyang, China

Architectural composition inspired from mass production of repetitive parts produced by factories. Geometry duality from inside and outside of aircraft. Smooth and streamline on the outside, wrapping, containing, including a large amount of repetitive high-tech components. Shenyang fc-31 as an inspiration of streamline design made of multiple high-tech components.

The J-5 is a single-seat single-engine first-generation fighter jet copied in the 1950s by state-owned 112 Factory in Shenyang, China (now known as Shenyang Aircraft Industry Corporation of China aviation Industry Corporation). It is the first highsubsonic jet fighter manufactured by China and equipped with the Air Force.

SHENYANG JETFIGHTER

LIAOBU SAM’S-CLUB FACADE RENOVATION DESIGN

Dongguan, China

Besides this city has a rich cultural tourism resource, Liaobu Town also has formed into the largest automobile sales market in Dongguan. Liaobu Town has implemented the “industry first” development strategy, introduced several international high-tech large enterprises, and made this town int developing hi-tech area in Dongguan.

GRIDS & LOUVERS

From the basic massing, it’s added ramps on each side of building in addition of inner ramps.

Louvers and greeneries are applied into facade, also extending the facade on the ramp into plaza to form an interactive landscape.

This 3-storey building has a function as Sam’s Club retail on the first and second floor, with car park on its basement, 3rd floor and roof top. Adding retail plaza in front of it to gain the space interaction.

SHANGHAI QINGPU NEWTOWN TOD PROJECT DESIGN

Shanghai, China

This TOD project design has 6 plots. The plots maintain he connectivity with the park and serve as a recreational area in commercial section. Applying the coordination of subways entrance and exit to integrate with mall and retails in the building. It’s also focus on the integration of traffic, building function and form, and all-important nodes around the site. The surrounding rivers are implied into building design as water boat in town in the south of Yangtze River

WATER VILLAGE

The overall plot is divided into Green system and Blue system. where the green system is represented with how the layout and arrangement of commercial retails into terracing landscape and putting botanical garden in entrance.

While Blue system is represented with continuously flowing water from rooftop of commercial building to the ground. Giving a sense of water village in Jiangnan province.

The facade also mimicking the curvature line of boat as in floating market.

There is G50 Moonlight viewing room on the top of tower as it’s symbolized the moon that rising g from the water.

Giving mall and comercial area in north-west side of the site with skybridge on the north side as an open entrance to connect the axis to the harbor view. “Moon rising from the Sea” is showed by sphere structure in front of the mall, emitting the light at night that reflected to thw water as forming moon image. The interactive deck plaza is placed in the middle as connector between the hotel area that next to office and residential area in west side with shopping street area and mall in east side of the masterplan. In addition, putting Water-club in the middle of landscape as interconnecting bridge for visitors to experience the environment better.

NINGBO YINZHOU MALL FACADE RENOVATION

Zhejiang Province, China

NANTONG RIVERSIDE MIX-USED

Jiangsu Province, China

Giving mall and comercial area in north-west side of the site with skybridge on the north side as an open entrance to connect the axis to the harbor view. “Moon rising from the Sea” is showed by sphere structure in front of the mall, emitting the light at night that reflected to thw water as forming moon image. The interactive deck plaza is placed in the middle as connector between the hotel area that next to office and residential area in west side with shopping street area and mall in east side of the masterplan. In addition, putting Water-club in the middle of landscape as interconnecting bridge for visitors to experience the environment better.

SOUTH KOREA

CAFE N:TEE

A coffee shop that located in heart of Gangnam-South Korea, bring a retro vibe in its interior elements. Cladding bricks, wooden tables and chairs, and polished floor enhance the warm mood of this cafe. Putting the busy area as bartenders and coffee makers stationed to serve the customer easily. Maximized the opening on its existing facade to bring in natural sunlight into the room. Gangnam, Seoul. South Korea

A-CUBE COWORKING SPACE

Anyang, South Korea.

Coworking space that designed mostly for Startup Company with multifunctional workspace with cafe, indoor and outdoor rest area, and rooftop farm. It’s a design-centric and creative workspace that eager the users to work more convenient and flexible.

Manan-Gu, Anyang

Located in 16th floor of buildings that provide amazing view of a whole city in Anyang, South Korea. The terrace balcony is designed as place for employees to have a rest and enjoying the city’s view

Maximizing the advantage of the layout that by creating wide openings facing into the spectacular view of the city. As wel as aiming as much as possible natural sunlight come through the space. Natural light will penetrating the office rooms, meeting room, canteen, rest area, and most of room inside the office in order to cut the artificial energy.

The layout was divided in to 3 masses that all of them were connected by corridor. The unique design-centric of membrane lighting in receptionist lobby became the highlight of this coworking space in term of architecture design.

MOEBIUS HOUSE

Gangneung, South Korea.

Passive Energy

The flow of space was borrowed from the method of handling the flow of air in traditional Korean homes. In detail, the pilotis on the bottom expands the surface of volume exposed to outer air to reduce the load of heat energy and allows natural ventilation in summer. This is similar to the principle of open living rooms in Korean traditional spaces. This is a modern reinterpretation of the variable space of Korean traditional homes that can be used either as a big room or as smaller individual rooms.

Sunlight and shadow distribution analysis - June 22th, Gangneung

Sunlight and shadow distribution analysis - December 22th, Gangneung

Wind distribution. all year,

Gangneung

- A rectangular maximum volume is placed at the site - Making a wind path by lifting the mass

- A pipe core to hold the mass

- A pipe core to hold the mass

- Clearing the side edge for clear pilotis

- Clearing the side edge for clear pilotis

Penetrating the skyline through the roof

- Extracting a chunk as if processing a gemstone

- Extracting a chunk as if processing a gemstone

- Penetrating the skyline through the roof

- Extracting a chunk as if processing a gemstone

- Extracting a chunk as if processing a gemstone

the Light

- Inner space is very flexible for different needs. Using sliding doors, the space could be combined and divided

It was a rare residential lot with an open view to the south at the dead end of a small path beneath Mt. Gwanggyo. What was unique about this lot was that it was very hard to turn the car to come out of the path after more than 2 cars parked, because it was a small path only 4 m in width. Ironically, the fundamental challenge was not only solving the parking problem but also creating a space for both parking and gardening to coexist. It was closely related to the lifestyle of home owner to decide whether to create a garden directly accessible from the living room or to emphasize a visual garden. To resolve this issue, the overall shape was formed to encase the lot with more curves and lifted about 2 m from the ground using pilotis for more efficient parking. The shape of the mass resembling a concave lens was created by the parking needs and the topographical condition of the lot.

- Korean traditional dae-cheong maru let air flow for natural ventilation. Also work as a buffer zone to meet outsiders

Catching
- Curved roof line of the house resembles the line of Korean traditional Cheo-ma line.
Continuosly
View to surrounding

CROSSING BRICKS

Yeoksamdong, Seoul. South Korea

Mass Development

gradually

The marble is a natural material made from limestone, while the brick is made from soil fired at a high temperature. Therefore, the marble is the material created by the accumulation of time and the change of nature. The transcendence of the church provides the fundamental theme of human and God or time and space.

Excavation of soil and construction of basement retaining wall.
Excavation of soil and construction of basement retaining wall.
South Elevation West Elevation
B. White brick (Handmade-brick)
Excavation of soil and construction of basement retaining wall.
Flat Brick construction
Elevation
Facade - Black and White
Corner Brick construction
Rotated Brick construction
North Elevation East Elevation
A. Dark Gray Brick (Prefabricated-brick)
C. Dark Brick
(Handmade-brick)

WAVING STONE

Donghaksa, Gongju. South Korea

Applied flowing chart of sun-path diagram into building’s energy calculation

imitating surrounding contour line into building shape

the spectacular view of Gyeryongsan National Park void for air circulation going pass through lower level of building

creating opening to catch the light from rooftop and distribute it to the lower part of building.

Create opening on the rooftoop and terraces to catch more sunlight.

imitating surrounding contour line into building shape

marble as material that covered almost all of building’s surfaces

creating opening to catch the light from rooftop and distribute it to the lower part of building.

marble as material that covered almost all of building’s surfaces

void for air circulation going pass through lower level of building

The building facing to the spectacular view of Gyeryongsan National Park.
Terraces were designed to get more open space in the building.

- At the dead end, car circulation is disturbed by the rectangular mass and has no space for parking

Donghaksa 1-ro

SITE

1-ro

- At the dead end, car circulation is disturbed by the rectangular mass and has no space for parking

Mass Development

Materials

01. AL. Cap

02. Roof

03. Rooftop window

04. Ash-colored brick

05. STS panel (mirror type)

06. Outter deck

07. Patterned exposed Conc.

08. Slab insulation

09. Mesh

- Conc. + insulation + Conc. + Waterproof

10. Base structure - AL. cap placed on top of the brick facade to highlight the curve. - Brick reflects the light. Carefully arranged scales shine. - Pine board pattern gives a warm feeling to cold

- The STS holds the sky and reflects the four sesason changes - Super insulation at the bottom slab - Different size of rooftop windows bring warmth and light

- The balcony can work as the extension of the livingroom - Mesh applied on top of the parking place - Base structure to create pilotis and parking space

Gyeryongdae-ro
Donghaksa

INDONESIA

Jember, Indonesia

DEWI ROBINAR’S HOUSE

Jakarta - Indonesia

good idea + hardwork

=PERFECT DESIGN

Turn static files into dynamic content formats.

Create a flipbook
Issuu converts static files into: digital portfolios, online yearbooks, online catalogs, digital photo albums and more. Sign up and create your flipbook.