BIM CAD Portfolio

Page 1

BUILDING INFORMATION MODELLING AND COMPUTER-AIDED DRAWING

PORTFOLIO

GRADUATE CIVIL ENGINEER

BUILDING INFORMATION MODELLING Single Storey Semi Detached Houses 01
DRAWING
DRAWING Final Year Integrated Design Project COMPUTER-AIDED DRAWING USM Engineering Campus Sport Complex GEOGRAPHICAL INFORMATION SYSTEM WIFI Coverage Heatwave Mapping 02 03 04 05 CONTENTS
COMPUTER-AIDED
Structural Forensic Remedial Works Design COMPUTER-AIDED

BUILDING INFORMATION MODELLING

Single Storey Semi Detached House

Single Storey living is perfect for family that has to accommodate senior family members Taking into account of their comfort and daily life requirements are essential, making the house both comfortable and practical for family members of all ages. Allowing a convenient and spacious living area of only one level. The wide car porch is one of the key special feature of the house

▪ 54 units Single Storey Semi Detached House

▪ Built-up area: 1,595 sqft

▪ 3 Bedrooms and 2 Bathrooms

01

Single Storey Semi Detached Houses

FRONT ELEVATION

RIGHT ELEVATION

Single Storey Semi Detached Houses ARCHITECTURAL Project Browser AUTODESK REVIT 2021 STRUCTURAL Cross Section ARCHITECTURAL DETAILING 3D VIEW INTERIOR Section Box Section Box WINDOW 3 Section Box DOOR 1 Section Box TOILET Section Box STRUCTURAL ELEMENTS BEAM COLUMN SLAB STUMP FOOTING GROUND BEAM Section Box WINDOW 2 Section Box DOOR 2

COMPUTER-AIDED DRAWING

Structural Forensic Remedial Works Design

Forensic engineering is the application of engineering knowledge to investigate why a structure or machine failure It also determines why there was damage to a structure or machine Forensic engineering involves using reverse engineering to find out why a component, structure, or machine failed to perform properly.

A detailed inspection will be carried out to determine the location of deterioration and failure of the structure in producing defect mapping and the material test plan. The data obtained will be analyse and a proper treatment / repair works are proposed in a comprehensive report

02

Structural Forensic Remedial Works Design

Structural Forensic Remedial Works Design

COMPUTER-AIDED DRAWING

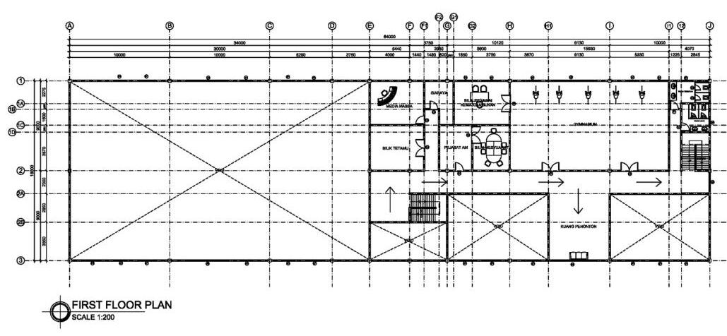
Final Year Integrated Design Project

Multiways Integrated Consultant was founded in 1995 with the express purpose of providing specialized services in the Structural and Civil Engineering fields

Large numbers of projects ranging in commercial, retail, industrial and special structures have been successfully completed, on time and within budget Our clients, other professionals, and contractors provide testimony to our product-based approach to the execution of projects.

Proposed Development of 10 units of Double Storey Terraced House, 2 units of Semi Detached House and 1 unit of Sport Complex on Lot 10074 – 10101, Mukim Parit Buntar, Daerah Kerian, Perak

03

Final Year Integrated Design Project

Final Year Integrated Design Project

COMPUTER-AIDED DRAWING

USM Engineering Campus Sport Complex

Established as the second university in the country in 1969, Universiti Sains Malaysia (USM) was first known as Universiti Pulau Pinang 17 Academic Schools on the main campus in the island of Penang; 6 Schools at the Engineering Campus in Nibong Tebal (approximately 50km from the main campus); and 3 at the Health Campus in Kubang Kerian, Kelantan (approximately 300km from the main campus)

Sport Centre that is equipped with indoor and outdoor facilities that caters to students’ sporting events and games. Its located at Universiti Sains Malaysia, Kampus kejuruteraan,14300 Nibong Tebal, Pulau Pinang, Malaysia

04

USM Engineering Campus Sport Complex

USM Engineering Campus Sport Complex

GEOGRAPHICAL INFORMATION SYSTEM

WIFI Coverage Heatwave Mapping

Our study area has been specified at Lembaran Café (Figure 1) which is one of the most popular place for student to hang out doing their works and eat where the café usually active for 24 hours a day

Due to its popularity we decided to choose the café as our study area. We decided to produce a heat map of Wi-Fi signal strength at Lembaran Café to help the student to find the most suitable place to do their work without having any problem.

The input data collected import into IDRISI software and perform GIS modelling and analysis The results will recommend the best location to have a strong Wi-Fi connection with USMSecure network

05

IMPORT FILE

.CAD to Idrisi

GIS ANALYSIS FLOWCHART

DIGITIZE

Study Area and Blocked Wall

STUDY AREA OF GIS PROJECT

WIFI
Coverage Heatwave Mapping

No Restriction ACCESS POINT COVERAGE

ACCESS POINT COVERAGE HEAT MAP

HEAT WAVE + OBSTACLES

Restricted Mapping

RESTRICTED HEAT MAP

Reclass Signal Strength

PROJECT FLOWCHART

LOCATION OF ACCESS POINT

WIFI Coverage Heatwave
Mapping

THANK YOU

Turn static files into dynamic content formats.

Create a flipbook
Issuu converts static files into: digital portfolios, online yearbooks, online catalogs, digital photo albums and more. Sign up and create your flipbook.