Jake Chi Portfolio Spring 2025

Page 1


JAKE CHI

ARCHITECTURAL WORKS

#SPRING2025

BSAS ARCHITECTURE STUDENT

UNIVERSITY OF ILLINOIS

SCHOOL OF ARCHITECTURE

01 | DOMESTICITY & URBAN HOUSING

#FALL2024

#URBANLIVING

#REVIT

#ADOBESUITE

02 | MASS TIMBER REDESIGN

#SPRING2024

#GRIDANALYSIS

#SKETCHUP

#AUTOCAD

#FALL2023

#ADDITION

#AUTOCAD

STUDIO| 04 PROJECTS & WORKS

#SKETCHES

#MODELS

#STUDIES

DOMESTICITY & HOUSING

Domesticity explores how designed environments foster well-being, companionship, and daily routines. Shaping spaces based on the human strucure allows for functional and personal spaces that cater to residents’ needs within them. Incorporating a mix of public and private spaces fosters a sense of transition between the levels of publicity in one’s daily life. This is done through openings, corridors, and openplan layouts to diversify the plan and walking path. Additionally, designing for the minimum space required for reasonable comfort allows for efficiency and ensures that functions exist in every square centimetre of the plan. In essence, domesticity ensures that designs are made with the human at the forefront.

PHASE 01 | DOMESTICITY WORKSHOP

#ITERATE #EXPLORE #MODEL

EXPLORING SAMPLE FLOORPLANS

ITERATE & MODEL

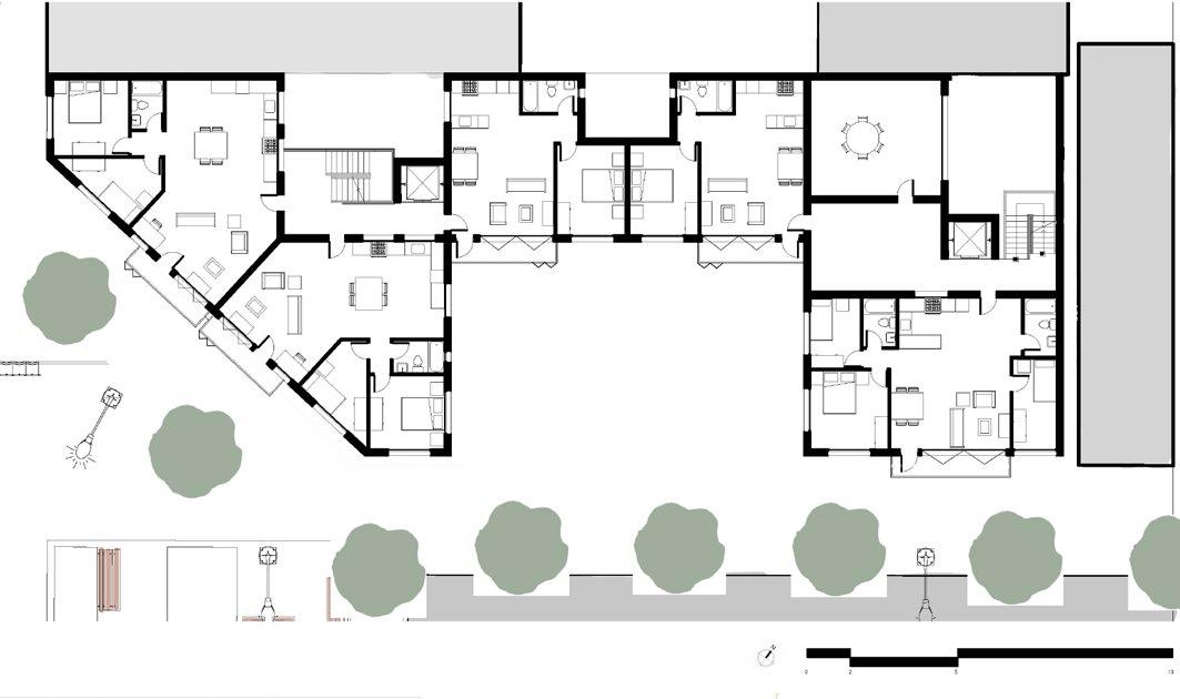
PHASE 02 | URBAN HOUSING

#REVIT #RHINO3D #DOCUMENTATION

PHASE 03 | DOCUMENT

#REVITMODEL #RENDER #TWINMOTION

WEST ELEVATION
SOUTH ELEVTION
CROSS SECTION 01
CROSS SECTION 02

MASS TIMBER REDESIGN

#SPRING2024 #ANALYSIS #SKETCHUP #AUTOCAD

The Melopee School located in Ghent, Belgium is a fantastic example of a grid being used in steel construction. As an experiement, converting the building to utilise a mass timber structure grid can transform the strucutre of the building as well as the overall building form and use case. Analysing the anatomy of the strucutre grid is vital in order to make the transformation happen.

PHASE 01 | GRID ANALYSIS

#COLUMNPLACEMENT

PHASE 03 | REANALYSE

#STRUCTUREGRID

VIEW LOOKING NORTH

ECHOING ERLANGER

#FALL2023 #ADDITION #AUTOCAD

The Erlanger House, located at 303 W. Indiana Av. Urbana, IL is a housing project dedicated for the University of Illinois, School of Fine and Applied Arts. It has been identified that an addition located in the rear of the building can enhance the already significant enclosure. The addition of a pavillion in the rear, adds a use case for the backyard in which the feeling of being “outdoors” in an otherwise indoor inviornment is achieved. The continuation of brick, metal, and concrete elements further add to the existing context. This echos the the present day plan of the Erlanger House and adds to the numerous use cases that the home presents to users.

PHASE 01 | FLOORPLANS

#AUTOCAD #DRAWINGS

STUDIO PROJECTS & WORKS

#SKETCHES #MODELS #STUDIES

ARCHITECTURE IN ONE WORD

#FRAME #STUDYMODEL #ILLUSTRATOR

This study examines the thought process of architecture through the use of one word as the overall theme of the strucutre. “Frame” is used to guide an occupants sightline towards an overall landscape to give the illusion that they are looking through a picture frame.

OBLIQUE HYBRID DRAWING

#RHINOCEROS7

#ILLUSTRATOR

This Oblique Hybrid Drawing analyses the fundamental elements of anatomy through architecture. By designing a form using basic shapes such as triangles, polygons, and truss systems, an overall form can be realised.

STUDIO PROJECTS & WORKS

#SKETCHES #MODELS #STUDIES

THEMATIC WORKSHOP

#SHADOWSTUDY #ITERATIONS #MODELS

In architecture the shadow of a someone or something is seen as the result of something that exists such as a building or a person in space. What if this theory was reversed and the shadow created the building or form? THis study dives into the creative space, studying the effects of the human shadow with scale, and how shadows can transform the look and feel of buildings.

THE FOLLY

#MODEL

#EXPERIMENT

A folly accepts the idea of designing without purpose, with the sole goal of turning mundane strcutures into eye catching marvals. This gas station brings that idea into sharp focus,

MODERN

TREEHOUSE

#MODEL

#DWELLING

Treehouses in pop culture are seen as smaller, backyard shelters for kids to play in. In a wider scope, treehouses can also be homes above the ground with all the basic living needs. This interpretation combines the flat plane construction of backyard treehouses with the scale and form of dwellings.

Turn static files into dynamic content formats.

Create a flipbook
Issuu converts static files into: digital portfolios, online yearbooks, online catalogs, digital photo albums and more. Sign up and create your flipbook.