sb


![]()


Join a dynamic network of architects, engineers, designers, clubs, federations, authorities, and industry experts. Share ideas, learn from each other, and shape functional, sustainable, and future-ready sports and leisure spaces. Let’s create better sports and leisure facilities together!

Unlock a world of expertise and innovative solutions with IAKS’ international network, designed to foster a more active world. Get access to information and innovation that can shape the future of your facilities. With our international network, you can place yourself at the forefront of industry developments. Inquire about your membership today and join our community of innovators!
As a member, you will
• support our shared vision of enabling active living for all
• help strengthen the voice and visibility of our sector across 153 countries
• stay informed through our bi-weekly newsletter - your regular update on trends, insights, and developments
• benefit from attending IAKS events and our biennial IAKS Congress with attractive discounts on registration fees
• enjoy complimentary access to member-exclusive content including whitepapers, case studies, and expert data
• receive a complimentary subscription to sb magazine, the world’s leading professional journal for our industry
• enjoy a 15% discount on advertising in our sb magazine, the IAKS website, and newsletters - maximizing your reach across influential channels
iaks.sport/become-member

Dear IAKS members and friends of ‘sb’
The era of the utilitarian, single-purpose sports hall is over. Around the world, a new generation of community recreation centres is emerging, designed not just to house activity, but to actively build communities, embody sustainability, and uplift the human spirit. Projects like the Nolhaga Ice Rink in Sweden, the UBC Aquatic Centre in Canada, and the Kirchheim Community Hall in Germany are leading this quiet revolution, offering a blueprint for the future of civic infrastructure.
These transformative projects are unified by a powerful set of design principles that move beyond just functionality. Architectural identity is paramount. These buildings are conceived as landmarks that resonate within their unique context. The Nolhaga rink, with its wooden roof responding to the surrounding park’s canopy, becomes a glowing winter lantern. The Kirchheim Hall is reborn with a tuned material palette that reflects the rhythm and texture of its vineyard surrounds, reimagining a dated legacy as a civic beacon. This deliberate beauty fosters immense local pride, signalling that a community values itself and its shared spaces.
Critically, these centres are engineered as social engines. They are designed for connection as much as for competition. The Carrville Community Centre in Ontario, Canada co-locates activities and social activity spaces, creating a one-stop hub for intergenerational life. Nolhaga Ishall integrates a warm picnic hall beside the ice, encouraging social gathering. Inside the Southeast Event Centre in Steinbach, Canada, lies a spirit of transformation. Designed to adapt and respond as a living, responsive space at the centre of the community it serves. Guided by a human-centred ethos, the Schönberg Sports Hall in Germany is a testament to how thoughtful, responsible architecture can echo meaningfully through its community. By designing the spaces between activity places, the foyers, cafés, and lounges, these buildings combat isolation and weave the social fabric tighter, becoming true living rooms for their towns.
Underpinning this is a non-negotiable commitment to sustainability and stewardship. These facilities demonstrate that environmental responsibility is a core function, not an add-on. The UBC Aquatic Centre achieved gold LEED status. The Kirchheim renovation masterfully upcycled an old concrete shell, preserving embodied carbon. The Markt Rettenbach Sports Hall in Germany uses local timber, connecting the building‘s lifecycle to its regional ecology. At the Lake Country Co-op Leisure Centre in Prince Albert, Canada, the chill of the ice is alchemised into warmth, sustainably heating the lobby and rink seating areas through an innovative heat recovery system. These projects act as public demonstrations of a sustainable future.
Finally, they prioritise the human experience. Gone are the windowless, fluorescent-lit boxes. Abundant natural light, warm materials like wood, and careful acoustics create atmospheres that are uplifting, healthy, and inviting. Whether it’s the welcoming, light-drenched warmth of the Markt Rettenbach hall, or the focused, disciplined environment of the Goschke Wrestling Centre in Iowa USA, the design directly supports the well-being and purpose of every user.
From the broad, inclusive hubs of Carrville and Nolhaga to the deep-focus sanctuaries like Goschke, these projects prove a powerful point. The most impactful sports facility is one that understands its broader civic role. It is a landmark that inspires pride, a social hub that fosters connection, a sustainable model for the future, and a human-centric space that elevates daily life. This is the new standard, where architecture doesn‘t just contain sport, but actively strengthens the community it serves.
Matt Body Senior Associate at WARREN AND MAHONEY Chair of IAKS Australia & New Zealand













24th IAKS Ice Master Conference in Chemnitz, 24 to 26 March 2026
With its exciting mix of industrial history, culture and urban flair, Chemnitz provides the ideal backdrop for three packed and informative days of events. For the 24th time, ice masters, facility managers and employees are gathering for the IAKS Ice Master Conference to gather new ideas, learn from each other and strengthen existing ties.


The IAKS Ice Masters Conference focuses on brief specialist presentations, technical insights and workshops addressing specific challenges in ice rink operation. The formats impart knowledge with definite practical relevance – from energy issues and safety to ice quality.
Excerpt from the programme: From the field, for the field
• Crisis management using the example of an ammonia leak incident: exclusive report from the Bremerhaven ice arena team
• Energy monitoring: How to keep energy costs under control
• The ice is right: Ice preparation and ice quality in the ice rink
• Conduct in conflict situations: How to create a safe iceskating experience for all
• Just in case: Contemporary house rules
Hands-on technology to try out
In the exhibition area, companies showcase solutions, equipment and current trends in ice rink operation. As a special highlight, there will be a live, practical demonstration of the latest ice resurfacing machines on the ice surface at the Jutta-Müller-Eisportzentrum ice rink.
The Garage Campus in Chemnitz as the conference venue
The Garage Campus is a former industrial site with a remarkable history. This is where our workshops and lectures are held, and it is from here that we set off on our excursions to the Jutta-Müller-Eissportzentrum.


Jutta-Müller-Eissportzentrum, a place with a history
At the 2026 Ice Masters Conference, participants will gain an exclusive glimpse behind the scenes at the Jutta-Müller-Eissportzentrum: the speed skating track 15 metres wide and 400 metres long was built by East Germany in 1972 in the immediate vicinity of the ice rink. Together with the ice rink and the training hall, it formed the largest contiguous ice sports surface in Germany East and West.
From March 2020 to October 2021, the speed skating track was rebuilt and an infield was also created. The machine room also houses two separation tanks for ammonia with a total capacity of around 32 tonnes.
All information regarding travel, hotel accommodation and the detailed programme is available on the event page. Our team headed by Max Rosenau will be happy to answer any questions you may have. Conference language: German
Author: IAKS
Photos: IAKS, Dmytro Aksonov, Garagen-Campus, Jutta-Müller-Eissportzentrum






Starting in March 2026, IAKS will launch a new international webinar series titled “Built to move the world – Insights from award-winning facilities.” The series focuses on outstanding sports and leisure facilities that have received the 2025 IOC IAKS Architecture Prize, representing high architectural quality and innovative approaches in sports architecture.
Insights from award-winning projects
The webinar series is aimed at architects, planners and decision-makers involved in the planning and delivery of sports and leisure facilities. It offers project-based insights into design approaches, planning decisions and experiences gained during implementation.
International project examples
The series will feature, among others:
• Atmosphere by Krallerhof (Austria)
• National Athletics Stadium (Hungary)
• Blue Square Balzers (Liechtenstein)
• Rosemary Brown Recreation Centre (Canada)
• Velodrome Sylvan Adams – Centre Multisports Desjardins (Canada)
• təməsew txʷ Aquatic and Community Centre (Canada)
• Parramatta Aquatic Centre (Australia)
• Hiwa Recreation Centre (New Zealand)
The projects range from international competition venues to local sports and leisure facilities. They reflect different scales, functional requirements and planning contexts, offering insight into a variety of architectural approaches.
Knowledge exchange and inspiration
With “Built to move the world,” IAKS provides a platform for professional exchange and inspiration. The webinar series offers the opportunity to explore award-winning projects in depth and to gain impulses for future planning tasks.
For more information on dates, topics and registration, please visit the IAKS website. Webinar language: English.
Author: IAKS
Photos: HGEsh Photography, Jozsef Molnar, Planungsbüro Wegmüller AG, Ema Peter, Stephane Groleau, Nic Lehoux, Peter Bennets, Scott Norsworthy








For more than half a century, Hamberger has been developing and producing one of the most important pieces of sports equipment: the flooring. HARO’s Protect Light, the new generation of area elastic protective walls, sets new benchmarks once again.
All-in-one solutions for sports and multi-purpose halls that exceed all current standards, guarantee compliance with official regulations and also allow a fast and cost e ective installation, are now possible.
That’s for sure!




IAKS Nordic conference in Helsinki, Finland, 21–22 April 2026

Formal organised sport is strong, but everyday movement in the Nordic countries continues to decline.
• How do we get more people moving? What drives people towards self-organised movement and spontaneous physical activity?
• How can we better design and renovate facilities so that more people become more active?
• How can we use nature and various business models to lower the threshold and create long-term sustainable movement?
• Why does more organized sport not necessarily mean more movement and activity? What can we do to change this?
Meet Nordic colleagues, researchers, planners, architects, and operators from the Nordics and the UK. Listen to examples, reflect and discuss proposed solutions on how we can achieve the public health goals set by authorities, which we currently struggle to meet.
Helsinki’s Deputy Mayor, Paavo Arhinmäki, will open the conference.
Speaker line-up:
Oliver Vanges, The Danish Foundation for Sports and Culture Facilities
Lisa-Mari Watson, Tverga
Stephen Dietz-Hodgson, JAJA Architects
Petri Kontukoski, Kontukoski Architects
Teemu Heino, Tapanila Urheilusäätiö ... and more to come
In connection with the conference, a tour of the Helsinki Olympic Stadium will be offered. The Olympic Stadium was built in the functionalist style and inaugurated in 1938 for the 1940 Summer Olympics, which were ultimately cancelled due to the Second World War. The first Olympics held at the arena was in 1952. During the 2000s, the arena underwent extensive renovation, which included the construction of an entirely new 20,000 m² underground section. Find out more in sb magazine 1/2021.
Why join?
The conference ‘Getting people moving!’ offers a unique opportunity to engage in comprehensive discussions with Nordic colleagues. This conference is designed for attendees to participate in discussions and to take home concrete ideas, examples, and new contacts for the work back home.
Who will join?
The conference is particularly valuable for those working with sports issues, urban development, public health, as well as those responsible for sports facilities, who wish to reduce the gap between organised sport and declining everyday physical activity. Conference language: English.
Author: IAKS Nordic
Photos: Lappset, Helsinki Partner_Laura Dove, Annika Banyay Tiverman





IAKS UK & Ireland conference and facility tour in Glasgow, 14 May 2026

IAKS UK & Ireland is pleased to announce the inspiring spring event that will explore how Glasgow continues to build on its world-renowned sporting legacy. The event will gather professionals from the sports facility industry from the UK and abroad. It will take place at the Emirates Arena in Glasgow, Scotland on Thursday 14 May 2026.
This landmark venue, home to the Commonwealth Arena and the Sir Chris Hoy Velodrome, was originally built for the 2014 Commonwealth Games and will again play a central role by hosting key events in the 2026 edition. Its blend of legacy, innovation and community engagement make it an ideal setting for the IAKS UK & Ireland conference and facility tour.
Why join?
The event’s focus will be twofold. Firstly, the day will trace the evolution of the facilities originally developed for the Glasgow 2014 Commonwealth Games, examining what was built, how these venues have sustained a lasting legacy through ongoing community use, and the ways in which they are now being prepared to host events for the 2026 Commonwealth Games.
Secondly, it will assess the opportunities and challenges facing the city and wider region as they prepare to host the upcoming Games, with discussion on how the planning and delivery approach is being shaped to address these factors effectively.
The programme will feature presentations from facility developers, operators and event organizers, complemented by a venue tour
and opportunities for networking throughout the day. Together, these elements will offer participants a comprehensive understanding of how Glasgow is preparing for the Games and how lessons from past successes are informing future strategies.
Who will attend?
The event will start with a casual networking dinner on the night of May 13. The conference on May 14 will be of interest to venue design teams, facility operators, event organizers and host cities, all of whom stand to gain valuable insights into planning, adapting and delivering major sports events.
You won’t want to miss this unique networking opportunity when international stakeholders of the sports facility infrastructure sector converge to discuss how Glasgow continues to build on its world-renowned sporting legacy.
iaks.sport/event/glasgow2026
Author: IAKS UK & Ireland
Photos: IAKS, Glasgowlife









The 2025 General Assembly of IAKS Austria offered members an inspiring look into highperformance sport and state-of-the-art sports facility design. Thanks to the initiative of Vice President Sabrina Rohrmoser, participants enjoyed an exclusive guided tour of the Upper Austrian State Sports Centre (LSZ), accompanied by Hannes Seyer, Deputy State Sports Director of Upper Austria.
Insights into elite training environments
Members experienced firsthand how athletes from disciplines such as table tennis, rowing, athletics, parasport, fencing and cycling train at the LSZ. The tour also showcased the centre’s physiotherapy and sports medicine services, followed by a visit to the swimming hall and the impressive ‘Wall of Fame’ - a visual tribute to the region’s sporting achievements.
Architectural showcase: Raiffeisen Arena
A special highlight of the day was the guided tour of the Raiffeisen Arena at Linzer Froschberg. Made possible by Dipl.-Ing. Harald Fux, President of IAKS Austria and architect of the arena, the visit offered a unique perspective on the stadium’s integration into the surrounding residential area. Standout features included the striking grandstand design, the elegant restaurant with in-house bakery, and the multifunctional event box - an excellent setting for this year’s assembly.
During the formal session, Sabrina Rohrmoser presented the agenda and the Board’s annual report. Two new appointments were introduced: Lisi Schrenk (Managing Director) and Thomas Waldner (Board Member).
Looking ahead, the D-A-CH excursion planned for autumn 2026 promises to be a major highlight. Members also reflected on the success of the 29th IAKS Congress in Cologne, before the meeting concluded with the auditors’ report and the official discharge of the Board.
The Board of IAKS Austria extends heartfelt thanks to everyone involved who made the event a success, including Judith Mader (Gerflor), Christoph Högler (FanInvest), Florian Szeywerth (Austrian Institute for School and Sports Facility Construction) and Philipp Huppmann. Their support helped create an engaging gathering that once again demonstrated the strength and value of the IAKS network.
Author and photos: IAKS Austria






app and move GmbH
Kirchhain (Germany)
The ‘SportBox app and move’ supports the promotion of play, sport, physical activity and health in public spaces through digital technologies. They offer maximum benefit with minimal effort when it comes to developing spaces for movement and sport. SportBox provide an accessible, community-oriented gateway to physical activity, play and sport.
For members and users, the SportBox app delivers a lowthreshold equipment rental service - available across cities and regions. For all target groups, such projects make it possible to access small sports equipment easily and conveniently at any location through a flexible flat-rate system.
www.sportbox.de

Drees & Sommer
Stuttgart (Germany)
Drees & Sommer is an internationally active consulting company specializing in real estate, infrastructure, and industry. The company supports public and private clients throughout the entire project lifecycle, combining management expertise with sustainability and digitalization. With interdisciplinary teams, Drees & Sommer develops economically, environmentally, and socially sustainable solutions and also has extensive experience in the development of sports facilities and stadiums, with numerous national and international reference projects.
A selected reference project that has received multiple awards is the Bürstadt Education and Sports Campus (also featured in ‚sb‘ magazine 4/2024)
www.dreso.com

Beck Schwimmbadplanung GmbH Kempten (Germany)
Beck Schwimmbadplanung GmbH positions itself as an exclusive partner for the sophisticated planning and realization of public swimming facilities. The company focuses on the highest standards of quality and technical perfection - from water treatment systems and precision pool construction with premium linings to innovative movable-floor technology.
With extensive expertise, a passion for detail, and a keen sense for the harmonious interplay of technology, functionality and aesthetics, Beck supports each project from the initial concept through to successful operation - whether for refurbishments or new constructions.
Where water and precision unite.
www.beck-schwimmbadplanung.de

Vittorio & Associati
Affi (Italy)
Founded in 1996, the architecture firm specializes in athletic tracks for small-scale municipal and community sports projects in Northern Italy.
Its organizational structure, built around an integrated architectural design approach, is lean and dynamic, offering a high degree of operational flexibility and drawing on experienced specialists in structural design, mechanical systems, and electrical systems.
Projects are customized, with a focus on ecological transition, the responsible use of materials, and respect for the environment.
www.vittorioeassociati.it
For IAKS corporate members only:
Your feature in ‘sb’, on IAKS website and through IAKS newsletter

Present your company, your products and reference projects in up to three half-page features per year in ‘sb‘.
Share your innovations through impactful visuals and compelling content. Your features will also be presented on the IAKS website and through the IAKS newsletter, at no extra cost.
Company index listing in ‘sb’
Gain visibility in every issue of sb with your full company address and logo featured in the A–Z company index and service directory.
Premium database entry on IAKS website
Stand out in our online directory with your detailed company profile, including:
• Up to 10 core business activities (regular 3 activities)
• A detailed company description (profile, history, innovations, and references)






Lake Country Co-op Leisure Centre in Prince Albert
Designed for residents of all ages and abilities, the Lake Country Co-op Leisure Centre features community gathering spaces, two NHL-sized ice rinks, and an expansive aquatics facility. Supporting the city’s strong hockey culture, the rinks provide seating for more than 900 spectators. The 51,000-square foot (4,740 m²) aquatics centre includes an eight-lane competition pool, wave pool, and therapy pool, and is designed to accommodate recreational, competitive, and instructional programming.
OPENING: SEPTEMBER 2025
Location Prince Albert, Canada
Client / Operator
of Prince Albert

With a regional population of 200,000 citizens, Prince Albert is a growing city and Saskatchewan’s ‘Gateway to the North’. Located in the city’s southeast quadrant, this new recreation centre serves adjacent established neighbourhoods but is also the health-and-wellness cornerstone of a new planned community district.
Prince Albert is situated within a unique ecological ecotone – a transitional zone between the southern Prairie Grassland, the central Aspen Parkland, and the northern Boreal Forest. This distinctive setting supports a rich blend of ecosystems, where prairie grasses, coniferous species, and clusters of aspen, poplar, and spruce coexist.

The landscape design of the centre reflects this ecological transition through the careful selection and placement of plant species across the site. The parking lot and western portion of the site represent the shift from the grasses of the Prairie Grassland to the deciduous trees of the Aspen Parkland. In contrast, the northern and eastern park areas extend this transition into the Boreal Forest, incorporating coniferous tree plantings.
The site’s master plan also accommodates future growth. Phase 1 delivered the LCCLC, while Phase 2 anticipates a 4,500-seat event centre and associated parking. Careful attention was given to preserving heritage and natural features, including the historic Red River Cart Trail and an existing stand of trees along the site’s edge.


The roughly L-shaped plan defines a large, landscaped entrance courtyard and is unified by a dynamically angled, folded roofline that gives the building a bold and distinctive identity while accommodating the varied height requirements of the interior program spaces. To accentuate the folding roofline and create continuity between the large program spaces, a wooden ceiling with linear lighting was introduced in the aquatics hall and lobby, extending through to the exterior soffit that frames the building’s primary entrance.
The building’s exterior is finished with custom metallic cladding inspired by the tree trunks of the surrounding Aspen Parkland. Images of local tree groves were analyzed to develop a cladding pattern of concave and convex metal extrusions, creating pockets of shadow and reflection reminiscent of the dappled light found in a dense parkland thicket. These extrusions are finished in a metallic silver paint that reflects the colours of the ever-changing Saskatchewan sky, reinforcing a strong connection between the building and its landscape. Below the metallic cladding, glazing provides transparency, offering inviting views into the activities of the centre and outward to the adjacent park space.


At the centre of the complex, the ‘social heart’ lobby connects the aquatics hall and arenas, offering clear wayfinding, generous gathering space, and opportunities to view program activities. From this space, visitors can see up to the mezzanine linking the two arenas at spectator level, into the arenas themselves, and through the aquatics hall to the surrounding landscape. Events and informal gatherings within the lobby can extend into the exterior courtyard, or rear park space, further strengthening the relationship between indoor and outdoor spaces.
The building’s interior colour palette is drawn from the site’s surrounding vegetation and is used to create distinct programmatic identities. The aquatics hall features deep blues and turquoise tones, evoking the needles of coniferous trees. The arenas incorporate golden hues reminiscent of prairie grasses, expressed in seating and dressing room accents. The lobby showcases white metal pickets and vertical design elements that pay tribute to the pale trunks of birch and aspen trees.


The building incorporates a high-performance, highly insulated envelope with optimized glazing to enhance energy efficiency. Supply and exhaust air systems are equipped with heat recovery wheels that reclaim thermal energy from exhaust air streams. Waste heat from the arena refrigeration plant is captured and stored in a thermal storage tank, where it is redistributed to serve the rink underfloor freeze-protection system, the ice resurfacer snow melt pit, radiant floor heating in spectator areas, and other heating demands within the building.
Authors: MJMA Architecture & Design, Group2 Architecture Interior Design Ltd.
Photos: Scott Norsworthy



Recreation Centre North at University of British Columbia
The Recreation Centre North is a new destination for health and wellness on the University of British Columbia’s (UBC) campus inviting the entire university community to participate and engage in recreation formally and informally by utilizing the facility’s three gymnasium courts, an indoor walk/roll/run track, cardio and weight-lifting fitness areas, multi-purpose rooms, universal and gender-specific change areas, and administrative offices.
OPENING: SEPTEMBER 2025
Location Vancouver, Canada
Client / Operator

The University of British Columbia’s newly constructed Recreation Centre North is a bold architectural response to the pressing need for enhanced recreational facilities on the Point Grey campus. UBC has made strides in improving its recreation space per student, taking a significant step toward matching and surpassing the standards of other Canadian universities. This development is an important milestone for the UBC community. Situated within the student services area and near existing athletic facilities, the Centre holds a prominent spot at the northern end of the campus. The disorganized mix of awkward interiorto-exterior pedes trian connections has long complicated this location, creating complex challenges for the design team. Instead of merely accommodating these constraints, the project aspires to redefine its context, healing previous infrastructural scars while fostering a welcoming atmosphere for all members of the campus community.
Spanning 9,300 m², the facility integrates a diverse program mix, including three full-size gymnasia, approximately 4,000 m² of fitness space, a 200-m indoor track, multipurpose rooms, and administration areas. Notably, the Centre prioritizes inclusivity through universal, gender-neutral changerooms, ensuring accessibility for individuals of all gender identities and physical abilities. The thoughtful arrangement of the facility extends the existing trajectory of the student services spine, which previously terminated awkwardly at the site. The design team positioned the large gymnasia programming to the east and spread the fitness spaces across four levels to the west, creating a new exterior breezeway between the two. This breezeway serves as a thoroughfare that links the public realm on both the northern and southern sides of the building. This accessible connection enhances campus connectivity, allowing seamless movement throughout the space 24 hours a day.


At the heart of the design is a commitment to community engagement. Extensive collaboration with stakeholders, including the UBC Equity and Inclusion Office and the UBC Centre for Accessibility, ensured that the building incorporates features like gentle ramps and strategically placed seating. This dedication to universal inclusivity culminated in the facility achieving the prestigious Rick Hansen Foundation Accessibility Gold certification.
The building’s design fosters a seamless integration of indoor activities with the surrounding pedestrian pathways. The southern edge, aligned with the existing student life building, features a cantilevered overhang that offers sun and rain protection along a critical pedestrian route from a major bus loop to the northwest heart of campus. Meanwhile, the north edge along Student Union Boulevard is animated by expansive views into the gymnasia and running track above, enlivening the adjacent arrival plaza. The exterior breezeway serves as a crucial link between these two major routes, knitting them together through its accessible design and allowing the building to interact with the outdoor space in a visually compelling manner.

The southeast and northeast corners of the building are tapered in plan, complementing one another and animating the building‘s massing. The southeast corner angles inward, inviting the recreation gallery to open up to the prominent campus axis known as Athletes‘ Walk. Conversely, the northeast corner extends outward, providing a spacious entry way that encourages movement and interaction within the vibrant campus environment while intersecting with an established grove of trees known as ‚the Bosque.‘ Together, these corners create a seamless flow, connecting the interior spaces to their surroundings while fostering a sense of community.
The roofline tapers gently from a zenith above the primary entrance axes, harmonizing with the surrounding landscape and softening the building‘s presence on the campus. Glazing maximizes interior sight lines while respecting the context of the main campus. The multiple levels of fitness facilities on the west side boast sweeping views of the Bosque through expansive multi-story glass that matches the height of the trees.
The north elevation showcases the upper-level track with a linear glazed facade, enhancing both the new arrival plaza and visibility into the facility‘s vibrant activities. Meanwhile, the south-facing glazing aligns with primary pedestrian flows, inviting glimpses into the gymnasiums from the recreation gallery. The three main entrances are designed with an emphasis on transparency and an inviting scale, drawing users into the Centre.



Inclusive, engaging, and adaptable recreational spaces
The upper levels of the building extend out over the ground floor, offering shelter from the elements while guiding visitors directly to the central lobby atrium. The lobby features a cascading public stair clad in vibrant yellow solid surface and aluminum composite panels. This striking element serves not only as a functional connector between the various levels of publicly accessible fitness amenities and check-in desks but also as a prominent visual landmark for way-finding throughout the facility. Its visibility from various angles makes it a vibrant focal point and a hub for vertical movement.
In conclusion, UBC’s Recreation Centre North showcases a thoughtful approach to creating inclusive, dynamic, and versatile recreational spaces. Its commitment to accessibility and community integration fosters a movement towards a more active and interconnected campus culture. This project serves as an inspiring example for future developments, encouraging engagement and participation for all to thrive in a vibrant wellness environment.
Authors:
Nick Sully und Avery Titchkosky, SHAPE Architecture
Photos: Ema Peter Photography










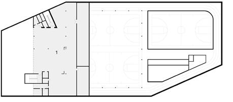
In Kirchheim am Neckar, asp Architects have transformed a community centre dating back to the 1970s and adapted it to new requirements. The result is a multifunctional building that once again fulfils its purpose as a community centre.
Called community halls or community centres, or sometimes community hubs, they can be found everywhere. They symbolise the desire for a place where people can come together. Many of them were built in the 1960s or 1970s and are now not only ageing but also functionally obsolete. The community centre in Kirchheim am Neckar is a successful example of how such a venue can be revitalised while preserving the existing structure.
The task was to accommodate important functions for the community, such as a daycare centre and a sports hall, and to implement them within a limited budget. This presented an opportunity to redesign the existing building in such a way that it would gain new significance for the community through a variety of uses and could be accessed around the clock going forward – from children in the morning to clubs at the weekend.
OPENING: 2024
Location Kirchheim am Neckar, Germany
Client / Operator Kirchheim am Neckar Municipality

The community centre is located just outside Kirchheim in a beautiful rural setting. The backdrop: a valley slope covered in vineyards overlooking a dried-up meander of the river Neckar. To symbolically integrate the hall into its surroundings, the idea was born to choose a material for the facade that changes over the course of the year, much like the vineyards. The choice fell on corten steel, which mirrors the colours of the vineyards in autumn, is particularly durable and requires little maintenance.
While the left half of the hall was renovated and preserved, the right half was demolished due to its condition, replaced with a new structure and adapted to its new uses. To clearly differentiate the various functions while still creating a connection between them, the cubic volume and the intermediate structure characterising the building were preserved.
The corten steel continues inside, cladding the intermediate structure and thereby reinforcing the link between the interior and exterior. Skylights support the natural lighting and, depending on the position of the sun, cast beautiful shadows on the corten steel walls.
An attractive feature is that the intermediate structure not only serves as an important link between all functions, but it also accommodates the main and secondary entrances to the hall. Both entrances are fully glazed, making the proximity to the vineyards almost tangible. Upon entering the hall, one inevitably feels as if one is walking directly towards the vineyards.
The facade alone reveals the hall‘s various functions: while the right-hand side of the building features smaller openings indicating the rooms of the new daycare centre, larger openings dominate the upper floors of the left-hand side of the building, which houses the community centre, swimming pool, sports hall and gymnastics hall at the rear. The community centre itself forms the centrepiece.
With a large stage, space for up to 800 people and a fully glazed facade offering a view of the forecourt, a contemporary space has been created for events and celebrations organised by the community and its local organisations. Directly below, the ‘Bädle’, as the swimming pool is known by the locals, has been refurbished. It includes a teaching pool that is mainly used by school classes. To offer more space to sports clubs and classes, a sports hall with changing rooms has also been added in the basement.
The ‚Klecks-Box‘ daycare centre in the right-hand section of the building is the only facility to span three floors, offering space for up to 60 children. The rooms are ideally suited to the centre‘s open-plan concept and offer different qualities of space on each floor, ranging from a spacious outdoor area on the ground floor to the canteen and studio on the first floor, and rooms for office use and playrooms on the second floor.
The materials used can be found in both parts of the building and on all levels. For example, rubber linoleum was used in both the daycare centre and the sports areas, while exposed screed was used in the corridors. Another recurring element is wooden slat cladding, which lends warmth to the large rooms, such as the sports hall, gymnastics hall and community centre. For better orientation, each floor has been given its own colour scheme
Author: Nadine Funck
Photos: Zooey Braun







Carrville Community Centre & Library
Historically a privileged, car-oriented suburb of Toronto, the City of Vaughan is in a period of transition. Growth and intensification have drawn new residents to Vaughan, putting pressure on existing infrastructure and creating an immediate need for the places and spaces that allow community to flourish. As a result, the City is seeking ways to support more economic and cultural diversity, to demonstrate sustainable leadership, and to do through a rich and varied offering of public facilities and amenities.
The Carrville Community Centre & Library responds directly to these imperatives. Designed as a focal point for a growing community, a demonstration of net-zero carbon performance, and a gateway to Vaughan’s natural heritage, the project combines rich community offerings with an expansive park program – bringing a diverse group of people and programs together ‘under one roof’, providing equitable access to high-quality green space, and setting a new bar for sustainable community infrastructure.

The centre accommodates aquatics, gymnasium, fitness areas, a branch library, daycare, and multi-purpose spaces across two levels, each connected to a vibrant interior public realm and exterior park programming. Carved entries define plazas that extend the life of the facility outdoors, while transparency between floors enhances visual connectivity and invites exploration. Circulation spaces double as gathering areas, fostering community interaction and prioritizing inclusivity, ensuring that all programs are easily accessible and interconnected.
The project site, which slopes almost nine meters from north to south, is bounded by a development parcel to the north, a protected ravine and watercourse to the east, and roadways to the south and west. Planned development means that over time, the site and building will act as a vital connection between a growing neighborhood and Vaughan’s ravines and waterways – spaces that represent the city’s natural heritage and most of its publicly-accessible green space.

A gateway from city to park
Park and building are structured around a continuous east-west promenade, connecting the front door of the community centre to the park beyond and putting community programming on display – an invitation to visitors who might not otherwise use this kind of facility. The building’s sculptural form frames zones within the park, organizing circulation and focal points for outdoor programs and integrated stormwater management.
Interior spaces extend outward to plazas, terraces, and landscaped areas, creating microclimates and varied experiences. Meandering paths and buried service zones negotiate the sloping terrain, ensuring accessibility and preserving natural features. This integration of architecture and landscape strengthens the connection between urban life and nature.

The building is defined by an expansive roof that unifies and structures the activities it shelters. Hovering over a carved ground, the roof is sculpted to define entry points, shape experience, control daylight, and accommodate building systems – a singular architectural element that boldly defines the space of community while declaring its presence in the city.
Clad in a semi-reflective aluminum that responds to the everchanging qualities of light on site, the roof is both of its site and a focal point within it. A continuous glass ribbon visually separates roof and ground, establishing a clear horizon and opening the upper level to panoramic park views. This transparency clarifies the composition while drawing daylight deep into the plan, reducing reliance on artificial lighting and enhancing openness.


Transparency between floors
Inside, a simple and robust material palette underscores the building’s sectional composition. Generous glazing creates visual connections into and through each program, inviting participation and anchoring the building in its context. The sculpting of the floor and ceiling planes creates an internal landscape of dramatic vistas, enticing overlooks, and places to gather, all enjoying ubiquitous daylight and views.
Circulation spaces support a range of programmed and informal uses. This arrangement maximizes opportunities for shared use and community events, making the centre a dynamic and inclusive destination that can evolve with changing demographics and programmatic needs.





The building demonstrates a commitment not only to local community, but to the global community as well: In addition to being certified ‘netzero carbon design’ by the Canada Green Building Council, the building will consume 60% less energy and 44% less potable water than a comparable facility.
Passive and active design strategies, including context-responsive siting, high-performance systems, an enhanced building envelope, a geo-exchange system, and a large photovoltaic array, position Carrville Community Centre & Library as one of North America’s most energy-efficient facilities of its type, supporting Vaughan’s carbon neutrality goal by 2050. Every design decision reinforces sustainability, from material selection to mechanical systems, ensuring the building performs as a model for future civic projects.
Author: Perkins&Will
Photos: Doublespace, Lisa Logan




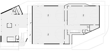
With the construction of the new sports hall on the school campus of the Probstei Community School in Schönberg, a forward-looking project was realized that is tailored to the needs of school sports education, club sports, and general public use. The old sports hall had become outdated, and refurbishment was not economically viable. After extensive planning, the school association therefore decided in favour of a complete replacement building that not only impresses functionally but also sets standards in terms of design and sustainability.
The objective was to create an independent, architecturally distinctive building volume that is simultaneously integrated into the existing school campus and significantly improves sports operations. The building programme includes a spacious three-court sports hall that can be subdivided into multiple units as required using partition curtains, a separate gymnasium for smaller groups or special types of sports, a two-sided grandstand for events, and a fitness room that can be used both for school and extracurricular purposes.
In addition, the new hall was intended to be usable across generations – with inclusive, barrier-free access and flexible usage options outside of school hours as well. The planning aimed to create a sports centre that strengthens physical activity, health promotion, and social interaction throughout the entire community.
OPENING: JUNE 2025
Location Schönberg in Holstein, Germany
Client / Operator Schulverband Probstei

Robust materials with a refined architectural language
Architecturally, the new building was designed as a clearly structured standalone volume that deliberately contrasts with the appearance of the existing school buildings while simultaneously establishing a harmonious connection to its surroundings. The proximity to the school and direct connection to the existing sports field promote short distances and seamless integration into daily school operations.
The exterior design combines robust materials with a refined architectural language. The entrance area is executed in exposed concrete and, through its reduced design, appears both inviting and functional. The hall areas are enclosed by a perforated, diagonally guided trapezoidal sheet metal facade, which lends the building a sense of lightness and creates interesting light and shadow effects. A continuous window band made of translucent profile glass runs around the building and accompanies visitors from the foyer through the stairwell to the grandstand and the fitness room. During the day, it provides bright, natural lighting, and at dusk it creates a striking external appearance.
Inside, a visible timber load-bearing structure defines the atmosphere of the hall areas. This is complemented by exposed concrete surfaces, wooden slatted walls, and seating benches, which give the building a warm, natural character. This combi-
nation of materials not only ensures a high-quality design but also contributes to pleasant room acoustics and clear internal orientation.
From a technical perspective, the new sports hall offers a high degree of functionality and flexibility. The three-court hall can be subdivided into smaller areas by means of partition curtains, enabling simultaneous use by different groups or school classes. In the separate gymnasium, permanently installed equipment eliminates set-up and dismantling times during school lessons – a major advantage given the tight schedule. Intensive shared use by sports clubs also allows for a greater variety of sports equipment to be provided. The facilities are complemented by an integrated fitness room that enables targeted strength and endurance training. A distinctive feature of the triple sports hall is that it is the first school sports hall in Schleswig-Holstein to have permanently installed gymnastics equipment. This creates excellent conditions at the talent school for gymnastics and football, enabling it to combine competitive and recreational sport effectively.
The building services also follow a clear, low-maintenance concept. An open, exposed installation reduces the number of suspended ceilings and simplifies access to technical components for maintenance and retrofitting.

The new sports hall was designed according to ecological, economic, and social sustainability criteria. A key element is the modular construction method with a high proportion of prefabricated components. These allow for a significantly shortened construction period and reduce material waste and construction debris. At the same time, the high degree of prefabrication ensures precise execution and consistent quality.
The hybrid timber construction combines the advantages of reinforced concrete in load-bearing areas with the ecological qualities of wood – particularly in the impact walls, seating surfaces, and interior wall claddings. The materials used are largely recyclable and separable, meaning that a large proportion can be reused or recycled in the event of future dismantling.
Another key sustainability feature is the use of renewable energy. The sports hall uses an air-source heat pump for heat supply, supplemented by a photovoltaic system and solar thermal energy. As a result, a large proportion of the energy demand is covered by renewable sources. The building meets the KfW 55 standard, significantly reducing energy consumption compared to conventional new buildings.
The natural lighting of the hall spaces through the translucent window band significantly reduces the need for artificial lighting. At the same time, natural ventilation supports a pleasant indoor climate and lowers the energy required for mechanical ventilation systems. The use of regional construction companies and materials strengthens the local economy and minimizes transport distances, further contributing to CO2 reduction.


The operational concept of the new sports hall is based on flexibility, inclusion, and close integration with the school and club life of the community. The hall was designed to be fully barrier-free – with stepfree access, wide circulation areas, and accessible sanitary facilities. This enables use by all age groups and segments of the population.
During school hours, the hall is available for regular classes and, thanks to its flexible spatial layout, offers ideal conditions for a wide variety of sports and teaching formats. In the afternoons, evenings, and on weekends, the hall is used by local sports clubs. The permanent availability of sports equipment and clearly defined functional areas facilitate smooth operation between the different user groups.
In addition, the presence of a grandstand allows the building to host sporting competitions and school events. The fitness room is available not only for individual training programmes during the school day but can also be used by clubs or as part of course offerings.
A special aspect is the possibility of using the building as a multi-purpose or emergency centre in case of need – for example, in the context of disaster response, vaccination campaigns, or other public events. In this way, the sports hall not only contributes to physical and social health but also fulfills an important societal function within the community.
Author: Dipl.-Ing. Architektin Bente Vierck
Design: Schnittger Architekten + Partner GmbH
Photos: MarcoKnopp/Kiel




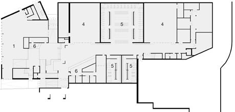
Markt Rettenbach in the Swabian district of Unterallgäu is a continuously growing community with a very committed and active club life. A central goal of the community, which has around 4,000 inhabitants, was to build a modern sports hall with an integrated clubhouse and new changing rooms for the existing sports facilities.
In the municipality of Markt Rettenbach, there had been a need for a new sports hall for all local clubs for quite some time. The project was made possible through urban development funding from the Government of Swabia as part of a special programme for sport for all. In addition, the project required the integration of a clubhouse as well as new changing rooms for the existing outdoor sports facilities.
On the site next to the grass sports field, there had previously been a simple wooden grandstand. The changing rooms were
located in the school building, meaning they were not directly connected to the sports field. The task was therefore to construct a multifunctional hall that could be used flexibly for as many sports as possible, integrate the clubhouse in a central location, and provide changing rooms for both the hall and football operations. Furthermore, a replacement for the grandstand that had to be dismantled was to be created. The middle school was to receive a previously lacking conditioning room in the new hall, which is also available to other sports groups after school hours.
OPENING: 2024
Location
Markt Rettenbach, Germany
Client / Operator
Marktgemeinde Markt Rettenbach
Architects Hrycyk Architekten BDA, www.hrycyk-architekten.de
Team
Sebastian Hrycyk, Thomas Weyrich, Christian Knezovic
Structural design Planungsgruppe Dittrich

At the northern edge of the town, a new 1.5-court sports hall for club sports was built in the immediate vicinity of the primary and secondary school as well as the existing sports facilities. Due to its slightly elevated position, the freestanding structure, developed in response to its function and the topography, now shapes the townscape. The entrance is located at the level of the school and parking lot, and thus one story above the hall level. At this point, the building volume opens up with a continuous recess, creating a covered forecourt and a transition to the lower-lying outdoor sports areas. The hall itself is situated to the west, while all ancillary rooms and additional functions adjoin the hall volume to the east across two floors.



This floor plan allows for clear orientation and a wide range of usage possibilities on both levels. The foyer and corridor on the entrance level also serve as a continuous grandstand overlooking the sports hall. The clubhouse, with visitor restrooms and a covered outdoor seating area, is centrally located at the entrance. Together with the continuous balcony facing the grass sports field, this terrace area can also be used as a covered spectator zone. It is directly connected to the sports field via an external staircase.
The hall level, with changing rooms and equipment storage, lies at ground level with the grass sports field and running track. Thanks to direct external access, the changing rooms can also be used by outdoor athletes. A covered bouldering wall with impact-absorbing surfacing was also created on the entrance side.
Barrier-free access to all areas, both inside and outside, was achieved through a step-free entrance from the parking lot as well as an elevator within the building. This ensures that the level located one story lower with the grass sports field and the running track is also fully accessible without thresholds.

By using sustainable building materials, applying current ecological standards, and implementing an energy-efficient construction method, the project fully meets the requirements of climate protection.
Apart from the retaining walls in the slope, the entire structure was built using timber construction, which is clearly expressed in the building’s clean lines and natural wooden facade. The simple building volume is clad with rough-sawn boarding made of local larch, while the recessed areas are distinguished by a smooth, planed facade. Even greater use of timber would hardly have been possible, both in the structural system and in the interior finishes as well as the external appearance.
The green roof makes an essential contribution to the hall’s climate control and to biodiversity. With the photovoltaic system installed on the roof, a large portion of the required electricity can already be covered. Heat is supplied by a new woodchip heating system, created as part of the project, which is shared with the primary and secondary school and replaces an oil heating system. As a result, 100% of the hall’s energy demand is met from renewable sources.
Author: Hrycyk Architekten BDA



University of Iowa Goschke Family Wrestling Training Center
The new wrestling training center is conceived as both a tribute to the University’s storied wrestling heritage and a forward-looking expression of its competitive aspirations. It is positioned aside the existing Carver-Hawkeye Arena with a spectator capacity of 15,500 seats for competition and events. OPENING: MAY 2024 Location Iowa City,
Contractor

Inspired by the ancient Ludus Magnus – the gladiator training ground in ancient Rome that connected directly to the Colosseum – the wres tling training center establishes a direct connection to the heart of the program through a dedicated tunnel between the two buildings. This symbolic gesture reinforces a powerful idea: preparation and competition are inseparable, and excellence is forged long before the athletes step onto the mat.
The site plays an equally significant role in shaping how visitors experience the building. Nestled into a wooded ravine and framed by the existing ‘Stonerise’ sculpture, the building engages its surroundings through careful placement and sectional strategy. The steep natural topography allows the most intensive training functions to be discreetly tucked below grade, minimizing visual impact while providing a thermally stable environment for athletes. Meanwhile, the tunnel connection to the arena floor strengthens event-day operations and reinforces the narrative that training and competition exist in a continuous cycle.

Architecturally, the building embodies clarity, discipline, and continuity. Its exterior is defined by weathered zinc and perforated metal cladding, materials selected for their strength, resilience, and ability to age with dignity. These solid, protective surfaces contrast with the glazed lobby, where transparency and openness welcome athletes, recruits, and visitors. This interplay between strength and approachability mirrors the ethos of the sport itself.
Inside, the building is organized across two primary levels that respond to the site’s natural grade changes and the functional demands of high-performance training. The upper level houses coaches’ offices, team lounges, and a spacious lobby that cel-

7. Laundry 8. Office
9. Training lobby
10. Training suite 11. Examination room
12. Mechanical
13. Wrestling room
ebrates both the men’s and women’s programs. Coaches’ offices overlook the central training space, offering a dramatic, elevated view of the mat area. This vantage point plays a strategic role in recruiting and often becomes the setting for early conversations with prospective student-athletes.
The lower level serves as the physical engine of the program. At its core is an 8,000-square-foot (743 m²) mat room – an expansive, two-story volume that anchors the entire training experience. Surrounding this space, locker rooms, strength training, and recovery zones are organized to support efficient athletic flow. Movement between these spaces mirrors the rhythms of training, reducing transition times and reinforcing a seamless performance environment.

Materiality throughout the interior expresses wrestling’s culture of grit, resilience, and honesty. Exposed structural systems make strength legible, while concrete and metal surfaces appear in their raw, uncoated state. These self-finishing materials reduce maintenance, improve air quality, and eliminate visual distractions that can dilute focus during high-intensity training. The architecture is intentionally unembellished, prioritizing performance and clarity over ornamentation. The result is a building that feels authentic to the sport – hardworking, grounded, and resolutely committed to excellence.
Technical systems are coordinated with precision to support the demands of the sport. Lighting, HVAC, and audiovisual systems are tailored to the physiological and psychological needs of wrestlers. Mechanical zoning ensures temperature and humidity conditions are optimized for each space – from high-intensity mat sessions to quiet moments of recovery. Daylight is introduced selectively, concentrated in administrative and social spaces that benefit from openness and views.
Public and private zones are carefully layered to support community engagement while preserving the focused environment needed for high-level athlete development. The upper-level lobby opens onto a landscaped plaza designed for gathering, celebration, and storytelling. Transparent facades offer glimpses into the facility’s activity without encroaching on training functions, striking a balance between visibility and protection.
Equity is embedded throughout the facility. Training, locker, and recovery spaces for the men’s and women’s teams are equal in size, quality, and adjacency. This reflects the rapid rise of women’s wrestling and positions both programs as essential to the future of the sport.
Shared lounges and a storytelling lobby encourage interaction among athletes, coaches, and visitors. These spaces showcase the program’s legacy through relocated trophies, graphics, and memorabilia – transitioning recognition from back-of-house areas into a prominent, light-filled public setting. This shift transforms the display of achievement into a shared, accessible experience that honors the past while inspiring future competitors.
The outdoor plaza further supports community connection. Designed with integrated seating and flexible gathering areas, it accommodates everything from casual student interactions to large-scale celebrations. Its strong physical and visual connection to the lobby strengthens the presence of the wrestling program within daily campus life and creates a welcoming front door for visitors and recruits.
Author: Neumann Monson Architects
Photos: Cameron Campbell Integrated Studio



Nolhaga ice rink in Alingsås
Nolhaga Ishall ice rink is located in scenic Nolhaga Park and is designed for club sports. An ice hockey club and a figure skating club train here. The spectator stands seat 500. The day before the building was officially opened in March 2025, the ice hockey club was fittingly promoted to the second division hockeyleague, giving everyone another reason to celebrate.
With a focus on community and activity, Nolhaga Ishall is a hub for sports enthusiasts and a key part of club life in Alingsås. It was planned in collaboration with Alingsåshem and Peab. Construction began with the ground-breaking ceremony in May 2023, with the ice rink opening in early 2025.
OPENING: MARCH 2025
Location Alingsås, Sweden
Client / Operator Alingsåshem and PEAB

The client‘s desire to build as much as possible using timber and fossil-free materials give the building as a whole its strong architectural character. One particular challenge was maximum building height stipulated in the development plan, which would have made the finished building too low for hosting league matches.
A sound structural solution had to be found that would meet both the ice hockey federation‘s headroom requirements and the development plan‘s specifications regarding maximum height and floor space.
The structural analysis of a glued laminated timber construction revealed that conventional beams or trusses of glulam would
have been too high. The only solution was to span the halls with six 85-metre-long glulam arches. Structural needs and function thus dictated the form, whose feasibility was confirmed by the structural engineers consulted. Inside the building, the arches 1.4 metres high and 0.6 metres wide are highly visible.
To create larger spaces for socialising and breaks, the facade was tilted outwards. This not only gives the interior spaces behind the sloping facade a special character, but also defines the external architectural design.
In addition to the challenges posed by the location, the task was to create a high-quality building for a municipal facility on a limited budget.

Based on the character of the location, the arching shape was also a logical consequence from a design perspective. The genius loci of Nolhaga Park, with its large old trees, expansive lawns and sparkling streams running through the park, as well as the high cliff forming a clear boundary to the north, called for an organic shape inspired by nature.
Materials for the roof and facades felt like an obvious choice, given the site itself - natural and renewable. The stone and slate facade references the granite of the cliff, the green roof the verdant park, and the glass surfaces the sparkling water. The interior wall cladding of birch plywood and a slatted ceiling of pine create a warm and inviting atmosphere. The choice of materials allows the architecture to engage in an active dialogue with the surroundings of the building as part of the park.


Located in the north, the main entrance also serves as public access for spectators. The entrance for athletes and reception are located in the west. This is where skate hire is located, for both figure skating and ice hockey. Large glass surfaces follow the curve of the building and accentuate the main entrance and the public meeting areas on two levels, with views of the park.
The ice rink with its capacity of 500 spectators is used for ice hockey and figure skating competitions. The building also has a large dance hall and a gym.

Foyer and café ideal for socialising
Directly accessible from the main entrance, the foyer and café serve as a meet-up spot for spectators before the various events. Directly annexed to the café and spectator stands are areas on two levels for socialising and breaks. Next to the café is a larger conference room overlooking the ice rink.
The intelligently designed layout provides for a large number of changing rooms and storage rooms – for both ice hockey and figure skating. There are also rooms for homework supervision before training sessions.
The interior also features natural, sustainable and renewable materials: walls made of birch plywood, floors of ash parquet, ceilings of pine panels and load-bearing arches of glulam. In other words, natural materials that all originate from the trees, grass and rock of the surrounding area.
The design also attached great importance to creating an environment that is as welcoming and inclusive as possible, with attractive public areas that bring people together.
Author: Jürgen Wahlström
Photos: James Silverman




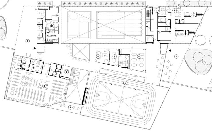
The Southeast Event Centre (SEC) in downtown Steinbach is a state-of-the-art, multi-purpose facility designed to be a cultural, recreational, and entertainment hub for southeastern Manitoba. Steinbach is a rapidly growing regional hub located on the eastern edge of the Canadian Prairies. The SEC officially opened in March 2025, culminating decades of planning and collaboration between city leadership, residents, and private partners. After a multidimensional stakeholder engagement process, the design represents the needs of the community while merging unique private investment requirements. The facility is truly a hybrid facility meant to consolidate its purpose as a community recreation campus for all.
OPENING: AUGUST 2025
Location Steinbach, Canada
Owner City of Steinbach
Group

The 112,000 square foot (10,405 m²) facility includes the primary program element, a multi-use spectator arena with a 2,400-seating capacity for ice sports (expandable to 4,000 for concerts), home to the Steinbach Pistons (MJHL), Eastman Selects and local associations. The arena brings emerging ideas in large arena design (NHL) while at a community arena scale. The design and program offer functional, accessible, and inclusive features for both participants and spectators. Dressing rooms, staging areas, volunteer spaces, ample storage, and service areas are meant to support the diverse program needs. Additionally, the Pistons Hockey team fundraised for its own tenant area that included a high-performance atmosphere focused on team operations, therapeutic space, team activities and a dedicated dressing room and associated amenities. Although the facility is focused on ice
hockey as a primary use with hopes to hold national events, the venue is well suited for so many other larger events, such as the Grand Slam of Curling (GSOC) held in early 2026.
Fulfilling the dynamic needs of the community, several multi-use spaces flank the arena complex, including a 500-seat gymnasium/hall for banquets, trade shows, and sports; multipurpose rooms; fitness areas with a surrounding walking/running track and associated wellness amenities. The hall is integral to the facility design offering programming for a multitude of court sports such as volleyball, basketball, badminton and pickleball, among others. The facility design will serve as a tournament destination for amateur sport for all ages and abilities filling a need that has in the past relied on local school gymnasiums.

Atrium plays a vital role
With a community known for its quality food exports, the facility features a French-inspired restaurant, concessions, and community atrium that brings people together. The atrium plays a vital role for the wide array of events that the venue can manage including concerts, sporting events, conferences, trade shows, and community celebrations. As with the cultural heritage in the region, the commissary and food services infrastructure is a vital aspect of the program, centrally located within the facility and fully integrated to offer menu options for day-to-day use or large vents.


Constructed at a cost of CAD 74.3 million, the SEC replaced the aging Centennial Arena (1967–2023) and added to an existing recreation campus. The connection to the existing recreation facility included a large indoor link, and space for a new children’s play zone and social areas for the public. The land acquisition of numerous residential properties that remained on the existing site began in the 1990s, with the vision of creating a downtown cultural hub. It was important for the project to play a role as a catalyst for sustainable development in this growing regional city. The design began during the COVID pandemic with construction starting in January 2023, culminating in a grand opening celebration in August 2025.
The funding for the project came from all levels of government combined with significant private contributions, sponsorships, and fundraising efforts. With federal and provincial funding, sustainability targets needed to be met. In Manitoba, a region of extremes with intense summer heat and cold winters, the design focused on a high-performance building envelope, energy optimization, passive solar strategies, local supplies and resources, greenhouse gases reductions and sustainable site planning features with extensive plantings and outdoor amenities such as an outdoor rink constructed from site harvested elm trees. The atrium of the centre is a mass timber frame, sustainably harvested in eastern Canada, but locally manufactured. The overall site as a downtown event space is already sparking interest in adjacent development opportunities.

The hybrid nature of the venue is further emphasized by the many unique attributes and processes that were embedded in the design process. Some of these features included a detailed sponsorship and wayfinding strategy, accessibility and inclusivity design reviews, audio-visual system specialization and enabling the City of Steinbach to be actively involved in supplying and installing components with their own forces. These local inputs can be seen in many parts of the facility, from a bouldering wall in the play zone to spectator counter and a space dedicated to local sports heroes and their stories.
The Southeast Event Centre was built by the community, for the community, aiming to bring people together and boost regional pride. It is expected to become a major driver of economic, cultural, and recreational growth in Steinbach and beyond.
Author: Jeff Penner MAA OAA MRAIC Project Architect
Photos: Stationpoint Photographic


Sports and gym solutions for cities and municipalities –flexible, standard-compliant, and future-proof

Rising student numbers, existing buildings in need of renovation, growing requirements for standards, accessibility, and energy efficiency – many municipalities face the same challenge: a lack of suitable sports and gymnasiums. At the same time, new buildings often cannot be constructed at short notice. This is precisely where solutions are needed that are quickly available, can be used in the long term, and can be adapted to the respective conditions.

Different starting points, same challenges
Whether it‘s an acute hall shortage, a renovation phase, or additional structural requirements, the need for sports facilities often arises at short notice, while planning and approval processes take time. Schools and clubs come under pressure, and sports activities have to be outsourced or restricted. At the same time, requirements for construction quality, safety, and legal specifications are increasing. Municipalities need solutions that take effect immediately – without hindering future decisions.
Flexible solutions – from temporary to permanent
NUSSLI develops and implements sports hall and gymnasium solutions across the entire spectrum of requirements. In Switzerland, fully demountable system halls are used – from small halls to triple gyms – which can be implemented within a few weeks in accordance with guidelines issued by BASPO (Swiss Federal Office of Sport), and can be used for many years. Up to 90 percent of the materials and equipment used are recyclable. In this way, the halls ensure immediate sports operations while remaining flexible for future developments.
In Germany, NUSSLI has implemented temporary solutions in the form of steel halls, which are planned and built within a few months. They can be used as fully-fledged sports facilities for several years, thus creating planning leeway for a long-term solution. Once the requirements have been clearly defined, NUSSLI implements permanent halls using rapid construction methods. Prefabrication, precise planning, and efficient processes significantly reduce construction times without compromising on quality or usability.
Experience that can be adapted
All projects share a holistic approach: NUSSLI understands the various legal frameworks, standards, and usage requirements and translates them into tailor-made construction solutions. Whether temporary or permanent, simple or complex, each hall is tailored to specific needs and designed from
the planning stage to be economical, functional, and sustainable in the long term.
Planning security for today and tomorrow For municipalities, this means one thing above all else: flexibility. NUSSLI sports halls provide shortterm relief and at the same time open up prospects for long-term development. They ensure operations can continue, give time for strategic decisions, and prove that flexible construction methods and high quality of use are not a contradiction in terms.
Author: NUSSLI , www.nussli.com
Photos: NUSSLI




The city of Biel-Magglingen has long served as a backbone for elite sports in Switzerland. In recent years, a growing number of regional training centres have established themselves in the city alongside the leading national performance hubs. The most recent example is the Bözigenfeld indoor sports complex, a multifunctional training facility that serves as a home for gymnasts, sport climbers and roller sports athletes. The facility opened its doors last year and operates on the basis of an operational and financing model developed by BPM Sports.
What makes this new gem special is that elite and grassroots sports come together at Bözigenfeld, allowing the local sports scene to benefit as well. For example, it’s nearby schools that use the inline halls during the day. Overall, the operational guidelines prioritize cost efficiency and a high degree of autonomy for tenants in both utilization and management. In return, tenants contribute corresponding rental fees, which help alleviate the project initiator’s (the city) financial burden.
BPM Sports is a Swiss-based specialist for public-sector sports infrastructure, active both in Switzerland and in neighbouring countries.


Modern sports halls and indoor exercise rooms place high demands on safety and architectural quality. Solutions are needed that provide reliable protection without restricting the spatial effect, light guidance and openness. The X-TEND Stainless Steel Cable Mesh meets these requirements and has established itself as a versatile fall protection and safety system in indoor and outdoor sports architecture.
A striking example is the Hiwa Wellness Centre at the University of Auckland in New Zealand. Running tracks run along several levels inside the building, secured with floor-to-ceiling X-TEND Stainless Steel Cable Meshes. The meshes provide the necessary fall protection and are virtually transparent. Visual connections are maintained, the space appears open and spacious, while exercise and recreation areas are safely separated from each other – a key aspect in heavily frequented sports halls.
European Technical Assessment
ETA-22/0257 forms the basis for the use of X-TEND as a fall protection and safety mesh. It enables static calculations and installation in accordance with standards and guidelines in line with the European Construction Products Regulation. Regular external monitoring ensures consistently high production and product quality.
In addition, the system is RC3-tested and EPD-global certified according to ISO14025 and EN15804+A2, which supports its use in safety- and sustainability-oriented sports construction projects. Made of durable, fully recyclable V4A stainless steel, X-TEND impresses with its low weight and high load-bearing capacity at the same time. Different mesh sizes and cable diameters enable filigree, room-high constructions with large spans. In addition, the mesh catches balls silently and remains dimensionally stable. Production takes place in our own factories in Europe and the USA, enabling us to meet requirements such as ‘Buy American’.
Carl Stahl ARC GmbH www.carlstahl-architektur.com


Since December 2025, Michael Fritsch has strengthened the management team of Proludic Germany as Sales Manager. The sales and marketing professional brings extensive expertise in both traditional and digital sales from mid-sized companies and startups. He now leads the nationwide team of regionally based area sales managers and aims to further professionalize customer consulting and collaboration with partners.
In addition to commercial and technical expertise, Michael Fritsch contributes training, certification, and practical experience in psychological process and developmental work. This form of therapeutic support is also successfully applied in coaching and mentoring of specialists and managers. Particular emphasis is placed on the connection between body and psyche, which is understood as an essential prerequisite for healthy human development.
Proludic intends to use this know-how in two ways: on the one hand, to strengthen the personal skills and capabilities of its employees. At the same time, this knowledge about the physical and psychological development of children, adolescents, and adults is to be applied in the context of playground and recreational sports projects.
Michael Fritsch is the father of two children and describes his motivation for working in our industry as follows: “I want to create good places – together with and for our users and customers, but just as much for the people at Proludic.”


TOP-SPORT GmbH stands for expertise, innovation and quality in the field of complete sports hall interior construction. With over 25 years of experience in research and development, construction management, sales and installation, we are now one of the leading providers in our market segment – and we are constantly evolving.
Together with our customers, partners and athletes, we have set standards, particularly in the field of innovative sports flooring systems. Our numerous systems offer you the optimal solution for your needs.
With the acoustic and impact wall systems of our polysport® brand, we create optimal conditions for sports halls and multipurpose rooms. Already in the planning phase, wooden impact wall modules, built-in elements and acoustic panels are considered as a unit in order to perfectly combine design, function and acoustic and safety-related specifications.
Our goal is to transform innovative ideas into practical and sustainable solutions. We focus on the customer: from the initial needs analysis to the holistic concept, we offer everything from a single source. Our full-service approach enables a trusting, cooperative partnership.
Through our involvement in professional associations, standards committees and close cooperation with our suppliers, we ensure the highest quality standards in the long term and always stay one step ahead technologically.
TOP-SPORT GmbH www.topsport-gmbh.de
IAKS member companies go one step ahead with „Professionals & Profiles“. And position themselves prominently – in print and online. Report on your innovations and references in sb magazine and the IAKS newsletter and on our website. It goes without saying that your architect or supplier logo appears in every issue – and is sure to catch the eye of your business partners.

ACO GmbH 24782 Büdelsdorf, Germany tief-galabau@aco.com www.aco-sport.de
» Drainage systems
» Sports ground construction
» Sports ground equipment

Sekisui Alveo AG 6043 Adligenswil, Switzerland info@alveosport.com www.alveosport.com
» Artifical turf
» Elastic layers; protecting surfaces
» Indoor sports floorings
» Outdoor sports floorings
» Sports ground construction

ASB GlassFloor Systembau Horst Babinsky GmbH 83371 Stein, Germany info@asbglassfloor.com www.asbglassfloor.com
» Indoor sports floorings
» Mobile floorings, cover systems
» Multi-sport courts


ADT Informationssysteme GmbH 82229 Seefeld, Germany info@isyline.eu www.adt-infosystems.com
» Ice rinks, arenas, sports grounds
» Display and signage systems
» Lighting systems
» Perimeter boards, nettings
» Stands, seating

ANRIN GmbH 59609 Anröchte, Germany info@anrin.com www.anrin.com
» Drainage systems
» Sports ground construction
» Sports ground equipment

AST Eissport und Solaranlagenbau GmbH 87629 Füssen, Germany hannes.schretter@ast.at www.ast.at
» Aquatic equipment
» Ice hockey boards
» Ice resurfacers
» Ice rink construction
» Ice sports equipment
AGROB BUCHTAL
Solar Ceramics GmbH 92521 Schwarzenfeld, Germany info@agrob-buchtal.de www.agrob-buchtal.de
» Aquatic construction
» Pool construction; ceramics

Arbeitskreis Trennvorhänge e.V. 42327 Wuppertal, Germany info@arbeitskreis-trennvorhaenge.de www.arbeitskreis-trennvorhaenge.de
» Indoor equipment
» Sports hall dividers

Avant Sports Industrial Co.,Ltd 518108 Shenzhen, China sales@avant.com.cn www.avantseating.com
» Artificial turf
» Multi-sport courts
» Stands, seating

Bänfer GmbH Sportmanufaktur 34537 Bad Wildungen, Germany info@baenfer.de www.baenfer.de
» Elastic layers, protecting surfaces
» Indoor equipment
» Mobile floorings; cover systems
» Temporary and modular constructions

BLOACS 50935 Cologne, Germany info@bloacs.de www.bloacs.de
» Multi-sport courts
» Outdoor equipment
» Sports ground equipment
» Playground equipment

Carl Stahl ARC GmbH 73079 Süßen, Germany xtend@carlstahl-arc.com www.carlstahl-architektur.com
» Facades and building envelopes
» Perimeter boards, nettings
» Playground equipment
» Security systems, fencing
» Sports ground equipment

DSGN CONCEPTS GmbH 48145 Münster, Germany info@dsgn-concepts.de www.dsgn-concepts.de
» Landscape design
Gotthilf Benz Turngerätefabrik GmbH+Co KG 71364 Winnenden, Germany info@benz-sport.de www.benz-sport.de
» Aquatic equipment
» Fitness equipment
» Indoor equipment
» Outdoor equipment
» Sports ground equipment

BERNDORF
Metall- und Bäderbau GmbH 2560 Berndorf, Austria office@berndorf-baederbau.com www.berndorf-baederbau.com
» Aquatic construction
» Aquatic equipment
» Pool construction, stainless steel

BPM Sports GmbH 3011 Bern, Switzerland rainer.gilg@bpm-sports.ch www.bpm-sports.ch
» Multipurpose arenas, stadiums
» Climbing facilities, sports halls
» Public spaces and parks
» Pools and aquatic facilities
» Specialized sports facilities

Conica AG 8207 Schaffhausen, Switzerland info@conica.com www.conica.com
» Indoor sports floorings
» Outdoor sports floorings
» Sports ground construction
Brinkmann + Deppen Architekten / Landschaftsarchitekten 48336 Sassenberg, Germany info@brinkmann-deppen.de www.brinkmann-deppen.de
» Architecture and design
» Landscape design

CustomBars GmbH 26723 Emden, Germany info@custombars.de www.custombars.de
» Elastic layers, protecting surfaces
» Fitness equipment
» Outdoor equipment
» Multi-sport courts
» Playground equipment

eccos pro gmbh 42553 Velbert, Germany info@eccos-pro.com www.eccos-pro.com
» Aquatic equipment
» Changing rooms and equipment
» Fitness equipment
» Ice sports equipment
» Ticketing, access systems
ENGO GmbH Srl 39040 Vahrn (BZ), Italy info@engo-ice.com www.engo-ice.com
» Ice hockey boards
» Ice rink construction
» Ice resurfacers
» Ice sports equipment
» Mobile floorings, cover systems

Eurotramp-Trampoline Kurt Hack GmbH 73235 Weilheim / Teck, Germany eurotramp@eurotramp.com www.eurotramp.com
» Aquatic equipment
» Indoor equipment
» Playground equipment
» Sports ground equipment

geo3 GmbH 47551 Bedburg-Hau, Germany kontakt@geo3.de www.geo3.de
» Architecture and design
» Landscape design
» Feasibility studies
GEZOLAN AG 6252 Dagmersellen, Switzerland customer-service@gezolan.com www.gezolan.com
» Artificial turf
» Elastic layers, protecting surfaces
» Multi-sport courts
» Outdoor sports floorings
» Sports ground construction

Hamberger Flooring GmbH & Co. KG 83071 Stephanskirchen, Germany info@haro-sports.com www.haro-sports.com
» Indoor sports floorings
» Protecting surfaces
» Mobile floorings
» Cover systems

Herculan BV 4231 DJ Meerkerk, Netherlands info@herculan.com www.herculan.com
» Indoor sports floorings
» Multi-sport courts
» Outdoor sports floorings

GfKK – Gesellschaft für Kältetechnik- Klimatechnik mbH 50859 Köln, Germany info@gfkk.de www.gfkk.de
» Ice rink construction
» Ice sports equipment
» Sanitary, heating, air conditioning, energy recovery
Join us

HET Elastomertechnik 65203 Wiesbaden, Germany info@het-group.com www.het-group.com
» Elastic layers, protecting surfaces
» Fitness equipment
» Playground equipment
» Outdoor sports floorings
Gerflor Mipolam GmbH 53824 Troisdorf, Germany gerflormipolam@gerflor.com www.gerflor.de
» Indoor sports floorings
» Mobile floorings, cover systems

Gütegemeinschaft Sportgeräte 53113 Bonn, Germany info@sichere-sporthalle.de www.sichere-sporthalle.de
» Indoor equipment
» Sports ground equipment
» Testing, quality assurance

Hauraton GmbH & Co. KG 76437 Rastatt, Germany info@hauraton.com www.hauraton.com
» Drainage systems
» Sports ground construction

Intercom Dr. Leitner 39040 Freienfeld, Italy intercom@leitner.it www.realice.info
» Ice hockey boards
» Ice rink construction
» Ice resurfacers

INTERGREEN AG 60433 Frankfurt, Germany info@intergreen.de www.intergreen.de
» Artificial turf
» Cleaning and maintenance
» Hybrid turf
» Natural turf
» Sports ground construction

Jakob Rope Systems 3555 Trubschachen, Switzerland info@jakob.com www.jakob.com
» Facades and building envelopes
» Security systems, fencing
» Perimeter boards and nettings
» Play- and sports ground equipment

Hermann Kutter LandschaftsbauSportplatzbau GmbH & Co. KG 87700 Memmingen, Germany info@kutter-galabau.de www.kutter-galabau.de
» Artificial turf
» Cleaning and maintenance
» Hybrid turf
» Natural turf
» Sports ground construction

ISP GmbH 48167 Münster, Germany info@isp-germany.com www.isp-germany.com
» Testing, quality assurance

JUNCKERS INDUSTRIER A/S 4600 Køge, Denmark info-exp@junckers.com www.junckers.com
» Indoor sports floorings
» Multi-sport courts
» Sports hall construction
» Stadium and arena construction
» Temporary and modular constructions

Herbert Labarre GmbH & Co. KG 22337 Hamburg, Germany info@labarre-galabau.de www.labarre-galabau.de
» Artificial turf
» Cleaning and maintenance
» Hybrid turf
» Natural turf
» Sports ground construction

ISS GmbH 63263 Neu-Isenburg, Germany info@iss4u.de www.iss4u.de
» Aquatic equipment
» Ice hockey boards
» Ice rink construction
» Ice resurfacers
» Ice sports equipment

Kernig Consulting GmbH 48155 Münster, Germany info@andreaskernig.de www.kernig-consulting.de
» Consulting
» Fitness centres
» Pools and aquatic facilities
» Architecture & design
Labor Lehmacher | Schneider GmbH & Co. KG 49076 Osnabrück, Germany info@labor-lehmacher.de www.l-l-s.de
» Testing, quality assurance
Your product and company information on a half page, newsletter feature, plus your logo in the company index –for just EUR 980 per year.

Landskate GmbH
50823 Köln, Germany info@lndskt.de www.lndskt.de
» Landscape design
LAUSIN Y VICENTE S.L.
50420 Cadrete, Spain export@lausinyvicente.com www.lausinyvicente.com
» Indoor equipment
» Playground equipment
» Sports ground equipment
» Sports hall dividers
» Stadium and arena equipment


Max Rosenau, Marketing rosenau@iaks.sport
Jannis Krampen, Marketing krampen@iaks.sport
McArena GmbH 71522 Backnang, Germany info@mcarena.de www.mcarena.de
» Multi-sport courts
» Sports hall construction
» Turnkey construction

Melos GmbH 49324 Melle, Germany info@melos-gmbh.com www.melos-gmbh.com
» Elastic layers, protecting surfaces
» Multi-sport courts
» Outdoor sports floorings
» Sports ground construction

NUSSLI Group 8536 Hüttwilen, Switzerland information@nussli.com www.nussli.com
» Sports hall construction
» Stadium and arena construction
» Stands, seating
» Temporary and modular constructions
» Turnkey construction

Pellikaan Bauunternehmen Deutschland GmbH 40880 Ratingen, Germany info@pellikaan.de www.pellikaan.de
» Aquatic construction
» Aquatic equipment
» Sports hall construction
» Turnkey construction

M3 Architectes 2737 Luxembourg, Luxembourg mail@m3archi.lu www.m3archi.lu
» Architecture and design

maier landschaftsarchitektur / Betonlandschaften 51107 Köln, Germany info@maierlandschaftsarchitektur.de www.maierlandschaftsarchitektur.de
» Landscape design

MYRTHA POOLS A&T Europe SPA 46043 Castiglione d/Stiviere (MN), Italy info@myrthapools.com www.myrthapools.com
» Aquatic construction
» Pool construction, other systems
» Pool construction, stainless steel

PERROT-Regnerbau Calw GmbH 75382 Althengstett, Germany perrot@perrot.de www.perrot.de
» Irrigation systems
Play-Parc
Allwetter-Freizeitanlagenbau GmbH 33014 Bad Driburg, Germany info@playparc.de www.playparc.de
» Fitness equipment
» Indoor equipment
» Multi-sport courts
» Outdoor equipment
» Sports ground equipment

Proludic GmbH 73037 Göppingen, Germany info@proludic.de www.proludic.de
» Multi-sports facilities
» Playground equipment
» Sports ground equipment
» Outdoor equipment

Rasenplan GmbH 4125 Riehen, Switzerland info@rasenplan.com www.rasenplan.com
» Architecture and design
» Landscape design
» Consulting
» Project management
» Feasibility studies

Robbins Sports Surfaces OH 45226 Cincinnati, USA info@robbinsfloor.com www.robbinsfloor.com
» Indoor sports floorings
» Mobile floorings, cover systems
» Multi-sport courts

Polytan GmbH 86666 Burgheim, Germany info@polytan.com www.polytan.de
» Artificial turf
» Cleaning and maintenance
» Elastic layers, protecting surfaces
» Outdoor sports floorings
» Sports ground construction

VIACOR Polymer GmbH 72108 Rottenburg a. N., Germany info@viacor.de www.viacor.de
» Artificial turf
» Elastic layers, protecting surfaces
» Indoor sports floorings
» Outdoor sports floorings
» Sports ground construction

PS+ Planung von Sportstätten 49078 Osnabrück, Germany info@ps-planung.de www.ps-planung.de
» Architecture and design
» Landscape design

REGUPOL Germany GmbH & Co. KG 57319 Bad Berleburg, Germany info@regupol.de www.regupol.com
» Elastic layers, protecting surfaces
» Indoor sports floorings
» Mobile floorings, cover systems
» Outdoor sports floorings
» Playground equipment

Schmitz B.V. 6045 JC Roermond, Netherlands sales@schmitzfoam.com www.schmitzfoam.com
» Artifical turf
» Elastic layers; protecting surfaces
» Outdoor sports floorings
» Sports ground construction
Sika Nederland B.V. (Pulastic sports flooring) 7400 AK Deventer, Netherlands export@nl.sika.com www.pulastic.com
» Ceilings, windows, walls
» Indoor sports floorings
» Multi-sport courts
» Outdoor sports floorings

RICHTER Sportstättenkonzepte GmbH 07629 Hermsdorf, Germany info@sportstaettenkonzepte.de www.sportstaettenkonzepte.de
» Architecture and design
» Landscape design

Signgrass® NIK-Tufting BV 5571 TJ Bergeijk, Netherlands info@signgrass.com www.signgrass.com
» Artifical turf
» Multi-sport courts
» Outdoor sports floorings
» Sports ground construction
» Sports ground equipment

Silidur AG 8450 Andelfingen, Switzerland info@silidur.ch www.silidur.ch
» Public spaces and parks
» Multi-sport courts
» Sports ground equipment
» Stadium and arena equipment
» Elastic layers, protecting surfaces

SMG Sportplatzmaschinenbau GmbH 89269 Vöhringen, Germany info@smg-machines.com www.smg-machines.com
» Cleaning and maintenance
» Sports ground construction
» Sports ground equipment

Siteco Beleuchtungstechnik GmbH 83301 Traunreut, Germany info@siteco.de www.siteco.de
» Lighting systems

SMC2 S.A.S. 69440 Mornant, France contact@smc2-construction.com www.smc2-construction.com
» Ceilings, windows, walls
» Facades and building envelopes
» Fixed and retractable roofing systems
» Temporary and modular constructions
» Turnkey construction

Holz-Speckmann GmbH & Co. KG 33790 Halle/ Westfalen, Germany info@speed-lock.com www.speed-lock.com
» Indoor sports floorings
» Mobile floorings, cover systems

SpOrt concept GmbH 70199 Stuttgart, Germany eisenbraun@sportconcept.de www.sportconcept.de
» Architecture and design
» Feasibility studies
Tatamsport 50014 Zaragoza, Spain tatamsport@toldosserrano.com www.tatamsport.com
» Indoor equipment
» Sports hall dividers
STARGUM Stankiewicz Sp.j. 73-110 Stargard, Poland sales@stargum.pl www.stargum.pl
» Artificial turf
» Elastic layers, protecting surfaces
» Indoor sports floorings
» Multi-sport courts
» Outdoor sports floorings

TOP-SPORT GmbH
Sporthalleninnenausbau 33378 Rheda-Wiedenbrück, Germany info@topsport-gmbh.de www.topsport-gmbh.de
» Sports hall floors
» Impact walls
» Acoustic elements
» Built-in elements
» Ceilings

Spieth Gymnastics GmbH 73776 Altbach, Germany info@spieth-gymnastics.com www.spieth-gymnastics.com
» Elastic layers, protecting surfaces
» Indoor equipment
» Mobile floorings, cover systems
» Sports ground equipment

STOCKMEIER URETHANES GmbH & Co.KG 32657 Lemgo, Germany urethanes.ger@stockmeier.com www.stockmeier-urethanes.de
» Elastic layers, protecting surfaces
» Indoor sports floorings
» Outdoor sports floorings

Trenomat GmbH & Co. KG
42327 Wuppertal, Germany info@trenomat.de www.trenomat.de
» Indoor equipment
» Mobile floorings, cover systems
» Perimeter boards, nettings
» Sports hall dividers

Troldtekt A/S 8310 Tranbjerg J., Denmark info@troldtekt.com www.troldtekt.com
» Ceilings, windows, walls

WM technics GmbH 39053 Blumau, Italy info@wm-technics.com www.wm-on-ice.com
» Ice resurfacers
Vindico Sport GmbH 73432 Aalen-Ebnat, Germany info@vindico-sport.de www.vindico-sport.com
» Outdoor equipment
» Multi-sport courts
» Stadium and arena equipment
» Sports ground construction
» Sports ground equipment

ZELLER bäderbau GmbH 89520 Heidenheim, Germany info@zeller-baederbau.com www.zeller-baederbau.com
» Aquatic construction
» Aquatic equipment
» Pool construction, stainless steel


Your additional benefits
Your feature in ‘sb’, on IAKS website and through IAKS newsletter

Hans-Joachim Weitzel GmbH & Co. KG 25436 Tornesch, Germany schult@hjweitzel.de www.hjweitzel.de
» Artificial turf
» Elastic layers, protecting surfaces
» Multi-sport courts
» Outdoor sports floorings
» Sports ground construction

Züko Deutschland GmbH 78176 Blumberg, Germany deutschland@zueko.com www.zueko.com
» Changing rooms and equipment
» Ice hockey boards
» Ice resurfacers
» Ice rink construction
» Ice sports equipment

Present your company, your products and reference projects in up to three half-page features per year in ‘sb‘.
Share your innovations through impactful visuals and compelling content. Your features will also be presented on the IAKS website and through the IAKS newsletter, at no extra cost.
Company index listing in ‘sb’
Gain visibility in every issue of sb with your full company address and logo featured in the A–Z company index and service directory.
Premium database entry on IAKS website
Stand out in our online directory with your detailed company profile, including:
• Up to 10 core business activities (regular 3 activities)
• A detailed company description (profile, history, innovations, and references)

International magazine for sports, leisure and recreational facilities
Edited and published by





SECRETARY GENERAL WITH OVERALL RESPONSIBILITY
Klaus Meinel meinel@iaks.sport
EDITORIAL BOARD
Silke Baltzer baltzer@iaks.sport +49(0)221 168023-11
GRAPHIC DESIGN
Victoria Page page@iaks.sport +49(0)221 168023-12
ACCOUNTING
Cathrin Völlmecke voellmecke@iaks.sport +49(0)221 168023-14



MARKETING
Maximilian Rosenau rosenau@iaks.sport
+49(0)221 168023-13
MARKETING
Jannis Krampen krampen@iaks.sport
+49(0)221 168023-17
MARKETING
Christoph Lieck lieck@iaks.sport
+49(0)221 168023-18
EDITORIAL BOARD AND PUBLISHER IAKS
International Association for Sports and Leisure Facilities
Eupener Straße 70 50933 Cologne, Germany
+49(0)221 16 80 23-0 sb@iaks.sport
TRANSLATION/EDITORIAL REPORT
Tim Chafer, ExperTeam Otto-Hahn-Str. 57, 40591 Düsseldorf, Germany
Euro-Sprachendienst Jellen Rheinaustr. 125, 53225 Bonn, Germany www.euro-sprachendienst.de
SUBSCRIPTION PRICE 2026
65 EUR Germany 85 EUR Other countries 15 EUR Single issue
ISSN (Print): 0036-102X ISSN (Internet): ISSN 2198-4271
Jurisdiction and place of performance: Cologne, Germany For advertisement prices, see 2026 Media Data.
Limberg-Druck Industriestr. 17 41564 Kaarst, Germany www.limberg.de
The publisher has unlimited rights to work accepted for printing. Reprint or duplication, even of extracts, is only permitted with the publisher‘s written consent.







Whether you are on your way to Rome or to a new sports hall, with Pellikaan you will always arrive at the right destination. From winding side roads to motorways, we keep a firm grip on the wheel.
Cooperation, digitalisation and sustainability characterise every project we realise. We use the LEAN method to continuously optimise the planning and construction process. This means we know exactly when it’s time to change lanes.
We don’t just look at tomorrow, but at the entire road ahead. This enables us to build efficiently, thoughtfully and with the future in mind.
Will you join us on this journey?

www.pellikaan.de




