

Unser Netzwerk
Eine aktive Welt ermöglichen!

Treten Sie einem dynamischen Netzwerk aus Architekten, Ingenieuren, Designern, Vereinen, Verbänden, Behörden und Branchenexperten bei. Tauschen Sie Ideen aus, lernen Sie voneinander und gestalten Sie funktionale, nachhaltige und zukunftsfähige Sport- und Freizeitstätten. Lassen Sie uns gemeinsam bessere Sport- und Freizeitanlagen schaffen!

Vorteile einer IAKS-Mitgliedschaft
Erschließen Sie sich mit dem internationalen Netzwerk der IAKS eine Welt voller Fachwissen und innovativer Lösungen, um eine aktivere Welt zu fördern. Erhalten Sie Zugang zu Informationen und Innovationen, die die Zukunft Ihrer Einrichtungen gestalten können. Mit unserem internationalen Netzwerk können Sie sich an die Spitze der Branchenentwicklung setzen. Informieren Sie sich noch heute über Ihre Mitgliedschaft und werden Sie Teil unserer Gemeinschaft von Innovatoren!
Als Mitglied
• unterstützen Sie unsere gemeinsame Vision, eine aktive Lebensweise für Alle zu ermöglichen
• tragen Sie dazu bei, die Stimme und Sichtbarkeit unserer Branche in 153 Ländern zu stärken
• bleiben Sie durch unseren zweiwöchentlichen Newsletter auf dem Laufenden – das regelmäßige Update zu Trends, Hintergrundinfos und aktuellen Entwicklungen
• profitieren Sie von der Teilnahme an IAKS Veranstaltungen und dem zweijährlich stattfindenden IAKS Kongress bei attraktiven Rabatten
• erhalten Sie kostenfreien Zugang zu exklusiven Inhalten für Mitglieder, darunter Whitepaper, Fallstudien und Expertenanalysen
• erhalten Sie ein kostenloses Abonnement der “sb”, der weltweit führenden Fachzeitschrift unserer Branche
• profitieren Sie von einem 15 % Rabatt auf Anzeigen in der “sb”, auf der IAKS Website sowie in unseren Newslettern – und maximieren so Ihre Reichweite über einflussreiche Kanäle
iaks.sport/become-member
Machen Sie mit!
© IAKS

EDITORIAL
Liebe IAKS-Mitglieder, liebe Freunde der
„sb“,
die Ära der rein funktionalen Sporthalle, die nur einem Zweck dient, ist vorbei. Weltweit etabliert sich eine neue Typologie kommunaler Sport- und Freizeitzentren, die nicht nur die körperliche Aktivität, sondern auch die soziale Kohäsion aktiv fördern, für Nachhaltigkeit stehen und das menschliche Wohlbefinden stärken. Entwürfe wie die Nolhaga Ishall in Schweden, das UBC Aquatic Centre in Kanada und die Gemeindehalle in Kirchheim, Deutschland, sind Vorreiter dieser stillen Revolution und dienen als Blaupause für die städtische Infrastruktur der Zukunft.
Diese wegweisenden Entwürfe basieren auf wirkungsvollen Gestaltungsgrundsätzen, die über rein funktionale Anforderungen hinausgehen. Die architektonische Identität ist dabei zentral. Diese Anlagen sind als Orte der Identifikation konzipiert, die mit ihrem jeweiligen Kontext in Resonanz treten. Die Eislaufhalle Nolhaga mit ihrem Holzbogendach, das auf die Baumkronen im umliegenden Park eingeht, wird zu einer leuchtenden Winterlaterne. In Kirchheim spiegelt die auf den Standort abgestimmte Materialpalette der sanierten Gemeindehalle den Rhythmus und die Textur der umliegenden Weinberge wider und macht einen veralteten Bestand zu einem kommunalen Wahrzeichen. Diese bewusst gesetzte Schönheit stiftet immensen lokalen Stolz und demonstriert die Wertschätzung der Gemeinschaft für sich selbst und ihre gemeinsam genutzten Räume.
Entscheidend ist, dass diese Zentren als Motoren der sozialen Entwicklung konzipiert sind, ausgelegt ebenso auf Begegnung wie auf sportlichen Wettbewerb. Das Carrville Community Centre in Ontario, Kanada, vereint Räume für sportliche Aktivität und soziale Begegnung unter einem Dach und etabliert sich so als zentraler Anlaufpunkt für ein generationenübergreifendes Miteinander. In der Nolhaga Ishall wird die Eisfläche um eine warme Picknickhalle ergänzt, die zu sozialer Begegnung einlädt. Im Southeast Event Centre im kanadischen Steinbach ist Veränderung Programm. Die Anlage ist konzipiert als lebendiger, anpassungsfähiger Raum im Herzen der Gemeinschaft, der sie dient. Geleitet von einem menschenzentrierten Leitbild zeigt die Sporthalle Schönberg in Deutschland, wie eine umsichtige und verantwortungsvolle Architektur in der Gemeinde sinnstiftende Wirkung entfalten kann. Mittels bewusster Gestaltung der Räume zwischen den Aktivitätszonen, der Foyers, Cafés und Lounges wirken diese Anlagen der sozialen Isolation entgegen und verdichten das soziale Gefüge, indem sie zu echten Lebensräumen für ihre Städte werden.
Grundlage dafür ist eine nicht verhandelbare Verpflichtung zu Nachhaltigkeit und verantwortungsvoller Ressourcennutzung. Diese Entwürfe zeigen, dass Umweltverantwortung eine Kernfunktion ist und kein ergänzendes Beiwerk. Das UBC Aquatic Centre erhielt die LEED Gold-Zertifizierung. Beim Sanierungsprojekt in Kirchheim wurden zusätzliche gebundene Kohlenstoffemissionen durch intelligentes Upcycling der alten Betonhülle vermieden. Über das in der Sporthalle Markt Rettenbach in Deutschland verwendete einheimische Holz wurde der Lebenszyklus des Gebäudes mit der regionalen Ökologie verbunden. Im Lake Country Co-op Leisure Centre im kanadischen Prince Albert wird die Kälte des Eises in Wärme umgewandelt, Lobby und Zuschauerbereiche werden über ein innovatives Wärmerückgewinnungssystem nachhaltig beheizt.
Diese Entwürfe dienen als öffentliche Demonstration einer nachhaltigen Zukunft und stellen letztendlich die Nutzererfahrung in den Fokus. Vorbei sind die Zeiten fensterloser, neonbeleuchteter Kästen. Großzügiger Tageslichteinfall, warme Materialien wie Holz und eine sorgfältig geplante Akustik lassen eine gesunde, motivierende und einladende Atmosphäre entstehen. Ob die freundliche, lichtdurchflutete Wärme der Halle in Markt Rettenbach oder das konzentrierte, disziplinierte Umfeld des Goschke Wrestling Centre in Iowa, USA: Das Gestaltungskonzept unterstützt unmittelbar das Wohlbefinden der Nutzer und ihre jeweilige Nutzungsintention.
Von großen und inklusiven Zentren wie Carrville und Nolhaga bis hin zu auf Konzentration ausgelegten Anlagen wie Goschke belegen diese Projekte eine eindeutige These: Wirklich relevante Sportbauten übernehmen eine klare gesellschaftliche Aufgabe. Sie wirken als Orte der Identifikation, die Stolz erzeugen, als Orte der Begegnung, die soziale Verbindungen fördern, als nachhaltige Modelle für die Zukunft und als Räume, die den Menschen in den Mittelpunkt stellen und das tägliche Leben bereichern. Dies ist der neue Standard, bei dem die Architektur nicht nur als Hülle für den Sport fungiert, sondern aktiv die Gemeinschaften stärkt, denen sie dient.
Matt Body
Senior Associate bei WARREN AND MAHONEY, Vorsitzender IAKS Australien & Neuseeland
Matt Body




SPORTHALLEN UND INDOOR








Titel:

Fachwissen, Inspiration und Austausch rund ums Eis
24. IAKS Eismeistertagung in Chemnitz, 24.-26. März 2026
Mit der spannenden Mischung aus Industriegeschichte, Kultur und urbanem Flair bildet Chemnitz den idealen Rahmen für drei intensive und informative Veranstaltungstage. Bereits zum 24. Mal treffen sich Eismeister, Betriebsleiter und Mitarbeiter von Kunsteisbahnen zur IAKS Eismeistertagung, um neue Impulse zu sammeln, voneinander zu lernen und bestehende Kontakte zu vertiefen.


Im Mittelpunkt der IAKS Eismeistertagung stehen kurze Fachvorträge, technische Impulse und Workshops, die konkrete Herausforderungen des Eisbetriebs aufgreifen. Die Formate vermitteln Wissen mit konkretem Praxisbezug – von Energiefragen über Sicherheit bis hin zur Eisqualität.
Auszug aus dem Programm:
Aus der Praxis, für die Praxis
• Krisenmanagement am Beispiel „Störfall Ammoniak“: Das Team der Eisarena Bremerhaven berichtet exklusiv
• Energiemonitoring: So behalten Sie die Energiekosten unter Kontrolle
• Wie geht richtiges Eis? Eisaufbereitung und Eisqualität in der Eissporthalle
• Verhalten in Konfliktsituationen: So schaffen Sie ein sicheres Eislauferlebnis für alle
• Für alle Fälle: Die zeitgemäße Hausordnung
Technik zum Anfassen und Ausprobieren
Im Ausstellungsbereich zeigen Unternehmen Lösungen, Technik und aktuelle Entwicklungen für den Betrieb von Eishallen. Ein besonderes Highlight: Die Vorführung der neuesten Eisbearbeitungsmaschinen direkt auf der Eisfläche im Jutta-Müller-Eisportzentrum – live und praxisnah.
Konferenzort Garagen-Campus Chemnitz
Der Garagen-Campus ist ein ehemaliges IndustrieAreal mit beeindruckender Geschichte. Hier finden unsere Workshops und Vorträge statt, und von hier starten wir zu unseren Exkursionen in das Jutta-Müller-Eissportzentrum.

Partner der Veranstaltung

Ein Ort mit Geschichte: Das Jutta-Müller-Eissportzentrum Auf der Eismeistertagung 2026 erhalten die Teilnehmer exklusive Einblicke hinter die Kulissen des Jutta-Müller-Eissportzentrums: Die Eisschnelllaufbahn mit einer Bahnbreite von 15 Metern und einer Gesamtlänge von 400 Metern wurde 1972 von der DDR in unmittelbarer Nähe zur Eissporthalle errichtet. Gemeinsam mit der Eissporthalle und der Trainingshalle entstand die größte zusammenhängende Eissportfläche in Deutschland.
Von März 2020 bis Oktober 2021 wurde die Eisschnelllaufbahn neu angelegt, zudem wurde ein Infield errichtet. Im Maschinenhaus befinden sich zudem zwei Abscheidebehälter mit einer Gesamtaufnahmekapazität von rund 32 Tonnen Ammoniak.
Alle Informationen rund um Anreise, Hotelunterkunft und das detaillierte Programm stehen auf der Veranstaltungsseite zur Verfügung. Unser Team rund um Max Rosenau beantwortet gerne Ihre Fragen. iaks.sport/event/eismeistertagung2026
Autor: IAKS
Fotos: IAKS, Dmytro Aksonov, Garagen-Campus, Jutta-Müller-Eissportzentrum






Built to move the world
IAKS startet neue internationale Webinarreihe
Mit der neuen Webinarreihe „Built to move the world – Insights from award-winning facilities“ startet die IAKS im März 2026 ein internationales Online-Format, das herausragende Sport- und Freizeitanlagen aus aller Welt in den Fokus rückt. Vorgestellt werden Projekte, die mit dem IOC IAKS Architekturpreis 2025 ausgezeichnet wurden und für hohe architektonische Qualität sowie innovative Lösungen von Sport- und Freizeitanlagen stehen.
Einblicke in ausgezeichnete Projekte
Die Webinarreihe richtet sich an Architekten, Planer sowie Entscheidungsträger aus Kommunen, Verbänden und Organisationen. Ziel ist es, Einblicke in reale Projekte zu geben und planerische Entscheidungen, Entwurfsansätze und Erfahrungen aus der Umsetzung nachvollziehbar zu machen – praxisnah und projektbezogen.
Internationale Beispiele
Vorgestellt werden unter anderem:
• Atmosphere by Krallerhof (Österreich)
• National Athletics Stadium (Ungarn)
• Blue Square Balzers (Liechtenstein)
• Rosemary Brown Recreation Centre (Kanada)
• Velodrome Sylvan Adams – Centre Multisports Desjardins (Kanada)
• təməsew txʷ Aquatic and Community Centre (Kanada)
• Parramatta Aquatic Centre (Australien)
• Hiwa Recreation Centre (Neuseeland)
Die Projekte reichen von internationalen Wettkampfstätten bis hin zu kommunalen Sport- und Freizeitanlagen. Sie spiegeln unterschiedliche Maßstäbe, Nutzungsanforderungen und planerische Ausgangslagen wider und geben Einblick in konkrete architektonische Lösungen für sehr unterschiedliche Kontexte.
Wissenstransfer und Austausch
Mit „Built to move the world“ schafft die IAKS eine Plattform für fachlichen Austausch und Inspiration. Die Webinarreihe bietet die Möglichkeit, ausgezeichnete Projekte aus erster Hand kennenzulernen und Impulse für eigene Planungsaufgaben mitzunehmen.
Mehr Informationen zu Terminen, Inhalten und Anmeldung finden Sie auf der IAKS Webseite. Veranstaltungssprache: Englisch.
Autor: IAKS
Fotos: HGEsh Photography, Jozsef Molnar, Planungsbüro Wegmüller AG, Ema Peter, Stephane Groleau, Nic Lehoux, Peter Bennets, Scott Norsworthy
Atmosphere by Krallerhof (Österreich)
National Athletics Stadium (Ungarn)

Square Balzers (Liechtenstein)

Rosemary Brown Recreation Centre (Kanada)

Velodrome Sylvan Adams – Centre Multisports Desjardins (Kanada)

təməsew txʷ Aquatic and Community Centre (Kanada)

Parramatta Aquatic Centre (Australien)


Hiwa Recreation Centre (Neuseeland)

HARO Sportböden & Prallwände:
Seit mehr als einem halben Jahrhundert entwickelt und produziert Hamberger das wichtigste Gerät im Hallensport: den Sportboden. Mit PROTECT Light, der neuesten von flächenelastischen Prallwänden setzt HARO einmal mehr Maßstäbe. Für Sport- und Mehrzweckhallen sind damit Komplettlösungen möglich, die alle geforderten Normen übertre en, die Einhaltung behördlicher Auflagen garantieren und eine schnelle, kostengünstige Montage erlauben. So viel ist sicher!
NEU! PROTECT LIGHT 27 PRO


Jetzt auch mit Brandzertifikat! In nahezu allen Farben und Designs erhältlich!

Blue

Skandinaviens Herausforderung –Menschen in Bewegung bringen!
IAKS Nordic Konferenz in Helsinki, Finnland, 21.-22. April 2026

Der formelle organisierte Sport ist stark, aber die alltägliche Bewegung in den skandinavischen Ländern nimmt weiter ab.
• Wie können wir mehr Menschen dazu bringen, sich zu bewegen? Was treibt Menschen zu selbstorganisierter Bewegung und spontaner körperlicher Aktivität?
• Wie können wir Einrichtungen besser gestalten und renovieren, damit mehr Menschen aktiv werden?
• Wie können wir die Natur und verschiedene Geschäftsmodelle nutzen, um die Schwelle zu senken und eine langfristige, nachhaltige Bewegung zu schaffen?
• Warum bedeutet mehr organisierter Sport nicht unbedingt mehr Bewegung und Aktivität? Was können wir tun, um dies zu ändern?
Treffen Sie sich mit Kollegen, Forschern, Planern, Architekten und Betreibern aus Skandinavien und dem Vereinigten Königreich. Lernen Sie Praxisbeispiele kennen und diskutieren Sie gemeinsam Lösungsvorschläge, wie wir die von den Behörden gesetzten Ziele im Bereich der öffentlichen Gesundheit erreichen können, die wir derzeit nur schwer erfüllen.
Der stellvertretende Bürgermeister von Helsinki, Paavo Arhinmäki, wird die Konferenz eröffnen.
Die Rednerliste:
Oliver Vanges, Dänische Stiftung für Sport- und Kultureinrichtungen
Lisa-Mari Watson, Tverga
Stephen Dietz-Hodgson, JAJA Architekten
Petri Kontukoski, Kontukoski Architekten
Teemu Heino, Tapanila Urheilusäätiö ... und mehr in Kürze
Besichtigung des Olympiastadions
Im Zusammenhang mit der Konferenz wird eine Besichtigung des Olympiastadions in Helsinki angeboten. Das Olympiastadion wurde im funktionalistischen Stil erbaut und 1938 für die Olympischen Sommerspiele 1940 eingeweiht, die schließlich wegen des Zweiten Weltkriegs abgesagt wurden. Die ersten Olympischen Spiele wurden 1952 in der Arena ausgetragen. In den 2000er Jahren wurde die Arena einer umfassenden Renovierung unterzogen, zu der auch der Bau eines völlig neuen, 20.000 m² großen unterirdischen Bereichs gehörte. Weitere Informationen finden Sie in sb Zeitschrift 1/2021.
Warum teilnehmen?
Die Konferenz „Getting people moving!“ bietet eine einzigartige Gelegenheit zu umfassenden Diskussionen mit skandinavischen Kollegen. Die Konferenz ist so konzipiert, dass die Teilnehmer an Diskussionen teilnehmen und konkrete Ideen, Beispiele und neue Kontakte für ihre Arbeit zu Hause mitnehmen können.
Teilnehmerkreis
Die Konferenz ist besonders wertvoll für diejenigen, die sich mit Fragen des Sports, der Stadtentwicklung und der öffentlichen Gesundheit befassen, sowie für die Verantwortlichen von Sportanlagen, die die Kluft zwischen dem organisierten Sport und dem Rückgang der körperlichen Betätigung im Alltag verringern wollen. Konferenzsprache: Englisch.
iaks.sport/event/helsinki2026
Autor: IAKS Nordic
Fotos: Lappset, Helsinki Partner_Laura Dove, Annika Banyay Tiverman





Glasgow 2026: Vermächtnis als Grundstein
IAKS UK & Ireland Konferenz und Besichtigung in Glasgow, 14. Mai 2026

IAKS UK & Ireland lädt zur inspirierenden Frühjahrsveranstaltung, die beleuchtet, wie Glasgow sein weltweit anerkanntes sportliches Erbe ausbaut. Die Veranstaltung bringt Fachleute aus der Sportstättenbranche aus dem Vereinigten Königreich und dem Ausland zusammen. Sie findet am Donnerstag, den 14. Mai 2026, in der Emirates Arena im schottischen Glasgow statt.
Dieser wegweisende Veranstaltungsort – Heimat der Commonwealth Arena und des Sir Chris Hoy Velodroms – wurde ursprünglich für die Commonwealth Games 2014 errichtet und wird auch 2026 erneut eine zentrale Rolle als Austragungsort für bedeutende Wettkämpfe spielen. Der Mix aus Vermächtnis, Innovation und gesellschaftlicher Einbindung macht die Arena zum idealen Rahmen für die IAKS UK & Ireland Konferenz mit Sportstättenbesichtigung.
Warum teilnehmen?
Der Fokus der Veranstaltung ist zweigeteilt. Zum einen wird die Entwicklung der für die Commonwealth Games 2014 in Glasgow errichteten Sportstätten nachgezeichnet: Was wurde gebaut, wie konnten diese Anlagen durch kontinuierliche Nutzung in der Gemeinschaft ein nachhaltiges Vermächtnis sichern, und wie werden sie aktuell für die Durchführung der Commonwealth Games 2026 ertüchtigt?
Zum anderen werden die Chancen und Herausforderungen für die Stadt und die Region im Vorfeld der kommenden Spiele analysiert. Im Mittelpunkt steht dabei, wie Planung und Umsetzung gestaltet werden, um diesen Faktoren wirksam zu begegnen.
Das Programm umfasst Vorträge von Sportstättenentwicklern, Betreibern und Veranstaltern, ergänzt durch eine Führung durch die Anlage sowie zahlreiche Möglichkeiten zum Networking im Laufe des Tages. Insgesamt erhalten die Teilnehmer ein umfassendes Bild davon, wie sich Glasgow auf die Spiele vorbereitet, und wie Erkenntnisse aus früheren Erfolgsstories in zukünftige Strategien einfließen.
Wer nimmt teil?
Die Veranstaltung beginnt am 13. Mai abends mit einem Networking Dinner in lockerer Atmosphäre. Die Konferenz am 14. Mai ist ideal für Planungsteams von Sportstätten, Betreiber von Anlagen, Eventorganisatoren und Ausrichterstädte, die wertvolle Einblicke in die Planung, Anpassung und Durchführung von großen Sportveranstaltungen gewinnen möchten.
Diese einzigartige Gelegenheit zum Networking sollten Sie nicht verpassen. Internationale Akteure der Sportstätten- und Infrastrukturbranche werden diskutieren, wie Glasgow sein weltweit anerkanntes sportlichen Erbe ausbaut. Konferenzsprache: Englisch
iaks.sport/event/glasgow2026
Autor: IAKS UK & Ireland
Fotos: IAKS, Glasgowlife



EIN SENSOR.




Lerne dein Eis kennen. Kontrolle bis auf den letzten Millimeter.
Der vollautonome Sensor liefert Echtzeitdaten zur Eisstärke –ohne Gebäudeinstallation, mit hoher Energieeffizienz und exportierbaren Auswertungen.
Verfügbar als: Mobile Stand‑alone‑Lösung

IAKS Österreich erkundet LSZ und LASK
Höhepunkte der Generalversammlung vom 27. November 2025

Die Generalversammlung 2025 der IAKS Österreich bot den Mitgliedern einen inspirierenden Einblick in den Hochleistungssport und die Gestaltung modernster Sportanlagen. Dank der Initiative von Vizepräsidentin Sabrina Rohrmoser kamen die Teilnehmer in den Genuss einer exklusiven Führung durch das Landessportzentrum Oberösterreich (LSZ) in Begleitung von Hannes Seyer, dem stellvertretenden Landessportdirektor von Oberösterreich.
Einblicke in die Trainingsumgebungen der Elite
Die Mitglieder konnten hautnah miterleben, wie Sportler aus Disziplinen wie Tischtennis, Rudern, Leichtathletik, Parasport, Fechten und Radsport im LSZ trainieren. Die Führung bot auch einen Einblick in die physiotherapeutischen und sportmedizinischen Leistungen des Zentrums, gefolgt von einem Besuch der Schwimmhalle und der beeindruckenden „Wall of Fame“ – einer visuellen Hommage an die sportlichen Erfolge der Region.
Architektonisches Vorzeigeprojekt:
Raiffeisen Arena
Ein besonderes Highlight des Tages war die Führung durch die Raiffeisen Arena am Linzer Froschberg. Dank Dipl.-Ing. Harald Fux, Präsident der IAKS Österreich und Architekt der Arena, bot der Besuch einen einzigartigen Einblick in die Integration des Stadions in die umliegende Wohngegend. Besonders hervorzuheben sind das markante Tribünen-Design, das elegante Restaurant mit hauseigener Bäckerei und die multifunktionale Event-Box – ein hervorragender Rahmen für die diesjährige Versammlung.
Aktuelles vom Vorstand und Ausblick für 2026
Während der formellen Sitzung stellte Sabrina Rohrmoser die Tagesordnung und den Jahresbericht des Vorstands vor. Zwei neue Ernennungen wurden vorgestellt: Lisi Schrenk (Geschäftsführerin) und Thomas Waldner (Vorstandsmitglied).
Mit Blick auf die Zukunft verspricht die für Herbst 2026 geplante D-A-CH-Exkursion ein großes Highlight zu werden. Die Mitglieder reflektierten auch den Erfolg des 29. IAKS-Kongresses in Köln, bevor die Sitzung mit dem Bericht der Rechnungsprüfer und der offiziellen Entlastung des Vorstands endete.
Der Vorstand der IAKS Österreich bedankt sich herzlich bei allen Beteiligten, die zum Erfolg der Veranstaltung beigetragen haben, darunter Judith Mader (Gerflor), Christoph Högler (FanInvest), Florian Szeywerth (Österreichisches Institut für Schul- und Sportstättenbau) und Philipp Huppmann. Ihre Unterstützung trug dazu bei, eine spannende Zusammenkunft zu schaffen, die einmal mehr die Stärke und den Wert des IAKS-Netzwerks unter Beweis stellte.
Autor und Fotos: IAKS Österreich
Von links nach rechts: Christoph Högler, Harald Fux, Philipp Huppmann, Judith Mader, Florian Szeywerth, Sabrina Rohrmoser, Hannes Seyer





NEU IM IAKS NETZWERK

Covermaster Rexdale (USA)
Covermaster ist auf die Entwicklung, Herstellung und Lieferung von Schutzböden im Innen- und Außenbereich spezialisiert. Die Produkte ermöglichen Einrichtungen wie Sporthallen, Stadien, Arenen, Eissportzentren, Reitzentren und Sportplätzen eine vielseitige Nutzung – etwa für Sportveranstaltungen, Konzerte oder Events – ohne dabei Böden, Rasenflächen oder andere Untergründe zu beschädigen. Zu den wichtigsten Produktkategorien gehören:
• Turnhallenbodenbeläge, Turnhallenteppiche und temporäre Bodenbeläge für nicht-sportliche Veranstaltungen
• Feldabdeckungen: Regenabdeckungen, Rasendecken, Frost-/ Keimdecken für Felder und Golfplätze
• Systeme zur Umrüstung von Eisbahnen, damit in Arenen Veranstaltungen ohne Eis stattfinden können, ohne dass die Eisfläche entfernt werden muss
• Wand- und Schienenpolsterung; Stadion-/Arena-Grafiken und Sitzbezüge; Zubehör, Handhabungs- und Lagersysteme (z. B. „COVERMATE™, POWERMATE™, TARPMATE™, TARP MACHINE™“)
www.covermaster.com

app and move GmbH
Kirchhain (Deutschland)
„SportBox app and move“ steht für die Förderung von Spiel, Sport, Bewegung und Gesundheit im öffentlichen Raum durch digitale Technologien. Minimaler Aufwand für maximalen Ertrag in Sachen Flächenerschließung für Bewegung und Sport. SportBoxen bieten einen bürgernahen Zugang zu Bewegung, Spiel und Sport. Für Mitglieder und Nutzer liefert die SportBoxApp somit ein niedrigschwelliges Verleihangebot – städte- und länderübergreifend. Für alle Zielgruppen ermöglichen solche Projekte eine flexible Flatrate für Kleinequipment einfach und bequem an jedem Standort.
www.sportbox.de

PETER REUFF LICHT
Hamburg (Deutschland)
Die Firma PETER REUFF LICHT mit Sitz in Hamburg bietet ein umfassendes Leistungsspektrum im Bereich der Lichttechnik und Lichtplanung. Dazu gehört die fach- und sachgerechte Planung von Innen- und Außenbeleuchtungsanlagen unter Berücksichtigung neuer Beleuchtungstechnologien sowie relevanter Normen und Vorschriften. Das Unternehmen führt auch Beleuchtungsmessungen durch, zum Beispiel zur Überwachung und Optimierung von Beleuchtungsanlagen in Arbeitsstätten (nach DIN EN 12464) oder im Außenbereich nach technischen Normen (wie DIN EN 13201 oder DIN EN 12193).
Darüber hinaus erstellt PETER REUFF LICHT Gutachten zur Beurteilung von Lichtemissionen, insbesondere nach der LAI-Richtlinie - zum Beispiel in der Nähe von Sportanlagen, beleuchteten Fassaden oder Lichtwerbeanlagen - einschließlich Minderungsmaßnahmen unter Berücksichtigung von Umwelt- und Naturschutzanforderungen. Darüber hinaus bietet das Unternehmen Schulungen und Weiterbildungen zu verschiedenen Beleuchtungsthemen sowie zu aktuellen Normen und Vorschriften an.
www.peterreufflicht.de

Das Architekturbüro wurde 1996 gegründet und ist seitdem auf Leichtathletikbahnen für kleinere Sportprojekte in Gemeinden und Kommunen in Norditalien spezialisiert. Die Organisationsstruktur, die auf einem integrierten architektonischen Planungsansatz basiert, ist schlank und dynamisch, bietet ein hohes Maß an operativer Flexibilität und kann auf erfahrene Fachkräfte in den Bereichen Tragwerksplanung, technische Gebäudeausrüstung (Heizung/Lüftung/Sanitär) sowie Elektrotechnik zurückgreifen. Die Projekte werden maßgeschneidert umgesetzt – mit Fokus auf die ökologische Transformation, den verantwortungsvollen Einsatz von Materialien und den respektvollen Umgang mit der Umwelt.
www.vittorioeassociati.it
Vittorio & Associati Affi (Italien)

Drees & Sommer
Stuttgart (Deutschland)
Drees & Sommer ist ein international tätiges Beratungsunternehmen mit den Schwerpunkten Immobilien, Infrastruktur und Industrie. Das Unternehmen begleitet öffentliche und private Auftraggeber über den gesamten Lebenszyklus von Projekten und verbindet dabei Managementkompetenz mit Nachhaltigkeit und Digitalisierung. Mit interdisziplinären Teams entwickelt Drees & Sommer ökonomisch, ökologisch und sozial nachhaltige Lösungen und verfügt zudem über umfangreiche Erfahrung in der Entwicklung von Sportstätten und Stadien mit zahlreichen nationalen und internationalen Referenzprojekten.
Ein ausgewähltes und mehrfach ausgezeichnetes Referenzprojekt ist der Bildungs- und Sportcampus Bürstadt (auch in ‚sb‘ Zeitschrift 4/2024)
www.dreso.com

COIND Piscine Mailand (Italien)
COIND Piscine ist ein italienisches Unternehmen, das sich auf die Planung und den Bau von hochwertigen Schwimmbädern, Wellnessbereichen und Wasseranlagen für Wohnhäuser, Gaststätten und öffentliche Projekte spezialisiert hat. Mit jahrzehntelanger Erfahrung integriert das Unternehmen architektonische Visionen, technische Spitzenleistungen und technologische Innovationen, um maßgeschneiderte Lösungen zu liefern, die Ästhetik, Effizienz und Nachhaltigkeit miteinander verbinden.
Das Know-how von COIND reicht von der Konzeption bis zur schlüsselfertigen Ausführung von Projekten, wobei der Schwerpunkt auf Wasseraufbereitungssystemen, Energieoptimierung und Wohlbefinden der Nutzer liegt. Das Unternehmen arbeitet mit führenden Architekten, Bauträgern und Wellness-Marken zusammen, um Räume zu schaffen, die die italienische Exzellenz in Design und Qualität zum Ausdruck bringen.
www.coindpiscine.it


MEHR ZEIT FÜR DAS WESENTLICHE
mafis digital – modulares Gästemanagement von der Online-Buchung bis zum Check-Out. Flexibel, effizient, integriert.

Ankerpunkt für Gesundheit und Wellness
Lake Country Co-op Leisure Centre in Prince Albert
Das Lake Country Co-op Leisure Centre (LCCLC) wurde für Menschen aller Altersgruppen und Fähigkeitsstufen konzipiert und verfügt über Gemeinschaftsräume, zwei Eissportflächen im NHL-Format und ein großes Schwimmzentrum. Da die Stadt über eine ausgeprägte Eishockeykultur verfügt, wurden die Eishallen mit über 900 Zuschauerplätzen ausgestattet. Das 4.740 m² große Schwimmzentrum umfasst ein Wettkampfbecken mit acht Bahnen, ein Wellenbad und ein Therapiebecken. Es ist für Freizeit- und Leistungsschwimmen sowie für Schwimmkurse ausgelegt.
ERÖFFNUNG: SEPTEMBER 2025
Standort
Prince Albert, Kanada
Bauherr / Betreiber
City of Prince Albert
Architekt
MJMA Architecture & Design, www.mjma.ca
Group2 Architecture Interior Design Ltd., www.group2.ca
Baukosten

Prince Albert ist eine wachsende Stadt in der 200.000 Einwohner zählenden Region und bildet das „Tor zum Norden“ der kanadischen Provinz Saskatchewan. Das neue Freizeitzentrum im südöstlichen Stadtquadranten bedient nicht nur den Bedarf in den angrenzenden Stadtvierteln, sondern soll auch den Ankerpunkt für Gesundheit und Wellness für ein neu geplantes Stadtentwicklungsgebiet bilden.
Prince Albert liegt in einer einzigartigen ökologischen Übergangszone zwischen dem Prairie Grassland im Süden, dem Aspen Parkland im Zentrum und dem borealen Nadelwald im Norden. Diese besondere Umgebung zeichnet sich durch eine große Vielfalt an Ökosystemen aus, in denen Präriegras, Koniferen sowie Espen, Pappeln und Fichten nebeneinander existieren.

Die Besonderheiten dieser ökologischen Übergangszone wurden am Standort mittels sorgfältiger Auswahl und Anordnung unterschiedlicher Pflanzenarten aufgenommen. Am Parkplatz und auf dem westlichen Geländeteil spiegelt die Bepflanzung den Übergang vom Prairie Grassland zu den Laubbäumen des Aspen Parkland wider. Nadelbäume auf der Nord- und Ostseite markieren die Erweiterung in den borealen Wald.
Im Masterplan für den Standort ist auch eine künftige Erweiterung vorgesehen. In der ersten Phase wurde das LCCLC errichtet, für die zweite Phase ist ein Veranstaltungszentrum mit 4.500 Sitzplätzen und entsprechenden Parkflächen geplant. Besonderes Augenmerk lag auf der Wahrung des historischen und natürlichen Erbes, hierin eingeschlossen der historische Red River Cart Trail und ein Baumbestand an der Grundstücksgrenze.


Funktionale Gebäudeform
Der annähernd L-förmige Grundriss definiert einen großen, begrünten Vorplatz. Der Baukörper wird durch eine dynamisch geneigte, gefaltete Dachlinie zu einer gestalterischen Einheit gebunden und erhält eine kraftvolle, prägnante Identität. Zugleich werden die unterschiedlichen Höhenanforderungen der Innenräume aufgenommen. Um die gefaltete Dachlinie zu betonen und eine Kontinuität zwischen den großen Innenräumen herzustellen, wurden die Schwimmhalle und das Foyer mit einer Holzdecke mit integrierter linearer Beleuchtung ausgestattet, die sich als Rahmen über dem Haupteingang an der Untersicht des Dachüberstands fortsetzt.
Die maßgefertigte Metallverkleidung der Fassade ist gestalterisch an die Struktur der Baumstämme im umliegenden Aspen Parkland angelehnt. Aus Bildanalysen lokaler Baumgruppen wurde ein Fassadenmuster aus konkaven und konvexen extrudierten Metallprofilen entwickelt, dessen Licht- und Schattenspiel an das gedämpfte Licht im dichten Gehölz des Aspen Parkland erinnert. Diese Profile sind in einem metallischen Silberton lackiert, der die Farben des sich ständig verändernden Himmels von Saskatchewan reflektiert und die enge Verbindung zwischen Gebäude und Landschaft untermauert. Unterhalb der Metallverkleidung sorgen Glasflächen für Transparenz und eröffnen einladende Einblicke in die Aktivitäten des Zentrums sowie Ausblicke auf die Landschaft.


Im Zentrum des Komplexes verbindet die Lobby, das „soziale Herz“ der Anlage, die Schwimmhalle mit den Eisarenen. Sie überzeugt mit einer eindeutigen Wegführung und bildet einen weitläufigen Begegnungsraum und Treffpunkt. Die Lobby eröffnet Ein- und Ausblicke auf das Zwischengeschoss, das die beiden Eishallen über die Zuschauerränge miteinander verbindet, in die Hallen selbst sowie durch die Schwimmhalle hindurch auf die umliegende Landschaft. Veranstaltungen und informelle Treffen in der Lobby können auf den Vorplatz oder den rückwärtigen Parkbereich erweitert werden, was die Verbindung zwischen Innen- und Außenraum zusätzlich intensiviert.
Die Farbgestaltung im Innenraum orientiert sich an der umgebenden Vegetation und verleiht den einzelnen Programmbereichen eine jeweils eigene Identität. Die Schwimmhalle ist in dunklen Blau- und Türkistönen gehalten, die an die Farben der Nadelbäume erinnern. In den Eishallen wurden die Farben der Präriegräser mit Goldtönen in den Sitzbereichen und Umkleiden aufgenommen. Die Lobby ist mit weißen Metallpfosten und vertikalen Designelementen gestaltet, die Assoziationen an die hellen Stämme von Birken und Espen wecken.


Wärmerückgewinnung
Das Gebäude verfügt über eine hocheffiziente, hervorragend isolierte Gebäudehülle mit optimierter Verglasung zur Verbesserung der Energieeffizienz. Die Zu- und Abluftsysteme sind mit Rotationswärmetauschern ausgestattet, über die Wärmeenergie aus der Abluft zurückgewonnen wird. Die Abwärme aus der Kälteanlage der Eishallen wird in einem Wärmespeicher zwischengespeichert. Von dort erfolgt die Weitergabe an die Frostschutzheizung unter der Eisfläche, die Schneeschmelzgrube der Eisbearbeitungsmaschine, die Fußbodenheizung in den Zuschauerbereichen und andere Gebäudeanlagen mit Wärmebedarf.
Autoren: MJMA Architecture & Design, Group2 Architecture Interior Design Ltd. Fotos: Scott Norsworthy

1. Lobby
2. Rezeption
3. Sportbecken
4. Freizeitbecken
5. Wasserrutsche
6. Umkleiden
7. Rettungsschwimmer
8. Personal
9. Besprechungsraum
10. Mehrzweckraum
11. Eisarena
12. Mannschaftsumkleiden
13. Schiedsrichterumkleiden
14. Kiosk
15. Verkaufsräume


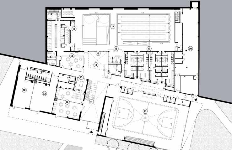
Förderung einer aktiven und vernetzten Campuskultur
Recreation Centre North der University of British Columbia
Das Recreation Centre North ist eine neue Destination für Gesundheit und Wellness am Campus der University of British Columbia (UBC) und richtet sich an die gesamte Universitätsgemeinschaft. Die Einrichtungen für eine formelle und informelle Freizeitgestaltung umfassen drei Sporthallen, eine Indoor-Bahn für Laufen, Gehen und Rollsportarten, Fitnessbereiche für Kardio- und Gewichttraining, Mehrzweckräume, universelle und geschlechtsspezifische Umkleiden sowie Büros.
ERÖFFNUNG: SEPTEMBER 2025
Standort
Vancouver, Kanada
Bauherr / Betreiber
UBC Athletics & Recreation
Architekt
SHAPE Architecture, www.shapearchitecture.ca
Baukosten
70 Millionen CAD (43,3 Millionen EUR)

Das neu errichtete Recreation Centre North der University of British Columbia ist eine kühne architektonische Antwort auf den dringenden Bedarf an verbesserten Freizeitanlagen am Point Grey Campus. Die UBC hat Fortschritte bei der Erhöhung der Freizeitfläche pro Studierenden erzielt und ist so einen bedeutenden Schritt gegangen, um die Standards anderer kanadischer Universitäten zu erreichen und zu übertreffen. Das neue Zentrum ist ein wichtiger Meilenstein für die UBC-Gemeinschaft. Es ist in das Studierendenservice-Areal eingebettet, schließt sich an die bestehenden Sportanlagen an und nimmt eine Schlüsselposition am Nordende des Campus ein. Der komplizierte Standort mit einem unübersichtlichen Gewirr von Fußgängerverbindungen im Innen- und Außenraum war eine Herausforderung für das Planungsteam. Mit dem Entwurf sollten nicht nur diese Unzulänglichkeiten beseitigt, sondern auch der Kontext neu definiert, veraltete und unzweckmäßige Infrastruktur ersetzt und gleichzeitig eine einladende Atmosphäre für alle Mitglieder der Campusgemeinschaft geschaffen werden.
Mit einer Gesamtfläche von 9.300 m² bietet das Zentrum ein vielfältiges Programmangebot mit drei Sporthallen in Standardgröße, rund 4.000 m² Fitnessbereichen, einer 200 mInnenbahn, Mehrzweck- und Büroräumen. Inklusion steht im Fokus mit universellen, geschlechtsneutralen Umkleiden, um Barrierefreiheit für Menschen aller Geschlechtsidentitäten und körperlichen Fähigkeitsstufen zu gewährleisten. Dank einer durchdachten Anordnung verlängert das neue Zentrum das bestehende Studierendenservice-Areal, das hier zuvor abrupt endete. Mit der Platzierung der großen Sporthallen im Osten und der Fitnessflächen auf vier Ebenen im Westen entstand ein neuer überdachter Durchgang zwischen diesen beiden Bereichen. Er dient als Verbindung zwischen dem öffentlichen Raum auf der Nord- und Südseite des Gebäudes. Diese barrierefrei gestaltete Passage verbessert die Vernetzung des Campus und ermöglicht rund um die Uhr einen nahtlosen Zugang zu allen Campusbereichen.


Neue Beziehungen
Im Mittelpunkt des Entwurfs steht die Aktivierung der Gemeinschaft. In enger Zusammenarbeit mit den beteiligten Interessengruppen, darunter das UBC Equity and Inclusion Office und das UBC Centre for Accessibility, wurden Rampen mit geringer Neigung und strategisch platzierte Sitzgelegenheiten vorgesehen. Dank dieses Engagements für universelle Inklusion erhielt das Zentrum die renommierte Gold-Zertifizierung für Barrierefreiheit der Rick-Hansen-Stiftung.
Das Gebäudedesign unterstützt die nahtlose Integration von Aktivitäten im Innenraum mit den umgebenden Fußgängerbereichen. An der zum Student Life Building mit Alltagsfunktionen für Studierende ausgerichteten Südfassade bietet ein Dachüberstand Sonnen- und Regenschutz entlang des wichtigen Fußwegs von einer großen Busschleife zum Zentrum des Campus im Nordwesten. An der Nordfassade entlang des Student Union Boulevard wird der angrenzende Vorplatz mit großzügigen Einblicken in die Sporthallen und die erhöhte Laufstrecke belebt. Der überdachte Durchgang bildet eine wichtige barrierefreie Verbindung zwischen diesen beiden Hauptverkehrsachsen und erzeugt eine visuell überzeugende Interaktion des Gebäudes mit dem Außenraum.

Einblicke in die Aktivitätsdynamik im Innenraum
Die Südost- und Nordostecke des Gebäudes verjüngen sich im Grundriss, ergänzen sich wechselseitig und verleihen dem Baukörper Dynamik. An der Südostecke ist die Fassade nach innen zurückversetzt: Hier öffnet sich die Recreation Gallery zur prominenten Campusachse, dem sogenannten Athletes‘ Walk. Die nordwestliche Ecke hingegen erweitert sich in den Außenraum und bildet einen einladenden Vorplatz, der zu Bewegung und Interaktion mit der dynamischen Campusumgebung einlädt und sich an den bestehenden Baumhain namens „The Bosque“ anschließt.
Im Zusammenspiel erzeugen diese Ecken einen nahtlosen Fluss, verbinden die Innenräume mit der Umgebung und fördern das Gemeinschaftsgefühl. Die Dachlinie fällt von ihrem Zenit über den Haupteingangsachsen sanft ab. So wirkt das Gebäude weniger dominant und fügt sich harmonisch in die umgebende Landschaft und den Campus ein. Die Sichtlinien im Innenraum werden über Verglasungen maximiert unter gleichzeitiger Berücksichtigung des Campuskontexts. Von den verschiedenen Ebenen der Fitnessbereiche auf der Westseite bietet sich durch die mehrstöckige Verglasung, die bis zur Höhe der Baumwipfel reicht, ein weiter Blick auf „The Bosque“.
An der Nordfassade geben lineare Glasbänder den Blick auf die Laufbahn im Obergeschoss frei. Der neue Vorplatz wird auf diese Weise mit Einblicken in das dynamische Geschehen im Innenraum aufgewertet. Die verglasten Flächen an der Südfassade verlaufen parallel zu den Fußgängerachsen und laden dazu ein, von der Recreation Gallery einen Blick in die Sporthallen zu werfen. Die drei Haupteingänge sind transparent und einladend gestaltet, um das Zentrum für Besucher attraktiv zu machen.



Inklusive, attraktive und anpassungsfähige Freizeitflächen
Die auskragenden Dachüberstände bieten Witterungsschutz und leiten die Besucher direkt zur Lobby in einem Atrium. Hier findet sich eine kaskadenförmige Treppe, die mit leuchtend-gelben Mineralwerkstoff- und Aluminiumverbundplatten verkleidet ist. Dieses augenfällige Element dient nicht nur als funktionales Bindeglied zwischen den verschiedenen Ebenen der öffentlichen Sportbereiche und den Check-in-Schaltern, sondern auch als visueller Orientierungspunkt in der Anlage. Die Treppe ist aus diversen Blickwinkeln sichtbar und bildet sowohl den lebendigen Mittelpunkt des Zentrums als auch die Verteilachse für vertikale Bewegung.
Zusammenfassend lässt sich sagen, dass das Recreation Centre North der UBC beispielhaft ist als durchdachter Ansatz für die Schaffung inklusiver, dynamischer und vielseitiger Freizeitflächen. Aufgrund des Engagements für Barrierefreiheit und die Integration der Gemeinschaft wird eine aktive und vernetzte Campuskultur gefördert. Der Entwurf unterstützt die Teilhabe und die Einbindung aller Nutzergruppen in ein dynamisches Freizeitumfeld und bildet damit ein inspirierendes Beispiel für künftige Projekte.
Autoren: Nick Sully und Avery Titchkosky, SHAPE Architecture Fotos: Ema Peter Photography









Legende
1. Fitness
2. Sporthalle
3. Laufbahn
4. Mehrzweckraum
5. Umkleidekabinen
6. Empfang

Hybrides Herzstück
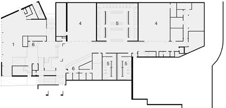
Gemeindehalle Kirchheim am Neckar
asp Architekten haben in Kirchheim am Neckar eine Gemeindehalle aus den 1970er Jahren transformiert und an neue Anforderungen angepasst. Entstanden ist ein multifunktionales Gebäude, das seiner Bedeutung als Ort der Begegnung wieder gerecht wird.
Im Grunde gibt es sie überall. Sie nennen sich hier wie dort Stadt- oder Gemeindehalle, manchmal auch Gemeindezentrum. Sie stehen sinnbildlich für den Wunsch nach einem Ort der Begegnung. Viele von ihnen sind in den 1960er oder -70er Jahren entstanden und inzwischen nicht nur in die Jahre gekommen, sondern auch in ihrer Nutzung überholt. Ein gelungenes Beispiel dafür, wie die Wieder belebung eines solchen Ortes bei gleichzeitigem Erhalt des Bestandes aussehen kann, zeigt die Gemeindehalle in Kirchheim am Neckar.
Die Aufgabe war es, wichtige Funktionen für die Gemeinde, wie eine Kindertagesstätte und eine Sporthalle, unterzubringen und diese in einem begrenzten Kostenrahmen umzusetzen. Dabei bot sich die Möglichkeit, den Bestand so zu programmieren, dass das Gebäude durch eine Vielfalt an Nutzungen eine neue Bedeutung für die Gemeinde bekommt und in Zukunft rund um die Uhr bespielt werden kann – von den Kindern am Morgen bis zu den Vereinen am Wochenende.
ERÖFFNUNG: 2024
Standort
Kirchheim am Neckar, Deutschland
Bauherr / Betreiber
Gemeinde Kirchheim am Neckar
Architekten asp Architekten GmbH www.asp-architekten.de
Baukosten netto 14,2 Millionen EUR

Lebendige Fassadengestaltung
Die Gemeindehalle befindet sich etwas außerhalb von Kirchheim, in einem landschaftlich schön gelegenen Kontext. Die Kulisse: ein Kessel mit Weinbergen, der sich einst aus dem Altarm des Neckars gebildet hatte. Um die Halle auch symbolisch mit ihrer Umgebung zu vernetzen, entstand die Idee, für die Fassadengestaltung ein Material zu wählen, das sich ähnlich wie die Weinberge über den Jahresverlauf verändert. So fiel die Wahl auf Cortenstahl, der die Farbigkeit der Weinberge im Herbst aufnimmt, besonders langlebig und dabei wenig pflegeintensiv ist.
Während der linke Teil der Halle saniert und erhalten werden konnte, wurde der rechte Teil aufgrund seiner Substanz abgebrochen, neu errichtet und auf die neuen Nutzungen ausgerichtet. Um die unterschiedlichen Funktionen klar voneinander abzuhe-
ben, aber dennoch eine Verbindung zu schaffen, wurden die Kubatur und der für das Gebäude prägende Zwischenbau erhalten.
Im Inneren setzt sich dabei der Cortenstahl fort. Er kleidet den Zwischenbau aus und verstärkt dadurch die Verbindung von innen und außen. Oberlichter unterstützen die natürliche Belichtung und zeichnen, je nach Sonnenstand, schöne Schattenspiele auf die Wände aus Cortenstahl.
Ein schönes Detail: Der Zwischenbau fungiert nicht nur als wichtiges Bindeglied aller Funktionen. Hier wurden auch der Haupt- und Nebeneingang der Halle untergebracht. Beide Eingänge sind vollverglast und machen dadurch die räumliche Nähe zu den Weinbergen schier greifbar. Beim Betreten der Halle entsteht dabei unweigerlich das Gefühl, man laufe direkt auf die Weinberge zu.
Multifunktionales Nutzungs- und Gestaltungskonzept Allein an der Fassade lassen sich die unterschiedlichen Funktionen der Halle ablesen: Während im rechten Gebäudeteil eher kleinteiligere Öffnungen die Räume der neuen Kindertagesstätte markieren, prägen größere Öffnungen die oberen Geschosse des linken Gebäude - teils mit Gemeindehalle, „Bädle“ und Sporthalle sowie der rückwärtig angeordneten Gymnastikhalle. Das Zentrum bildet dabei die Gemeindehalle selbst.
Mit großer Bühne, Platz für bis zu 800 Personen und einer vollflächigen Glasfassade, die den Blick auf den Vorplatz freigibt, ist ein zeitgemäßer Raum für Veranstaltungen und Feierlichkeiten der Gemeinde und ihrer Vereine entstanden. Unmittelbar darunter wurde das von den Kirchheimern genannte „Bädle“ saniert. Ein Lehrschwimmbecken, das vor allen Dingen von Schulklassen genutzt wird. Um auch den Sportvereinen und-klassen mehr Raum bieten zu können, wurde im Untergeschoss zusätzlich eine Sporthalle mit Umkleidekabinen integriert.
Die Kindertagesstätte „Klecks-Box“ im rechten Gebäudeteil erstreckt sich als einzige Nutzung über drei Geschosse und bietet dabei Platz für bis zu 60 Kinder. Die Räume sind ideal auf das offene Konzept der Einrichtung ausgerichtet und bieten, je nach Etage, verschiedene Aufenthaltsqualitäten: Von einem großzügigen Außenbereich im Erdgeschoss über die Mensa und das Atelier im ersten Obergeschoss bis hin zu Räumen für die Verwaltung sowie Spielzimmer im zweiten Obergeschoss.
Die eingesetzten Materialien finden sich in beiden Gebäudeteilen und auf allen Ebenen wieder. So kam zum Beispiel sowohl in der Kita als auch in den Sportbereichen ein Kautschuk-Linoleum zum Einsatz, während in den Flurbereichen ein Sicht-Estrich verwendet wurde. Ein weiteres Element, das sich durchzieht: eine Holzlamellenverkleidung, die den großflächigen Räumen, wie Sport-, Gymnastik- und Gemeindehalle Wärme verleiht. Für eine bessere Orientierung wurde für jedes Geschoss eine eigene Farbwelt entwickelt.
Autorin: Nadine Funck Fotos: Zooey Braun







Gemeinschaftszentrum nach Netto-Null-Emissionen-Standard
Carrville Community Centre & Library
Die Stadt Vaughan, früher ein wohlhabender, auf den Individualverkehr fokussierter Vorort von Toronto, befindet sich im Wandel. Aufgrund von urbaner Entwicklung und städtischer Verdichtung wächst die Bevölkerung stetig. Die hieraus resultierende intensive Nutzung der bestehenden Infrastruktur bedingt einen dringenden Bedarf an Plätzen und Räumen für die Entwicklung der Gemeinschaft. Vor diesem Hintergrund sucht die Stadt nach Wegen, um die wirtschaftliche und kulturelle Vielfalt zu fördern, sich als Vorreiter in Sachen Nachhaltigkeit zu etablieren sowie eine breite und vielfältige Palette öffentlicher Einrichtungen und Anlagen anzubieten.
Das Carrville Community Centre & Library ist eine direkte Antwort auf diese Erfordernisse. Die Anlage wurde als neues Zentrum für die wachsende lokale Bevölkerung, als Vorzeigeprojekt für die Netto-Null-Ambitionen der Stadt und als Tor zum Naturerbe von Vaughan entworfen. Sie bettet eine vielfältige Angebotspalette für die Gemeinschaft in eine große Parklandschaft ein und bringt unterschiedlichste Menschen und Angebote „unter einem Dach“ zusammen. Das Zentrum setzt neue Maßstäbe für eine nachhaltige kommunale Infrastruktur und eröffnet einen gleichberechtigten Zugang zu hochwertigen Grünanlagen.
ERÖFFNUNG: 2025
Standort
Vaughan, Kanada
Bauherr
City of Vaughan
Architekt
Perkins&Will, www.perkinswill.com

Angebotsstruktur und räumliche Organisation
Das Zentrum beherbergt ein Schwimmbad, eine Sporthalle, Fitnessbereiche, eine Bücherei, eine Kindertagesstätte und Mehrzweckräume auf zwei Ebenen, die jeweils mit einem belebten öffentlichen Innenbereich und der Parkanlage verbunden sind. Zurückversetzte Eingänge definieren Plätze, mit denen die Aktivitäten im Innenraum nach draußen erweitert werden. Die transparente Gestaltung der verschiedenen Ebenen fördert die visuelle Verbindung und lädt zum Erkunden und Entdecken ein. Die Verkehrsflächen dienen zugleich als Treffpunkte, fördern die Interaktion innerhalb der Gemeinschaft und sind Garant dafür, dass alle Flächen und Räume leicht zugänglich und miteinander verbunden sind.
Das Gefälle am Standort beträgt von Norden nach Süden fast neun Meter. Es wird im Norden von einer Bauparzelle, im Osten von einem als Naturschutzgebiet ausgewiesenen Flusstal sowie im Süden und Westen von Straßen begrenzt. Aufgrund der im Umfeld geplanten Entwicklungsprojekte werden der Standort und das Gebäude in Zukunft eine wichtige Verbindung zwischen den wachsenden Wohnvierteln und den Kerb- und Flusstälern von Vaughan bilden – Räume, die das Naturerbe der Stadt und den größten Teil der öffentlich zugänglichen Grünflächen darstellen.

Tor von der Stadt zum Park Park und Gebäude gliedern sich um eine durchgängige OstWest-Promenade, die den Eingang des Gemeinschaftszentrums mit dem umliegenden Park verbindet. An dieser Promenade bieten sich Einblicke in die Gemeinschaftsangebote, gleich einer Einladung an Besucher, die diese Art von Einrichtung anderenfalls vielleicht nicht nutzen würden. Der skulpturartige Gebäudekörper strukturiert den Park, organisiert die Bewegungsströme und definiert Bereiche für Angebote im Freien und Zonen für ein integriertes Regenwassermanagement.
Die Innenbereiche öffnen sich zum Außenraum in Form von Plätzen, Terrassen und Grünflächen mit einem jeweils eigenen Mikroklima und Raum für vielfältige Erlebnisse. Das Hangprofil wird barrierefrei über gewundene Wege erschlossen, mit denen die landschaftsspezifischen Merkmale gewahrt bleiben. Die technischen Anlagen sind unterirdisch angeordnet. Über diese Verschmelzung von Architektur und Landschaft wird die Verbindung zwischen urbanem Leben und Natur gestärkt.

Markante Dachgeometrie
Charakteristisches Merkmal des Gebäudes ist das großflächige Dach, das alle im Innenraum vorhandenen Angebote zusammenführt und strukturiert. Das über dem terrassierten Gelände schwebende Dach markiert die Eingänge und bestimmt die Nutzererfahrung, steuert den Tageslichteinfall und beherbergt die Gebäudesysteme – ein einzigartiges architektonisches Element, das den Raum für die Gemeinschaft kühn definiert und gleichzeitig seine Präsenz in der Stadt markiert.
Die teilreflektierende Aluminiumverkleidung verändert ihr Aussehen mit den stetig wechselnden Lichtverhältnissen. So ist das Dach sowohl Teil als auch Mittelpunkt des Ortes. Ein durchgehendes Glasband trennt Dach und Boden visuell voneinander, schafft einen klaren Horizont und öffnet die obere Ebene für Panoramablicke in den Park. Diese Transparenz macht das Layout lesbar und lässt Tageslicht tief in das Gebäudeinnere einfallen, was den Kunstlichtbedarf minimiert und den offenen Charakter verstärkt.


Transparenz auf allen Ebenen
Im Innenraum unterstreicht eine schlichte und robuste Materialpalette das Gebäudelayout. Großzügige Verglasungen schaffen visuelle Verbindungen zu allen und durch alle Räume, motivieren zur aktiven Teilnahme und verankern das Gebäude in seinem Kontext. Durch die dynamisch geformten Boden- und Deckenflächen entsteht im Innenraum eine von Tageslicht geflutete Landschaft mit dramatischen Aussichten, spannenden Einblicken und interessanten Treffpunkten.
Die Verkehrsflächen eignen sich für diverse formelle und informelle Nutzungsarten. Die Optionen für eine flexible gemeinsame Nutzung und für Gemeinschaftsveranstaltungen werden maximiert. Damit wird das Zentrum zu einer dynamischen und inklusiven Destination, die sich im Zuge der sich verändernden demografischen und programmatischen Anforderungen weiterentwickeln kann.





Beispielhafte Nachhaltigkeit
Das Gebäude steht nicht nur für das Engagement für die lokale, sondern auch für die globale Gemeinschaft: Es erfüllt den Netto-Null-EmissionenStandard des Canada Green Building Council mit der Zertifizierung als „Net Zero Carbon Design“ und wird 60 Prozent weniger Energie und 44 Prozent weniger Trinkwasser verbrauchen als vergleichbare Anlagen.
Passive und aktive Designstrategien – darunter kontextsensitive Standortwahl, Hochleistungssysteme, eine optimierte Gebäudehülle, eine Geothermieanlage und ein großes Fotovoltaiksystem –machen das Carrville Community Centre & Library zu einer der energieeffizientesten Einrichtungen ihrer Art in Nordamerika und unterstützen das Ziel der Stadt Vaughan, bis 2050 CO2-neutral zu werden. Alle gestalterischen Entscheidungen, von der Materialauswahl bis hin zu den mechanischen Systemen, leisten einen Beitrag zur Nachhaltigkeit und positionieren das neue Zentrum als beispielhaftes Modell für künftige kommunale Projekte.
Autor: Perkins&Will Fotos: Doublespace, Lisa Logan

Obergeschoss

1. Haupteingang 2. Bibliothek
Erdgeschoss
3. Bibliotheksterrasse
Mehrzweckraum
5. Personalraum
Laufbahn
7. Parkanlage
Kindertagesstätte 9. Service 10. Büros

11. Eingang Süd
Mehrzweckraum
Gemeinschaftsküche
Poolblick
Familienumkleide 17. Beckenumgang
Schwimmbadpersonal
Umkleideräume
20. Schwimmbadtechnik
Sporthalle
Fitnessstudio

Markante Architektur für die Talentförderung
Sporthalle Schönberg
Mit dem Neubau der Sporthalle auf dem Schulcampus der Gemeinschaftsschule Probstei in Schönberg wurde ein zukunftsorientiertes Projekt umgesetzt, das auf die Bedürfnisse des schulischen Sportunterrichts, des Vereinssports sowie der allgemeinen öffentlichen Nutzung ausgerichtet ist. Die alte Sporthalle war in die Jahre gekommen und eine Sanierung wirtschaftlich nicht vertretbar. Daher entschied sich der Schulverband nach intensiver Planung für einen vollständigen Ersatzneubau, der nicht nur funktional überzeugt, sondern auch gestalterisch und nachhaltig Maßstäbe setzt.
Das Ziel bestand darin, einen eigenständigen, architektonisch markanten Baukörper zu schaffen, der gleichzeitig in den bestehenden Schulcampus integriert ist und den Sportbetrieb deutlich verbessert. Die Programmierung des Gebäudes umfasst eine großzügige Dreifeldsporthalle, die sich bei Bedarf durch Trennvorhänge in mehrere Einheiten aufteilen lässt, eine separate Turnhalle für kleinere Gruppen oder spezielle Sportarten, eine zweiseitig angeordnete Tribüne für Veranstaltungen sowie einen Fitnessraum, der sowohl schulisch als auch außerschulisch genutzt werden kann.
Darüber hinaus sollte die neue Halle generationenübergreifend nutzbar sein – mit einem inklusiven, barrierefreien Zugang und flexiblen Nutzungsmöglichkeiten auch außerhalb der Schulzeiten. Die Planung zielte darauf ab, ein Sportzentrum zu schaffen, das die körperliche Aktivität, die Gesundheitsförderung und die soziale Interaktion in der gesamten Gemeinde stärkt.
ERÖFFNUNG: JUNI 2025
Standort
Schönberg in Holstein, Deutschland
Bauherr / Betreiber
Schulverband Probstei
Architekt
Schnittger Architekten + Partner GmbH www.schnittger-architekten.de
Baukosten 12,5 Millionen EUR

Robuste Materialien in feinsinniger Architektur Architektonisch wurde der Neubau als klar gegliederter Solitär entworfen, der sich bewusst vom Erscheinungsbild der bestehenden Schulgebäude absetzt, aber gleichzeitig eine harmonische Verbindung zur Umgebung herstellt. Die Nähe zur Schule und die direkte Anbindung an den vorhandenen Sportplatz fördern kurze Wege und eine nahtlose Integration in den Schulbetrieb.
Die äußere Gestaltung vereint robuste Materialien mit einer feinsinnigen architektonischen Sprache. Der Eingangsbereich ist in Sichtbeton gehalten und wirkt durch seine reduzierte Gestaltung gleichzeitig einladend und funktional. Die Hallenbereiche sind mit einer gelochten, schräg geführten Trapezblechfassade umhüllt, die dem Baukörper Leichtigkeit verleiht und für interessante Licht- und Schatteneffekte sorgt. Ein umlaufendes Fensterband aus transluzentem Profilglas zieht sich durch das Gebäude und begleitet die Besucher vom Foyer über das Treppenhaus bis hin zur Tribüne und zum Fitnessraum. Es sorgt tagsüber für eine helle, natürliche Belichtung und erzeugt in der Dämmerung eine markante Außenwirkung.
Im Inneren prägt ein sichtbar belassenes Holztragwerk die Atmosphäre der Hallenbereiche. Ergänzt wird dieses durch Sichtbetonflächen, Holzlamellenwände und Sitzbänke, die dem Gebäude eine warme, natürliche Ausstrahlung verleihen. Diese
Materialkombination sorgt nicht nur für eine hochwertige Gestaltung, sondern auch für eine angenehme Raumakustik und eine klare Orientierung im Inneren.
Technisch bietet die neue Sporthalle ein Höchstmaß an Funktionalität und Flexibilität. Die Dreifeldhalle lässt sich durch Trennvorhänge in kleinere Bereiche gliedern, was eine gleichzeitige Nutzung durch verschiedene Gruppen oder Schulklassen ermöglicht. In der separaten Turnhalle können durch den dauerhaften Aufbau von Geräten Auf- und Abbauzeiten im Schulunterricht entfallen –ein großer Vorteil im straffen Stundenplan. Durch die intensive Mitnutzung durch Vereine kann außerdem eine größere Vielfalt an Sportgeräten vorgehalten werden. Ergänzt wird das Angebot durch einen integrierten Fitnessraum, der gezieltes Kraft- und Ausdauertraining erlaubt. Die Besonderheit der Dreifeldhalle: sie ist die erste Halle in Schleswig-Holstein an einer Schule, die über festinstallierte Turngeräte verfügt. Somit werden an der Talentschule für Turnen und Fußball hervorragende Voraussetzungen geschaffen, um Leistungs- und Breitensport gut miteinander zu kombinieren.
Auch die Gebäudetechnik folgt einem klaren, wartungsarmen Konzept. Eine offene Sichtinstallation reduziert die Zahl abgehängter Decken und vereinfacht den Zugang zu technischen Komponenten für Wartung und Nachrüstung.

Nachhaltigkeit:
zentrale Rolle bei Planung und Umsetzung
Die neue Sporthalle wurde nach ökologischen, ökonomischen und sozialen Nachhaltigkeitskriterien konzipiert. Ein zentrales Element ist die modulare Bauweise mit einem hohen Anteil an Fertigteilelementen. Diese ermöglichen eine deutlich verkürzte Bauzeit und reduzieren den Materialverschnitt sowie Bauabfälle. Gleichzeitig sorgt die hohe Vorfertigung für eine präzise Ausführung und gleichbleibende Qualität.
Die Holzhybridbauweise kombiniert die Vorteile von Stahlbeton in tragenden Bereichen mit den ökologischen Qualitäten von Holz –insbesondere bei den Prallwänden, Sitzflächen und innenliegenden Wandverkleidungen. Die eingesetzten Materialien sind größtenteils kreislauffähig und trennbar, sodass bei einem späteren Rückbau ein großer Teil wiederverwendet oder recycelt werden kann.
Ein weiteres wesentliches Nachhaltigkeitsmerkmal ist der Einsatz erneuerbarer Energien. Die Sporthalle nutzt eine Luftwärmepumpe für die Wärmeversorgung, ergänzt durch eine Photovoltaikanlage und Solarthermie. Dadurch wird ein Großteil des Energiebedarfs regenerativ gedeckt. Das Gebäude erfüllt den KfW-55-Standard, wodurch der Energieverbrauch im Vergleich zu konventionellen Neubauten deutlich gesenkt wird.
Die natürliche Belichtung der Hallenräume durch das transluzente Fensterband reduziert den Bedarf an künstlicher Beleuchtung erheblich. Gleichzeitig unterstützt die natürliche Belüftung das Raumklima und senkt den Energieaufwand für Lüftungsanlagen. Die Verwendung regionaler Bauunternehmen und Materialien stärkt die lokale Wirtschaft und minimiert Transportwege, was zusätzlich zur CO2-Reduktion beiträgt.


Mehrzweckbetrieb für Schule, Vereine und Öffentlichkeit
Das Betriebskonzept der neuen Sporthalle basiert auf Flexibilität, Inklusion und einer engen Verzahnung mit dem Schul- und Vereinsleben der Gemeinde. Die Halle wurde vollständig barrierefrei konzipiert – mit schwellenlosen Zugängen, breiten Verkehrswegen und behindertengerechten Sanitärräumen. Dadurch ist die Nutzung durch alle Alters- und Bevölkerungsgruppen möglich.
Während der Schulzeiten steht die Halle dem regulären Unterrichtsbetrieb zur Verfügung und bietet durch die flexible Raumaufteilung ideale Bedingungen für unterschiedlichste Sportarten und Unterrichtsformate. In den Nachmittags- und Abendstunden sowie an Wochenenden wird die Halle von lokalen Sportvereinen genutzt. Die dauerhafte Verfügbarkeit von Sportgeräten sowie die klaren Funktionsbereiche erleichtern den reibungslosen Ablauf zwischen den unterschiedlichen Nutzern.
Darüber hinaus bietet das Gebäude durch die vorhandene Tribüne auch die Möglichkeit, sportliche Wettbewerbe und schulische Veranstaltungen durchzuführen. Der Fitnessraum steht nicht nur für individuelle Trainingsprogramme im Schulalltag bereit, sondern kann auch von Vereinen oder im Rahmen von Kursangeboten verwendet werden.
Ein besonderer Aspekt ist die Möglichkeit, das Gebäude im Notfall als Mehrzweck- oder Notfallzentrum zu nutzen – sei es im Rahmen von Katastrophenschutz, Impfkampagnen oder anderen öffentlichen Ereignissen. Damit trägt die Sporthalle nicht nur zur körperlichen und sozialen Gesundheit bei, sondern übernimmt auch eine wichtige gesellschaftliche Funktion innerhalb der Gemeinde.
Autor: Dipl.-Ing. Architektin Bente Vierck Entwurf: Schnittger Architekten + Partner GmbH Fotos: MarcoKnopp/Kiel



Dreifeldhalle
Turnhalle
Turnhalle
Dreifeldhalle

Maximaler Einsatz von Holz
Turnhalle Markt Rettenbach
Markt Rettenbach im schwäbischen Landkreis Unterallgäu ist eine kontinuierlich wachsende Gemeinde mit einem sehr engagierten und aktiven Vereinsleben. Ein zentrales Ziel der rund 4.000 Einwohner zählenden Gemeinde war der Bau einer modernen Sporthalle mit integriertem Vereinsheim sowie neuen Umkleiden für die bestehenden Sportanlagen.
In der Marktgemeinde Markt Rettenbach gab es schon seit geraumer Zeit den Bedarf für eine neue Sporthalle für alle ortsansässigen Vereine. Ermöglicht wurde das Projekt durch die Städtebauförderung der Regierung von Schwaben im Rahmen eines Sonderprogramms für den Breitensport. Hinzu kam die Projektanforderung eines integrierten Vereinsheims sowie von neuen Umkleiden für die bestehenden Freisportanlagen.
Auf dem Areal am Rasensportfeld befand sich zuvor eine einfache HolzTribünenanlage. Die Umkleiden waren im Schulgebäude untergebracht und damit nicht direkt am Sportplatz angebunden. Die Aufgabe bestand dann darin, eine multifunktionale Halle zu errichten, die für möglichst viele Sportarten flexibel nutzbar ist, das Vereinsheim an zentraler Stelle integriert und Umkleiden sowohl für die Halle als auch für den Fußballbetrieb bereitstellt. Zudem sollte ein Ersatz für die rückzubauende Tribüne geschaffen werden. Die Mittelschule sollte in der neuen Halle einen bisher fehlenden Konditionsraum erhalten, der nach dem Schulbetrieb auch weiteren Sportgruppen zur Verfügung steht.
ERÖFFNUNG: 2024
Standort
Markt Rettenbach, Deutschland
Bauherr / Betreiber
Marktgemeinde Markt Rettenbach
Architekten
Hrycyk Architekten BDA, www.hrycyk-architekten.de
Team
Sebastian Hrycyk, Thomas Weyrich, Christian Knezovic
Tragwerksplanung
Planungsgruppe Dittrich

Synergien zur nahe gelegenen Schule Am nördlichen Ortsrand entstand die neue 1,5-fach-Sporthalle für den Vereinssport in unmittelbarer Nachbarschaft zur Grund- und Mittelschule sowie zum bestehenden Sportareal. Durch ihre leicht erhöhte Lage prägt der aus Funktion und Topografie entwickelte, solitäre Baukörper nun das Ortsbild. Auf der Ebene von Schule sowie Parkplatz – und somit um ein Geschoss zum Hallenniveau erhöht – liegt der Eingang. Hier öffnet sich das Bauvolumen mit einem durchgehenden Einschnitt als überdachter Vorbereich und Übergang zu den tieferliegenden Außensportflächen. Die Halle selbst liegt im Westen, während alle Nebenräume und zusätzlichen Nutzungen östlich zweigeschossig an das Hallenvolumen anschließen.



Großzügige Terrasse
Der Grundriss ermöglicht auf beiden Ebenen eine klare Orientierung und vielfältige Nutzungsmöglichkeiten. Foyer und Flur auf Eingangsebene dienen gleichzeitig als durchgehende Tribüne zur Sporthalle. Zentral am Eingang befindet sich das Vereinsheim mit Besuchertoiletten und einem überdachten Freisitz. Dieser Terrassenbereich kann zusammen mit dem durchgehenden Balkon zum Rasensportfeld auch als überdachte Zuschauerzone genutzt werden. Über eine Freitreppe ist er direkt mit dem Sportplatz verbunden.
Die Hallenebene mit Garderoben und Geräteräumen liegt ebenerdig zum Rasensportfeld und zur Laufbahn. Die Umkleiden können dank direkter Außenzugänge auch von Freiluftsportlern genutzt werden. An der Eingangsseite entstand zudem eine überdachte Boulderwand mit Fallschutzbelag.
Die barrierefreie Erschließung aller Bereiche innen sowie außen wurde durch einen ebenerdigen Zugang vom Parkplatz sowie durch einen Aufzug im Gebäude erreicht. Somit ist auch die um ein Geschoss tieferliegende Ebene vom Rasensportfeld sowie der Laufbahn für alle schwellenlos erreichbar.

Holz als zentrales Baumaterial
Durch die Verwendung nachhaltiger Baumaterialien, der Anwendung aktueller ökologischer Standards und einer energieeffizienten Bauweise wurde dem Klimaschutz umfassend Rechnung getragen.
Außer den Stützwänden im Hang erfolgte die Ausführung der gesamten Konstruktion in Holzbauweise, welche mit dem klaren Bauvolumen und der natürlichen Holzfassade ebenso im Äußeren gut ablesbar ist. Der klare Baukörper wurde mit sägerauer Deckschalung aus heimischer Lärche umspielt. Die Einschnitte sind durch eine glatte und gehobelte Fassade abgesetzt. Mehr Einsatz von Holz war wohl kaum möglich, sowohl konstruktiv als auch im Innenausbau und der äußeren Erscheinung.
Einen wesentlichen Beitrag zur Klimatisierung der Halle und zur Biodiversität leistet das Gründach. Mit der auf dem Dach montierten PhotovoltaikAnlage kann zudem bereits ein Großteil des benötigten Strombedarfs abgedeckt werden. Die Wärmeversorgung erfolgt über eine im Rahmen des Projektes neu entstandene Hackschnitzelheizung. Sie wird gemeinsam mit der Grund- und Mittelschule genutzt und ersetzt eine Ölheizung. Der Energiebedarf der Halle wird somit zu 100 % aus regenerativen Energiequellen gedeckt.
Autor: Hrycyk Architekten BDA Fotos: Sebastian Schels



Raumgestaltung zur Verbindung von Vorbereitung und Wettkampf
Goschke Family Wrestling Training Center der University of Iowa
Das neue Ringer-Trainingszentrum ist sowohl eine Hommage an die lange Ringsporttradition der Universität als auch ein zukunftsorientierter Ausdruck ihrer wettkampforientierten Ausrichtung. Es ergänzt die direkt südlich gelegene Carver-Hawkeye-Arena mit einer Zuschauerkapazität von 15.500 Sitzplätzen für Wettkämpfe und Veranstaltungen.
ERÖFFNUNG: MAI 2024
Standort
Iowa City, USA
Auftragnehmer McComas Lacina Construction

Inspiriert vom antiken Ludus Magnus – der Gladiatorenschule im antiken Rom, die direkt mit dem Kolosseum verbunden war – besteht durch einen Tunnel eine direkte Verbindung zwischen dem Ringer-Trainingszentrum und der Wettkampfarena. Diese symbolische Geste steht für einen überzeugenden Ansatz: Vorbereitung und Wettkampf sind untrennbar miteinander verbunden, und die Basis für Spitzenleistung wird lange vor dem Betreten der Wettkampfmatte gelegt.
Auch der Standort selbst spielt eine bedeutende Rolle für das Besuchererlebnis. Das Gebäude ist in eine bewaldete Schlucht eingebettet und wird von der Kunstinstallation „Stonerise“ flankiert, mittels behutsamer Platzierung und durchdachtem Layout gelingt die Integration in die Umgebung. Unter Nutzung der steilen natürlichen Geländeform konnten die Bereiche für hochintensives Training diskret in den Boden eingegraben werden. So wird die optische Wirkung des Gebäudes minimiert, und die Athleten erhalten gleichzeitig eine Umgebung mit gleichbleibenden Temperaturen. Dank der Tunnelverbindung zur Arena werden die Abläufe an Veranstaltungstagen vereinfacht und zugleich das Narrativ unterstrichen, dass Training und Wettkampf einen kontinuierlichen Kreislauf bilden.

Klarheit, Disziplin und Kontinuität Architektonisch verkörpert das Gebäude Klarheit, Disziplin und Kontinuität. An der Fassade wurden Materialien wie verwitterter Zink und perforierte Metallverkleidungen gewählt aufgrund ihrer Solidität, Robustheit und Fähigkeit, in Würde zu altern. Die soliden Fassadenflächen kontrastieren mit der verglasten Lobby, die Sportler, Interessenten und Besucher mit Transparenz und Offenheit willkommen heißt. Dieses Wechselspiel zwischen Stärke und Zugänglichkeit spiegelt das Ethos des Sports selbst wider. Im Inneren ist das Gebäude auf zwei zentralen Ebenen organisiert unter Berücksichtigung der natürlichen Geländeform und der funktionalen Anforderungen an das Hochleistungstraining. Im Obergeschoss befinden sich die Trainerbereiche, Mannschaftsräume und eine geräumige Lobby, in der sowohl das Ringen der Männer als auch der Frauen öffentlich präsentiert
1. Tunnel
2. Dusche
3. Umkleideraum
4. Kraftraum
5. Sauna
6. Kaltwasserbecken
7. Wäscherei
8. Büro
9. Trainingsvorraum
10. Trainingsraum
11. Untersuchungsraum
12. Technikraum
13. Trainingshalle

wird. Die Trainerbüros überblicken die zentrale Trainingshalle und bieten einen beeindruckenden Blick auf den Mattenbereich. Diese Aussicht spielt eine strategische Rolle bei der Gewinnung von Interessenten und dient oft als Rahmen für Erstgespräche.
Die untere Ebene fungiert als physischer Motor des Zentrums. Das Herzstück ist eine 743 m² große Trainingshalle – ein großzügiger, zweistöckiger Raum, der den Mittelpunkt der gesamten Trainingserfahrung bildet. Umkleiden, Krafttrainings- und Erholungszonen sind rund um die Trainingshalle angeordnet. Diese Anordnung unterstützt die effiziente Bewegung der Athleten zwischen den unterschiedlichen Bereichen, spiegelt den Trainingsrhythmus wider, verkürzt die Wege und erzeugt eine nahtlose Umgebung für sportliche Höchstleistung.

1. Lobby / Ruhmeshalle
2. Lounge
3. Arbeitsraum
4. Stillraum
5. Büro
6. IT-Raum
7. Technikraum
8. Balkon
9. Carver-Hawkeye-Arena
UNTERGESCHOSS OBERGESCHOSS
Charakterstärke, Widerstandsfähigkeit und Ehrlichkeit
Die Materialpalette im Innenraum ist Ausdruck der Kultur des Ringens, die von Charakterstärke, Widerstandsfähigkeit und Ehrlichkeit geprägt ist. Sichtbare Konstruktionssysteme machen die Stärke lesbar, Beton- und Metalloberflächen sind roh und unbeschichtet präsent. Diese patinierenden Materialien senken den Instandhaltungsaufwand, verbessern die Luftqualität und beseitigen visuelle Ablenkungen, die die Konzentration bei hochintensivem Training beeinträchtigen können. Die Architektur ist bewusst schnörkellos und stellt Leistung und Klarheit über dekorative Elemente. Das Ergebnis ist ein für den Sport authentisches Gebäude: einsatzbereit, bodenständig und entschieden auf Spitzenleistung ausgelegt.
Die technischen Systeme sind präzise aufeinander abgestimmt, um den sportartspezifischen Anforderungen gerecht zu werden. Beleuchtung, HLK und audiovisuelle Systeme sind auf die physiologischen und psychologischen Bedürfnisse der Ringerinnen und Ringer zugeschnitten. Mittels mechanischer Aufteilung in verschiedene Zonen werden eine für jeden Raum optimierte Temperatur und Luftfeuchtigkeit gewährleistet – von hochintensiven Trainingseinheiten bis hin zu ruhigen Momenten der Erholung. Tageslicht kommt selektiv vornehmlich in den Verwaltungsund Sozialräumen zum Einsatz, um Offenheit und Ausblicke sicherzustellen.
Sichtbarkeit und Einbindung der Gemeinschaft
Die öffentlichen und nicht-öffentlichen Bereiche sind durchdacht angeordnet, um die Einbindung der Gemeinschaft zu fördern und gleichzeitig die für die Entwicklung von Spitzensportlern erforderliche konzentrierte Umgebung herzustellen. Die Lobby im Obergeschoss öffnet sich zu einem begrünten Platz, der zu sozialem Miteinander, Feiern und Austausch einlädt. Transparente Fassaden gewähren Einblicke in die Aktivitäten im Innenraum, ohne die Trainingsfunktion zu beeinträchtigen, und schaffen ein Gleichgewicht zwischen Sichtbarkeit und Schutz.
Gleichstellung ist eines der Grundprinzipien des Zentrums. Die Trainings-, Umkleide- und Erholungsbereiche für die Männer- und Frauenteams sind im Hinblick auf ihre Größe, Qualität und Lage gleichwertig gestaltet. Dies spiegelt den rasanten Aufstieg des Ringens der Frauen wider und positioniert beide Wettbewerbsklassen als wesentlich für die Zukunft des Sports.
Gemeinsame Aufenthaltsbereiche und eine Lobby für den wechselseitigen Austausch fördern die Interaktion zwischen Sportlern, Trainern und Besuchern. In diesen Bereichen wird das sportliche Erbe mit Trophäen, Grafiken und Erinnerungsstücken in Szene gesetzt. Damit findet die Anerkennung nicht mehr im Hintergrund statt, sondern an prominenter Stelle in einer lichtdurchfluteten öffentlichen Umgebung. So wird die Leistungsschau zu einem gemeinsamen, für alle zugänglichen Erlebnis, mit dem die Vergangenheit zelebriert und gleichzeitig künftige Athleten inspiriert werden.
Der Außenplatz fördert die Verbindung zur Gemeinschaft. Er ist mit integrierten Sitzgelegenheiten und flexiblen Begegnungsflächen ausgestattet und bietet Platz für diverse Veranstaltungen, von zwanglosen Treffen unter Studierenden bis hin zu großen Feiern. Die starke physische und visuelle Verbindung zwischen Außenplatz und Lobby unterstützt die Präsenz des Ringer-Trainingszentrums im täglichen Campusleben und schafft ein einladendes Eintrittstor für Besucher und Interessenten.
Autor: Neumann Monson Architects Fotos: Cameron Campbell Integrated Studio



Nolhaga Ishall hat den Bogen raus
Eissporthalle in Alingsås
Die Eissporthalle „Nolhaga Ishall“ liegt im landschaftlich reizvollen Nolhaga-Park und ist für den Vereinssport konzipiert. Ein Eishockeyclub und ein Eiskunstlaufverein trainieren hier. Auf der Tribüne finden 500 Zuschauer Platz. Am Tag vor der Einweihung des Gebäudes im März 2025 schaffte der Eishockeyverein passenderweise den Aufstieg in die Zweite Eishockeyliga, ein weiterer Anlass zur Freude.
Die Nolhaga Ishall bildet den Treffpunkt für Sportbegeisterte mit Fokus auf Gemeinschaft und Aktivität und prägt das Vereinsleben in Alingsås. Die Planung erfolgte in Zusammenarbeit mit Alingsåshem und Peab. Der Bau begann mit dem ersten Spatenstich im Mai 2023; die Eissporthalle wurde Anfang 2025 eingeweiht.
ERÖFFNUNG: MÄRZ 2025
Standort
Alingsås, Schweden
Bauherr / Betreiber
Alingsåshem und PEAB

Funktionale Leimholz-Bögen prägen Gebäudeform
Der Wunsch des Auftraggebers, so viel wie möglich in Holz und fossilfrei zu bauen, verleiht dem gesamten Gebäude seinen starken architektonischen Charakter. Eine besondere Herausforderung bestand darin, dass der Bebauungsplan eine maximale Gebäudehöhe vorgab, bei der das fertige Gebäude eigentlich zu niedrig für eine Halle im Ligabetrieb gewesen wäre.
Es musste also eine gute konstruktive Lösung gefunden werden, die sowohl den Anforderungen des Eishockeyverbands an die lichte Deckenhöhe als auch den Vorgaben des Bebauungsplans hinsichtlich maximaler Höhe und Grundfläche gerecht wurde.
Nach Berechnungen zur Statik einer Leimholzkonstruktion stellte sich heraus, dass ausgerechnet herkömmliche Leimholzbinder oder Leimholzfachwerke zu hoch gewesen wären. Die einzige
Lösung war, sechs jeweils 85 Meter lange Leimholz-Bögen über die Hallen zu spannen. Die Form folgt also der Konstruktion und Funktion. Die hinzugezogenen Statiker bestätigten die Machbarkeit. Im Gebäudeinnern sind die Bögen mit 1,4 Metern Höhe und 0,6 Metern Breite sehr präsent.
Um größere Flächen für Begegnungs- und Pausenbereiche zu schaffen, wurde die Fassade nach außen geneigt. Dies verleiht nicht nur den Innenräumen hinter der geneigten Fassade eine besondere Charakteristik, sondern prägt auch die äußere architektonische Gestalt.
Neben den standortbedingten Herausforderungen bestand die Aufgabe darin, mit einem begrenzten Budget für eine kommunale Einrichtung ein qualitativ hochwertiges Gebäude zu schaffen.

Naturnahe, organische Form
Ausgehend vom Charakter des Ortes ergab sich auch aus gestalterischen Aspekten die Bogenform als logische Konsequenz. Der Genius Loci des Nolhaga-Parks mit seinen alten, großen Bäumen, weiten Rasenflächen und den glitzernden Wasserläufen, die sich durch den Park ziehen, sowie dem hohen Felsen, der im Norden eine klare Grenze bildet, verlangte als Ort nach einer naturnahen, organischen Form.
Die Materialien für Dach und Fassaden ergaben sich angesichts des Standorts ebenfalls fast von selbst – sie sollten natürlich und erneuerbar sein. Die Fassade aus Stein und Schiefer spiegelt das Granitgestein des Felsens wider, das begrünte Dach das Grün des Parks, sowie die Glasflächen das glitzernde Wasser. Die innere Wandverkleidung aus Birkensperrholz und eine Lamellendecke aus Kiefernholz schaffen eine warme und einladende Atmosphäre. Die Materialwahl ermöglicht der Architektur einen aktiven Dialog mit der Umgebung des Gebäudes als Teil des Parks.


Raum für vielfältige Aktivitäten
Im Norden liegt der Haupteingang, der zugleich als öffentlicher Zugang für Zuschauer fungiert. Im Westen befinden sich der Eingang für die Sporttreibenden sowie der Empfang. Dort ist die Verleihstation für Schlittschuhe angeordnet – sowohl für Eiskunstlauf als auch für Eishockey. Große Glasflächen folgen der Bogenform des Gebäudes und markieren den Haupteingang sowie die öffentlichen Begegnungsflächen auf zwei Ebenen, mit Ausblicken in den Park.
Die Eissporthalle wird für Eishockey- und Eiskunstlauf-Wettkämpfe genutzt und bietet Platz für 500 Zuschauer. Darüber hinaus verfügt das Gebäude über einen großen Tanzsaal und ein Fitnessstudio.

Foyer und Café mit Aufenthaltsqualität
Das Foyer und das Café sind direkt vom Haupteingang aus erreichbar und dienen als Treffpunkt für die Zuschauer vor den verschiedenen Veranstaltungen. In direkter Verbindung zu Café und Zuschauertribünen befinden sich Begegnungs- und Pausenflächen auf zwei Ebenen. Neben dem Café liegt ein größerer Konferenzraum mit Blick in die Eissporthalle.
Das clever konzipierte Raumprogramm bietet eine große Anzahl an Umkleide- und Lagerräumen – sowohl für den Eishockey- als auch für den Eiskunstlaufbetrieb. Außerdem gibt es Räume für die Hausaufgabenbetreuung vor den Trainingseinheiten.
Auch im Innenraum wurde mit natürlichen, nachhaltigen und erneuerbaren Materialien gearbeitet: Wände aus Birkensperrholz, Böden aus Eschenparkett, Decken aus Kiefernholzpaneelen sowie die tragenden Bögen aus Brettschichtholz. Natürliche Materialien also, die alle ihren Ursprung in den Bäumen, Gräsern und Steinen der Umgebung haben.
Bei der Gestaltung lag zudem ein großer Fokus darauf, eine möglichst einladende und inklusive Umgebung zu schaffen – mit ansprechenden öffentlichen Bereichen, in denen sich Menschen gerne aufhalten.
Autor: Jürgen Wahlström Fotos: James Silverman




Wachstumsmotor für Wirtschaft, Kultur und Freizeit
Southeast Event Centre in Steinbach
Das Southeast Event Centre (SEC) im Stadtzentrum von Steinbach ist eine hochmoderne Mehrzweckanlage, die als Kultur-, Freizeit- und Veranstaltungszentrum für den Südosten der Provinz Manitoba konzipiert wurde. Steinbach ist ein schnell wachsendes Mittelzentrum am Ostrand der kanadischen Prärie. Das SEC wurde im März 2025 offiziell eröffnet. Voraus gegangen war ein jahrzehntelanger Planungs- und Kooperationsprozess zwischen der Stadtverwaltung, der Bevölkerung und privaten Partnern. Basierend auf einem mehrdimensionalen Beteiligungsprozess zur Einbindung von Interessengruppen erfüllt der Entwurf die Bedürfnisse der Gemeinschaft unter gleichzeitiger Berücksichtigung des besonderen Bedarfs an privaten Investitionen. Entstanden ist eine echte Hybridanlage, die ihren Zweck als Freizeitzentrum für die Gemeinschaft erfüllt.
ERÖFFNUNG: AUGUST 2025
Standort
Steinbach, Kanada
Inhaber
City of Steinbach
Betreiber Southeast Events Group
Architekten
Verne Reimer Architecture Incorporated (VRA Sport), www.vernereimer.com Populous, www.populous.com

Herzstück der 10.405 m² großen Anlage ist eine Mehrzweckarena mit einer Zuschauerkapazität von 2.400 Sitzplätzen für Eissportarten (erweiterbar auf 4.000 für Konzerte) als Heimstadion der Steinbach Pistons (MJHL), Eastman Selects und lokaler Vereine. Die Arena überführt neue Ansätze aus der Gestaltung von Großarenen (NHL) auf den Maßstab einer Anlage mit überschaubarer Größe. Design und Programmangebot umfassen funktionale, barrierefreie und inklusive Elemente für Teilnehmende und Zuschauende. Umkleiden, Bühnenbereiche, Räume für Freiwillige, großzügige Lager- und Servicebereiche unterstützen die Anforderungen des breiten Programmangebots. Zusätzlich warb das Eishockeyteam der Pistons Mittel für einen eigenen Arenabereich ein, der ein leistungsorientiertes Umfeld für den Teambetrieb, Therapieräume, Flächen für Teamaktivitäten sowie eigene Umkleiden und dazugehörige Bereiche umfasst. Obwohl die Anlage vornehmlich für Eishockey genutzt werden soll und man auch auf
eine Ausrichtung nationaler Events hofft, eignet sich die Arena auch für viele andere größere Veranstaltungen, wie den Grand Slam of Curling (GSOC), der Anfang 2026 hier stattgefunden hat.
Um dem dynamischen Bedarf der Gemeinschaft gerecht zu werden, flankieren diverse Mehrzweckbereiche den Arenakomplex, darunter eine Sporthalle mit 500 Sitzplätzen für Bankette, Messen und Sportveranstaltungen, Mehrzweckräume, Fitnessbereiche mit umlaufender Laufbahn und Wellnesseinrichtungen. Die Sporthalle bildet einen zentralen Baustein der Anlage und eignet sich für eine Vielzahl von Sportarten, unter anderem Volleyball, Basketball, Badminton und Pickleball. Das Zentrum soll als Austragungsort für Turniere im Amateursport für Menschen aller Altersgruppen und Leistungsstufen dienen und damit einen Bedarf decken, der bislang nur durch die Nutzung lokaler Schulturnhallen erfüllt werden konnte.

Atrium als zentrales Element
Die Region ist für den Export hochwertiger Lebensmittel bekannt. An diese Tradition anschließend finden sich im Arenakomplex ein französisch inspiriertes Restaurant, weitere Gastronomiebetriebe sowie ein Gemeinschaftsatrium, das die Menschen zusammenbringt. Das Atrium ist ein zentrales Element für die Durchführung einer breiten Palette von Veranstaltungen, darunter Konzerte, Sportevents, Konferenzen, Messen und Gemeindefeiern. Neben dem kulturellen Erbe der Region spielt die Kücheninfrastruktur eine wichtige funktionale Rolle. Sie ist zentral innerhalb der Anlage angeordnet und vollständig integriert, um Menüangebote sowohl für den täglichen Betrieb als auch für Großveranstaltungen bereitzustellen.


Katalysator für nachhaltige Entwicklung
Die Baukosten für das SEC beliefen sich auf 74,3 Millionen. Es ersetzt die alte Centennial Arena (1967-2023) und ergänzt den bestehenden Freizeitcampus. Der Anschluss an die bestehenden Freizeitanlagen erfolgt über eine große überdachte Verbindung, einen neuen Kinderspielbereich und öffentliche Treffpunkte. Bereits in den 1990er Jahren begann der Erwerb zahlreicher am Standort vorhandener Wohnimmobilien mit der Vision, ein kulturelles Zentrum in der Innenstadt zu schaffen. Der Entwurf sollte als Katalysator für nachhaltige Entwicklung in diesem wachstumsstarken Mittelzentrum dienen. Die Designplanung begann während der COVID-Pandemie, Baubeginn war im Januar 2023, die große Eröffnungsfeier fand im August 2025 statt.
Die Projektfinanzierung gelang über eine Kombination aus öffentlichen Mitteln aller Ebenen, privaten Beiträgen in erheblicher Höhe, Sponsorengeldern und Fundraising. Angesichts der Finanzierung aus Bundes- und Provinzmitteln war das Erreichen von Nachhaltigkeitszielen obligatorisch. In Manitoba, einer Region mit extrem heißen Sommern und kalten Wintern, lag der Schwerpunkt des Entwurfs auf einer hochleistungsfähigen Gebäudehülle, Energieoptimierung, passivem Sonnenschutz, lokalen Rohstoffen und Ressourcen, der Senkung von Treibhausgasemissionen und einer nachhaltigen Standortgestaltung mit umfangreichen Bepflanzungen und Außenanlagen wie einer Außeneisfläche, die aus lokalem Ulmenholz gebaut wurde. Das zentrale Atrium basiert auf einem Massivholzrahmen aus ostkanadischem Holz, der vor Ort gefertigt wurde. Der neu entstandene Veranstaltungsort im Stadtzentrum weckt bereits das Interesse an einer Erschließung benachbarter Grundstücke.

Lokaler Beitrag
Der hybride Charakter der Anlage wird zusätzlich durch die vielen besonderen Merkmale und Abläufe unterstrichen, die in den Planungsprozess integriert wurden. Zu diesen Elementen zählten unter anderem eine detaillierte Sponsoring- und Leitsystemstrategie, Designüberprüfungen im Hinblick auf Barrierefreiheit und Inklusion, die maßgeschneiderte Planung der AV-Systeme und die Möglichkeit für die Stadt Steinbach, sich aktiv an der Bereitstellung und Installation von Komponenten mit eigenem Personal zu beteiligen. Dieser lokale Beitrag ist in vielen Bereichen der Anlage sichtbar, von der Boulderwand in der Spielzone über eine Stehtheke für Zuschauende bis hin zu einem Bereich, der den lokalen Sportlegenden und ihrer Geschichte gewidmet ist.
Das Southeast Event Centre wurde von der Gemeinde für die Gemeinde gebaut, um die Menschen zusammenzubringen und den Stolz auf die Region zu stärken. Erwartet wird, dass es sich zu einem wichtigen Wachstumsmotor für Wirtschaft, Kultur und Freizeit in Steinbach und darüber hinaus entwickeln wird.
Autor: Jeff Penner MAA OAA MRAIC Project Architect Fotos: Stationpoint Photographic

11. HKP-Raum 12. Spielbereich 13. AV-Raum 14. IT-Raum 15. Putzmittelraum 16. PB-Raum 17. MPR-Raum
18. Veranstaltungslager
19. Eisbearbeitungsmaschine
20. Eisfläche
21. Zentralküche 22. Servierraum 23. Umgang
Mehrzweckhalle
Lobby
Umkleideraum der Pistons
Kältetechnik 28. Personalraum 29. Schutzwestenraum
Umgang 31. Fanshop
Wartung 33. Club-Teeküche 34. Suite
Club
Kiosk 37. Gästebank 38. Heimbank 39. Medien
Laufbahn

Tradition trifft Transformation
Kunsteisbahn Villingen-Schwenningen ist Vorreiter für nachhaltige Energieversorgung
Die Kunsteisbahn Villingen-Schwenningen ist seit ihrer Eröffnung im Jahr 1968 ein zentraler Ort für den Eissport in der Doppelstadt. Inzwischen ist die Kunsteisbahn mehr als nur eine Sportstätte. Sie steht im Mittelpunkt eines ambitionierten Transformationsprozesses, der die energetische Zukunft der Stadt Villingen-Schwenningen mitgestaltet. Die kommunale Wärmeplanung verfolgt das Ziel, die Wärmeversorgung klimaneutral zu gestalten und dabei lokale Potenziale zu nutzen. Die Kunsteisbahn spielt dabei eine Schlüsselrolle, denn die Ammoniak-Kälteanlage erzeugt große Mengen an Abwärme, die bislang ungenutzt blieben. Ursprünglich bestand die Anlage aus einer offenen Eisfläche mit ammoniakgekühlter Technik. Ein Erdwall diente als Zuschauerbereich, Umkleiden waren spärlich vorhanden. Bereits 1976 wurde die Eisfläche überdacht, eine Sitztribüne errichtet und die Infrastruktur für Heim- und Gastmannschaften verbessert.
Später kam eine Curlinghalle hinzu, die aus einer privaten Initiative entstand. Heute präsentiert sich die Anlage als modernes Eissportzentrum mit der Helios Arena für Profi-Eishockey, einer zweiten Eisfläche für Publikum und Nachwuchs sowie einer Curlingbahn und Gastronomie.
Technische Eckdaten der Anlage
• Kältemittel: Ammoniak (NH₃) – umweltfreundlich und effizient
• Eisflächen: Zwei Hauptbahnen + Curlinghalle
• Hauptnutzfläche: circa 10.000 m²
• Modernisierung: Dach, Beleuchtung, Lüftung, Curlingbahn (2018–2019)
• Energiebedarf: circa 2,4 Millionen kWh Strom und 2,3 Millionen kWh Erdgas pro Jahr
Abwärmepotenzial und Messungen
Die Kälteanlage erzeugt jährlich rund 4,5 Millionen kWh ungenutzte Wärme, also Abwärme, welche über das Dach an die Außenluft abgegeben wird. Diese Abwärme soll nun über einen Wärmetauscher nutzbar gemacht werden und im ersten Schritt den eigenen Wärmebedarf der Eishalle deutlich reduzieren. In einem zweiten Schritt soll übrige Abwärme für ein kommunales Wärmenetz zur Verfügung gestellt werden. Da die Eishalle zu Trainingszwecken der Profimannschaft auch im Sommer betrieben wird, sollen intelligente Speichersysteme eingesetzt werden. Eine Machbarkeitsstudie hat die Abwärmepotenziale quantifiziert:
• Abwärmemenge: 4,5 Millionen kWh pro Jahr
• Temperaturniveau: bis zu 105° Celsius
• Messmethodik: Temporäre Wärmemessungen zur Ermittlung von Leistung und Energiemengen Abwärme aus der Kälteanlage
• Herausforderungen: Fehlende Zählerstruktur, komplexe Systemgrenzen
Daniel Merz, Projektleiter bei der energielenker Gruppe, erklärt: „Die Abwärmeauskopplung ist ein Gamechanger. Mit intelligenter Speichertechnik und Wärmetauschern können wir die Wärme in das Quartiersnetz einspeisen und so Wohn gebäude und öffentliche Einrichtungen versorgen.“
Transformationsplan: die Maßnahmen im Überblick
Die energielenker Gruppe begleitet das Projekt in der Kunsteisbahn Villingen-Schwenningen seit den ersten Ansätzen im Rahmen eines ganzheitlichen Transformationsplans. Der ganzheitliche Ansatz umfasst:
• Pumpen- und Ventilatorentausch zur Effizienzsteigerung
• Optimierung der Gebäudeleittechnik (GLT) für bedarfsgerechte Steuerung
• Einführung eines Energiemanagementsystems
• Installation von Photovoltaikanlagen auf Dach und Parkplatz
• Taugruben-Optimierung und Wärmespeicherung
• Repowering der bestehenden PhotovoltaikAnlage
Erwartete Wirkung:
• CO₂-Reduktion: bis zu 77,8 %
• Amortisationszeiten: Je nach Maßnahme zwischen 1 Jahr und 16 Jahre für umfangreichere Maßnahmen
• Förderprogramme: Bundesamt für Wirtschaft und Außenkontrolle (BAFA) und Landesförderung sichern Wirtschaftlichkeit
Olaf Behrendt, Key Account Manager der energielenker Gruppe, betont: „Unser Ansatz ist ganzheitlich: Wir betrachten Technik, Wirtschaftlichkeit und Fördermöglichkeiten. So schaffen wir Lösungen, die ökologisch und ökonomisch überzeugen.“

Mit Förderprogrammen die Wirtschaftlichkeit sichern
Die Umsetzung der Maßnahmen wird durch attraktive Förderprogramme unterstützt. Besonders relevant ist das BAFA- Programm „Energieeffizienz in der Wirtschaft (EEW)“, das Investitionen in Effizienzmaßnahmen und Transformationspläne bezuschusst:
• Modul 1: Querschnittstechnologien (Pumpen, Ventilatoren) – bis zu 200.000 Euro Förderung
• Modul 3: Mess-, Steuer- und Regeltechnik, Energiemanagementsysteme – bis zu 90.000 Euro
• Modul 4: Optimierung von Anlagen und Prozessen – bis zu 45 % Zuschuss
• Modul 5: Transformationsplan – bis zu 90.000 Euro für Analyse, Treibhausgas-Bilanz und Maßnahmenentwicklung
Zusätzlich konnte für die Machbarkeitsstudie zur Abwärmenutzung eine Landesförderung in Baden-Württemberg mit Förderquoten bis zu 75 % genutzt werden. Olaf Behrendt erklärt: „Förderprogramme sind der Schlüssel, um ambitionierte Projekte wirtschaftlich darstellbar zu machen. Wir begleiten unsere Kunden von der Antragstellung bis zur Umsetzung.“
Zukunftsperspektiven:
Wärmenetze und Klimaneutralität Aus dem Projekt heraus ergibt sich eine Zukunftsperspektive für die Kunsteisbahn, die der Geschäftsführer der Stadtwerke Villingen-Schwenningen GmbH, Gregor Gülpen, wie folgt zusammenfasst: „Die Kunsteisbahn soll künftig nicht nur Sportstätte, sondern auch Wärmelieferant für die Stadt werden. Die überschüssige Wärme kann in ein kommunales Wärmenetz eingespeist werden, das Wohngebäude und öffentliche Einrichtungen versorgt.“
Perspektivisch entstehen:
• Quartierslösungen: Integration der Abwärme aus der Kunsteisbahn in lokale Wärmenetze
• Saisonale Speicher: Nutzung von Pufferspeichern für Sommer/ Winter-Betrieb
• Erneuerbare Kombination: Kopplung mit Wärmepumpen und perspektivisch weiteren erneuerbaren Energien
Die Erfahrungen aus Villingen-Schwenningen dienen als Blaupause für andere Kommunen. Eishallen könnten künftig flächendeckend als Energie-Hubs genutzt werden – eine neue Rolle für Sportstätten im Kontext der Wärmewende.

Fazit
Die Kunsteisbahn Villingen-Schwenningen verbindet Tradition mit Innovation. Sie ist nicht nur Heimat des Profieishockeys, sondern auch ein Vorreiter für nachhaltige Energieversorgung. Mit der Nutzung von Abwärme, Photovoltaik und intelligenter Steuerung wird sie zum Symbol für die klimaneutrale Stadt der Zukunft. Die Zusammenarbeit mit der energielenker Gruppe zeigt, wie technische Expertise, Fördermittel und strategische Planung zusammenwirken, um Klimaschutz und Wirtschaftlichkeit zu vereinen.
Autor und Fotos: energielenker, www.energielenker.de



Der zweigeschossige Hallenbau fügt sich durch die abgesenkte Spielfläche und die strukturierende Lochblechfassade präzise
Sportfläche im Großformat
Leistungsfähige Gerflor Sportlinoleumbeläge für Achtfach-Halle in Monheim
In Monheim am Rhein ist am Schulzentrum Berliner Ring die erste Achtfach-Sporthalle Europas in Schnellbauweise mit vorgefertigten Elementen realisiert worden. Der kompakte Bau entstand in kurzer Zeit und bietet eine flexible Sportinfrastruktur für Schulen und Vereine. Auf den großflächigen Spielfeldern kommen belastbare Sportlinoleumböden von Gerflor zum Einsatz.

Linodur Sport in Lagoon und Glowing Rock setzen klare Akzente. Die kontrastreiche Kombination unterstützt die Raumorientierung und gibt den beiden Hallenebenen ein prägnantes, funktionales Farbkonzept.
Präzise eingebunden in das Schulensemble
Die Stadt Monheim musste den steigenden Raumbedarf für den Sportunterricht des Otto-Hahn-Gymnasiums, der Gesamtschule am Berliner Ring und der ansässigen Vereine auffangen. Der Neubau der Achtfach-Halle wurde daher als funktionale Erweiterung des bestehenden Schulzentrums geplant und mithilfe einer Schnellbauweise mit vorgefertigten Elementen realisiert. In unmittelbarer Nähe zu beiden Schulen positioniert ergänzt der Bau das Gelände um eine zentrale, flexibel nutzbare Sportstätte. Um das große Bauvolumen städtebaulich verträglich einzubinden, wurde das Hauptspielfeld um ein Geschoss abgesenkt, sodass die untere Ebene rund fünf Meter unter Geländeniveau liegt. Die zweigeschossige Organisation mit jeweils vier gleich großen Halleneinheiten und insgesamt 4.400 m² reiner Sportfläche ermöglicht eine flexible Nutzung für Unterricht, Training und Wettkampf. Auf weiteren rund 3.000 m² verteilen sich Umkleiden, Sanitär- und Technikräume, Lagerflächen, Erschließungsbereiche sowie das Foyer. Für Veranstaltungen steht in der unteren Ebene eine ausfahrbare Teleskoptribüne mit 500 Sitzplätzen zur Verfügung.
in das Schulzentrum ein.
Sportboden für dauerhafte Beanspruchung und höchsten Komfort
Als es um eine strapazierfähige und gleichzeitig nachhaltige und ästhetische Bodenlösung für die riesige Spielfläche der Achtfach-Halle ging, fiel die Wahl auf DLW-Linoleum von Gerflor. Dabei setzten die Planer konkret auf die Linie DLW Linodur Sport in den Farben Glowing Rock sowie den kühlen Blauton Lagoon. Auch in sportfunktionaler Hinsicht überzeugen die flächenelastischen Bodenbeläge. Ein weiteres zentrales Qualitätsmerkmal der gewählten Bodenlösung ist die werkseitige Neocare Oberflächenvergütung. Sie schützt wirksam vor Mikrokratzern, reduziert den Einsatz von Reinigungsmitteln und erleichtert zudem auch die Entfernung von Harzspuren aus dem Handballsport. Die einpflegefreie Oberfläche unterstützt einen wirtschaftlichen Unterhalt – was gerade in der stark frequentierten Schul- und Vereinssporthalle einen wichtigen Vorteil darstellt.

Ganzheitlich nachhaltige Bodenlösung
Die emissionsarme Rezeptur der DLW-Sportböden unterstützt eine gute Innenraumluftqualität und erfüllt die strengen Anforderungen moderner Schul- und Sportbauten. DLW-Linoleum besteht bis zu 98 % aus organischen und mineralischen Rohstoffen wie Leinöl, Holz, Kalkstein, Jute sowie Harz und ist mit „Cradle to Cradle“ (Silber) zertifiziert. Zudem ist der Belag zu 100 % re cycelbar und besteht je nach Produktlinie aus bis zu 40 % aus recyceltem Material. Nicht zuletzt sind die DLW- Beläge sortenrein rückführbar, sodass sie am Ende des Lebenszyklus wieder in den Materialkreislauf zurück fließen können.
Autor: Gerflor, www.gerflor.de
Fotos: Tim Kögler Fotografie


Die flächenelastischen DLW-Sportbeläge bieten sehr gute Beständigkeit gegenüber hohen Punkt- und Rolllasten – etwa durch Tribünenelemente oder Mattenwagen.

Bewegung braucht Raum
Sport- und Turnhallenlösungen für Städte und Gemeinden –flexibel, normgerecht und zukunftsfähig

Steigende Schülerzahlen, sanierungsbedürftige Bestandsbauten, wachsende Anforderungen an Normen, Barrierefreiheit und Energieeffizienz – viele Kommunen stehen vor derselben Herausforderung: Es fehlt an geeigneten Sport- und Turnhallen. Gleichzeitig lassen sich Neubauten oft nicht kurzfristig realisieren. Genau hier sind Lösungen gefragt, die schnell verfügbar sind, langfristig genutzt werden können und sich den jeweiligen Rahmenbedingungen anpassen lassen.

Unterschiedliche Ausgangslagen, gleiche Herausforderung
Ob akuter Hallenausfall, Sanierungsphase oder struktureller Mehrbedarf: Der Bedarf an Sportflächen entsteht häufig kurzfristig, während Planungs- und Genehmigungsprozesse Zeit benötigen. Schulen und Vereine geraten unter Druck, Sportbetrieb muss ausgelagert oder eingeschränkt werden. Gleichzeitig steigen die Anforderungen an Bauqualität, Sicherheit und gesetzliche Vorgaben. Kommunen benötigen Lösungen, die sofort greifen – ohne spätere Entscheidungen zu verbauen.
Flexible Lösungen – von temporär bis permanent NÜSSLI entwickelt und realisiert Sport- und Turnhallenlösungen entlang des gesamten Bedarfsspektrums. In der Schweiz kommen vollständig demontierbare Systemhallen zum Einsatz – von der Kleinhalle bis zur Dreifach-Turnhalle – die nach BASPO-Richtlinien innerhalb weniger Wochen realisierbar sind und über viele Jahre genutzt werden können. Bis zu 90 Prozent der eingesetzten Materialien und Anlagen sind wiederverwertbar. So sichern die Hallen den Sportbetrieb unmittelbar und bleiben zugleich flexibel für zukünftige Entwicklungen.
Kia Metropol Arena Nürnberg (Deutschland)
Multifunktionale Sport- und Eventhalle in Schnellbauweise und im Budget
In Deutschland hat NÜSSLI Interimslösungen in Form von Stahlhallen realisiert, die innerhalb weniger Monate geplant und gebaut werden. Sie können über mehrere Jahre als vollwertige Sportstätten genutzt werden und schaffen so Planungsspielraum für eine langfristige Lösung. Ist der Bedarf klar definiert, realisiert NÜSSLI permanente Hallen in Schnellbauweise. Vorfertigung, präzise Planung und effiziente Abläufe verkürzen dabei die Bauzeiten deutlich, ohne Abstriche bei Qualität oder Nutzung zu machen.
Erfahrung, die sich anpassen lässt Allen Projekten gemeinsam ist der ganzheitliche Ansatz: NÜSSLI versteht die unterschiedlichen gesetzlichen Rahmenbedingungen, Normen und Nutzungsanforderungen und übersetzt sie in passgenaue bauliche Lösungen. Ob temporär oder dauerhaft, einfach
oder achtfach – jede Halle wird auf den konkreten Bedarf zugeschnitten und bereits in der Planung so gedacht, dass sie wirtschaftlich, funktional und langfristig tragfähig ist.
Planungssicherheit für heute und morgen Für Kommunen bedeutet das vor allem eines: Handlungsspielraum. Sporthallen von NÜSSLI schaffen kurzfristig Entlastung und eröffnen gleichzeitig Perspektiven für die langfristige Entwicklung. Sie sichern den Betrieb, geben Zeit für strategische Entscheidungen und beweisen, dass flexible Bauweisen und hohe Nutzungsqualität kein Widerspruch sind.
Autor: NÜSSLI , www.nussli.com
Fotos: NÜSSLI

Doppel-Turnhalle Oberwil (Schweiz) Doppel-Turnhalle als Systembau, realisiert in 12 Wochen

Sporthalle Albstadt (Deutschland) Interimssporthalle – 4 Monate Planung, 5 Monate Bauzeit

Nachhaltiger Sportstättenbau mit System: der Sportkomplex Mohnweg in Bergisch Gladbach
Mit dem Neubau des Sportkomplexes Mohnweg ist in Bergisch Gladbach eine Sportanlage entstanden, die technische Präzision, nachhaltige Bauweise und effiziente Projektabwicklung konsequent zusammenführt.
Statik trifft Akustik: LIGNATUR als multifunktionales Deckensystem
In Schwimmbädern und Sporthallen zählt die Decke zu den technisch anspruchsvollsten Bauteilen: Sie muss große Spannweiten überbrücken, den bauphysikalischen Anforderungen der Hallenatmosphäre standhalten und ist zugleich die zentrale wirksame Fläche für die Raumakustik.
Am Standort Mohnweg entschied man sich für LIGNATUR-Flächenelemente (LFE). Mit einer Elementhöhe von 180 mm übernehmen sie bei einer Spannweite von 5,40 m die tragende Funktion und vereinen weitere konstruktive und bauphysikalische Anforderungen in einem Bauteil:
• Tragwirkung als statische Scheibe mit integriertem Schubstahl zur Aussteifung
• Feuerwiderstand REI 30
• Akustische Wirksamkeit von αw = 0.75 (Akustiktyp 3.1), entsprechend einer Absorption von 75 % des auftreffenden Schalls für deutlich reduzierte Nachhallzeiten
• Sichtbare Holzoberfläche
Durch die Integration von Tragwerk, Akustik und Oberfläche in einem Deckensystem entfällt die Montage von zusätzlichen Abhangdecken. Dies reduziert insbesondere bei großen Raumhöhen Aufwand und Kosten.
Partnerschaftliche Planung als Schlüssel zur Präzision
Ein wesentlicher Erfolgsfaktor des Projekts war die enge Zusammenarbeit zwischen dem Generalunternehmer Pellikaan und Lignatur. Als erfahrener Spezialist im Sportstätten- und Schwimmbadbau integrierte Pellikaan die Holzbauund Deckenplanung frühzeitig in den Gesamtprozess. In der gemeinsamen Vorplanung wurden Elementeinteilung, Detailausbildung und Montageabläufe präzise aufeinander abgestimmt. Diese konsequente Koordination ermöglichte eine hohe Ausführungsqualität der sichtbaren Konstruktion, eine kurze Bauzeit sowie eine technisch saubere, langlebige und wartungsfreundliche Lösung.
Digitale Kollaboration und überzeugende Nachhaltigkeit
Die Planung erfolgte durchgängig BIM-basiert. Bei Lignatur ist modellbasierte Konstruktionsplanung mit strukturierten IFC-Modellen seit Jahren Standard. Die Modelle wurden nahtlos in den Open-BIM-Prozess integriert. So ließen sich Schnittstellen klar definieren, Abläufe koordinieren und die Ausführungssicherheit erhöhen.
Auch in puncto Nachhaltigkeit setzt der Sportkomplex Maßstäbe. Der Holzbau bindet CO2, während der Betrieb vollständig ohne fossile Energieträger auskommt. Eine Photovoltaikanlage, Luft-Wasser-Wärmepumpen, intelligente Lüftungssysteme und ein effizientes Wassermanagement ermöglichen einen energieeffizienten Betrieb nach GEG-40-Standard.
Der Sportkomplex Mohnweg zeigt, wie sich Sportstätten mit systematischem Holzbau, digitaler Planung und verlässlichem Partnering effizient realisieren lassen. Funktional, wirtschaftlich und nachhaltig.
Autor: Lignatur, www.lignatur.ch Fotos: Joachim Gies Fotografie



Innovation durch ehrenamtliche Initiative
Im Aachener Stadtteil Haaren hat der DJK FV Haaren ein zukunftsweisendes Sportprojekt verwirklicht: Die Schlenter-Arena, eine moderne McArena-Freilufthalle, die durch ihre intelligente Konzeption und innovative Betriebsführung beeindruckt. Das Besondere dabei: Die gesamte Verwaltung und Betreuung wird von nur drei ehrenamtlichen Vereinsmitgliedern gestemmt. Diese Erfolgsgeschichte verdankt sich einem ausgeklügelten Automatisierungssystem, das die alltäglichen Verwaltungsaufgaben auf ein Minimum reduziert. Das digitale Buchungsportal ermöglicht externe Vermietungen ohne personellen Aufwand, während intelligente Beleuchtungs- und Zugangssteuerungen für einen reibungslosen Betrieb sorgen. So gelingt es den engagierten Ehrenamtlern, neben Beruf und Familie diese wertvolle Sportarena zu betreuen. Die standardisierte 30x15m-Halle mit hochwertigem Kunstrasen, LED-Beleuchtung und umlaufenden Banden eröffnet dem Verein neue Trainingsmöglichkeiten und generiert gleichzeitig durch externe Vermietungen wichtige Zusatzeinnahmen. Der angrenzende Equipment-Container mit seinem markanten Vereins-Graffiti bietet praktischen Stauraum und setzt einen visuellen Akzent auf dem Gelände. Die Finanzierung gelang durch eine kluge Kombination aus Fördermitteln aus dem NRW-Programm „Moderne Sportstätten 2022“, Vereinsinvestitionen und Sponsoring durch lokale Unterstützer, die im Gegenzug Namensrechte erhielten. Dieses Modell sichert nicht nur die Anfangsinvestition, sondern auch den nachhaltigen Betrieb der Anlage.
Adrian Hermanns aus dem Vereinsvorstand betont: „Die automatisierte Verwaltung ist der Schlüssel zum Erfolg. Unsere drei Ehrenamtlichen könnten den Betrieb sonst unmöglich stemmen. So schaffen wir nicht nur Trainingskapazitäten für unsere Abteilungen, sondern erzielen auch Einnahmen, ohne operativ stark belastet zu sein.“ Ein Konzept, das Schule machen könnte für Vereine, die mit begrenzten personellen Ressourcen innovative Sportangebote realisieren möchten.
McArena GmbH www.mcarena.de
Wir geben Ihren Ideen ein Spielfeld
Die TOP-SPORT GmbH steht für Kompetenz, Innovation und Qualität im Bereich des kompletten Sporthalleninnenausbaus. Mit über 25 Jahren Erfahrung in Forschung & Entwicklung, Bauleitung, Vertrieb und Montage gehören wir heute zu den führenden Anbietern in unserem Marktsegment – und wir entwickeln uns stetig weiter.
Für jede Anforderung der perfekte Sportboden Gemeinsam mit unseren Kunden:innen, Partner:innen und Sportler:innen haben wir insbesondere im Bereich innovativer Sportbodensysteme Maßstäbe gesetzt. Unsere zahlreichen Systeme bieten Ihnen die optimale Lösung für Ihren Bedarf.
Akustik- und Prallwandlösungen für ungestörtes und sicheres Sportvergnügen Mit den Akustik- und Prallwandsystemen unserer Marke polysport® schaffen wir optimale Bedingungen für Sporthallen und Mehrzweckräume. Bereits in der Planungsphase werden Prallwandmodule aus Holz, Einbauelemente und Akustikpaneele als Einheit betrachtet, um Design, Funktion und akustische sowie sicherheitsrelevante Vorgaben perfekt zu vereinen.
Unser Ziel ist es, innovative Ideen in praxisgerechte und nachhaltige Lösungen zu verwandeln. Dabei steht der Kunde bei uns im Mittelpunkt: von der ersten Bedarfsanalyse bis zum ganzheitlichen Konzept bieten wir alles aus einer Hand. Unser Full-ServiceAnsatz ermöglicht eine vertrauensvolle, partnerschaftliche Zusammenarbeit.
Durch unser Engagement in Fachverbänden und Normenausschüssen und in enger Zusammenarbeit mit unseren Lieferanten sichern wir langfristig höchste Qualitätsstandards und bleiben technologisch immer einen Schritt voraus.
TOP-SPORT GmbH www.topsport-gmbh.de
© McArena




Nutzungs- und Betriebskompetenz Sicherheit für moderne Sporthallen
Das Herz des Schweizer Leistungssports schlägt in Magglingen bei Biel. Mittlerweile siedeln sich neben nationalen Leistungszentren auch immer mehr regionale Stützpunkte in der Stadt an.
Jüngstes Beispiel: Die Sporthalle Bözigenfeld, ein multifunktionaler Komplex, der seit letztem Jahr Kunstturner:innen, Sportkletter:innen und Inline- beziehungsweise Rollsportler:innen als Heimat dient und auf der Basis eines von BPM Sports konzipierten Betriebs- und Finanzierungsmodells operiert.
Das Spezielle am neuen Schmuckstück: Im Bözigenfeld kommen der Spitzensport und der Breitensport zusammen, so dass auch der Lokalsport von der neuen Infrastruktur profitiert. So werden die Inlinehallen im Tagesbetrieb auch von umliegenden Schulen genutzt. Ansonsten legt die Guideline für den Anlagenbetrieb Wert auf Kosteneffizienz sowie eine hohe Eigenständigkeit der Mieter in Nutzung und Betrieb. Im Umkehrschluss leisten diese entsprechende Mietbeiträge, welche die Stadt als Initiator des Projekts finanziell entlasten.
BPM Sports ist ein in der Schweiz und im benachbarten Ausland tätiger Spezialist für öffentlich-rechtliche Sportinfrastrukturen.
Moderne Sporthallen und Indoor-Bewegungsräume stellen hohe Anforderungen an Sicherheit und architektonische Qualität. Gefragt sind Lösungen, die zuverlässig schützen, ohne Raumwirkung, Lichtführung und Offenheit einzuschränken. Das X-TEND EdelstahlSeilnetz erfüllt diese Anforderungen und hat sich als vielseitiges Absturzsicherungs- und Schutzsystem im Indoor- und OutdoorSportbau etabliert. Ein prägnantes Beispiel ist das Hiwa Wellness Centre der University of Auckland in Neuseeland. Entlang mehrerer Ebenen verlaufen im Inneren des Gebäudes Laufbahnen, die mit raumhohen X-TEND Edelstahl-Seilnetzen gesichert sind. Die Netze gewährleisten die notwendige Absturzsicherung und wirken dabei nahezu transparent. Blickbeziehungen bleiben erhalten, der Raum erscheint offen und großzügig, während Bewegungs- und Aufenthaltsbereiche sicher voneinander getrennt sind – ein zentraler Aspekt in stark frequentierten Sporthallen.
Die Europäische Technische Bewertung ETA-22/0257 bildet die Grundlage für den Einsatz von X-TEND als Absturzsicherungsund Schutznetz. Sie ermöglicht die statische Berechenbarkeit sowie eine norm- und richtlinienkonforme Montage gemäß der Europäischen Bauproduktenverordnung. Eine regelmäßige Fremdüberwachung stellt eine gleichbleibend hohe Fertigungsund Produkt-Qualität sicher. Ergänzend ist das System RC3geprüft und verfügt über eine EPD gemäß ISO14025 und EN15804+A2, was den Einsatz in sicherheits- und nachhaltigkeitsorientierten Sportbauprojekten unterstützt. Gefertigt aus langlebigem, vollständig recyclingfähigem V4A-Edelstahl, überzeugt X-TEND durch geringes Eigengewicht bei gleichzeitig hoher Tragfähigkeit. Unterschiedliche Maschenweiten und Seildurchmesser ermöglichen filigrane, raumhohe Konstruktionen mit großen Spannweiten. Zudem fängt das Netz Bälle geräuschlos ab und bleibt dabei formstabil. Die Herstellung erfolgt in unseren eigenen Werken in Europa sowie in den USA, womit auch Anforderungen wie „Buy American“ erfüllt werden.
Carl Stahl ARC GmbH www.carlstahl-architektur.com
© Mark Scowen Photography
© Stadt Biel-Bienne


Neue Trampolinhalle im Neckarpark
Seit August 2025 trainieren die Kaderathlet:innen in der neuen Trampolinhalle im Neckarpark – ein lang ersehntes Projekt, das nach Jahren der Planung und Bauzeit nun Realität geworden ist. Nach dem Abriss der alten Trainingsstätte an der Landessportschule in Ruit haben die Trampoliner eine neue Heimat gefunden.
Direkt neben dem Kunst-Turn-Forum entstand ein hochmodernes Zentrum mit rund 500 m² Fläche. Vier neueste Wettkampftrampoline, eine Schaumstoffgrube sowie eine DoppelminitrampAnlage mit hydraulisch verstellbarer Plattform bieten optimale Bedingungen für Training und Entwicklung. Ein besonderer Dank gilt Michael Kuhn, Landestrainer beim Schwäbischen Turnerbund, der die Planung und den Einbau mit großem Engagement begleitet hat.
Wir freuen uns, diese beeindruckende Halle an den Schwäbischen Turnerbund (STB) zu übergeben, und wünschen allen Trainer:innen und Turner:innen viel Freude und Erfolg beim Training.
Michael Kuhn über die neue Halle:
„Seit Mai dieses Jahres sind wir mit unserem Bundes- und Landesstützpunkt endgültig von Ruit in den Neckarpark umgezogen. […] Gemeinsam mit unseren langjährigen Partnern SPIETH Gymnastics und Eurotramp haben wir in den vergangenen zwei Jahren viel Herzblut und Engagement investiert. Das Ergebnis kann sich sehen lassen: Eine Halle, die allen Ansprüchen des Leistungssports gerecht wird – modern, hell, funktional und ästhetisch ansprechend. […] Fazit: Die neue Trampolinhalle im Neckarpark gehört zu den modernsten Anlagen Europas […]“


…als ob drinnen die Sonne scheint…
Ein schöneres Kompliment kann man als Firma, die sich guter LED-Beleuchtung verschrieben hat, kaum bekommen.
ADT Informationssysteme GmbH setzt bei seinen eigens entwickelten ISYline® Hallenleuchten neben der Helligkeit auf flickerfreie Beleuchtung mit hoher Farbwiedergabe (>CRI95) und maximaler Flexibilität bei Leistungsauswahl und Lichtfarbe für alle Hallengrößen und -höhen.
Alle gängigen Steuermöglichkeiten (zum Beispiel DALI), niedrige Blendwerte und verschiedene Anpassungsmöglichkeiten sorgen dafür, dass das Licht zur Halle passt und möglichst gut abgestimmt ist. Langlebige LEDs und hochwertige Komponenten garantieren lange Laufzeiten auch bei hoher Nutzung und machen den Einsatz beispielsweise auch für kleinere Hallen und Schulsporthallen ökologisch und ökonomisch wertvoll.
Da das Portfolio von ADT Informationssysteme GmbH nahezu alle LED-Lampen und Leuchten umfasst, sind auch Komplettlösungen in allen Bereichen – auch außen - möglich; dabei spielt es keine Rolle, ob es um energetische Sanierung oder Neubau geht. ADT arbeitet regional unabhängig gerne mit Ihnen direkt oder Ihren Architekten und Elektrikern zusammen.
ADT vertritt in Deutschland und Österreich die Firmen BERTELÈ seats (Teleskoptribünen, Hallen- und Stadionsitze) und BERTELE`elctronics (LED Screens, Video-Würfel und LED-Banden).
Wir freuen uns auf Ihre Anfragen, Anforderungen und Projekte!
Spieth Gymnastics GmbH www.spieth-gymnastics.com
ADT Informationssysteme GmbH www.adt-infosystems.com


Die Vision & Mission, gute Orte zu schaffen
Seit Dezember 2025 verstärkt Michael Fritsch das ManagementTeam der Proludic Deutschland als Verkaufsleiter. Der Salesund Marketing-Profi bringt umfassende Expertise im klassischen und digitalen Vertrieb aus Mittelstand und Start-Ups mit. Er führt nun das bundesweite Team der regional ansässigen Gebietsverkaufsleiter und will die Kundenberatung und Zusammenarbeit mit Partnern weiter professionalisieren.
Neben kaufmännischer und technischer Expertise bringt Michael Fritsch eine Ausbildung, Zertifizierung und Praxiserfahrung in psychologischer Prozess- und Entwicklungsarbeit mit. Diese Form der therapeutischen Begleitung wird auch im Coaching und Mentoring von Fach- und Führungskräften erfolgreich eingesetzt. Hierbei wird ein besonderer Fokus auf die Verbindung von Körper und Psyche gelegt, was als essenzielle Voraussetzung der gesunden menschlichen Entwicklung verstanden wird.
Proludic will mittels diesen Know-Hows einerseits persönliche Fähigkeiten der Mitarbeitenden stärken. Genauso sollen diese Kenntnisse über physische und psychische Entwicklung von Kindern, Jugendlichen und Erwachsenen im Rahmen von Spielplatz- und Freizeitsport-Projekten genutzt werden.
Michael Fritsch ist Vater von zwei Kindern. Seine Motivation in unserer Branche zu wirken: „Ich will gute Orte schaffen – mit und für unsere Anwender und Kunden, genauso aber auch für die Menschen bei Proludic.“

Allrounder für alle Bereiche
Ob Hanteltraining, Gerätetraining oder in Sporthallen und Fitnessräumen – wo Flächen zum Training genutzt werden, überzeugt die ELTECPUR® Elastikplatte.
Für jede Anforderung bietet die ELTECPUR® Elastikplatte eine passende Lösung. Bewährt durch den Einsatz in Fitnessstudios und Fitnessflächen ist die Elastikplatte eine langlebige, belastbare und dauerhafte Lösung. Passende ELTECPUR® Keilrandelemente vermeiden Stolperkanten, bieten eine sichere Umrandung und können auch als Anlegekante mitten im Raum verwendet werden.
Die Verlegung ist einfach durchzuführen, weder schwere Geräte noch ein besonderes Wissen werden benötigt. Die Platten werden an einer Wand oder an Randelementen angelegt und dann mit Steckverbindern zusammengesteckt – FERTIG!
Die Platten können jederzeit wieder abgebaut und an anderer Stelle aufgebaut werden, absolute Flexibilität inklusive.
Mit der ELTECPUR® Elastikplatte entsteht ein sicherer Trainingsbereich, ob dauerhafte Nutzung oder als temporäre und mobile Lösung. Einfach in der Reinigung schützt die ELTECPUR® Elastikplatte den Untergrund und das Trainingsequipment vor Beschädigung und hilft dabei Lärm und Schwingungen zu reduzieren.
Neben Funktionalität und Flexibilität punktet die Elastikplatte auch beim Thema Nachhaltigkeit: gefertigt aus recyceltem Gummigranulat werden Ressourcen geschont.
Gerne beraten wir Sie auch zu Ihrem Projektvorhaben.
Proludic GmbH
© Rainer
Waelder
UNTERNEHMENSINDEX VON A BIS Z
IAKS Mitgliedsunternehmen gehen einen Schritt voraus mit „Professionals & Profiles“. Das bringt Spitzenpositionen – bei Print und online. Berichten Sie über Ihre Innovationen und Referenzen: im sb Magazin, im IAKS Newsletter und auf unserer Webseite. Dass Ihr Unternehmenslogo als Architekt oder Ausrüster in jeder Ausgabe erscheint, ist selbstverständlich – und ein Hingucker für Ihre Geschäftspartner!

ACO GmbH 24782 Büdelsdorf, Deutschland tief-galabau@aco.com www.aco-sport.de
» Entwässerungssysteme
» Sportplatzausstattung
» Sportplatzbau

Sekisui Alveo AG 6043 Adligenswil, Schweiz info@alveosport.com www.alveosport.com
» Elastikschichten, Fallschutzbeläge
» Sportböden für Freianlagen
» Sporthallenböden
» Sportplatzbau
» Sportrasen (Kunststoffrasen)

ASB GlassFloor Systembau Horst Babinsky GmbH 83371 Stein, Deutschland info@asbglassfloor.com www.asbglassfloor.com
» Mobile Sportböden, Abdecksysteme
» Multisportanlagen
» Sporthallenböden


ADT Informationssysteme GmbH 82229 Seefeld, Deutschland info@isyline.eu www.adt-infosystems.com
» Eisbahnen, Arenen, Sportplätze
» Anzeige- und Informationssysteme
» Beleuchtungssysteme
» Spielfeldbanden, Netze
» Tribünen, Bestuhlung

ANRIN GmbH 59609 Anröchte, Deutschland info@anrin.com www.anrin.com
» Entwässerungssysteme
» Sportplatzausstattung
» Sportplatzbau
AST Eissport und Solaranlagenbau GmbH 87629 Füssen, Deutschland hannes.schretter@ast.at www.ast.at
» Eisbearbeitungsmaschinen
» Eishockeybanden
» Eissportanlagenbau
» Eissportausstattung
» Schwimmbadausstattung
AGROB BUCHTAL
Solar Ceramics GmbH 92521 Schwarzenfeld, Deutschland info@agrob-buchtal.de www.agrob-buchtal.de
» Schwimmbadbau
» Schwimmbeckenbau, Keramik

Arbeitskreis Trennvorhänge e.V. 42327 Wuppertal, Deutschland info@arbeitskreis-trennvorhaenge.de www.arbeitskreis-trennvorhaenge.de
» Hallentrennvorrichtungen
» Sporthallenausstattung

Avant Sports Industrial Co.,Ltd 518108 Shenzhen, China sales@avant.com.cn www.avantseating.com
» Multisportanlagen
» Sportrasen (Kunststoffrasen)
» Tribünen, Bestuhlung

Bänfer GmbH Sportmanufaktur 34537 Bad Wildungen, Deutschland info@baenfer.de www.baenfer.de
» Elastikschichten, Fallschutzbeläge
» Mobile Sportböden, Abdecksysteme
» Sporthallenausstattung
» Temporäre und modulare Bauten

BLOACS
50935 Köln, Deutschland info@bloacs.de www.bloacs.de
» Freiraumausstattung
» Multisportanlagen
» Sportplatzausstattung
» Spielplatzausstattung

Carl Stahl ARC GmbH 73079 Süßen, Deutschland xtend@carlstahl-arc.com www.carlstahl-architektur.com
» Fassaden und Gebäudehüllen
» Sicherheitssysteme, Zaunanlagen
» Spielfeldbanden, Netze
» Spielplatzausstattung
» Sportplatzausstattung

DSGN CONCEPTS GmbH 48145 Münster, Deutschland info@dsgn-concepts.de www.dsgn-concepts.de
» Landschaftsplanung
Gotthilf Benz Turngerätefabrik GmbH+Co KG 71364 Winnenden, Deutschland info@benz-sport.de www.benz-sport.de
» Fitnessausstattung
» Freiraumausstattung
» Schwimmbadausstattung
» Sporthallenausstattung
» Sportplatzausstattung

BERNDORF
Metall- und Bäderbau GmbH 2560 Berndorf, Österreich office@berndorf-baederbau.com www.berndorf-baederbau.com
» Schwimmbadausstattung
» Schwimmbadbau
» Schwimmbeckenbau, Edelstahl

Brinkmann + Deppen
BPM Sports GmbH
3011 Bern, Schweiz rainer.gilg@bpm-sports.ch www.bpm-sports.ch
» Multifunktionsarenen, Stadien
» Kletteranlagen, Sporthallen
» Öffentliche Räume und Parks
» Pools und Bäder
» Spezielle Sportanlagen

Conica AG 8207 Schaffhausen, Schweiz info@conica.com www.conica.com
» Sportböden für Freianlagen
» Sporthallenböden
» Sportplatzbau
eccos pro gmbh 42553 Velbert, Deutschland info@eccos-pro.com www.eccos-pro.com
» Eissportausstatung
» Fitnessausstattung
» Schwimmbadausstattung
» Ticketing, Zutrittssysteme
» Umkleideanlagen, Garderoben
Architekten / Landschaftsarchitekten 48336 Sassenberg, Deutschland info@brinkmann-deppen.de www.brinkmann-deppen.de
» Architektur und Design
» Landschaftsarchitektur

CustomBars GmbH 26723 Emden, Deutschland info@custombars.de www.custombars.de
» Elastikschichten, Fallschutzbeläge
» Fitnessausstattung
» Freiraumausstattung
» Multisportanlagen
» Spielplatzausstattung

ENGO GmbH Srl 39040 Vahrn (BZ), Italien info@engo-ice.com www.engo-ice.com
» Eisbearbeitungsmaschinen
» Eishockeybanden
» Eissportanlagenbau
» Eissportausstattung
» Mobile Sportböden, Abdecksysteme

Eurotramp-Trampoline Kurt Hack GmbH
73235 Weilheim / Teck, Deutschland eurotramp@eurotramp.com www.eurotramp.com
» Schwimmbadausstattung
» Spielplatzausstattung
» Sporthallenausstattung
» Sportplatzausstattung

geo3 GmbH
47551 Bedburg-Hau, Deutschland kontakt@geo3.de www.geo3.de
» Architektur und Design
» Landschaftsarchitektur
» Machbarkeitsstudien
GEZOLAN AG 6252 Dagmersellen, Schweiz customer-service@gezolan.com www.gezolan.com
» Elastikschichten, Fallschutzbeläge
» Multisportanlagen
» Sportböden für Freianlagen
» Sportplatzbau
» Sportrasen (Kunststoffrasen)

Hamberger Flooring GmbH & Co. KG 83071 Stephanskirchen, Deutschland info@haro-sports.com www.haro-sports.com
» Sporthallenböden
» Prallwandelemente
» Mobile Sportböden, Abdecksysteme

GfKK – Gesellschaft für Kältetechnik- Klimatechnik mbH 50859 Köln, Deutschland info@gfkk.de www.gfkk.de
» Eissportanlagenbau
» Eissportausstattung
» Sanitär, Heizung, Klimatechnik, Energierückgewinnung

Hauraton GmbH & Co. KG 76437 Rastatt, Deutschland info@hauraton.com www.hauraton.com
» Entwässerungssysteme
» Sportplatzbau
» Sporthallenböden

HET Elastomertechnik 65203 Wiesbaden, Deutschland info@het-group.com www.het-group.com
» Elastikschichten, Fallschutzbeläge
» Fitnessausstattung
» Spielplatzausstattung
» Sportböden für Freianlagen
Intercom Dr. Leitner 39040 Freienfeld, Italy intercom@leitner.it www.realice.info
» Eisbearbeitungsmaschinen
» Eishockeybanden
» Eissportanlagenbau
Gerflor Mipolam GmbH 53824 Troisdorf, Deutschland gerflormipolam@gerflor.com www.gerflor.de
» Mobile Sportböden, Abdecksysteme
» Sporthallenböden

Gütegemeinschaft Sportgeräte 53113 Bonn, Deutschland info@sichere-sporthalle.de www.sichere-sporthalle.de
» Sporthallenausstattung
» Sportplatzausstattung
» Prüfungen, Qualitätssicherung

Herculan BV 4231 DJ Meerkerk, Niederlande info@herculan.com www.herculan.com
» Multisportanlagen
» Sporthallenböden
» Sportböden für Freianlagen

INTERGREEN AG 60433 Frankfurt, Deutschland info@intergreen.de www.intergreen.de
» Reinigung und Pflege
» Sportplatzbau
» Sportrasen (Hybridrasen)
» Sportrasen (Kunststoffrasen)
» Sportrasen (Naturrasen)

ISP GmbH
48167 Münster, Deutschland info@isp-germany.com www.isp-germany.com
» Prüfungen, Qualitätssicherung

JUNCKERS INDUSTRIER A/S 4600 Køge, Dänemark info-exp@junckers.com www.junckers.com
» Multisportanlagen
» Sporthallenbau
» Sporthallenböden
» Stadion- und Arenabau
» Temporäre und modulare Bauten

Herbert Labarre GmbH & Co. KG 22337 Hamburg, Deutschland info@labarre-galabau.de www.labarre-galabau.de
» Reinigung und Pflege
» Sportplatzbau
» Sportrasen (Hybridrasen)
» Sportrasen (Kunststoffrasen)
» Sportrasen (Naturrasen)

ISS GmbH
63263 Neu-Isenburg, Deutschland info@iss4u.de www.iss4u.de
» Eisbearbeitungsmaschinen
» Eishockeybanden
» Eissportanlagenbau
» Eissportausstattung
» Schwimmbadausstattung

Kernig Consulting GmbH 48155 Münster, Deutschland info@andreaskernig.de www.kernig-consulting.de
» Consulting » Fitness Center
» Bäder- und Wellnessanlagen
» Architektur und Design

Jakob Rope Systems
3555 Trubschachen, Schweiz info@jakob.com www.jakob.com
» Fassaden und Gebäudehüllen
» Sicherheitssysteme, Zaunanlagen
» Spielfeldbanden und Netze
» Spiel- und Sportplatzausstattung

Hermann Kutter LandschaftsbauSportplatzbau GmbH & Co. KG 87700 Memmingen, Deutschland info@kutter-galabau.de www.kutter-galabau.de
» Elastikschichten, Fallschutzbeläge
» Reinigung und Pflege
» Sportplatzbau
» Sportrasen (Kunststoffrasen)
» Sportrasen (Naturrasen)

Labor Lehmacher | Schneider GmbH & Co. KG 49076 Osnabrück, Deutschland info@labor-lehmacher.de www.l-l-s.de
» Prüfungen, Qualitätssicherung

LAUSIN Y VICENTE S.L. 50420 Cadrete, Spanien export@lausinyvicente.com www.lausinyvicente.com
» Hallentrennvorrichtungen
» Spielplatzausstattung
» Sporthallenausstattung
» Sportplatzausstattung
» Stadion- und Arenaausstattung
M3 Architectes 2737 Luxemburg, Luxemburg mail@m3archi.lu www.m3archi.lu
» Architektur und Design
Landskate GmbH 50823 Köln, Deutschland info@lndskt.de www.lndskt.de
» Landschaftsarchitektur

maier landschaftsarchitektur / Betonlandschaften 51107 Köln, Deutschland info@maierlandschaftsarchitektur.de www.maierlandschaftsarchitektur.de
» Landschaftsarchitektur
McArena GmbH 71522 Backnang, Deutschland info@mcarena.de www.mcarena.de
» Multisportanlagen
» Schlüsselfertigbau
» Sporthallenbau

Melos GmbH
49324 Melle, Deutschland info@melos-gmbh.com www.melos-gmbh.com
» Elastikschichten, Fallschutzbeläge
» Multisportanlagen
» Sportböden für Freianlagen
» Sportplatzbau

Nüssli (Deutschland) GmbH 91154 Roth, Deutschland roth@nussli.com www.nussli.com
» Schlüsselfertigbau
» Sporthallenbau
» Stadion- und Arenabau
» Temporäre und modulare Bauten
» Tribünen, Bestuhlung

Pellikaan Bauunternehmen
Deutschland GmbH 40880 Ratingen, Deutschland info@pellikaan.de www.pellikaan.de
» Schlüsselfertigbau
» Schwimmbadausstattung
» Schwimmbadbau
» Sporthallenbau
Play-Parc
Allwetter-Freizeitanlagenbau GmbH 33014 Bad Driburg, Deutschland info@playparc.de www.playparc.de
» Fitnessausstattung
» Freiraumausstattung
» Multisportanlagen
» Sporthallenausstattung
» Sportplatzausstattung

Proludic GmbH
73037 Göppingen, Deutschland info@proludic.de www.proludic.de
» Multisportanlagen
» Spielplatzausstattung
» Sportplatzausstattung
» Freiraumausstattung

Polytan GmbH 86666 Burgheim, Deutschland info@polytan.com www.polytan.de
» Elastikschichten, Fallschutzbeläge
» Reinigung und Pflege
» Sportböden für Freianlagen
» Sportplatzbau
» Sportrasen (Kunststoffrasen)

MYRTHA POOLS A&T Europe SPA 46043 Castiglione d/Stiviere (MN), Italien info@myrthapools.com www.myrthapools.com
» Schwimmbadbau
» Schwimmbeckenbau, andere Systeme
» Schwimmbeckenbau, Edelstahl

PERROT-Regnerbau Calw GmbH 75382 Althengstett, Deutschland perrot@perrot.de www.perrot.de
» Bewässerungssysteme

VIACOR Polymer GmbH 72108 Rottenburg a. N., Deutschland info@viacor.de www.viacor.de
» Elastikschichten, Fallschutzbeläge
» Sportböden für Freianlagen
» Sporthallenböden
» Sportplatzbau
» Sportrasen (Kunststoffrasen)

PS+ Planung von Sportstätten 49078 Osnabrück, Deutschland info@ps-planung.de www.ps-planung.de
» Architektur und Design
» Landschaftsarchitektur
Sika Nederland B.V. (Pulastic sports flooring) 7400 AK Deventer, Niederlande export@nl.sika.com www.pulastic.com
» Decken, Fenster, Wandelemente
» Multisportanlagen
» Sportböden für Freianlagen
» Sporthallenböden

Rasenplan GmbH 4125 Riehen, Schweiz info@rasenplan.com www.rasenplan.com
» Architektur und Design
» Landschaftsarchitektur
» Consulting
» Projektmanagement
» Machbarkeitsstudien

Robbins Sports Surfaces OH 45226 Cincinnati, USA info@robbinsfloor.com www.robbinsfloor.com
» Mobile Sportböden, Abdecksysteme
» Multisportanlagen
» Sporthallenböden

REGUPOL Germany GmbH & Co. KG 57319 Bad Berleburg, Deutschland info@regupol.de www.regupol.com
» Elastikschichten, Fallschutzbeläge
» Mobile Sportböden, Abdecksysteme
» Spielplatzausstattung
» Sportböden für Freianlagen
» Sporthallenböden

B.V. 6045 JC Roermond, Niederlande sales@schmitzfoam.com www.schmitzfoam.com
» Elastikschichten, Fallschutzbeläge
» Sportböden für Freianlagen
» Sportplatzbau
» Sportrasen (Kunststoffrasen)

Silidur AG 8450 Andelfingen, Schweiz info@silidur.ch www.silidur.ch
» Öffentliche Räume und Parks
» Multifunktionsarenen
» Sportplatzausstattung
» Stadion- und Arenaausstattung
» Elastikschichten, Fallschutzbeläge

SMG Sportplatzmaschinenbau GmbH 89269 Vöhringen, Deutschland info@smg-machines.com www.smg-machines.com
» Reinigung und Pflege
» Sportplatzausstattung
» Sportplatzbau

RICHTER Sportstättenkonzepte GmbH 07629 Hermsdorf, Deutschland info@sportstaettenkonzepte.de www.sportstaettenkonzepte.de
» Architektur und Design
» Landschaftsarchitektur

Signgrass® NIK-Tufting BV 5571 TJ Bergeijk, Niederlande info@signgrass.com www.signgrass.com
» Multisportanlagen
» Sportböden für Freianlagen
» Sportplatzbau
» Sportplatzausstattung
» Sportrasen (Kunststoffrasen)

Siteco Beleuchtungstechnik GmbH 83301 Traunreut, Deutschland info@siteco.de www.siteco.de
» Beleuchtungssysteme

Holz-Speckmann GmbH & Co. KG 33790 Halle/ Westfalen, Deutschland info@speed-lock.com www.speed-lock.com
» Mobile Sportböden, Abdecksysteme
» Sporthallenböden

SMC2 Vertriebsbüro Deutschland 60314 Frankfurt am Main, Deutschland kontakt@smc2-bau.de www.smc2-bau.de
» Fassaden und Gebäudehüllen
» Feste und mobile Dachsysteme
» Multisportanlagen
» Schlüsselfertigbau
» Sporthallenbau

Spieth Gymnastics GmbH 73776 Altbach, Deutschland info@spieth-gymnastics.com www.spieth-gymnastics.com
» Elastikschichten, Fallschutzbeläge
» Sporthallenausstattung
» Mobile Sportböden, Abdecksysteme
» Sportplatzausstattung
Schmitz
SpOrt concept GmbH 70199 Stuttgart, Deutschland eisenbraun@sportconcept.de www.sportconcept.de
» Architektur und Design
» Machbarkeitsstudien

Tatamsport 50014 Zaragoza, Spanien tatamsport@toldosserrano.com www.tatamsport.com
» Hallentrennvorrichtungen
» Sporthallenausstattung

Troldtekt GmbH 22763 Hamburg, Deutschland info@troldtekt.com www.troldtekt.com
» Decken, Fenster, Wandelemente
Stuttgart und Reutlingen | www.sportconcept.de

STARGUM Stankiewicz Sp.j. 73-110 Stargard, Polen sales@stargum.pl www.stargum.pl
» Elastikschichten, Fallschutzbeläge
» Multisportanlagen
» Sporthallenböden
» Sportböden für Freianlagen
» Sportrasen (Kunststoffrasen)

TOP-SPORT GmbH
Sporthalleninnenausbau 33378 Rheda-Wiedenbrück, Deutschland info@topsport-gmbh.de www.topsport-gmbh.de
» Sporthallenböden
» Prallwände
» Akustikelemente
» Einbauelemente
» Decken
Vindico Sport GmbH 73432 Aalen-Ebnat, Deutschland info@vindico-sport.de www.vindico-sport.com
» Freiraumausstattung
» Multisportanlagen
» Stadion- und Arenaausstattung
» Sportplatzbau
» Sportplatzausstattung

STOCKMEIER URETHANES GmbH & Co.KG 32657 Lemgo, Deutschland urethanes.ger@stockmeier.com www.stockmeier-urethanes.de
» Elastikschichten, Fallschutzbeläge
» Sportböden für Freianlagen
» Sporthallenböden

Trenomat GmbH & Co. KG
42327 Wuppertal, Deutschland info@trenomat.de www.trenomat.de
» Hallentrennvorrichtungen
» Mobile Sportböden, Abdecksysteme
» Spielfeldbanden, Netze
» Sporthallenausstattung

Hans-Joachim Weitzel GmbH & Co. KG 25436 Tornesch, Deutschland schult@hjweitzel.de www.hjweitzel.de
» Elastikschichten, Fallschutzbeläge
» Multisportanlagen
» Sportböden für Freianlagen
» Sportplatzbau
» Sportrasen (Kunststoffrasen)

927-260 | Fax 07121 927-266 | reutlingen@sportconcept.de
Cathrin Dietz und Thorismuth Gaiser
IBAN: DE88 6405 0000 0000 0631 19 | BIC: SOLADES1REU
WM technics GmbH 39053 Blumau, Italien info@wm-technics.com www.wm-on-ice.com
» Eisbearbeitungsmaschinen

ZELLER bäderbau GmbH 89520 Heidenheim, Deutschland info@zeller-baederbau.com www.zeller-baederbau.com
» Schwimmbadausstattung
» Schwimmbadbau
» Schwimmbeckenbau, Edelstahl

Züko Deutschland GmbH 78176 Blumberg, Deutschland deutschland@zueko.com www.zueko.com
» Eishockeybanden
» Eisbearbeitungsmaschinen
» Eissportanlagenbau
» Eissportausstattung
» Umkleideanlagen, Garderoben
sb 1/2026
Internationale Fachzeitschrift für Sportstätten und Freizeitanlagen.
Herausgeber:





GENERALSEKRETÄR UND VERANTWORTLICH
Klaus Meinel meinel@iaks.sport
REDAKTION
Silke Baltzer baltzer@iaks.sport +49(0)221 168023-11
GRAFIKDESIGN
Victoria Page page@iaks.sport +49(0)221 168023-12
RECHNUNGSWESEN
Cathrin Völlmecke voellmecke@iaks.sport +49(0)221 168023-14
REDAKTION UND VERLAG IAKS
Internationale Vereinigung Sportund Freizeiteinrichtungen e.V. Eupener Straße 70 50933 Köln, Deutschland +49(0)221 16 80 23- 0 sb@iaks.sport www.iaks.sport
ÜBERSETZUNG/LEKTORAT
Tim Chafer, ExperTeam Otto-Hahn-Str. 57, DE – 40591 Düsseldorf
Euro-Sprachendienst Jellen Rheinaustr. 125, DE – 53225 Bonn www.euro-sprachendienst.de



MARKETING
Maximilian Rosenau rosenau@iaks.sport +49(0)221 168023-13
MARKETING
Jannis Krampen krampen@iaks.sport +49(0)221 168023-17
MARKETING
Christoph Lieck lieck@iaks.sport +49(0)221 168023-18
ABOPREIS 2026
65 EUR Deutschland 85 EUR Andere Länder 15 EUR Einzelheft
ISSN (Print): 0036-102X ISSN (Internet): ISSN 2198-4271
Gerichtsstand und Erfüllungsort: Köln Anzeigenpreise: Mediadaten 2026
DRUCK
Limberg-Druck Industriestr. 17 DE 41564 Kaarst www.limberg.de
Über die zum Ausdruck angenommenen Arbeiten kann der Verlag uneingeschränkt verfügen. Nachdruck oder Vervielfältigungen, auch auszugsweise, nur mit schriftlicher Genehmigung des Verlages.
Herausgeber:




„sb“ präsentiert beispielhafte Architektur und die gesamte Bandbreite an Innovationen, Produkten und Services aus den Bereichen Freizeiteinrichtungen, Sportanlagen, Schwimmbad und Wellness, Stadien und Arenen.

Fünf Ausgaben pro Jahr, jede mit einem bestimmten Schwerpunkt.
REDAKTIONSPLAN 2026
1/2026 SPORTHALLEN UND INDOOR
2/2026 SPORTPLÄTZE UND URBANE RÄUME
3/2026 BÄDER UND WELLNESS
4/2026 STADIEN UND ARENEN
5/2026 NACHHALTIGKEIT UND INKLUSION


Alle Wege führen
zu Pellikaan!
Ob Sie nun auf dem Weg nach Rom sind oder zu einer neuen Sporthalle: Mit Pellikaan kommen Sie immer am richtigen Ziel an. Von kurvigen Nebenstraßen bis zur Autobahn – wir halten das Steuer fest in der Hand.
Zusammenarbeit, Digitalisierung und Nachhaltigkeit prägen jedes Projekt, das wir realisieren. Mit der LEAN-Methode optimieren wir den Planungs- und Bauprozess kontinuierlich. So wissen wir genau, wann es Zeit ist, abzubiegen.
Wir schauen nicht nur auf morgen, sondern auf den gesamten Weg, der vor uns liegt. So bauen wir effizient, durchdacht und zukunftsorientiert.
Gehen Sie diese Reise mit uns?

www.pellikaan.de




