
SPECIALIST IN VERKOOP EN VERHUUR


![]()





Woonproject Lux is gelegen in Belsele, deelgemeente van Sint-Niklaas. Deze gemeente biedt haar inwoners het beste van twee werelden: de rust van het buitenleven en de nabijheid van stedelijke voorzieningen.
Vanuit Belsele heeft u een uitstekende verbinding met de E17, die u snel naar zowel Antwerpen als Gent brengt. De gemeente beschikt over haar eigen treinstation.
Belsele is een charmant dorp met een historische dorpskern, gekend voor haar landelijke sfeer en rustige woonomgeving. Enkele bezienswaardigheden zijn de Sint-Andreaskerk, de Roomanmolen, het park Hof van Belsele en het gemeentehuis.
De inwoners van Belsele feesten ook graag. Zo is er een jaarlijkse carnavalstoet, de fuif van Vrije Radio Belsele, de kerstmarkt, enzovoort. De gemeente is uitgerust met talrijke natuurroutes, waar u kan fietsen en wandelen. Belsele beschikt over een breed aanbod aan winkels, cafés en restaurants. Daarenboven is het Waasland Shopping Center, een van de grootste winkelcentra van het land, gelegen op slechts enkele minuten afstand.


Exclusief woonpark Lux is uitstekend gelegen, nabij scholen, winkels en openbaar vervoer. Het project ligt ingebed in een knappe, groene omgeving. De natuurlijke setting nodigt uit tot wandelen en fietsen op de talrijke natuurroutes in de buurt. De woningen met moderne, tijdloze architectuur verspringen onderling ten opzichte van elkaar, wat bijdraagt tot meer privacy in de buitenruimtes. De woningen zijn ontworpen rond een mooie parktuin, wat een aangename, groene leefomgeving creëert voor alle bewoners.
Daarenboven kunnen de woningen aangekocht worden aan het tarief van 6% BTW mits u er zelf gaat wonen en geen ander pand bezit.
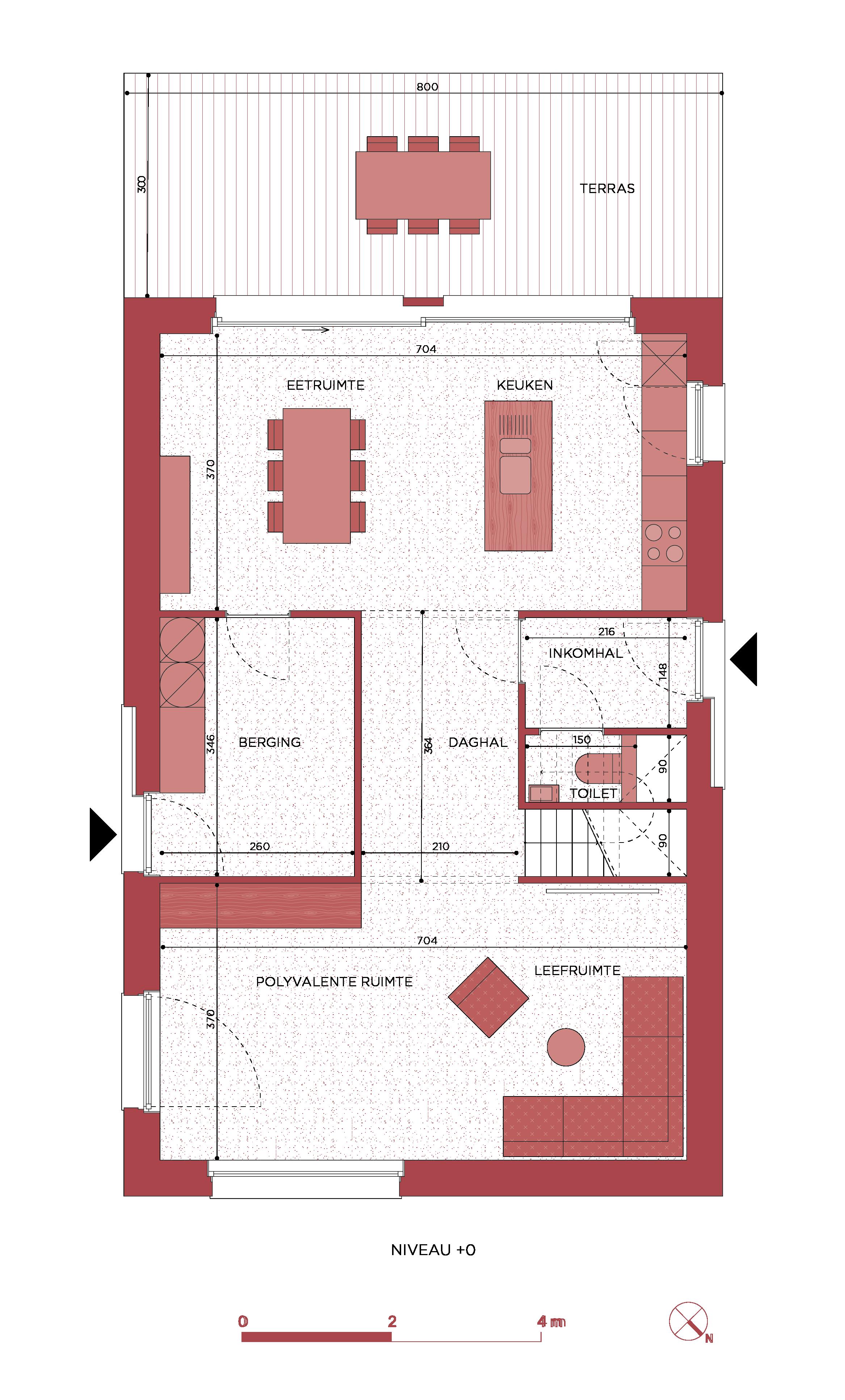
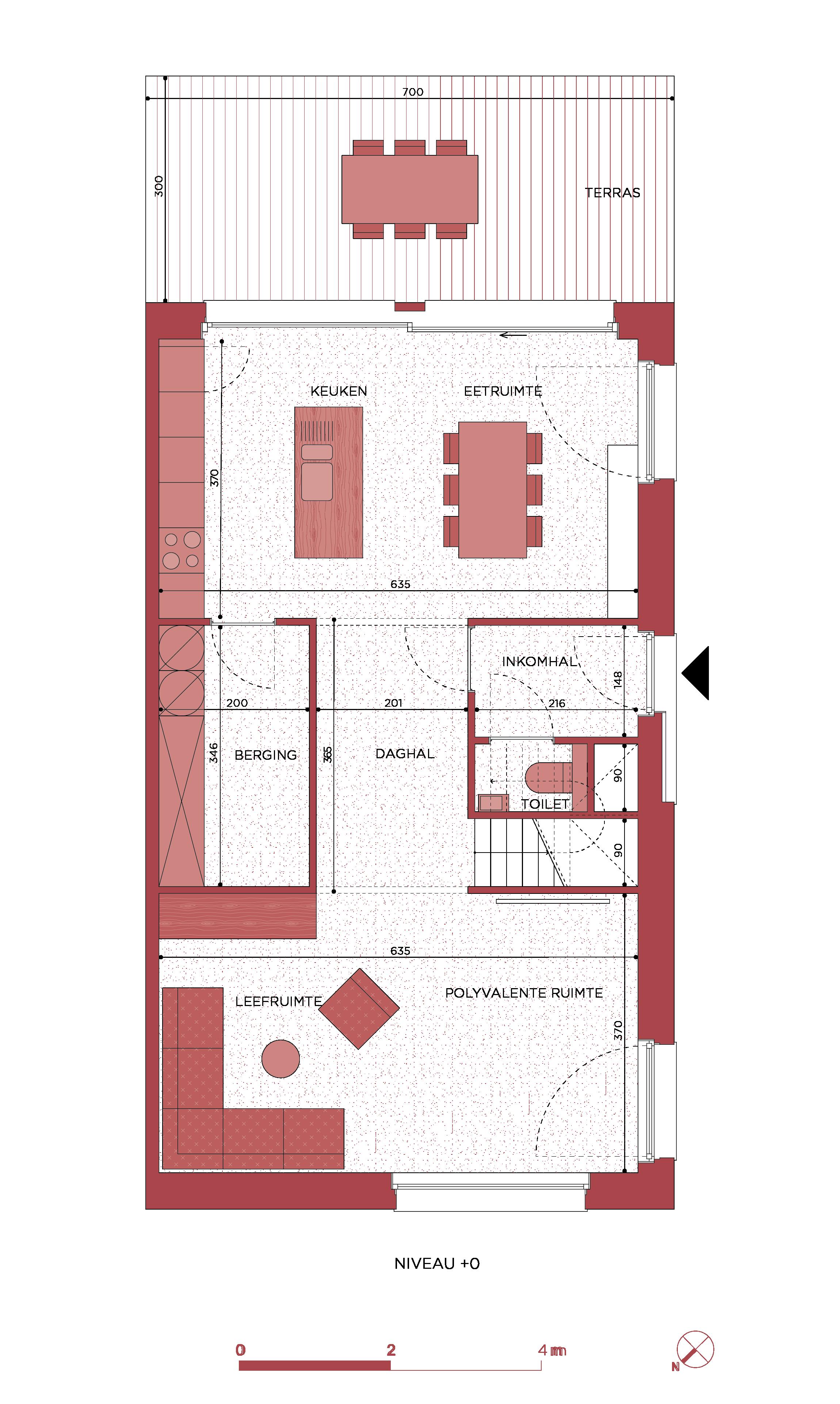
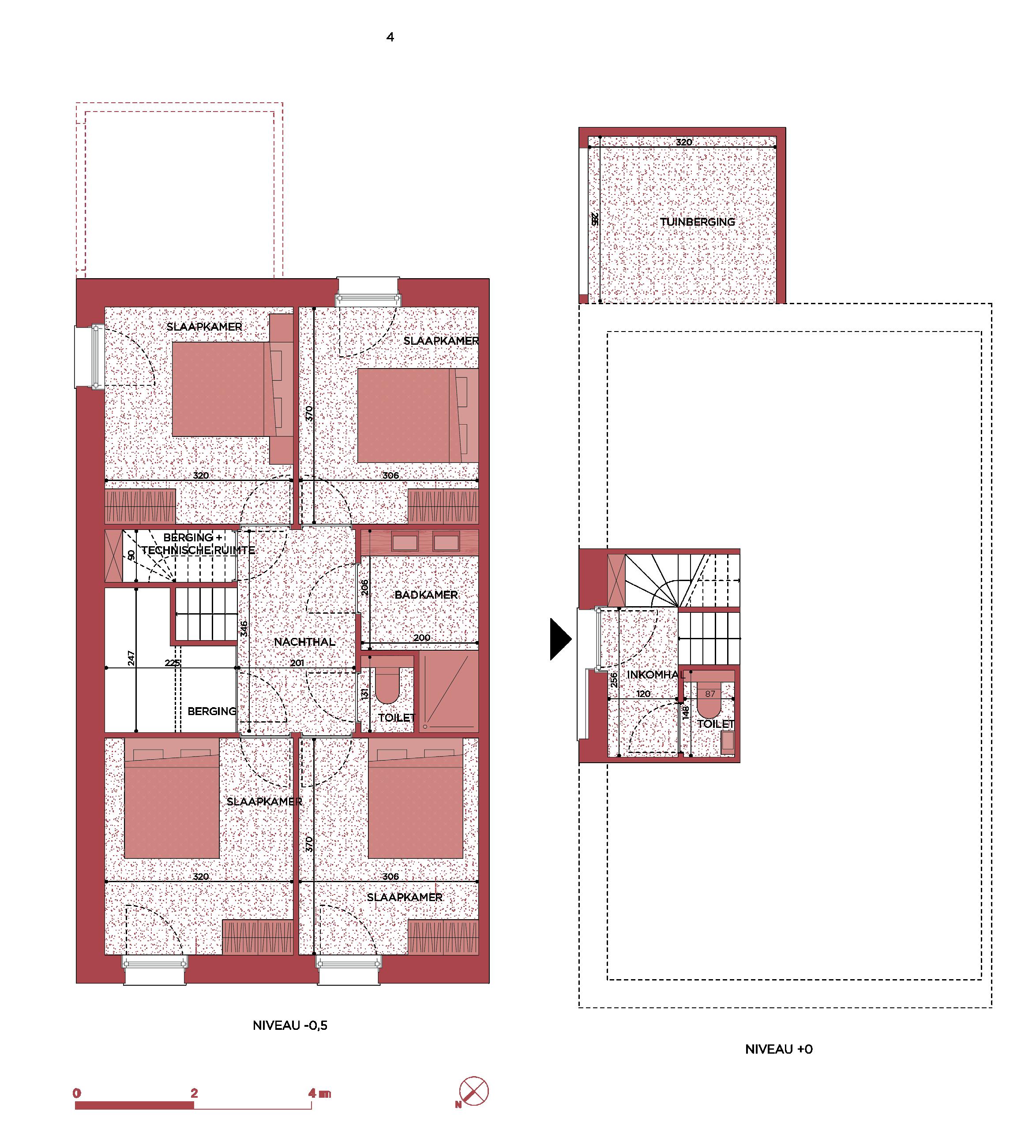
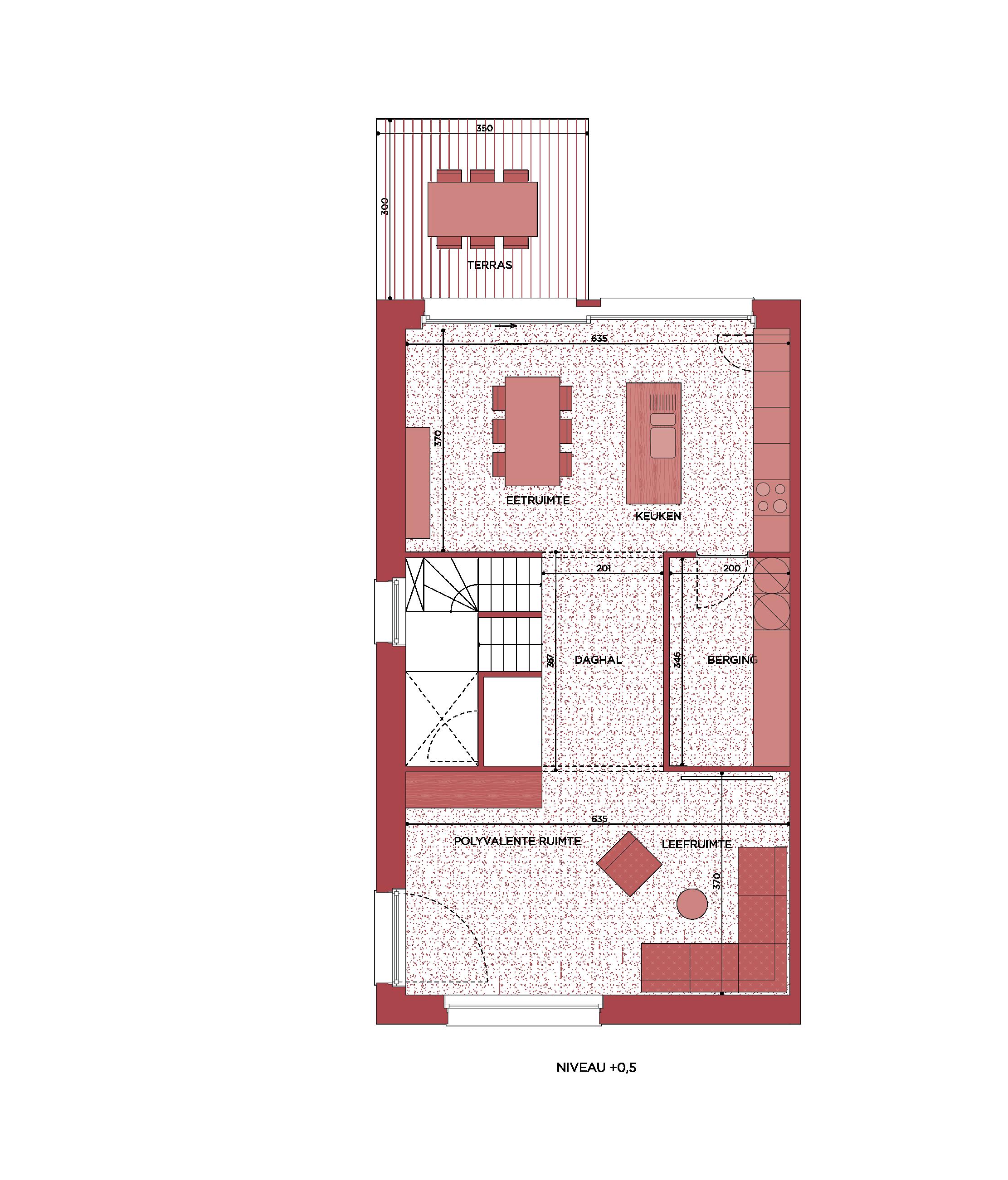
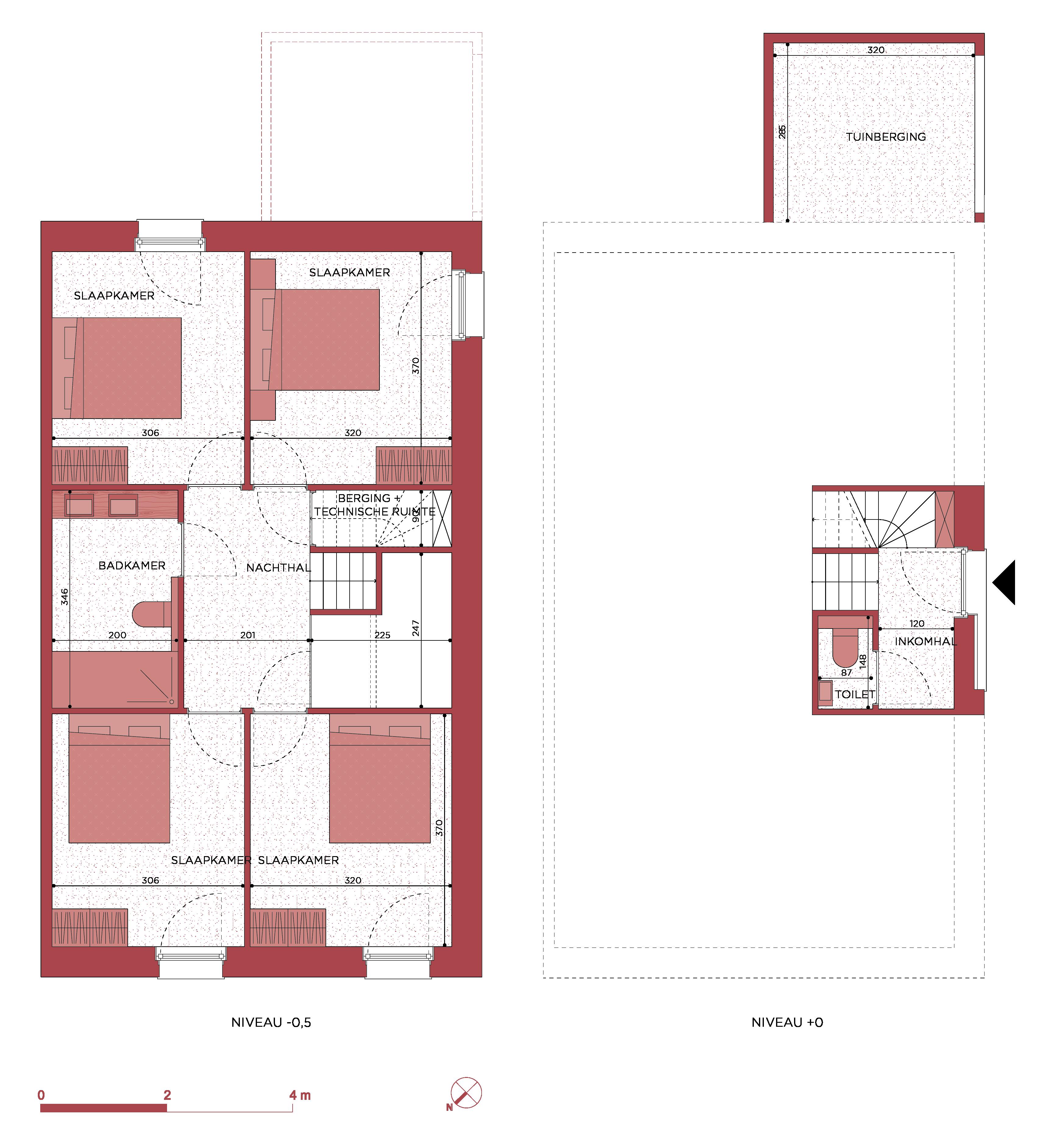
Dit woonproject omvat 14 kwalitatief afgewerkte nieuwbouwwoningen met elke een privatieve tuin. U woont hier in een exclusief woonpark, dat enkel toegankelijk is via een poort, die veiligheid en rust garandeert.
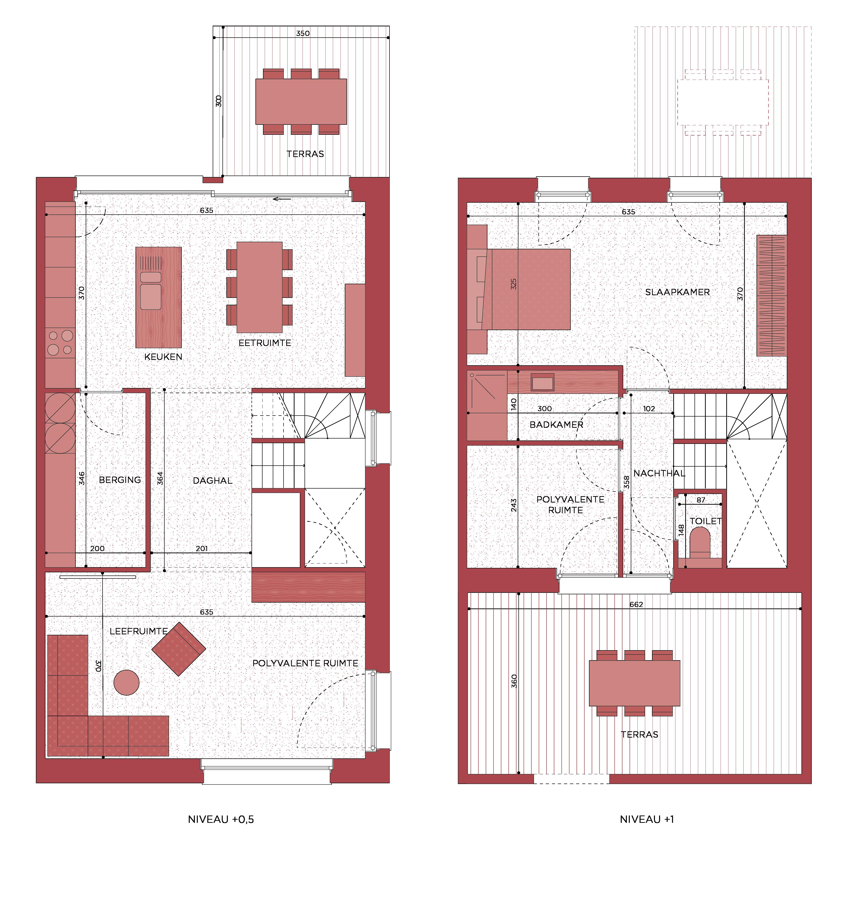
Deze alleenstaande en halfopen woningen beschikken over minstens 4 ruime slaapkamers, een lichtrijke living, goed uitgeruste badkamer, moderne keuken, toilet en berging. Dankzij de grote raampartijen geniet u van natuurlijke lichtinval.
Er bestaat de mogelijkheid om een carport of afgesloten garagebox aan te kopen.

De nieuwbouwwoningen zijn bijna-energieneutraal (maximum E-peil 20) en voldoen aan de huidige normen qua energie en isolatie. Er wordt gebruik gemaakt van de nieuwste technologieën zoals akoestische isolatie, super-isolerend glas, een ventilatiesysteem type D, zonnepanelen en een geothermische warmtepomp voor vloerverwarming/ sanitair water/passieve koeling.
De woningen worden duurzaam afgewerkt, in samenspraak met potentiële kopers en conform het lastenboek.
VOOR MEER INLICHTINGEN:
Dennis Vanhout 0471 74 48 45 dennis@huyzen.be

De grootste troef van dit project is ongetwijfeld de aangename, groene leefomgeving











Dit knap woonproject is een realisatie van bouwfirma GES, getekend door BLAF Architecten.
Glenn en Sam hebben uitgebreide ervaring binnen de bouwsector (onder andere werfleiding, projectleiding, zaakvoederschap van een bouwonderneming). Met hun gebundelde kennis van de nieuwste hedendaagse bouwtechnieken brengen zij een uniek verhaal en eigen identiteit. Ze willen vooruitstrevende projecten realiseren met een eigen, hedendaags accent. Energiezuinigheid en duurzaamheid zijn belangrijke pijlers in al hun realisaties. Zij mikken op kwalitatief bouwen met een bijzondere aandacht voor hoogwaardige materialen, ecologie, wooncomfort en een betere leefomgeving. Door met zorgvuldig geselecteerde partners en leveranciers samen te werken, en zelf alle facetten van het werfgebeuren van kortbij op te volgen, garanderen zij u dat u steeds krijgt wat u beloofd werd.
GES Invest Projects
Kaarderslaan 11B
9160 Lokeren
09 277 91 85
info@ges-ip.be www.ges-ip.be
VRAAG UW GRATIS WAARDEBEPALING

ERVAREN MAKELAARS MET BOUWTECHNISCHE KENNIS
• Erkende BIV-makelaars met een passie voor vastgoed en grote dossierkennis
• Jong enthousiasme gecombineerd met meer dan 10 jaar ervaring
• Eerlijk advies op maat
• Netwerk van goedgelegen kantoren die met elkaar samenwerken
• Sterke marketing en IT-ondersteuning


SPECIALIST IN DE VERKOOP VAN NIEUWBOUW

EEN PROFESSIONELE BEGELEIDING BIJ DE AANKOOP VAN UW NIEUWBOUWAPPARTEMENT IS EEN ABSOLUTE MUST. WIJ HEBBEN UITGEBREIDE ERVARING IN DE VERKOOP VAN NIEUWBOUW EN BEANTWOORDEN MET PLEZIER AL UW VRAGEN.

KANTOOR BEVEREN Yzerhand 33 9120 Beveren
03 775 03 30 beveren@huyzen.be