H U NT E R D O U G L A S
Ceilings & Wall Systems



![]()
H U NT E R D O U G L A S




Hunter Douglas are fluent in design
Working with architects and designers, we translate aesthetic and technical requirements into solutions that express the vision of each project.
We specialise in meeting the technical and design criteria of all types of buildings producing specialised ceiling and wall solutions using a wide variety of materials including Aluminium,Timber and Felt.
For over 60 years, this collaborative approach has contributed to thousands of buildings around the world.
Baffles & Linear
Ceilings & Walls
Origami
VENEEREDWOOD
Solid Wood Linear
Solid Wood Grill
Wood Baffles
VeneeredTiles
Nano-perforated Acoustic Tiles

Multi-Panel
Tavola Baffles
Combi Line
Screen Ceilings
Stretch Metal Ceilings
Cell Ceilings
Metal Tiles (Aluminium & Steel)
Metal Planks (Aluminium & Steel)

Thermoformed non-woven felt
Acoustically Absorptive Lightweight
Warm & Welcoming 100% recyclable
EuroClass B-s1,d0


- Thermoformed PET felt
- Wide range of sizes available
- EuroClass B-s1, d0
- Demountable



- Thermoformed PET felt
- Wide range of sizes available
- EuroClass B-s1, d0
- Demountable


- Thermoformed PET felt
- Wide range of sizes available
- EuroClass B-s1, d0
- Demountable


- Thermoformed PET felt
- Wide range of sizes available
- EuroClass B-s1, d0
- Demountable

Baffle ceilings are ideal for mitigating noise pollution and reverberating sound in most building sectors, and are used to improve the acoustics in concert halls, theatres, conference rooms and other spaces where good sound quality is important.The felt material turns every ceiling into a visual and acoustic playground. Like the ceilings and walls, lightweight HeartFelt® baffles are made from non-woven thermoformed PES fibres and are FR tested to B-S1, d0. Each baffle panel measures 40 - 80mm in width and is available in 100 - 500mm height, with a maximum length of 2000mm.

• Non-Woven thermoformed PET felt: Exclusive and patented technology
• Creates a warm and welcoming atmosphere
• Baffles : 100-500mm deep, 40-80mm wide and lengths of 2000mm
• Fixing : On carriers or decorative hangers
• Finishes : 5 Shades of grey, from white to black
• End caps can be integrated or separate
• Ultra lightweight : 2.4 – 5Kg/m2
• Fire Classification : B, s2-d0
• Suitable for interior and high humidity applications
• Resistant to dust and dirt (Non-organic, micro-organisms cannot grow, even in humid environments)
• Certification : Zero VOC class A+, C2C, European Indoor Environment standard EN15251, BREEAM and LEED, 100% Recyclable and Sustainable



- Non-woven thermoformed PET felt
- Fire classification B, s2-d0
- 5 Shades of Grey/ 5 Earth Tones
- Demountable
- Alpha W 0.7


- Non-woven thermoformed PET felt
- Fire classification B, s2-d0
- 5 Shades of Grey/ 5 Earth Tones
- Demountable
- Alpha W 0.7


- Non-woven thermoformed PET felt
- Fire classification B, s2-d0
- 5 Shades of Grey/ 5 Earth Tones
- Demountable
- Alpha W 0.7


- Non-woven thermoformed PET felt
- Fire classification B, s2-d0
- 5 Shades of Grey/ 5 EarthTones
- Demountable
- Alpha W 0.7

Moneypenny, Wrexham UK

- Non-woven thermoformed PET felt
- Fire classification B, s2-d0
- 5 Shades of Grey/ 5 EarthTones
- Demountable
- Alpha W 0.7

HEARTFELT
- Non-woven thermoformed PET felt
RIE - tour Amstelgebouw Heartfelt module 80

- Fire classification B, s2-d0
- 5 Shades of Grey/ 5 EarthTones
- Demountable
- Alpha W 0.7

HEARTFELT

- Non-woven thermoformed PET felt
- Fire classification B, s2-d0
- 5 Shades of Grey/ 5 EarthTones
- Demountable
- Alpha W 0.7


- Non-woven thermoformed PET felt
- Fire classification B, s2-d0
- 5 Shades of Grey/ 5 EarthTones
- Demountable
- Alpha W 0.7


- Non-woven thermoformed PET felt
- Fire classification B, s2-d0
- 5 Shades of Grey/ 5 EarthTones
- Demountable
- Alpha W 0.7


HEARTFELT
- Non-woven thermoformed PET felt
- Fire classification B, s2-d0
- 5 Shades of Grey/ 5 Earth Tones
- Demountable
- Alpha W 0.7


- Non-woven thermoformed PET felt
- Fire classification B, s2-d0
- 5 Shades of Grey/ 5 Earth Tones
- Demountable
- Alpha W 0.7


- Non-woven thermoformed PET felt
- Fire classification B, s2-d0
- 5 Shades of Grey/ 5 Earth Tones
- Demountable
- Alpha W 0.7


- Non-woven thermoformed PET felt
- Fire classification B, s2-d0
- 5 Shades of Grey/ 5 EarthTones
- Demountable
- Alpha W 0.7






HeartFelt® is an innovative, patented product that turns every ceiling into a visual and acoustic playground.
HeartFelt® linear felt ceiling panels are available in round and box-shaped panels, and can easily be clipped to the specially designed carriers.
In addition to the box-shaped panels in a height of 55mm, the grey tones are also available for the box-shaped panels in heights of 80mm and 105mm, and the round panels in a height of 64mm.
The modular system along with a wide range of options in terms of colour and height offer designers a host of design options and variations.

• Great acoustic performance
• Five different grey tones and five earth tones for a warm ambience
• Available in heights of 55, 64, 80 and 105 mm
• Easy installation and low risk for damages
• 100% recyclable or easily reusable

• Cradle to Cradle Certified Bronze (Cradle to Cradle CertifiedTM is a certification mark licensed by the Cradle to Cradle Products Innovation Institute).
• Easy to maintain: dirt and dust resistant

HeartFelt® Multipanel ceiling panels provide a warm look combined with felt's perfect, natural sound absorption.The HeartFelt® Multipanel range gives you plenty of scope to create interesting designs. Play with different width combinations to create a sustainable, modular ceiling system that is a real showpiece.
• Outstanding acoustic performance
• Five different shades of grey to create a warm ambience
• Panels available in dimensions 30x60, 80x35, 130x35 and 180x35mm
• 100% recyclable or easily reusable > Easy to maintain: dirt and dust repellent


• Cradle to Cradle Certified Bronze (Cradle to Cradle Certified is a certification mark licensed by the Cradle to Cradle Products Innovation Institute).




HEARTFELT ORIGAMI
- Non-woven thermoformed felted PE fibres
- Flat packed for transport
- Fire Classification Bs1, d0
- 5 shades of grey
- Demountable
- Alpha W maximum of 0.7

HEARTFELT ORIGAMI

- Non-woven thermoformed felted PE fibres
- Flat packed for transport
- Fire Classification Bs1, d0
- 5 shades of grey
- Demountable
- Alpha W maximum of 0.7

HEARTFELT ORIGAMI

- Non-woven thermoformed felted PE fibres
- Flat packed for transport
- Fire Classification Bs1, d0
- 5 shades of grey
- Demountable
- Alpha W maximum of 0.7

HEARTFELT ORIGAMI

- Non-woven thermoformed felted PE fibres
- Flat packed for transport
- Fire Classification Bs1, d0
- 5 shades of grey
- Demountable
- Alpha W maximum of 0.7

HEARTFELT ORIGAMI

- Non-woven thermoformed felted PE fibres
- Flat packed for transport
- Fire Classification Bs1, d0
- 5 shades of grey
- Demountable
- Alpha W maximum of 0.7

If you are looking for a ceiling that excels both aesthetically and acoustically, HeartFelt® Origami is the perfect choice. The OrigamiWeave shape allows you to create a contemporary ceiling with playful dynamics. Available in four diverse variants, theWeave options vary in the number of stripes, ranging from 3 to 6 per tile. Available in four variants:Weave 3, Weave 4, Weave 5 andWeave 6 (the figure representing the number of stripes per tile)
HeartFelt®Origami offers not only a unique aesthetical finish but also delivers excellent acoustic performance.The ceiling system HeartFelt Origami Curve brings a soft and sophisticated touch to interior spaces.These elegant panels not only contribute to a warm and inviting atmosphere but also boast superior natural sound absorption, stemming from the inherent properties of felt. Available in two variants: S-Curve (symmetrically curved) and A-Curve (asymmetrically curved)
If you are looking for a ceiling that excels both aesthetically and acoustically, HeartFelt® Origami is the perfect choice. The original HeartFelt® Origami Pyramid is known for its pyramid-like folds. By harnessing the interplay of light and shadow, this distinctive shape creates a playful visual experience while delivering a strong sound-dampening performance. Available in the size of 600 x 600 mm
• Outstanding acoustic performance
• Available in two variants: S-Curve (symmetrically curved) and A-Curve (asymmetrically curved)
• All variants available in the size of 600 x 600 mm
• 5 shades of grey and 5 earth tones
• 100% recyclable or easily reusable
• Cradle to Cradle Certified Bronze

• Easy to maintain: dirt and dust resistant

Solid wood or MDF veneer
Fixed or variable modules
Fire classification Bs1,d0 or Bs2,d0
Species: More than 10 available options
VOC class A+, FSC or PEFC, BREEAM adapted 100% recyclable, sustainable and healthy material



Linear Solid Wood Ceilings - Demountable - Classification Bs1/2, according to wood species - Non-woven acoustic fleece


Linear Solid Wood Ceilings
- Demountable
- Classification Bs1/2, according to wood species
- Non-woven acoustic fleece


Linear Solid Wood Ceilings
- Demountable
- Classification Bs1/2, according to wood species
- Non-woven acoustic fleece


Linear Solid Wood Ceilings
- Demountable
- Classification Bs1/2, according to wood species
- Non-woven acoustic fleece

Studio Architecture- White Oak with 92mm wide slats and 15mm/ 35mm depth

Linear Solid Wood Ceilings - Demountable
- Classification Bs1/2, according to wood species
- Non-woven acoustic fleece


Linear Solid Wood Ceilings
- Demountable
- Classification Bs1/2, according to wood species
- Non-woven acoustic fleece


Linear Solid Wood Ceilings
- Demountable
- Classification Bs1/2, according to wood species
- Non-woven acoustic fleece

Saguez & Partners - Unibail Rodamco Centre
Commercial Wroclavia, Poland
European Oak

Linear Solid Wood Ceilings
- Demountable
- Classification Bs1/2, according to wood species
- Non-woven acoustic fleece


Linear Solid Wood Ceilings
- Demountable
- Classification Bs1/2, according to wood species
- Non-woven acoustic fleece


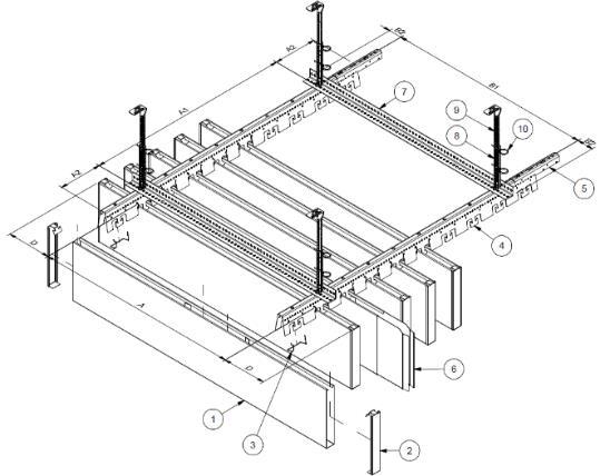
SolidWood Grill Ceiling
Centre Commercial Genipa Martinique - CVZ architectes - Ayous stained with 30x145mm slats with A gap of 80mm

- Demountable
- Classification Bs1/2, d0
- Alpha W up to 0,9
- Custom made lengths
- Many different species available


SolidWood Grill Ceiling
- Demountable
- Classification Bs1/2, d0
- Alpha W up to 0,9
- Custom made lengths
- Many different species available

SolidWood Grill Ceiling
- Demountable
Life Science Incubator, Utrecht - GiesbersWijchen & Mecanoo - FSC Ayous with slats 22x55mm with a gap of 44mm

- Classification Bs1/2, d0
- Alpha W up to 0,9
- Custom made lengths
- Many different species available

SolidWood Grill Ceiling
- Demountable
- Classification Bs1/2, d0
Salon VIP Aéroport de Lyon – MLC – European Ok grill with 20x55mm slats and a 55mm gap

- Alpha W up to 0,9
- Custom made lengths
- Many different species available


SolidWood Grill Ceiling
- Demountable
- Classification Bs1/2, d0
- Alpha W up to 0,9
- Custom made lengths
- Many different species available


SolidWood Grill Ceiling
- Demountable
- Classification Bs1/2, d0
- Alpha W up to 0,9
- Custom made lengths
- Many different species available


SolidWood Grill Ceiling
- Demountable
- Classification Bs1/2, d0
- Alpha W up to 0,9
- Custom made lengths
- Many different species available


SolidWood Grill Ceiling
- Demountable
- Classification Bs1/2, d0
- Alpha W up to 0,9
- Custom made lengths
- Many different species available







- Ribbed, Waveform & Segmented
- Numerous veneer and stain options
- Fire Classification - Bs1,d0 or Bs2,d0


- Ribbed, Waveform & Segmented
- Numerous veneer and stain options
- Fire Classification - Bs1,d0 or Bs2,d0


- Ribbed, Waveform & Segmented
- Numerous veneer and stain options
- Fire Classification - Bs1,d0 or Bs2,d0


- Ribbed, Waveform & Segmented
- Numerous veneer and stain options
- Fire Classification - Bs1,d0 or Bs2,d0

Linear
• A made-to-measure solution, minimizing installation time and site adjustments
• Projects are technically supported and developed, providing a perfect fit at site
• Acoustic performance up to alpha w 0.70 (without optional rock wool)
• Reaction to fire classification B-s2,d0 according to EN 13501-1 (higher classification upon request)
• An all-natural and sustainable wooden ceiling or wall solution with FSC/PEFC certification
• Curved solutions possible by using a special carrier or CNC cutting.


• Cradle to Cradle Certified Silver (Cradle to Cradle Certified is a certification mark licensed by the Cradle to Cradle Products Innovation Institute).
• The Solid Wood Linear ceilings and walls are suitable for all building sectors: Corporate, Transport (airports, metro-, bus -, train stations), Retail, Leisure, Public spaces, Hospitality, Healthcare, Education or Residential.
Grill
• Solid wood or MDF fine wood veneer
• Dismountable modules: width from 20 to 45mm (depending on species) and more in real wood veneers / height: from 35 to 150 mm (depending on species) and more in real wood veneers / Gaps from 20 to 140 mm
• Finishes: transparent varnish (matt, ultra matt, etc.) or colour, stain, paint, matching, etc.
• Extruded aluminium pin, ø12 or 20 mm (depending on slat dimension), black finish (standard) or RAL αW maximum of 0.9
• Fire classification Bs1,d0 or Bs2,d0 depending on density and species
• Use: Interior (wall, ceiling and humid environment (under conditions)) and exterior (ceiling)
• Curved panels are possible by rolling the sub-structure
• Certifications: VOC class A+, FSC or PEFC, BREEAM adapted 100% recyclable, sustainable and healthy material
Baffle : (MDFOnly)
• Real wood veneer
• Customized ribs, wave, segmented… Max length 2400mm
• Finishes: transparent varnish (matt, ultra matt, etc.) or colour, stain, paint, matching, etc.
• Bs1,d0 or Bs2,d0 depending on supports
• Indoor use
• Certifications: VOC class A+
• 100% recyclable, sustainable and healthy material


- Many real wood veneer options
University

- A Variety of perforation and slot patterns
- Acoustic absorption and reflection possible
- VOC Class A+


- Many real wood veneer options
- A Variety of perforation and slot patterns
- Acoustic absorption and reflection possible
- VOC Class A+
The Hunter Douglas veneered wood ceiling system gives you the freedom to make a natural looking wall or ceiling design.They can be produced in any standard size up to 600x1200mm with bespoke sizes available on request.
Depending on the required joint width and access requirements, there are four panel types available for ceilings and two available for wall systems.They are an environmentally friendly ceiling and wall building product that offers endless design possibilities.

• Open book, slipped, random assembly
• Finishes: transparent varnish (matt, ultra matt, etc.) or colour, stain, paint, veneer matching etc.
• MDF heart in Lands pine Custom ribs, bendable (under conditions)
• Dismountable or fixed Invisible fixing Bs2,d0 Alpha W maximum of 0.9
• Choice of perforations: round regular or irregular pattern (nano Ø0.5mm / micro Ø1.5mm / Ø5, Ø7, Ø9mm), oblong (7x97mm), grooved patterns, mosaic patterns, overall pattern, with or without border
• Indoor and outdoor use, wall and ceiling (depending on model)
• Certifications: VOC class A+, FSC or PEFC 100% recyclable, sustainable and healthy material





Acoustic Veneer tiles
Various species
Several perforations
Acoustic correction
VOC Class A+
The veneered ceiling panels can be provided with nano-perforations.This process involves making countless microscopic perforations (Ø 0.5 mm) in the veneer, thus concealing the more extensive perforation of the core material.This allows for excellent acoustic qualities without compromising on appearance.The panels feature acoustic fleece on the reverse. In testing, the nano-perforated panels were shown to have a sound absorption of αw: 0.95 and NRC: 0.90.

• Open book, slipped, random assembly…
• Finishes: transparent varnish (matt, ultra matt, etc.) or colour, stain, paint, matching, etc.
• MDF heart in Lands pine
• Custom ribs, bendable (under conditions)
• Dismountable or fixed
• Invisible fixing
• Bs2,d0 Alpha W maximum of 0.9
• Choice of perforations: round irregular nano pattern Ø0.5mm or Ø1 mm
• Indoor wall and ceiling use (depending on model)
• Certifications: VOC class A+, FSC or PEFC
• 100% recyclable, sustainable and healthy material

Demountable Fire classification A2s1,d0 or Bs1,d0 Certifications: zero VOC class A+ 100% recyclable, sustainable and healthy material


de formation Permis

MULTIPANEL ALUMINIUM CEILING
Demountable
Classification A2s1, d0
8 different panels




BXD ALUMINIUM CEILINGS
- Demountable
- Classement Bs1, d0
- Alpha W maxi de 0,75

Lames de 30-80-130-180 B et lames de 30-80-130 BXD, vide de 20mm, Lightlines LED HunterDouglas

MULTIPANEL ALUMINIUM CEILING
Demountable
Classification A2s1, d0
8 different panels

MULTIPANEL ALUMINIUM CEILING
Demountable
Maastoren Rotterdam NL

Classification A2s1, d0
8 different panels

Demountable
Marriott Auditorium, Madrid Espagne

Classification A2s1, d0
8 different panels

Marriott Auditorium, Madrid Espagne

Demountable
Classification A2s1, d0
8 different panels
The BXDCeiling panels (height 64mm) are available in three widths: 30, 80 and 130 mm which can be specified in combination with the B panels (height 15 mm), and BD panels (height 39 mm) from the Hunter Douglas Multi-Panel ceiling program.This unique paring of ceiling solutions makes it possible to create highly functional and beautifully engineered three-dimensional designs.The 20 mm joints can be left open or closed.The wide choice of colours available make it possible to create virtually any ceiling design you can imagine.

• The combination of narrow and wider panels on one carrier offers various dimensional effects
• Optimal acoustic control
• Panels can be supplied in any length up to 6000 mm (as standard)
• Panels combined with join profiles provide a visually closed ceiling
• Curved or radial designs can also be accommodated, please contact our sales office for further information
• Made out of special alloy aluminium with up to 92% recycled content



• Cradle to Cradle Certified Bronze (Cradle to Cradle Certified is a certification mark licensed by the Cradle to Cradle Products Innovation Institute).


BAFFLE TAVOLA DIVERGENT
Centre Commercial Créteil Soleil, Créteil France

- Demountable
- Classification Bs1, d0
- Finishes : RAL, wood effects (depending on quantities)


Demountable
Bs1, d0 classification
Finishes: RAL, wood effects, mirror (depending on quantities)


Demountable
Bs1, d0 classification
Finishes: RAL 9010, wood effects (depending on quantities)


Demountable
Bs1, d0 classification
Finishes: RAL 9010, wood effects (depending on quantities)


TheTavola Straight Baffle system enables a whole range of ceiling designs with variable baffle spacing, widths of 30, 40 and 50 mm, heights of 100, 150 and 200 mm and a range of different paint colours and laminated wood.This gives the architect a design freedom for a project.Custom (wood) colours on request.
•Profile lengths up to 4000 mm
•Profile heights: 100-150-200 mm
•Profile widths: 30, 40 and 50 mm
•Standard FE carrier 43 x 60 mm, black
•On site waste reduction with factory fabricated dimensional material
•Downweight: reduce static load with lightweight steel
•Standard from pre-painted steel strip
•Easy plenum access





COMBI-LINE CEILINGS
Demountable
Bs1, d0 classification
Finishes: RAL, wood effects, mirror (depending on quantities)

COMBI-LINE CEILINGS

Demountable
Bs1, d0 classification
Finishes: RAL, wood effects, mirror (depending on quantities)

Combi-Line features a unique carrier rail system that is fitted with a variety of clips that are designed to support a combination of linear metal, wood and HeartFelt® fabric panels.This enables three different ceiling panel styles to be fitted onto a single carrier in any order and in any modulation.
• Combi-Line allows you to mix and match with a range of Hunter Douglas metal, wood and HeartFelt® panels.
• Easy access to the plenum for maintenance, the panels can be dismounted individually.
• Designers have the ability to create a unique pattern with more than one ceiling panel type.
• Combi-Line is available with HeartFelt 30HL60, metal 30 BD/BXD and veneered wood 30WL60 linear panels.




SCREEN CEILINGS V100/V200 ALUMINIUM
Demountable
Classification A2s1, d0
Maximum length of 6metres
Height 100 or 200 mm
Pitch 100, 150 and 200mm
Retractable solutions


CEILINGS V100/V200 ALUMINIUM
Demountable
Classification A2s1, d0
Maximum length of 6metres
Height 100 or 200 mm
Pitch 100, 150 and 200mm
Retractable solutions

The Luxalon® Screen Ceiling is ideal for applications where the design criteria is to visually reduce the room height while retaining original room volume.The Luxalon® screen ceiling excels at diffusing daylight or artificial light entering from above.At a minimum angle of approximately 45 degrees, the ceiling has a closed appearance.
• Vertically installed panels in 100, 150 or 200mm module
• The panels come in either 101 mm high (V100) or 200 mm high (V200) and clip easily to the carrier.
• Fixing clips fitted on the carriers between the panels provide a secure locking of the panels and make the system suitable for exterior applications (only V100)
• Panels can be supplied in any length up to 6000 mm (as standard)
• If required, panels and fixing clips are easily demountable by hand, which allows full access to services and equipment in plenum



Cultural Center Stjordal

STRETCH METAL CEILINGS
Demountable
Interior / Exterior Classification Bs1, d0
Numerous meshes available

Cultural Center Stjordal

STRETCH METAL CEILINGS
Demountable
Interior / Exterior Classification Bs1, d0
Numerous meshes available


STRETCH METAL CEILINGS
Demountable
Interior / Exterior Classification Bs1, d0
Numerous meshes available

STRETCH METAL CEILINGS
Demountable
Résidence rue de L’Université Paris 7 - GOA
Stretch Metal Safety Loop

Interior / Exterior Classification Bs1, d0
Numerous meshes available
Luxalon® Stretch Metal is a highly versatile material that can provide an array of extra visual effects to a ceiling. Individual customization of a ceiling can also be achieved by varying the types of mesh, their arrangement, the lighting and the colour.

• Steel (Interior) or aluminium (Interior/ exterior) depending on the dimensions
• Visible or Hidden Frame / Tilting (Hook On)
• Demountable
• Custom Dimensions: - Indoor/Outdoor: maxi 600 x 2500 (depending on the type of mesh)
• Safety Loop anti-lift system (outdoor, sports hall, etc.)
• Finishes: standard or anodised RAL pallet (depending on quantities)
• Standard openness from 36% to 60% (up to 80% on request)
• αW mini of 0.85 with 25mm acoustic mattress (αw = 1 with 85mm mattress and LS10 mesh)
• Fire classification: class A1 in accordance with standard EN13501-1
• Certifications: zero VOCs class A+
• 100% recyclable, durable and healthy material




CELL CEILINGS


Demountable
Interior Classification A2s1 d0
Numerous sizes available

• Demountable
• Indoor use only
• Standard dimensions 600 x 600mm and 600 x 1200 mm. Special dimensions according to quantities.
• Fire classification A2s1,d0
• Certifications: zero VOCs class A+
• 100% recyclable, durable and healthy material
T15 :
• Aluminium double skins with dimensions 15 x 40(h) mm edged on 4 sides
• Exposed T15 frame, blended with the grid: sheet effect
• Numerous modules: from 50 x 50 to 200 x 200mm (openings from 49% to 85%)

• Finishes: white RAL 9003, aluminium RAL 9006 or black RAL 9011. Other RAL Standard colours on request
Grill 40 - 50 :
• Aluminium double skins 4/10th (Grid 40) and 5/10th (Grid 50)
• Dimensions 10 x 40(h) mm (Grid 40) and 10 x 50(h) mm (Grid 50)
• Integrated grid: sheet effect
• Numerous modules: from 50 x 50 to 200 x 200mm (openings from 64% to 90%)

• Finishes: white RAL 9003, aluminium RAL 9006 or black RAL 9011. Other RAL Standard colours on request
• Aluminium double skins 4/10th (Grid 40) and 5/10th (Grid 50)



Linear Closed 75C 150C 225C
Demountable
Interior / Exterior
Classification Bs1, d0
Different widths available


Linear Closed 75C 150C 225C
Demountable
Interior / Exterior
Classification Bs1, d0
Different widths available

Linear Closed 75C 150C 225C
bar Nordic, Sea Hotel, 150C Qualité extérieur

Demountable
Interior / Exterior
Classification Bs1, d0
Different widths available

300L Ceilng planks
Demountable
Coina Station
Interior / Exterior
Classification Bs1, d0
Hunter Douglas’s range of Luxalon linear closed ceilings provide the architect with a range of directional room designs.This interior metal ceiling employs smooth clean lines in a range of widths and colours to help create staggered, multi-layer designs.
Closed aluminium ceiling panels with bevelled edges, when installed creates closed smooth appearance

• Combination of 3 widths 75/150/225 mm
• All three widths can be clipped to an integrated universal carrier
• Panels can be supplied in any length up to 6000 mm (as standard)
• Optimum acoustic control by using perforated panels
• Manufactured from special alloy aluminium with up to 92% recycled content


• Cradle to Cradle Certified Bronze (Cradle to Cradle Certified is a certification mark licensed by the Cradle to Cradle Products Innovation Institute)

The robust look of the 300LWide Ceiling Panel fits perfectly in large open spaces with a high level of noise such as airports, shopping malls or conference halls. One of the 4 standard support systems can be chosen to fit project requirements.With excellent sound control properties, 300L panels turn loud environments into spaces with a comfortable acoustic ambiance
• Closed ceiling type in 300mm module, resulting in a closed smooth appearance
• Panels are available as standard in steel (0.6mm) or aluminium (0.7mm)
• Panels can be supplied in any length up to 6000 mm (as standard) and are free spanning up to 2400mm length and 1800mm
• Optimum acoustic control can be achieved by using perforated panels with a non-woven textile membrane bonded to the inside face
• Easily demountable panels allowing full access to services and equipment in the plenum
• Aluminium carriers in combination with aluminium panels can also be used for exterior application




• Cradle to Cradle Certified Bronze (Cradle to Cradle Certified is a certification mark licensed by the Cradle to Cradle Products Innovation Institute).



Demountable
Custom dimensions
Choice of colours (RAL palette)


Demountable
Custom dimensions
Choice of colours (RAL palette


Demountable
Custom dimensions
Choice of colours (RAL palette

Luxalon® Metal tile and planks are ideal for projects where either a high level of acoustic absorption is required or where visual and physical transparency of the ceiling is requested.The systems are also ideal for environments where regular access into the plenum is required.
• Gamma / Alpha / Beta / Delta Tiles
• Steel or Aluminium (Other thicknesses on request)
• Visible or Invisible Frame
• Dimensions (customized)
• Finishes: RAL Standard (pre-painted or post-lacquered), mirror, anodized,
• Numerous perforations available with or without non-woven felt
• Fire Material Classification Steel / Aluminium (A1) & Aluminium wood print (A2)
• Certifications: zero VOCs class A+
• 100% recyclable, durable and healthy material
