Untitled Design

Page 1

Huancayo JULIO-2023

DISEÑO FACHADAY

Prepared By : MaxP.V.

Presented By : MiguelV.

RaquelM.

INTERIOR 2 0 2 3

FACHADA

La fachada parte de un inicio a un fin llevando la linea principal del primer piso al ultimo piso , las ventanas están cubiertas de pieles lo cual permite el acceso de luz necesario para los espacios.

LasPIELESseconformandediagonalescruzadasdentrodeunrectangulo
- JUNIO 2023 2
HUANCAYO

Los rectángulos con marcos están en toda la fachada así como en los detalles centrales para darle un aspecto mas sofisticado a la perspectiva de la fachada , las pieles juegan con las sombras y dan jerarquía a la fachada

DETALLES Perspectiva

JerarquÍa 1 Ritmo 2 Simetría 3
- JUNIO 2023 3
HUANCAYO
IN CLOSET EN L
- JUNIO 2023 WALK IN CLOSET EN U (WALKINCOSET) A R Q U I T E C U R A 4
PLANTA03 WALK
HUANCAYO

LAVAMANOS

TIPO 01

HUANCAYO - JUNIO 2023 LAVAMANOS

TIPO 02

A R Q U I T E C U R A 5
PLANTA03 (BAÑO2PERSONA)

HUANCAYO - JUNIO 2023

INODORO TIPO 01
INODORO TIPO 02
A R Q U I T E C U R A 6
PLANTA03 (BAÑO2PERSONA)
SALA HUANCAYO - JUNIO 2023 CORREDOR PLANTA03 (SALAYCORREDOR) A R Q U I T E C U R A 7

DUCTO DE VENTILACIÓN CON REPISA

TERMA DE AGUA CALIENTE

(DUCTODEVENTILACIÓN)

ESTRACTOR DE AIRE

REPISA
HUANCAYO - JUNIO 2023 PLANTA03
A R Q U I T E C U R A 8
HUANCAYO - JUNIO 2023 PLANTA03
A R Q U I T E C U R A 9 NIVEL DE PISO + 0.20
(NIVELDEPISO)
- JUNIO 2023
S A N I T A R I A - A G U A 10
HUANCAYO
PLANTA03
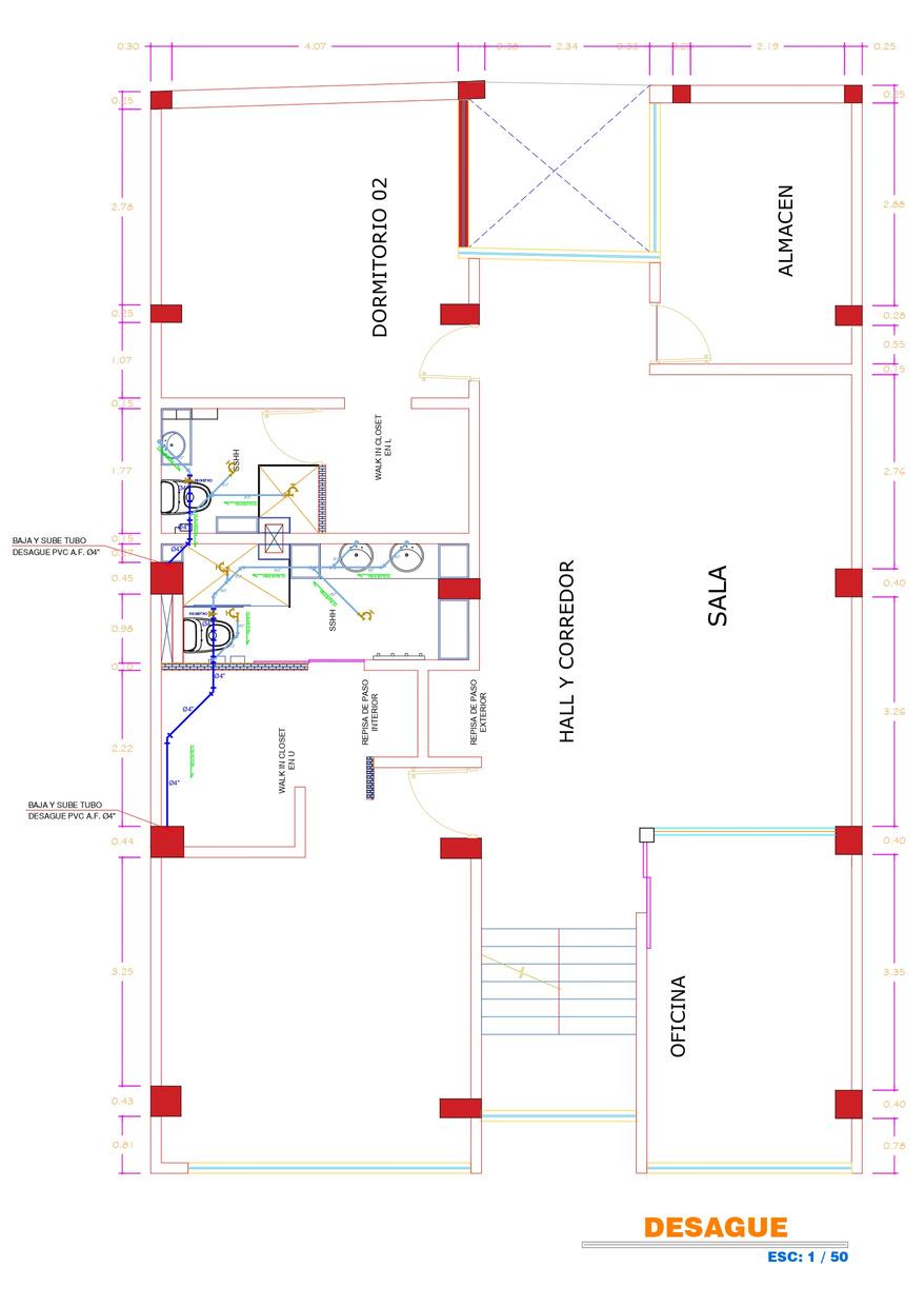
- JUNIO 2023
S A N I T A R I A - D E S A G U E 11
HUANCAYO
PLANTA03
- JUNIO 2023
HUANCAYO
L E C T R I C A 12
PLANTA03 E
2 0
3 Prepared By : MaxP.V. Presented By : MiguelV. RaquelM. Huancayo JULIO - 2023
2

Turn static files into dynamic content formats.

Create a flipbook
Issuu converts static files into: digital portfolios, online yearbooks, online catalogs, digital photo albums and more. Sign up and create your flipbook.
Untitled Design by Max Anthony Pérez Villavicencio - Issuu