Skip to main content

Design DNA - Humber Polytechnic - Bachelor of Interior Design - Thesis 2025

Page 1


HUMBER POLYTECHNIC

BACHELOR OF INTERIOR DESIGN

Edited and designed by

Abigail DeJong

Rosalia Di Noto

Marcin Kedzior

Presented by Humber Polytechnic

Faculty of Media, Creative Arts, and Design

Bachelor of Interior Design

This publication was typeset in Garet Regular, Bold, Italic Lucidity

WHAT’S INSIDE?

INTRODUCTION

Mentors & Motivators → P.1

A Letter from Our Coordinator → P 3

A Letter from the Editors → P 5

Bachelor of Interior Design Thesis 2024/2025 → P 7

PROJECTS

Interactive Landscapes

P 21

Cassandra Rolle Fluid Spectrum Stage → P.9

The Universe Inside Me

P.13

Abigail DeJong Home is a Feeling

P 29

P.17 a a e e Force 4X

61

The Power of Water → P.65

The Kindred House → P 73

The Playscape Library → P.77

Vishwa Panchal
Carolina Marin
Denzelle Cariño Pause & Recharge
Salina Tor Crafting Stillness → P.41
Ariana Ramcharan Unsung Legacies
Anna Tran Flowing Through Memory → P.49
Aimee Losele Haven → P.45
Rosalia Di Noto Moke
P.57
Clover Doan Kinetic Interior P
Christina Ferreira
Jay Schober
Khaila Macalinao Rethinking Museums → P.25

PROJECTS

Emily Ramsuchit Spatial Dialogues → P 81

Jake Cornish Newmarket Artist Trio → P.85

Grace Kenney Our Space, My Space, Safe Space → P.89

Marie Silla Room to Grow → P 93

Aurora Martinucci Pediatric T1D Clinic → P 101

Mellisa Sgro The Social Supper → P.105

Gabrielle Daoud Cedar Echoes → P.121

→ P 125

Chloe Dhuong Imaginarium → P.109

Orchid Campbell Beyond Borders → P.129

Hannah Boyonoski Living Artifacts → P.97

Naomi Chu Aquaroots → P.141

Eden Kooger The Material Environment → P.145

ACKNOWLEDGEMENTS

Our Thesis Show Teams → P.151

A Special Thanks to Our Sponsors → P.157

Cali Lirette Authentic Exposure → P 113

Alyssa Burgess The Multilingual Library → P.117

Sheryl Mathew Enerava
Emma Pearson The Blue Path → P 133
Lauren Cameron Echo Healing → P.137

MENTORS &

ANNA STRANKS M.Des BID ARIDO

KAREN WHITE MA BA Dip.ID ARIDO IDC
LESLEY TAYLOR MArch B.Ed Dip.EV
CLAUDINA SULA MArch BTech OAA AIA RAIC
CRAIG CRANE MA BTech CIDQ ARIDO IDC
ORLA KEANE MSc BID
HALLEH NEJADRIAHI PhD MArch BArch
ZACK KORZEN MSc Dip Arch LEED GA

MOTIVATORS

This lively collection of Interior Design work is an insight into the curiosity, skill, and intelligence of the 2025 graduating class. Because each student's project embodies distinct ideas, aesthetics, and ways of thinking about the world, the contents of this book are like a genetic code for students' design personalities, or a DNA of selfhood, offering a portal through which to see the core motivations, minds, and musings of these students.

We see wondrous projects that take us to other worlds, playful experiments that expand our imagination, skillful and rigorous space planning, functional and poetic material and light explorations, and invitations for empathetic connections to diverse communities. Students exhibit the creative, technical, and research skills that will guide their future design trajectories. In this sense this thesis is not the end, but the beginning of future experiments.

Students will use this design DNA to proliferate differences, generate new sequences, and continue to broaden their outlooks on design. They are ready for future collaborations with various fields, transformations in technology, the emergence of new species of spaces, traits, and functions, and entirely new fields of study. The design-building blocks found here will continue to be deployed in the years to come, revelling in the creativity and variation that are the fundamental aspects of life.

MARCIN KEDZIOR MArch BFA
ZUBIN SINGH

A LETTER FROM

To the graduating class,

It’s a privilege to write this note for your thesis book, a collection that captures not only your design work, but the spirit and resilience that define this graduating class.

These pages hold spaces imagined with empathy and ideas shaped through both struggle and discovery. Together, your work forms a kind of collective landscape. It is diverse in vision yet united by a shared drive to create meaning through design.

This group holds a particularly special place for me. You were the first students I taught when I joined the program, and I’ve had the chance to watch your growth over these past few years. It’s been deeply meaningful to see you stretch your thinking, strengthen your voice, and take creative risks with increasing confidence and conviction.

Interior design is complex work. It demands fluency in many languages: visual, technical, and emotional. And too often, our profession is underestimated or misunderstood for the depth it carries. Yet here, in these projects, your work speaks clearly. You’ve taken on difficult questions and pushed design toward deeper purposes by advancing equity, supporting wellbeing, reflecting cultural context, and, most importantly, centring care.

Thank you for your openness in studio, your generosity with one another, and the thoughtfulness you’ve brought to every stage of your learning. I hope this book becomes more than a record of what you’ve done. I hope it reminds you of who you are becoming and the community you’ve helped shape.

Congratulations. We are so proud of you.

Warmly,

OUR COORDINATOR

FROM

THE EDITORS

It is with immense pride and great pleasure that we present the Bachelor of Interior Design, class of 2025, Thesis Book!

A vibrant testament to four years of dedication, innovation, and remarkable growth. For us, as editors, and for every designer within these pages, this isn’t just a collection of designs; it’s a profound testament to the incredible journey we’ve shared together.

It feels surreal to think we only met our classmates four years ago, even if it was online. None of us truly knew what we were getting ourselves into in the most exciting and transformative way possible! From starting this program during a global pandemic to navigating significant curriculum changes in our final year, the resilience found among our graduating class is truly unwavering, and it has been a privilege and inspiration to witness in every single one of our peers!

Now, as we stand on the cusp of entering the industry world, this book represents not only our individual achievements but also the strong bonds we have formed through shared challenges and collective triumphs. It’s a snapshot of our collective growth, highlighting our diverse talents and fresh perspectives that are eager to shape the future of interior design.

As your editors, we’ve had the immense privilege of witnessing firsthand the dedication, critical thinking, and sheer creativity poured into every single thesis. We extend our sincerest gratitude to the Faculty of Media, Creative Arts, and Design for their consistent support and the inspiring environment they’ve fostered. A heartfelt thank you also goes to our dedicated professors and our invaluable coordinator for their tireless guidance, mentorship, and profound commitment to our education.

We invite you now to explore this collective and witness the promising future that each of these designers represents.

BID THESIS

2024 / 2025

This thesis book proudly presents the culmination of an intensive and transformative four-year journey undertaken by the graduating Bachelor of Interior Design class of 2025. Their academic trajectory has been uniquely defined by a period of significant adaptation Navigating the unprecedented challenges of beginning their program online during the global pandemic before transitioning back to the dynamic environment of in-person learning. Throughout their studies, these students have also embraced the rapid evolution of interior design technology, integrating cutting-edge tools and methodologies into their creative processes. Furthermore, their final year was marked by the successful navigation of significant curriculum changes, a testament to their resilience, flexibility, and unwavering commitment to their design education.

The overarching theme of this year's thesis exhibition, "Design: DNA," serves as a reflection of the unique and diverse perspectives that characterize this exceptional graduating class. Just as our individual DNA makes each of us unique, each student’s personal design approach, preferred learning styles, and inherent creative processes have profoundly influenced and shaped their thesis project. These projects stand as deeply personal expressions of their unique contributions and evolving voices within the expansive field of interior design. The foundations for these culminating thesis explorations have been built upon a rich and diverse array of projects completed throughout their four years of study, encompassing a wide spectrum of typologies including Lofts, Hospices, Cottages, Retail Spaces, Restaurants, and Offices. Each of these foundational projects has served as a crucial stepping stone, allowing students to explore their individual interests, refine their design sensibilities, and ultimately inform the compelling and diverse narratives presented within their thesis work, signalling the emergence of a vibrant and innovative generation of interior design professionals.

CASSANDRA ROLLE

Sensory-Friendly Theatre

FLUID SPECTRUM STAGE

The live theater experience ideally fosters community, comfort, and a sense of shared belonging, where everyone feels part of something special, uniting performers and audience through the arts However, the traditional format, often featuring loud noises, bright lights, rigid seating, and lengthy, unbroken performances, can create an uncomfortable and inaccessible experience for many, particularly neurodivergent individuals with sensory processing differences. These sensitivities can include challenges with specific sounds, tastes, textures, lighting, and environments. Given that cognitive and sensory processing varies for every individual, neurodiverse or neurotypical, a ‘one-size-fits-all’ approach fails to deliver an enjoyable, inclusive, and accessible live performance for all Instead, a theater space that encourages autonomy and choice within its built environment will cultivate inclusivity and empower all minds.

Fluid Spectrum Stage explores a community theater designed for sensory-friendliness. It allows users to customize their sensory experience by mitigating or heightening stimuli through sensory pods, booths, and private rooms equipped with filtering devices With a focus on flexibility and choice, this space aims to create a customizable theater experience tailored to individual sensory preferences, ultimately fostering an empowering and comforting environment

FLUID SPECTRUM STAGE

A Theater for Every Mind: Embracing Sensory-Friendly Design

LOCATION: 950 DUPONT ST, TORONTO, ON

1

2

3

4

5

6

12

14

15

16

17

18

Fluid Spectrum Stage is a sensory friendly theater designed to address the issue of overstimulating theater environments that can be particularly uncomfortable for some neurodivergent individuals who may experience sensory processing differences.Thesite is located at 950 Dupont St., right beside a dance studio and in close proximity to an inclusive drama studio Chosen for its innovative legacy, the site allows Fluid Spectrum Stage to reinvent the traditional black box theater with itsglazeddesign, reflectingtransformation and progress.

Fluid Spectrum Stage uses calming, inclusive materials, biophilicdesign andcurvedwallsin keyareasforvisualcomfort The design also utilizes thoughtful wayfinding techniques including clear signage, braille, and real imagery for better accessibility

Thegroundfloorfeaturesanentry,publiclobby,andbackstageaccesstoa flexible, double-height theater This theater offers adaptable seating (traditional modular chairs, relaxed beanbags/benches) and comfortable spacing At the rear, private one-to-two-person viewing pods provide a sensory retreat with one-way glass, adjustable speakers, and dimmable lighting

Fluid Spectrum Stags features both public and private sensory rooms for actors and visitors to enjoy before, during, and after the show. These spaces are designed to spark sensory exploration while also offering a calm, private place to unwind. Inside, you’ll find interactive wall projections, fiber optic waterfalls, bubble tubes, cozy seating, games, and quiet nooks perfect for taking a sensorybreak

Themezzanineleveloffersfouruniquesensoryboothswithcustomizableexperiences Thecushion boothfeaturesfloor-to-ceilingcushionsandbeanbagsforloungingandacoustics Thetech sensoryboothprovidesaninteractivefloor, projectionwalls,anddigitaldisplays InspiredbyTempleGrandin'shugmachine,thehuggieboothhasasqueezemachinewithinflatablebumpersforcalmingpressure Thetactileboothencouragesinteractionwithawall projector,LEDbubblewall,andtexturedsurfaces. Eachboothincludesflexibleseatingandone-waysmart glass with integrated controlsfor adjusting light, sound,andopacity.

Recognizing that trains are often a favorite interest for manyindividualsontheautismspectrum,FluidSpectrum Stagehasthoughtfullyincludedatrain-viewingloungeon the mezzanine, complete with concessions Visitors can relax with a snack or drink while peacefully watching the trainspass

VISHWA PANCHAL THE UNIVERSE INSIDE ME

AN EXPERIENCE INSIDE THE HUMAN BODY

Making children aware of the magic within them, this thesis takes the form of a storybook exploring the 7 energy centres, or, the seven chakras of the body. Each chakra becomes a site or space to experience the senses, emotions, and lead to self-discovery.

The story unfolds through fictional characters who journey through the seven spaces, each designed to reflect the qualities, colours, forms of movement, sounds, and locations within the body. By shifting the focus from the design of a physical space to the design of a fantastical space, this thesis attempts to present space as an instrument of pedagogy and narrative, in this case teaching children about ancient Indian meditation practices.

The process of design highlights the empathetic alignment with the users/readers, inhabiting the minds of children to see from their point of view. Lastly, this thesis applies interior design strategies to understand psychic and bodily interiors, as the primary interiors we experience the universe through.

1 2 3 4 5 6 7

ROOT CHAKRA (Muladhara)

Element: Earth

Colour: Red

Thisisaspacewhereyoufeelcompletelyathome ahomethatisnot just around you, but also within you It’s the part of your body that connects you to your core, to the truth of who you are This space is like a seed deeply planted at the base of your spine, one that you waterandcareforsoyourwholeselfcangrowstrongandhealthy It’s where everything begins, your foundation, your strength, your sense ofbeing It’swhereyoufeelemotionallysafeandprotected,likewhen you are wrapped in a warm hug or cradled in your mother’s womb This space reminds you that being grounded in your own body is important, especially when you feel afraid or like you’re floating away in too many thoughts It’s your anchor, your soil, your source When you feel like you need to return to yourself, to feel secure and steady, youcanconnectwiththisspace.Ithelpsyoucomebackhometoyou.

Chant“LAM.”

SACRAL CHAKRA (Svadhisthana)

Element: Water

Colour: Orange

This is a space full of movement, emotion, and creativity It’s where you dance freely, laugh loudly, play with joy, and even cry when you need to This space lets you experience life through all your senses touch, taste, sound, smell, and sight and helps you know what you love by how you feel Like water that flows and waves that change shape, this space allows you to move, adapt, and enjoy every little shift It teaches you that it’s okay to feel everything from happiness to sadness, jealousy to excitement because all emotions are part of being human. It’s a space where your joy runs through you like blood, keeping you alive and vibrant. Inside this space lives the octopus, reminding you that movement is continuous and always changing, andtheotter,whoteachesyoutoplay,tobejoyful,andtogowiththe flow This is your emotional playground, and it’s completely okay to feelitallhere Chant“VAM”

SOLAR PLEXUS (Manipura)

Element: Fire

Colour: Yellow

Thisisthespaceofyoursun,glowingbrightandgoldeninyourupper belly Just like the sun rises each day to bring light to the world, this space brings you energy, motivation, and the willpower to rise each morning Itfillsyouwithstrengthtodoeverythingyouwanttodo It’s a fiery place that gives you power to make choices, to trust your gut, andtospeakwithconfidence.It’sthespaceofthelionwithinyou the one who roars with bravery, boldness, and pride. It also helps you regulate your digestive fire, turning it into fuel for action This space helps you focus on your goals and take charge of your life, telling you that what you are doing is right and you are capable of doing it It pushesfearasideandfillsyouwithconfidence Chant“RAM”

THROAT CHAKRA (Vishuddha)

Element: Ether (space)

Colour: Blue

This is the place in your body from where your voice comes alive. It’s the space that lets you express yourself through sound whether you're speaking loudly, shouting, crying, or laughing with joy. Your voice changes here it gets louder, softer, higher depending on what you feel This chakra helps you say what’s inside you and to share your feelings with the people around you It helps you speak your truth, to be honest and clear about what you think, what you dream of, what you like, and what you dislike It remindsyouthatyourthoughtsandfeelingsmatter,andtheydeservetobe shared with love and confidence It teaches you how to use kind words, to speak gently, and to always be true to yourself Your voice is a vibration andifyoutouchyourthroatandchant“HAM,”youcanfeelitbuzzingsoftly That’syourtruthmovingthroughyou

HEART CHAKRA (Anahata)

Element: Air

Colour: Green

This is the space inside your chest where your heart quietly beats a soft, glowing centre filled with love, breath, and kindness It moves gently with every inhale and exhale, reminding you that you are alive and that love flows through you This space holds your warmest feelings, the joy of hugging a friend, the comfort of holding hands, and the peace of sitting quietly with someone you love It’s where your care for others lives, where you feel gratitude, and where forgiveness grows like a blooming flower In this space, love isn’t just something you receive it’s something you offer freely, like a smile, a helping hand, or a kind word It teaches you that being gentle is strong, and that feeling deeply is brave Just like the breeze that moves through the trees, love moves through you soft, invisible, and strong. You can come to this space when you need company, or when you want to share joy, and it will open like a window, letting fresh air in. Chant “YAM.”

CROWN CHAKRA (Sahasrara)

Element: Pure Consciousness

Colour: Violet

This is the space at the very top of your head, your crown It’s where your thoughts live, where your dreams begin, and where you are connected to the universe This space is infinite, just like the sky, and filled with quiet and gentle energy It reminds you that you are not separate, but part of everything just like the stars, clouds, planets, and galaxies This space teaches you that you, your family, your friends, your pets, your teachers, everyone is a part of one big beautiful whole. This is where all the other chakras come together, like a crown that brings everything into harmony. Whenyoucloseyoureyesanddream,youareenteringthisspace.It’swhere you can fly with birds, dance with animals, sit with stars, and imagine anything you want It’s a space of peace and wonder, where you feel connectedtoeverythingthatexists Chant“AUM”

THIRD EYE CHAKRA (Ajna)

Element: Light

Colour: Indigo

This is the space between your eyebrows Even though you can’t see this eye with your regular eyes, it helps you see everything more clearly, especially the things you can’t touch or explain. This space is full of light, inner vision, an imagination. It’s where you dream about what you want, where you get new ideas, and where your creativity lives. If you ever feel confused or unsure, this is the space you turn to by closing your two eyes and opening your third. This space holds your intuition your innerguide,thetrustedvoicethatalwaystellsyouthetruth It’slikeafriendinsideof you who helps you see the light when everything else feels dark It teaches you to believe in yourself, to trust your instincts, and to see things not just as they are, but alsoastheycouldbe Chant“OM”

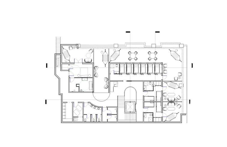
HOME IS A FEELING

This thesis project undertakes a comprehensive investigation into the design and theoretical foundations of an LGBTQ+ Youth Centre with Transitional Housing. It aims to address the pressing need for inclusive, supportive environments that serve at-risk queer youth by merging architectural innovation with the principles of queer theory, community building, and social equity The project is rooted in a multidisciplinary approach, drawing on diverse sources, including queer theory, architectural history, and contemporary design practices It examines the contributions of architects, designers, and activists who have reimagined traditional notions of domesticity, challenging heteronormative spatial patterns and advocating for spaces that prioritize inclusivity, resilience, and belonging

Central to the thesis is the dual emphasis on communal and private spaces Communal areas are envisioned as dynamic, interactive zones that encourage social engagement, collaboration, and the formation of meaningful connections among queer youth. Conversely, private spaces are designed to provide sanctuary, offering moments of solitude and relief for individuals navigating the complexities of their identities and experiences. This balance aims to create an environment where both individuality and community are celebrated

Home is a Feeling

ThiscomprehensivedesignforanLGBTQ+YouthCentrewithTransitionalHousingrepresentstheculminationofmy thesisproject,athoroughinvestigationintocreatinginclusiveandsupportiveenvironmentsforat-riskqueeryouth By merging architectural innovation with the principles of queer theory, community building, and social equity, this project aims to address a critical need Rooted in multidisciplinary research spanning queer theory, architectural history, and contemporary design, it examines precedents that challenge heteronormative spaces to prioritize inclusivity,resilience,andbelonging Thedesignstrategicallybalancesdynamiccommunalareasforsocialengage-

ment with private sanctuaries for individual respite, celebrating both individuality and community across seven distinct floors The welcoming Ground Floor features a lobby, café, lounge/resource centre, multipurpose area, and offices The 2nd floor cultivates community with additional lounges, a servery kitchen, multipurpose rooms, an art studio, and a games/media room The 3rd floor prioritizes mental health with counselling offices, therapy rooms, quiet lounges, a spirituality room, a nurse practitioner office, and wellness rooms The 4th, 5th, and 6th floors provide essential transitional housing with diverse housing suites, communal kitchens, laundry, communal showers, gender-neutral washrooms and lounges Lastly, the 7th floor offers a dedicated quiet zone forsensoryregulationwithaquietlounge,studyarea,library,offices,wellnessrooms,andacafé

1ST / GROUND FLOOR 1ST /

The Chrysalis The Chrysalis

"TheChrysalis"isatransformative,triple-heightspacethatactsasthecentralconnective tissuebetweenthefirst,second,&thirdfloors.Thisdynamicareafostersasenseofgrowth &change,symbolizingthejourneyofthecenter'sresidents

7TH FLOOR - SENSORY REGULATION LEVEL

The7thfloorishometo"TheSanctuary,"aquietzonedesignedto supportthediverseneedsforresidents&visitorsseekingapeaceful atmosphere Thisareaincludesaquietloungeforrelaxation,astudy areaforfocusedwork,&alibraryforlearning&reflection

CustomHousingSuiteMillwork

4TH, 5TH & 6TH FLOOR - TRANSITIONAL HOUSING CUSTOM HOUSING SUITE MILLWORK

“TheNest”,encompassingthetransitionalhousingsuitesonthe4th,5th&6th floors,featurescustommillworkthatisakeyelementtofosteringasenseof home&personalspace Thesetailoredmillworkpiecesaredesignedto empowerresidentstopersonalizetheirsuites&buildafoundationfor independentliving

INTERACTIVE LANDSCAPES

This project focuses on designing interior spaces that support children’s physical therapy and cognitive development. Located in Madrid, Spain at the center of Madrid's museum hub. It aims to create a therapeutic and learning community that integrates art, interactive landscapes, and innovative spatial layouts to promote comfort, creativity, and engagement Drawing from neuroarchitecture, environmental psychology, and historical design philosophies such as Le Corbusier’s use of organic forms, Isamu Noguchi’s sculptural playscapes, and Joan Miró’s playful biomorphism, the design emphasizes movement, play, and multifunctionality

These influences guide the creation of environments that are stimulating yet soothing, imaginative yet functional The project addresses challenges commonly found in healthcare spaces, including limited room for movement, sterile aesthetics, and the need for flexibility Through playful forms, sensory elements, and adaptable layouts, the design fosters interaction, emotional well-being, and a sense of safety for children and their families The ultimate goal is to transform clinical environments into holistic, engaging spaces that support healing, learning, and joy

KHAILA MACALINAO

A Playful Path through the Art of Ceramics

RETHINKING MUSEUMS

This project redesigns the Gardiner Museum to enhance the museum experience of individuals with visual impairments. The new museum will be a sensory-rich space that guides visitors through the ceramic-making process using touch, temperature, and spatial flow.

Each space highlights a different stage, while a flowing river element moves through the building, naturally guiding visitors and introducing a sense of playfulness.

Although designed with accessibility at its core, the experience invites all visitors to engage with ceramics in a more immersive and meaningful way.

Raw Materials

and

Shaping
Molding
Kiln Room
Glazing Room

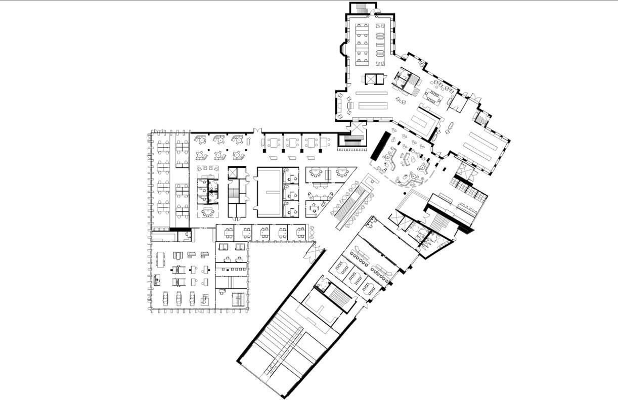
PAUSE & RECHARGE

gning Restful Spaces & Engaging ces for Travellers with Long-Haul Flights

orts are transient spaces where time tches and fatigue accumulates. Longflights and layovers often leave sengers restless, disoriented, and ning for comfort. This project seeks to magine the in-between moments of air el by transforming rest areas into mersive environments that prioritize -being, clarity, and human connection. ntegrating elements such as nap pods, dular seating, ambient lighting, and itive wayfinding, the design creates a se of pause within the motion. It is a ce where travellers are not just waiting recovering, working, and finding nging. This thesis envisions rest as a gnable experience, crafting an airport listens to the body's needs and ponds with empathy and care.

Illustrating the spatial flow through Toronto Pearson International Airport, this sequence highlights key zones such as the departure, arrival, and check-in levels, as well as the airport’s connection to the UP Express and passenger drop-off area. The journey begins at the check-in level, where repacking and waiting zones are situated near Mariposa by Alexander Calder From there, the route continues through security and leads to a productivity zone where the Concentric Bands by Sol LeWitt is featured Travelers then move along 75 meters of travellators toward Concourse E, where an interior courtyard features Tilted Spheres by Richard Serra at its center, serving as both a sculptural landmark and the heart of a designated nap zone These iconic artworks are intentionally positioned throughout the terminal as visual anchors to help orient and ease travelers, turning wayfinding into a more intuitive and visually engaging experience

HANNA PETRIE

Athletic Training, Rehabilitation, & Nutrition Facility

FORCE 4X

This thesis project explores the design of a state-ofthe-art athletic training, rehabilitation, and nutrition facility in Toronto, created specifically for professional athletes recovering from sports-related injuries The aim is to develop a cutting-edge environment that supports comprehensive physical recovery, enhances athletic performance, and fosters long-term health and resilience

The facility is designed as an integrated space where rehabilitation, performance training, and nutrition services work together to support the athlete’s entire recovery journey. Key components included physiotherapy and chiropractic treatment rooms, hydrotherapy and recovery suites, high-performance training areas, and a cafe that provides nutritional support for athletes The spatial layout emphasizes functionality, flow, and adaptability, ensuring that the facility can serve a wide range of sports and stages of recovery.

Natural light, biophilic design elements, and carefully selected materials are used to promote healing and reduce stress, while privacy and accessibility are prioritized to create a comfortable, athlete-focused environment The project aims to not only meet the physical demands of rehabilitation but also create a space that empowers athletes to rebuild strength, restore confidence, and return to peak performance

FORCE 4X

Power Performance & Recovery Redefined

The concept behind Force 4X is inspired by the four elements, each symbolizing a key phase in the recovery journey. Water represents healing and restoration, essential for physical regeneration. Fire embodies energy and transformation, fueling strength and vitality as individuals progress. Earth stands for nourishment and grounding, providing stability and support throughout the process. Finally, Air promotes clarity and relaxation, helping to calm the mind and enhance mental well-being. This holistic approach integrates these elements to support both body and mind. The design of Force 4X guides individuals through each phase of their recovery, creating an environment that mirrors the natural journey from rest and restoration to renewed strength and transformation.

SAMREET KAUR TOOR POLISHED THROUGH PROCESS

Student Design Incubator & Research Center

Polished Through Process responds to the challenges faced by interior design and architecture students, who often work in isolation despite the inherently collaborative nature of their disciplines This project proposes a space that not only supports the design process but also fosters community, access to mentorship, and a sense of belonging within a larger creative ecosystem.

Rooted in research on materiality and sensory engagement, the project looks at touch tool for guiding user in the space and interaction as ways of guiding users through the space Custom elements like door handles and railings act as subtle spatial cues, inviting users to pause, shift gears, or reconnect with their surroundings.

The spatial strategy reflects the different phases of the design process through three material zones: rough (for brainstorming), honed (for development), and polished (for presentation) Transitions between stone, wood, and smooth finishes aren’t just aesthetic they’re meant to support mental shifts and reinforce how space can shape creative flow. At its core, this thesis is about creating a tactile, responsive environment where students can move fluidly between deep work, collaboration, and reflection, feeling supported, seen, and part of something bigger

Rough Zone

The rough zone supports early-stage thinking. Students can brainstorm, explore materials, and experiment freely. An extensive material library anchors the zone, providing opportunities for hands-on discovery and ideation. This zone is lined with materials that take on a “rough” quality, such as unfinished wood and hammered rubber.

Honed Zone

The honed zone is for iteration and development. It includes various collaboration areas, a studio, workshop, pin-up area, and co-working office, which can host interior design startups. This creates a live working environment where students learn from and engage with active professional processes, building a mutually beneficial ecosystem of emerging designers. Materials here take on a honed quality, such as limestone and cork, transitional, grounded, and in-process.

Polished Zone

The polished zone is dedicated to critique and presentation. This zone provides students with various spaces such as a virtual presentation room, private feedback rooms, and a large presentation hall. With smooth, light-reflective finishes, creates an atmosphere of finality and completeness. Unlike the typical end-of-term pin-up, this space reframes critique as an active, iterative part of making—not just a final checkpoint.

Independent Study Area
Presentation Hall
Studio

SALINA TOR

CRAFTING STILLNESS

This thesis project focuses on designing an Urban Wellness Center at Evergreen Brick Works, combining biophilic design strategies with traditional craft techniques like limebased plaster and clay. By exploring the site's history and tactile materiality, the project examines how these elements shape user behaviour and encourage mindful interactions, fostering a deeper connection to both space and well-being.

Grounded in materiality, the research explores how textures, aging surfaces, and hand-crafted materials can contribute to a sensory experience that alters the experience and perception of time.

Urban Wellness Centre

This project reimagines the wellness centre as a sensory journey, rooted in the ancient thermal bathing ritual of progressing through hot, cold, and neutral environments to restore balance in both body and mind. As users transition deeper into the space, the architecture becomes more enveloping—volumes compress and expand in rhythm with breath.

The experience begins at the entrance and waiting area, where honed limestone flooring and lime plaster walls create a cool, grounding atmosphere that signals the shift from the urban exterior to an interior space of slowness and care. Users proceed into the change rooms, symbolically shedding the outside world in preparation for the immersive bathing experience. From there, they enter the main bath zone, where stone tile flooring provides visual continuity and thermal tactility underfoot.

The central bathing hall features three sequential pools—hot, cold, and neutral—anchoring the project in the historical ritual of temperature variation as a path to wellness. Adjacent to these are specialized rooms including a clay bath, a salt therapy room, and a steam room enclosed in rammed earth clay walls. Each environment is defined by a distinct material palette that reinforces its sensory character—earthy, humid, mineral-rich, or cool— encouraging users to move slowly and attentively through the space.

This bathing process stimulates the body’s thermoregulation, promoting relaxation circulation,andrecovery Thehotzoneencouragesmusclerelaxationwhilethecold zonereducesinflammation.Transitioningtotheneutralzonehelpsthebodystabilize offeringacalmingenvironmentforrecovery

AIMEE LOSELE HAVEN

This thesis reimagines the Glass House by Philip Johnson, a landmark of modernist architecture, as the site for Haven, a Black Women’s Empowerment Hub. While the original house emphasized transparency, openness, and formal purity, this projectbuildsuponthoseideastointroduceanewarchitectural narrativerootedinhealing,culturalidentity,andcollectivecare

Haven introduces four distinct yet connected architectural volumes across the site: Healing Circles, Dance, Self-Defense, Yoga, and Herbal Steam. Each structure is designed to support physical, emotional, and spiritual well-being, offering spaces where Black women can reconnect with their bodies, communities, and ancestral traditions through both movement andstillness.

Drawing from African design languages, the project incorporates Ndebele facades, Ibo wall motifs, and carved wooden elements such as doors and stools. These cultural references are embedded in the architectural framework, shaping both form and meaning to reflect heritage, memory, andresilience.

Art plays an essential role in each space, supporting the architectural intent by adding layers of storytelling and symbolism. Selected works by Black women and African artists are thoughtfully integrated into the design of each building, enhancing the experience and reinforcing themes of strength, identity,andancestralconnection

Each of the four buildings Ubuntu Essence, Zola Hall, Jasiri Force, Moto Essence represents a different part of the empowerment journey. Together, they create a space that fostershealing,strength,andculturalpride.

FOURPROGRAM

HAVEN unfoldsthroughfourtransformativespaces: Ubuntu Essencefostersunityand collectivehealing; Zola Hallchannelsjoyand peacethroughdanceand movement; Jasiri Forcebuildsstrength and resiliencethroughself-defense; and MotoEssence offersgrounding and restorationthrough herbalsaunasandquiet reflection.

Cold materialslikeglass,steel, and brickarereplaced withwarm,earthytexturessuchasterracotta,plaster, and reclaimed wood Patterns drawn from diasporic traditions are reinterpreted in spatial details, groundingthearchitectureinheritage

RECEPTION-ADMIN

UBUNTU ESSENCE (The Glass House) NTS
(The Guest House)NTS
MOTO ESSENCE (The Lbrary S udo) NTS
JASIR FORCE (The Scu pture Ga ery)
SITEPLAN
JASIRI FORCE (The Sculpture Gallery)
UBUNTU ESSENCE (The Glass House)
MOTO ESSENCE (The Library Studio)
ZOLAHALL(ThePantngGalery NTS
ZOLA HALL (The Painting Galery)

UBUNTUESSENCE(TheGlassHouse)

Ubuntu Essence is designed as a calm, grounding space that uses a Ndebele painted wall façade and a Zulu hide shield motif, both applied as layered facades to filter sunlight and create privacy along the glass perimeter. The material palette includes fullheight birch wood panels, earthen clay or adobe textures, and reclaimed wood furniture to bring a natural, tactile quality to the space. A Kuba clothpatterned carpet grounds the room with bold, rhythmic geometry, reflecting cultural identity and grounding movement in tradition. The existing glass door has been replaced by a Dongo door from Mali Seating includes the Ashanti folding chair, a traditional African piece that adds cultural continuity. The space features Mickalene Thomas’s painting Le déjeuner sur l’herbe: Les Trois Femmes Noires (2010), reinforcing the themes of rest, visibility, and community among Black women

ZOLAHALL(ThePaintingGallery)

Zola Hall centers around movement and expression. A Sotho mosaic pattern is embedded in the floor to define the central dance zone, bordered by maple wood flooring for warmth and durability. To support dance activities, a beech-style sprung floor adds comfort and flexibility, contrasting softly with the maple tones. The walls are finished in white textured plaster, creating a neutral but tactile backdrop that reflects light and movement. The entrance door has been replaced by a Swahili door. Mounted on the main columns are three Chokwe dance masks from the early 20th century, which connect the space to ancestral performance traditions and ritual dance.

JASIRIFORCE(TheSculptureGallery)

Jasiri Force supports physical empowerment through design rooted in contrast and strength. The selfdefense area uses black cork flooring, offering both durability and shock absorption, while the Sundi woven mat pattern is inlaid to define the training zone and introduce visual texture. The entrance door has been replaced by a Makonde door Around the space, golden oak wood is used for lockers, trim, and builtins to keep the environment warm and balanced. Custom stools designed with Ibo painted wall motifs are built into the lockers, allowing them to slide away when not in use At the heart of the space stands Wangechi Mutu’s Sentinel I (2018), a powerful sculpture evoking vigilance, protection, and the presence of Black women as guardians

MOTO ESSENCE (The Library Studio)

Moto Essence is a warm and restorative space focused on steam, heat, and renewal. The palette is made up of reddish-toned woods and tiles, chosen to evoke the element of fire and support the space’s energy-release purpose. The entrance door has been replaced by a Baule door At the center is a dome structure housing the sauna, where sculptural artwork is embedded into the dome ceiling, softly illuminated to create a sense of focus above the circular seating. This room also includes a mat area for hot Pilates or intense floor-based exercises, allowing the release of tension through movement The combined use of warm materials and integrated lighting helps create an atmosphere of physical and emotional release

ANNA TRAN FLOWING THROUGH MEMORY

Therapeutic Spatial Design

This thesis explores how the cyclical nature of the water cycle can inspire the design of spaces that support memory recollection and the emotional processing of trauma. By examining water both as a physical element and a symbolic force, the study investigates how its continuous movement, through stages such as precipitation, collection, evaporation, and condensation, can inform spatial experiences that promote emotional healing and cognitive recovery. Through design strategies that reflect water’s transformative processes, this project aims to create environments that facilitate reflection, release, and renewal.

Each building is assigned a phase of the water cycle, creating a spatial journey across the University of Victoria campus that mirrors an emotional arc of healing Architectural and material choices are carefully curated to evoke the sensory and symbolic qualities of each water state, using light, sound, form, and texture to guide users through stages of emotional engagement.

HOWWATERHELPSUSHEAL

ProjectLocation:UniversityOfVictoria,B

ARIANA RAMCHARAN UNSUNG LEGACIES

Indo-Caribbean Cultural Centre

Inspired by my great-grandmother, who was born on a ship transporting indentured labourers from India to Guyana, this project honours the often-overlooked history of IndoCaribbean people. Her journey—like many others—represents a legacy of resilience, sacrifice, and cultural transformation that deserves recognition. The Indo-Caribbean Cultural Centre is a space for storytelling, cultural exchange, and celebration. Drawing from Chutney and Soca music, the design uses rhythm, movement, and layered sounds to shape material and spatial choices.

While vibrant colours, immersive textures, and music-inspired forms set the stage, it is the people and art within the space that bring it to life. The centre celebrates a rich heritage while inviting both the community and broader public to connect. Blending tradition with innovation, it ensures that these unsung legacies live on through future generations striving to build a better life away from their ancestral home.

This project’s progress work is the starting point and cultural context for the final product. From a curated playlist to many preliminary diagrams, these elements showcase parts of the culture that may be unknown to most. Below is the Background Diagram, which depicts many culturally significant elements that visually evoke the spirit of the culture. From cricket, to dominoes, to carnival, it was my goal to celebrate the vibrancy of a culture which so little is known. The rhythm and connectivity from the diagrams were translated into the final design.

MUSIC OF THE INDO-CARIBBEAN CULTURAL CENTRE

1 COURTYARD ENTRANCES

2.CAFE

3 KITCHEN

4.DELIVERY + PANTRY

5.COOKING CLASSROOM

6.LIBRARY

7.LOUNGE

8 PERFORMANCE/FLEXIBLE AREA

9 GALLERY SPACE

10.RECORDING STUDIO

11.DJ STUDIO

12 STORAGE

13.CHANGEROOMS

14 DANCE STUDIO

15.JANOTIR’S ROOM

16.UNIVERSAL W/C

17.MEN'SAND WOMENS W/C

18.PATIO

ROSALIA DI NOTO MOKE

Dispensary Cafe Lounge

My thesis explores how design can challenge the stigma around cannabis by reimagining the dispensary as a space for comfort, community, and connection. set in Toronto’s Yorkville neighbourhood, the project combines a retail dispensary with a café/lounge, using sensory materials, custom millwork, and moiré-inspired elements to create an experience that feels elevated yet welcoming.

My focus is on designing spaces that are expressive and intentional, using materiality and atmosphere to tell a story. outside of design, I enjoy spending time with friends and family, listening to music, and finding inspiration through art, culture, and everyday moments.

Lighting Design Award Recipien t Award

moke

projectoverview

this project reimagines the cannabis dispensary and café/lounge experience in yorkville, toronto, with the goal of breaking stigma and challenging traditional perceptions by embracing yorkville’s progressive history, the design fosters openness, community, and social engagement around cannabis consumption.

key elements including a custom privacy wall, millwork, and fabric interventions, reshape the user experience. a second-floor lounge connects to a rooftop patio, creating a sensory-driven environment that extends beyond retail through material experimentation and functional planning, this thesis proposes a new standard for cannabis spaces: integrated, welcoming, and socially accepted

conceptwork

the moiré pattern was used for its layered, shifting quality, reflecting the radiating sensation often felt in the body when high. this visual language informed both atmosphere and detailing across the space

custom millwork elements take inspiration from the pattern’s geometry using its distortions and overlaps to create forms that feel both structured and fluid

sitecontext

yorkville’s unique history played a key role in site selection In the 1960s, it was known as a creative neighborhood filled with young artists, musicians, and activists. it has since evolved into a center for luxury retail and upscale living

this contrast mirrors the evolution of cannabis itself the design honors yorkville’s expressive past while embracing its polished present, bridging the gap between underground culture and refined experience

CLOVER DOAN KINETIC INTERIOR

University Residence

The project experiments with students’ coliving environments through the concept of a board game that aims to convey the narrative of a harmonious co-living situation achievable through a series of verbal and physical tactics, mimicking the day-to-day lived experience in university residences.

Each character in the game possesses a set of individual traits that, when collided with one another, would generate various possibilities of spatial manipulation, providing players with the creative agency to adapt the spaces according to their needs. The 4 characters feature: Provocateur, Imaginer, Connector, and Autonomist. Their distinct mindsets translate into super furniture structures that form various micro-societies throughout the residence for students to negotiate, compromise or disrupt one another.

Day Centre for Individuals with Parkinson's

THE POWER OF WATER

A day centre for Parkinson’s patients in the Azores, inspired by my aunt, who lives with Parkinson’s. I’ve created a spa-like environment that incorporates pools, optimized circulation, and specialized lighting to enhance wellbeing and independence.

The design embraces the natural beauty of the Azores and draws from the Ronchamp Chapel, particularly its use of daylight penetration through sculptural voids, which influenced my own lighting strategies. I also integrated rainwater collection and water reusability systems to support sustainability. The result is a calming, engaging, and accessible space that supports both the physical and emotional needs of patients.

1 Ground Level

The concept draws inspiration from spa architecture, emphasizing water, natural light, and organic materials. The center is organized around a series of pools, each designed to serve distinct therapeutic and social purposes. Some pools support physical therapy and movement-based treatments, while othersfoster group interaction and relaxation. Water becomes both a sensory element and a healing tool.

Sustainability played a central role in this design. A grey-water system was integrated to recycle water from a central reservoir, complemented by a rainwater collection roof. Inside, a water wall contributes to passive cooling while enhancing the interior environment through gentle motion and sound elements that can offer calming sensory stimulation for individuals with Parkinson’s.

Materials were chosen to reflect the Azores and create a grounding atmosphere. Volcanic rock highlights the island’s natural beauty, while Portuguese tiles and wood add warmth and familiarity.

KAITLIN O’NEILL

Educational Facility For Neurodiverse Children

DISRUPTING THE GRID

This thesis examines the design of an educational facility specifically tailored to the needs of neurodivergent children, emphasizing the creation of an inclusive, immersive, and multi-sensory environment. Moving away from conventional educational layouts, the design prioritizes sensory engagement over traditional spatial organization. Key architectural components, including walls, ceilings, and skylights, were explored to see how they shape sensory perception through texture (touch), colour and light (sight), and acoustics (hearing). The project seeks to illustrate how interior design can accommodate diverse sensory needs and enrich the educational experience for neurodivergent users.

Through research and design experimentation, this project is a disruption to the grid based on its design approach and site location.

JAY SCHOBER THE KINDRED HOUSE

Women’s Homeless Centre

This thesis investigates how interior design can foster dignity, autonomy, and belonging for women experiencing homelessness Located within Toronto’s Artscape Wychwood Barns, The Kindred House reimagines the conventional shelter as a welcoming, community-integrated space that invites interaction rather than isolation

Unlike traditional homeless centres that are often separated from the public, The Kindred House offers shared access to support systems and communal areas, encouraging engagement across diverse groups. By positioning care within a civic setting, the project challenges the stigma surrounding homelessness and promotes social connection as a form of support.

Through intentional spatial planning, material expression, and sensory detail, the design creates environments that prioritize comfort, agency, and emotional safety. The centre provides more than basic resources it offers opportunities for healing, empowerment, and meaningful encounters between individuals who might not otherwise cross paths.

Ultimately, The Kindred House demonstrates that interior design can serve as a tool for social transformation, reshaping how we perceive and respond to homelessness through spaces that are inclusive, empathetic, and deeply human

BARN 1: RESIDENCE KITCHEN, DINING ROOM &
BARN 3: COMMUNITY KITCHEN

THE KIND HOUS

This thesis explores how interior design can act as a catalyst for social change by creating environments that foster dignity, connection, and inclusion. Set within Toronto’s Artscape Wychwood Barns a former streetcar repair facility The Kindred House transforms an industrial space into a women’s homeless centre that invites the broader public into shared moments of care and community

The project explores how tactile interactions and shared sensory experiences, can quietly arm one’s presence and worth. Through open access to certain programs and communal areas, The Kindred House encourages interaction between different communities, working to dismantle stigma and reshape how homelessness is understood.

Here, the interior becomes an agent of healing supporting recovery and rebuilding social ties through thoughtful, human-centered design

FRONT ENTERANCE
BARNYARD: KINDRED MARKET
BARN 1 : RESIDENCE BEDROOM CONFIGUREATION #1
BARN 1 : QUICKCARE HUB - CLINIC
BARN 1 : QUICKCARE HUB - COMMUNAL LAUNDRY ROOM
BARNYARD: KINDRED CAFE

LANIE RADFORD THE PLAYSCAPE

Public Library & Playground

LIBARAY

This thesis project explores the relationship between age and ‘one's perception of space’, developing the design of a playscape library. Through the use of colour, scale, and activity, the design aims to deeply explore how individuals of different ages experience and interact with their surroundings. This design merges contrasting spaces of a quiet library and a loud children’s playground creating the ability to foster the user’s needs and wants. Inspired by Isamu Noguchi’s theories, the design integrates unique playscape structures SLOPES, STAIRS, SLIDES, and STAGES to foster a sense of wonder and curiosity. This playscape library is located in the current Fort York Visitors Centre, adjacent to Toronto’s Bentway; established underneath the Frederick G. Gardiner Expressway.

slopes stairs slides stages

Site-Specific Interventions within an Urban Landscape

EMILY RAMSUCHIT SPATIAL DIALOGUES

This thesis investigates how spatial interventions embedded within the layered terrain of the Leslie Spit in Toronto can reshape how we perceive, navigate, and relate to urban ecologies Rooted in the research question, “How can an itinerary of unexpected moments revealed through landscape, materiality, and movement reshape users’ perceptions of urban ecologies and their connection to place?”, the project positions design as a medium for prompting attention, curiosity, and care

The Leslie Spit, an artificial peninsula formed from decades of construction rubble, is a site of contradiction: simultaneously discarded and vibrant, accidental and teeming with life. Responding to its improvised and evolving character, this thesis proposes three architectural interventions that choreograph a spatial journey through its ecological, material, and temporal layers: a bird observatory, a bridge with a pier, and a subterranean museum. Each of these spaces invites different types of movement ascending, pausing, turning, descending and highlights different ecologies: sky, water, and earth. Materials shift from concrete to corten steel, wood, and glass, creating a sensory itinerary shaped by light, touch, and sound These interventions are not meant to impose order but to frame moments of discovery, where the user is encouraged to slow down, look closely, and become more connected to the land. Spatial Dialogues reimagines interior design beyond walls, proposing interiors as temporal, open-ended, and ecologically attuned.

SITEEVOLUTION

SITUATIONPLAN
SITEPLAN

SPATIALDIALOGUES:

BETWEEN

THE SEEN AND THE UNSEEN

ProjectLocation:LeslieSpit,Toronto,CA

subterranean museum

The Subterranean Museum is embedded within the land, revealing the often-overlooked histories and ecologies of the Leslie Spit. Entered through a subtle cut in the ground, the museum guides visitors downward into a series of immersive, layered environments. Stratified earth walls and exposed soil formations become living exhibits, showcasing the geological story of the site Other rooms highlight animal life particularly burrowing species through tactile, low-set spaces that mirror their underground habitats Exhibits explore the endurance of ancient species and speculate on distant futures, blurring the line between fossil and imagination. Salvaged materials from demolished buildings scattered across the Spit offer another form of layered memory.

2.

bridge + pier

A series of jogs in the bridge create pauses and slight changes in direction, slowing the user and encouraging them to notice their surroundings. The pier addition extends off the main path, beginning as an open platform, transitioning through a semi-enclosed passage, and culminating in a lookout deck. This spatial shift frames a layered experience open to enclosed to open again intensifying the user's awareness of both the horizon and the water below. A glass floor section invites visitors to look directly down, drawing attention to the fish and aquatic life.

bird observatory

The Bird Observatory is a vertical structure that frames views of the Spit through a series of elevated landings, each oriented to guide the viewer’s attention in a new direction. Materials shift from heavy concrete at the base to corten steel, wood, and translucent polycarbonate above, reflecting a transition from solidness to translucency. Using materials native to the site, this tower is intended to feel as if it emerged from the land, echoing the site's wild, layered, and improvisational character. The vertical ascent is inspired by the movement of birds layered, spontaneous, and responsive to changing conditions.

fig 1.
fig
fig 3.

JAKE CORNISH NEWMARKET

Art Gallery/Residence

ARTIST TRIO

The Newmarket Artist Trio (NAT) aims to bring visual and installation artists together in a space that allows affordable living, studio space, and gallery to display/sell their work. The Built environment is penetrated by surrounding gardens to cut through the “white cube gallery” ultimately harmonizing art and garden display. The natural light and nature are curated to amplify the spatial experience. The gallery is transformed into an artwork in itself, framing the work produced within its studios. A culmination forms as three artists and spatial qualities together, cut through the “white cube gallery”.

GRACE KENNEY

Women’s Only Hostel

OUR SPACE, MY SPACE, SAFE SPACE

This thesis explores how hospitality spaces can be reimagined through the lens of safety, inclusivity, and universal accessibility, with a focus on solo female travellers. Using user-centred design approaches, this design and research propose a hospitality model that combines practical safety features with emotionally supportive environments.

Design strategies such as secure access systems, lockable sleeping pods, and shared spaces that reflect and respect local culture aim to create spaces that feel both safe and empowering. By incorporating universal design principles and an intersectional framework, the project highlights how hospitality spaces can address critical social issues while remaining adaptable across diverse socio-cultural contexts.

The goal is to encourage a shift in hospitality design that supports independent travel, fosters meaningful cultural connections, and responds to the specific needs of marginalized users In doing so, this thesis offers a framework for creating inclusive environments that promote both individual well-being and broader social change.

OURSAFE,MYSAFE, SAFESPACE

DesigningInclusiveHospitality:CreatingaSafeand AccessibleWomen's-OnlyHostelforSoloTravelers

RoomLegend:

FirstFloor:

1 PublicCourtyard

2 PublicCafe

3 Reception

4.LoungeSpace

5 PhotoWall

CalledeGénova,28 Madrid,Spain

6.PostcardStation

7 Stairway/Elevator

8.SecureLuggageStorage

9 Bar

10 CommunalKitchen

11 EatingSpace

12 GettingReady/KaraokeRoom

13.NailSalon 14 Gym

15.Washroom

16 UniversalAccessibleWashroom

17.StaffLounge/Kitchen

18 StaffWorkspace

19 Storage

20 StaffLaundryRoom

SecondFloor:

21.GroupRoom1

22.GroupRoom2

23.GroupRoomTerrace1

24.GroupRoomTerrace2

25.CapsuleRoom

26.CapsuleRoomTerrace

27.ReadingNook/Library

28.HostelTerrace

29.WheelchairAccessibleRoom

30.WheelchairRoomTerrace

31.LaundryRoom

32.Wellness/PrayerRoom

33.AblutionRoom

34.Washrooms

35.ShowerRoom

SECTIONVIEW-CAPSULESANDLOUNGE

Thisthesisfocusesonthedesignofawomen’s-onlyhostel inMadrid,Spain,usinguniversaldesignprinciplesto enhancesafety,accessibility,andinclusivityforsolo femaletravelers.Theprojectintegratesfeministresearch, travellogistics,anduser-centereddesigntoaddressboth explicitandimplicitbarrierstosafetyandwell-being. Throughspatialplanning,architecturalelements,and community-drivendesignstrategies,thehostelwillfoster awelcomingenvironmentthatprioritizescultural immersionandasenseofempowerment.Thegoalisto createahospitalityspacethatredefinessafetyand inclusivityindiversesocio-culturalcontexts,settinganew standardforfemale-focusedtravelaccommodations.

RECEPTION

ROOM TO GROW

This thesis process began by identifying a gap in how traditional classrooms support neurodivergent children, particularly those with ADHD and sensory processing challenges

I grounded my exploration in inclusive design principles and child psychology, then turned to the Bauhaus education system as a key conceptual framework. Its focus on material exploration, hands-on learning, and interdisciplinary creativity helped shape the way I approached spatial programming for different developmental stages

Using John Hejduk’s Wall House as a metaphor for the movement of time, I reimagined the structure as a vertical learning journey Each floor represents a specific age group, with spatial strategies tailored to their cognitive and physical growth. My process included constant testing experimenting with floor plans, zoning strategies, acoustic solutions, and material palettes. Feedback from educators and critiques helped refine the environments to better support focus, freedom, and self-regulation

Through ongoing iterations, I aligned each design decision with the Ontario Building Code (OBC) for accessibility while maintaining a playful, sensory-rich atmosphere. The final outcome is a dynamic, multilevel learning space that bridges educational theory, inclusive design, and architectural storytelling.

TOPFLOOR

SITUATIONPL
SITEPLAN

LIVING ARTIFACTS

nce read that everything in our lives bears ness to what we are, our memories, that ch we do not remember, a glance, our oks, an object, all these meaningful ments of our lives*. Our lives happen hin an environment, through our eraction with it. Meanings are not simply a guistic view, because buildings are not tences, and meaning is not always ked through words. As part of my design cess, this sentiment became a network of ngs and personal moments in the lives of grandparents. The focus was on derstanding how two different psychic lities, one with dementia and one without, uld exist and navigate a space using the ngs” as guides that push boundaries and oduce a subconscious connection. This tage allows my grandparents a familiar ce created for the implementation of o

edrich Nietzsche Beyond Good and Evil

AURORA MARTINUCCI PEDIATRIC

Pediatric Type 1 Diabetes Clinic

T1D CLINIC

My thesis explores the design of a pediatric clinic for children with Type 1 diabetes, located in Toronto. Rooted in personal experience and a deep understanding of the challenges young patients face, the project focuses on creating a healing, welcoming space that blends medical functionality with emotional comfort. Inspired by the molecular structure of glucose, the architectural form uses biophilic design principles such as natural light, indoor greenery, and fluid circulation to foster a sense of calm and connection. The layout encourages both social interaction and privacy, with features like a central courtyard and a direct elevator path for discreet access to clinical areas. The clinic aims to empower young patients by turning healthcare into a more inclusive, supportive, and visually engaging experience.

This drawing shows the existing three-story parking garage with two new clinic floors above. It highlights the main vertical circulation core, which connects all levels and anchors the spatial organization of the building.

Forth Floor
Fifth Floor

MELLISA SGRO

Culinary Experience Centre

THE SOCIAL SUPPER

The Social Supper is a culinary experience centre that is designed to use food as a universal language to encourage learning, community, and connection. Fundamentally, this concept investigates how welldesigned spaces can go beyond that of their physical limits and evolve to become amplifiers of social relationships and exchange between cultures. The experience is founded in the idea that food, in all its various forms, has the ability to overcome divides, share stories, and bring people together.

THERESTAURANT

THELEARNINGZONE

The culinary experience begins in the vibrant, welcoming market. A sensory portal where the routine act of shopping becomes a social event, filled with the colors, aromas, and textures of local produce and artisanal goods This energy then flows into the restaurant, where dining goes beyond a simple means of nourishment, it becomes a platform for traditions, storytelling, and shared memories. Curiosity and surprise are introduced within the hidden speakeasy that evokes nostalgia and prompts spontaneous connections. The last stop is the learning zone where food literacy, creativity, and teamwork are emphasized, transforming visitors from passive consumers into active creators.

THIRDFLOORPLAN

CHLOE HOANG IMAGINARIUM

Cultivating Creativity & Wellness in Children

Imaginarium is a thesis project that rethinks how interior design can support the emotional and cognitive development of children aged six to twelve. Traditional learning environments often prioritize structure and academic performance but can overlook the sensory and emotional needs of children, especially those who are neurodivergent or anxious Imaginarium responds by creating a joyful, flexible space where children can move, rest, and explore freely, fostering curiosity, confidence, andconnection

The project transforms a two-storey building in Toronto into a creative learning and wellness center. Inspired by play-based learning models like Reggio Emilia and Montessori,eachfloorservesauniquefunction:theground level is active and community-driven, with a central staircase-slide and indoor play zone; the second floor focuses on creativity and calm, featuring art studios, a mindfulness room, and sensory pods Circulation flows smoothly with curved forms, natural light, and shifting ceilingheights,supportingintuitivemovementthroughout

Material choices emphasize warmth, comfort, and durability using FSC-certified woods, low-VOC finishes, and soft colour palettes. Play structures are integrated into the architecture itself, blurring the lines between function and imagination Imaginarium challenges the idea that learning must be rigid or contained; instead, it proposes a spacebuiltoncare,creativity,andthefreedomtobe

FIRST FLOOR PLAN

LIDE & SPRING

he millwork invites kids into a ynamic moment of play, combining uid motion with playful resistance s sculptural form sparks curiosity, ncouraging spontaneous interaction nd joyful discovery within the space

CIRCULATION DIAGRAM

STEP & SEEK

The millwork transforms every into an adventure combining stairs, seating, storage, and a hidden pathway It encourages exploration and discovery while seamlessly supporting movement and multifunctional use.

READ & REST

The millwork bl shelving, offeri pause, browse Designed for multipurpose s curiosity, comfo

Production Design & Narrative Development

CALI LIRETTE AUTHENTIC EXPOSURE

Authentic Exposure demonstrates the impact of Production Design on narrative development by exploring unique designs of settings from The Truman Show. The set designs are Cali Lirette’s distinctive interpretations based on the screenplay and were created without watching the film.

The extensive nature of interior design as a discipline ensures that its range of intriguing elements is far from limited Interior design has created a basis for spatial design in the modern world, but its roots come from other disciplines, one of which is set design. Set design is an important source of creativity and is intriguing in its ability to transform, create and define space based on a variety of elements. Narratives, characters, settings and more can be defined by space and set Production designers create sets but also coordinate the entirety of a production's visual aspects They not only decide what will be on set but also how the set will feel, and most importantly, how it will tell a story or express a character.

The Truman Show provided an interesting narrative framework for the development of creative set designs Using key themes, symbols and elements from the screenplay, Cali created five unique interpretations of settings crucial to the story

ALYSSA BURGESS

Library

THE MULTILINGUAL LIBRARY

This thesis explores the role of interior design in creating inclusive, multilingual library spaces that cater to the needs of diverse, multicultural communities. As Canada continues to welcome an increasing number of immigrants, many individuals face language barriers and societal pressures that can hinder their sense of belonging and independence Libraries, as cultural and educational hubs, have the potential to bridge these gaps through thoughtful design strategies that prioritize accessibility and inclusivity Drawing inspiration from graphic designer Massimo Vignelli, the project integrates his principles of clarity and functionality into spatial wayfinding systems that use nonlinguistic icons and symbols. These systems guide users seamlessly through the library, removing language as a barrier. The design also incorporates culturally significant elements within millwork, materials, and furniture, creating a welcoming environment reflective of diverse traditions. By analyzing historical and contemporary precedents, including Vignelli’s Manhattan subway design and innovative pictogram systems, the thesis positions libraries as spaces where community narratives and individual identities are celebrated Ultimately, this project underscores the importance of interior design in fostering social integration and equitable access to resources

NAVIGATING THE CONNECTIO

This library is designed to be inclusive for all users. Every book will have QR code located on the back or inside of the front cover of the book. Users who do not understand the native language of this book are able to scan the QR code and gain access to the PDF of the book translated into the readers' primary language.

The wayfinding map uses minimal words to allow everyone to interoperate the spaces on their by means of the colour-coded "subway lines" that directly correlate to the wayfinding throughout the library.

What interior design solutions can be used to create engaging, multilingual library spaces that cater to diverse multicultural communities?

This thesis will specifically explore the integration of wayfinding systems within library interiors as a tool for fostering inclusivity and engagement. By designing non-lingual communication techniques for wayfinding solutions, this research aims to address navigation challenges while enhancing the user experienceindiversecommunitysettings.

Specialized Educational Center for Woodworking

GABRIELLE DAOUD CEDAR ECHOES

Set within the forested landscape of the McMichael Canadian Art Collection in Kleinburg, Ontario, this thesis proposes a Specialized Educational Center for Woodworking that explores the intersection of craft, cultural heritage, and sustainable design The McMichael site, renowned for its connection to Canadian identity, Indigenous art, and natural immersion, offers a meaningful setting for a project rooted in material storytelling. Envisioned as both a gallery and a hands-on woodworking center, the proposal aims to showcase works of craft while fostering traditional skills and ecological awareness.

Central to the project is cedar wood, revered in both Lebanese and Northwest Coast Indigenous traditions. In Lebanon, cedar symbolizes strength, endurance, and legacy, echoed in the poetry of Gibran Khalil Gibran and the sculptural works of Rudy Rahme. For Indigenous communities, cedar is sacred, used in carving, ceremony, and architecture. Despite their geographic distance, these cultures share a spiritual reverence for the tree This project asks: How can the design of a Specialized Educational Center for Woodworking honor and incorporate the cultural heritage of cedar wood in both Lebanese and Indigenous practices, while promoting hands-on learning, ecological responsibility, and public engagement through exhibition?

CEDAR ECHOES

ACulturalAssemblyofSocial andMaterialPractice

segmented joints

joinery diagram

MAIN FLOOR PLAN

A B

Theideaof“joints”stemsfromthebuilding’s segmented form,whichnaturallyshapeddistinct spatial experiences eachrepresentingasymbolicstagein the woodworking journey. Inspired by traditional joinery, the eight joints reflect connections between culture, craft, and learning: The Beginning of the Journey, Carving and Craftsmanship, Learning and Education, Sustainability and Preservation, Spiritual and Ceremonial Significance, Cultural Exchange, and Legacy and Future Through Craftsmanship Three joints are emphasized: the first marks the maker’s initial bond with the material; the fourth highlightssustainabilityandreverenceforcedar;andthefinaljointsfocusonpassingdownculturalknowledgethroughenduringcraftsmanship

wood preparation
indigenous workshop
Lebanese workshop

SHERYL MATHEW ENERAVA

Museum of Energy Production

This thesis investigates how immersive interior design can transform museum environments into dynamic platforms for experiential learning. Set within the iconic Ontario Place, ENERAVA: The Museum of Energy Production reimagines the traditional museum through a multi-sensory, interactive, and narrative-driven approach. Focusing on five key energy sources Coal, Wind, Solar, Hydro, and Nuclear each pod within the museum is designed to function as an immersive learning zone. Through the use of augmented and virtual reality (AR/VR), sensory stimuli, and spatial storytelling, the museum seeks to foster public engagement and deepen understanding of the environmental and societal impacts of energy production.

The project also explores how human interaction, design psychology, and technological integration can be harnessed to break down complex scientific concepts into accessible, emotional, and memorable experiences By emphasizing storytelling, spatial transitions, and interactive installations, the museum not only educates but also encourages reflection on energy consumption and sustainability Ultimately, this thesis demonstrates that interior design can go beyond aesthetics to become a powerful tool for educational transformation and environmental awareness, positioning museums as critical cultural spaces for shaping public discourse around global issues.

nstallation l form not ncourages crafts that make the

The central installation in the Solar Pod takes inspiration from Olafur Eliasson’s The Weather Project A large glowing sphere sits at the heart of thespace,symbolizingthesun astheultimatesourceofenergy Aroundthis sphere is “life” plants, organic forms, and subtle environmental elements representingtheinterconnectednessofall living beingsthatdependonthe sun for survival Drawing from Georges Bataille’s philosophy, the installation reflects the idea that the sun produces an immense amount of energy so much that human civilization cannot possibly consume it all It acts as a reminder of both the abundance and underutilization of solar energy, despite its essential role in sustaining life. The surrounding environment invites visitors to interact with both digital and living elements, reinforcing thesharedreliancebetweenhumansandnature

The Coal Pod offers an interactive experience that begins in a bright space with individual screens explaining how coal is formed Visitors then enter a tunnel designed to replicate the atmosphere of an actual coal mine, with timelines highlighting the history of coal use and its impact on energy production

The Hydro Power Pod design creates an immersive underwater experience as visitors enter The space is divided by a partition leading into the main area, which mimicsthefunction ofa dam, with cascading water and turbine movement capturing energyNarrow pools ofwater along the perimeter of the pod visually connect visitors to the water below, reinforcing the relationship between the water sourceandtheenergyit provides.

The Nuclear Energy Pod design mirrors the process of nuclear fission Upon entering, visitors explore individual pods that explain the steps of nuclear fission and energy production. They then enter the coolant simulant room, where they learn how the heat from fission is safely cooled and converted into energy through simple visuals and movements.

BEYOND BORDERS

Beyond Borders explores the journey of immigrants as they cross both physical and societal boundaries, emphasizing how interior design can foster cultural connection and belonging. This thesis envisions an art center for immigrants in Toronto, where traditional textiles, ceramics, and painting become tools for self-discovery and cultural exchange.

The center seeks to empower immigrants by providing a platform for creative expression, generating income and building meaningful connections. By reimagining the Power Plant Art Gallery, this project invites the public to look beyond conventional understandings of community and encourages a more empathetic understanding of the experiences of immigrants in their newfound societies.

need for community connection and mutual respect In every corner o

EMMA PEARSON THE BLUE PATH

Immersive Fan Experience

This thesis investigates the potential for innovation within Toronto’s PATH system a high-traffic underground pedestrian network. Despite the efficiency of the PATH in connecting users to a multitude of spaces throughout the city, the system has many missed opportunities in the way of enhancing user experience and engagement. The intent of this project is to explore how a segment of the PATH, specifically the connection between Union Station and Scotiabank Arena, can be transformed into a purposeful and immersive environment for commuting sports fans, with an emphasis on supporters of the Toronto Maple Leafs. Through the use of ramped movement, multisensory elements, and culinary experiences, the design becomes an engaging and immersive environment for all users. By reimagining a key stretch of the PATH, this project demonstrates the potential of design in shaping not only how people move through the city, but how they feel within it.

REIMAGINING TORONTO’S PATH FOR MOVEMENT, EXPERIENCE, AND DINING

ARCHES

Triumphal Arches originated from Rome as a way of commemorating victories This project uses archways to facilitate the procession of fans commuting to and from Toronto sports games. With one monumental arch preexisting in the Grand Hall, two more are designed to mark the entrance andexitofthePATH.

THE GAME

Thoroughresearching,viewingandlearningaboutthegameof hockey and its elements, assisted in incorporating components of the game within the design, especially through circulation and way-finding In the ceiling design of the PATH a study of puck tracking and the movement of the puck across the ice is replicated for wayfinding and creates a sense of movement Secondly,thepositionsandorganizationofhockey players on the ice is used to guide circulation and seating plans in the restaurant Primarily focusing on visuals, acoustics, and touch, the project situates diverse sensorial qualities along the PATH. As seen in the final design, these elements come through in the use of lighting, wall textures, and tactile paving Acoustic panels and speakers are used to suppress the sound coming from union station, creating a senseoftransitionbetweenareas

HUMAN SENSES

Early in the conceptual phase of designing the ramping path was the diagram of how the senses would be communicated and represented through the PATH. Primarily focusing on visuals, acoustics, and touch As seen in the final design, these elements come through in the use of lighting, raised design elements in the wall, and tactile paving While not able to be communicated visually, the use of acoustic panels and speakers is used to suppress the sound coming from Union Stationtocreateasenseoftransitionbetweenareas.

LAUREN CAMERON ECHO HEALING

Music Therapy Clinic

This thesis presents the role of music therapy in ensuring cognitive and emotional recovery among individuals suffering from traumatic brain injury (TBI) and post-traumatic stress disorder (PTSD) It supports various rehabilitation approaches, evaluates their health impacts, and identifies effective implementation practices. It reveals that interior design is an essential part that helps to improve therapeutic conditions. Thoughtful integration of acoustics, lighting, spatial planning, and materials can greatly enhance the therapeutic experience and outcomes by creating spaces that are safe, restorative, and aligned with individual needs Music therapy has emerged as a clinical, evidence-based practice that is promising for individuals with TBI and PTSD. Understanding the complexity of music in terms of its ability to involve most of the brain gives the ideal platform for rehabilitation because the emotional process is stimulated The treatment aims to improve their cognitive skills, regulate their emotions, and enhance their overall well-being Integrating music therapy into interior design further enhances its effectiveness by creating physical environments that support therapeutic goals. Carefully designed spaces can have an impact on mood, behaviour, and the overall experience of therapy. Well-defined interior spaces can enhance positive outcomes by creating supportive environments

Music Therapy

projectoverview

Howmyresearchquestionexpandstothedisciplineof interiordesignisbyenhancingtheboundariesof therapeuticspacedesignandprovidingadeeper understandingandfocusontheacousticandsensory impacts.Traditionalinteriordesignersmaybemore focusedonthefunctionality,spatiallayout,and aestheticsofinteriors;myworkwillshowcasethe integrationofpsychology-relateddesign,humanbaseddesign,andhealthcaredesigninorderto explorespecificelements

Theseelementsmaybesound-absorbingmaterials, lighting,andsensory-friendlymaterials/furniture;allof thesewillrelatetotheemotionalhealingofan individual Understandinghowtoproperlyincorporate thesedesignideationswillenhancetherapeutic outcomes,specificallyforthosewithsensoryconcerns Myresearchwillhelptransformafunctional

University of Victoria, 3800 Finnerty Rd, Victoria, BC

NAOMI CHU AQUAROOTS

Interior Agriculture

Located at 21 Ossington, AquaRoots focuses on providing an escape for the community to step into a place of agriculture and nature at large. The building provides a place for the community to come together in a safe, natural space. AquaRoots consists of many different types of agricultural techniques: aquaponics, hydroponics, vertical farms, raised beds, farm and produce.

AquaRoots will also sell or provide produce for the community with a pay-what-you-can honour system to help the people in need in the community. AquaRoots is a greenhouse space that's unique and provides opportunities for people to learn about food. Interior Agriculture allows for the community to be sustainable, providing food and education to teach the community about both old and new architectural practices while enhancing social relations

FirstFloor-Scale:1/8"=1'-0" ENTRANCE

LongitudinalSection-Scale:1/8"=1'-0"

SecondFloor-Scale:1/8"=1'-0"

TransverseSection-Scale:1/8"=1'-0"

DININGAREA
LEDGROWLGHTAREA
FSHPOND
KITCHEN
WASHAREA
MARKETAREA MECH
OPENTOBELOW
OPENTOBELOW
HYDROPONICS

Kitchen/ Dining Area

Tree Garden

EDEN KOOGER THE MATERNAL ENVIRONMENT

Pregnancy Care Center

This thesis explores the design and implementation of a Pregnancy Care Center located in Toronto's Cabbagetown neighbourhood. The project prioritizes community support, accessibility, and integration of technological systems to create an inclusive and holistic environment for expectant mothers. The center has a focus on navigating crisis pregnancy

By drawing inspiration from historical care center precedents, this proposal emphasizes the importance of space planning, privacy, as well as ensuring that there are comfortable options for a diverse group of users through adaptable and multifunctional layouts

A research-informed strategy and contextual analysis address the cultural, socio-economic, and environmental needs of the Pregnancy Care Center, leading to a particular focus on marginalized communities The use of natural materials, calming colour palettes, and flexible furniture enhances a therapeutic atmosphere, fostering community connections in a historical setting. The proposed Center reflects Toronto's multicultural fabric and addresses significant issues like healthcare accessibility and social isolation amongst women experiencing unexpected pregnancies.

MATERNALENVIRONMENT

GROUNDFLOOR

level1:

Thegroundfloorincludestherec waitingarea,consultationrooms, spaces,andamultipurposeworks room.

level2:

Thesecondfloorfeaturesprivate counselingrooms,staffoffices,a andresourceareasformothers.B levelsaredesignedtooffercomfo support,andprivacyforwomeni

SECONDFLOOR

eption, therapy shop lounge, Both ort, nneed

OUR THESIS

GRAPHICS & MEDIA

Abby DeJong
Rosalia Di Noto
Emma Pearson
Anna Tran Denzelle Carino

SHOW TEAMS

Emily Ramsuchit
Orchid Campbell
Samreet Kaur Toor
Lanie Radford
Sheryl Mathew
Carolina Marcin Blanco

OUR THESIS

INSTALLATION

Cali Lirette
Vishwa Panchal Kaitlin O’Neill
Clover Doan
Jake Cornish

SHOW TEAMS

AFTER PARTY

Salina Tor
Ariana Ramcharan
Grace Kenny
Hannah Boyonoski
Hanna Petrie

OUR THESIS

THEME

Amiee Losele
Christina Ferreira
Lauren Cameron
Eden Kooger
Gabrielle Daoud

SHOW TEAMS

FUNDRAISING

Khaila Macalinao
Cassandra Rolle
Naomi Chu
Aurora Martinucci

A SPECIAL THANKS

TO OUR SPONSORS

BELTERRA CONSTRUCTION

Turn static files into dynamic content formats.

Create a flipbook