Portfolio of Hui Li

Page 1

MAUD program, Harvard GSD, 2025
Historical
Area
PORTFOLIO 2015-2023 HUILI Menxi
Residential
, Nanjing , China

Everyday Life in Apertures

Public Housing Design

Individual Research and Design

Site: Menxi, Nanjing

Instructor: Yuan Zhu (101011408@seu.edu.cn)

Summer 2022

Modern collective housing often presents a clear division of function, with a heavy boundary, as a threshold, separating the public spaces from the private spaces. Inspired by the scenes of everyday life in Menxi, the project creates an another everyday, which implies that the threshold in living space is not always static. It can be actually dynamic, and even hard to recognize. In this way, the institutionalized space is broken and people's experience of everyday life is restored.

Furthermore, publicity permeates inwards through apertures, and privacy spreads outwards by the occupation of objects, all of which take place in an ambiguous zone, and in the process, everyday life takes place.

Symmertry Space

In Menxi, passages and apertures correspond to each other and have symmetrical features. People can see the activities in the far-distance room through many layers of apertures. In some special positions, multiple scenes can be seen at the same time through the symmetrical holes.

REVEALED AND TRIGGERED

PRIVACY SPILLS OVER PUBLICITY PENETRATE EVERYDAY LIFE

INTERIOR COMMON SPACE

CorridorCorridor

AMBIGUOUS DOMAIN

With the changes of the threshold and the aperture, a trend of public penetrating inward and privacy spilling outward is formed. It is the room, the threshold, the aperture and other elements that together constitute the everyday space of Menxi.

PUBLIC Shared Room Shared Room Threshold Threshold Threshold PRIVATE
01 A New Public Housing Type Proposal

Apertures,Thresholds, Rooms and Everyday Life

The unit plane starts from the matrix plan composed of walls and apertures. Through the integration of auxiliary spaces, the unit expands in a symmetrical way, and then moves and deflects the walls to form a shared area with transparent sightlines. Apertures organized the entire space generation .

Phase 1: defined the private boundry

Phase 2: Bottom-Up construction of the public space in front of each unite

The initial interior layout only fixes the boundaries of the most private space, and other areas are not defined as places where future everyday activities will take place, allowing residents to participate in the design from the bottom up and jointly create everyday spaces.

Type A Type A Type B Type C Type C
Transfer Institutional Plan Unit Plan Generated by Aperture From matrix plan to a free plan
Typical
TYPICAL TYPE NEW TYPE Openess and privacy Life as center
space
plan of public housing
of
Dynamic activities
02 02

1st Floor Plan

2nd Floor Plan

3rd Floor Plan

Copy and mirror the unit horizontally and organize the plan for public housing, and the corridor finally disappears. Different types of Units also bring the whole plan with a variety of openness to meet people's demands

03 03

Sight control in section

At each floor, public and private are divided by the change of threshold height. In addition, the level of aperture also affects people's visual perception of public and private. In the vertical direction, the location of the boundary defines the ratio of public and private Spaces.

Boundry Boundry 3ft 3ft 3ft 2ft 3ft 1ft TYPE C TYPE B TYPE A
04 04
05 05

Everyday Spirituality

Memorial Space Design in Shenyang, Liaoning

UA Creation Award & International Concept Design Competition(UACA & ICDC) 2018

Instructor: Lei Chen (chenlei@mail.neu.edu.cn)

Collaborator: Quan Li, Jinri Liu

My work: 40% On-site Research, 40% Design, 50% Drawing Fall 2018

With the development of urbanization in China, the traditional place of residence has changed from villages to communities, from independent quadrangles to concentrated residential zones. People’s physical space has been improved while their emotional needs are obviously neglected, which has resulted in some conf licts in modern cities. As I discovered, during some specific festival seasons in every year, people often violated the government-issued bans and burned paper money along roads or in the street corners in memory of their ancestors. My subsequent investigation helped me to understand how people’s spiritual space was tightly linked with their living space in the traditional Chinese architecture. And it also revealed how the change of people’s living space squeezed their spiritual space in modern urbanization. In the past, traditional Chinese living space, even in different scales, shared a similar structure. People

used to live independently in their own houses, and their houses were close to their parents’ and brothers’, forming a quadrangle courtyard, the central part of which was usually the family temple where the tablets of the ancestors were kept. A village was established by the closely distributed courtyards of the clansmen who worshiped their common ancestors in the ancestral shrine of the village. However, with the progress of urbanization, people transferred to the densely populated residential zones, as a result, their living space was sharply narrowed down and their emotional needs had to be expressed in public spaces.

My project reshapes a spiritual space in modern settlements to satisfy people’s emotional needs for ancestor worship, which, to some extent, adds a spiritual core to the materialized modern Chinese society. In addition, this spiritual space, surrounded

Site Plan
02

2.Urbanization

The traditional space for ancestor worship has disappeared.

4.Custom features

Burn paper crossroads to remember their dead relatives during certain solar terms in China.

6. Be Banned

Because of the serious fire hazard and environmental pollution, but the impact is minimal.

7.In the context of the new era, how to inherit better and meet people commemorative behavior and spiritual needs ?

8. How is the memorial place in contemporary Chinese cities?

1. Traditional Chinese custom:

Ancestor worship in their yards or in ancestral halls.

3. New customs come into being

The crossroads become a new site for ancestor worship.

5.The reasons behind the phenomenon

lack of spiritual space in modern Chinese cities.

The courtyard, the family temple and the ancestral hall represent the spiritual space of family, community and village.They share the same spatial pattern----living spaces surround a courtyard that carries the spiritual core. extracted the concentric circles as the spatial prototype, the inner ring represents the spiritual space, and the outer ring is the community activity space.

Place of burning paper

Crossroad

Everyday Activity

Spiritual Space

The inner ring closes and sinks, used for sacrificial activities. The outer ring is open and lively, accommodating a variety of community activities, while the roof can also provide people with views and leisure. The two ring roofs are inclined to each other, and the junction serves as a transitional space for transportation.

PHENOMENON : COMMEMORATE ANCESTORS BY BURNING PAPER NEAR THE CROSSROAD
Family TIAN JING EARTH BUILDING ANCESTRAL TEMPLE Community Spiritual
Transition
Village
Living
RELATION BETWEEN SPIRIT AND LIVING SPACE IN THE PAST
Step 1 Prototype Enclosure Volume Interact Step 2 Step 3 Step 4 07 07

Transition from everyday life to spiritual activities Temple/Community Pavillion

The building has two main circulations. The roof of the outer ring is connected with the ground floor and becomes a circulation of community activities. The circulation of worshipping enters the tunnel inside the wall of the inner ring from one side of the outer ring, spirals into the ground, and then enters the atrium for worship ceremony. After the sacrificial ceremony, people enters the circular space between the two rings and rises up to the community activity space of the outer ring. During the whole sacrificial process, people's emotions changed with the height of the ground, the spatial scale and the light.

ENTRANCE COURSE WAY COURSE WAY MEMORY SPACE CORRIDOR RECALL Space Mood Purpose Pattern Light Opening of space Altitude of roof Altitude BRING UP EMOTION WORSHIP RELIEF CALM DOWN
COMMUNITY SPACE SPIRITUAL SPACE COMMEMORATION TRANSITION PLATFORM PAVILION
08 08

section is divided into three parts, internal memorial space, intermediate transition space and external leisure space. The circulation into and out of the transition space is separated from each other, and the roof of the leisure space slopes from the ground. The circulation of the entry, the exit and the roof flow are constantly changing with the circular elevation, creating interesting interwoven interactions in the vertical direction.

0 3 12m - 2 m Floor Plan Underground Floor 1. circulation of the entry 2. circulation of the exit 3. Prayer room 4. Sacrifice space 5. pool 6. earth 7. subsidiary room 0 3 12m +0.6m Floor Plan First Floor 1. footpath 2. stairs 3. course way 4. sacrifice space 5. pool 6. gallery 7. playground 8. market 9. toilet 1. footpath 2. stairs 3. course way 4. sacrifice space 5. pool 0 3 12m Site Plan 1 1 2 3 3 4 5 3 3 3 3 3 3 3 7 7 6 1 2 3 4 5 6 7 8 8 9 1 2 3 4 5
09 09
The
10 10

Small Infrastucture

Bus Stop Design and Construction, Summer 2018

Site: Gujo, Japan

The Asian Architecture Student Summer Workshop 2018

Group Work (Team Member: Hidetsugu Matsushita,Tete ,Yushi Chen, Mingquan Wang, Kiran Rao)

My Work: 30% Design, 30% Construction

Gujo City in Japan is a less prosperous place, located in the green mountains and green waters, with lush trees and excellent natural conditions. Therefore, the main starting point of the design is to make the building blend with nature. The two upturned corners of the bus station are like a butterfly flying in the mountains and forests.

Site Before After

GUJO
03

On rainy days, the rainwater forms a gap in the middle and falls like a small waterfall. The natural wood material is better integrated with nature.

On rainy days, the rainwater forms a gap in the middle and falls like a small waterfall. The natural wood material is better integrated with nature.
12 12

Transitional Core

New TOD model : From urban life to everyday life

TOD of Suburban Context in Baishuiqiao, Nanjing

Project: SEU Architectural Design Studio (TOD Studio)

Instructor: Yuan Zhu (101011408@seu.edu.cn)

Collaborator: Jiahui Pan, Quan Li

My work: Team leader, 50% On-site Research, 70% Design, 80% Drawing, 70% Model Fall 2020

The site is located at Baishuiqiao Station in the suburban area of Nanjing, surrounded by a large number of residential areas. Since people live a slow-paced lifestyle here, the traditional TOD model in the city center is not suitable. The blunt connection between the urban core and the suburbs leads to low utilization efficiency of urban space, and the low comfort of citizens' space experience, so it cannot drive regional vitality.

In this project, in order to adapt to the current situation of diverse natural ecology and social ecology, I established a TOD model in suburban with a new catalyst and tension, which integrates everyday life. In contrast to strict division of land use functions, want to realize the transition between the station and the city with a network weaving, and broadly define leisure and entertainment spaces such as open-air lawns and in between spaces instead of just open squares. This means that more gathering patterns of people's everyday life have been integrated into the site, and the original boundary attributes have been further weakened in weaving. Finally, between the core area and the residential area, between high-intensity and low-density, points are threaded and lines are formed into a network, allowing the station and the city to grow together.

URBAN CORE Urban life circle Everyday life Network Rail Traffic Living Landscape Culture Slow-moving System ...... SUBURBAN CORE 04

TOD is often the core of a city area with high value of land. Therefore, the government and developers are committed to increasing the development intensity and building density to maximize economic benefits. Especially in Tokyo, Hong Kong and other cities, the rail transit network has successfully driven the development of the city.

The traditional TOD model in the urban center area shows a trend of development intensity and building density gradually decreasing from the station to the outside according to the circle, while in the new urban area or the suburbans, the construction of the station domain space pays more attention to the connection with the urban space, or the establishment of the landscape system.

14 14

TOD model in suburban

As a transitional space, the net-shaped structure weaves the core and the outer circle, accommodating people's everyday life, including leisure and entertainment, green corridors and other communication spaces. A

Potential
Issue
Lanscape
slow-miving
service Residential Areas
landscape resources 1 1 2 13 13 3 14 15 4 7 7 11 10 2 7 11 6 9 9 9 9 9 8 9 13 16 13 11 12 5 15 15 15 15 2 1 1 0 20m 60m 1. Hotel office Complex 2. Shoping mall 3. Theater 4. Senior citizens activity center 5. Art center 6. Community library 7. SOHO 8. Community center 9. office 10.underground bus station/ sports court 11.retail 12. Child Training Centre 13. Apartment 14. Hotel 15. Makerspace 16. Food market STRUCTURE BUILDING HEIGHT TRAFFIC GREEN SPACE 15 15
core to link arrounding Science and Technology Industrial Parks A
network tpo
Connect with green belt and Make full use of

Slow-moving Network from Underground to Ground

The open network extends from the underground to the ground, weaving stations and suburban urban space. The free architectural layout and rich outdoor space creates more possibilities for everyday life.

The transitional circle contains a variety of transitional space types, including leisure and entertainment, cultural, commercial and other functional spaces. These miniature places for everyday activities stimulate the vitality of the area.

Floor Plan Transitional Space Types Art Center Roof Garden Green Corridor Subway Entrance Skate Park Outdoor Theater Leisure Square Business Center Inner Inner Inner Outer Outer Inner Inner Inner Outer Outer Outer Inner Core Core Outer Ring Outer Ring Inner Outer Outer Outer 10 0 30 N 1. Hotel office Complex 2. Shoping mall 3. Retail 4. Gym 5. Gallery 6. Community library 7. SOHO 8. Community center 10. Child Training Centre 11. Apartment 12. Hotel 13. Administrative Office 14. Sunken Retai 15.Subway Station Entrance 16.Public Walkway 17. Sunken Plaza 1 1 2 3 3 3 4 5 6 6 6 6 6 7 7 13 8 8 8 3 11 13 13 14 14 17 17 17 15 15 16 16 13 11 12 12 16 16
Ground
17 17

Wetwood

Urban design of Suburban Context in Westwood, MA | Boston

Project: Harvard GSD MAUD Core Studio - Element of Urban Design

Instructor: Alex Yuen (ayuen@gsd.harvard.edu), Stephen Gray, Peter Rowe, Michael Manfredi

Collaborator: Gyulee Hwang

My work: 40% On-site Research, 60% Design, 60% Drawing, 50% Model Fall 2023

According to the town of Westwood comprehensive plan community survey, the site has a potential flooding problem, and residents strongly think the city should prioritize improving pedestrian infrastructure and indoor/ outdoor recreation facilities.

This “Wetwood” project proposes a comprehensive water system to prevent flooding, along with redesigning the urban layout for a more walkable, unified town hub. Key features include a new canal for stormwater management that acts as a focal point, various districts - commercial, residential, business, and communitysituated along the canal, buildings facing the canal, green infrastructures, and a central park. The aim is to provide sustainable urban development and a sense of community through mixed developments, improved pedestrian and bike safety, and diverse recreational opportunities.

05 Suburban Condition Roads + Car dominated Transformation Water/Greenery + Pedestrian Path

ThesiteislocatedfarawayfromtheCentralWestwoodandthereisahuge differenceofurbanlayoutandbuildingscale.Also,thesitehasariskoffloodingbecauseoftheterrainandlackofstormwatermanagementsystem.

Design Strategies

1. Original Site

3. Create building blocks around canal

2. Create canal based on water flow analysis

4. Introduce surrounding landscape into the site

19 19
0 80m 240m B A C

Typology Study

We proposed five typies of blocks surrounded with central park, which are commercial, residential, business, and community, but each block is mixed developed. The central park mainly serves as a public space gathering various recreational activities, inside and outside, on the ground and roof top. We also set small parking lots along the main road. 2.

Mobility system
Clusters
Green Intrastructure system
network 20 20
3.
4.
1. Main road

Our water related proposal not only aims to provide stormwater management but also bringing vitality to the site and create a walkable town hub that gives a sense of unity within Westwood by offering variety of recreational facilities and expansive open space. More connection with the green space and inserting more various programs and activities will create a more attractive place.

A B 21 21 B - B A - A
Green infrastructure system
22 22
Model Photos Projection Water Flow Analysis Green Corridors Canal System Main Road Building
Blocks Pedestrain

Professional Work

01 Comprehensive Building Renewal (Completed)

Everyday Studio

CONCORE International Engineering design

Site: Nanjing China, Spring 2022

Phase: Schemetic Design and Construction Document

My Job: Facade design, Facade dawing, Document preparing

Complete

This project aims to transform the facades of old buildings to align their style with the historical character of the entire park. By reinforcing the building structures and expanding them on the east side, as well as redesigning the facades using blue bricks, the project will infuse the park with new vitality and charm.

Through the implementation of this project, we look forward to creating a building space that integrates tradition and modernity, functionality, and aesthetics, bringing more vitality and development opportunities to the community.

Following a unified module, we will arrange brickwork with hollow facades, floor-to-ceiling windows, or balconies to create a rich yet orderly facade. This design not only enhances the aesthetic appeal of the buildings but also adds a unique cultural ambiance to the park.

23 23

Professional Work

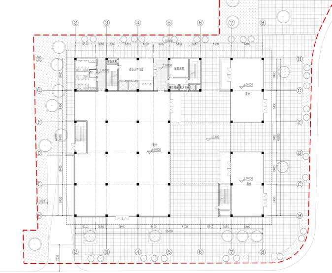
02 Corporate Headquarters

Everyday Studio

Site: Nanjing China, Summer 2022

Phase: Conceptual design and Schemetic Design

My Job: Massing study, Plan drawing, Renderings, Document preparing

The project is primarily intended for the headquarters of the Hesu brand, focusing on office functionality while incorporating some ground-floor commercial spaces.

The design concept aims to create open spaces at different levels and explore interactive office environments with public spaces. The open space located on the ground floor serves the entire campus and enhances the flow of urban space. Headquarters staff access the office spaces from specific transit cores and lobbies extending to the second floor and above. The rooftop gardens on the second and third floors serve as primary public spaces for corporate employees.

1st Floor Plan 3rd Floor Plan 24 24

Professional Work

03 Eco-Friendly Metro Living Zone

TOD design of expanding the Metro Living Zone

Everyday Studio

Site: Hefei China, Fall 2021

Phase: Conceptual design and Schemetic Design

My Job: 50% On-site Research, 50% Urban Design, Plan, Document preparing, Presentation

In China, the development of subways often lags behind that of urban areas. During the initial phases of subway construction, the emphasis on expanding the line network sometimes led to neglecting the comprehensive development of station areas, resulting in a lack of coordination between station area development and the overall city.

This initiative, centered around Feixi Road Station in Hefei City, introduces a multi-dimensional slow-traffic system focusing on lowcarbon transportation, resource integration, and spatial experience. The goal is to broaden the impact of the Metro Living Zone, facilitating comprehensive integration of transportation, cultural heritage, and life experiences.

Mobility Analysis

Simulation Analysis

1. Enhanced functional integration has resulted in a substantial increase in pedestrian traffic extending to the surrounding areas of the site.

2. The implementation of station guidance and northeastern land development has facilitated connectivity with the eastern site.

1. The integration of urban spatial nodes has led to a notable upsurge in cycling flow in the surrounding area.

2. The revamping of the urban node on the south side has resulted in a marked increase in cycling flow, fostering synergy with the South Second Ring Road station.

Before Pedestrian Flow Simulation Cycling Flow Simulation
4.
1.Underground Pedestrain Network 2.Ground Pedestrain Network 3.Riding line
Public Transportation
Before After After
25 25 High Low High Low High Low High Low

Professional Work

Everyday Studio

School of Architecture, Southeast University

Site: Huan'an China, Spring 2021

Phase: Conceptional Design

My Job: Architecture design, Presentation drawing, Document preparing

The reconstructed site will incorporate artifacts unearthed from the site and the locations of excavated strata to create a visitor route that follows the historical spatial layout of the Governor's Office of Transport and Shipping. It will also serve as a crucial component of the overall visitor experience, both in terms of historical significance and macro-level integration within the tour route. 04 Governer's Office of Hai'an canal Transport Protect

The former Governor's Office of Hai'an canal Transport is reduced to mere stone remnants, with only the foundations and stone bases remaining, carefully placed within the archaeological site and connected by walkways. The project aims to reconstruct the spatial layout of the former Governor's Office of Transport and Shipping based on the archaeological site plan, while also introducing new structures to protect the remains.

26 26
Existing Situation Site Plan

Professional Work

Academician Wang Jianguo Studio

Schoolyard Planning and Architecture Design

Site: Chongqing China Fall 2021

Phase: Schemetic Design and Construction Document

My Job: Schematic design of Library and Science Museum

(Plan drawings, Facade and structure study, Interior design, Document preparing)

The design concept of the library and science museum aims to utilize advanced technology to reduce energy consumption, integrate the concept of "low-carbon behavior" into the daily teaching and life of primary and secondary schools, and create a demonstration area for near-zero carbon campuses. Simultaneously, the architecture is harmonized with nature to construct spatial scenes that embody the characteristics of mountain cities, allowing spatial education and the comprehensive transmission of knowledge to naturally integrate into daily teaching. Through the creation of distinctive environmental features in teaching and living areas, a sense of belonging is fostered among primary and secondary school students in terms of different scales, atmospheres, and environments of learning and living.

05 Guangyang Island
Zhichuang Eco-city Middle School
27 27
The building's structure features a complete truss system, with the indoor floors suspended by the primary giant truss at the top, creating an expansive and transparent reading space within.

Professional Work

My Job: Campus planning and design (Plan drawings, Document preparing) 05 Guangyang

Academician Wang Jianguo Studio Schoolyard Planning and Architecture Design

Site: Chongqing China , Fall 2021

Phase: Schemetic Design

As a local memory, nature preserves the characteristic value of the site. Nature, as a cultural carrier, constructs the scene space of mountain city culture, and is also used as the scientific basis for organizing the campus building structure. As a carrier, nature meets the complex behavioral needs of middle schools. As a teaching object, nature triggers the exploration of scene education mode.

We are utilizing the terrain and guiding the landscape of the building volume to reduce the visual perception of high-density volumes. A moderately intimate and diverse public space is established through the organization of open spaces of different scales.

06 Majiayao Ruins Museum and Observatory

Studio Zhu Pei Intern Work, Fall 2022

Design Phase:Conceptual design

My Job: Interior exhibition design, 3D modeling, renderings, physical modeling

Site: Lintao, Gansu Province

Majiayao Ruins Museum and Observatory are located on the north and south sides of Bamayu ditch, facing each other across the ditch. The museum is adjacent to the Majiayao ruins, lying prone in a wide depression on the east side of the site; The Observatory is embedded under the flat roof on the south side of Bamayu ditch, overlooking the ruins, Taohe River and the alluvial plain between loess Gaoping and Taohe River.

The project introduction is excerpted from http://www. studiozhupei.com/

1. Interior exhibition

2. Physical model Front Side

3. Physical model Back Side

1 1

2 3
28 28
Island Zhichuang Eco-city Middle School

Turn static files into dynamic content formats.

Create a flipbook
Issuu converts static files into: digital portfolios, online yearbooks, online catalogs, digital photo albums and more. Sign up and create your flipbook.