Universidad Central del Ecuador
Facultad de Arquitectura y Urbanismo
Carrera de Arquitectura
Semestre 2024-2024
Geometría solar, luz natural y viento
![]()
Universidad Central del Ecuador
Facultad de Arquitectura y Urbanismo
Carrera de Arquitectura
Semestre 2024-2024
Geometría solar, luz natural y viento
UNIVERSIDAD CENTRAL DEL ECUADOR
FACULTAD DE ARQUITECTURA Y URBANISMO
CARRERA DE ARQUITECTURA
GEOMETRÍA SOLAR, LUZ NATURAL Y VIENTO


JADIRA ASIMBAYA
KARINA CHAGLLA
SANDY COLIMBA
ALEJANDRO CORTES
MILENA FRANCO
JHILMAR QUINATOA


Proyecciones dibujadas a mano de las horas 9am, 12pm y 15pm de la Planta Baja y Planta Alta.



Proyecciones dibujadas a mano de las horas 9am, 12pm y 15pm de la Planta Baja y Planta Alta.





Proyecciones dibujadas a mano de las horas 9am, 12pm y 15pm de la Planta Baja y Planta Alta.




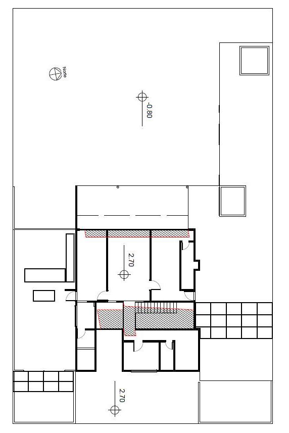
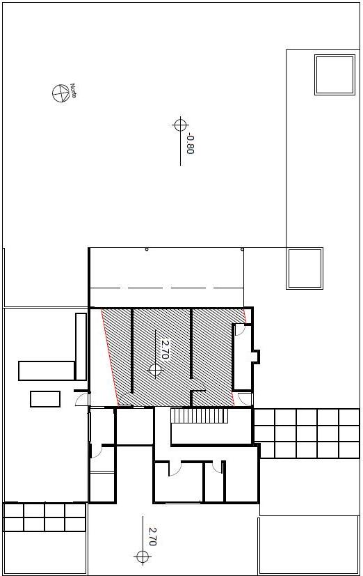
Proyecciones desde las 6am hasta las 18pm de la Planta Baja y Planta Alta.
6:00 AM
LA LUZ A LAS 6 AM
ENTRA CON UN ÁNGULO DE O°, POR LO QUE EN
PLANTA NO HAY PROYECCIÓN SOLAR.


7:00 AM














11:00 Am




12:00 Am

























18:00 PM





Análisis de esterilización matutina, ganancia solar pasiva y sobreasoleamiento.

https://docs.google.com/spreadsheets/d/1sLHg11qsN
WjfAmygiXncEQT-5jW7fPFqdDrq_1nVAnM/edit? usp=drivesdk




















La zona 1 y la zona 3 sufren de falta de ganacia solar de manera significativa, apenas reciben un poco de luz natural a través de los pequeños tragaluces en las zonas. Para combatir este problema es importante generar más entradas de luz, usar superficies reflectantes para redirigir la misma y utilizar colores claros para mejorar la sensación espacial. Así mismo, se pueden implementar materiales de aislamiento térmico para proporcionar al espacio una temperatura adecuada.

Por otro lado, la zona 2 sufre un sobre asoleamiento importante durante las 11 am y las 15 pm. Esto provoca incomodidad a los usuarios debido a la fuerte radiación solar. Para solucionar este problema se puede cambiar el tipo de tragaluz utilizando uno llamado linterna, el cual permite la entrada de luz lateral pero no perpendicular. Adicionalmente, se pueden crear vanos por los que puedan entrar corrientes de viento para enfriar el espacio y evitar una temperatura elevada.

Universidad Central del Ecuador
Facultad de Arquitectura y Urbanismo
Carrera de Arquitectura
Geometría solar, luz natural y viento
Semestre 2024-2024

Título: Informe sobre la Casa Agustín
Fecha: 24/06/2024
Nombres: Jadira Asimbaya
Karina Chaglla
Sandy Colimba
Alejandro Cortez
Milena Franco
Jhilmar Quinatoa
El presente caso de estudio propone una discusión alrededor de la infraestructura de “Casa Agustín” con respecto a la distribución de sus accesos de luz natural. La investigación de la cual se deriva este trabajo es de tipo exploratorio y el objetivo principal plantea la
identificación de una zona problemática, en la cual se estudiará el sobre asoleamiento o exceso de luz que recibe la zona predestinada.
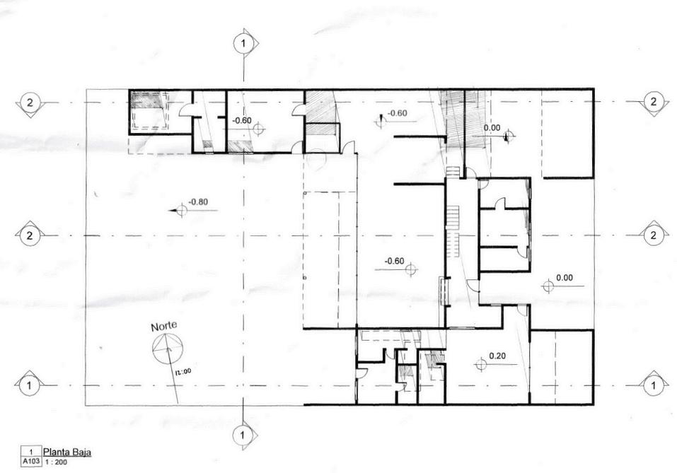
La zona elegida para el estudio se encuentra ubicada en el bloque B de infraestructura y lo identificamos como un tragaluz en forma de “L” que tiene una dimensión aproximada de 40m2, el mismo que está destinado como espacio de circulación y conexión para distintas áreas de las dos plantas.
Mostramos a continuación el estudio del punto de rotura del ángulo del sol al medio día.

Observamos que no existe punto de rotura, es decir la luz entra de manera directa.
Adicionalmente, se utilizaron las aplicaciones digitales Dialux y Revit, en las cuales se realizaron renders y simulaciones del lugar problemático para así demostrar de manera real cómo es la entrada de luz natural. Las fotos del estudio se mostrarán a continuación, divididas entre los meses de marzo, junio y diciembre a las 9:00 am, 12:00 pm y 15:00pm y mostradas tanto en cielo nublado como cielo despejado.
Dialux
Marzo con cielo despejado (planta).



Marzo con cielo despejado (perspectiva).



Marzo con cielo nublado (planta).



Marzo con cielo nublado (perspectiva).



Junio con cielo despejado (planta).



Junio con cielo despejado (perspectiva).



Junio con cielo nublado (planta).



Junio con cielo nublado (perspectiva).



Diciembre con cielo despejado (planta).



Diciembre con cielo despejado (perspectiva).



Diciembre con cielo nublado (planta).



Diciembre con cielo nublado (perspectiva).



Iluminación a través de colores (cielo cubierto y despejado respectivamente).











Conclusiones:
• El análisis solar realizado en los meses de junio, marzo y diciembre, a las horas de 9 am, 12 pm y 3 pm, reveló que la entrada de luz más intensa proviene del tragaluz en forma de L. Por esta razón, decidimos analizar de manera individual la entrada de luz natural en este espacio. La forma en L del tragaluz provoca una distribución desigual de la luz natural, creando zonas con exceso de iluminación y otras con insuficiente luz. Durante el mediodía, se observa una elevada temperatura interna, lo que provoca sobrecalentamiento en los meses cálidos. Por lo tanto, es crucial considerar soluciones para regular la entrada de luz y mejorar la eficiencia térmica del espacio, asegurando así un ambiente interior más confortable y equilibrado a lo largo del año.
• La incidencia de la luz solar afecta significativamente al espacio alrededor de las 12:00 PM a lo largo de todo el año, siendo el mes de marzo cuando este problema es más pronunciado. Se observa claramente que, en horas diferentes al mediodía, la cantidad de luz natural que ingresa es insuficiente, lo que indica que este espacio no recibe una iluminación solar óptima en ningún momento del día. Esta falta de iluminación adecuada puede tener un impacto negativo en el bienestar de las personas que ocupan el espacio, afectando su productividad y comodidad.
Propuestas:
• En el espacio del tragaluz en “L” se podría colocar un techo de vidrio alto forrado con un material que se llama película reflectante, este se encarga de reflectar como un espejo y tiene la capacidad de reducir la entrada de calor y radiación UV.
• La ventilación pasiva es una estrategia efectiva para mejorar la calidad del aire interior y reducir el consumo de energía en los edificios. Se pueden implementar varias estrategias para lograr una ventilación pasiva eficiente. Por ejemplo, mediante la orientación de las ventanas hacia el norte y sur, la creación de corrientes de aire fresco, el uso de materiales y colores naturales, la integración con el entorno, el control de la ventilación y el monitoreo y ajuste del clima. Estas estrategias pueden ayudar a mejorar la calidad del aire interior y reducir el consumo de energía en la casa.
• Adicionalmente, se puede implementar un tragaluz la forma de linterna, es decir, se intersecarán dos paralelepípedos rectangulares siguiendo la forma del tragaluz, los cuales estarán cubiertos en la parte superior, y en los laterales ingresará la luz. De esta forma, la luz natural del sol ingresará en las mañanas y tardes, evitando luz directa y sobre asoleamiento al medio día, pero aún teniendo la luz necesaria para realizar las actividades necesarias.
UniversidadCentraldelEcuador
FacultaddeArquitecturayUrbanismo
CarreradeArquitectura
Geometríasolar,luznaturalyviento A3P1


0°11'32.4"S78°24'38.0"W

-0.223194 ,-78.5118554








