Skip to main content

10mb portfolio backup-2

Page 1


Part 1 Architectural Assistant

@ hughw2003@gmail.com

London/Loughborough Hugh Westcott

Loughborough University, Architecture BArch Final year student on track to achieve a 1st. 09/2021-06/2025

Queen Elizabeth Boys School Barnet Since graduating I have returned as alumni to mentor students and talk about higher education.

Buro Happold 08/2023-08/2024

ARUP Specialist consulting role, working with design teams from Gensler, Bjarke Ingels Group, OMA etc. Also worked across design delivery, on computational R&D & technology/ software rollout.

Project Management intern in Advisory Services Automated tool created to streamline employee onboarding; coordinating with project managers and stakeholders.

Fourpoint Architects Draughtsman

I developed a portfolio of revit families for use on all future projects. Applying this to live projects taught me how to enhance my own workflow further.

Engineering Education Scheme Awarded Industrial Cadets Gold

In a small team sponsored by Morgan Lovell I acted as design lead. I co-developed a retrofit solution to improve bandsaw operator safety across the country. A prototype was presented to a senior IOSH board and was also recognised by Constructing Excellence where our team won both ‘Innovation’ and ‘People’s Choice’ categories at SECBE 2020 awards.

Faced real-world design challenges in creation of residential project; I overcame these through iterative modelling & technical drawings which I presented back to senior staff.

06-08/2023

Part 1 Architectural Assistant, Sports and Entertainment Specialist Consultant 08/2019, 08-09/2022 07/2020

Languages

English •••••

Native

German eeeOO

ConversationaI

Licenses

DrivingLicense

CatagoryB

CRBchecked

Issued:06/2023

BPSSchecked

Governmentprojectclearance

TechnicalSkills

CAD&3DDesign

Sketchup

Solidworks

Shap3r

Rhinoceros3D

Grasshopper

Autocad

BIMSoftware

Revit

VisualisationSoftware

Enscape

Twilight Photoshop

Procreate

Camtasia

Sefaria

PresentationSoftware

Illustrator

lnDesign

Powerpoint

Excel

AnalogueSkills

Hand-drawing

Physicalmodelling

Photography

Videography/Editing

Super-Curricular Experience

RoyalAcademyofEngineeringAwardWinner

IEEHPhotographyCompetetionWinner

RAEngincollaborationwithLoughboroguhUniversity'sInclusiveEngineeringExcellenceHub presentedmewiththeawardforaproject capturingmomentsofengineeringinaction.

RIBAFutureArchitectsMentoringScheme

ProfessionalAdvice

GuidancefrommyRIBAEastMidlandsMentor gavemeavaluableinsightintotheprofession, introducingmetolifeinpracticeandproviding practicaladviceonbecominganarchitect.

VolunteerSetDesigner'Reinvent'FashionShow

InsightintofutureofArchitecture

CollaboratedwithsetdesignerBruceAsbestos todeliverLoughborough'sfirstfashionshow,set entirelyproducedwithnocarbonfootprint,in alignmentwiththe'reinvent'themeoftheshow.

ARCSOCSocialSecretary

PlanningandPromotionofevents

Requiresextensiveplanningandorganisation tosuccessfullyhostevents,bringingtogether allcohortsoftheArchitectureschooland enhancingtheirsocial/educationalexperience.

ArtAcademyTutor

Schoolclub,TeachingAssistant

Runningacluboverlunchtimesasavolunteer helpingnurturetalentsofyoungartists.

ShortFilmProduction

Videographer&Narration

Requiredresearch,narration,andfilmingto producedocumentary-filmswith1000'sofviews.

SoundTechnician

AcousticDirection&StageManagement

PreviousworkasasoundtechnicianatFinchely ArtsDepotoverseeingtheaudiovisualaspects ofguestspeakervisits,concerts,andplays.

Hobbies

Rowing/Running�

06/2023

01/2023-04/2023

02/2023

09/2022-06/2023

1 2 3 4 5

09/2019-07/2020

01/2017-08/2021

10/2016-07/2021

Duringthe2022/23academicyearIhavetrialedandbeenaccepted intoLoughboroughathletesunion,representingbothSeniorMens RowingandMiddleDistanceRunningteams.

DronePhotographyX

Ienjoyarchitecturalandlandscapedronephotographywhilstalso takingcommissionsforsitesurveysandpromotionalvideo/photo production.

6 7 8 9 10

An Emporium Of Knowledge

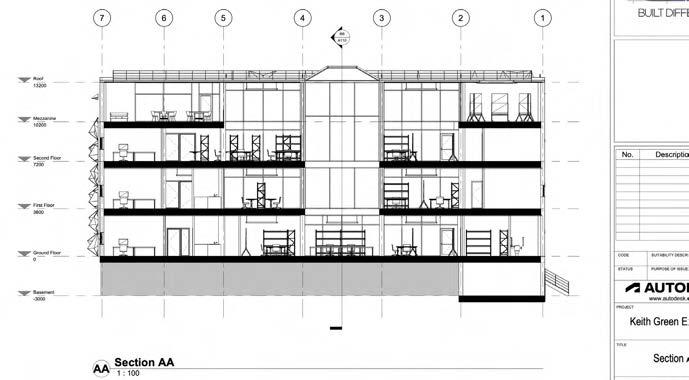
Collaborative Project- Keith Green Building, Loughborough

The collaborative project’s proposed extension to the Keith Green building emphasises the journey from novice to expert which begins on the ground floor; the Part A students commence learning in this space and progress up the floors of the Keith Green building as they move through their degree. This is visually highlighted by the central void which connects all three floors and cohorts, the parametric façade (taking inspiration from the design of the Al Bahar Towers) is designed via grasshopper and linked to light intensity parameters to enable responses to changes in the surrounding climate - a passive measure to reduce energy demand and improve the building efficiency. 03/2023

Section Drawing

Elevation Drawing
Isometric Drawing
Exterior Render

STAGES OF DESIGN

PROJECT DEVELOPMENT

2 Nottingham Contemporary Extension

Weekday Cross, Nottingham

Inspired by Nottingham’s industrial legacy, the Contemporary Community Space extends the gallery with a five-storey tower, celebrating the city’s heritage of craftsmanship and fabrication. A modular façade of steel, timber, and polycarbonate creates an ethereal glow, connecting the site to its surroundings. The programme unfolds from Forge Below, a heavy machinery workshop in the basement, to The Pinnacle, a viewing platform offering sweeping vistas of the regenerated district. With spaces dedicated to hands-on workshops, independent makers, and craft businesses, the extension fosters creativity, reconnecting Nottingham’s people to its industrial roots through light-filled, collaborative spaces. 10/2024

Key Project Stages

2 Nottingham Contemporary Pavillion

The Green Heart, Nottingham

The People’s Pavilion monumentalises everyday creativity, bringing art into public spaces. Cantilevered over the water in Nottingham’s Green Heart, this flexible structure hosts film screenings, installations, and community events, expanding the reach of Nottingham Contemporary’s exhibitions. Its softly glowing, modular façade acts as a second beacon, sparking conversation and drawing audiences to engage with cinematic and sculptural art. A landmark for a newly regenerated area, the pavilion fosters inclusivity, celebrating art as a unifying force within the community.

Key Project Stages
Isometric View, On Site Exterior Render Site Map Sectional Drawing Design Details

The Forge, Community Sports Centre

Coal Drops Yard, London

The Forge is a dynamic sports facility uniting students, local youth, and Coal Drops Yard workers through shared sports experiences. The design activates site boundaries to define a public realm, while skylights and southeastern-facing glazing bring natural light into the gym and studio. An open-plan gym, outdoor bouldering, and a multifunctional studio are complemented by a welcoming café, fostering social interaction and encouraging locals to drop in. Visual connections between spaces inspire users to explore new activities, while patterned glazing along public pathways balances privacy with curiosity, inviting engagement without compromise.

Key Project Stages

Isometric View, On Site Plan
Long Section
Perspecive Linework
Axonometric Drawing
Scale Model in Context
Nightime Render

Concentration Station

Collaborative Project- RGS The Grange, Prep School

Working in collaboration with ‘RGS the Grange’ Primary school on a given site by the main school building the challenge was creating a classroom of the future. This would enhance children’s education by engaging them in their learning in an indoor/outdoor setting. The final intervention focuses around the retention of concentration in education, whilst incorporating multi-purpose design to create a free space that can adapt for both children and teachers.

Front Elevation
Cross Section

Spatial Programming

FIBA / IHF Compliant Venue Modelling Exercise

Design Sprint Testing

This 5000 seat arena was developed to host FIBA and IHF events, catering for both regulation basketball and handball matches to be played. The project has two seating configurations as illustrated below, with floor seating used on the basketball stadium and tiered seating only for the larger handball field of play. Access routes, practical overlays, and materiality were also spectulated.

Basketball Capacity: 5,100

Technical Detail

Handball Capacity: 3,316

05/2024

Stadium Design Competition

Unrealised Project

This project is a 20,000-seat stadium, with the entry maintaining a strong focus on the club’s identity. The form and concept were driven by the club’s branding and ethos, while the facade was tightly integrated with the minimum roof-line required to cover all seating and span the steel frame. This approach minimized excess materials and created a compact, efficient structure. Compliance and safety were key priorities in the master-plan, with crowd flow and emergency/VIP access carefully distributed around the stadium’s perimeter.

Interior Visualisations Exploded Axonometrics Facade Isometric Detail

Stadia Bowl Design & Simulations

The below bowl was the outcome of the iterative design centred around accessibility, ticket types, and the positioning of fans’ eyepoints to ensure they have high scoring C and A value views of the pitch. The C value is mandated by FIFA whilst the A value scores the perceived field of play in view; creating these graphics demonstrated the implications of design changes on ultimately the fan experience.

Stadia Bowl Design & Simulations

R&D, Parametric Design, Audiovisual Optimisation Initiative

The two bowls below was created parametrically based on a grid structure, with tiered seating arrayed in bays, the left structural graphic is for a 30,000 seat stadium, and the right graphic represents a 20,000 seat stadia, with VIP seating indicated in purple and GA in yellow.

Compliant C and A values were tested in both arrangements, with seatkill (cutouts) also implimented where WC access and bays are intended and to ensure accessibility Corner access is another key consideration for emergency pitch access, security, and for groundskeepers. 11/2023

Sound Deflection Graphic
Circulation Graphic
Direct Sound Script
Structural Grid/ Bowl Seating

A Sanctuary for Shoreditch

Shoreditch High Street

In the heart of Shoreditch, a multi-faith reflective space and library is testament to the rich architectural heritage and sacred forms that have shaped the local community. The design follows the concept of a symbolic pathway to enlightenment, guiding visitors through knowledge towards a contemplative space. The peak experience is reached in the sacred space, fostering unity and shared spirituality among visitors of different faiths. It provides a sanctuary where people are inspiried to seek knowledge, find solace, and connect with something greater than themselves. 06/2023

Sustainability Strategy and Exploded Axonometric Shoreditch’s Sustainable Sanctuary

‘Arch Fusion’ blends heritage and creativity, transforming Shoreditch’s iconic arch typology into a temporary gallery. Inspired by the architectural language of Temple Church, the design incorporates Gothic and classical elements, creating a dynamic space where tradition meets personalisation. The repeated arches, adapted from local influences, serve as canvases for artistic expression, offering a unique setting that celebrates both the past and Shoreditch’s vibrant artistic spirit.

Library Interior Render- Entrance
Library Interior Render- Prayer Space
Library Interior Render
Exterior Render & Isometric GraphicPop-up Gallery, Shoreditch
06/2023

Construction Design

Construction Detail

3x3 Axonometric of the Cohesion Activity/Visitor Centre

Both the painting and sculpture are derived from investigating degredation and erosion within the urban built environement. The sculpture’s prominent structure and wire controlled tilt contrasts the abstraction depicted on it’s faces. This precariousness provides an entirely different viewing experience dependant on how it is viewed (i.e. from what angle, lighting).

Photomontage Artwork Paintings

The photo- montage artwork relates to mapping of the Shoreditch area during the libray project, with the aim of producing a regionalist study. The second is a mixed media, and painted board reinventing the library project’s deliverables in an abstract reinvention of prints presented over pin ups of the Semester.

‘Balance’
Painting

Part 1 Architectural Assistant

@ hughw2003@gmail.com

Hugh Westcott

London/Loughborough

Hugh_design

Turn static files into dynamic content formats.

Create a flipbook
10mb portfolio backup-2 by Hugh W - Issuu