
HSB BRF DIKTAFONEN
![]()

HSB BRF DIKTAFONEN



I hjärtat av det levande och inspirerande Telefonplan växer nu fyra exklusiva stadsradhus fram i Brf Diktafonen – ett boende för dig som söker det lilla extra. Här får du känslan av ett eget hus, med grönskande omgivningar, två plan fyllda av genomtänkta ytor och generöst ljusinsläpp – samtidigt som du har stadens puls bara några minuter bort.
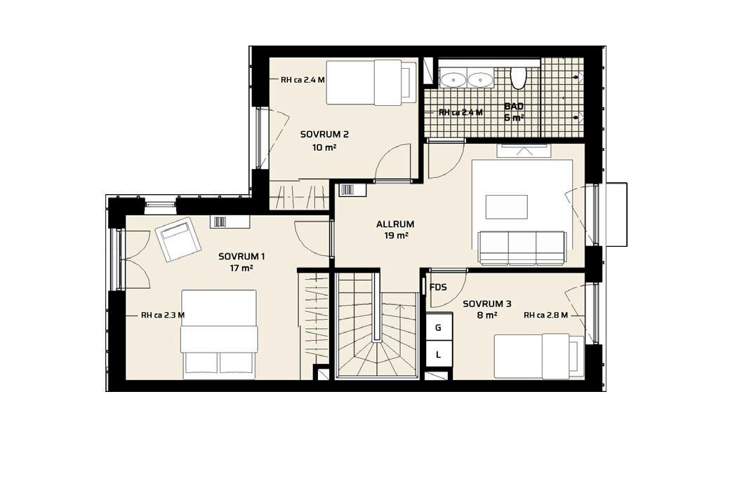
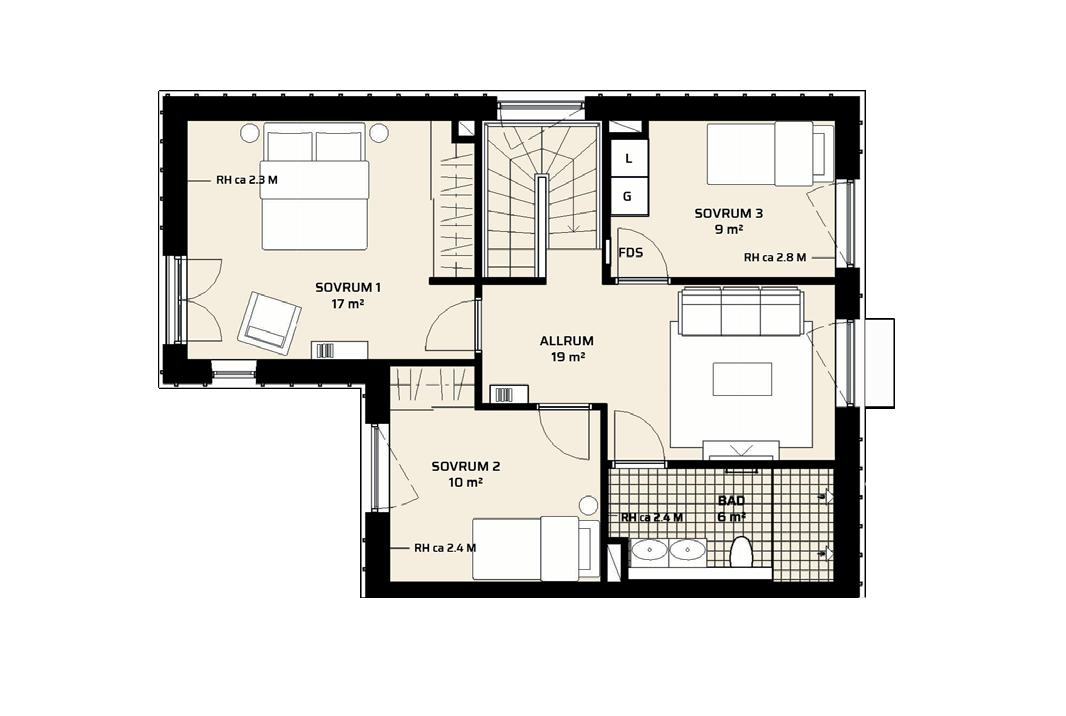
Med ingång antingen från innergården eller från trapphuset möts du på entréplanet av en luftig social yta där kök, matplats och vardagsrum smälter samman i en öppen planlösning – perfekt för både vardagsliv och middagar med vänner. Härifrån når du även din privata uteplats som ligger vid gång- och cykelstråket – en grön oas för avkoppling, lek och långa sommarkvällar. Ett extra sovrum på nedervåningen ger flexibilitet – kanske gästrum, kontor eller barnrum? På samma plan finns också ett badrum med dusch och wc.
På övre plan väntar tre ljusa sovrum, varav ett generöst master bedroom med rymlig skjutdörrsgarderob. Här finns även ett andra badrum – påkostad spa-känsla med dubbla handfat, dubbla duschar och golvvärme. En flexibel möblerbar yta som kan avdelas och ge plats för en tv-rum, kontor eller bara en lugn vrå för avkoppling.
BOSTADSRÄTTER (1–4 ROK)
KORT GÅNGAVSTÅND TILL TUNNELBANA (CA 10 MIN TILL SÖDERMALM)
I OMRÅDET FINNS ETT BRETT UTBUD AV CAFÉER OCH RESTAURANGER
PRECIS RUNT KNUTEN LIGGER EN UTOMHUSTEATER I ETT GRÖNOMRÅDE
MER UTELIV?
På innergården finns plats för det mesta, lek, grill och sköna fikastunder.


HSB HAR UPPRÄTTAT EN HÅLLBAR KOSTNADSKALKYL SOM GRANSKATS AV EXTERNA INTYGSGIVARE
RADHUSEN
Vilket radhus passar dig bäst? Se alla radhus i etapp 1 här.

Ett stenkast från innerstan!
CYKELRUM OCH CYKELPOOL MED ELCYKLAR
SAMT ELASSISTERAD LASTCYKLAR
EGEN TVÄTTMASKIN I ALLA LÄGENHETER, GEMENSAM TVÄTTSTUGA FÖR STORTVÄTT
INOMHUSGARAGE MED BILPOOL
ÖVERNATTNINGSLÄGENHET OCH FÖRENINGSLOKAL
LUMMIG INNERGÅRD MED PERGOLA, SITTPLATSER OCH GEMENSAM GRILL
GÖR DITT HEM PERSONLIGT!
Gör ditt hem personligt med våra utvalda inredningsstilar och tillval.




EN SKYDDAD OAS
Utmed brf Diktafonen ligger det kvartersgemensamma gröna stråket, den så kallade kvartersgatan,
Det aktuella projektet utgör den södra delen i det sista bostadskvarteret i omvandlingen av fd Telefonfabriken till ett levande område med blandade verksamheter och bostäder. Här finns direkt närhet tillTelefonplan med tunnelbana, service och restauranger och dessutom till grönskande naturområden.
Utmed brf Diktafonen ligger det kvartersgemensamma gröna stråket, den så kallade kvartersgatan, har en småskalighet, präglat av stadsradhusen som finns här.
När man kommer på Telefonvägen från Telefonplans centrum annonserar kvartereret Diktafonen entrén till de tillkommande bostäderna väster om fd. Telefonfabriken med en speciellt gestaltad avfasad hörna i sockelnivå. Den här platsen ska också berikas med ett konstverk enligt HSBs mångåriga tradition med konstverk i alla projekt. Här finns en trappkoppling som leder upp till den privata innegården. Det finns också en koppling från gården vidare till kvartersgatan.
För att minimera biltrafik i området ligger kvarterets gemensamma garageinfart direkt på den södra sidan. Här finns också en cykelverkstad och generösa cykelrum. Ytterligare cykelrum finns dessutom i anslutning mot kvartersgatan och gården och vissa cykelplatser finns också ute på gården.
Det finns ett lättåtkomligt miljörum med plats för sortering i olika återvinningsfraktioner samt grovsopor mot söder förutom nedkast för hushållsavfall i anslutning till kvartersgatan.
Brf Diktafonen innehåller huvudsakligen lägenheter av varierande storlekar, där vissa lägenheter på översta planet har en unik takutformning vilket ger originella och karaktärsfulla bostäder. Dessutom finns några radhus i kvarteret.
Gestaltningen ansluter till detaljplanens tankar om en fasadutformning med en sk gridstruktur som innebär en fasadindelning med hjälp av linjeringar, fönster- och balkongplacering samt inslag av klinker.
Färgsättningen utåt utgår från en noggrann inventering av närområdet, både av fabriksområdet och LM-staden och är inspirerad av denna.

Vi har hittat en varm ockra färgton för de målade betongfasaderna med inslag av klinker samt balkongräcken i samma kulör. Sockeln är avvikande och har en avvikande varmgrå klinker samt markerade bostadsentréer i en grön kulör. Gården har en ljus varmvit färgskala.
Byggnaderna har en karaktärsfull siluett med sluttande tak som ger en samlande gestaltning av kvarterets norra och södra del. Takgestaltningen ger dessutom vissa karaktärsfulla bostäder med även invändigt lutande tak.



Byggnaderna har en karaktärsfull siluett med sluttande tak som ger en samlande gestaltning av kvarterets norra och södra del.”


Brf Diktafonen erbjuder fyra moderna radhus i hjärtat av Telefonplan, utformade för att kombinera villakänsla med stadens bekvämligheter. Husen är rymliga med 5–6 rum fördelade på två våningar och har både privata uteplatser och stilfull inredning från HSB:s designkoncept. De fyra radhusen är i storleken 5–6 rok 123–131,5 kvm. Här bor du i ett lugnt, grönt område med närhet till stadspuls och kommunikationer – ett perfekt boende för den moderna familjen.


Stor uteplats
VÅNING 1

Öppen planlösning
VÅNING 2

Totalt fyra sovrum
Rymligt badrum


5 ROK
131,5 m2
VÅNING 1
Totalt fyra sovrum

Stor uteplats
VÅNING 2

Två badrum
Sociala ytor


VÅNING 1
Egen ingång

Öppen planlösning
VÅNING 2
Ljust allrum

Totalt tre sovrum


Stor uteplats
Egen ingång

Totalt fyra sovrum
VÅNING 2

Rymligt badrum






Mitt bland husen öppnar sig en lummig och inbjudande innergård – en skyddad oas där både barn och vuxna kan njuta av lugn, gemenskap och grönska. Här skapas en varm och välkomnande atmosfär med plats för både vardag och fest.
Den generösa gården är utformad med fokus på socialt liv och avkoppling. En rumsskapande pergola tillsammans med grillplats, sittgrupper och gröna ytor bjuder in till trevliga middagar, spontana möten med grannar eller sköna kvällar under bar himmel. Det är en plats att samlas på – oavsett om det är för lek, samtal eller festliga tillfällen.
Cykelparkeringar och smarta ytor gör gården lika praktisk som trivsam. Allt detta i ett stillsamt kvarter som kombinerar närhet till naturens lugn med stadens puls inom räckhåll.
En innegård att leva i – där gemenskap, trygghet och grönska möts.

I Brf Diktafonen skapas ett boende där hemlängtan får en ny betydelse. Här bor du i hjärtat av Telefonplan, med närhet till både stadens puls och grönskande lugn. Välj mellan ljusa, välplanerade lägenheter eller mysiga stadsradhus – alla med stilren design, grönskande innergård och ett läge med nära till allt.
DET HÄR ÄR BRF DIKTAFONEN
• 99 st bostadsrättslägenheter (1–4rok)
• 4 st bostadsrättsradhus med egen uteplats (5–6 rok)
• Lummig innergård med pergola, sittplatser och gemensam grill
• Cykelrum och garage – för ett bekvämt vardagsliv
• Gemensamhetslokal och bilpool
• Kort gångavstånd till tunnelbana (ca 10 min till Södermalm)
BRF DIKTAFONEN – DITT NYA HEM I KREATIVA OCH LEVANDE TELEFONPLAN
Mitt i hjärtat av ett av Stockholms mest omtalade områden växer Brf Diktafonen fram – ett modernt och personligt bostadskvarter där historisk industrimiljö möter nytänkande arkitektur, grönskande innergårdar och ett hållbart stadsliv. Här skapas hem som rymmer både vardagens enkelhet och livets stora ögonblick.
Projektet är en del av det sista bostadskvarteret i omvandlingen av den tidigare Telefonfabriken till ett pulserande område med bostäder, service, konst och kultur. Den södra delen av kvarteret –
Brf Diktafonen – har en tydlig identitet med


fasader i varm ockragul ton, klinkerdetaljer och gröna entréer. Byggnadernas sluttande tak ger en unik siluett och skapar karaktärsfulla bostäder högst upp, med spännande vinklar och ljusinsläpp.
Bostäderna varierar i storlek och form – från yteffektiva ettor till rymliga flerfamiljslägenheter och stadsradhus med egen entré. Gården är trygg, inbjudande och grön, och ramas in av den småskaliga kvartersgatan där stadsmiljö möter en mer intim, nästan lantlig känsla.
Här är det enkelt att leva hållbart. I kvarteret finns gott om cykelrum, en cykelverkstad och återvinningsmöjligheter. Garageinfarten är placerad i söder för att minimera biltrafik inne i området. Konstverket vid den
avfasade hörnan mot Telefonvägen markerar entrén till kvarteret – och följer HSB:s stolta tradition att integrera konst i sina projekt.
Telefonplan har vuxit fram som ett av Stockholms mest kreativa områden – med Konstfack, LM Ericssons industribyggnader och en växande mix av restauranger, caféer och kultur. Härifrån tar du tunnelbanan till Södermalm på 10 minuter, men behöver knappast lämna området för att hitta det du söker. Samtidigt har du nära till grönområden som Vinterviken, Svandammsparken och Västberga Allé.







Välj din egen stil!
Gör ditt hem personligt med våra utvalda inredningsstilar och tillval. Välj bland annat mellan olika köksluckor, bänkskivor, kakel och golv – eller välj något av våra färdiga designpaket för en ännu mer exklusiv känsla.
För brf Diktafonen har vår inredare tagit fram tre exklusiva designkoncept: Klassiskt, Tidlös modern och Trend. Designkoncepten ingår i lägenhetens pris och är baserade på inredning från kvalitets märkena Vedum, Kährs, Mora, Electrolux och Svedbergs.
För dig som vill ha en unik, stilren, naturlig känsla finns även designpaketet Urban Wood, ett tillvals-paket till extra kostnad speciellt skapat för brf Diktafonen.
* Rostfria/svarta vitvaror ingår ej i paketprisen utan väljs mot en mindre tillvalskostnad.



Designpaketet Urban Wood är exklusivt utformat för brf Diktafonen och består av noggrant utvalda material som ger ett harmoniskt uttryck där rustik värme möter minimalistisk enkelhet.
Köket från Vedum är i naturnära och avskalad skandinavisk stil med raka linjer som kompletteras av mjuka, varma toner. Urban Wood ger ett kök med naturlig enkelhet och modern estetik. De släta luckorna i vitpigmenterad ekfanér tillsammans med de räfflade rostfria beslagen ger en taktil känsla med koppling till naturen. Fanér är ett levande material som alltid har ett unikt utseende. Urban Wood passar dig som vill ha en inredning med en avskalad och organisk känsla.
En bänkskiva i exklusiv kompositsten som fortsätter på väggen upp till väggskåpen ger en exklusiv inramning av köket. Den varma beigea tonen med vacker diskret mönstring skapar ett tidlöst och sofis-
tikerat intryck. Den designstarka kromade kökskranen från Mora Armatur kompletterar den moderna och strikta känslan och bidrar till en minimalistisk estetik. Kökets design kröns av det vackra golvet i mattlackad en-stavs parkett som ger en exklusiv helhetskänsla för hela rummet.
Badrummen följer den naturnära nordiska stilen som skapar en diskret elegans. Kommod och matchande spegelskåp med slät panel i ek som kompletteras med vitt tvättställ i porslin. De matta vita kakel- och klinkerplattorna skapar en harmonisk balans och duschväggarna i klarglas tillför en modern och luftig känsla.





Fanér är ett levande material som alltid har ett unikt utseende.
Urban Wood passar dig som vill ha en inredning med en avskalad och organisk känsla.






Det här köket passar dig som söker en genomtänkt helhet – en plats att laga mat, umgås och njuta i under lång tid.