

![]()




Many years ago in China during the Chinese Civil war, there was a man who lived in Canton. His name was the Hero. The fire of the political upheaval spread ferociously. The Hero had to bring his family to America. He left his riches behind. In one night, our hero became a zero. Sorry,my mistake. He didn’t become a zero, he’s the hero. He worked in a wood mill. He worked hard. Started his own kitchen supply business, built a beautiful house. Next came his son, the new hero, worked hard too, grew the business, got a job, educated his children well, made the old house bigger, and then came his son. Now this is our hero. He tried management, engineering, office work, say yes, look down, be happy. One day many miles away, between the heart and world our hero found a companion.

Our hero said (in robotic voice)
How are you?
The companion asked: Why are you talking like this?
How?
You sound like a machine
Meaning?
Wait. Where are you going? cannot stop. If I stop, will die Die?
am running a race
What race do you run? don't know
You don't know, so why are you running?
Everyone is running. So that's why I am running Why is everyone running? Does no one stop to ask? Why? What's that?
Why? Our very own "Why?" You don't know why You seem to have dialed the wrong number, Forget it. What's the difference which race it is as long as you're winning. I'm sure you always win. Come second?
No
Third?
No
Fourth, fifth, sixth, seventh, eighth? Ninth?
You seemed to have dialed the wrong number. Train no. 721... Stop. Forget password. Insurance is a subject matter of solicitation. Please read the offer document carefully before investing.
You're somewhere in the middle. The middle-man Yes, I'm mediocre
You're so proud to be mediocre. Can I say something? I don't think you're ordinary. When I'm with you I feel special. Then imagine how special you are. Sorry, wrong number. What? Did no one tell you?
That reminds the hero of something He says:
There was someone who said I was special
That's right, who was it?
He was a snake
A snake?
Yes! He talked rot. You're full of wonder! A mine of diamonds. Damn imposter, Know his name?
His name was... Childhood. My childhood Childhood? Meaning?
Are you mad? Childhood was a poisonous snake. Slithering in the garden Hiding behind bushes, hood raised, ready to strike. Destroyed him when I grew up Crushed him underfoot. I put my foot on his damn neck and pressed hard Destroyed. Now it's ok. Now no one says I am special
can live my life comfortably now. Walk, stop, smile please, mediocre... Nonsense! A mistake. Choose your race. Then see if you come first or not. You'll come first Guaranteed. Stop! cannot stop
Look at yourself. Know who you are. Open your eyes won't open my eyes, I won't stop, I'll keep running the race. I'll keep running, I'll stay mediocre. Average. Work, stop, smile please.
So our hero ran the race for the rest of his life and one day he died.




oblique volumes: inhabitable but inaccessible staircases going up to nowhere and down in abyss inclined plane





shadows as a second layer













The housing typology is a live/work housing for musicians, so the music rooms are designed in irregular shapes to minimize reflections. Some music rooms have walls and roofs coming in and out to help improve acoustics.
The facade of the project is based on many different proportional systems, such as the Fibonacci series, the AABBAA, ABAB so on and so forth.






All the units are different from each other, because there are no two people who are the same.This hopes to increase socializing in the building, because people would be more interested in seeing each other’s spaces. Social condensers fail because you cannot force people to be in a place together. That is why I made my social spaces next to kitchens and music rooms, because food and music is a majors ocial attractor. They are also in places with the maximum amount of light and they cross circulations in corridors.
The double loaded corridor is zig-zag and not straight, so that the occupant is continuously turning and can “randomly” run into people, and brainstorm ideas off of one another. The voids in the roof and floor plates help with lighting up the corridor and ventilating through the entire building.



The ground floor consists of an open performance space, where musicians can hold performances on a large scale, and also have scattered glass boxes where people can come in from the street and practice their music, either privately or in a group



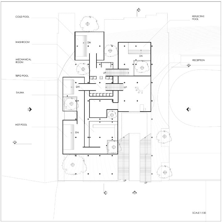
The task assigned to us in this semester was to add a bathhouse extension, next to the Jackie Robinson pool in Harlem, which would not be seasonal and can be used all year around by the community. We were also given the freedom to add in one program of our own choice in the bath-house and another satellite across the park which can be used by the neighbouring community. The program I chose was an observatory, and hence, my entire bath-house was built around the observatory and was about views of the sky and constantly looking up.
As you might have taken a hint from the name, each program has been completely isolated from one another, creating a clear distinction between solid and void, volume and circulation. It still continues to follow the basic nuances of a bath-house and how you can only access the pool after going through a check in the reception and using the showers thereafter. As you can see in the reflection pool and sauna, attempts have been made to direct people towards the existing vegetation before walking in a room, essentially working as a decoy show and reveal system.




The roof and the programs have been placed in such a way that none of the existing vegetation on the site has to be removed.Due to the high variation in topography, the roof acts as a direct access entry point from Edgecomb, activating it complete. The idea of the openings in the roof also was that in the day the building can take in the light from the environment and at night the building can give back light to the environment through these openings. The entrance to the bath-house remains between and under the large staircase which Bradhurst Avenue to the roof and Edgecomb Avenue


These elevations are meant to show the gradual change in the topography of the ground and how the building adjusts and changes in relation to it. The building lays low and does not extrude from the ground so that it is not intrusive of the existing Jackie Robinson Poolhouse building, in which so much effort has been put to conserve. You can also see how the observatory can directly be accessed by the public without going through the formalities of a bath-house and immediately draws attention to the eye, setting the tone for a person about what they are about to experience.
As you can see, the roof openings in the pool are not just cut-outs into the roof, but are actually curving in and out of the roof. This helps in completely cutting out the view of the surrounding buildings. This also helps in guiding the eyes of the occupant in a sort of angled way and is able to have complete control over the view of the occupant during the night showing only specific constellations. In the day, you can see that the sunlight guides the occupant directly into the pool and has the ability to set the tone of the spaces at different times of the day, with its deflecting angles and shadows, which would not be possible with a simple atrium which floods the room with light.



This section shows the materiality of the sauna. It also shows how people inside can have a view of the trees outside and how the light brought in from the atrium is different from the light brought in from the roof. This also shows openings in the roof in between programs, which is there to provide sunlight to the vegetation existing there, making it available for viewing by the people inside and activating these spaces that otherwise would have gone unused







For this project, we were asked to create an addition of a movie theatre to an existing library. We had to keep in mind the structure, program and circulation requirements. We were also asked to make a facade and have an integration and connection of the new addition to the existing library.
It consists of a suspension system structure where programs can be slotted in according to the changing requirements of the library.














TThe premise of this project is to explore Collaborative Automation for the Construction of Higher Density Housing in NYC. Specifically, we aim to identify potential benefits within the production process that can be unlocked to make higher-quality housing more accessible and affordable. The approach involved using Omniverse to develop a series of design options. We created a Digital Twin model that will simulate both the Manufacturing space and the Construction space and set up a fitness relationship to achieve a potential carbon-neutral model.

Design for Manufacturing and Assembly (DfMA) involves designing construction for off-site manufacturing in a controlled environment before assembling it on-site. The DfMA approach is leading the transformation of the Built Environment sector by leveraging advanced technology, improving the quality and precision of construction, and reducing waste. Moreover, it benefits the site’s health during construction by radically decreasing noise pollution, debris, and traffic congestion, thus providing a transforming experience for neighbors who have dealt with extreme conditions for years. Developing the DfMA approach for housing requires specific workflows that address unique design and construction challenges. These workflows should include both soft and hard tools that can apply the types of pressures needed to prototype units at a rapid speed and address the immediate and long-term needs of housing.



Additionally, these housing units are some of the smallest produced due to the need to transport them via truck from the factory to the site. Despite this limitation, the smaller modules must still accommodate a variety of functional criteria for mobility, which can often seem in conflict with the spatial requirements for housing. However, this encourages higher levels of efficiency in construction. Extra attention is directed towards the relationship between expedient deployment and the fundamental spatial needs of the dweller by projecting a series of cultural and technological forces constantly changing and reshaping the space of domesticity.








