HOPE BRIDGE ISSUE BRIEF
Vol.1, No.1
2. 3. 1.
편집자
![]()
Vol.1, No.1
2. 3. 1.
편집자
기후위기와 사회환경 변화로 재난이 반복·상시화되면서, 사후 대응
중심의 기존 재난관리 방식은 한계에 직면하고 있습니다. 이에 따라 재난
대응은 개별 사건 중심의 접근을 넘어 예방과 대비, 회복을 포괄하는 구조적 관점으로의 전환이 요구되고 있습니다.
희망브리지 전국재해구호협회는 재난 현장에서 축적된 경험과 데이터를
정책과 제도개선으로 환류할 책임을 바탕으로, 재난과 회복의 주요 쟁점을 체계적으로 분석한 「이슈브리프」를 정기적으로 발간하고자 합니다.
본 간행물은 통계와 법·제도 동향, 사례분석을 종합하여 정책적 시사점과 실행 가능한 구호대안을 제시하는 데 목적이 있습니다.
협회는 2026년부터 「이슈브리프」를 연 4회 발간하며, 기후위기와 복합 재난 대응, 재해구호 제도와 민관협력, 이재민·취약계층 지원 등 재난 전 주기 이슈를 단계적으로 다루어 현장기반 재해·재난 극복 자료를 지속적으로
축적해 나갈 계획입니다.
감사합니다.
2026년 2월
중대시민재해에 있어서
민관협력에
전국재해구호협회
배천직(행정학 박사)
목차
1. 논의 배경 및 필요성
2. 중대재해 분석
3. 중대시민재해 주요사례 분석
4. 중대시민재해 한계와 민관협력 필요성
5. 중대시민재해 민관협력 방안
6. 향후 과제
중대시민재해 민관협력 방안 연구는 최근 발생한 중대시민재해 사례와 문제점을 분석하고 이를 토대로
민관협력을 강화하여 시민안전 확보 방안을 제시함
민관협력은 안전점검, 위험요소 개선, 초기 대응, 피해 지원, 재발 방지를 포함한 재난대응 전 과정에서 이루어져야 하며, 이를 위하여 첨단 점검기술
● 「중대재해 처벌 등에 관한 법률」(이하 중대재해처벌법1)) 시행 이후(2022년~2024년) 중대재해 발생 건수는 다소 줄었으나 연평균 사망자 수는 약 610명으로 여전히 높은 수준임
● 특히 중대시민재해2)는 공공시설물의 설계나 관리에 문제가 있어 일반 시민들이 큰 피해를
입는 경우가 많으며, 2023년 청주시 궁평2 지하차도 침수사고가 이에 해당하는 대표적 사례임
● 중대시민재해의 예방과 관리를 위해 사업주, 경영책임자, 공무원 등 단독 노력만으로는 한계가 있으며 정부, 지자체, 시민사회, 기업이 협력하는 민관협력 거버넌스 구축이 필수 적임
● 중대시민재해로 인한 피해를 줄이기 위해서는 안전점검, 위험요소 개선, 초기 대응, 피해 지원, 재발 방지 등 재난대응 전 과정에서 민관협력이 이뤄져야 함
● 또한 첨단 점검기술 도입, 실시간 안전 모니터링 및 신속 대응체계 마련이 필요하며 시민 참여와 안전문화 확산도 중요함
2. 중대재해 분석
근거 「중대재해처벌법」 제정 목적 ● 「중대재해처벌법」은 사업장, 공공시설, 공중교통수단 등을 운영하거나
사업주와 경영 책임자, 공무원, 법인을 처벌하여 중대재해를 막고 시민과 근로자의 생명을
보호하려는 데 목적이 있음
「중대재해처벌법」 주요 내용
● 중대재해를 중대산업재해와 중대시민재해로 구분하여 각각 규제
중대시민재해에
– 중대산업재해는 상시근로자가 5인 이상인 사업장에서 사망자 1명 이상, 6개월 이상 치료가
있어서 민관협력에
필요한 부상자 2명 이상, 혹은 1년 이내 직업성 질병자 3명 이상 발생한 경우를 대상
으로 함
– 중대시민재해는 특정 원료·제조물, 공공이용 시설, 공중교통수단의 설계·제조·설치·관리
상의 결함으로 사망자 1명 이상, 2개월 이상 치료가 필요한 부상자 10명 이상, 또는 3개월 이상 치료가 필요한 질병자 10명 이상 발생한 경우에 해당함
● 안전보건 책임 주체와 보호 대상을 명확히 규정
– 책임 주체는 사업 또는 사업장의 전반적인 안전보건 조직, 인력, 예산을 결정하고 관리하는 경영책임자, 대표이사 등이며 중앙행정기관, 지방자치단체, 공공기관의 장 역시 포함됨 – 보호 대상은 도급, 용역, 위탁 등 계약 형태에 관계없이 해당 사업 수행에 직접 노무를 제공 하는 사업주와 근로자 포함
● 안전보건 책임 주체의 의무와 처벌 조항을 규정 – 책임 주체는 재해 예방을 위한 안전보건 관리체계를 구축·이행하고, 재해 발생 시 재발 방지 대책을 수립하여 추진 – 또한 중앙행정기관 및 지방자치단체가 개선 및 시정을 명한 사항을 준수하고, 안전보건 관련 법령에 따른 관리 조치를 이행해야 하며, 고의 또는 중대한 과실로 중대재해가 발생한 경우, 책임 주체는 손해액의 5배 이내에서 배상책임을 해야 함 – 의무 위반과 중대재해 발생 간 인과관계가 인정되면 법은 엄격한 처벌을 부과함 1) 고용노동부. 2021년 제정, 2022년 1월 27일 시행 2) 중대재해처벌법 제2조 제3호
[표 1] 중대재해 처벌규정
사망자 1명 이상 발생
중대
산업
재해
1년 이상의 징역 또는
10억 원 이하의 벌금
법인·기관
50억 원 이하의 벌금
중대
시민
재해
동일한 사고로 6개월 이상 치료가
필요한 부상자 2명 이상 발생
동일한 유해요인으로 급성중독 등
대통령령으로 정하는 작업성 질병자가
1년 이내 3명 이상 발생
사망자 1명 이상 발생
동일한 사고로 2개월 이상 치료가
필요한 부상자 10명 이상 발생
동일한 원인으로 3개월 이상 치료가
필요한 질병자 10명 이상 발생
중대재해 수사 현황
7년 이하의 징역 또는
1억 원 이하의 벌금
10억 원 이하의 벌금
1년 이상의 징역 또는
10억 원 이하의 벌금
7년 이하의 징역 또는
1억 원 이하의 벌금
50억 원 이하의 벌금
10억 원 이하의 벌금
(출처 : 2025년 「중대재해처벌법」)
● 2022년 1월 27일부터 2025년 6월까지 「중대재해처벌법」 위반 혐의로 검찰에 송치된 사건은 205건임3)
● 이 중에 1건 입건, 121건 기소, 28건 불기소 등으로 파악됨
[표 2] 중대재해 송치현황(2022.1.27~2025.6.30)
계 입건 기소
내용 205 1 121 28 55
(출처 : 매일노동뉴스)
● 2022년부터 2024년까지 중대산업재해 관련 송치 건수 중에 기소 건수는 2022년 11건 (34%), 2023년 22건(31%), 2024년 47건(61%)으로 증가 추세임
[표 3] 중대재해 연도별 기소현황(2022.1~2024.12)
4]
● 2022년 1월 27일부터 2025년 5월까지 「중대재해처벌법」 위반 사건으로 사망자 156명, 부상자 37명 발생
● 단일사고 중 인명피해가 가장 큰 중대재해는 2024년에 발생한 경기도 화성시 리튬전지 제조업체 아리셀 화재로 23명이 사망하고 8명이 부상했음
● 두 번째로는 2023년에 발생한 청주시 궁평2 지하차도 침수사고로 14명의 사망자와 16명의 부상자가 발생함
● 2025년 9월 현재, 2023년 성남시 분당구 정자교 보도부 붕괴 사고와 청주시 궁평2 지하차도 침수사고는 중대시민재해로 기소된 사례임
3) 홍준표. (2025). 중대재해기소 100건 넘겼는데, 전체 사고 11% 그쳐 – 중대재해 추적기. 매일노동뉴스
중대시민재해에 있어서 민관협력에 관한 연구
● 「중대재해처벌법」에 따른 중대시민재해의 대상은 크게 세 가지로 구분되며, 첫째, 공중 이용시설, 둘째, 공중교통수단, 셋째, 원료 및 제조물임
● 공중이용시설은 다시 「실내공기질 관리법」과 「시설물안전법」의 적용 대상에 따라 구분됨
● 「실내공기질 관리법」 대상에는 어린이집, 업무시설, 도서관, 노인요양시설 등이 포함되며, 「시설물안전법」 대상에는 도로교량, 도로터널 등이 포함됨
● 공중교통수단은 승합자동차, 도시철도차량, 여객선 등이 해당하며, 원료 및 제조물은 식품, 의료기기, 의약품, 유해화학물질, 마약류, 농약류 등이 포함됨
● 특히 화학제품 내 유해성분이나 제품 부품 결함으로 발생하는 발열, 폭발 사고 등이 대표 적인 사례임
● 공중이용시설에서는 대형 백화점 붕괴, 화재 사고, 공연장 안전사고, 의료기관 내 전염병 확산 등이 주요 중대시민재해 사례임
● 공중교통수단 관련 사고로는 시내버스 부품 하차, 정비 소홀로 인한 교통사고, 전동차 화재, 유독가스 사고 등이 있음
● 일반 시민은 산업재해보다 중대시민재해와 더 밀접한 연관이 있으며, 대표적인 발생 사례는 2023년 ‘성남시 분당구 정자교 보도부 붕괴 사고’와 ‘청주시 궁평2 지하차도 침수 사고’임 2023년 성남시 분당구 정자교 보도부 붕괴사고4)
사고 개요
● 사고 개요 : 2023년 4월 5일 오전, 성남시 분당구 탄천을 가로지르는 정자교 보도부 약 40m 구간 붕괴
피해 현황
● 1명 사망, 1명 부상
● 붕괴된 구간 외에도 교량에 추가 결함 발견
조사 결과
● 국토안전관리원 산하 사고조사위원회가 현장조사 및 구조물 분석을 통하여 원인 공식 발표
● 해당 사건 관련자들은 검찰에 의해 기소되어 재판 진행 중
사고 원인
● 직접 원인 – 교량 노후화5)로 인해 콘크리트와 철근의 부착력 약화
– 캔틸레버6) 구조에 하중 집중 – 제설제 침투와 동결융해 반복으로 콘크리트 피복 손상 및 철근 부식
– 결과적으로 철근의 부착력 저하 → 구조체 지지력 상실
● 간접 원인 및 관리 부실
– 사고 전부터 표면 균열, 처짐, 단부 파손 등 구조적 결함이 명확히 관찰됨 – 정기 안전점검에서 ‘양호’ 판정 → 점검이 실제 구조적 열화7) 반영에 실패
– 제설제와 수분 등 환경적 손상 요인 평가 부족 – 보수·보강 조치 미흡, 이상징후에 대한 대응체계 부재
개선 방안 ● 민간 전문가와 협업 강화
4) 국토교통부 보도자료. (2023). 정자교 붕괴사고 원인조사 및 대책 발표
5) 성남시 분당구 정자교는 1993년 6월 준공 후 30년이 경과한 노후 교량으로 2021년 보행은 가능하지만 보수가 필요한 ‘C등급’ 판정을 받음
6) 한쪽 끝은 고정되고 다른 쪽 끝은 자유롭게 튀어나와 있는 구조
7) 열화란 건축물이나 시설물의 성능이 시간이 지나면서 저하되는 현상을 말함
– 민간분야의 건축·토목·안전 전문가 참여 확대를 통한 시설물 관리와 점검의 전문성 강화
– 민간 감시단 운영으로 관리 사각지대 해소 및 투명성 제고
● 정보공유 및 소통체계 구축
– 재난 발생 시 신속한 정보전달과 공동 대응을 위한 협의체 정례 운영
● 공동교육 및 훈련 실시
– 민간과 공공기관이 함께 참여하는 재난대응 모의훈련 정기 실시로 협력체계 강화
– 안전관리 역량 강화를 위한 민관 합동 워크숍, 세미나 등 개최
● 민간의 재난대응 역할 확대
– 민간기업 및 지역사회가 자체 재난대응계획을 마련하고, 공공 대응체계와 연계하여 신속 대응 지원 – 민간 안전 관련 기술·장비 개발 및 보급 지원정책
● 정책 및 제도개선에 민간 의견 반영
– 정책수립 시 민간 전문가와 지역 주민 의견을 적극 반영하는 공청회 및 자문기구 운영 – 민관협력 거버넌스 체계 강화로 지속가능한 안전관리 문화 조성
사고 개요
● 2023년 7월 15일, 집중호우로 미호강이 범람하면서 임시제방 붕괴로 대량의 물이 지하 차도로 유입되어 발생
● 사고 전부터 호우·홍수경보가 반복 발령되었고, 통제 기준 초과 수위에도 불구하고 교통 통제와 현장 대응이 부실하여 피해가 확대됨
피해 현황
● 사망 14명, 부상 16명
● 지하차도 완전 침수, 다수의 차량과 시설물 파손
조사 결과
● 국무조정실 감찰 결과 공무원 34명, 공사 관계자 2명 등 총 36명 수사 의뢰
● 63명 징계 대상자 지정, 각 소속 기관에 통보
● 검찰 기소 후 재판 진행 중
사고 원인
● 무단 철거 및 부실한 임시제방 시공
– 미호천교 하류 제방을 무단 철거하고 규격 미달의 임시제방 설치
– 하천점용허가 위반, 안전성 미확보 상태에서 공사 진행
● 행정기관의 대응 실패 – 홍수경보·통제 기준 초과에도 통제 미실시
– 재난 경고 및 침수 신고(112, 119) 대응 미흡
– 행정중심복합도시건설청(행복청) : 공사 관리 및 비상 대응 모두 부실
– 충청북도·청주시 : 관리 주체로서 교통 통제 및 조치 소홀
– 충북경찰청 : 112 신고 접수 후 현장 출동 없이 시스템 처리
– 충북소방본부 : 유일하게 출동했으나 인력·장비 투입 부족
개선 방안
● 시설물 관리 및 재난대응 전문성 강화
– 민간 전문가, 학계, 시민단체 등 협업 시설물 관리 및 재난대응 전문성 강화 – 민간 감시단 운영을 통하여 투명한 관리와 문제 조기 발견
● 정보 공유 및 소통 강화 – 민관협력 협의체 및 정기회의체 운영으로 긴밀한
8) 국무조정실 국무총리비서실 보도자료. (2023). 오송 궁평2 지하차도 침수사고 감찰조사 결과
● 중대시민재해 예방과 관리를 위한 예산과 인력 확보가 충분하지 않고 정부와 기업 등 전문 인력이 부족하여 실질적인 대응이 미흡한 상황임
● 특히 예산 및 인력 관련 대부분 기관은 산정기준이 명확하지 않아 실효성
거버넌스로 체계적 재난관리 ● 정부, 지자체 뿐만
중대시민재해 예방 및 신속 대응
●
●
● 민간 전문가, 시민사회, 기업, 정부 및 지자체가
으로 지속가능한 안전문화 조성
충청북도는 중대(시민·산업)재해를 예방하고 도민의 안전을 보장하기 위해 2024년 3월 재난안전, 산업안전, 토목건축, 법률 등 다양한 분야의 민간전문가(14명) 및 관계공무원
등 총 17명을 위촉하여 매년
교육훈련 및 재난 대응 훈련
● 민관 합동 모의훈련 및 안전교육 프로그램 정기적으로 운영 및 대응 역량 강화
희망브리지 전국재해구호협회는 2018년 행정안전부로부터 ‘재해구호 전문인력 양성기관’ 으로 지정받아 재해구호체계와 심리지원, 역할훈련 등의 프로그램으로 구호 담당 공무원과
자원봉사자를 대상으로 교육을 실시하고 있으며, 2018년부터 2024년까지 공무원, 봉사자 등 총 2,113명이 교육을 수료함
● 민관협력위원회 및 민간단체 회원 대상 안전교육, 체험 및 모의훈련 실시 세종시에서는 민관협력위원회 및 민간단체 회원 대상 안전교육, 체험 및 모의훈련을 실시 하여 대응 역량을 높이고 다양한 재난 상황에 대비한 합동 훈련을 주기적 개최
재난 대응 거버넌스 구축 ● 기업 및 시민단체가 ‘자체 재난대응 계획’을
‘공공대응체계’ 수립
희망브리지 전국재해구호협회는 1961년부터 각종 재난이 발생했을 때 재난피해자를 지원하기 위하여 정부, 지자체, 기업 등과 연계한 자체 ‘재해구호계획’을 수립해서 시행하고 있으며, 그동안 1조 6천억 원의 성금과 6천만 점 이상의 구호물품을 지원하고 있음
피해 지원과 복구 협력 강화
● 민간구호단체 연계 중대시민재해 피해자 지원
중대시민재해 피해자 지원을 위하여 민간구호단체(희망브리지 등)와 연계해 피해자 지원 활동 전개
● 사고 피해자 지원 정책 강화 및 재발 방지를 위한 데이터 기반 관리 체계 운영
미국과 일본은 재난 피해자 모니터링 결과를 바탕으로 피해자에게 필요한 지원과 정책을 마련하고 있으며, 더 나아가 이를 정책 입안자, 연구자, 대중과 공유하여 정책적으로 활용 하고 있음12)
민관협력 거버넌스 구축 및 제도 개선
● 민간, 기업, 정부 및 지자체 등이 참여하는 민관협력 거버넌스 체계 구축
● 정책 수립 및 제도 개선 시 공청회, 자문기구 운영 강화
첨단 점검기술 및 정보통신기술(ICT)
● 첨단 점검장비 및 실시간 모니터링 시스템 구축 지원 확대
● 민간 주도의 기술개발 및 적용 촉진을 위한 정책적 지원 강화
재난대응 역량강화 및
● 재난 대응 모의훈련 비용 지원 및 민간기업 참여 유도
● 민관 공동 교육훈련 프로그램 지원 확대 및 커리큘럼
● 안전문화
참여, 세월호 참사 이후 지역 NGO 역할 등
10) 김풍옥. (2025). 충북도, 중대재해 민관협력자문단 회의 개최. 한국미디어뉴스
11) 김용우. (2025). 공공·민간 자료 다 모았다... 부산형 데이터 통합플랫폼 구축 완료. 아시아경제
12) 이나경, 김동진. (2024). 미국과 일본의 재난 피해자 건강 모니터링 체계 구축 사례와 시사점. p.81
김광수. (2022). 「중대재해 등 처벌에 관한 법률」의 구성요건에 대한 소고. 법학연구, 30(2), pp.29-52.
김기욱. (2021). 새해 산업현장 등 중대재해처벌법 시행에 따라 시민 안전 위한 중대시민
재해 효과적 관리 필요. 부산연구원, 부산발전포럼, 192권, pp.122-125.
도규완. (2024). 중대시민재해를 예방하기 위한 대형마트 고객사고 분석 및 안전대책에
관한 연구 – 이마트 사례를 중심으로. 석사학위논문, 한양대학교 공학대학원.
문재태, 고채석, 김봉수. (2025). 중대시민재해의 안전문화 인식에 관한 연구 – 중대시민
재해에 대한 델파이 면접조사를 중심으로. 동국대학교 비교법문화연구소, 2025, 25(1), pp.65-97.
신상영, 이석민, 원종석, 박 진, 남현정. (2022). 중대시민재해 주요 이슈와 장단기 대응방향, 서울연구원.
이나경, 김동진. (2024). 미국과 일본의 재난 피해자 건강 모니터링 체계 구축 사례와
시사점. 국제사회보장리뷰, 2024년 여름호, 통권 29호, pp.81-96.
이원준, 유상호. (2024). 드론을 활용한 건축물 안전점검 및 진단을 위한 인공지능 기반의
웹 솔루션 개발. 국토교통부 국토교통과학기술진흥원.
이재목. (2021). 「중대재해 처벌 등에 관한 법률」상 징벌적 손해배상 규정의 문제점 – 배상요건 및 배상범위를 중심으로. 홍익대학교 법학연구소, 홍익법학, 22(1), pp.311-336.
이정기. (2022). 「중대재해처벌법」상 중대시민재해의 법령해석에 대한 검토 – 사례와 관련 지어. 동아대학교 법학연구소, 동아법학 제97호, pp.91-121.
이창열, 홍한국, 김태환. (2024). 중소기업의 중대재해 예방을 위한 유해·위험 요인 관리에 관한 연구. 한국재난정보학회논문집, 20(4), pp.980-990.
이창열, 박길주, 김태환, 채종길. (2023). 중대시민재해 모니터링 모델 연구. 한국재난정보
중대시민재해에
학회, 한국재난정보학회논문집, pp. 834-843.
정경옥. (2024). 「중대재해처벌법」에 관한 국내 학술논문 연구동향 분석. Journal of the Society of Disaster Information, 20(4), pp.871-878.
최수영. (2021). 해외사례 비교를 통한 「중대재해처벌법」 향후 정책방향. 한국건설관리학회
있어서 민관협력에
학회지, 22(2). pp.21-25.
국무조정실 국무총리비서실. (2023. 07. 28). 「오송 궁평2 지하차도 침수사고 감찰조사
결과」 발표.
국토교통부. (2023.07.11). 정자교 붕괴사고 원인조사 및 대책 발표.
김보경. (2024.01.22.). 행안부, 올해부터 ‘재난관리평가’에 국민평가단 도입. 농민신문.
김용우. (2025.03.24.). 공공·민간 자료 다 모았다…부산형 데이터 통합플랫폼 구축 완료. 아시아경제.
김풍옥. (2025.09.26.). 충북도, 중대재해 민관협력자문단 회의 개최. 한국미디어뉴스.
백승현. (2025.04.29). 싱크홀·골프장 사망사고, 중대재해법 적용 안되는 이유. 한국경제.
장혜민. (2024.10.10). 중대재해법 2년간 기소 62건...구속 기소는 단 2건. 한겨레.
홍준표. (2025.08.11). 중대재해기소 100건 넘겼는데, 전체 사고 11% 그쳐 – 중대재해 추적기. 매일노동뉴스.
「중대재해 처벌 등에 관한 법률」
세종특별자치시의회 의회사무처. (2025). 중대시민재해 예방·대응 매뉴얼.
KIM & CHANG. (2025. 07. 14). 「중대재해처벌법」 관련 최근 주요 불기소 사례 및 시사점.
경실련. (2025.04.09). [기자회견] 중대시민재해 대상 현황 분석발표.
임시주거용 조립주택사업
논의 배경 및 필요성 2. 임시주거 분석 3. 임시주거용 조립주택 현황 분석 4. 협회 임시주거용 조립주택사업 개선방안 전국재해구호협회 박현민
산불, 태풍, 지진 등 재난으로 주택피해 이재민은 지속적으로 증가하고 있으며, 특히 2025년 3월 산불로 인하여 주택피해 이재민 대상 역대 최대 임시주거용 조립주택 지원을 계기로 임시주거용 조립 주택의 중요성 부각
민간 구호지원기관 중 임시주거용 조립주택을 자체 제작하여 이를 전문적으로 지원하고 있는 단체는 전국재해구호협회가 유일하며 협회는 2010년부터 총 189동(약 113억 원),
최근 산불, 태풍, 지진 등 대형 재난이 반복되면서 주택피해 이재민이 지속적으로 증가하고 있음. 2025년
산불로 역대 최대의 임시주거용 조립주택이 지원되면서, 임시주거 지원체계의 중요성이 부각되고 있음.
이에 임시주거 개념 및 법제의 변화, 협회 및 지자체의 운영현황 등을 종합적으로 검토하는 연구가 필요함
● 「재해구호법」은 임시주거시설의 제공(제4조)을 규정하나 명확한 정의는 부재함13)
● 시행령 제3조의3 : 학교시설, 마을회관, 경로당 등을 임시주거시설로 규정 → 사실상 ‘대피소’ 개념에 가까움
● 2019년 「재해구호법 시행규칙」 개정 시 임시주거용 조립주택 제공을 명시함14)
● 용어혼용 : 임시주거, 임시구호주택, 대피시설 등 구분 불명확함
일본
● 「재해구조법」에 임시주거시설 내용을 명시함
● 임시주거시설을 대피소와 응급가설주택(건설형 / 임대형)으로 명확히 구분함
● 응급가설주택 : 자력으로 주택 마련이 불가능한 이재민 대상 지원 → 한국의 임시주거용 조립주택에 해당함
한국
● 1950년대 : 「피난민 수용에 관한 임시조치법」 제정 → 피난민 수용소 중심
● 1962년 : 「재해구호법」 제정 → 임시주거시설 법제화
● 1990년대 : 태풍 피해자 대상 컨테이너 주택 등장
● 2002년 : 태풍(매미) → 컨테이너형 임시주택 79동 지원
[그림 1] 이재민 지원주택 변화15)

● 2010년 : 연평도 포격 → 조립식 임시주택 도입
● 2017년 : 포항지진 → 임시주거용 조립주택 필요성 계기
● 2020년대 : 대형산불 → 임시주거용 조립주택 지원 증가
일본
● 1923년 : 관동대지진 가설주택 지원 → 응급가설주택 시초
● 1960년대 : 프리패브 기술 도입 → 공업화된 응급가설주택 보급
● 2000년대 : 대형지진, 쓰나미 → 대규모 응급가설주택 지원 증가
13) 이상희, (2023), 재해임시주거시설의 거주만족도 향상을 위한 연구, 제주대학교 대학원 14) 재해구호법 시행규칙 제1조의2(임시주거시설의 제공 등), 행정안전부령 제495호, 2019
15) 국립재난안전연구원, (2023). 이재민 임시주거용 조립주택 개선방안 연구
● 중심법령 : 행정안전부 「재해구호법」
행정안전부 : 「임시주거용 조립주택 운영지침」을 통해 재난
운영·관리 기준 마련함16) - 국토교통부 : 임시주거를
[그림 2] 재난 임시주거에 관한 법제 틀17)
구호 주체
재해구호법 제2조 시행령 제1조의3
구호기관 및 구호 지원기관의 정의
재해구호법.령.규칙(행정안전부)
건축법(국토교통부)
구호의 대상 구호 계획 수립 행정적 기준 구호의 종류.방법 규제 및 완화
재해구호법 제3조 시행령 제1조의2
구호 지원을 받는 이재민의 정의
재해구호법 제5조 시행령 제4조
재해구호계획 수립지침
재해구호법 제4조 시행령 제2조, 규칙 제1조의2
건축법 제20조 건축법 제29조 건축법 제20조 시행령 제15조
재해구호를 위한 가설건축물 기준, 적용의 완화내용
구호의 원칙, 구호절차 임시주거의 정의, 관리 및 계획
제2장, 제4장 고시 제2조, 제4조, 제10조 제11조, 별표1, 별표2
구호계획의 절차 및 체계 구호업무의 범위 임시주거 지원의 방침 임시주거 지원 체계
임시주거의 정의,지원의 원칙 임시주거 설치에 필요한 행정 절차, 유지관리, 주택 제작 및 설치요령 표준설계도면
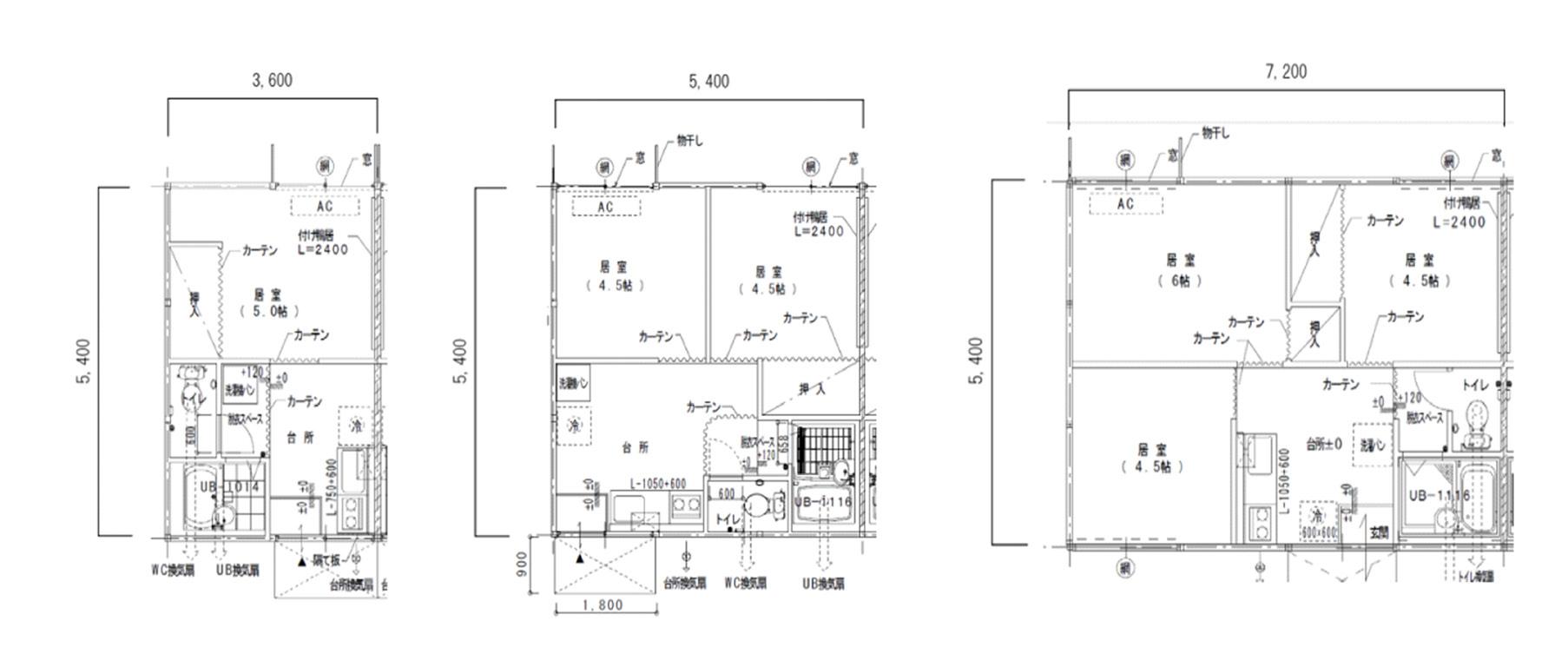
● 주요 내용
- 입지 원칙 : 이재민 소유지를 우선하며 타 부지는 토지소유자 승낙이 필요함
- 표준도(7.2평 / 24㎡) : 방, 거실, 화장실 구성, 냉난방 및 단열기준을 제시함
- 표준도 외 컨테이너형·모듈러형도 지원 가능함
- 임시주거는 ‘조립주택 형태로 단열·난연 성능 인증을 받은 주택’으로 정의함
[그림 3] 임시주거용 조립주택 표준설계도(국토교통부 공고 제2022-977호)

● 「건축법」 규제 완화
- 제20조(가설건축물) : 재난지역의 일시사용 목적 건축물로 규정함
- 제15조(시행령) : 컨테이너 등 임시형태 허용, 공사감리 등 일부 요건 면제함
- 완화항목 : 조경·도로·관계·건축선·높이 제한 등 다수 항목을 완화함
- 평면도·배치도 제출만으로 신고 가능 → 신속공급 중심 구조
● 한계점
- 법제 초점이 공급속도에 치중된 반면 거주성 기준 미흡함
- 운영지침과 건축법의 기준 중복 → 역할 구분 불명확함 - 임시주거가
16) 행정안전부, (2023), 임시주거용 조립주택 운영지침
17) 박연주, (2025), 재난 임시주거에 관한 법제도 개선 연구, 서울대학교 대학원
기본체계
● 중심법령 : 「재해대책기본법」, 「재해구조법」, 「건축기준법」
- 내각부 : 「재해구조법」을 통하여 응급가설주택 기준 및 가이드라인 제정함
- 주요내용
- 「재해구조법」: 임시주거를 응급가설주택으로 정의 → 건설형(직접 건설 제공)과 임대형(민간 주택 임차 제공)
구조18) ● 「건축기준법」 : 국가·지자체·적십자사가 설치하는 임시주거를 가설건축물로 명시 → 재해 발생 1개월 내 착공 시 규제 완화함
재해대책기본법 건축기준법 (국토교통성)
구호 계획 수립
재해대책기본법
방재기본계획수립, 국가.단체의 역할
임시주거제공 관련
내각부 고시 제2조 제1항
구호 지원을 받는 이재민의 정의 집회시설 설치 기준
재해구조법 (내각부)
구호 대상, 주체 구호의 종류
재해구조법 제2조 제2항
재해구조법 제4조
구조의 대상, 구조의 실시대상 피난소, 응급가설주택 활용 근거
건설형 응급주택 공여에 관한 사례집
재해구호를 위한 가설건축물에 대한 행정적 완화 완화 기준 법 제85조
내각부 고시
거주지 확보를 위한 가이드라인 건설형 응급주택 공여에 관한 대비, 대응
재난에 대비한 주거만들기 가이드라인
● 내각부 가이드라인 : 부지 사전지정, 표준도 제시, 단지형 조성, 취약계층(고령자·장애인) 배려 의무화 등
[표 1] 일본 응급가설주택 유형별 내용
1형 6평(5.4×3.6m) 방1, 욕실, 화장실, 현관, 세탁실, 부엌 / 욕실, 화장실, 세탁실 분리
2형 9평(5.4×6.0m)
방2, 욕실, 화장실, 현관, 세탁실, 부엌 / 부엌과 접하고 있는 방을 식당으로 이용
3형 12평(5.4×7.2m) 방3, 욕실, 화장실, 현관, 세탁실, 부엌 / 각 방과 거실 겸 부엌을 접하게 계획
● 법제 특징
- 법제 통합성 : 내각부 - 지자체 - 민간의 협력구조가 명확함
- 거주성 중심 : 단열·방음 등 물리적 환경 외 복지·커뮤니티 복원까지 고려함
- 사전 계획성 : 재난 전 후보지·설계·협약 체결로 신속 대응함 - 취약계층 배려 : 고령자·장애인 맞춤형
[그림 5] 건설형 응급가설주택 표준도19)

- 일본 응급가설주택 표준도 18) 박연주, (2025), 재난 임시주거에
19) 전국재해구호협회, (2007), <주택피해 이재민 임시주거 시설 개선연구>
임시주거용 조립주택은 2010년부터 협회가 가장 전문적으로 추진하고 있는 대표 사업으로, 1세대·2세대 희망하우스 개발부터 전국 지자체 조립주택 지원 확대까지 진행되었음. 협회와 지자체의 제작방식·단가· 지원특성을 비교하여 향후 협회의 역할에 대한 시사점을 도출하고자 함
전국재해구호협회
희망하우스 개발 및 제작
● 1세대 희망하우스20)
- 2007년 ‘임시주거시설 개선사업’ 착수, 연세대 이상호 교수 연구용역 의뢰
주택 개발(3×6m, 5.5평)
- 2008년 소방방재청 주요개선사업으로 선정함
- 2009~2010년 현대자동차


20) 전국재해구호협회, (2011), <재해 50년 나눔 50년>
● 2세대 희망하우스21)
- 2017년 포항지진을 계기로 삼우종합설계사무소와 협업 → 모듈러식 주택 개발(3×9m, 8.2평)
- 손해보험협회 등 후원으로 제작함
- 표준도 및 사진


지원현황
● 1세대 희망하우스
- 2010년 연평도 39동을 시작으로 2020년까지 총 124동 지원함
- 2020년 지원 종료 및 잔여 희망하우스 매각함
● 2세대 희망하우스
- 2021년 광양시 4동을 시작으로 현재까지 총 65동 지원함
- 2025년 하반기 50동 추가지원 예정(청송군 및 영덕군)
- 총 189동 지원22)
21) 권준우, 차재영, (2021), 모듈형 이동식 주택(이재민 임시주거시설) 제작, 한국설비기술협회
22) 전국재해구호협회, (2010~2025), <연차보고서>
2010 포격 39 인천시 옹진군(연평도) 5.5평(3×6m)
2011 호우 2 전북 정읍시, 경남 산청군 5.5평(3×6m)
2012 호우 6 전남 해남군(4) / 영암군, 경남 함양군 5.5평(3×6m)
2013 산불 20 울산시 울주군 5.5평(3×6m)
2014 호우 4 부산시 기장군(3), 전남 해남군 5.5평(3×6m)
2016 지진 1 울산시 울주군 5.5평(3×6m)
태풍 1
울산시 울주군
2017 산불 8 강원 강릉시(7) / 삼척시 5.5평(3×6m)
29
2018
4
6
2020 호우 2 전북 정읍시, 전남 나주시
산불 2
5.5평(3×6m)
2021 호우 4 전남 광양시 8.2평(3×9m)
태풍 1 경북 포항시
2022 산불 12 경북 울진군 8.2평(3×9m)
2024 호우 4 충남 당진시, 전남 강진군 / 신안군(2) 8.2평(3×9m)
2025 포격 1 경기 포천시 8.2평(3×9m)
산불 43 경북 의성군(30) / 영양군(8) / 청송군(5) 8.2평(3×9m)
합계 189 국내 9개 시·도 / 23개 시·군·구 5개 유형
● 2017년 포항지진을 계기로 본격 지원함 ● 지자체 지원 : 총 3,541동 지원23)
35 46
울진군 10 영덕군 1 산불 - - - - 강원
용인시 1 강원 철원군 1
충주시 13
제천시 19
충북
음성군 3
1 4 경기 안성시 9 129
275 337 속초시 23 강릉시 34 동해시 5 2020 133
충남 예산군 4
담양군 18
단양군 2 전남 나주시 1
전남 구례군 50
곡성군 6
함평군 3
산불 경북 안동시 2 - - - -
5 5
23
3
호우 - -경기 양평군 8 충남 부여군 5
태풍 - - - 경북 포항시 2
1
1
영주시 2
청송군 1 예천군 29
2 206
봉화군 9
대구 군위군 5
태풍 - - -
경북 김천시 1
산불 - -강원 강릉시 124 충남 홍성군 32
1
2
의성군 30
8
5
1,522억 원(1동 평균 약 4,300만 원) / 연평균 109억 원, 253동 23) 행정안전부, (2025), 재난구호과 자료를 바탕으로 재편집
211
86
496
781
임시주거용 조립주택 비교
협회 및 지자체 제작비용 차이
● 임시주거용 조립주택 크기 및 내부 제원 차이로 인하여 제작 단가 차이가 발생함24)
임시주거용 조립주택사업
- 협회 예산(1동당 약 6,000만 원) : 사이즈(3×9m, 8.2평), 모듈러 주택, 지진하중 설계 반영, 대기업 내장재 사용 - 지자체 예산(1동당 약 4,300만 원)25) : 사이즈(3×8m, 7.2평), 컨테이너 주택, 지진하중 설계 미반영,
중소기업 내장재 사용
협회 희망하우스 우수성26)
● 최신 기준에 맞춘 설계기준 : 지진하중, 적설하중, 풍하중, 활하중 등 정부지침을 최대한
준용하되 이를 상회하는 기준으로 설계함
● 모듈형 설계 : 일반 조립주택에 비해 대량생산 및 지속생산을 고려한 모듈러 방식 프로세스 적용함
● 주거성능 개선 : 정부 표준도(3×8m, 7.2평) 대비 큰 구조(3×9m, 8.2평)로 방, 거실 겸 부엌, 화장실, 현관 등의 공간 구성으로 거주성 확보함
● 개선사항 : 크기·하중 고려 진입로, 크레인 작업 등 설치부지 대상 사전·타당성 조사 필요함
임시주거용 조립주택 지원현황 특징 협회 ● 협회는 2010년 연평도 포격 시 최초 39동 지원 시작 이후 2025년 현재까지 총 189동 지원함 - 비용추산 : 약 113억 원 / 연평균 13동 지원 - 주요재원은 기업 기부금으로 조달함
24) 협회는 1동 약 6,000만 원, 지자체는 1동 약 4,300만 원 기준으로 비용추산
25) 중앙재난안전대책본부, (2024), <2024년 자연재난조사 및 복구계획수립 편람>, 행정안전부
26) 권준우, 차재영, (2021), 모듈형 이동식 주택(이재민 임시주거시설) 제작, 한국설비기술협회
지자체
● 지자체는 2017년 포항지진을 계기로 현재까지 총 3,541동 지원함
- 비용추산 : 약 1,522억 원 / 연평균 253동 지원
- 주요재원은 국비 및 지방비로 조달함
지원 특징
● 협회는 ‘전문성·신속성’ 중심이며, 지자체는 ‘대량공급·행정지원’ 중심임
● 5개 재난유형27), 12개 광역시·도, 47개 시·군·구 대상 총 3,730동 지원
● 비용추산 : 약 1,635억 원(협회 113억 원 / 지자체 1,522억 원)
4. 협회 임시주거용 조립주택사업
희망하우스(HOPE HOUSE) 통합 브랜드 사업 추진
임시주거용 조립주택은 협회의 핵심사업으로 성장해 왔으며, 향후 브랜드 강화 및 전문성 구축을 위해 브랜드화·조직화·매뉴얼·연구사업 등 다음과 같은 종합적인 개선이 요구됨
임시주거용 조립주택 사업을 협회의 대표사업으로 확대·육성 ● 슬로건(예 : 재난 후 첫 번째 집, 다시 시작의 공간) 개발 및 후원
희망하우스(임시주거용 조립주택) 사업 전담조직
조직개편 및 기능 강화 검토
● (가칭) ‘희망하우스 사업팀’ 신설 등을 통하여 임시주거용 조립주택 전담조직으로 개편함
● 재난 초기 임시주택 수요조사, 지자체 협의, 부지선정, 시공까지 일원화된 임시주거 서비스 제공 강화함
개발 및 보급
임시주거용
지자체 임시주거 담당자 대상 워크숍 등을 통하여 협회 사업소개·홍보
네트워크 구축 강화함
학계 및 정부 공동연구사업 진행
아주대학교, 한국재난안전연구원, 건축공간연구원, 한국건설기술연구원 등 전문가 집단 협업을 통하여 모듈러주택 관련 공동 연구
● 임시주거용 조립주택 개선사항 반영으로 ‘3세대 희망하우스’ 개발 연구함
● 재해구호수립지침에 명시된 임시주거용 조립주택 협회 위탁사업 연구함
국립재난안전연구원. (2023). 이재민 임시주거용 조립주택 개선방안 연구.
권준우, 차재영. (2021). 모듈형 이동식 주택(이재민 임시주거시설) 제작. 한국설비기술협회.
박연주. (2025). 재난 임시주거에 관한 법제도 개선 연구. 서울대학교 대학원.
박유나, 백선경, 윤진희. (2024). 이재민 생활안전을 위한 임시주거용 조립주택 단지 조성 방안. 건축공간연구원.
왕우철, 송영학, 임석호. (2012). 일본의 임시주거시설 실태조사 연구. 한국주거학회 2012 춘계학술발표대회 논문집.
이상희. (2023). 재해임시주거시설의 거주만족도 향상을 위한 연구. 제주대학교 대학원.
중앙안전대책본부. (2024). 2024년 자연재난 조사 및 복구계획 수립 편람. 행정안전부.
전국재해구호협회. (2011). 재해 50년, 나눔 50년.
전국재해구호협회. (2007). 주택피해 이재민 임시주거시설 개선연구.
행정안전부. (2023). 임시주거용 조립주택 운영지침.
행정안전부. (2025). 재해구호계획 수립지침 2025.
건축법. (2024). 국가법령정보센터.
재해구호법. (2024). 국가법령정보센터.
국가기록포털. www.archives.go.kr
희망브리지 전국재해구호협회 포털. www.hopebridge.or.kr
전국재해구호협회
목차
1. 논의 배경 및 필요성
2. 법·제도 분석 및 정책 검토
3. 한계점
4. 정책적 제언
평균기온 상승과 장기화되는 폭염으로 피해가 해마다 증가하고 있음. 특히 고령자, 어린이, 장애인,
저소득층 등 안전취약계층은 신체적·사회적 취약성과 열악한 주거환경으로 인하여 보다 더 심각한
피해를 입고 있음
정부·지자체는 무더위쉼터 운영, 냉방비 지원, 건강돌봄 서비스 등을 제공하나 접근성 한계, 단기·
사후적 대응, 지역 간 편차, 제도적 강제력 부족 등으로 실효성이 낮음. 또한 민간단체의 지원은 지속
안전취약계층 사회안전망 구축 방안
기후위기가 심화되면서 폭염은 더 이상 일시적·계절적 현상이 아니라 사회 전반의 안전과 건강을 위협
하는 구조적 재난으로 자리잡고 있음
실제로 폭염기간과 평균기온이 매년 상승하는 가운데 안전취약계층을 중심으로 온열질환자와 사망자
역시 꾸준히 증가하고 있어, 기존제도와 대응방식만으로는 취약계층을 충분히 보호하기 어렵다는 점이
명확해지는 중임
이러한 상황에서 폭염의
용어의 정의
● ‘안전취약계층’이라 함은 그 밖에 재난이나
사람을 의미함28)
● ‘사회안전망’이라 함은 긴급구호가 필요한 자에게 최소한의 생계 및 건강유지를 지원하는 것을 의미함29) 폭염의 사회적 영향
● 최근 여름은 과거 ‘기록적 폭염’으로 꼽혔던 2018년, 2024년보다 더 강렬한 경향을 나타 내고 있음. 2025년 평균기온은 25.7℃로 역대 1위, 폭염기간은 28.1일로 역대 3위를 기록 하였음30)
● 2025년 5~9월 사이 4,460명의 온열 질환자가 발생하였고 29명이 사망하였음31)
(출처 : 질병관리청)
● 정부는 무더위쉼터, 냉방비 지원, 건강돌봄서비스 등을 시행하고 있으나 접근성 부족,
사각지대, 사후 중심 정책이라는 한계로 반복되는 폭염 피해 예방이 충분하지 않음
● 이러한 문제를 해결하기 위해서는 사전예방 중심33)의
으로 강화된 지원체계를 통해 안전취약계층을 우선적으로 보호하고 지속가능한 대응체계 마련이 필수적임
● 이에 본 연구는
28) 「재난 및 안전관리 기본법」 시행령 제39조의 2
29) 경제용어사전(사회안전망의 정의)
30) 2025년 여름철 기후특성(기상청)
31) 2025년 온열질환감시체계 운영 결과(5.15.~9.9.)(질병관리청)
32) 황보람·이상헌 (2022).「기후변화 취약계층의 위험인식과 보호행동 연구」재난안전연구, pp.55–76
33) 조형민(2020). 「폭염 대응정책의 실효성 평가와 개선방안」 한국행정연구, pp.111–140 제도적 한계
폭염이 법정 자연재난으로 지정된 이후 정부와 지자체는 다양한 법·제도적 장치를 마련해 대응체계를
구축해 왔음
그러나 기후변화로 인한 폭염의 양상은 더욱 장기화·고강도화되고 있으며, 기존제도만으로는 빠르게 변화
하는 위험에 충분히 대응하기 어려운 상황임
본 장에서는 폭염 대응과 관련된 법령 및 행정 지침을 검토하고, 중앙정부 및 지자체가
분석 「재난 및 안전관리 기본법」
● 2018년 법개정 후 폭염은 태풍, 호우 등과 함께 법정 자연재난으로 포함됨에 따라 행정 안전부, 지자체 등 관련 기관은 폭염대응계획 수립과 집행 의무를 가지며 중앙재난안전대책
본부 가동이 가능해짐
● 자연재난(낙뢰, 가뭄, 폭염, 한파 등)으로 인한 피해발생 시 신속복구를 위한 사회안전망 확충을 강조함
「폭염 재난 관리지침」
● 행정안전부는 폭염경보 발령, 대응단계별 조치사항(예 : 무더위쉼터 운영, 건강 취약자 관리, 응급의료 체계 가동 등)을 규정하고 있음. 그러나 지자체별 집행수준이 상이하고 법적 강제력보다는 권고 수준에 머무는 한계임
질병관리청 폭염경보 및 특보제도
● 질병관리청 ‘건강위해정보’는 일최고 체감온도 33℃ 이상이 2일 이상, 체감온도 35℃ 이상이
2일 이상 지속 예상 또는 중대한 피해발생 예상 시 폭염주의보 내지 폭염경보를 발령함
● 기상청, 행정안전부 등은 폭염특보 확대에 따라 경보단계를 조정하여 비상대응체계를 강화함
행정안전부 폭염 종합대책
● 매년 여름 ‘폭염 종합대책’을 발표하여 폭염대비 종합 지침을 제공함
● 2024년 기준 △무더위쉼터 확대 △냉방비 지원 △노인·장애인 방문 건강관리 서비스 △ 온열질환 감시체계 등을 포함하였음
보건복지부 냉방비 지원 사업 및 노인돌봄 서비스
● 2025년 7~8월 전국 경로당 6만 9천개소에 월 16만 5천 원, 사회복지시설에 월 10~50 만 원 냉방비가 지원됨34)
● 독거노인·거동 불편노인 대상 생활지원사, 요양보호사 등이 정기적으로 방문하여 안부·건강 등을 확인함
● 폭염기에는 냉방기기 사용여부, 건강이상 징후 점검 및 응급상황 발생 시 즉각 의료기관과 연계하여 대응체계를 구축함
● 지자체 보건소는 간호사, 영양사 등 전문인력이 취약계층에 직접 방문함
산업통상자원부 에너지바우처 지원
● 저소득 고령층을 위한 에너지바우처 제도가 시행되고 있으며 여름철 1인 가구는 약 30만 원, 2~3인 가구는 약 40~50만 원을 지원하였음35)
소방청 응급대응 및 구조체계
● 소방청은 폭염기 폭염 구급대36)를 본격 가동하고 최근 5년간 온열질환자 지속 증가에 따라 긴급출동
지자체 주요정책 현황
무더위쉼터 운영
● 2025년 기준 전국에서 지정·운영 중인 무더위쉼터는 약 6만 7천여 개소임37). 이는 전년
대비 약 14% 증가하였으나 지자체별 접근성·운영시간·시설유형 등이 다양하여 지역마다 편차가 존재함
● 지자체 폭염대책 현황 조사 결과 전국 161개 지자체 중 126곳이 ‘기후변화 적응대책 세부
시행계획’을 수립38)하였고 그 중 상당수가 폭염대책을 포함함
냉방비 및 생활지원 정책
● 일부 지자체는 자체 재원을 활용해 냉방비(세대수, 소득에 따라 편차 존재)를 긴급 지원하고 있으나, 전국적으로 제도화되어 있지 않음
● 예산편차로 인하여 도시지역은 비교적 지원이 활발하나 농촌지역은 미비
돌봄서비스 및 모니터링
● 돌봄인력·자원봉사자 등 활용을 통하여 독거노인 안부확인, 응급연락망 운영 등을 시행함
민간단체 대응
● 민간단체와 기업은 쿨링키트, 생수, 냉방용품 배포, 이동형 냉방차량 운영 등 다양한 지원 활동을 전개함. 다만 일회성 지원에 머무는 경우가 많아 지속가능한 돌봄 서비스와의 연계 부족은 추후 해결해야 할 과제임 ● 시민사회와 지역 커뮤니티의 자발적 활동(예 : 자율방재단, 지역 봉사단체 등)이
34) 보건복지부 「2025년 여름철 취약계층 보호 대책」
35) 2025 에너지바우처 통합센터
36) 2025.05 소방청 브리핑
37) 2025 행정안전부 폭염대책 종합자료
38) 2022 「지자체 폭염대책 현황과 시사점」(WP 22-32호). p.15
폭염대응 제도와 정책이 과거보다 다양해지고 규모도 확대되고 있으나, 현실적 여건과 집행과정에서
드러나는 구조적 한계는 여전히 해소되지 못하고 있음
특히 무더위쉼터 접근성 부족, 냉방비 지원 제한성, 지자체별 재정편차에 따른 지원격차 등은 취약계층의
위험을 충분히 줄이지 못하였고 사후지원 중심의 단기적 정책이 반복되면서 장기적 예방과 구조적 개선이
이루어지지 않는 악순환도 지속되고 있음
이에 본 장에서는 정부·지자체·민간의 정책
법·제도의 한계
● 「재난 및 안전관리 기본법」,「폭염 재난 관리지침」등 제도적 기반이 마련되어
정책 및 실태는 사후적·단기적 지원에 치중됨
● 무더위쉼터, 냉방비 지원, 돌봄서비스 등이 시행되고 있으나 접근성 한계, 분산 지원, 지자체별 편차 등 구조적 문제가 지속적으로 발생
● 지역간 격차 및 형평성 문제는 농촌 거주자·저소득층 등 재난취약계층을 더욱 폭염위험에 노출시키는 원인으로 작용함 중앙정부 주요정책의 한계
보호 사각지대 존재
● 냉방비 등 지원이 에너지바우처
● 소방청 ‘폭염119 안전대책본부’ 활동에서도 현장대원 안전확보조치 등이 시행되고 있으나 지속가능성 및 재정·인력확보가 과제로 지적됨
취약계층 중심 지원체계의 사각지대 존재
● 사망자 및 온열질환자 대부분이 고령자, 야외노동자, 농촌노인, 저소득층 등 안전취약 계층에 집중됨
● 취약계층 밀집 지역 내 냉방시설·경보정보 접근 및 활용성·의료 응급서비스 등이 부족한 상태임
● 무더위쉼터 운영, 돌봄 서비스 확대 등 각종 정책이 전국단위로 시행되고 있지만 접근성, 운영시간, 실효성, 지역·재정별 편차 등이 존재함39)
● 기타 무더위쉼터 일상 이용률 저조, 정책 전달력 미흡, 야간·비상시 대응한계 등은 지속적 문제로 노정되고 있음
제도의 단기성 / 사후적 대응중심
● 지자체 폭염대책 중 건강부문 사업이 약 57.8%로 단기적·직접적 대응중심40)이며 중장기· 구조적 대책(녹지공간 확충, 도시열섬41) 완화 등)은 낮은 비중 차지
● 폭염피해 예측 및 조기경보 시스템은 있으나 예방적 조치(예 : 야외노동 규제, 냉방비 지원확대 등)의 제도화는 다소 미흡
지역 간 불평등·예산 및 사업편차 심화
● 도시지역이 농촌지역보다 폭염대책 사업, 예산 등이 현저히 많음. 농촌지역은 대책 수립 자체가 누락되거나 사업 범위가 제한적임 ※ 도시와 농촌 지역 간 5년간 평균 예산 격차는 약 4배(도시 373억, 농촌 97억) ● 지자체별 폭염대응 정책이 다르며 취약계층 밀집 지역일수록 지원이 미흡함
[그림 1] 부문별 폭염대책 관련 세부사업 비율42)
민간단체 대응의 한계
단기·계절 한정성
● 민간지원은 일회성 물품 배포 수준에 머무는 경우가 많음
● 대부분 여름철 일시지원에 집중되어 있어 장기적인 예방효과는 다소 부족함
정보전달 한계
● 폭염특보·쉼터 운영정보가 고령층, 저소득층 등 정보 접근성이 낮은 대상에는 충분히 전달 되지 않음
39) 취약계층을 고려한 무더위쉼터 개선 방안(김대수 외 2명), pp.213~215
40) 2022 「지자체 폭염대책 현황과 시사점」 (WP 22-32호). p.18
41) 김주원·최혜영 (2020). 「도시 열환경과 폭염 취약계층 분포의 공간적 상관성 분석」, 한국지리정보학회지, pp. 85–101
42) 2022 「지자체 폭염대책 현황과 시사점」 (WP 22-32호). p.19
앞선 분석을 종합해보면, 폭염으로 인한 안전취약계층 보호를 위해서는 단편적 지원이나 단기 대책을
넘어, 국가·지자체·민간이 함께 참여하는 다층적이고 지속가능한 사회안전망을 재정비할 필요가 있음
폭염을 ‘국가적 기후재난’으로 재정의하고, 모든 정책영역에서 예방중심 패러다임으로 전환하는 것이
중요하며 실질적인 피해 감소와 대응속도 향상을 위해 취약계층 데이터 통합관리, 무더위쉼터 운영기준의
표준화, 폭염 전담의료·응급대응 체계구축, 사전등록제 도입, 위험지도 기반 선제대응, 생활권 중심의 냉방·급수
● 중앙정부는 폭염을 국가차원 기후재난·보건위기 영역으로 재정의하고, 표준·데이터·의료· 예산조정 등 전국단위 인프라 확대 역할을 수행하여야 함
폭염대응 국가 전략화
● 폭염을 기후재난 대응 국가전략 핵심영역으로 상향하고 관련 법·재정·조직을 개편하여 사전예방 중심의 정책 기조로 전환하여야 함
● 「재난 및 안전관리 기본법」 및 폭염 관리지침 보완을 통하여 중앙 / 지자체 / 민간 역할을 법적 의무로 명문화 필요
폭염 취약계층 통합 DB 구축
● 복지부·행안부·보건소·소방청
● 고위험군 정보는 지자체·민간단체가 공동 활용하여 사전 모니터링 및 긴급대응시 활용
폭염전담 응급·의료 네트워크 구축
● 보건복지부 주관 여름철 응급병상·의료인력·냉방장비를 사전 확보하고 ‘폭염 전담 의료기관’ 지정
● 소방청은 폭염119 대책본부를 상시 조직화하여 응급출동·급수·냉방텐트 운영 체계화
무더위쉼터 국가 표준인증제 도입
● 운영시간, 냉방 기준 온도, 휴일·야간개방 여부 등 최소 기준을 국가 표준으로 제정
● 지자체 및 민간단체가 운영하는 임시쉼터도 최소 요건을 규정하거나, 인증제 신청시 인센 티브를 부여하는 등 국가 / 지자체 / 민간 품질 통일
● 지자체는 주민과 가장 가까운 위치에서 폭염 대응을 직접 실행하는 핵심 주체로서 사전 등록 – 모니터링 – 쉼터운영 – 현장대응의 총괄역할을 담당
폭염취약가구 사전등록제 도입
● 긴급상황 시 안전취약계층의 신속한 보호가 어려움에 따라 재난발생 후 대응(사후조치) 중심 한계 극복 및 사전예방형 맞춤지원 체계마련 필요
● 지자체·보건소 등이 공유 가능한 등록 명부를 구축하여 폭염경보 시 자동 연락, 냉방비·키트 우선 지원, 쉼터 안내 등 즉각적 대응 가능
● 취약계층별 위험단계별 관리로 맞춤형 대응(예 : 방문, 전화, 물품지원 등) 및 생활지원사·자원
● 장기적으로 폭염뿐만 아니라 한파, 감염병 등에도 활용 가능한 통합 재난취약계층 관리 시스템으로 적용 가능
이동형·야간·생활권 쉼터 확충
● 경로당·복지관 중심의 기존 쉼터에서 벗어나 △ 이동형 쿨링버스 △ 야간쉼터 △ 공원· 지하철 등 생활권 기반 쉼터 확대 등 다층 쉼터 체계 구축
● 민간단체 및 기업 CSR과 연계한 민관 공동쉼터 운영 모델 확대
지역 폭염 위험지도 작성
● 온열질환 발생지, 공사현장·노숙인 밀집구역, 고령층 밀집지역 등을 반영하여 생활권 위험 지도 작성 및 상시 모니터링 등을 통하여 선제적 피해 예방 및 긴급상황시 빠른 대응
지역사회 통합대응체계 운영
● 보건소·자원봉사센터·자율방재단·방문돌봄 인력 등을 통합 운영하여(가칭) ‘폭염대응 매니저’ 제도 도입 검토
● 위험군 전화·방문 확인, 응급상황 시 즉시 구조 연결 시스템 구축 등 도입
생활권 단위 : 주민 체감중심 대응
● 생활권에서는 주민이 직접 체감할 수 있는 열환경 완화 – 안전행동 – 냉방·급수 등 접근성 관련 대응체계 고도화 필요
도시 열환경 개선(쿨루프·그늘·녹지 확충)
● 지자체는 생활권 교통시설·보도·버스정류장 중심 그늘·쿨루프·쿨로드 등 열저감 인프라 지속 확충 야외노동자 보호제도 강화 지원 ● 폭염경보 시 작업중지 기준 의무화 및 냉방휴식시간·냉방시설 설치규정 강화
생활권 냉방·급수 인프라 확충
● 공원·광장·거리 그늘 벤치, 이동식 음수대, 공공건물 냉방 공유 등 체감형 정책 확대
생활권 중심 다중 정보전달체계 확대
● 문자, 마을방송, 고령층 자동 음성안내, 지도 기반 쉼터 안내, SNS 등으로 다중채널 이용 서비스 제공
● 민간단체는 카드뉴스·영상·리플릿 등 제작을 통하여 정보격차 해소 역할
핵심 기능 - 법·제도 정비 - 의료·응급, 쉼터기준 마련 - 사전등록제, 위험지도, 쉼터 운영, 현장관리 - 열환경 개선, 정보전달, 냉방·급수 인프라
주요
역할 - 폭염취약도지수 개발 - 응급의료 네트워크 조정 - 취약가구 관리, 생활권 쉼터운영, 지역통합대응 - 현장 모니터링·쉼터 운영 지원 및 협력
협회 역할제언
폭염대응형 구호사업 브랜드화
● 폭염키트를 핵심 아이템으로 하여 냉찜질팩·쿨타월·미니선풍기·선크림·건강 안내카드 등을 포함한 표준 구호패키지 제작 및 운영
● 전국 지자체·기업 협력을 통하여 신속 지원체계
● 구성품 개선 및
● 제작규모 : 기존 폭염키트 대비 규모 확대(예산범위 내 최대 제작)
● 배포체계
– 전국 신청 지자체 협력망을 통해 배포
– 폭염특보 발령 시 신속 배포 가능한 ‘긴급지원 매뉴얼 및 프로세스’ 마련
● 기대효과 : 단기 구호를 넘어 지속가능한 ‘폭염 대응형 구호사업’ 브랜드 검토·구축
폭염대응 교육 캠페인·홍보자료 제작
● 대상별 맞춤형 교안자료(예시)
– 일반시민 : 10초 행동요령’ 포스터
– 초등학생 : 만화형 카드뉴스 – 고령층 : 글자 확대형 리플릿(큰 글씨, 그림 중심)
– 폭염취약계층 돌봄인력 대상 교안 제작
● 홍보 콘텐츠
– 카드뉴스(폭염경보 시 행동요령), 짧은 영상, 인포그래픽(폭염대비 물품 준비)
– 전국 행정복지센터, 지자체 홈페이지, SNS 등 연계 배포
● 추진일정 : 매년 5월 ‘폭염대비 홍보주간’ 지정 검토
● 기대효과 : 폭염대응 인식향상, 협회 교육·사업기능 강화, 홍보 이미지 제고 맺음말
● 폭염이 반복적·구조적 재난으로 전환된 현 시점에서, 안전취약계층 보호를 위한 대응은 단기적 지원을 넘어 사전예방 중심의 사회안전망으로 재편될 필요가 있음
● 취약계층 통합 관리, 생활권 중심 쉼터확대, 폭염대응형 구호사업의 표준화는
김대수 (2020) 취약계층을 고려한 무더위쉼터 개선 방안(김대수 외 2명). 환경정책 제28권 제2호 2020.6: 211-230. pp.213~215.
박종화 (2022) 「지자체 폭염대책 현황과 시사점」(WP 22-32호). 국토연구원. pp.15~19.
김종엽·손정우 (2019) 「도시 폭염 취약성 평가 및 대응방안 연구」, 한국지역개발학회지, pp.153–174.
신현석·김유진 (2021). 「기후위기 시대 폭염 취약계층 건강보호 정책 분석」, 보건사회연구, 41(3), pp.350–375.
김주원·최혜영 (2020). 「도시 열환경과 폭염 취약계층 분포의 공간적 상관성 분석」 한국지리 정보학회지, pp.85–101.
조형민(2020). 「폭염 대응정책의 실효성 평가와 개선방안」 한국행정연구, pp.111–140.
황보람·이상헌 (2022). 「기후변화 취약계층의 위험인식과 보호행동 연구」 재난안전연구, pp.55–76.
이정은·김현수 (2023). 「기후취약계층의 폭염 대응행태 및 정책 수요 분석」 보건정책학회지, pp. 76–95.
행정안전부. 2025. 「2025년 여름철 자연재난(풍수해·폭염) 종합대책」.
기상청. 2025. 「2025년 여름철 기후특성」, 기상청.
질병관리청. 2025. 「2025년 온열질환감시체계 운영 결과(5.15.~9.9.)」.
질병관리청. 2025.10.16. 「2025년 온열질환 응급실감시체계 운영결과 발표」.
보건복지부. 2025.06.05. 「2025년 여름철 취약계층 보호 대책 마련」.
한국에너지공단. 2025. 「2025 에너지바우처 안내」, 에너지바우처 통합센터(한국에너지 공단).
소방청. 2025.08.04. 「폭염119안전대책본부 본격 가동…폭염 대응에 총력」.
소방청. 2025. 「2025년 폭염 대응 119구급활동 대책」.
국가법령정보센터. 2025. 「재난 및 안전관리 기본법 시행령 제39조의2」.
기획재정부. 2020.11.03. 「사회안전망(시사경제용어사전)」.
반기웅. 2025.09.04. 「평균기온 역대 1위·극한호우·가뭄···가장 뜨겁고 요란했던 2025년
여름」, 경향신문.
박해리. 2025.09.19. 「폭염 속 취약계층 지원 대책, 효과와 한계 분석」, 데일리연합.
허윤희. 2025.10.16. 「2025년 온열질환자 4,460명, 전년보다 20% 많아…사망자 29명」, 한겨레.
희망브리지
이슈브리프
발행일 2026년 2월
발행처 (사)전국재해구호협회
기획·편집 전국재해구호협회 기획연구팀
감수자 신훈(행정학 박사)
도 움 김순만
연락처 1544-9595
주 소 (04088) 서울시 마포구 신수로 52
● 본 브리프의 저작권은 (사)전국재해구호협회에 있습니다.