Zonnestraal 8, Heerhugowaard

Page 1


Huizen van Hoekstra enVan Eck

Rustig gelegen

Grote tuin op het zuiden

Energielabel A

Soort eengezinswoning

Type vrijstaande woning Kamers 5

Woonoppervlakte 163 m²

Perceeloppervlakte 410 m²

Inhoud 639 m³

Bouwjaar 2005

Tuin achtertuin, voortuin, zijtuin

Garage aangebouwd steen, parkeerplaats

Verwarming hete lucht verwarming, warmte terugwininstallatie, gashaard

Isolatie volledig geïsoleerd

Energielabel A

De in deze brochure getoonde informatie wordt door Hoekstra & van Eck makelaardij met zorg samengesteld, doch voor de juistheid en volledigheid daarvan kan niet worden ingestaan en kunnen hieraan geen rechten worden ontleend. Spel- en typefouten voorbehouden. De plattegronden zijn geproduceerd voor promotionele doeleinden en ter indicatie. Er kunnen geen rechten aan worden ontleend. Maten zijn niet eigenhandig opgemeten. Indien er twijfel bestaat over de accuratie van de gegevens aangaande deze brochure, is de geïnteresseerde zelf verantwoordelijk voor het nameten van deze gegevens. Voor meer informatie wordt u doorverwezen naar www.hoekstraenvaneck.nl

Verkoper vertelt

Met veel plezier wonen wij in deze duurzame vrijstaande woning met onze twee kinderen. We genieten van de rustige autoluwe straat met supermarkten, scholen en een bushalte op loopafstand. Daarnaast zijn het Park en Strand van Luna ook dichtbij, waar we graag wandelen en waar je kunt meedoen aan (water)sporten zoals suppen, waterskiën of bootcamp. Het is ook handig dat we twee auto’s kunnen parkeren op ons eigen erf, en met slechts 15 minuutjes fietsen zijn we in de binnenstad van Alkmaar.

Onze ruime keuken biedt de perfecte plek om lekker te koken, waarna we gezellig met z’n allen aan de grote eettafel kunnen zitten. Na een lange werkdag is het heerlijk om even bij te komen in het jacuzzi bad in de badkamer, waar ook de kinderen veel plezier van hebben.

Op zonnige dagen vinden wij het heerlijk om buiten in de tuin te zijn. We relaxen op onze ligbedjes of

genieten van een gezellige BBQ met vrienden en familie. Dankzij onze tuin op het zuiden hebben we vrijwel de hele dag zon, maar de grote overkapping zorgt ook voor voldoende schaduw.

ruim opgezet Veel
ontspannen

Zodra je dit huis binnenstapt via de ruimtelijke entree, voel je het – dit is niet zomaar een huis, dit is een thuis. De lichte en luchtige woonkamer met openslaande deuren naar de tuin vormt het hart van het huis, waar je gezellig samen komt en van de tuin geniet.

De woning is voorzien van strakke, glad gestuukte wanden en een moderne PVC vloer op de begane grond ( en op de 1e verdieping), wat zorgt voor een tijdloze en chique uitstraling. Hierdoor voelt het huis direct luxueus en afgewerkt aan.

Open keuken

met kookeiland

lekker kokkerellen

Koken wordt een dagelijks genoegen in deze luxe keuken uit 2019. Het kookeiland en de uitgebreide inbouwapparatuur, waaronder een Quooker, nodigen uit tot het creëren van gastronomische hoogstandjes en zorgen ervoor dat je graag tijd in de keuken doorbrengt.

Slaap lekker

4 slaapkamers

nette badkamer

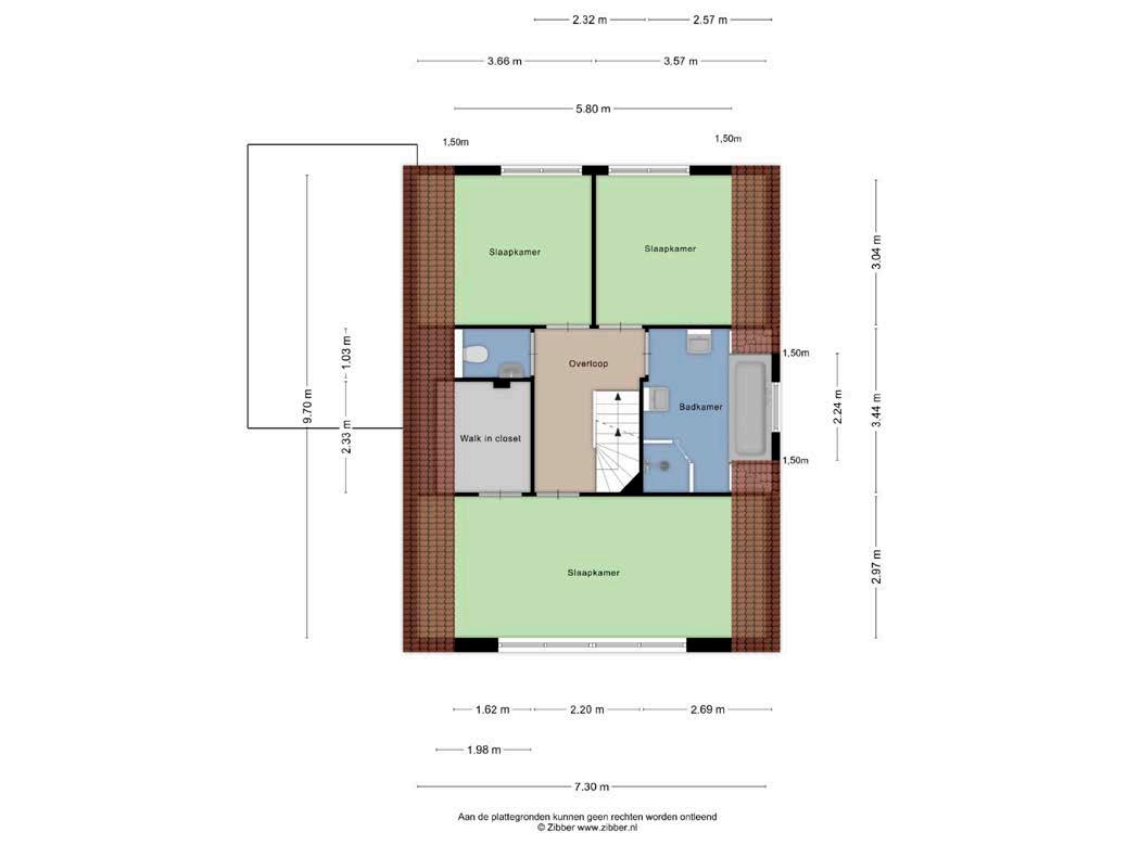
Op de eerste verdieping bevinden zich drie ruimtelijke slaapkamers en een badkamer die comfort en luxe uitstralen. Hier vind je alles wat je nodig hebt om tot rust te komen na een drukke dag. Een separaat toilet vergroot daarbij het leefgemak.

De badkamer met whirlpool bad en separaat toilet is praktisch en geeft dat beetje extra luxe dat het dagelijks leven aangenamer maakt.

De ruime zolderverdieping biedt momenteel plaats aan een extra kamer welke nu in gebruik is als logeer-/werkkamer, waardoor het huis flexibel is in te delen. Naast deze kamer heb je hier een handige wasruimte en is er toegang tot de heteluchtverwarmingsunit en extra bergruimte op de vliering.

zonnig
Lekker ruim genieten

De fraaie architectuur geeft het huis een kenmerkende en aantrekkelijke uitstraling. De goed onderhouden gevel en het doordachte ontwerp geven je elke keer dat je thuiskomt een gevoel van trots. Dit huis onderscheidt zich door zijn eigen karakter en charme.

Geniet van je eigen zuidelijk gelegen tuin, waar je vanaf vroeg in de lente tot laat in de herfst kunt bijkomen, spelen en entertainen. De overkapping staat garant voor vele gezellige uren buiten, ongeacht het weer.

Heerhugowaard

Heerhugowaard, ook wel de Stad van de Kansen genoemd is een groeigemeente. Er zijn veel verschillende wijken in Heerhugowaard en hier komen nog steeds nieuwe wijken bij. Zo heb je in het zuiden de welbekende Stad van de Zon, in het westen de Broekhorn en aan de noordoostzijde De Draai.

Ondanks de mooie landelijke ligging mag Heerhugowaard zich toch zeker een stad noemen. In het moderne stadshart vind je het grootste overdekte winkelcentrum van Noord-Holland, Middenwaard. Hier kun je terecht voor een zeer ruim en compleet winkelaanbod. Ook vind je hier in de buurt vele goede restaurants, gezellige terrassen, een bioscoop, de bowling en het moderne theater Cool. Kortom, voor iedereen is er wel iets te vinden in Heerhugowaard.

Verder vind je in Heerhugowaard vele verschillende sportfaciliteiten, dependance van het Noordwest ziekenhuis, diverse onderwijsinstellingen en veel recreatiemogelijkheden in het grote parkbos “het Waardenhout”, het Strand van Luna en het Park van Luna.

Heerhugowaard is gelegen in de gemeente Dijk en Waard.

heerlijk wonen in Heerhugowaard
noorden kadastrale kaart

HEERHUGOWAARD

ALKMAAR LANDSMEER

Lokaal makelaarschap

Wij geloven sterk in lokaal makelaarschap. Kennis van de buurt, de omgeving en de daarbij behorende ontwikkeling van de huizenprijzen zijn onmisbaar om voor jou het maximale resultaat te boeken.

Met Hoekstra & van Eck kies je voor:

• makelaars die al jarenlang verbonden zijn met de regio

• kennis van de lokale woningmarkt

• een verkoopplan afgestemd op jouw woning

• maximale exposure van je huis

• bezichtigingen ook in het weekend

• netwerk met honderden woningzoekers

Verkoop je je huis met Hoekstra & van Eck dan ben je met de eigen app 24/7 op de hoogte van het verkoopproces. Bezichtigingsverzoeken bereiken je direct en beantwoord je snel en discreet op het moment dat het jou uitkomt.

Ook je huis verkopen? Onze makelaars komen graag en vrijblijvend bij je langs. We maken dan direct een gratis waardebepaling. Hoekstra & van Eck werkt op basis van no cure no pay. En betalen doe je pas bij verkoop.

Stationsplein 34-36 072 - 201 01 13 heerhugowaard@hoekstraenvaneck.nl www.hoekstraenvaneck.nl

HOORN

PURMEREND ZAANDAM

(2x)

A’DAM WEST

HOOFDDORP HAARLEM

LEIDEN

MONNICKENDAM

A’DAM NOORD

ALMERE AMSTELVEEN AMSTERDAM

BUSSUM

HILVERSUM

MAARSSEN

UTRECHT

VLEUTEN DE MEERN

AMERSFOORT

(2x) (2x)

NIEUWEGEIN WIJK BIJ DUURSTEDE

MEPPEL

ZWOLLE

APELDOORN

ARNHEM

(2x)

NIJMEGEN

‘S-HERTOGENBOSCH

BREDA

TILBURG

EINDHOVEN

WEERT

ROERMOND

WhatsApp de foto’s en het adres van je woning naar 06 13 18 43 41 en ontvang een gratis waardebepaling!

Turn static files into dynamic content formats.

Create a flipbook
Issuu converts static files into: digital portfolios, online yearbooks, online catalogs, digital photo albums and more. Sign up and create your flipbook.