Watermuntlaantje 4, Landsmeer

Page 1

Huizen van Hoekstra enVan Eck

Tuin op zuiden

Uitzicht op water

4 slaapkamers

Centrale ligging

Kindvriendelijk

Watermuntlaantje 4 , 1121 BK Landsmeer
H6H

De in deze brochure getoonde informatie wordt door Hoekstra & van Eck makelaardij met zorg samengesteld, doch voor de juistheid en volledigheid daarvan kan niet worden ingestaan en kunnen hieraan geen rechten worden ontleend. Spel- en typefouten voorbehouden. De plattegronden zijn geproduceerd voor promotionele doeleinden en ter indicatie. Er kunnen geen rechten aan worden ontleend. Maten zijn niet eigenhandig opgemeten. Indien er twijfel bestaat over de accuratie van de gegevens aangaande deze brochure, is de geïnteresseerde zelf verantwoordelijk voor het nameten van deze gegevens. Voor meer informatie wordt u doorverwezen naar www.hoekstraenvaneck.nl

Verkoper vertelt

Met het Watermuntlaantje 4 in het ‘oude dorp’ van Landsmeer hebben wij een fijne gezinswoning te pakken! Deze goed onderhouden tussenwoning is gelegen in een groene en kindvriendelijke woonwijk en biedt daarnaast ook nog eens alle nodige voorzieningen op korte afstand. Wat wil je nog meer?

Binnenshuis kun je rekenen op een lichte, tuingerichte woonkamer met aan de voorzijde de woonkeuken. Boven beschik je over vier slaapkamers en een badkamer. De woning ligt op een mooi perceel eigen grond. Daarnaast is er een zonnige achtertuin op het zuiden met uitzicht over groen en vaarwater wat hier absoluut de puntjes op de welbekende “i” zetten.

Nieuwsgierig geworden? Neem dan contact op met ons kantoor, plan een bezichtiging in en laat je rondleiden door één van onze makelaars.

Zien we je snel?

Kenmerken eengezinswoning tussenwoning 5 112 m² 116 m² 379 m³ 1967 achtertuin, voortuin geen garage gaskachels dubbel glas D Soort Type Kamers Woonoppervlakte Perceeloppervlakte Inhoud Bouwjaar Tuin Garage Verwarming Isolatie Energielabel
Te koop bij
Landsmeer: Zuideinde 9, T 020 - 482 11 12

Open woonkeuken realiseren? gezellige eethoek

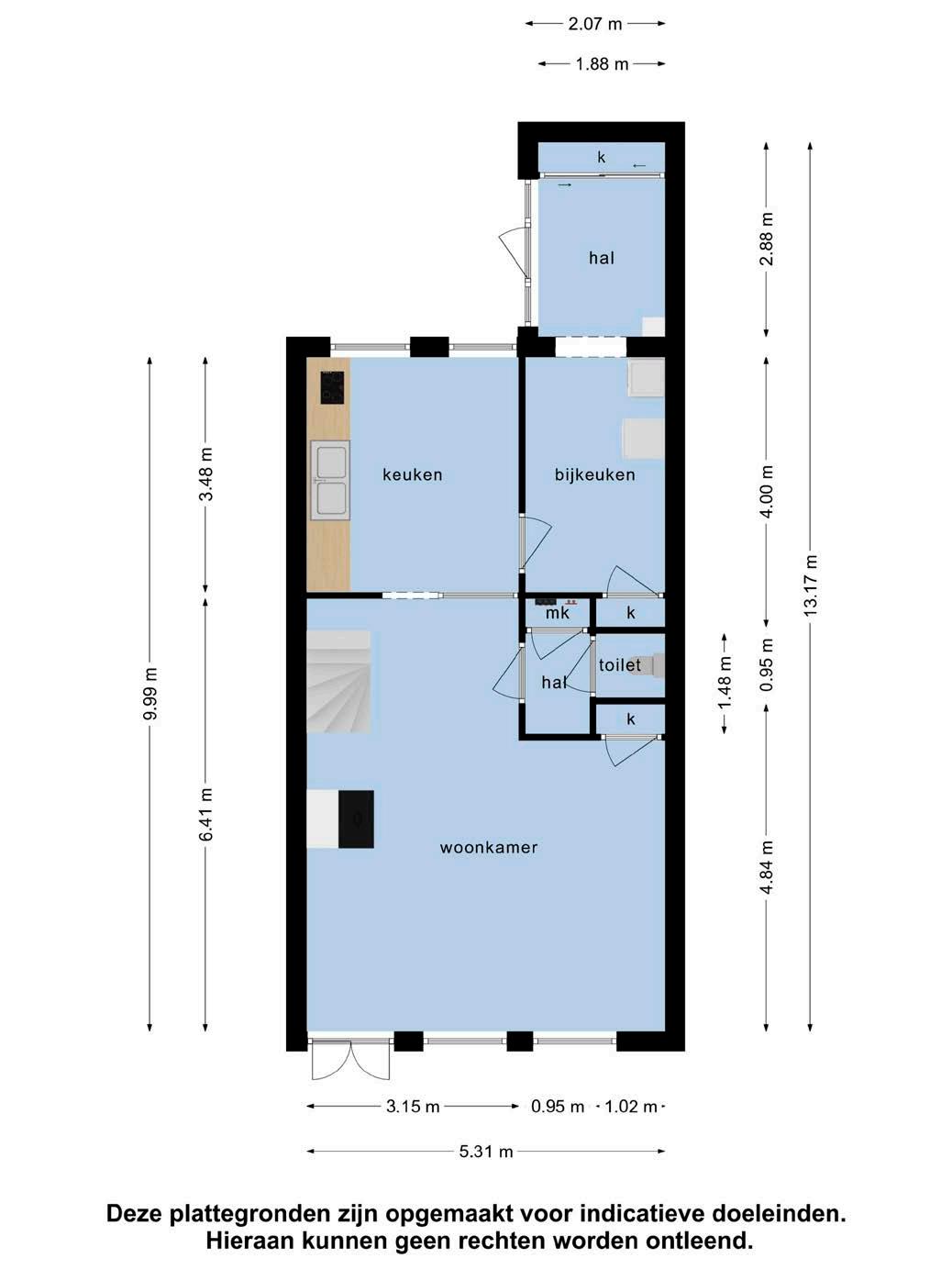
Vanuit de hal, komen we via de bijkeuken in de keuken waar we starten met de rondleiding. Aan de voorzijde is de half open woonkeuken gesitueerd. Het geheel is geplaatst in een wandopstelling waardoor je aan werk- en opbergruimte niets tekort zult komen. Mocht de ruimte toch niet helemaal naar wens zijn, dan heb je de mogelijkheid om de ruimte volledig naar eigen wens te moderniseren. Zie jij het al helemaal voor je, een gloednieuwe woonkeuken die in open verbinding staat met de woonkamer?

In de keuken is voldoende ruimte om een gezellige eethoek te realiseren waaraan je lekker lang kunt tafelen.

In de bijkeuken vindt je de wasmachine aansluiting.

half open keuken huizen van hoekstra & van eck

Tuingerichte woonkamer

veel lichtinval netjes afgewerkt

Een fijne hoeveelheid daglicht vult de ruimte en daarnaast bestaat de afwerking uit nette, in lichte kleur afgewerkte wanden en een houten parketvloer. Hierdoor profiteer je van een goede basis waarin je binnen no-time een fijn nieuw thuis zult creëren. Er is meer dan voldoende ruimte om een grote zithoek voor de tv te plaatsen waar je heerlijk kunt ontspannen.

In de tussenhal is de meterkast en het toilet gesitueerd.

huizen van hoekstra & van eck

4 slaapkamers

verzorgde badkamer

Middels de vaste trap begeven we ons naar de bovenverdieping. De overloop verleent toegang tot 4 slaapkamers en de badkamer. De slaapkamers variëren van formaat, zijn lekker licht en voorzien van nette, in lichte kleur afgewerkte wanden en deels vinyl en vloerbedekking op de vloeren. Heb je niet alle kamers nodig om te slapen? Dan kun je ervoor kiezen om één van de ruimtes in te richten als hobbykamer of comfortabele thuiswerkplek. De keuze is aan jou!

De badkamer is van grond tot plafond betegeld in een lichte kleur en maakt daarmee een verzorgde indruk. De indeling bestaat uit een wastafel en een douche. Je kan ervoor kiezen om één van de slaapkamers bij de badkamer te betrekken en hier een hele nieuwe badkamer te realiseren. Zie jij jezelf hier al helemaal staan, onder je gloednieuwe regendouche?

Hoe deel jij de kamers in?

huizen van hoekstra & van eck

keurig aangelegd

Tuin op het zuiden genieten!

Vanuit de woonkamer kom je via de openslaande deuren in de gunstig bemeten achtertuin op het zuiden. De tuin is keurig aangelegd met bestrating waardoor je hier naar onderhoud maar weinig omkijken hebt én tegelijkertijd ruimte hebt voor een comfortabele tuin- of loungeset waardoor je hier optimaal van het buitenleven kunt genieten en van het uitzicht over het vaarwater. Genieten!

huizen van hoekstra & van eck

Uitzicht over vaarwater

kindvriendelijk wonen

centrale ligging

De woning staat in het “oude dorp” van Landsmeer in een groene en kindvriendelijke omgeving. Op 2 minuten loopafstand ligt het centrum waar zich het winkelcentrum van Landsmeer bevindt, waar je terecht kunt voor de dagelijkse boodschappen.

Openbaar vervoer stopt hier en binnen 15 minuten ben je op Amsterdam Centraal via o.a. de Ring A10. De woning is centraal gelegen ten opzichte van o.a. Oostzaan, Purmerend en Zaandam. Daarnaast zijn er vele sportfaciliteiten en is het recreatiegebied ’t Twiske nabij.

huizen van hoekstra & van eck
Watermuntlaantje 4 1121 BK Landsmeer
Watermuntlaantje 4 1121 BK Landsmeer

Wonen in Landsmeer betekent rust, ruimte en natuur in de schaduw van Amsterdam. De gemeente heeft twee belangrijke natuurgebieden binnen haar grenzen: de (rustige) helft van het recreatie- en natuurgebied Het Twiske en het gehele natuurgebied Het Ilperveld. Voor sportieve mensen zijn de mogelijkheden bijna onbeperkt; in het recreatiegebied van Het Twiske kan men joggen, fietsen, skeeleren, paardrijden, zeilen, kanovaren en duiken.

Tevens biedt Landsmeer een sporthal, sportpark, 2 sportscholen en een openluchtzwembad. Door de gunstige ligging ten opzichte van Amsterdam is het culturele aanbod van Amsterdam - Concertgebouw, Muziekgebouw, vele theaters, bioscopen en musea - ook voor de inwoners van Landsmeer gemakkelijk beschikbaar. Landsmeer beschikt verder over een uitgebreid winkelaanbod met filialen van bijna alle bekende landelijke winkelketens.

Landsmeer is zeer gunstig gelegen ten opzichte van Amsterdam en heeft een eigen op- en afrit van de ringweg rond Amsterdam. (s117) De openbaar vervoer verbindingen zijn uitstekend met een bus naar station Sloterdijk en een bus naar de beginhalte Noord-Zuidlijn. Door de tweede Coentunnel zijn er nu 8 rijstroken beschikbaar. Daarmee is het fileprobleem voor de Coentunnel opgelost en wordt Landsmeer ook een ideale locatie voor mensen die werken in het Schipholgebied of veelvuldig gebruik maken van het vliegtuig.

heerlijk wonen in Landsmeer

Landsmeer
noorden kadastrale kaart

Lokaal makelaarschap

Wij geloven sterk in lokaal makelaarschap. Kennis van de buurt, de omgeving en de daarbij behorende ontwikkeling van de huizenprijzen zijn onmisbaar om voor jou het maximale resultaat te boeken.

Met Hoekstra & van Eck kies je voor:

• makelaars die al jarenlang verbonden zijn met de regio

• kennis van de lokale woningmarkt

• een verkoopplan afgestemd op jouw woning

• maximale exposure van je huis

• bezichtigingen ook in het weekend

• netwerk met honderden woningzoekers

Verkoop je je huis met Hoekstra & van Eck dan ben je met de eigen app 24/7 op de hoogte van het verkoopproces. Bezichtigingsverzoeken bereiken je direct en beantwoord je snel en discreet op het moment dat het jou uitkomt.

Ook je huis verkopen? Onze makelaars komen graag en vrijblijvend bij je langs. We maken dan direct een gratis waardebepaling. Hoekstra & van Eck werkt op basis van no cure no pay. En betalen doe je pas bij verkoop.

Zuideinde 9 020 - 482 11 12 landsmeer@hoekstraenvaneck.nl www.hoekstraenvaneck.nl

onze makelaarskantoren huizen van hoekstra & van eck
Ook je huis verkopen? WhatsApp de foto’s en het adres van je woning naar 06 13 18 43 41 en ontvang een gratis waardebepaling! WHATSAPP FOTO’S WONING ADRES WAARDE + + = Zuideinde 9 020 - 482 11 12 landsmeer@hoekstraenvaneck.nl www.hoekstraenvaneck.nl

Turn static files into dynamic content formats.

Create a flipbook
Issuu converts static files into: digital portfolios, online yearbooks, online catalogs, digital photo albums and more. Sign up and create your flipbook.