In de Poldermolen 19, Duivendrecht

Page 1


Huizen van Hoekstra enVan Eck

Energielabel A

Drie slaapkamers

Groen uitzicht

Externe berging

Eigen grond

Kenmerken

Soort tussenverdieping

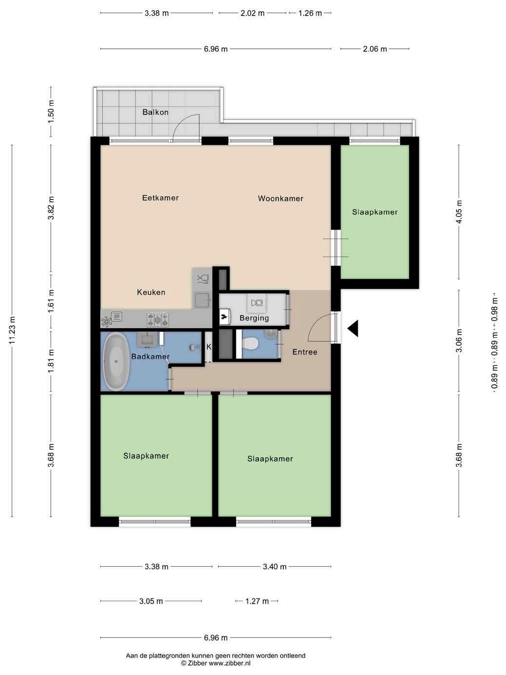
Kamers 4

Woonoppervlakte 87 m²

Inhoud 287 m³

Bouwjaar 1979

Tuin zonneterras

Garage geen garage

Verwarming c.v.-ketel

Isolatie dubbel glas

Energielabel A

De in deze brochure getoonde informatie wordt door Hoekstra & van Eck makelaardij met zorg samengesteld, doch voor de juistheid en volledigheid daarvan kan niet worden ingestaan en kunnen hieraan geen rechten worden ontleend. Spel- en typefouten voorbehouden. De plattegronden zijn geproduceerd voor promotionele doeleinden en ter indicatie. Er kunnen geen rechten aan worden ontleend. Maten zijn niet eigenhandig opgemeten. Indien er twijfel bestaat over de accuratie van de gegevens aangaande deze brochure, is de geïnteresseerde zelf verantwoordelijk voor het nameten van deze gegevens. Voor meer informatie wordt u doorverwezen naar www.hoekstraenvaneck.nl

Verkoper vertelt

De omgeving van Duivendrecht biedt het beste van twee werelden: een rustige, groene woonomgeving en de nabijheid van het bruisende Amsterdam.

Binnen 20 minuten fietsen sta je in het centrum van de stad, terwijl de lokale voorzieningen alle gemakken binnen handbereik bieden.

De gunstige ligging ten opzichte van belangrijke snelwegen (A10, A1, A2) en openbaar vervoer maakt het eenvoudig om te reizen voor werk of vrije tijd. Amsterdam: Westeinde 10, T 020 - 624 12 14

prettige lichtinval

Ga lekker zitten hoe richt jij het in? huizen van

De raampartijen zorgen voor een prettige lichtinval in de woonkamer, die direct toegang biedt tot het balkon op het zuidoosten.

Volop genieten

optimaal genieten onderhoudsvriendelijk

Balkon op het zuidoosten en op de begane grond ben je voorzien van een ruime berging, handig voor fietsen en het opbergen van spullen.

Lekker kokkerellen

open keuken

wat maak jij klaar?

Maak jouw favoriete maaltijd klaar in de open woonkeuken.

welterusten

Uitgerust ontwaken goede afmetingen

Drie slaapkamers maken het appartement uitermate geschikt voor gezinnen.

Fijne lichtinval

grote kamers thuiswerken

Door de drie slaapkamers, is er een mogelijkheid om van een van de kamers een studeer-/werkkamer te maken.

heerlijk wonen in Duivendrecht

Duivendrecht

Duivendrecht is een dorp in de gemeente Ouder-Amstel, grenzend aan Amsterdam Watergraafsmeer, Zuidoost en Diemen.

Duivendrecht heeft een fraaie dorpskern, met authentieke huizen en de bekende Bordjesroute; een prachtige wandeling door de meest authentieke delen van het dorp. Ook staan er twee prachtige kerken als historische elementen.

Ook heeft Duivendrecht een groot industrieterrein behorend tot het Amsterdam Business Park, waardoor het hier ook voor startende ondernemers goed wonen is. Verder is hier nog een prachtig landelijk gebied gelegen aan de Amstel, namelijk de Groot en Klein Duivendrechtse Polders.

Duivendrecht heeft een eigen treinstation, metrostation Van der Madeweg en er zijn meerdere bushaltes die van en naar Amsterdam rijden. Ook is de ring A10 gemakkelijk te bereiken. Kortom, een fijne, veelzijdige plek dicht bij de stad maar toch met dat stukje rust en recreatie!

Amsterdam; een bruisende stad waar niets te gek is! Alles kan en bijna alles mag. Amsterdam beschikt over tal van monumentale grachtenpanden, musea, horeca en ga zo maar door. Ook wat activiteiten, evenementen en festivals betreft is Amsterdam the place to be! Er is altijd wel iets te doen en alles is tot in de puntjes geregeld. Alles is prima te bereiken met het openbaar vervoer.

In augustus 2010 is de 17e eeuwse Amsterdamse grachtengordel toegevoegd aan de Werelderfgoedlijst van Unesco.

noorden kadastrale kaart

HEERHUGOWAARD

ALKMAAR LANDSMEER

Lokaal makelaarschap

Wij geloven sterk in lokaal makelaarschap. Kennis van de buurt, de omgeving en de daarbij behorende ontwikkeling van de huizenprijzen zijn onmisbaar om voor jou het maximale resultaat te boeken.

Met Hoekstra & van Eck kies je voor:

• makelaars die al jarenlang verbonden zijn met de regio

• kennis van de lokale woningmarkt

• een verkoopplan afgestemd op jouw woning

• maximale exposure van je huis

• bezichtigingen ook in het weekend

• netwerk met honderden woningzoekers

Verkoop je je huis met Hoekstra & van Eck dan ben je met de eigen app 24/7 op de hoogte van het verkoopproces. Bezichtigingsverzoeken bereiken je direct en beantwoord je snel en discreet op het moment dat het jou uitkomt.

Ook je huis verkopen? Onze makelaars komen graag en vrijblijvend bij je langs. We maken dan direct een gratis waardebepaling. Hoekstra & van Eck werkt op basis van no cure no pay. En betalen doe je pas bij verkoop.

Westeinde 10 020 - 624 12 14 amsterdam@hoekstraenvaneck.nl www.hoekstraenvaneck.nl

HOORN

PURMEREND ZAANDAM

(2x)

A’DAM WEST

HOOFDDORP HAARLEM

LEIDEN

MONNICKENDAM

A’DAM NOORD

AMSTERDAM

ALMERE AMSTELVEEN

BUSSUM

HILVERSUM

MAARSSEN

UTRECHT

VLEUTEN DE MEERN

AMERSFOORT

(2x) (2x)

NIEUWEGEIN WIJK BIJ DUURSTEDE

MEPPEL

ZWOLLE

APELDOORN

ARNHEM

(2x)

NIJMEGEN

‘S-HERTOGENBOSCH

BREDA

TILBURG

EINDHOVEN

WEERT

ROERMOND

WhatsApp de foto’s en het adres van je woning naar 06 13 18 43 41 en ontvang een gratis waardebepaling!

Turn static files into dynamic content formats.

Create a flipbook
Issuu converts static files into: digital portfolios, online yearbooks, online catalogs, digital photo albums and more. Sign up and create your flipbook.
In de Poldermolen 19, Duivendrecht by Hoekstra en van Eck Makelaars - méér makelaar - - Issuu