Antillenweg 5, Almere

Page 1


Huizen van Hoekstra enVan Eck

Antillenweg 5 , 1339 KD Almere

Aan vaarwater

4 slaapkamers

Moderne keuken

Centrale ligging

Soort eengezinswoning

Type tussenwoning

Kamers 5

Woonoppervlakte 179 m²

Perceeloppervlakte 135 m²

Inhoud 634 m³

Bouwjaar 2001

Tuin voortuin, zonneterras

Garage parkeerplaats, geen garage

Verwarming c.v.-ketel

Isolatie dubbel glas

Energielabel A

De in deze brochure getoonde informatie wordt door Hoekstra & van Eck

met zorg samengesteld, doch voor de juistheid en volledigheid daarvan kan niet worden ingestaan en kunnen hieraan geen rechten worden ontleend. Spel- en typefouten voorbehouden. De plattegronden zijn geproduceerd voor promotionele doeleinden en ter indicatie. Er kunnen geen rechten aan worden ontleend. Maten zijn niet eigenhandig opgemeten. Indien er twijfel bestaat over de accuratie van de gegevens aangaande deze brochure, is de geïnteresseerde zelf verantwoordelijk voor het nameten van deze gegevens. Voor meer informatie wordt u doorverwezen naar www.hoekstraenvaneck.nl

Verkoper vertelt

Charming and Spacious Home in a Picturesque

Neighborhood. Looking for a large home in a lovely, green area right on the water? Look no further!

Neighborhood:

• Family-Friendly: Safe & diverse area with a social yet peaceful vibe. Kids roam freely, exploring the water and playing in the parks. Excellent schools, childcare & activities.

• Prime Location: Easy access to Oostvaarders & Buiten for an array of shopping, dining, & recreation. Meander along tree-lined canals and scenic paths, including a famous one lined with cherry blossoms. The area is known for its unique architecture.

• Excellent Connectivity: A bus stop is 5-min away, connecting to great public transport options taking you to Amsterdam, Schiphol, & more. The house is just off the A6.

House:

• Spacious and Airy: High ceilings and big windows create a bright and open atmosphere. Thick walls

provide insulation and quiet, ensuring comfort year-round.

• Outdoor Living: Large, fenced porch on the canal is perfect for BBQs, gated front yard is ideal for playing, & the rooftop is cozy for relaxing. In summer, enjoy leisurely boating or even jump in!

• Versatile Layout: Rooms can be adapted from 1 to 6 bedrooms, or turned into an office, gym, playroom, or more. Main bedroom has a large walk-in closet. There’s ample storage throughout, including a secret wall. The storeroom holds extra gear or can be turned into a utility workspace.

This home offers the perfect blend of convenience, community, and comfort. Make it yours!

een ideale woonkeuken
Voor alle culinaire avonden l-vorm

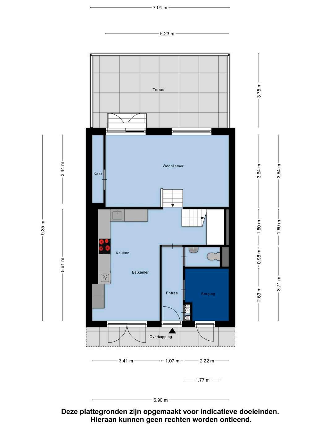
Kom binnen in de woonkeuken, die in 2023 volledig is vernieuwd en het hart van het huis vormt. De keuken is praktisch ingericht in een L-vorm en is uitgerust met een combimagnetron, oven, vaatwasser, ingebouwde koelkast en vriezer, en een inductiekookplaat met afzuigkap, waardoor het de perfecte plek is voor culinaire avonturen. De openslaande deuren leiden naar de voortuin, waar je ‘s ochtends heerlijk van je koffie kunt genieten.

Een knusse woonkamer huizen

uizicht op het water

een perfecte plek

Via een trapje kom je in de lager gelegen, knusse woonkamer. Hier vind je een verrassende opbergruimte achter een voorzetwand, ideaal voor al je kerstspullen. De woonkamer baadt in het licht en biedt een schitterend uitzicht op het water. Dankzij de hoge plafonds voelt het hier erg ruimtelijk. Vanuit je eigen huis vaar je zo naar Almere Centrum of richting Lelystad!

Met een Frans balkon

ruime slaapkamers

toegang tot het dakterras

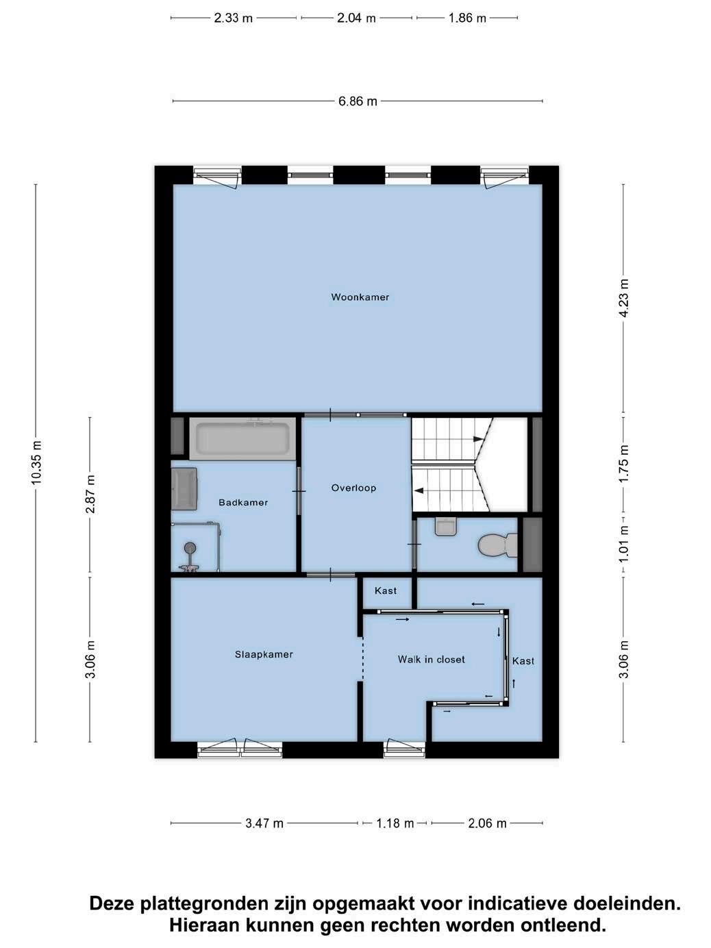
De overloop leidt naar een moderne badkamer, een apart toilet en twee royale slaapkamers, met de mogelijkheid om uit te breiden naar drie of zelfs vier kamers. Aan de achterzijde heb je een prachtig uitzicht over het water met een Frans balkon, terwijl de slaapkamer aan de voorzijde ook een Frans balkon en een handige inloopkast biedt. Op de tweede verdieping vind je een lichte overloop met ruimte voor je wasmachine en droger, plus de CV-installatie (uit 2023) en mechanische ventilatie. De slaapkamers op deze verdieping zijn royaal uitgebouwd, waardoor de woning nog ruimer aanvoelt. Beide kamers, evenals de overloop, bieden toegang tot een zonnig dakterras.. Het is een heerlijke plek om te ontspannen.

Een ruim vlonderterras

eigen parkeerplaats

ligplaats voor de boot

De voortuin is praktisch ingericht met bestrating en plantenborders, en biedt parkeergelegenheid op eigen terrein.

Aan de achterzijde ligt een ruim vlonderterras boven het water. Hier kun je heerlijk zitten aan het vaarwater en je eigen boot aanmeren.

De ligging is ideaal, binnen een minuut bereik je de A6 richting Amsterdam en het treinstation Oostvaarders is slechts 10 minuten lopen.

heerlijk wonen in Almere

Almere

Hoe oud je ook bent, Almere is the place to be! Dit komt doordat Almere erg divers is. Natuur voor de natuurliefhebbers, water voor de watersporters, architectuur voor de architectuurliefhebbers en vele bezienswaardigheden, neem de Oostvaardersplassen, Almere Centrum en evenementen zoals Strandfestival “ZAND” en het “Almere Haven festival”.

Voor iedereen is er wel wat te doen in Almere. De stad trekt steeds meer toeristen en is een multiculturele stad, die volop aan het groeien is. Verder zijn de mogelijkheden met het openbaar vervoer uitstekend geregeld en met de auto ben je altijd binnen 10 minuten op de ringweg A6.

noorden kadastrale kaart

HEERHUGOWAARD

ALKMAAR LANDSMEER

Lokaal makelaarschap

Wij geloven sterk in lokaal makelaarschap. Kennis van de buurt, de omgeving en de daarbij behorende ontwikkeling van de huizenprijzen zijn onmisbaar om voor jou het maximale resultaat te boeken.

Met Hoekstra & van Eck kies je voor:

• makelaars die al jarenlang verbonden zijn met de regio

• kennis van de lokale woningmarkt

• een verkoopplan afgestemd op jouw woning

• maximale exposure van je huis

• bezichtigingen ook in het weekend

• netwerk met honderden woningzoekers

Verkoop je je huis met Hoekstra & van Eck dan ben je met de eigen app 24/7 op de hoogte van het verkoopproces. Bezichtigingsverzoeken bereiken je direct en beantwoord je snel en discreet op het moment dat het jou uitkomt.

Ook je huis verkopen? Onze makelaars komen graag en vrijblijvend bij je langs. We maken dan direct een gratis waardebepaling. Hoekstra & van Eck werkt op basis van no cure no pay. En betalen doe je pas bij verkoop.

Midwaystraat 3

036 - 538 32 90 almere@hoekstraenvaneck.nl www.hoekstraenvaneck.nl

HOORN

PURMEREND ZAANDAM

(2x)

A’DAM WEST

HOOFDDORP HAARLEM

LEIDEN

MONNICKENDAM

A’DAM NOORD

AMSTERDAM

AMSTELVEEN

VLEUTEN DE MEERN

ALMERE

BUSSUM

HILVERSUM

MAARSSEN

UTRECHT

AMERSFOORT

(2x) (2x)

NIEUWEGEIN WIJK BIJ DUURSTEDE

MEPPEL

ZWOLLE

APELDOORN

ARNHEM

(2x)

NIJMEGEN

‘S-HERTOGENBOSCH

BREDA

TILBURG

EINDHOVEN

WEERT

ROERMOND

WhatsApp de foto’s en het adres van je woning naar 06 13 18 43 41 en ontvang een gratis waardebepaling!

Turn static files into dynamic content formats.

Create a flipbook
Issuu converts static files into: digital portfolios, online yearbooks, online catalogs, digital photo albums and more. Sign up and create your flipbook.